Consiga uma caixa de campo de visão normal (RFoV)

O ITS-in-a-box de campo de visão normal (RFoV) (revisão 1a) consiste em uma caixa de plástico cortada a laser de desenhos de design assistido por computador (CAD), um tablet gráfico e um dispositivo em teste (DUT). O RFoV ITS-in-a-box foi projetado para testar dispositivos com um FoV menor que 90 graus (RFoV). Você pode comprar um ITS-in-a-box ou criar o seu próprio.

A versão rev1b do ITS-in-a-box RFOV adiciona suporte a componentes modulares e é compatível com o suporte de extensão de tele.

Rev1b

Figura 1. Caixa ITS de campo de visão normal (RFoV) Rev1b

Histórico de revisões

A tabela a seguir descreve o histórico de revisões da caixa de campo de visão normal e inclui links para download de cada versão dos arquivos de produção.

Data Revisão Download de arquivos de produção Registro de alterações
Setembro de 2024 1b Arquivos de produção da Rev. 1b
  • Adotamos um sistema modular (adiciona um mecanismo de montagem para extensões modulares).
Maio de 2019 1a Arquivos de produção da revisão 1a
  • O material foi mudado de Delrin para ABS.
  • O design do suporte de luz foi alterado para ser mais flexível e lidar com diferentes tamanhos de barra de LED.
  • Unificamos os métodos de construção.
  • Simplificamos o design do suporte para tablet e o tornamos mais robusto.
  • Aumentamos a profundidade do suporte para smartphone para acomodar aparelhos mais grossos.
  • Aumentamos as opções de montagem no painel frontal para acomodar um suporte para dobráveis e smartphones resistentes.

Comprar um ITS-in-a-box de RFoV

Recomendamos comprar um ITS-in-a-box RFoV (revisão 1a) de um dos seguintes fornecedores qualificados.

  • Byte Bridge Inc.
    EUA: 1502 Crocker Ave, Hayward, CA 94544-7037
    China: 22F #06-08, Hongwell International Plaza Tower A, 1600 West Zhongshan Road, Xuhui, Xangai, 200235
    www.bytebt.com
    androidpartner@bytebt.com
    EUA: +1-510-373-8899
    China: +86-400-8866-490

  • JFT CO LTD 捷富通科技有限公司 (antes conhecida como MYWAY DESIGN)
    Nº 40, Rua 22, Heai Road, Wujing Town, Minhang District, Xangai, China
    4º andar, Nº 163, Rua Fu-Ying, Distrito de XinZhuang, New Taipei City 242, Taiwan
    www.jftcoltd.com
    service@jfttec.com ou its.sales@jfttec.com
    China:+86-021-64909136
    Taiwan: 886-2-29089060

Tutorial em vídeo

Este é um tutorial em vídeo sobre como configurar o ITS-in-a-box de RFoV.

Criar um ITS-in-a-box de RFoV

Em vez de comprar um ITS-in-a-box de RFoV, você pode criar o seu próprio. Esta seção fornece instruções detalhadas para a montagem.

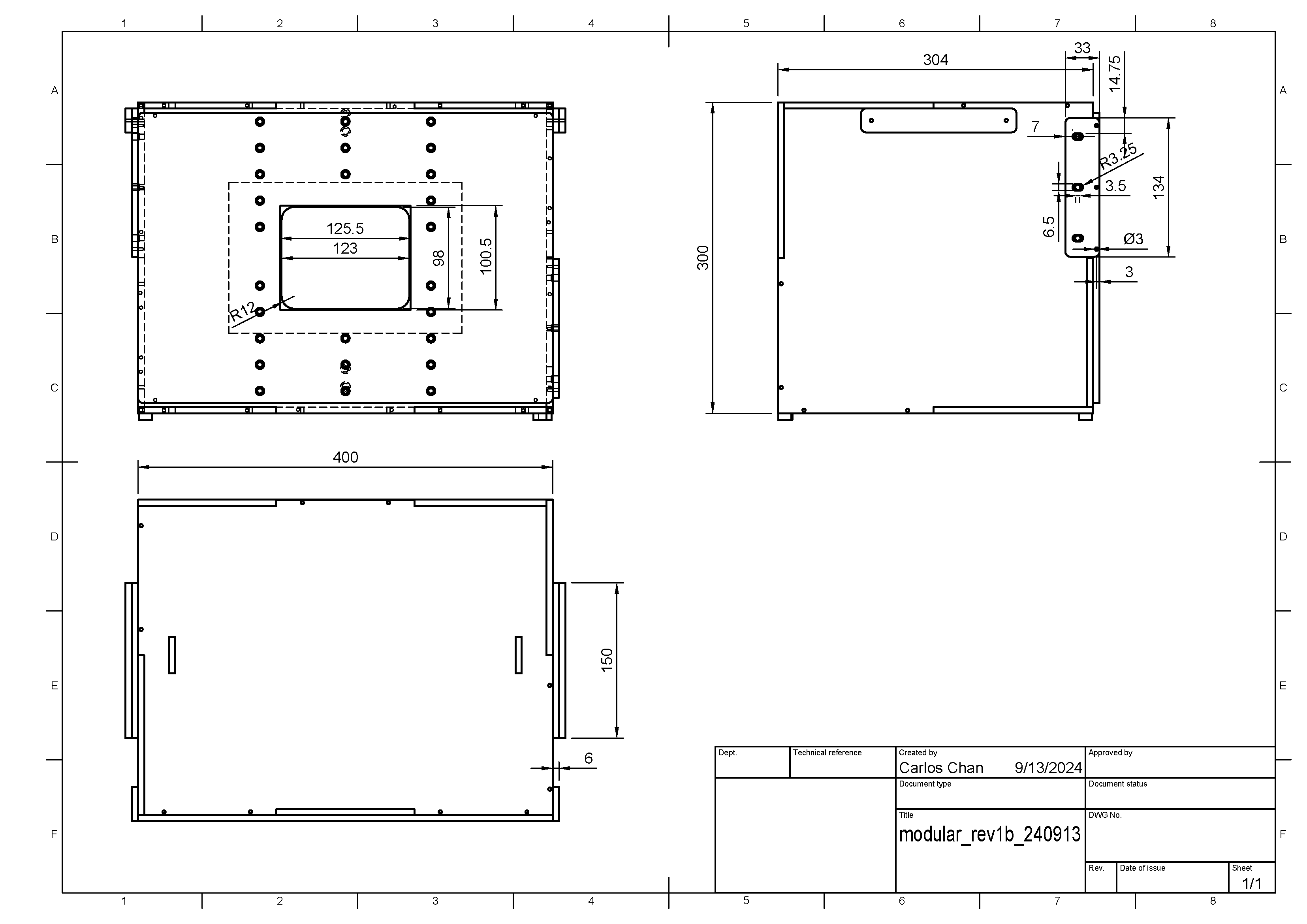
Desenhos mecânicos

O ITS-in-a-box consiste em um DUT, um tablet gráfico, um sistema de iluminação interna e uma caixa de plástico cortada a laser de desenhos CAD (mostrada na Figura 1).

Para começar, faça o download do arquivo de produção mais recente.

Desenho mecânico do ITS-in-a-box

Figura 2. Desenho mecânico do ITS-in-a-Box

Compre o hardware na lista de materiais (BOM). Corte os pedaços de plástico e vinil.

Ferramentas necessárias

Tenha as seguintes ferramentas disponíveis:

  • Chave de fenda Torx
  • Furadeira
  • Cola ABS
  • Alicate de ponta fina
  • Estilete X-ACTO
  • Cortadores de fios ou tesoura (opcional)

Etapa 1: aplique o vinil e cole os pés

Aplique vinil colorido no lado liso do acrilonitrilo butadieno estireno (ABS) e corte as aberturas necessárias, conforme mostrado nas figuras 3 e 4. Aplique o vinil branco com a grande abertura retangular na lateral da caixa do tablet e o vinil preto com a abertura circular na lateral da caixa do dispositivo móvel. Aplique vinil cinza nos painéis laterais, como mostrado na Figura 4, e cole os pés nos quatro cantos do painel inferior, como mostrado na Figura 5. Para mais informações, consulte wikiHow.

Vinil nos painéis frontal e traseiro

Figura 3. Vinil preto no painel frontal (esquerda) e vinil branco no painel traseiro (direita)

Painéis laterais

Figura 4. Vinil cinza nos painéis laterais

Painel inferior

Figura 5. Pés nos quatro cantos do painel inferior

Etapa 2: iluminação

Para montar o componente de iluminação do ITS-in-a-box:

  1. Reúna o hardware de iluminação conforme mostrado na Figura 6.

    Peças de montagem de iluminação

    Figura 6. Peças de montagem de iluminação

    O hardware inclui as barras de luz de LED, os defletores de luz de plástico, os suportes de luz de plástico, os clipes de luz de plástico ou metal incluídos no kit de iluminação de LED e quatro parafusos 6-32 com porcas de cabeça de bolota.

  2. Fixe os clipes de luz aos defletores de plástico, conforme mostrado na Figura 7. Prenda os clipes usando as porcas sextavadas do outro lado dos defletores.

    Defletores de luz

    Figura 7. Defletores de plástico com clipes de luz anexados

  3. Para montar as luzes, prenda os defletores de plástico na parte de trás das barras de luz LED usando os clipes.

    Painéis de luzes

    Figura 8. Barras de iluminação com as luzes voltadas para baixo e parafusos passados pelos clipes

Quando o componente de iluminação estiver montado, as barras de luz LED devem apontar para baixo, e os defletores de plástico precisam cobrir a superfície brilhante e reflexiva na parte de trás da barra de luz LED.

Etapa 3: suportes para smartphone

Para montar os suportes de smartphone:

  1. Reúna os itens necessários, conforme mostrado na Figura 9.

    Suportes para smartphone

    Figura 9. Suportes para smartphone

    O hardware inclui dois suportes de metal para smartphone, dois êmbolos, duas pontas de borracha, quatro parafusos de cabeça cilíndrica 8-32 e as porcas correspondentes.

  2. Corte as pontas de borracha para que não interfiram no funcionamento do êmbolo (aproximadamente na metade) e aplique-as para cobrir as pontas dos êmbolos.

    Desentupidores de pia

    Figura 10. Desentupidores com pontas de borracha

  3. Monte os suportes para smartphone usando parafusos de cabeça cilíndrica para fixar os mecanismos de êmbolo aos suportes de metal. Verifique se os parafusos estão apertados com as porcas correspondentes.

    Suportes para smartphone montados

    Figura 11. Suportes para smartphone montados

Etapa 4: placa de abertura

Para montar a placa de abertura frontal:

  1. Reúna o hardware da placa de abertura frontal mostrado na Figura 12.

    Peças da placa de abertura frontal

    Figura 12. Peças de montagem da placa de abertura frontal

    O hardware inclui os suportes de smartphone montados, o painel de suporte de smartphone, quatro parafusos curtos de nylon e quatro porcas de nylon (necessárias para evitar que os parafusos sobressaiam na parte de trás da placa de plástico).

  2. Usando os parafusos e as porcas, prenda os suportes de smartphone montados ao painel de suporte. Verifique se os suportes para smartphone estão na orientação correta, conforme mostrado na Figura 13.

    Placa de abertura frontal montada

    Figura 13. Placa de abertura frontal montada

Etapa 5: suporte para tablet

Para montar o suporte de mesa:

  1. Reúna o hardware de montagem do suporte para tablet mostrado na Figura 14.

    Peças de suporte para tablet

    Figura 14. Peças de montagem do suporte para tablet

    O hardware inclui o painel traseiro, o suporte para tablet, um êmbolo, uma ponta de borracha, dois parafusos de cabeça chata 8-32, dois parafusos curtos de nylon e as porcas correspondentes.

  2. Monte o suporte para tablet usando parafusos de cabeça chata para fixar os mecanismos de trava ao suporte de metal. Confira se os parafusos estão apertados com as porcas correspondentes.

  3. Usando os parafusos e as porcas, prenda o suporte montado na parte de trás do painel. Verifique se os suportes para smartphone estão na orientação correta, conforme mostrado na Figura 15.

    Suporte para tablet montado

    Figura 15. Suporte para tablet montado

Etapa 6: instalar as luzes

Para instalar as luzes:

  1. Instale os defletores de luz nos painéis superior e inferior, como mostrado na Figura 16.

    Defletores de luz instalados

    Figura 16. Defletores de luz instalados nos painéis superior e inferior

  2. Prenda os defletores de luz encaixando o pino no pequeno orifício da aba retangular que se estende pelo slot nos painéis superior e inferior, como na Figura 17.

    Alfinete inserido

    Figura 17. Imagem ampliada do pino inserido na guia de suporte do LED na parte externa da caixa

    Para fixar os pinos, aperte-os com cuidado até sentir uma pressão no plástico enquanto eles são fixados no lugar.

    Alicates

    Figura 18. Alicate usado para instalar o pino

  3. Monte os painéis frontal e laterais na orientação correta, conforme mostrado na Figura 19, e prenda-os com fita adesiva pelo lado de fora.

    Orientação de posicionamento da luz

    Figura 19. Orientação de posicionamento da luz

  4. Conecte o cabo de alimentação à barra de luz de alimentação, conforme mostrado na Figura 20.

    Cabo de alimentação da iluminação

    Figura 20. Cabo de alimentação da iluminação

    Passe o cabo de alimentação pelo orifício no painel esquerdo. O cabo de alimentação tem conectores diferentes em cada extremidade: o conector mais estreito é conectado à barra de luz LED, e o maior é conectado ao adaptador de energia.

    Cabo de alimentação

    Figura 21. Cabo de alimentação saindo do equipamento de teste pelo lado esquerdo

  5. Conecte as luzes de cima às de baixo e prenda o cabo no painel esquerdo.

    Cabo de luz

    Figura 22. Cabo de luz fixado no painel esquerdo

Etapa 7: montar os painéis laterais, o suporte para tablet e as alças

Para montar os painéis laterais, o suporte para tablet e as alças do ITS-in-a-box com parafusos:

  1. Junte todos os lados dos painéis e prenda com fita adesiva, conforme mostrado na Figura 23.

    Caixa com fita adesiva para montagem

    Figura 23. ITS-in-a-box colado com fita adesiva para montagem

  2. Use uma furadeira elétrica para criar furos piloto com base nos furos existentes. Verifique se os furos piloto são grandes o suficiente para parafusos 4-40 para que o plástico ABS não rache ao inserir os parafusos.

    Fazer furos

    Figura 24. Fazer pré-furos para parafusos 4-40

  3. Parafuse todos os painéis usando parafusos autorroscantes 4-40.

    Furadeira

    Figura 25. Parafusos 4-40 para montagem de painéis

  4. Reúna as partes da alça mostradas na Figura 26.

    Peças de alça

    Figura 26. Peças de alça

    O hardware inclui quatro peças de plástico retangulares e quatro parafusos 6-32.

  5. Monte as alças conforme mostrado na Figura 27.

    Alça montada

    Figura 27. Alça montada

Etapa 8: montagem e configuração finais

Para fazer a montagem final do ITS-in-a-box:

  1. Fixe o suporte de tablet no painel traseiro e ajuste a altura de acordo com o tamanho do tablet.

    Suporte para tablet na parte de trás da caixa

    Figura 28. Tablet no suporte na parte de trás da caixa

  2. Prenda o painel de abertura quadrada sem suportes de smartphone na frente da caixa com parafusos 4-40, conforme mostrado na Figura 29.

    Painel frontal montado

    Figura 29. Painel frontal montado do smartphone

  3. Insira a abertura de placa de jacaré de 10 x 10 cm para encaixar na abertura da câmera do DUT.

    Abertura do quadro de Gator

    Figura 30. ITS-in-a-box com abertura de placa de gator instalada

  4. Para instalar o smartphone, alinhe a câmera com a abertura. Verifique o alinhamento pela abertura do tablet.

    Caixa com um smartphone

    Figura 31. ITS-in-a-box com um smartphone instalado

  5. Corte as aberturas para as câmeras. Você pode cortar uma única abertura (para testar um smartphone) ou duas aberturas (para testar dois smartphones). As aberturas das câmeras frontal e traseira do Pixel e do Pixel XL são mostradas na Figura 31. A câmera frontal tem uma abertura circular porque não há flash nem laser, enquanto a câmera traseira tem uma abertura retangular que permite que o flash e o laser funcionem sem serem bloqueados.

    Aberturas de amostra

    Figura 32. Exemplos de aberturas para as câmeras frontal e traseira

    Caixa com dois smartphones

    Outra opção é cortar aberturas em um pedaço de papelão e pintar de preto com marcadores, tinta spray ou acrílico, como mostrado na Figura 33.

    Figura 33. Exemplos de aberturas de papelão para as câmeras frontal e traseira

    Exemplo de abertura do Google Cardboard

  6. Usando um luxímetro digital, teste o lux das luzes de LED. O YF-1065 da Contempo View é usado neste exemplo.

    YF-1065 da Contempo Views

    Figura 34. YF-1065 da Contempo Views

  7. Coloque o medidor de luz na lateral do tablet e gire para 2.000 lux para medir a luz. O nível de lux deve estar entre 100 e 300 lux. Qualquer valor significativamente menor é muito fraco para o teste e pode levar a falhas.

    Luxímetro

    Figura 35. Medidor de lux medindo a luz da parte de trás com suporte para tablet

  8. Siga a etapa adequada dependendo do valor de lux medido:

    • Se a luz estiver no nível correto, aparafuse as placas frontal e traseira no lugar.
    • Se a luz estiver no nível incorreto, verifique se o LED e o número da peça da fonte de alimentação estão corretos.

O que procurar

Confira a seguir exemplos de erros comuns de fabricação que podem tornar os testes instáveis.

  • Painel traseiro com furos para tablet. Isso faz com que o teste find_circle falhe devido aos círculos extras criados pelos furos dos parafusos.

    Painel traseiro com furos

    Figura 36. Painel traseiro com furos

  • Faltam pinos. Isso faz com que os defletores de luz escorreguem durante o transporte.

    Pino ausente

    Figura 37. Pino ausente no defletor de luz

  • Fonte de alimentação não listada pela UL. Usar uma fonte de alimentação com certificação UL garante que ela não vai quebrar.

    Fonte de alimentação listada pela UL

    Figura 38. Exemplo de uma fonte de alimentação listada pela UL