Ottenere una scatola con un ampio campo visivo

Android include ITS-in-a-box revisione 2, un sistema di test automatico per i sistemi di videocamere con campo visivo ampio (WFoV) e normale (RFoV) nella Camera Image Test Suite (ITS). La revisione 1 è stata progettata per testare le fotocamere dei dispositivi mobili con un campo visivo inferiore a 90 gradi (RFoV).

La scatola con ampio campo visivo (revisione 2) è progettata anche per testare le videocamere che hanno un campo visivo superiore a 90 gradi (WFoV), consentendoti di utilizzare un sistema ITS-in-a-box per testare diverse videocamere con campi visivi variabili, a condizione che le videocamere possano mettere a fuoco a circa 20 cm.

Il sistema ITS-in-a-box è costituito da una scatola di plastica tagliata al laser da disegni di progettazione assistita da computer (CAD), un sistema di illuminazione interno, un tablet con grafico e un dispositivo in fase di test (DUT). Puoi acquistare un ITS-in-a-box o crearne uno tuo.

Acquistare un ITS-in-a-box WFoV

Ti consigliamo di acquistare un sistema ITS-in-a-box WFoV da uno dei seguenti fornitori qualificati.

  • Byte Bridge Inc.
    USA: 1502 Crocker Ave, Hayward, CA 94544-7037
    Cina: 22F #06-08, Hongwell International Plaza Tower A, 1600 West Zhongshan Road, Xuhui, Shanghai, 200235
    www.bytebt.com
    androidpartner@bytebt.com
    USA: +1-510-373-8899
    Cina: +86-400-8866-490

  • JFT CO LTD 捷富通科技有限公司 (precedentemente nota come MYWAY DESIGN)
    Cina: No. 40, Lane 22, Heai Road, Wujing Town, Minhang District, Shanghai, Cina
    Taiwan: 4F., N. 163, Fu-Ying Road, XinZhuang District, New Taipei City 242, Taiwan
    www.jftcoltd.com
    service@jfttec.com o its.sales@jfttec.com
    Cina:+86-021-64909136
    Taiwan: 886-2-29089060

Tutorial video

Questo è un tutorial video su come configurare ITS-in-a-box WFoV.

Crea un ITS-in-a-box con WFoV

Anziché acquistare un ITS-in-a-box WFoV (revisione 2), puoi crearne uno tuo. Questa sezione include istruzioni passo passo per assemblare un ITS-in-a-box (revisione 2) WFoV che può testare videocamere con un ampio campo visivo (superiore a 90 gradi).

Cronologia revisioni

La tabella seguente descrive la cronologia delle revisioni del rig ITS WFoV della videocamera e include i link di download a ogni versione dei file di produzione.

Data Revisione Download del file di produzione Log delle modifiche
Dicembre 2022 2.9 WFoV Rev 2.9
  • È stato aggiunto un meccanismo di montaggio che supporta i test sui tablet.
  • I supporti per smartphone sono stati modificati per essere asimmetrici.
  • Design dell'apertura rivisto, dalle schede di schiuma vuote ai design generici.
Ottobre 2019 2.8 Non disponibile
  • È stato aggiunto il design dell'apertura alla documentazione di produzione.
  • Sono stati aggiunti piedini alla base del banco di prova per un migliore supporto.
  • È stato rivisto il design del morsetto a C per migliorare l'inserimento dei perni.
  • È stata rivista la piastra di apertura anteriore per offrire una maggiore libertà di movimento ai supporti per smartphone.
Ottobre 2018 2.7 Non disponibile
  • È stata sostituita la luce nella distinta materiali (n. 16) con una striscia LED con certificazione UL per una maggiore coerenza nella produzione.
  • L'alimentatore commutato nella distinta materiali è la stessa fonte del numero 16.
  • È stato rivisto il supporto per il tablet, che ora è 35 mm più largo per adattarsi all'apertura del tablet (pagina 4 del disegno meccanico)
  • È stata modificata la spaziatura (distanza) dei fori del morsetto anteriore per allinearla alla lunghezza della fessura del morsetto (pagina 5 del disegno meccanico)
  • Ha ridotto il diametro del cerchio dell'apertura anteriore di 20 mm per corrispondere al campo visivo della soluzione ITS-in-a-box.
Agosto 2018 2.6 Non disponibile
  • Rilasciato internamente per correggere il disegno meccanico.
Agosto 2018 2,5 Non disponibile
  • Il supporto per il tablet è stato semplificato per essere simile a quello per lo smartphone.
  • È stata utilizzata una finitura sabbiata anziché anodizzata per ridurre i costi.
  • Specifiche corrette per le luci LED nella distinta materiali
Giugno 2018 2.4 Non disponibile
  • Passaggio dal materiale acrilico all'ABS per ridurre i danni durante la spedizione.
  • Sono stati rimossi gli elementi di stampa 3D e sostituiti con ABS tagliato al laser per ridurre i costi.
  • Le maniglie della scatola sono state modificate per utilizzare l'ABS anziché essere un articolo separato da acquistare nella distinta materiali.

Disegni meccanici

Il seguente disegno meccanico dell'ITS-in-a-box WFoV mostra i materiali necessari per l'assemblaggio. Per iniziare, scarica gli ultimi file di produzione per ITS-in-a-box WFoV.

Disegno CAD di WFOV ITS-in-a-box

Figura 1. Disegno meccanico di WFoV ITS-in-a-box

Acquista l'hardware dalla distinta materiali (BOM). Taglia i pezzi di plastica e vinile.

Strumenti richiesti

Avere a disposizione i seguenti strumenti:

  • Cacciavite a croce
  • Pinza a becchi lunghi
  • Pinze tagliafili
  • Forbici
  • Spruzzatore d'acqua
  • Taglierino X-ACTO

Passaggio 1: applica il vinile colorato

Per applicare il vinile colorato:

  1. Applica il vinile colorato sul lato liscio dell'acrilonitrile butadiene stirene (ABS) e ritaglia le aperture necessarie come mostrato nella Figura 2. Assicurati di applicare il vinile bianco con l'ampia apertura rettangolare sul lato del tablet e il vinile nero con l'apertura circolare sul lato del dispositivo mobile della confezione.

    Applica il vinile grigio sui pannelli laterali come mostrato nella Figura 2 e incolla i piedini sui quattro angoli del pannello inferiore come mostrato nella Figura 3.

    Per ulteriori informazioni, consulta wikiHow.

    Pezzi in ABS con vinile applicato sul lato liscio

    Figura 2. Pezzi in ABS con vinile applicato sul lato liscio (interno della scatola)

  2. Applica i piedini sui quattro angoli del pannello inferiore, come mostrato nella Figura 3.

    Piedini del riquadro inferiore

    Figura 3. Piedini sui quattro angoli del pannello inferiore

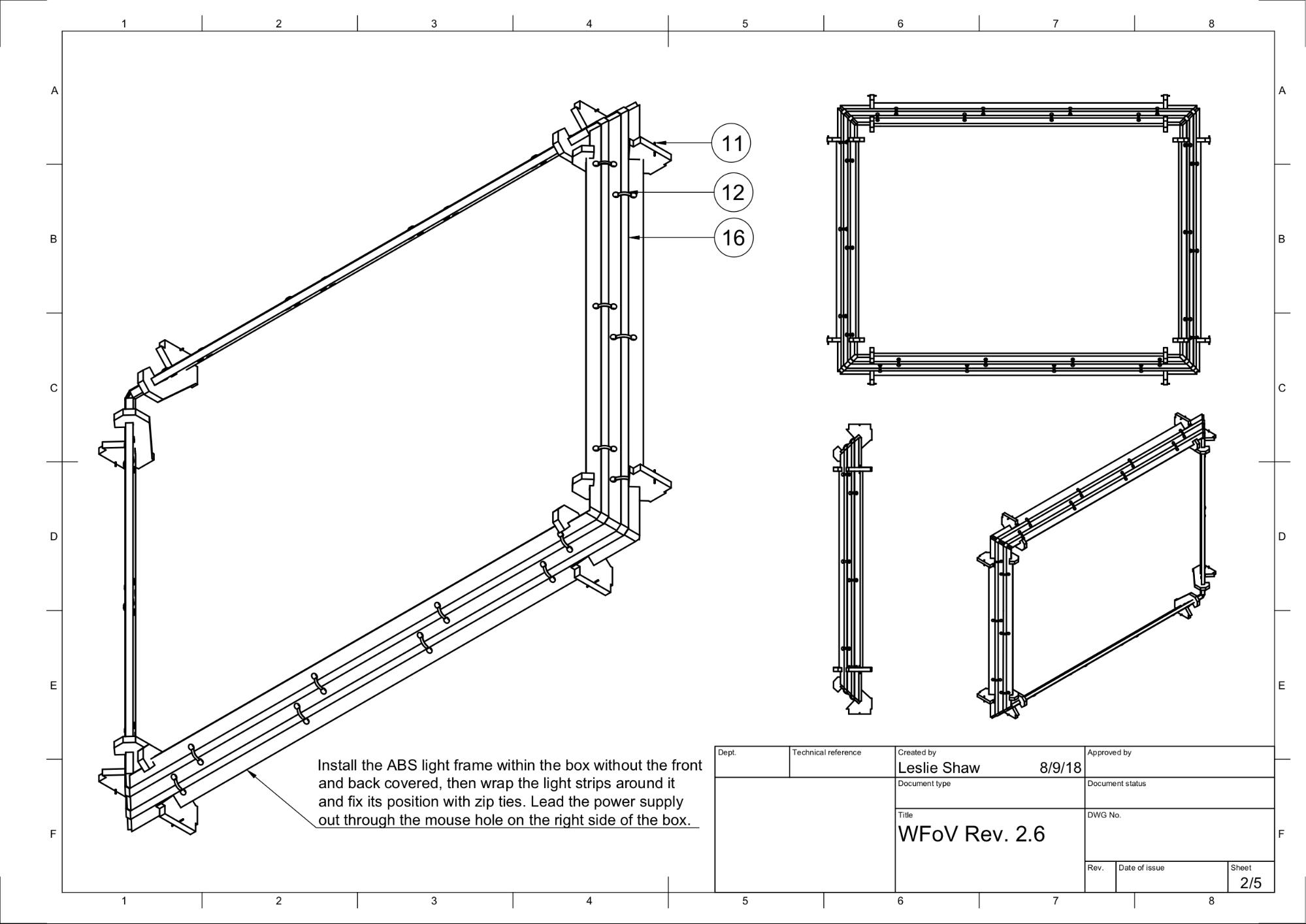
Passaggio 2: assembla e installa la guida luminosa

Per assemblare e installare la struttura del telaio luminoso con le strisce luminose a LED:

  1. Esamina il disegno meccanico della struttura del telaio della luce.

    Struttura leggera con strisce luminose a LED

    Figura 4. Struttura leggera con strisce luminose a LED

  2. Raccogli i deflettori luminosi in plastica, i supporti per le luci, le strisce luminose a LED e le fascette.

    Deflettori luminosi, supporti per luci, strisce luminose a LED e fascette

    Figura 5. Deflettori e supporti per luci

  3. Aggancia i deflettori di plastica della luce ai supporti della luce come mostrato nella Figura 6. Dovrebbe essere aderente.

    Deflettori di luce in plastica montati nei supporti per luci

    Figura 6. Deflettori di luce in plastica montati nei supporti per luci

  4. Aggancia i supporti della luce ai pannelli laterali come mostrato nella Figura 7. Al termine, la luce illumina gli angoli anteriori dell'interno della scatola.

    Deflettori e supporti per luci agganciati ai pannelli laterali

    Figura 7. Deflettori e supporti per luci agganciati ai pannelli laterali

  5. Assembla i pannelli laterali. (Facoltativo: leviga i bordi dei deflettori per un migliore adattamento.)

    Pannelli laterali assemblati e avvitati

    Figura 8. Pannelli laterali assemblati e avvitati

  6. Fissa i deflettori della luce inserendo il perno nel piccolo foro sulla linguetta rettangolare che si estende attraverso la fessura nei pannelli laterali, come mostrato nella Figura 9.

    PIN inserito nella scheda del supporto LED

    Figura 9. Primo piano del perno inserito nella linguetta di montaggio del LED all'esterno della scatola

  7. Avvolgi le strisce luminose due volte attorno ai deflettori sul lato rivolto verso il basso. Utilizza le fascette per fissare la striscia e unisci le estremità. (Facoltativo: utilizza il nastro sul retro della striscia luminosa a LED in aggiunta alle fascette per un avvolgimento più semplice.)

    Striscia luminosa a LED avvolta intorno ai deflettori

    Figura 10. Striscia luminosa a LED avvolta intorno ai deflettori con fascette

    Fascette che tengono insieme le strisce LED

    Figura 11. Fascette che tengono in posizione le strisce luminose a LED

  8. Taglia le estremità delle fascette come mostrato nelle figure 12 e 13.

    Luci LED intorno ai deflettori che escono

    Figura 12. Luci LED avvolte due volte attorno ai deflettori e che escono dall'uscita laterale

    Laccetti con zip rivolti verso l'alto

    Figura 13. Fascette che si vedono sul lato rivolto verso l'alto (le strisce LED si trovano sull'altro lato)

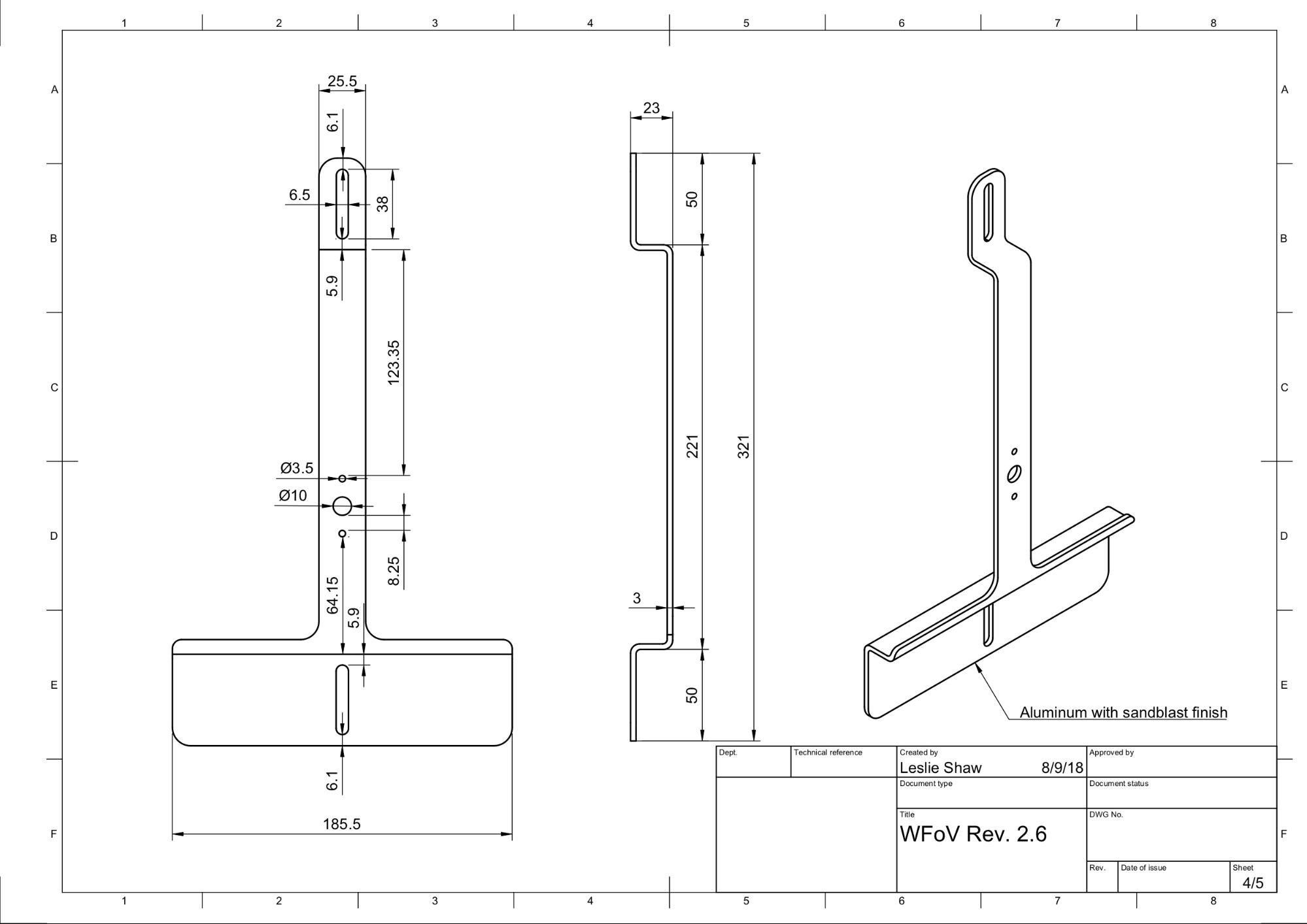
Passaggio 3: assembla i supporti per tablet e smartphone

Per assemblare i supporti per tablet e smartphone:

  1. Esamina il disegno meccanico del supporto per il tablet.

    Disegno meccanico del supporto per tablet

    Figura 14. Disegno meccanico del supporto per tablet

  2. Raccogli le parti come mostrato nella Figura 15.

    Parti di supporti per tablet e smartphone

    Figura 15. Supporti per tablet e smartphone con viti, ventose, cappucci in vinile e dadi

  3. Taglia le punte in gomma in modo che non interferiscano con il funzionamento del pistone (circa a metà) e inseriscile alle estremità dei pistoni. La lunghezza più ridotta del cappuccio in vinile assicura che il meccanismo del pistone possa essere ritratto e bloccato.

    Pistoncini con cappuccio a pressione modificato

    Figura 16. Pistoni con cappucci a pressione regolati

  4. Avvita i pistoncini sui supporti.

    Supporti per tablet e smartphone con ventose

    Figura 17. Supporti per tablet e smartphone con ventose

Passaggio 4: assemblaggio finale

Per assemblare la scatola ITS WFoV:

  1. Raccogli le piastre di apertura anteriori e utilizza le viti 4-40 per avvitare la piastra più piccola con il quadrato sopra la piastra più grande, come mostrato nella figura 18.

    Dalla piastra di apertura e dalla piastra di montaggio dello smartphone

    Figura 18. Piastra di apertura anteriore e piastra di montaggio dello smartphone

    Piastra di apertura anteriore assemblata

    Figura 19. Piastra di apertura anteriore e piastra di montaggio dello smartphone avvitate insieme con viti 4-40

  2. Applica del nastro adesivo sui pannelli anteriore e posteriore della scatola.

    Scatola WFoV con i lati avvitati insieme

    Figura 20. Scatola WFoV con i lati avvitati e i pannelli anteriore e posteriore incollati

  3. Utilizza un trapano elettrico per creare fori guida in base ai fori esistenti. Assicurati che i fori pilota siano abbastanza grandi per le viti 4-40 in modo che la plastica ABS non si crepi quando inserisci le viti.

    Fori pilota

    Figura 21. Praticare i fori pilota per le viti 4-40

  4. Avvita tutti i pannelli insieme utilizzando viti autoperforanti 4-40.

    Viti 4-40 per l'assemblaggio

    Figura 22. Viti 4-40 per l'assemblaggio

  5. Raccogli le parti della maniglia mostrate nella figura 23.

    Parti del manubrio

    Figura 23. Parti del manubrio

  6. Assembla le maniglie come mostrato nella Figura 24.

    Maniglia assemblata

    Figura 24. Maniglia assemblata

  7. Verifica che l'alimentatore sia da 12 V, 5 A e disponga di un certificato UL. Qualsiasi valore inferiore a 12 V non funziona. Qualsiasi valore inferiore a 5 A potrebbe influire sul livello di luminosità delle luci.

    Alimentatore da 12 V, 5 A

    Figura 25. Alimentatore da 12 V, 5 A con certificato UL

  8. Utilizzando un luxmetro digitale, verifica il lux delle luci LED per assicurarti che siano al livello appropriato.

    Posiziona il luxmetro sul lato del tablet e ruotalo su 2000 lux per misurare la luce. Il lux dovrebbe essere compreso tra 100 e 300. Qualsiasi valore significativamente inferiore è troppo basso per i test e può causare errori.

    In questo esempio viene utilizzato il luxmetro YF-1065 di Contempo Views.

    YF-1065 di Contempo Views

    Figura 26. YF-1065 di Contempo Views

    Luxmetro

    Figura 27. Luxmetro che misura la luce lateralmente con il supporto per tablet

  9. Segui il passaggio appropriato in base al valore di lux misurato:

    • Se la luce è al livello corretto, avvita le piastre anteriore e posteriore.
    • Se la luce non è al livello corretto, verifica che il numero di parte dell'alimentatore e del LED sia corretto.
  10. Monta il supporto per lo smartphone sulla piastra di apertura e il supporto per il tablet sul lato opposto con viti e dadi.

    Supporto per tablet

    Figura 28. Primo piano del supporto per il tablet

    Scatola WFoV assemblata

    Figura 29. Scatola WFoV assemblata: vista posteriore (a sinistra) e vista anteriore (a destra)

  11. Inserisci l'apertura della tavola di Gator da 10 x 10 cm in modo che corrisponda all'apertura della fotocamera del DUT.

    Apertura del pannello in Gator

    Figura 30. ITS-in-a-box con l'apertura della tavola di Gator installata

  12. Installa lo smartphone allineando la fotocamera all'apertura dell'obiettivo. Controlla l'allineamento attraverso l'apertura del tablet.

    Scatola con un telefono installato

    Figura 31. ITS-in-a-box con uno smartphone installato

  13. Taglia le aperture per le videocamere. Puoi tagliare una singola apertura (per testare un solo smartphone) o due aperture (per testare due smartphone). Le aperture delle fotocamere anteriore e posteriore di Pixel e Pixel XL sono mostrate nella Figura 32. La fotocamera anteriore ha un'apertura circolare perché non c'è flash o laser, mentre la fotocamera posteriore ha un'apertura rettangolare che consente al flash e al laser di funzionare senza essere bloccati.

    Aperture per le fotocamere anteriore e posteriore

    Figura 32. Esempi di aperture per le fotocamere anteriore e posteriore

    immagine

    Figura 33. ITS-in-a-box con due smartphone installati

    In alternativa, puoi anche ritagliare le aperture dal cartone e dipingerle di nero con pennarelli, vernice spray o acrilico, come mostrato nella Figura 34.

    immagine

    Figura 34. Esempio di aperture in cartone per le fotocamere anteriore e posteriore

Aspetti a cui prestare attenzione

Di seguito sono riportati alcuni esempi di errori di produzione comuni che possono rendere i test instabili.

  • Pannello posteriore con fori per il tablet. In questo modo, il test find_circle non riesce a causa dei cerchi aggiuntivi creati dai fori per le viti.

    Pannello posteriore con fori

    Figura 35. Pannello posteriore con fori

  • Tasselli mancanti. In questo modo, i deflettori della luce scivolano fuori durante la spedizione.

    Spina mancante

    Figura 36. Spina mancante sul deflettore della luce

  • Alimentatore non certificato UL. L'utilizzo di un alimentatore conforme allo standard UL soddisfa le specifiche indicate. Questo è importante per il funzionamento sicuro dell'illuminazione.

    Alimentatore elencato da UL

    Figura 37. Esempio di alimentatore elencato da UL

  • Viti allentate sul supporto per tablet o smartphone che non riescono a sostenere il peso di un tablet o uno smartphone. Di solito questo problema è causato da filettature danneggiate e indica che il foro deve essere rifilettato.

    Foro con filettatura danneggiata

    Figura 38. Foro con filettatura danneggiata