Ottenere una scatola con campo visivo normale (RFoV)

Il campo visivo normale (RFoV) ITS-in-a-box (revisione 1a) è costituito da una scatola di plastica tagliata al laser da disegni di progettazione assistita da computer (CAD), un tablet con grafico e un dispositivo in fase di test (DUT). L'ITS-in-a-box RFoV è progettato per testare dispositivi con un FoV inferiore a 90 gradi (RFoV). Puoi acquistare un ITS-in-a-box o crearne uno personalizzato.

La versione rev1b di RFOV ITS-in-a-box aggiunge il supporto per componenti modulari ed è compatibile con il supporto per l'estensione tele.

Rev1b

Figura 1. Scatola ITS con campo visivo normale (RFoV) Rev1b

Cronologia revisioni

La tabella seguente descrive la cronologia delle revisioni della casella del campo visivo normale e include i link di download a ogni versione dei file di produzione.

Data Revisione Download del file di produzione Log delle modifiche
Settembre 2024 1b File di produzione Rev. 1b
  • È stato adottato un sistema modulare (che aggiunge un meccanismo di montaggio per le estensioni modulari).
Maggio 2019 1a File di produzione Rev. 1a
  • Il materiale è stato cambiato da Delrin ad ABS.
  • È stato modificato il design del supporto della luce per renderlo più flessibile e per gestire diverse dimensioni della barra LED.
  • Unificazione dei metodi di costruzione.
  • Abbiamo semplificato il design del supporto per il tablet e lo abbiamo reso più robusto.
  • È stata aumentata la profondità del supporto per smartphone per ospitare smartphone più spessi.
  • Sono state aumentate le opzioni di montaggio sul pannello frontale per ospitare un supporto per profili di smartphone pieghevoli e rugged.

Acquistare un ITS-in-a-box RFoV

Ti consigliamo di acquistare un ITS-in-a-box RFoV (revisione 1a) da uno dei seguenti fornitori qualificati.

  • Byte Bridge Inc.
    USA: 1502 Crocker Ave, Hayward, CA 94544-7037
    Cina: 22F #06-08, Hongwell International Plaza Tower A, 1600 West Zhongshan Road, Xuhui, Shanghai, 200235
    www.bytebt.com
    androidpartner@bytebt.com
    USA: +1-510-373-8899
    Cina: +86-400-8866-490

  • JFT CO LTD 捷富通科技有限公司 (precedentemente nota come MYWAY DESIGN)
    No. 40, Lane 22, Heai Road, Wujing Town, Minhang District, Shanghai, Cina
    4F., N. 163, Fu-Ying Road, XinZhuang District, New Taipei City 242, Taiwan
    www.jftcoltd.com
    service@jfttec.com o its.sales@jfttec.com
    Cina:+86-021-64909136
    Taiwan: 886-2-29089060

Tutorial video

Questo è un tutorial video su come configurare ITS-in-a-box RFoV.

Crea un RFoV ITS-in-a-box

Anziché acquistare un RFoV ITS-in-a-box, puoi crearne uno tuo. Questa sezione fornisce istruzioni dettagliate per l'assemblaggio.

Disegni meccanici

Il sistema ITS-in-a-box è costituito da un DUT, un tablet con grafici, un sistema di illuminazione interno e una scatola di plastica tagliata al laser da disegni CAD (mostrato nella Figura 1).

Per iniziare, scarica l'ultimo file di produzione.

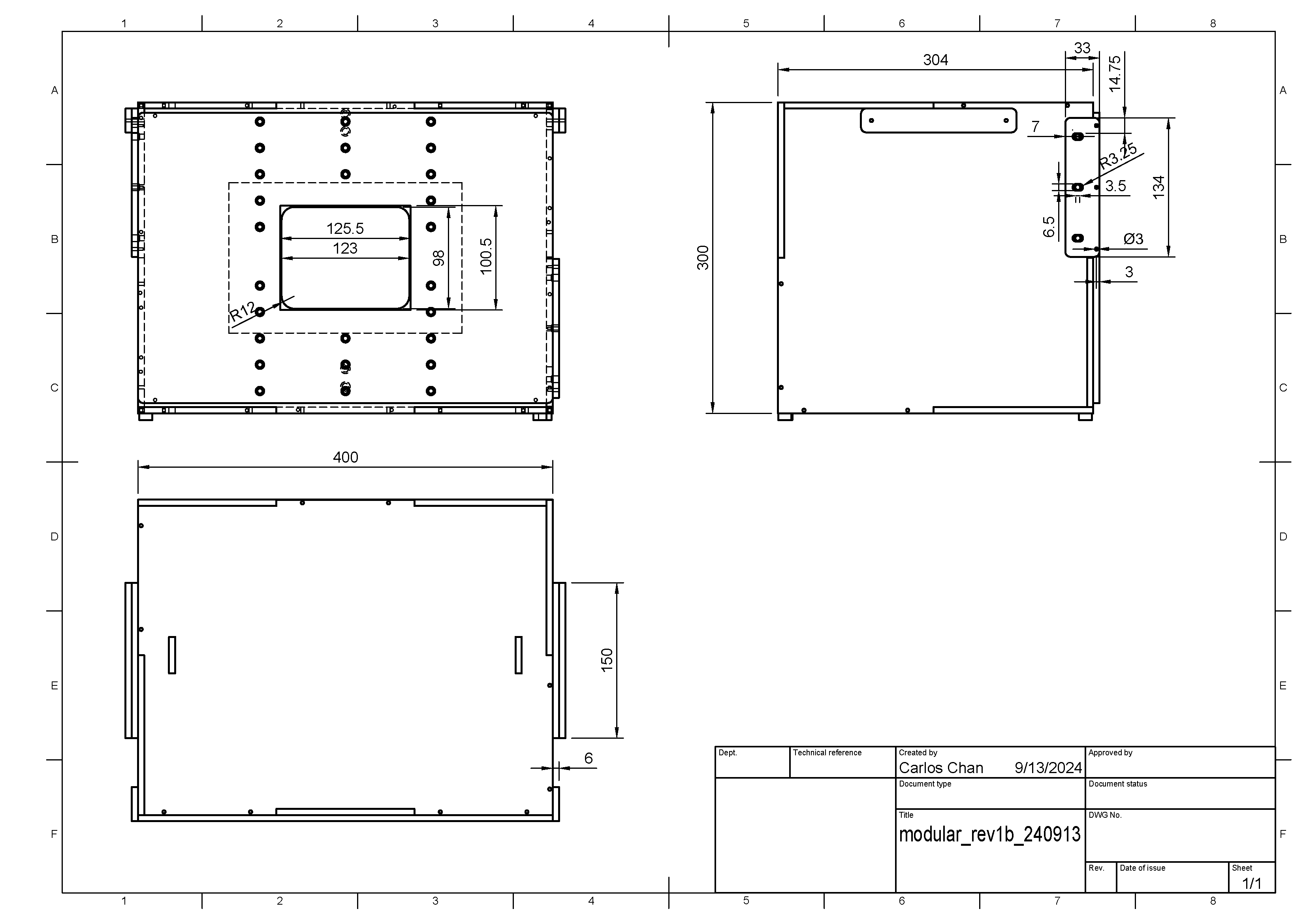
Disegno meccanico di ITS-in-a-box

Figura 2. Disegno meccanico di ITS-in-a-box

Acquista l'hardware dalla distinta materiali (BOM). Taglia i pezzi di plastica e vinile.

Strumenti richiesti

Avere a disposizione i seguenti strumenti:

  • Cacciavite con testa Torx
  • Trapano elettrico
  • Colla ABS
  • Pinza a becchi lunghi
  • Taglierino X-ACTO
  • (Facoltativo) Pinze tagliafili o forbici

Passaggio 1: applica il vinile e i piedini adesivi

Applica il vinile colorato sul lato liscio dell'acrilonitrile butadiene stirene (ABS) e ritaglia le aperture necessarie come mostrato nelle figure 3 e 4. Applica il vinile bianco con l'ampia apertura rettangolare sul lato del tablet della confezione e il vinile nero con l'apertura circolare sul lato del dispositivo mobile della confezione. Applica il vinile grigio sui pannelli laterali come mostrato nella Figura 4 e incolla i piedini sui quattro angoli del pannello inferiore come mostrato nella Figura 5. Per ulteriori informazioni, consulta wikiHow.

Vinile sui pannelli anteriore e posteriore

Figura 3. Vinile nero sul pannello anteriore (a sinistra) e vinile bianco sul pannello posteriore (a destra)

Riquadri laterali

Figura 4. Vinile grigio sui pannelli laterali

Riquadro inferiore

Figura 5. Piedini sui quattro angoli del pannello inferiore

Passaggio 2: illuminazione

Per assemblare il componente di illuminazione ITS-in-a-box:

  1. Raccogli l'hardware di illuminazione come mostrato nella Figura 6.

    Parti di assemblaggio della luce

    Figura 6. Parti di assemblaggio della luce

    L'hardware include le barre luminose a LED, i deflettori di luce in plastica, i supporti per luci in plastica, i fermaluce in plastica o metallo inclusi nel kit di illuminazione a LED e quattro viti 6-32 con dadi a testa tonda.

  2. Avvita i fermaluce ai deflettori di plastica come mostrato nella Figura 7. Fissa i fermagli utilizzando i dadi ciechi sull'altro lato dei deflettori.

    Deflettori della luce

    Figura 7. Deflettori in plastica con clip per luci collegati

  3. Per assemblare le luci, fissa i deflettori in plastica sul retro delle barre luminose a LED utilizzando i fermi per luci.

    Barre luminose

    Figura 8. Barre luminose con le luci rivolte verso il basso e le viti avvitate attraverso i supporti

Quando il componente di illuminazione è assemblato, le barre luminose a LED devono essere rivolte verso il basso e i deflettori in plastica devono coprire la superficie lucida e riflettente sul retro della barra luminosa a LED.

Passaggio 3: supporti per smartphone

Per assemblare i supporti per smartphone:

  1. Raccogli gli elementi richiesti come mostrato nella Figura 9.

    Articoli per il supporto per smartphone

    Figura 9. Articoli per il supporto per smartphone

    L'hardware include due supporti metallici per lo smartphone, due ventose, due punte in gomma, quattro viti a testa cilindrica 8-32 e i dadi corrispondenti.

  2. Taglia le punte in gomma in modo che non interferiscano con il funzionamento del pistone (circa a metà), quindi applicale per coprire le punte dei pistoni.

    Sturalavandini

    Figura 10. Sturatubi con punte in gomma

  3. Assembla i supporti per smartphone utilizzando le viti a testa cilindrica per fissare i meccanismi del pistone ai supporti metallici. Assicurati che le viti siano strette con i dadi corrispondenti.

    Supporti per smartphone assemblati

    Figura 11. Supporti per smartphone assemblati

Passaggio 4: piastra di apertura

Per assemblare la piastra dell'apertura anteriore:

  1. Raccogli l'hardware della piastra di apertura anteriore mostrato nella Figura 12.

    Parti della piastra di apertura anteriore

    Figura 12. Parti del gruppo piastra di apertura anteriore

    L'hardware include i supporti per lo smartphone assemblati, il pannello del supporto per lo smartphone, quattro viti corte in nylon e quattro dadi in nylon (necessari per evitare che le viti sporgano dalla parte posteriore della piastra di plastica).

  2. Utilizzando le viti e i dadi, fissa i supporti per smartphone assemblati al pannello del supporto per smartphone. Assicurati che i supporti per lo smartphone siano orientati correttamente, come mostrato nella Figura 13.

    Piastra di apertura anteriore assemblata

    Figura 13. Piastra di apertura anteriore assemblata

Passaggio 5: supporto per il tablet

Per assemblare il supporto per il tavolo:

  1. Raccogli l'hardware del gruppo di montaggio del tablet mostrato nella Figura 14.

    Componenti del supporto per tablet

    Figura 14. Componenti del gruppo spazio di montaggio del tablet

    L'hardware include il pannello posteriore, il supporto per tablet, un pistone, una punta in gomma, due viti a testa cilindrica 8-32, due viti corte in nylon e i dadi corrispondenti.

  2. Assembla il supporto per il tablet utilizzando le viti a testa tonda per fissare i meccanismi del pulsante al supporto metallico. Assicurati che le viti siano strette con i dadi corrispondenti.

  3. Utilizza le viti e i dadi per fissare il supporto per tablet assemblato al pannello posteriore. Assicurati che i supporti per lo smartphone siano orientati correttamente come mostrato nella Figura 15.

    Supporto per tablet assemblato

    Figura 15. Supporto per tablet assemblato

Passaggio 6: installa le luci

Per installare le luci:

  1. Installa i deflettori della luce sui pannelli superiore e inferiore come mostrato nella Figura 16.

    Deflettori della luce installati

    Figura 16. Deflettori della luce installati sui pannelli superiore e inferiore

  2. Fissa i deflettori della luce inserendo il perno nel piccolo foro sulla linguetta rettangolare che si estende attraverso la fessura nel pannello superiore e inferiore, come mostrato nella Figura 17.

    Segnaposto inserito

    Figura 17. Primo piano del perno inserito nella linguetta di montaggio del LED all'esterno della scatola

    Per fissare i perni, stringili delicatamente finché non senti un po' di pressione sulla plastica mentre vengono fissati in posizione.

    Pinze

    Figura 18. Pinze utilizzate per installare il perno

  3. Assembla i pannelli anteriore e laterali nell'orientamento corretto, come mostrato nella Figura 19, e uniscili con del nastro adesivo dall'esterno.

    Orientamento del posizionamento della luce

    Figura 19. Orientamento del posizionamento della luce

  4. Collega il cavo di alimentazione alla barra luminosa di alimentazione come mostrato nella Figura 20.

    Cavo di alimentazione della luce

    Figura 20. Cavo di alimentazione della luce

    Fai passare il cavo di alimentazione attraverso il foro sul pannello sinistro. Il cavo di alimentazione ha connettori diversi a ogni estremità: il connettore più stretto si collega alla barra luminosa a LED e il connettore più grande si collega all'alimentatore.

    Cavo di alimentazione

    Figura 21. Cavo di alimentazione che esce dal banco di prova sul lato sinistro

  5. Collega i cavi delle luci superiori a quelli delle luci inferiori e fissa il cavo sul pannello sinistro.

    Cavo della luce

    Figura 22. Cavo della luce ancorato al pannello sinistro

Passaggio 7: assembla i pannelli laterali, il supporto per il tablet e le maniglie

Per assemblare i pannelli laterali, il supporto per il tablet e le maniglie di ITS-in-a-box con le viti:

  1. Assembla tutti i lati dei pannelli e uniscili con del nastro adesivo come mostrato nella Figura 23.

    Scatola sigillata con nastro adesivo per l'assemblaggio

    Figura 23. ITS-in-a-box uniti con nastro adesivo per l'assemblaggio

  2. Utilizza un trapano elettrico per creare fori guida in base ai fori esistenti. Assicurati che i fori pilota siano abbastanza grandi per le viti 4-40 in modo che la plastica ABS non si crepi quando inserisci le viti.

    Praticare i fori

    Figura 24. Praticare i fori pilota per le viti 4-40

  3. Avvita tutti i pannelli insieme utilizzando viti autoperforanti 4-40.

    Trapano elettrico

    Figura 25. Viti 4-40 per l'assemblaggio dei pannelli

  4. Raccogli le parti della maniglia mostrate nella figura 26.

    Parti del manubrio

    Figura 26. Parti del manubrio

    L'hardware include quattro pezzi di plastica rettangolari e quattro viti 6-32.

  5. Assembla le maniglie come mostrato nella Figura 27.

    Maniglia assemblata

    Figura 27. Maniglia assemblata

Passaggio 8: assemblaggio e configurazione finali

Per eseguire l'assemblaggio finale di ITS-in-a-box:

  1. Fissa il supporto per il tablet al pannello posteriore e regola l'altezza in base alle dimensioni del tablet.

    Supporto per tablet sul retro della scatola

    Figura 28. Tablet nel supporto per tablet sul retro della scatola

  2. Fissa il pannello quadrato con apertura senza supporti per smartphone alla parte anteriore della scatola con viti 4-40 come mostrato nella Figura 29.

    Pannello anteriore assemblato

    Figura 29. Pannello anteriore dello smartphone assemblato

  3. Inserisci l'apertura della tavola di Gator da 10 x 10 cm in modo che corrisponda all'apertura della fotocamera del DUT.

    Apertura del pannello in Gator

    Figura 30. ITS-in-a-box con apertura della scheda gator installata

  4. Installa lo smartphone allineando la fotocamera all'apertura dell'obiettivo. Controlla l'allineamento attraverso l'apertura del tablet.

    Scatola con uno smartphone

    Figura 31. ITS-in-a-box con uno smartphone installato

  5. Taglia le aperture per le videocamere. Puoi tagliare una singola apertura (per testare un solo smartphone) o due aperture (per testare due smartphone). Le aperture delle fotocamere anteriore e posteriore di Pixel e Pixel XL sono mostrate nella Figura 31. La fotocamera anteriore ha un'apertura circolare perché non c'è flash o laser, mentre la fotocamera posteriore ha un'apertura rettangolare che consente al flash e al laser di funzionare senza essere bloccati.

    Aperture di esempio

    Figura 32. Esempi di aperture per le fotocamere anteriore e posteriore

    Scatola con due smartphone

    In alternativa, puoi anche ritagliare le aperture dal cartone e dipingerle di nero utilizzando pennarelli, vernice spray o acrilico, come mostrato nella Figura 33.

    Figura 33. Esempio di aperture in cartone per le fotocamere anteriore e posteriore

    Apertura del cartone di esempio

  6. Utilizzando un luxmetro digitale, verifica il lux delle luci LED. In questo esempio viene utilizzato il modello YF-1065 di Contempo View.

    YF-1065 di Contempo Views

    Figura 34. YF-1065 di Contempo Views

  7. Posiziona il luxmetro sul lato del tablet e ruotalo su 2000 lux per misurare la luce. Il livello di lux dovrebbe essere compreso tra 100 e 300 lux. Un valore significativamente inferiore è troppo basso per il test e può causare errori.

    Luxmetro

    Figura 35. Luxmetro che misura la luce da dietro con il supporto per tablet

  8. Segui il passaggio appropriato in base al valore di lux misurato:

    • Se la luce è al livello corretto, avvita le piastre anteriore e posteriore.
    • Se la luce non è al livello corretto, verifica che il numero di parte dell'alimentatore e del LED sia corretto.

Aspetti a cui prestare attenzione

Di seguito sono riportati alcuni esempi di errori di produzione comuni che possono rendere i test instabili.

  • Pannello posteriore con fori per il tablet. In questo modo, il test find_circle non riesce a causa dei cerchi aggiuntivi creati dai fori per le viti.

    Pannello posteriore con fori

    Figura 36. Pannello posteriore con fori

  • Tasselli mancanti. In questo modo, i deflettori della luce scivolano fuori durante la spedizione.

    Spina mancante

    Figura 37. Spina mancante sul deflettore della luce

  • Alimentatore non certificato UL. L'utilizzo di un alimentatore con certificazione UL garantisce che l'alimentatore non si rompa.

    Alimentatore elencato da UL

    Figura 38. Esempio di alimentatore con certificazione UL