Obtén una caja de campo visual amplio

Android incluye la revisión 2 del ITS integrado, un sistema de prueba automatizado para los sistemas de cámara de campo visual amplio (WFoV) y campo visual regular (RFoV) en el Conjunto de prueba de imagen de la cámara (ITS). La revisión 1 se diseñó para probar cámaras de dispositivos móviles con un ángulo de visión inferior a 90 grados (RFoV).

La caja de campo visual amplio (revisión 2) también está diseñada para probar cámaras que tienen un FoV superior a 90 grados (WFoV), lo que te permite usar un sistema ITS integrado para probar diferentes cámaras con distintos FoV, siempre que las cámaras puedan enfocar a aproximadamente 20 cm.

El sistema ITS integrado consta de una caja de plástico cortada con láser a partir de dibujos de diseño asistido por computadora (CAD), un sistema de iluminación interno, una tablet con gráficos y un dispositivo en prueba (DUT). Puedes comprar un ITS-in-a-box o crear tu propio sistema.

Compra un ITS-in-a-box de WFoV

Te recomendamos que compres un ITS en una caja de WFoV a uno de los siguientes proveedores calificados.

  • Byte Bridge Inc.
    EE.UU.: 1502 Crocker Ave, Hayward, CA 94544-7037
    China: 22F #06-08, Hongwell International Plaza Tower A, 1600 West Zhongshan Road, Xuhui, Shanghái, 200235
    www.bytebt.com
    androidpartner@bytebt.com
    EE.UU.: +1-510-373-8899
    China: +86-400-8866-490

  • JFT CO LTD 捷富通科技有限公司 (anteriormente conocida como MYWAY DESIGN)
    China: No. 40, Lane 22, Heai Road, Wujing Town, Minhang District, Shanghai, China
    Taiwán: 4F., Núm. 163, Fu-Ying Road, distrito de XinZhuang, ciudad de Nueva Taipéi 242, Taiwán
    www.jftcoltd.com
    service@jfttec.com o its.sales@jfttec.com
    China:+86-021-64909136
    Taiwán: 886-2-29089060

Video instructivo

Este es un video instructivo sobre cómo configurar el ITS-in-a-box de WFoV.

Cómo crear un ITS-in-a-box de WFoV

En lugar de comprar un ITS en una caja de WFoV (revisión 2), puedes construir el tuyo. En esta sección, se incluyen instrucciones paso a paso para ensamblar un ITS integrado de WFoV (revisión 2) que puede probar cámaras con un campo visual amplio (mayor a 90 grados).

Historial de revisión

En la siguiente tabla, se describe el historial de revisiones del soporte de WFoV de ITS de la cámara y se incluyen vínculos de descarga a cada versión de los archivos de producción.

Fecha Revisión Descarga de archivos de producción Registro de cambios
Diciembre de 2022 2.9 WFoV Rev 2.9
  • Se agregó un mecanismo de montaje que admite pruebas de tablets.
  • Se revisaron los soportes para teléfonos para que sean asimétricos.
  • Se revisó el diseño de la apertura, desde placas de espuma en blanco hasta diseños genéricos.
Octubre de 2019 2.8 No disponible
  • Se agregó el diseño de apertura a la documentación de producción.
  • Se agregaron soportes a la parte inferior del soporte de prueba para mejorar la estabilidad.
  • Se revisó el diseño de la abrazadera para mejorar el ajuste de las clavijas.
  • Se revisó la placa de apertura frontal para proporcionar un mayor rango de movimiento para los soportes del teléfono.
Octubre de 2018 2.7 No disponible
  • Se cambió la luz del BOM (nº 16) a una cinta LED con certificación UL para mejorar la coherencia de la fabricación.
  • Se cambió la fuente de alimentación conmutada en la lista de materiales a la misma fuente que la núm. 16.
  • Se revisó el soporte de la tablet para que sea 35 mm más ancho y coincida con la abertura de la tablet (página 4 del plano mecánico).
  • Se revisó la separación (distancia) del orificio de la abrazadera frontal para que coincida con la longitud de la ranura de la abrazadera (página 5 del diagrama mecánico).
  • Se redujo el diámetro del círculo de apertura frontal en 20 mm para que coincida con el RFoV de ITS-in-a-box.
Agosto de 2018 2.6 No disponible
  • Se lanzó internamente para corregir el dibujo mecánico.
Agosto de 2018 2.5 No disponible
  • Se simplificó el soporte para tablet para que sea similar al soporte para teléfono.
  • Se usó un acabado de chorro de arena en lugar de un acabado anodizado para reducir los costos.
  • Especificaciones corregidas de las luces LED en la lista de materiales
Junio de 2018 2.4 No disponible
  • Cambiamos el material de acrílico a ABS para reducir los daños durante el envío.
  • Se quitaron los elementos de impresión en 3D y se reemplazaron por ABS cortado con láser para reducir los costos.
  • Se cambiaron las manijas de la caja para que usen ABS en lugar de ser un elemento separado que se compra en la lista de materiales.

Planos mecánicos

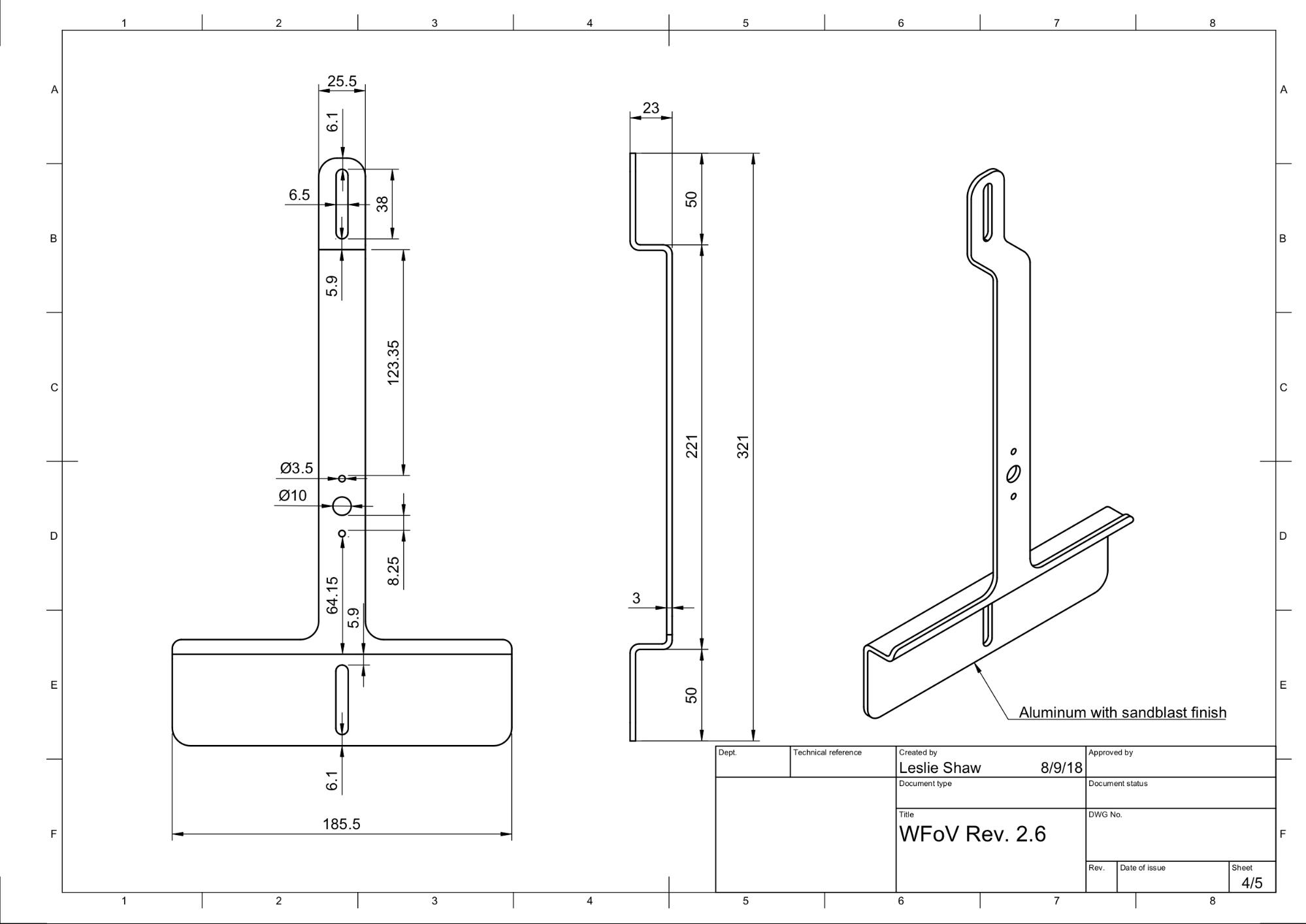
En el siguiente dibujo mecánico del ITS en una caja de WFoV, se muestran los materiales necesarios para el ensamblaje. Para comenzar, descarga los archivos de producción más recientes para el ITS-in-a-box de WFoV.

Dibujo CAD del ITS integrado de campo visual amplio

Figura 1: Dibujo mecánico del ITS integrado de WFoV

Compra el hardware de la lista de materiales (BOM). Corta las piezas de plástico y vinilo.

Herramientas requeridas

Ten a mano las siguientes herramientas:

  • Destornillador de cabeza Phillips
  • Pinzas de punta
  • Pinzas cortaalambres
  • Tijeras
  • Botella rociadora de agua
  • Cúter X-ACTO

Paso 1: Aplica vinilo de color

Sigue estos pasos para aplicar vinilo de color:

  1. Aplica el vinilo de color en el lado liso del acrilonitrilo butadieno estireno (ABS) y corta las aberturas necesarias como se muestra en la Figura 2. Asegúrate de aplicar el vinilo blanco con la abertura rectangular grande en el lado de la tablet y el vinilo negro con la abertura circular en el lado del dispositivo móvil de la caja.

    Aplica el vinilo gris en los paneles laterales como se muestra en la Figura 2 y pega los pies en las cuatro esquinas del panel inferior como se muestra en la Figura 3.

    Para obtener más información, consulta wikiHow.

    Piezas de ABS con vinilo aplicado en el lado liso

    Figura 2: Piezas de ABS con vinilo aplicado en el lado liso (interior de la caja)

  2. Aplica los soportes en las cuatro esquinas del panel inferior, como se muestra en la Figura 3.

    Patas del panel inferior

    Figura 3: Patas en las cuatro esquinas del panel inferior

Paso 2: Arma e instala el riel de la luz

Para ensamblar e instalar la estructura del marco de luz con tiras de luces LED, sigue estos pasos:

  1. Revisa el dibujo mecánico de la estructura del marco de la luz.

    Estructura de marco liviana con tiras de luces LED

    Figura 4: Estructura de marco liviana con tiras de luces LED

  2. Reúne los deflectores de luz de plástico, los soportes de luz, las tiras de luces LED y las bridas.

    Deflectores de luz, soportes de luz, tiras de luces LED y bridas

    Figura 5: Deflectores y soportes de luces

  3. Coloca los deflectores de luz de plástico en los soportes de luz, como se muestra en la Figura 6. Debe quedar bien ajustada.

    Deflectores de luz de plástico colocados en los soportes de las luces

    Figura 6: Deflectores de luz de plástico colocados en los soportes de las luces

  4. Coloca los soportes de luz en los paneles laterales como se muestra en la Figura 7. Cuando se complete, la luz brillará hacia las esquinas delanteras del interior de la caja.

    Deflectores de luz y soportes que se colocan en los paneles laterales

    Figura 7: Deflectores de luz y soportes que se colocan en los paneles laterales

  5. Ensambla los paneles laterales. (Opcional: Lija los bordes de los deflectores para que encajen mejor).

    Paneles laterales ensamblados y atornillados

    Figura 8: Paneles laterales ensamblados y atornillados

  6. Asegura los deflectores de luz presionando el vástago en el orificio pequeño de la lengüeta rectangular que se extiende a través de la ranura de los paneles laterales, como se muestra en la Figura 9.

    PIN insertado en la lengüeta de la estructura de soporte de la luz LED

    Figura 9: Acercamiento del pin insertado en la lengüeta de soporte de la luz LED en la parte exterior de la caja

  7. Enrolla las tiras de luces alrededor de los deflectores dos veces en el lado que mira hacia abajo. Usa las bridas para sujetar la tira y une los extremos. (Opcional: Usa la cinta adhesiva en la parte posterior de la tira de luces LED además de los precintos para envolverla con mayor facilidad).

    Tira de luces LED envuelta alrededor de los deflectores

    Figura 10: Tira de luces LED envuelta alrededor de los deflectores con bridas

    Precintos sujetando tiras de luces LED

    Figura 11: Precintos que sujetan las tiras de luces LED

  8. Corta los extremos de los precintos como se muestra en las figuras 12 y 13.

    Luces LED alrededor de los deflectores que salen

    Figura 12: Luces LED envueltas alrededor de los deflectores dos veces y que salen por la salida lateral

    Bridas hacia arriba

    Figura 13: Las bridas se muestran en el lado que mira hacia arriba (las tiras de luces LED están en el otro lado).

Paso 3: Arma los soportes para la tablet y el teléfono

Para ensamblar los soportes para tablet y teléfono, haz lo siguiente:

  1. Revisa el dibujo mecánico del soporte para la tablet.

    Dibujo mecánico del soporte para tablet

    Figura 14: Dibujo mecánico del soporte para tablet

  2. Reúne las piezas como se muestra en la Figura 15.

    Piezas de soportes para tablets y teléfonos

    Figura 15: Soportes para tablets y teléfonos con tornillos, vástagos, tapas de vinilo y tuercas

  3. Corta los extremos de goma lo suficiente como para que no interfieran en el funcionamiento del émbolo (aproximadamente a la mitad) y colócalos en los extremos de los émbolos. La longitud más corta de la tapa de vinilo garantiza que el mecanismo del vástago se pueda retraer y trabar.

    Émbolos con tapa a presión ajustada

    Figura 16: Émbolos con tapas a presión ajustadas

  4. Atornilla los vástagos a los soportes.

    Soportes para tablets y teléfonos con ventosas

    Figura 17: Soportes para tablets y teléfonos con ventosas

Paso 4: Ensamblaje final

Para ensamblar la caja ITS de WFoV, sigue estos pasos:

  1. Reúne las placas de apertura frontales y usa tornillos 4-40 para atornillar la placa más pequeña con el cuadrado en la parte superior de la placa más grande, como se muestra en la Figura 18.

    De la placa de apertura y la placa de soporte del teléfono

    Figura 18: Placa de apertura frontal y placa de soporte para el teléfono

    Placa de apertura frontal ensamblada

    Figura 19: Placa de apertura frontal y placa de soporte del teléfono unidas con tornillos 4-40

  2. Pega con cinta adhesiva los paneles frontal y posterior a la caja.

    Caja de WFoV con los lados atornillados

    Figura 20: Caja de WFoV con los lados atornillados y los paneles frontal y posterior unidos con cinta

  3. Usa un taladro eléctrico para crear orificios guía según los orificios existentes. Asegúrate de que los orificios guía sean lo suficientemente grandes para los tornillos 4-40, de modo que el plástico ABS no se agriete cuando insertes los tornillos.

    Orificios de guía

    Figura 21: Cómo perforar orificios de guía para tornillos 4-40

  4. Atornilla todos los paneles con tornillos autorroscantes 4-40.

    Tornillos 4-40 para el ensamblaje

    Figura 22: Tornillos 4-40 para el ensamblaje

  5. Reúne las partes de la manija que se muestran en la Figura 23.

    Manijas

    Figura 23: Manijas

  6. Monta las manijas como se muestra en la Figura 24.

    Manija ensamblada

    Figura 24: Manija ensamblada

  7. Comprueba que el adaptador de alimentación sea de 12 V y 5 A, y que tenga un certificado de UL. Todo lo que esté por debajo de 12 V no funcionará. Cualquier valor inferior a 5 A puede afectar el nivel de brillo de las luces.

    Adaptador de alimentación de 12 V y 5 A

    Figura 25: Adaptador de alimentación de 12 V y 5 A con un certificado de UL

  8. Con un luxómetro digital, prueba los lux de las luces LED para asegurarte de que estén en el nivel adecuado.

    Coloca el medidor de luz en el lado de la tablet y gíralo hasta 2,000 lux para medir la luz. Los lux deben estar entre 100 y 300. Cualquier valor significativamente inferior es demasiado tenue para las pruebas y puede provocar errores.

    En este ejemplo, se usa el luxómetro YF-1065 de Contempo Views.

    YF-1065 de Contempo Views

    Figura 26: YF-1065 de Contempo Views

    Luxómetro

    Figura 27: Medidor de luz que mide la luz lateral con el soporte para tablet

  9. Sigue el paso adecuado según el valor de lux medido:

    • Si la luz está al nivel correcto, atornilla las placas frontal y posterior.
    • Si la luz no tiene el nivel correcto, verifica que el número de pieza de la fuente de alimentación y el LED sean correctos.
  10. Monta el soporte para teléfono en la placa de apertura y el soporte para tablet en el lado opuesto con tornillos y tuercas.

    Soporte para tablet

    Figura 28: Primer plano del soporte de la tablet

    Caja de WFoV ensamblada

    Figura 29: Caja de WFoV ensamblada: vista trasera (izquierda) y vista frontal (derecha)

  11. Inserta la abertura de la placa de Gator de 10 x 10 cm para que se ajuste a la abertura de la cámara del DUT.

    Apertura de la placa de Gator

    Figura 30: ITS-in-a-box con la abertura de la placa de Gator instalada

  12. Instala el teléfono alineando la cámara con la abertura del objetivo. Comprueba la alineación a través de la abertura de la tablet.

    Caja con un teléfono instalado

    Figura 31: ITS-in-a-box con un teléfono instalado

  13. Aberturas de corte para las cámaras Puedes cortar una sola abertura (para probar un solo teléfono) o dos (para probar dos teléfonos). En la figura 32, se muestran las aperturas de las cámaras frontal y posterior del Pixel y el Pixel XL. La cámara frontal tiene una apertura circular porque no tiene flash ni láser, mientras que la cámara posterior tiene una apertura rectangular que permite que el flash y el láser funcionen sin obstrucciones.

    Aperturas de las cámaras frontal y posterior

    Figura 32: Ejemplos de aperturas para las cámaras frontal y posterior

    imagen

    Figura 33: ITS-in-a-box con dos teléfonos instalados

    Como alternativa, también puedes cortar aberturas en cartón y pintarlas de negro con marcadores, pintura en aerosol o acrílico, como se muestra en la Figura 34.

    imagen

    Figura 34: Aperturas de cartón de muestra para las cámaras frontal y posterior

Aspectos que se deben tener en cuenta

A continuación, se muestran ejemplos de errores de fabricación comunes que pueden hacer que las pruebas sean poco confiables.

  • Panel posterior con orificios para la tablet. Esto hace que la prueba find_circle falle debido a los círculos adicionales creados por los orificios para tornillos.

    Panel posterior con orificios

    Figura 35: Panel posterior con orificios

  • Faltan las clavijas. Esto hace que los deflectores de luz se salgan durante el envío.

    Falta la clavija

    Figura 36: Falta una clavija en el deflector de luz

  • Fuente de alimentación que no está en la lista de UL. Usar una fuente de alimentación con certificación UL que cumpla con las especificaciones indicadas Esto es importante para operar la iluminación de forma segura.

    Fuente de alimentación con certificación UL

    Figura 37: Ejemplo de una fuente de alimentación con certificación UL

  • Tornillos que se deslizan en el soporte para tablet o teléfono y que no pueden soportar el peso de una tablet o un teléfono Por lo general, esto se debe a que las roscas están dañadas y significa que se debe volver a roscar el orificio.

    Orificio con roscas dañadas

    Figura 38: Orificio con roscas dañadas