Obtén una caja de campo visual regular (RFoV)

El ITS integrado de campo visual regular (RFoV) (revisión 1a) consta de una caja de plástico cortada con láser a partir de dibujos de diseño asistido por computadora (CAD), una tablet de gráficos y un dispositivo en prueba (DUT). El ITS integrado de RFoV está diseñado para probar dispositivos con un campo visual inferior a 90 grados (RFoV). Puedes comprar un sistema de TI listo para usar o crear uno propio.

La versión rev1b del sistema ITS en una caja de RFOV agrega compatibilidad con componentes modulares y es compatible con el sistema de extensión de teleobjetivo.

Rev1b

Figura 1: Caja de ITS de campo visual regular (RFoV) Rev1b

Historial de revisión

En la siguiente tabla, se describe el historial de revisiones del cuadro de campo de visión normal y se incluyen vínculos de descarga a cada versión de los archivos de producción.

Fecha Revisión Descarga de archivos de producción Registro de cambios
Septiembre de 2024 1b Archivos de producción de la revisión 1b
  • Se adoptó el sistema modular (se agrega un mecanismo de montaje para extensiones modulares).
Mayo de 2019 1a Archivos de producción de la revisión 1a
  • Se cambió el material de Delrin a ABS.
  • Se modificó el diseño del soporte de luz para que sea más flexible y admita diferentes tamaños de barras LED.
  • Se unificaron los métodos de construcción.
  • Se simplificó el diseño del soporte para la tablet y se hizo más resistente.
  • Se aumentó la profundidad del soporte para teléfonos para admitir teléfonos más gruesos.
  • Se aumentaron las opciones de montaje en el panel frontal para admitir un soporte para dispositivos plegables y perfiles de teléfonos resistentes.

Compra un ITS-in-a-box de RFoV

Recomendamos comprar un sistema ITS en una caja (revisión 1a) de RFoV a uno de los siguientes proveedores calificados.

  • Byte Bridge Inc.
    EE.UU.: 1502 Crocker Ave, Hayward, CA 94544-7037
    China: 22F #06-08, Hongwell International Plaza Tower A, 1600 West Zhongshan Road, Xuhui, Shanghai, 200235
    www.bytebt.com
    androidpartner@bytebt.com
    EE.UU.: +1-510-373-8899
    China: +86-400-8866-490

  • JFT CO LTD 捷富通科技有限公司 (anteriormente conocida como MYWAY DESIGN)
    No. 40, Lane 22, Heai Road, Wujing Town, Minhang District, Shanghai, China
    4F., No. 163, Fu-Ying Road, XinZhuang District, New Taipei City 242, Taiwán
    www.jftcoltd.com
    service@jfttec.com o its.sales@jfttec.com
    China:+86-021-64909136
    Taiwán: 886-2-29089060

Video instructivo

Este es un instructivo en video sobre cómo configurar el sistema ITS en una caja de RFoV.

Cómo crear un ITS-in-a-box de RFoV

En lugar de comprar un sistema ITS en un kit de RFoV, puedes crear el tuyo. En esta sección, se proporcionan instrucciones detalladas para el ensamblado.

Dibujos mecánicos

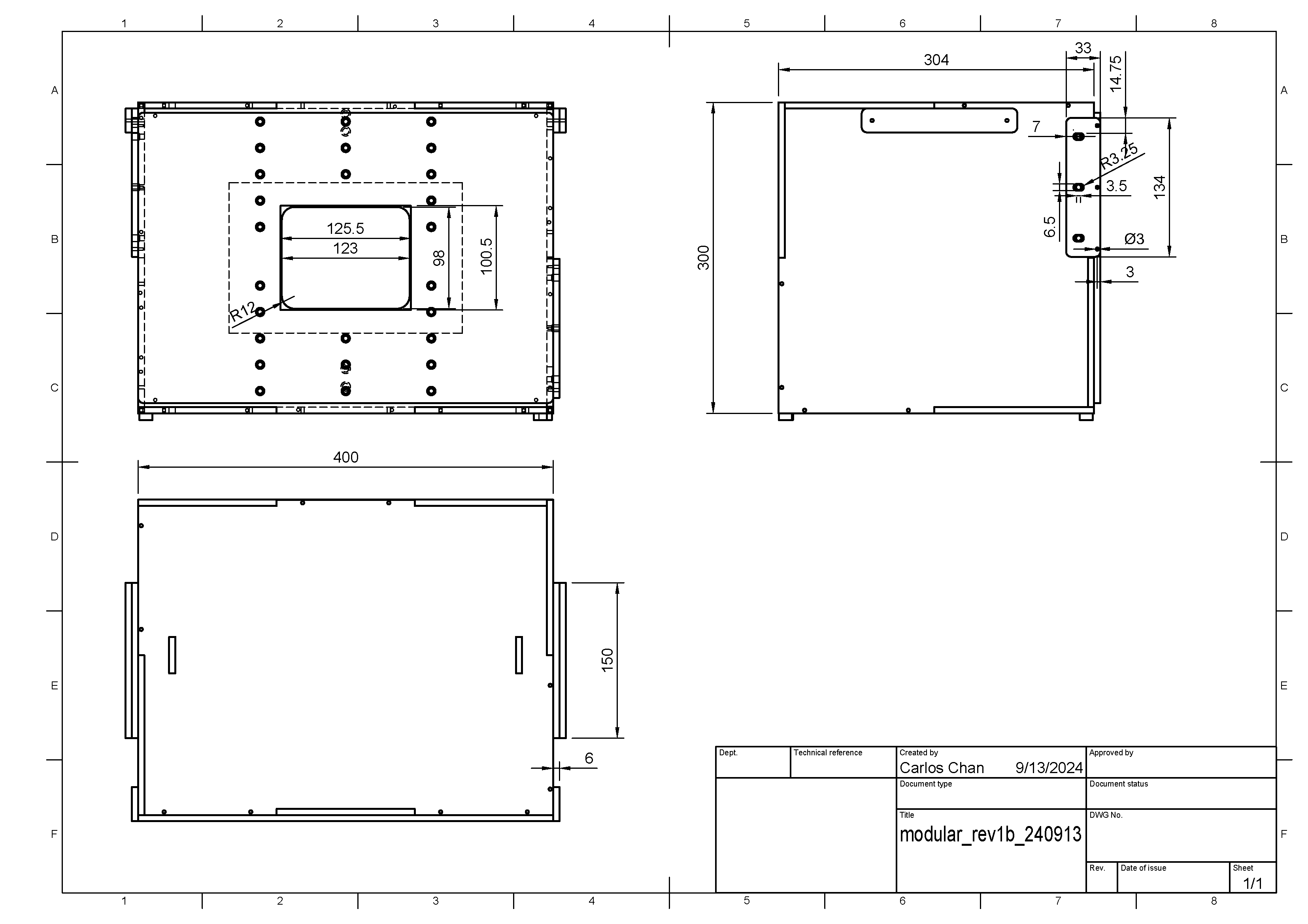
El ITS en una caja consta de una DUT, una tablet de gráficos, un sistema de iluminación interno y una caja de plástico cortada con láser a partir de dibujos CAD (como se muestra en la Figura 1).

Para comenzar, descarga el archivo de producción más reciente.

Dibujo mecánico de ITS-in-a-box

Figura 2: Dibujo mecánico de ITS-in-a-box

Compra el hardware de la lista de materiales (BoM). Corta las piezas de plástico y vinilo.

Herramientas necesarias

Ten las siguientes herramientas disponibles:

  • Destornillador Torx
  • Taladro eléctrico
  • Pegamento ABS
  • Pinzas de punta
  • Cuchillo X-Acto
  • Cortador de cables o tijeras (opcional)

Paso 1: Aplica el vinilo y pega los pies

Aplica vinilo de color en el lado liso del acrilonitrilo butadieno estireno (ABS) y corta las aberturas necesarias como se muestra en las Figuras 3 y 4. Aplica el vinilo blanco con la gran abertura rectangular en el lado de la caja para la tablet y el vinilo negro con la abertura circular en el lado de la caja para el dispositivo móvil. Aplica vinilo gris en los paneles laterales como se muestra en la Figura 4 y pega los pies en las cuatro esquinas del panel inferior como se muestra en la Figura 5. Para obtener más información, consulta wikiHow.

Vinilo en los paneles frontal y posterior

Figura 3: Vinilo negro en el panel frontal (izquierda) y vinilo blanco en el panel posterior (derecha)

Paneles laterales

Figura 4: Vinilo gris en los paneles laterales

Panel inferior

Figura 5: Pies en las cuatro esquinas del panel inferior

Paso 2: Iluminación

Para ensamblar el componente de iluminación ITS-in-a-box, haz lo siguiente:

  1. Reúne el hardware de iluminación como se muestra en la Figura 6.

    Piezas del ensamblado de la luz

    Figura 6: Piezas del ensamblado de la luz

    El hardware incluye las barras de luces LED, los deflectores de luz de plástico, los soportes de luz de plástico, los clips de luz de plástico o metal incluidos en el kit de iluminación LED y cuatro tornillos de cabeza hueca 6-32.

  2. Atornilla los clips de luz a los deflectores de plástico como se muestra en la Figura 7. Fija los clips con las tuercas de mariposa del otro lado de los deflectores.

    Deflectores de luz

    Figura 7: Deflectores de plástico con clips de luz adjuntos

  3. Para montar las luces, coloca los deflectores de plástico en la parte posterior de las barras de luces LED con los clips de luz.

    Barras de luz

    Figura 8: Barras de luces con las luces hacia abajo y tornillos roscados a través de los clips

Cuando se ensambla el componente de iluminación, las barras de luces LED deben apuntar hacia abajo y los deflectores de plástico deben cubrir la superficie brillante y reflectante de la parte posterior de la barra de luces LED.

Paso 3: Soportes para teléfonos

Para ensamblar los soportes para teléfonos, haz lo siguiente:

  1. Reúne los elementos necesarios como se muestra en la Figura 9.

    Elementos de soporte para teléfonos

    Figura 9: Elementos de soporte para teléfonos

    El hardware incluye dos soportes de teléfono de metal, dos émbolos, dos puntas de goma, cuatro tornillos de cabeza hueca 8-32 y las tuercas correspondientes.

  2. Corta las puntas de goma lo suficientemente cortas como para que no interfieran con el funcionamiento del émbolo (aproximadamente por la mitad) y, luego, aplícalas para cubrir las puntas de los émbolos.

    Desatascadores

    Figura 10: Destapadores con puntas de goma

  3. Ensambla los soportes para teléfonos con tornillos de cabeza hueca para fijar los mecanismos de émbolo a los soportes de metal. Asegúrate de que los tornillos estén ajustados con las tuercas correspondientes.

    Soportes para teléfonos ensamblados

    Figura 11: Soportes para teléfonos ensamblados

Paso 4: Placa de apertura

Para montar la placa de apertura frontal, haz lo siguiente:

  1. Reúne el hardware de la placa de apertura frontal que se muestra en la Figura 12.

    Piezas de la placa de apertura frontal

    Figura 12: Piezas del ensamblado de la placa de apertura frontal

    El hardware incluye los soportes para teléfonos ensamblados, el panel del soporte para teléfonos, cuatro tornillos cortos de nylon y cuatro tuercas de nylon (obligatorios para evitar que los tornillos sobresalgan por la parte posterior de la placa de plástico).

  2. Con los tornillos y las tuercas, fija los soportes para teléfono ensamblados al panel del soporte para teléfono. Asegúrate de que los soportes para teléfonos estén en la orientación correcta, como se muestra en la Figura 13.

    Placa de apertura frontal ensamblada

    Figura 13: Placa de apertura frontal ensamblada

Paso 5: Montaje de la tablet

Para ensamblar el soporte de mesa, haz lo siguiente:

  1. Reúne el hardware de ensamblado del soporte de la tablet que se muestra en la Figura 14.

    Piezas del soporte para la tablet

    Figura 14: Piezas de ensamblado del espacio para el soporte de la tablet

    El hardware incluye el panel posterior, el soporte para la tablet, un émbolo, una punta de goma, dos tornillos de cabeza hueca 8-32, dos tornillos de nylon cortos y las tuercas correspondientes.

  2. Ensambla el soporte para la tablet con tornillos de cabeza hueca para fijar los mecanismos del émbolo al soporte de metal. Asegúrate de que los tornillos estén ajustados con las tuercas correspondientes.

  3. Con los tornillos y las tuercas, fija el soporte de la tablet ensamblado al panel posterior. Asegúrate de que los soportes para teléfonos estén en la orientación correcta, como se muestra en la Figura 15.

    Soporte para tablet ensamblado

    Figura 15: Soporte para tablet ensamblado

Paso 6: Instala las luces

Para instalar las luces, haz lo siguiente:

  1. Instala los deflectores de luz en los paneles superior e inferior, como se muestra en la Figura 16.

    Barreras de luz instaladas

    Figura 16: Los deflectores de luz instalados en los paneles superior e inferior

  2. Para asegurar los deflectores de luz, presiona el pasador en el orificio pequeño de la lengüeta rectangular que se extiende a través de la ranura en el panel superior e inferior, como se muestra en la Figura 17.

    Pin insertado

    Figura 17: Acercamiento del pasador insertado en la pestaña del soporte del LED en el exterior de la caja

    Para asegurar los pines, presiónalos suavemente hasta sentir cierta presión en el plástico mientras se fijan en su lugar.

    Alicates

    Figura 18: Alicates usados para instalar el pasador

  3. Ensambla los paneles frontal y lateral en la orientación correcta, como se muestra en la Figura 19, y pégalos desde el exterior.

    Orientación de la posición de la luz

    Figura 19: Orientación de la posición de la luz

  4. Conecta el cable de alimentación a la barra de luces de la fuente de alimentación, como se muestra en la Figura 20.

    Cable de alimentación de la iluminación

    Figura 20: Cable de alimentación de la iluminación

    Pasa el cable de alimentación por el orificio del panel izquierdo. El cable de alimentación tiene conectores diferentes en cada extremo: el conector más estrecho se conecta a la barra de luces LED y el conector más grande se conecta al adaptador de alimentación.

    Cable de alimentación

    Figura 21: Cable de alimentación que sale del sistema de prueba en su lado izquierdo

  5. Conecta las luces superiores a las luces inferiores y fija el cable en el panel izquierdo.

    Cable de luz

    Figura 22: Cable de luz anclado en el panel izquierdo

Paso 7: Ensambla los paneles laterales, el soporte para la tablet y los mangos

Para ensamblar los paneles laterales, el soporte para la tablet y los mangos del ITS integrado en la caja con tornillos, haz lo siguiente:

  1. Ensambla todos los lados de los paneles y pégalos como se muestra en la Figura 23.

    Caja con cinta para el ensamblado

    Figura 23: ITS-in-a-box pegado para el ensamblado

  2. Usa una taladradora para crear orificios piloto según los orificios existentes. Asegúrate de que los orificios guía sean lo suficientemente grandes para los tornillos 4-40, de modo que el plástico ABS no se agriete cuando insertes los tornillos.

    Perforación de orificios

    Figura 24: Taladra orificios de guía para tornillos 4-40

  3. Atornilla todos los paneles con tornillos autorroscantes de 4-40.

    Taladro eléctrico

    Figura 25: Tornillos 4-40 para ensamblar paneles

  4. Reúne las piezas del mango que se muestran en la Figura 26.

    Cómo manipular las piezas

    Figura 26: Cómo manipular las piezas

    El hardware incluye cuatro piezas rectangulares de plástico y cuatro tornillos 6-32.

  5. Ensambla los mangos como se muestra en la Figura 27.

    Mango ensamblado

    Figura 27: Mango ensamblado

Paso 8: Ensamblado y configuración final

Para realizar el ensamblado final del ITS en una caja, haz lo siguiente:

  1. Fija el soporte para la tablet al panel posterior y ajusta la altura según el tamaño de la tablet.

    Soporte para la tablet en la parte posterior de la caja

    Figura 28: Tablet en el soporte de la tablet en la parte posterior de la caja

  2. Fija el panel de apertura cuadrado sin soportes para teléfonos a la parte frontal de la caja con tornillos 4-40, como se muestra en la Figura 29.

    Panel frontal ensamblado

    Figura 29: Panel frontal del teléfono ensamblado

  3. Inserta la abertura de la placa de gator de 10 × 10 cm para que se ajuste a la abertura de la cámara del DUT.

    Apertura de la placa de Gator

    Figura 30: ITS-in-a-box con la abertura de la placa de cocodrilo instalada

  4. Para instalar el teléfono, alinea la cámara con la abertura de la apertura. Verifica la alineación a través de la abertura de la tablet.

    Caja con un teléfono

    Figura 31: ITS-in-a-box con un teléfono instalado

  5. Corta las aberturas para las cámaras. Puedes cortar una sola abertura (para probar un solo teléfono) o dos aberturas (para probar dos teléfonos). En la Figura 31, se muestran las aperturas de las cámaras frontal y posterior del Pixel y Pixel XL. La cámara frontal tiene una apertura circular porque no tiene flash ni láser, mientras que la cámara posterior tiene una apertura rectangular que permite que el flash y el láser funcionen sin bloquearse.

    Aperturas de muestra

    Figura 32: Aperturas de muestra para las cámaras frontal y posterior

    Caja con dos teléfonos

    Como alternativa, también puedes cortar aberturas de cartón y pintarlas de negro con marcadores, pintura en aerosol o acrílico, como se muestra en la Figura 33.

    Figura 33: Aperturas de cartón de muestra para las cámaras frontal y posterior

    Apertura de cartón de muestra

  6. Con un luxómetro digital, mide la cantidad de lux de las luces LED. En este ejemplo, se usa el YF-1065 de Contempo View.

    YF-1065 de Contempo Views

    Figura 34: YF-1065 de Contempo Views

  7. Coloca el medidor de luz en el lado de la tablet y ajústalo a 2,000 lux para medir la luz. El nivel de lux debe estar entre 100 y 300 lux. Cualquier valor inferior es demasiado bajo para la prueba y puede provocar fallas.

    Luxómetro

    Figura 35: Medidor de lux que mide la luz desde la parte posterior con soporte para la tablet

  8. Sigue el paso adecuado según el valor de lux medido:

    • Si la luz está en el nivel correcto, atornilla las placas frontal y posterior.
    • Si la luz está en el nivel incorrecto, verifica que el número de pieza del LED y de la fuente de alimentación sean correctos.

Aspectos que debes tener en cuenta

Los siguientes son ejemplos de errores de fabricación comunes que pueden hacer que las pruebas sean inestables.

  • Panel posterior con orificios de la tablet perforados Esto hace que la prueba de find_circle falle debido a los círculos adicionales que crean los orificios para tornillos.

    Panel posterior con orificios

    Figura 36: Panel posterior con orificios

  • Faltan las espigas. Esto hace que los deflectores de luz se salgan durante el envío.

    Falta la espiga

    Figura 37: Falta el pasador en el absorbente de luz

  • Fuente de alimentación que no esté incluida en la lista de UL El uso de una fuente de alimentación aprobada por UL garantiza que esta no se dañe.

    Fuente de alimentación con certificación UL

    Figura 38: Ejemplo de una fuente de alimentación aprobada por UL