অ্যান্ড্রয়েডে রয়েছে আইটিএস-ইন-এ-বক্স রিভিশন 2, ক্যামেরা ইমেজ টেস্ট স্যুট (ITS)- এ ওয়াইড ফিল্ড-অফ-ভিউ (WFoV) এবং রেগুলার ফিল্ড-অফ-ভিউ (RFoV) ক্যামেরা সিস্টেম উভয়ের জন্য একটি স্বয়ংক্রিয় পরীক্ষা ব্যবস্থা। রিভিশন 1 90 ডিগ্রি (RFoV) এর চেয়ে কম FoV সহ মোবাইল ডিভাইস ক্যামেরা পরীক্ষা করার জন্য ডিজাইন করা হয়েছিল।
প্রশস্ত ফিল্ড-অফ-ভিউ বক্স (রিভিশন 2) 90 ডিগ্রি (WFoV) এর বেশি FoV আছে এমন ক্যামেরাগুলিকে পরীক্ষা করার জন্য ডিজাইন করা হয়েছে, যা আপনাকে বিভিন্ন FoVs সহ বিভিন্ন ক্যামেরা পরীক্ষা করতে একটি ITS-in-a-box সিস্টেম ব্যবহার করতে সক্ষম করে যদি ক্যামেরাগুলি প্রায় 20 সেন্টিমিটারে ফোকাস করতে পারে৷
আইটিএস-ইন-এ-বক্স সিস্টেমে কম্পিউটার-সহায়ক ডিজাইন (সিএডি) অঙ্কন থেকে কাটা একটি প্লাস্টিকের বক্স লেজার, একটি অভ্যন্তরীণ আলোক ব্যবস্থা, একটি চার্ট ট্যাবলেট এবং পরীক্ষাধীন একটি ডিভাইস (ডিইউটি) রয়েছে। আপনি একটি আইটিএস-ইন-এ-বক্স কিনতে পারেন বা নিজের তৈরি করতে পারেন।
একটি WFoV আইটিএস-ইন-এ-বক্স কিনুন
আমরা নিম্নলিখিত যোগ্য বিক্রেতাদের থেকে একটি WFoV আইটিএস-ইন-এ-বক্স কেনার পরামর্শ দিই।
বাইট ব্রিজ ইনক.
USA: 1502 Crocker Ave, Hayward, CA 94544-7037
চীন: 22F #06-08, Hongwell International Plaza Tower A, 1600 West Zhongshan Road, Xuhui, Shanghai, 200235
www.bytebt.com
androidpartner@bytebt.com
USA: +1-510-373-8899
চীন: +86-400-8866-490JFT CO LTD 捷富通科技有限公司 (আগে MYWAY DESIGN নামে পরিচিত)
চীন: নং 40, লেন 22, হেই রোড, উজিং টাউন, মিনহাং জেলা, সাংহাই, চীন
তাইওয়ান: 4F., নং 163, ফু-ইং রোড, জিনঝুয়াং জেলা, নিউ তাইপেই সিটি 242, তাইওয়ান
www.jftcoltd.com
service@jfttec.com বা its.sales@jfttec.com
চীন:+86-021-64909136
তাইওয়ান: 886-2-29089060
ভিডিও টিউটোরিয়াল
এটি একটি ভিডিও টিউটোরিয়াল কিভাবে WFoV আইটিএস-ইন-এ-বক্স সেট আপ করতে হয়।
একটি WFoV আইটিএস-ইন-এ-বক্স তৈরি করুন
একটি WFoV আইটিএস-ইন-এ-বক্স (সংশোধন 2) কেনার পরিবর্তে, আপনি নিজের তৈরি করতে পারেন। এই বিভাগে একটি WFoV আইটিএস-ইন-এ-বক্স (সংশোধন 2) একত্রিত করার জন্য ধাপে ধাপে নির্দেশাবলী রয়েছে যা একটি বিস্তৃত ক্ষেত্র (90 ডিগ্রির বেশি) সহ ক্যামেরা পরীক্ষা করতে পারে।
পুনর্বিবেচনার ইতিহাস
নিম্নলিখিত সারণীটি ক্যামেরা ITS WFoV রিগের পুনর্বিবেচনার ইতিহাস বর্ণনা করে এবং এতে প্রোডাকশন ফাইলের প্রতিটি সংস্করণের ডাউনলোড লিঙ্ক অন্তর্ভুক্ত রয়েছে।
| তারিখ | রিভিশন | উত্পাদন ফাইল ডাউনলোড | লগ পরিবর্তন করুন |
|---|---|---|---|
| ডিসেম্বর 2022 | 2.9 | WFoV Rev 2.9 |
|
| অক্টোবর 2019 | 2.8 | পাওয়া যায় না |
|
| অক্টোবর 2018 | 2.7 | পাওয়া যায় না |
|
| আগস্ট 2018 | 2.6 | পাওয়া যায় না |
|
| আগস্ট 2018 | 2.5 | পাওয়া যায় না |
|
| জুন 2018 | 2.4 | পাওয়া যায় না |
|
যান্ত্রিক অঙ্কন
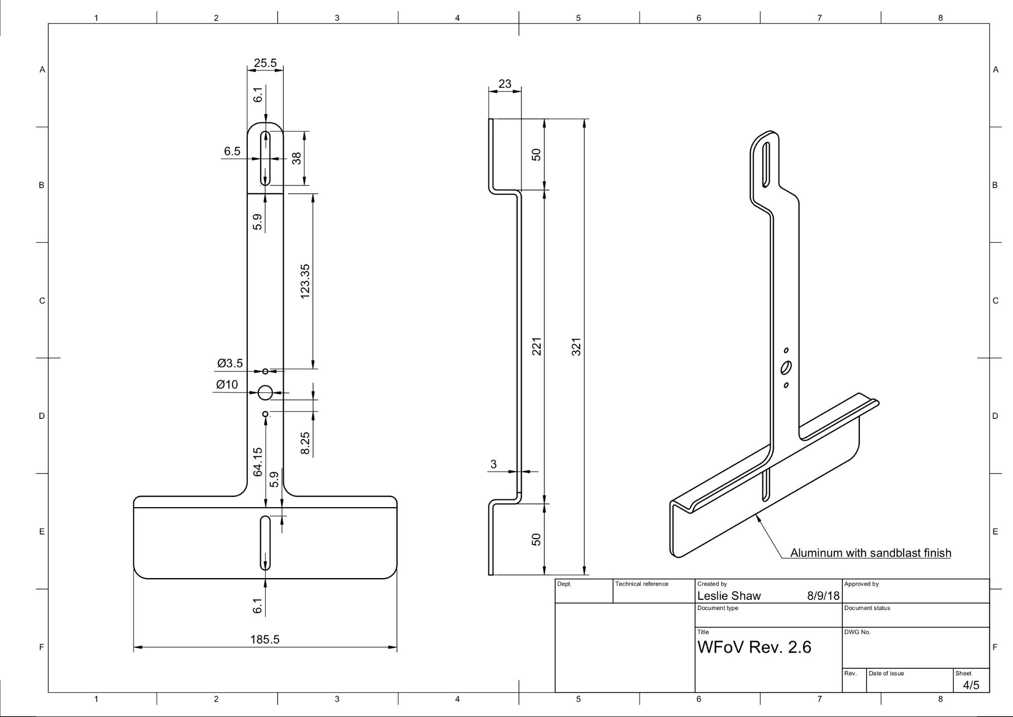
WFoV আইটিএস-ইন-এ-বক্সের নিম্নলিখিত যান্ত্রিক অঙ্কনটি সমাবেশের জন্য প্রয়োজনীয় উপকরণগুলি দেখায়। শুরু করার জন্য, WFoV ITS-in-a-box-এর জন্য সর্বশেষ উৎপাদন ফাইল ডাউনলোড করুন।

চিত্র 1. WFoV এর যান্ত্রিক অঙ্কন ITS-in-a-box
উপকরণের বিল (BOM) থেকে হার্ডওয়্যার কিনুন। প্লাস্টিক এবং ভিনাইল টুকরা কাটা.
প্রয়োজনীয় সরঞ্জাম
নিম্নলিখিত সরঞ্জাম উপলব্ধ আছে:
- ফিলিপস হেড স্ক্রু ড্রাইভার
- সুই নাকের প্লাইয়ার
- তারের কাটার
- কাঁচি
- জল স্প্রে বোতল
- X-ACTO ছুরি
ধাপ 1: রঙিন ভিনাইল প্রয়োগ করুন
রঙিন ভিনাইল প্রয়োগ করতে:
অ্যাক্রিলোনিট্রিল বুটাডিয়ান স্টাইরিন (ABS) এর মসৃণ দিকে রঙিন ভিনাইল প্রয়োগ করুন এবং চিত্র 2-এ দেখানো মতো প্রয়োজনীয় খোলা অংশগুলি কেটে ফেলুন। ট্যাবলেটের পাশে বড় আয়তক্ষেত্রাকার খোলার সাথে সাদা ভিনাইল এবং বাক্সের মোবাইল ডিভাইসের পাশে বৃত্তাকার খোলার সাথে কালো ভিনাইল প্রয়োগ করতে ভুলবেন না।
চিত্র 2-এ দেখানো হিসাবে পাশের প্যানেলে ধূসর রঙের ভিনাইল প্রয়োগ করুন এবং চিত্র 3-এ দেখানো হিসাবে নীচের প্যানেলের চার কোণে পা আঠালো করুন।
আরও তথ্যের জন্য, উইকিহাউ দেখুন।

চিত্র 2. মসৃণ দিকে (বাক্সের অভ্যন্তরভাগে) ভিনাইল সহ ABS টুকরা
নীচের প্যানেলের চার কোণে ফুট প্রয়োগ করুন চিত্র 3 এ দেখানো হয়েছে।

চিত্র 3. নীচের প্যানেলের চার কোণে পা
ধাপ 2: হালকা রেল একত্রিত করুন এবং ইনস্টল করুন
এলইডি লাইট স্ট্রিপ সহ হালকা ফ্রেমের কাঠামো একত্রিত এবং ইনস্টল করতে:
হালকা ফ্রেমের কাঠামোর যান্ত্রিক অঙ্কন পর্যালোচনা করুন।

চিত্র 4. LED লাইট স্ট্রিপ সহ হালকা ফ্রেম কাঠামো
প্লাস্টিকের লাইট ব্যাফেলস, লাইট মাউন্ট, LED লাইট স্ট্রিপ এবং জিপ টাই সংগ্রহ করুন।

চিত্র 5. হালকা বিভ্রান্তি এবং হালকা মাউন্ট
চিত্র 6-এ দেখানো হিসাবে প্লাস্টিকের আলোর বিভ্রান্তিকর আলোর মাউন্টগুলিতে স্ন্যাপ করুন। এটি একটি শক্ত ফিট হওয়া উচিত।

চিত্র 6. প্লাস্টিকের আলোর মাউন্ট হালকা মাউন্ট লাগানো
চিত্র 7-এ দেখানো হিসাবে সাইড প্যানেলে আলো মাউন্ট করুন। সম্পূর্ণ হলে, বাক্সের অভ্যন্তরের সামনের কোণে আলো জ্বলবে।

চিত্র 7. হালকা বিভ্রান্তি এবং মাউন্টগুলি পাশের প্যানেলগুলিতে আটকে গেছে
পাশের প্যানেলগুলি একত্রিত করুন। (ঐচ্ছিক: ভাল ফিট করার জন্য বাফেলের প্রান্তগুলি বালি করুন।)

চিত্র 8. সাইড প্যানেলগুলি একত্রিত এবং একসাথে স্ক্রু করা হয়েছে
চিত্র 9-এ দেখানো হিসাবে সাইড প্যানেলের স্লটের মধ্য দিয়ে প্রসারিত আয়তক্ষেত্রাকার ট্যাবের ছোট গর্তে পিনটি চেপে হালকা বিভ্রান্তিগুলিকে সুরক্ষিত করুন।

চিত্র 9. বাক্সের বাইরের LED মাউন্ট ট্যাবে সন্নিবেশিত পিনের ক্লোজ আপ
নিচের দিকে মুখ করে দুবার বাফেলের চারপাশে হালকা স্ট্রিপগুলি মোড়ানো। স্ট্রিপটি বেঁধে রাখতে জিপ টাই ব্যবহার করুন এবং শেষগুলি একসাথে স্ন্যাপ করুন। (ঐচ্ছিক: সহজে মোড়ানোর জন্য জিপ টাই ছাড়াও LED লাইট স্ট্রিপের পিছনে টেপ ব্যবহার করুন।)

চিত্র 10. LED আলোর স্ট্রিপ জিপ টাই সহ বাফেলের চারপাশে মোড়ানো

চিত্র 11. জিপ টাই LED লাইট স্ট্রিপগুলিকে যথাস্থানে ধরে রেখেছে
চিত্র 12 এবং 13 এ দেখানো হিসাবে জিপ বন্ধনগুলির প্রান্তগুলি কাটুন।

চিত্র 12. এলইডি লাইট দুবার বাফেলের চারপাশে মোড়ানো এবং পাশের প্রস্থানের মধ্য দিয়ে প্রস্থান করছে

চিত্র 13. জিপ টাই উপরের দিকে দেখা যাচ্ছে (এলইডি স্ট্রিপগুলি অন্য দিকে রয়েছে)
ধাপ 3: ট্যাবলেট এবং ফোন মাউন্ট একত্রিত করুন
ট্যাবলেট এবং ফোন মাউন্ট একত্রিত করতে:
ট্যাবলেট মাউন্টের যান্ত্রিক অঙ্কন পর্যালোচনা করুন।

চিত্র 14. ট্যাবলেট মাউন্টের যান্ত্রিক অঙ্কন
চিত্র 15 এ দেখানো অংশগুলি সংগ্রহ করুন।

চিত্র 15. স্ক্রু, প্লাঞ্জার, ভিনাইল ক্যাপ এবং বাদাম সহ ট্যাবলেট এবং ফোন মাউন্ট
রাবারের টিপসগুলিকে প্লাঞ্জার অপারেশনে হস্তক্ষেপ না করার জন্য যথেষ্ট ছোট করুন (মোটামুটি অর্ধেক), এবং সেগুলিকে প্লাঞ্জারের প্রান্তে ঠেলে দিন। ছোট ভিনাইল ক্যাপ দৈর্ঘ্য নিশ্চিত করে যে প্লাঞ্জার মেকানিজম প্রত্যাহার এবং লক করা যেতে পারে।

চিত্র 16. সামঞ্জস্যপূর্ণ পুশ-অন ক্যাপ সহ প্লাঞ্জার
মাউন্ট সম্মুখের প্লাঞ্জার স্ক্রু.

চিত্র 17. ট্যাবলেট এবং ফোন মাউন্ট প্লাঞ্জার সহ
ধাপ 4: চূড়ান্ত সমাবেশ
WFoV আইটিএস বক্স একত্রিত করতে:
সামনের অ্যাপারচার প্লেটগুলি সংগ্রহ করুন এবং 4-40টি স্ক্রু ব্যবহার করুন যাতে চিত্র 18-এ দেখানো হয়েছে বড় প্লেটের উপরে বর্গাকার দিয়ে ছোট প্লেটটিকে স্ক্রু করতে।

চিত্র 18. সামনের অ্যাপারচার প্লেট এবং ফোন মাউন্ট প্লেট

চিত্র 19. সামনের অ্যাপারচার প্লেট এবং ফোন মাউন্ট প্লেট 4-40 স্ক্রু দিয়ে একসাথে স্ক্রু করা হয়েছে
বাক্সে সামনের এবং পিছনের প্যানেলগুলিকে টেপ করুন৷

চিত্র 20. ডাব্লুএফওভি বক্স যার পাশ একসাথে স্ক্রু করা হয়েছে এবং সামনে এবং পিছনের প্যানেলগুলি টেপ করা হয়েছে
বিদ্যমান গর্তের উপর ভিত্তি করে পাইলট গর্ত তৈরি করতে একটি পাওয়ার ড্রিল ব্যবহার করুন। নিশ্চিত করুন যে পাইলট গর্তগুলি 4-40 স্ক্রুগুলির জন্য যথেষ্ট বড় যাতে স্ক্রুগুলি ঢোকানোর সময় ABS প্লাস্টিক ফাটতে না পারে।

চিত্র 21. 4-40 স্ক্রুগুলির জন্য পাইলট গর্ত ড্রিলিং
4-40টি স্ব-ট্যাপিং স্ক্রু ব্যবহার করে সমস্ত প্যানেল একসাথে স্ক্রু করুন।

চিত্র 22. সমাবেশের জন্য 4-40 স্ক্রু
চিত্র 23-এ দেখানো হ্যান্ডেলের অংশগুলি সংগ্রহ করুন।

চিত্র 23. হ্যান্ডেল অংশ
চিত্র 24-এ দেখানো হিসাবে হ্যান্ডলগুলি একত্রিত করুন।

চিত্র 24. একত্রিত হ্যান্ডেল
পাওয়ার অ্যাডাপ্টারটি 12V, 5A এবং একটি UL তালিকাভুক্ত শংসাপত্র রয়েছে কিনা তা পরীক্ষা করুন৷ 12V এর নিচের কিছু কাজ করে না। 5A এর নিচের যেকোনো কিছু আলোর উজ্জ্বলতা স্তরকে প্রভাবিত করতে পারে।

চিত্র 25. একটি UL তালিকাভুক্ত শংসাপত্র সহ 12V, 5A পাওয়ার অ্যাডাপ্টার৷
একটি ডিজিটাল লাক্স মিটার ব্যবহার করে, LED লাইটের লাক্স পরীক্ষা করে নিশ্চিত করুন যে সেগুলি উপযুক্ত স্তরে আছে।
ট্যাবলেটের পাশে লাইট মিটার রাখুন এবং আলো পরিমাপ করতে 2000 লাক্সে পরিণত করুন। লাক্স প্রায় 100-300 হওয়া উচিত। উল্লেখযোগ্যভাবে কম যে কোনো কিছু পরীক্ষার জন্য খুবই ম্লান এবং পরীক্ষায় ব্যর্থতার কারণ হতে পারে।
এই উদাহরণে Contempo Views- এর YF-1065 লাক্স মিটার ব্যবহার করা হয়েছে।

চিত্র 26. কনটেম্পো ভিউ দ্বারা YF-1065

চিত্র 27. ট্যাবলেট মাউন্টের সাথে পাশ থেকে লাক্স মিটার পরিমাপ করা আলো
মাপা লাক্স মান উপর নির্ভর করে উপযুক্ত পদক্ষেপ অনুসরণ করুন:
- আলো সঠিক স্তরে থাকলে, সামনে এবং পিছনের প্লেটগুলিকে জায়গায় স্ক্রু করুন।
- আলোটি ভুল স্তরে থাকলে, LED এবং পাওয়ার সাপ্লাই অংশ নম্বর সঠিক কিনা তা পরীক্ষা করুন।
অ্যাপারচার প্লেটে ফোন মাউন্ট করুন এবং স্ক্রু এবং বাদাম দিয়ে ট্যাবলেটটি বিপরীত দিকে মাউন্ট করুন।

চিত্র 28. ট্যাবলেট মাউন্টের ক্লোজ আপ

চিত্র 29. একত্রিত WFoV বক্স: পিছনের দৃশ্য (বাম) এবং সামনের দৃশ্য (ডানদিকে)
DUT এর ক্যামেরা অ্যাপারচারের সাথে মানানসই করতে 10x10 সেমি গেটর বোর্ড অ্যাপারচার ঢোকান।

চিত্র 30. গেটর বোর্ড অ্যাপারচার ইনস্টল সহ আইটিএস-ইন-এ-বক্স
অ্যাপারচার খোলার সাথে ক্যামেরাটি সারিবদ্ধ করে ফোনটি ইনস্টল করুন। ট্যাবলেট খোলার মাধ্যমে প্রান্তিককরণ পরীক্ষা করুন।

চিত্র 31. একটি ফোন ইনস্টল সহ আইটিএস-ইন-এ-বক্স
ক্যামেরার জন্য অ্যাপারচার কাটা। আপনি একটি একক অ্যাপারচার (একটি ফোন পরীক্ষার জন্য) বা দুটি অ্যাপারচার (দুটি ফোন পরীক্ষার জন্য) কাটতে পারেন। পিক্সেল এবং পিক্সেল এক্সএল সামনের এবং পিছনের ক্যামেরাগুলির অ্যাপারচারগুলি চিত্র 32-এ দেখানো হয়েছে৷ সামনের ক্যামেরাটিতে একটি বৃত্তাকার অ্যাপারচার রয়েছে কারণ কোনও ফ্ল্যাশ বা লেজার নেই, যখন পিছনের ক্যামেরাটিতে একটি আয়তক্ষেত্রাকার অ্যাপারচার রয়েছে যা ফ্ল্যাশ এবং লেজারকে ব্লক না করেই কাজ করতে দেয়৷

চিত্র 32. সামনে এবং পিছনের ক্যামেরার জন্য নমুনা অ্যাপারচার

চিত্র 33. দুটি ফোন ইনস্টল সহ আইটিএস-ইন-এ-বক্স
বিকল্পভাবে, আপনি কার্ডবোর্ড থেকে অ্যাপারচার কেটেও মার্কার, স্প্রে পেইন্ট বা এক্রাইলিক দিয়ে কালো রঙ করতে পারেন যেমন চিত্র 34-এ দেখানো হয়েছে।

চিত্র 34. সামনে এবং পিছনের উভয় ক্যামেরার জন্য নমুনা কার্ডবোর্ড অ্যাপারচার
জিনিসের জন্য আউট তাকান
নিম্নলিখিতগুলি সাধারণ উত্পাদন ত্রুটিগুলির উদাহরণ যা পরীক্ষার ফ্ল্যাকি রেন্ডার করতে পারে।
ট্যাবলেট ছিদ্র সঙ্গে পিছনে প্যানেল মাধ্যমে poked. স্ক্রু ছিদ্র দ্বারা তৈরি অতিরিক্ত বৃত্তের কারণে এটি
find_circleপরীক্ষা ব্যর্থ হয়।
চিত্র 35. পিছনের প্যানেলটি ছিদ্রযুক্ত
অনুপস্থিত dowels. এটি শিপিংয়ের সময় হালকা বিভ্রান্তির কারণ হয়ে দাঁড়ায়।

চিত্র 36. হালকা বাফেলের উপর ডোয়েল অনুপস্থিত
অ-উল-তালিকাভুক্ত পাওয়ার সাপ্লাই। একটি UL তালিকাভুক্ত পাওয়ার সাপ্লাই ব্যবহার করা লেবেলযুক্ত স্পেসিফিকেশন পূরণ করে। নিরাপদে আলো পরিচালনার জন্য এটি গুরুত্বপূর্ণ।

চিত্র 37. একটি UL তালিকাভুক্ত পাওয়ার সাপ্লাই এর উদাহরণ
ট্যাবলেট বা ফোন মাউন্টে স্লিপিং স্ক্রু যা ট্যাবলেট বা ফোনের ওজনকে সমর্থন করতে পারে না। এটি সাধারণত ক্ষতিগ্রস্ত থ্রেড দ্বারা সৃষ্ট হয় এবং নির্দেশ করে যে গর্তটি পুনরায় থ্রেড করা প্রয়োজন।

চিত্র 38. ক্ষতিগ্রস্ত থ্রেড সঙ্গে গর্ত