রেগুলার ফিল্ড-অফ-ভিউ (RFoV) আইটিএস-ইন-এ-বক্স (রিভিশন 1a) একটি প্লাস্টিকের বাক্স নিয়ে গঠিত যা কম্পিউটার-এডেড ডিজাইন (CAD) ড্রয়িং থেকে লেজার কাটা, একটি চার্ট ট্যাবলেট এবং একটি যন্ত্র পরীক্ষাধীন (DUT)। RFoV ITS-in-a-box 90 ডিগ্রি (RFoV) এর চেয়ে কম FoV সহ ডিভাইসগুলি পরীক্ষা করার জন্য ডিজাইন করা হয়েছে। আপনি একটি আইটিএস-ইন-এ-বক্স কিনতে পারেন বা নিজের তৈরি করতে পারেন।
RFOV ITS-in-a-box-এর rev1b সংস্করণ মডুলার উপাদানগুলির জন্য সমর্থন যোগ করে এবং টেলি এক্সটেনশন রিগের সাথে সামঞ্জস্যপূর্ণ।

চিত্র 1. নিয়মিত ফিল্ড-অফ-ভিউ (RFoV) ITS বক্স Rev1b
পুনর্বিবেচনার ইতিহাস
নিম্নলিখিত সারণীটি নিয়মিত ফিল্ড-অফ-ভিউ বাক্সের পুনর্বিবেচনার ইতিহাস বর্ণনা করে এবং উৎপাদন ফাইলগুলির প্রতিটি সংস্করণের ডাউনলোড লিঙ্কগুলি অন্তর্ভুক্ত করে।
| তারিখ | রিভিশন | উত্পাদন ফাইল ডাউনলোড | লগ পরিবর্তন করুন |
|---|---|---|---|
| সেপ্টেম্বর 2024 | 1 খ | Rev. 1b উৎপাদন ফাইল |
|
| মে 2019 | 1 ক | Rev. 1a উৎপাদন ফাইল |
|
একটি RFoV আইটিএস-ইন-এ-বক্স কিনুন
আমরা নিম্নলিখিত যোগ্য বিক্রেতাদের থেকে একটি RFoV ITS-in-a-box (রিভিশন 1a) কেনার পরামর্শ দিই।
বাইট ব্রিজ ইনক.
USA: 1502 Crocker Ave, Hayward, CA 94544-7037
চীন: 22F #06-08, Hongwell International Plaza Tower A, 1600 West Zhongshan Road, Xuhui, Shanghai, 200235
www.bytebt.com
androidpartner@bytebt.com
USA: +1-510-373-8899
চীন: +86-400-8866-490JFT CO LTD 捷富通科技有限公司 (আগে MYWAY DESIGN নামে পরিচিত)
নং 40, লেন 22, হেই রোড, উজিং টাউন, মিনহাং জেলা, সাংহাই, চীন
4F., নং 163, ফু-ইং রোড, জিনঝুয়াং জেলা, নিউ তাইপেই সিটি 242, তাইওয়ান
www.jftcoltd.com
service@jfttec.com বা its.sales@jfttec.com
চীন:+86-021-64909136
তাইওয়ান: 886-2-29089060
ভিডিও টিউটোরিয়াল
এটি কিভাবে RFoV ITS-in-a-box সেট আপ করতে হয় তার একটি ভিডিও টিউটোরিয়াল।
একটি RFoV আইটিএস-ইন-এ-বক্স তৈরি করুন
একটি RFoV আইটিএস-ইন-এ-বক্স কেনার পরিবর্তে, আপনি নিজের তৈরি করতে পারেন। এই বিভাগে সমাবেশের জন্য বিস্তারিত নির্দেশাবলী প্রদান করে।
যান্ত্রিক অঙ্কন
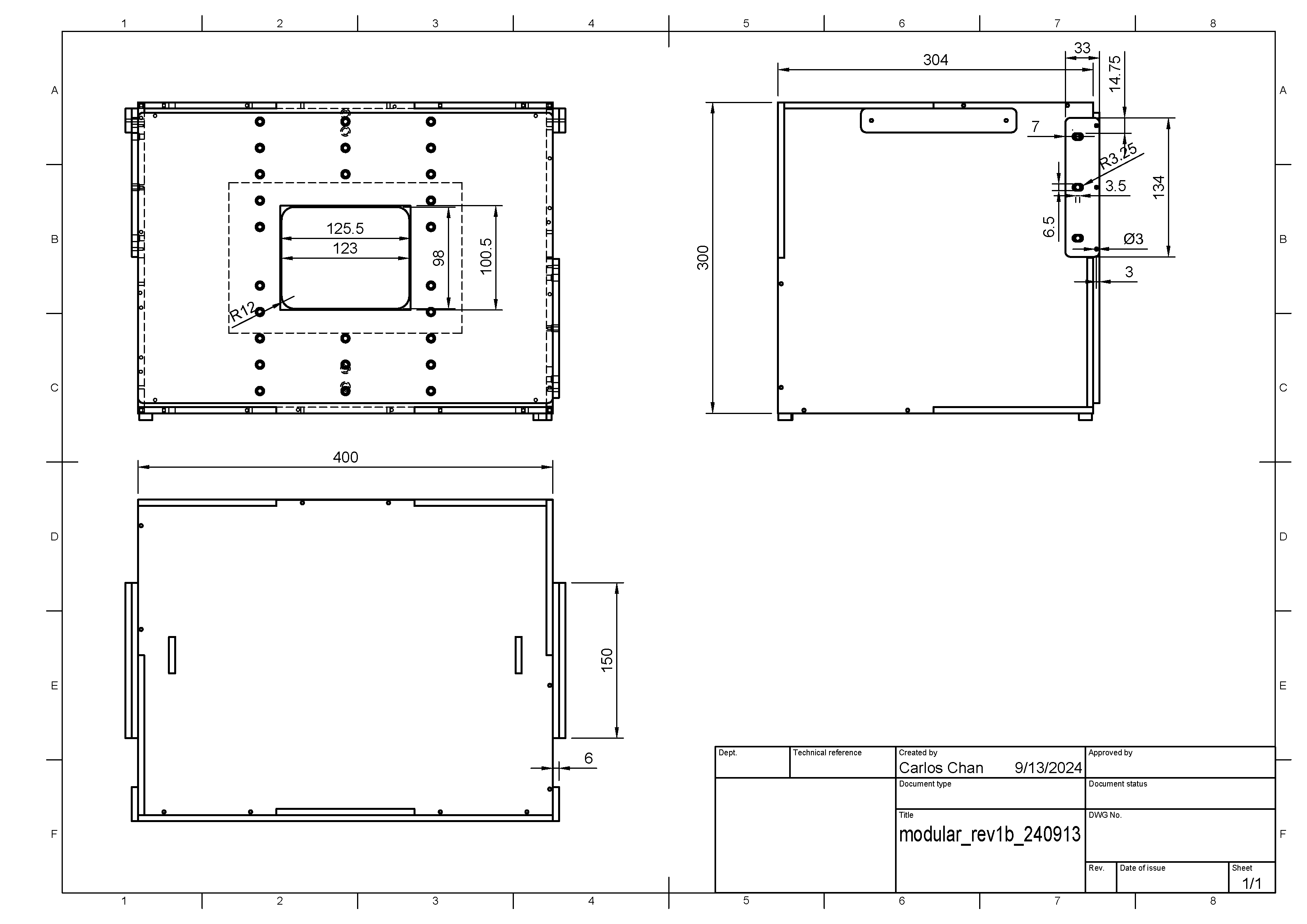
আইটিএস-ইন-এ-বক্সে একটি DUT, একটি চার্ট ট্যাবলেট, একটি অভ্যন্তরীণ আলোক ব্যবস্থা এবং একটি প্লাস্টিকের বাক্স রয়েছে যা CAD অঙ্কন থেকে লেজার কাটা (চিত্র 1-এ দেখানো হয়েছে)।
শুরু করতে, সর্বশেষ উৎপাদন ফাইল ডাউনলোড করুন।

চিত্র 2. আইটিএস-ইন-এ-বক্সের যান্ত্রিক অঙ্কন
উপকরণের বিল (BOM) থেকে হার্ডওয়্যার কিনুন। প্লাস্টিক এবং ভিনাইল টুকরা কাটা.
প্রয়োজনীয় সরঞ্জাম
নিম্নলিখিত সরঞ্জাম উপলব্ধ আছে:
- টরক্স হেড স্ক্রু ড্রাইভার
- পাওয়ার ড্রিল
- ABS আঠালো
- সুই নাকের প্লাইয়ার
- X-ACTO ছুরি
- তারের কাটার বা কাঁচি (ঐচ্ছিক)
ধাপ 1: ভিনাইল এবং আঠালো ফুট প্রয়োগ করুন
অ্যাক্রিলোনিট্রিল বুটাডিয়ান স্টাইরিন (ABS) এর মসৃণ দিকে রঙিন ভিনাইল প্রয়োগ করুন এবং চিত্র 3 এবং 4-এর মতো প্রয়োজনীয় খোলা অংশগুলি কেটে ফেলুন। বাক্সের ট্যাবলেটের পাশে বড় আয়তক্ষেত্রাকার খোলার সাথে সাদা ভিনাইল এবং মোবাইল ডিভাইসের বক্সের পাশে বৃত্তাকার খোলার সাথে কালো ভিনাইল প্রয়োগ করুন। চিত্র 4-এ দেখানো হিসাবে পাশের প্যানেলে ধূসর রঙের ভিনাইল প্রয়োগ করুন এবং চিত্র 5-এ দেখানো হিসাবে নীচের প্যানেলের চার কোণায় পা আঠালো করুন। আরও তথ্যের জন্য, উইকিহাউ দেখুন।

চিত্র 3. সামনের প্যানেলে (বামে) কালো ভিনাইল এবং পিছনের প্যানেলে সাদা ভিনাইল (ডানদিকে)

চিত্র 4. পাশের প্যানেলে ধূসর একধরনের প্লাস্টিক

চিত্র 5. নীচের প্যানেলের চার কোণে ফুট
ধাপ 2: আলো
আইটিএস-ইন-এ-বক্স আলো উপাদান একত্রিত করতে:
চিত্র 6 এ দেখানো আলোক হার্ডওয়্যার সংগ্রহ করুন।

চিত্র 6. হালকা সমাবেশ অংশ
হার্ডওয়্যারে এলইডি লাইট বার, প্লাস্টিক লাইট ব্যাফেলস, প্লাস্টিক লাইট মাউন্ট, এলইডি লাইটিং কিটে অন্তর্ভুক্ত প্লাস্টিক বা মেটাল লাইট ক্লিপ এবং অ্যাকর্ন হেড নাট সহ চারটি 6-32 স্ক্রু রয়েছে।
চিত্র 7-এ দেখানো হিসাবে প্লাস্টিকের ব্যাফেলগুলিতে হালকা ক্লিপগুলি বোল্ট করুন৷ বাফেলের অন্য দিকে অ্যাকর্ন নাট ব্যবহার করে ক্লিপগুলিকে সুরক্ষিত করুন৷

চিত্র 7. হালকা ক্লিপ সংযুক্ত প্লাস্টিক baffles
লাইট একত্রিত করতে, লাইট ক্লিপগুলি ব্যবহার করে LED লাইট বারের পিছনে প্লাস্টিকের ব্যাফেলগুলি সংযুক্ত করুন।

চিত্র 8. আলো নিচের দিকে মুখ করে হালকা বার এবং ক্লিপগুলির মধ্য দিয়ে থ্রেড করা স্ক্রু
যখন আলোর উপাদানটি একত্রিত করা হয়, তখন LED আলোর বারগুলি নীচের দিকে নির্দেশ করা উচিত এবং প্লাস্টিকের বাফেলসগুলি LED আলো বারের পিছনে চকচকে, প্রতিফলিত পৃষ্ঠকে আবৃত করা উচিত।
ধাপ 3: ফোন মাউন্ট
ফোন মাউন্ট একত্রিত করতে:
চিত্র 9 এ দেখানো হিসাবে প্রয়োজনীয় আইটেম সংগ্রহ করুন।

চিত্র 9. ফোন মাউন্ট আইটেম
হার্ডওয়্যারের মধ্যে রয়েছে দুটি ধাতব ফোন মাউন্ট, দুটি প্লাঞ্জার, দুটি রাবারের টিপস, চারটি 8-32 প্যান-হেড স্ক্রু এবং সংশ্লিষ্ট বাদাম৷
প্লাঞ্জার অপারেশনে হস্তক্ষেপ না করার জন্য রাবারের টিপসগুলিকে যথেষ্ট ছোট করুন (মোটামুটি অর্ধেক), তারপর প্লাঞ্জারগুলির টিপগুলিকে ঢেকে রাখতে রাবারের টিপগুলি প্রয়োগ করুন।

চিত্র 10. রাবার টিপস সঙ্গে Plungers
মেটাল মাউন্টের সাথে প্লাঞ্জার মেকানিজম সংযুক্ত করতে প্যান-হেড স্ক্রু ব্যবহার করে ফোন মাউন্টগুলিকে একত্রিত করুন। স্ক্রুগুলি সংশ্লিষ্ট বাদাম দিয়ে শক্ত করা হয়েছে তা নিশ্চিত করুন।

চিত্র 11. একত্রিত ফোন মাউন্ট
ধাপ 4: অ্যাপারচার প্লেট
সামনের অ্যাপারচার প্লেট একত্রিত করতে:
চিত্র 12-এ দেখানো সামনের অ্যাপারচার প্লেট হার্ডওয়্যার সংগ্রহ করুন।

চিত্র 12. সামনে অ্যাপারচার প্লেট সমাবেশ অংশ
হার্ডওয়্যারে অ্যাসেম্বল করা ফোন মাউন্ট, ফোন মাউন্ট প্যানেল, চারটি ছোট নাইলন স্ক্রু এবং চারটি নাইলন বাদাম (প্লাস্টিকের প্লেটের পিছনের দিকে স্ক্রুগুলিকে প্রসারিত করা থেকে বিরত রাখতে প্রয়োজনীয়) অন্তর্ভুক্ত রয়েছে।
স্ক্রু এবং বাদাম ব্যবহার করে, ফোন মাউন্ট প্যানেলে একত্রিত ফোন মাউন্ট সুরক্ষিত করুন। নিশ্চিত করুন যে ফোন মাউন্টগুলি চিত্র 13-এর মতো সঠিক অভিযোজনে রয়েছে৷

চিত্র 13. একত্রিত সামনে অ্যাপারচার প্লেট
ধাপ 5: ট্যাবলেট মাউন্ট
টেবিল মাউন্ট একত্রিত করতে:
চিত্র 14 এ দেখানো ট্যাবলেট মাউন্ট সমাবেশ হার্ডওয়্যার সংগ্রহ করুন।

চিত্র 14. ট্যাবলেট মাউন্ট স্থান সমাবেশ অংশ
হার্ডওয়্যারে ব্যাক প্যানেল, ট্যাবলেট মাউন্ট, একটি প্লাঞ্জার, একটি রাবারের টিপ, দুটি 8-32 প্যান-হেড স্ক্রু, দুটি ছোট নাইলন স্ক্রু এবং সংশ্লিষ্ট বাদাম অন্তর্ভুক্ত রয়েছে।
মেটাল মাউন্টের সাথে প্লাঞ্জার মেকানিজম সংযুক্ত করতে প্যান-হেড স্ক্রু ব্যবহার করে ট্যাবলেট মাউন্টটি একত্রিত করুন। স্ক্রুগুলি সংশ্লিষ্ট বাদাম দিয়ে শক্ত করা হয়েছে তা নিশ্চিত করুন।
স্ক্রু এবং বাদাম ব্যবহার করে, অ্যাসেম্বল করা ট্যাবলেটটিকে পিছনের প্যানেলে সুরক্ষিত করুন। নিশ্চিত করুন যে ফোন মাউন্টগুলি চিত্র 15-এর মতো সঠিক অভিযোজনে রয়েছে৷

চিত্র 15. একত্রিত ট্যাবলেট মাউন্ট
ধাপ 6: লাইট ইনস্টল করুন
লাইট ইনস্টল করতে:
চিত্র 16-এ দেখানো হিসাবে উপরের এবং নীচের প্যানেলে হালকা ব্যাফেলস ইনস্টল করুন।

চিত্র 16. উপরের এবং নীচের প্যানেলে হালকা বাফেলস ইনস্টল করা হয়েছে
চিত্র 17-এর মতো উপরের এবং নীচের প্যানেলের স্লটের মধ্য দিয়ে প্রসারিত আয়তক্ষেত্রাকার ট্যাবের ছোট গর্তে পিনটি চেপে হালকা বিভ্রান্তিগুলিকে সুরক্ষিত করুন।

চিত্র 17. বাক্সের বাইরে LED মাউন্ট ট্যাবে সন্নিবেশিত পিনের ক্লোজ আপ
পিনগুলিকে সুরক্ষিত করতে, পিনগুলিকে আলতোভাবে চেপে দিন যতক্ষণ না আপনি প্লাস্টিকের উপর কিছুটা চাপ অনুভব করেন কারণ পিনগুলি জায়গায় সুরক্ষিত থাকে।

চিত্র 18. পিন ইনস্টল করতে ব্যবহৃত প্লায়ার
চিত্র 19-এ দেখানো হিসাবে সামনের এবং পাশের প্যানেলগুলিকে সঠিক অভিযোজনে একত্রিত করুন এবং বাইরে থেকে তাদের একসাথে টেপ করুন।

চিত্র 19. হালকা বসানো অভিযোজন
চিত্র 20 এ দেখানো হিসাবে পাওয়ার লাইট বারে পাওয়ার কর্ড সংযুক্ত করুন।

চিত্র 20. আলো পাওয়ার কর্ড
বাম প্যানেলের গর্ত দিয়ে পাওয়ার কর্ডটি থ্রেড করুন। পাওয়ার কর্ডের প্রতিটি প্রান্তে বিভিন্ন সংযোগকারী রয়েছে: সংকীর্ণ সংযোগকারীটি এলইডি লাইট বারের সাথে সংযুক্ত থাকে এবং বড় সংযোগকারীটি পাওয়ার অ্যাডাপ্টারের সাথে সংযুক্ত থাকে।

চিত্র 21. পাওয়ার কর্ড তার বাম দিকে টেস্ট রিগ থেকে বেরিয়ে আসছে
উপরের লাইটগুলিকে নীচের লাইটে লাগান এবং বাম প্যানেলে কেবলটি সুরক্ষিত করুন৷

চিত্র 22. বাম প্যানেলে নোঙর করা হালকা কর্ড
ধাপ 7: সাইড প্যানেল, ট্যাবলেট মাউন্ট এবং হ্যান্ডলগুলি একত্রিত করুন
আইটিএস-ইন-এ-বক্স সাইড প্যানেল, ট্যাবলেট মাউন্ট এবং স্ক্রু সহ হ্যান্ডেলগুলি একত্রিত করতে:
প্যানেলের সমস্ত দিক একত্রিত করুন এবং চিত্র 23-এ দেখানো হিসাবে তাদের একসাথে টেপ করুন।

চিত্র 23. সমাবেশের জন্য আইটিএস-ইন-এ-বক্স একসাথে টেপ করা হয়েছে
বিদ্যমান গর্তের উপর ভিত্তি করে পাইলট গর্ত তৈরি করতে একটি পাওয়ার ড্রিল ব্যবহার করুন। নিশ্চিত করুন যে পাইলট গর্তগুলি 4-40 স্ক্রুগুলির জন্য যথেষ্ট বড় যাতে স্ক্রুগুলি ঢোকানোর সময় ABS প্লাস্টিক ফাটতে না পারে।

চিত্র 24. 4-40 স্ক্রুগুলির জন্য পাইলট গর্ত ড্রিলিং
4-40টি স্ব-ট্যাপিং স্ক্রু ব্যবহার করে সমস্ত প্যানেল একসাথে স্ক্রু করুন।

চিত্র 25. প্যানেল একত্রিত করার জন্য 4-40 স্ক্রু
চিত্র 26-এ দেখানো হ্যান্ডেলের অংশগুলি সংগ্রহ করুন।

চিত্র 26. হ্যান্ডেল অংশ
হার্ডওয়্যারে চারটি আয়তক্ষেত্রাকার প্লাস্টিকের টুকরা এবং চারটি 6-32 স্ক্রু রয়েছে।
চিত্র 27-এ দেখানো হিসাবে হ্যান্ডলগুলি একত্রিত করুন।

চিত্র 27. একত্রিত হ্যান্ডেল
ধাপ 8: চূড়ান্ত সমাবেশ এবং সেটআপ
আইটিএস-ইন-এ-বক্সের চূড়ান্ত সমাবেশ সম্পাদন করতে:
পিছনের প্যানেলে ট্যাবলেট মাউন্ট সংযুক্ত করুন এবং ট্যাবলেটের আকার অনুযায়ী উচ্চতা সামঞ্জস্য করুন।

চিত্র 28. ট্যাবলেটে ট্যাবলেটটি বাক্সের পিছনে মাউন্ট করা হয়েছে
ছবি 29-এ দেখানো হিসাবে 4-40 স্ক্রু দিয়ে বক্সের সামনে ফোন মাউন্ট ছাড়াই বর্গাকার অ্যাপারচার প্যানেল সংযুক্ত করুন।

চিত্র 29. একত্রিত ফ্রন্ট ফোন প্যানেল
DUT এর ক্যামেরা অ্যাপারচারের সাথে মানানসই করতে 10x10 সেমি গেটর বোর্ড অ্যাপারচার ঢোকান।

চিত্র 30. গেটর বোর্ড অ্যাপারচার সহ আইটিএস-ইন-এ-বক্স ইনস্টল করা আছে
অ্যাপারচার খোলার সাথে ক্যামেরাটি সারিবদ্ধ করে ফোনটি ইনস্টল করুন। ট্যাবলেট খোলার মাধ্যমে প্রান্তিককরণ পরীক্ষা করুন।

চিত্র 31. একটি ফোন ইনস্টল সহ আইটিএস-ইন-এ-বক্স
ক্যামেরার জন্য অ্যাপারচার কাটা। আপনি একটি একক অ্যাপারচার (একটি ফোন পরীক্ষার জন্য) বা দুটি অ্যাপারচার (দুটি ফোন পরীক্ষার জন্য) কাটতে পারেন। পিক্সেল এবং পিক্সেল এক্সএল সামনের এবং পিছনের ক্যামেরাগুলির অ্যাপারচারগুলি চিত্র 31-এ দেখানো হয়েছে৷ সামনের ক্যামেরাটিতে একটি বৃত্তাকার অ্যাপারচার রয়েছে কারণ কোনও ফ্ল্যাশ বা লেজার নেই, যখন পিছনের ক্যামেরাটিতে একটি আয়তক্ষেত্রাকার অ্যাপারচার রয়েছে যা ফ্ল্যাশ এবং লেজারকে ব্লক না করেই কাজ করতে দেয়৷

চিত্র 32. সামনে এবং পিছনের উভয় ক্যামেরার জন্য নমুনা অ্যাপারচার

বিকল্পভাবে, আপনি কার্ডবোর্ড থেকে অ্যাপারচারগুলি কেটে ফেলতে পারেন এবং চিত্র 33-এ দেখানো মার্কার, স্প্রে পেইন্ট বা অ্যাক্রিলিক ব্যবহার করে কালো রঙ করতে পারেন।
চিত্র 33. সামনে এবং পিছনের উভয় ক্যামেরার জন্য নমুনা কার্ডবোর্ড অ্যাপারচার

একটি ডিজিটাল লাক্স টেস্টার ব্যবহার করে, LED লাইটের লাক্স পরীক্ষা করুন। Contempo View দ্বারা YF-1065 এই উদাহরণে ব্যবহার করা হয়েছে।

চিত্র 34. কনটেম্পো ভিউ দ্বারা YF-1065
ট্যাবলেটের পাশে লাইট মিটার রাখুন এবং আলো পরিমাপ করতে 2000 লাক্সে পরিণত করুন। লাক্স লেভেল প্রায় 100-300 লাক্স হওয়া উচিত। উল্লেখযোগ্যভাবে কম যে কোনো কিছু পরীক্ষার জন্য খুবই ম্লান এবং পরীক্ষায় ব্যর্থতার কারণ হতে পারে।

চিত্র 35. ট্যাবলেট মাউন্ট সহ পিছন থেকে লাক্স মিটার পরিমাপ করা আলো
মাপা লাক্স মান উপর নির্ভর করে উপযুক্ত পদক্ষেপ অনুসরণ করুন:
- আলো সঠিক স্তরে থাকলে, সামনে এবং পিছনের প্লেটগুলিকে জায়গায় স্ক্রু করুন।
- আলোটি ভুল স্তরে থাকলে, LED এবং পাওয়ার সাপ্লাই অংশ নম্বর সঠিক কিনা তা পরীক্ষা করুন।
জিনিসের জন্য আউট তাকান
নিম্নলিখিতগুলি সাধারণ উত্পাদন ত্রুটিগুলির উদাহরণ যা পরীক্ষাগুলিকে ফ্ল্যাকি রেন্ডার করতে পারে৷
ট্যাবলেট ছিদ্র সঙ্গে পিছনে প্যানেল মাধ্যমে poked. স্ক্রু ছিদ্র দ্বারা তৈরি অতিরিক্ত বৃত্তের কারণে এটি
find_circleপরীক্ষা ব্যর্থ হয়।
চিত্র 36. পিছনের প্যানেলটি ছিদ্রযুক্ত
অনুপস্থিত dowels. এটি শিপিংয়ের সময় হালকা বিভ্রান্তির কারণ হয়ে দাঁড়ায়।

চিত্র 37. হালকা বাফেলের উপর ডোয়েল অনুপস্থিত
অ-উল-তালিকাভুক্ত পাওয়ার সাপ্লাই। একটি UL- তালিকাভুক্ত পাওয়ার সাপ্লাই ব্যবহার করা নিশ্চিত করে যে পাওয়ার সাপ্লাই ভেঙে না যায়।

চিত্র 38. একটি UL- তালিকাভুক্ত পাওয়ার সাপ্লাই এর উদাহরণ