الحصول على صندوق بزاوية رؤية واسعة

يتضمّن نظام التشغيل Android الإصدار 2 من نظام ITS-in-a-box، وهو نظام اختبار آلي لأنظمة الكاميرات ذات مجال الرؤية الواسع (WFoV) ومجال الرؤية العادي (RFoV) في مجموعة اختبار صور الكاميرا (ITS). تم تصميم المراجعة 1 لاختبار كاميرات الأجهزة الجوّالة التي يقل مجال رؤيتها (FoV) عن 90 درجة (RFoV).

تم تصميم صندوق مجال الرؤية الواسع (المراجعة 2) لاختبار الكاميرات التي لديها مجال رؤية أكبر من 90 درجة (مجال رؤية واسع)، ما يتيح لك استخدام نظام ITS-in-a-box واحد لاختبار كاميرات مختلفة ذات مجالات رؤية متفاوتة، شرط أن تتمكّن الكاميرات من التركيز على مسافة 20 سم تقريبًا.

يتألف نظام ITS-in-a-box من صندوق بلاستيكي مقطوع بالليزر من رسومات التصميم بمساعدة الكمبيوتر (CAD)، ونظام إضاءة داخلي، وجهاز لوحي للرسومات البيانية، وجهاز قيد الاختبار (DUT). يمكنك شراء نظام نقل ذكي متكامل أو إنشاء نظامك الخاص.

شراء نظام ITS-in-a-box مزوّدًا بمجال رؤية واسع

ننصحك بشراء نظام ITS-in-a-box ذي مجال رؤية واسع من أحد المورّدين المؤهّلين التاليين.

  • شركة Byte Bridge Inc.
    الولايات المتحدة: 1502 Crocker Ave, Hayward, CA 94544-7037
    الصين: 22F #06-08, Hongwell International Plaza Tower A, 1600 West Zhongshan Road, Xuhui, Shanghai, 200235
    www.bytebt.com
    androidpartner@bytebt.com
    الولايات المتحدة: +1-510-373-8899
    الصين: +86-400-8866-490

  • JFT CO LTD 捷富通科技有限公司 (المعروفة سابقًا باسم MYWAY DESIGN)
    الصين: No. 40, Lane 22, Heai Road, Wujing Town, Minhang District, Shanghai, China
    تايوان: 4F., No. 163, Fu-Ying Road, XinZhuang District, New Taipei City 242, Taiwan
    www.jftcoltd.com
    service@jfttec.com or its.sales@jfttec.com
    China:+86-021-64909136
    Taiwan: 886-2-29089060

فيديو تعليمي

هذا فيديو تعليمي حول كيفية إعداد WFoV ITS-in-a-box.

إنشاء نظام ITS-in-a-box بنطاق رؤية واسع

بدلاً من شراء حزمة ITS-in-a-box (الإصدار 2) ذات مجال الرؤية الواسع، يمكنك إنشاء حزمة خاصة بك. يتضمّن هذا القسم تعليمات مفصّلة حول تجميع جهاز ITS-in-a-box (الإصدار 2) الذي يمكنه اختبار الكاميرات ذات مجال الرؤية الواسع (أكثر من 90 درجة).

سجلّ النُسخ السابقة

يوضّح الجدول التالي سجلّ مراجعة منصة اختبار الكاميرا ITS WFoV ويتضمّن روابط تنزيل لكل إصدار من ملفات الإنتاج.

التاريخ المراجعة تنزيل ملف الإنتاج سجلّ التغيير
كانون الأول (ديسمبر) 2022 2.9 WFoV Rev 2.9
  • تمت إضافة آلية تثبيت تتوافق مع اختبار الأجهزة اللوحية.
  • تم تعديل حوامل الهاتف لتصبح غير متماثلة.
  • تصميم فتحة معدَّل من ألواح إسفنجية فارغة إلى تصاميم عامة
تشرين الأول (أكتوبر) 2019 2.8 غير متوفّر
  • تمت إضافة تصميم فتحة العدسة إلى مستندات الإنتاج.
  • تمت إضافة أقدام إلى أسفل جهاز الاختبار لتوفير دعم أفضل.
  • تمت مراجعة تصميم المشبك على شكل حرف C لتحسين ملاءمة المسامير.
  • تمت مراجعة لوحة فتحة العدسة الأمامية لتوفير نطاق حركة أكبر لحوامل الهاتف.
تشرين الأول (أكتوبر) 2018 2.7 غير متوفّر
  • تم استبدال مصباح BOM (#16) بشريط LED مدرَج في قائمة UL لضمان اتساق التصنيع بشكل أفضل.
  • تم تغيير مصدر الطاقة في قائمة المواد إلى المصدر نفسه المستخدَم في رقم 16.
  • تمت مراجعة حامل الجهاز اللوحي ليكون أعرض بمقدار 35 ملم ليتناسب مع فتحة الجهاز اللوحي (الصفحة 4 من الرسم الميكانيكي)
  • تمت مراجعة تباعد فتحات المشبك الأمامي (المسافة) ليتوافق مع طول فتحة المشبك (الصفحة 5 من الرسم الميكانيكي)
  • تم تقليل قطر دائرة فتحة العدسة الأمامية بمقدار 20 ملم ليتوافق مع RFoV ITS-in-a-box.
آب (أغسطس) 2018 2.6 غير متوفّر
  • تم طرح هذه الميزة داخليًا لتصحيح الرسم الميكانيكي.
آب (أغسطس) 2018 ‫2.5 ليرة تركية غير متوفّر
  • تم تبسيط حامل الجهاز اللوحي ليكون مشابهًا لحامل الهاتف.
  • استخدام طلاء بالرمل بدلاً من الطلاء المؤكسد لخفض التكاليف
  • مواصفات مصابيح LED المعدَّلة في قائمة المواد
حزيران (يونيو) 2018 2.4 غير متوفّر
  • تم التبديل من مادة الأكريليك إلى مادة ABS للحدّ من التلف أثناء الشحن.
  • تمت إزالة عناصر الطباعة الثلاثية الأبعاد واستبدالها بمادة ABS مقطوعة بالليزر لخفض التكاليف.
  • تم تغيير مقابض الصندوق لاستخدام مادة ABS بدلاً من أن تكون عنصرًا منفصلاً للشراء في قائمة المواد.

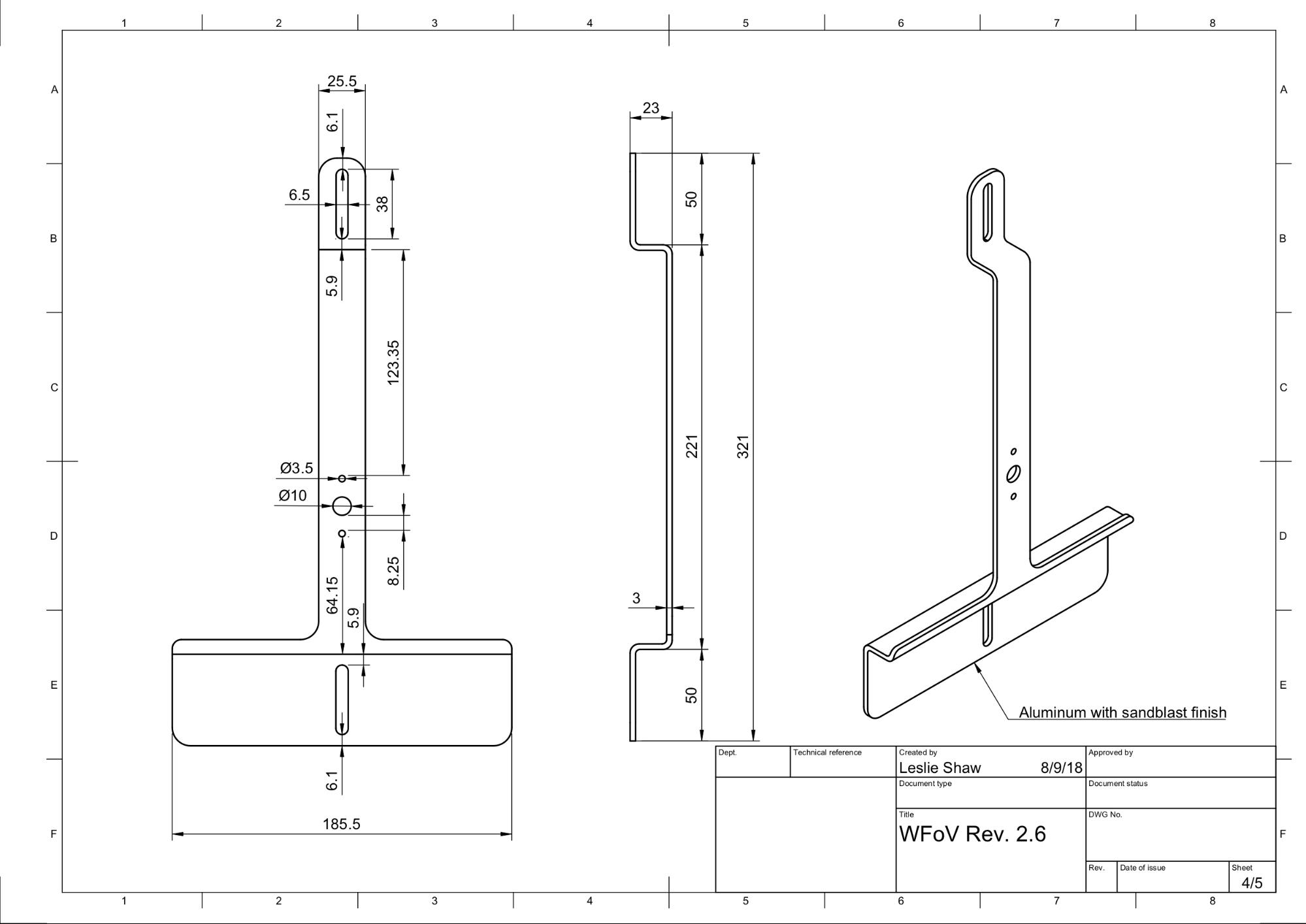
الرسومات الميكانيكية

يوضّح الرسم الميكانيكي التالي لنظام ITS-in-a-box ذي مجال الرؤية الواسع المواد المطلوبة للتجميع. للبدء، نزِّل أحدث ملفات إنتاج لأداة WFoV ITS-in-a-box.

رسم CAD لنظام WFOV ITS-in-a-box

الشكل 1. رسم ميكانيكي لنظام ITS-in-a-box ذي مجال الرؤية الواسع

اشترِ الأجهزة من قائمة المواد (BOM). قُص قطع البلاستيك والفينيل.

الأدوات المطلوبة

توفُّر الأدوات التالية:

  • مفكّ براغي برأس مصلّب
  • زرديات مدبّبة
  • قاطعة أسلاك
  • مقص
  • زجاجة رذاذ الماء
  • سكين X-ACTO

الخطوة 1: تطبيق الفينيل الملوّن

لتطبيق الفينيل الملوّن:

  1. ضَع الفينيل الملوّن على الجانب الأملس من بلاستيك الأكريلونيتريل بوتادين ستايرين (ABS) واقطع الفتحات اللازمة كما هو موضّح في الشكل 2. احرص على وضع غلاف الفينيل الأبيض الذي يحتوي على فتحة مستطيلة كبيرة على جانب الجهاز اللوحي، وغلاف الفينيل الأسود الذي يحتوي على فتحة دائرية على جانب الجهاز الجوّال من العلبة.

    ضَع الفينيل الرمادي على الألواح الجانبية كما هو موضّح في الشكل 2، وألصِق الأرجل في الزوايا الأربع للوحة السفلية كما هو موضّح في الشكل 3.

    لمزيد من المعلومات، يُرجى الاطّلاع على wikiHow.

    قطع ABS مع وضع الفينيل على الجانب الأملس

    الشكل 2. قطع ABS مع طبقة من الفينيل على الجانب الأملس (داخل العلبة)

  2. ضَع الأرجل في الزوايا الأربع للوحة السفلية كما هو موضّح في الشكل 3.

    أرجل اللوحة السفلية

    الشكل 3. أرجل في الزوايا الأربع للوحة السفلية

الخطوة 2: تجميع القطار الخفيف وتركيبه

لتجميع وتركيب هيكل إطار الإضاءة مع شرائط إضاءة LED، اتّبِع الخطوات التالية:

  1. راجِع الرسم الميكانيكي لبنية إطار الإضاءة.

    هيكل خفيف الوزن مزوّد بشرائط إضاءة LED

    الشكل 4. هيكل خفيف الوزن مزوّد بشرائط إضاءة LED

  2. اجمعوا حواجز الإضاءة البلاستيكية وحوامل الإضاءة وأشرطة إضاءة LED وربطات السحّاب.

    حواجز الإضاءة وحوامل الإضاءة وشرائط إضاءة LED وأربطة السحّاب

    الشكل 5. حواجز الضوء وحوامل الإضاءة

  3. ثبِّت حواجز الضوء البلاستيكية على حوامل الإضاءة كما هو موضّح في الشكل 6. يجب أن يكون هذا مناسبًا تمامًا.

    حواجز إضاءة بلاستيكية مثبتة في حوامل الإضاءة

    الشكل 6. حواجز إضاءة بلاستيكية مثبتة في حوامل الإضاءة

  4. ثبِّت حوامل الإضاءة على الألواح الجانبية كما هو موضّح في الشكل 7. عند اكتمال عملية التثبيت، يضيء المصباح باتجاه الزوايا الأمامية من داخل الصندوق.

    تم تثبيت حواجز الضوء وحوامل التثبيت على اللوحات الجانبية

    الشكل 7. تم تثبيت حواجز الضوء وحوامل التثبيت على اللوحات الجانبية

  5. جمِّع الألواح الجانبية. (اختياري: صنفرة حواف الحواجز للحصول على ملاءمة أفضل)

    تجميع اللوحات الجانبية وربطها بالبراغي

    الشكل 8. اللوحات الجانبية مجمّعة ومثبّتة بمسامير

  6. ثبِّت حواجز الضوء عن طريق الضغط على الدبوس في الفتحة الصغيرة على اللسان المستطيل الذي يمتد عبر الفتحة في اللوحات الجانبية كما هو موضّح في الشكل 9.

    تم إدراج رقم التعريف الشخصي في علامة تبويب حامل مصباح LED

    الشكل 9. صورة مقرّبة للدبوس المُدخَل في لسان تثبيت مصباح LED على الجهة الخارجية من العلبة

  7. لفّ شرائط الإضاءة حول الحواجز مرتين على الجانب المواجه للأسفل. استخدِم أربطة بلاستيكية لتثبيت الشريط، ثم اربط الأطراف معًا. (اختياري: استخدِم الشريط اللاصق على الجزء الخلفي من شريط إضاءة LED بالإضافة إلى أربطة السحّاب لتسهيل عملية اللف).

    شريط إضاءة LED ملفوف حول الحواجز

    الشكل 10. شريط إضاءة LED ملفوف حول الحواجز باستخدام أربطة بلاستيكية

    أربطة بلاستيكية لتثبيت شرائط مصابيح LED

    الشكل 11. أربطة بلاستيكية لتثبيت أشرطة مصابيح LED

  8. اقطع أطراف أحزمة الربط البلاستيكية كما هو موضّح في الشكلين 12 و13.

    Led lights around baffles exiting

    الشكل 12: مصابيح LED ملفوفة حول الحواجز مرتين وتخرج من الفتحة الجانبية

    ربطات بسحّاب متجهة للأعلى

    الشكل 13. أربطة بلاستيكية تظهر على الجانب المواجه للأعلى (شرائط LED على الجانب الآخر)

الخطوة 3: تجميع حوامل الأجهزة اللوحية والهواتف

لتجميع حاملات الأجهزة اللوحية والهواتف، اتّبِع الخطوات التالية:

  1. راجِع الرسم الميكانيكي لحامل الجهاز اللوحي.

    رسم ميكانيكي لحامل جهاز لوحي

    الشكل 14. رسم ميكانيكي لحامل جهاز لوحي

  2. اجمع الأجزاء كما هو موضّح في الشكل 15.

    قطع تثبيت الأجهزة اللوحية والهواتف

    الشكل 15. حوامل الأجهزة اللوحية والهواتف مع براغي ومكابس وأغطية من الفينيل وصواميل

  3. اقطع أطراف المطاط بشكل قصير بما يكفي لعدم التأثير في عمل المكبس (النصف تقريبًا)، ثم ادفعها على أطراف المكابس. يضمن طول غطاء الفينيل الأقصر إمكانية سحب آلية المكبس وقفلها.

    المكبس مع غطاء معدَّل

    الشكل 16. مكابس مزوّدة بأغطية قابلة للتعديل

  4. اربط المكبسين على حوامل التثبيت.

    حوامل الأجهزة اللوحية والهواتف المزودة بمكبس

    الشكل 17. حوامل الأجهزة اللوحية والهواتف المزودة بمكبس

الخطوة 4: التجميع النهائي

لتجميع صندوق نظام النقل الذكي (ITS) ذي مجال الرؤية الواسع (WFOV)، اتّبِع الخطوات التالية:

  1. اجمعوا ألواح الفتحة الأمامية واستخدموا براغي 4-40 لتثبيت اللوح الأصغر الذي يحتوي على المربع فوق اللوح الأكبر كما هو موضّح في الشكل 18.

    من لوحة فتحة العدسة ولوحة حامل الهاتف

    الشكل 18. لوحة فتحة العدسة الأمامية ولوحة حامل الهاتف

    لوحة الفتحة الأمامية المجمّعة

    الشكل 19. لوحة فتحة العدسة الأمامية ولوحة حامل الهاتف مثبتتان معًا ببراغي 4-40

  2. ألصِق اللوحتَين الأمامية والخلفية بالصندوق.

    صندوق WFoV مع جوانب مثبّتة ببراغي

    الشكل 20. صندوق WFoV مع جوانب مثبّتة ببراغي ولوحتَين أمامية وخلفية مثبّتتَين بشريط لاصق

  3. استخدِم مثقابًا كهربائيًا لإنشاء ثقوب إرشادية استنادًا إلى الثقوب الحالية. تأكَّد من أنّ فتحات التثبيت التجريبية كبيرة بما يكفي لبرغي 4-40 حتى لا ينكسر بلاستيك ABS عند إدخال البراغي.

    ثقوب دليلة

    الشكل 21. حفر ثقوب دليلية للبراغي 4-40

  4. اربط جميع اللوحات معًا باستخدام براغي ذاتية التثبيت مقاس 4-40.

    مسامير 4-40 للتجميع

    الشكل 22. مسامير 4-40 للتجميع

  5. اجمع أجزاء المقبض الموضّحة في الشكل 23.

    أجزاء المقبض

    الشكل 23. أجزاء المقبض

  6. ركِّب المقابض كما هو موضّح في الشكل 24.

    مقبض مجمَّع

    الشكل 24. مقبض مجمَّع

  7. تأكَّد من أنّ محوّل الطاقة هو 12 فولت و5 أمبير وأنّه يتضمّن شهادة معتمدة من UL. لن يعمل أي جهاز بجهد أقل من 12 فولت. قد يؤثر أي تيار أقل من 5 أمبير في مستوى سطوع الأضواء.

    محوّل طاقة بقدرة 12 فولت و5 أمبير

    الشكل 25. محوّل طاقة بقدرة 12 فولت و5 أمبير مع شهادة مُدرَجة في قائمة UL

  8. باستخدام مقياس رقمي للوكس، اختبِر مستوى اللوكس لأضواء LED للتأكّد من أنّها في المستوى المناسب.

    ضَع مقياس الإضاءة على جانب الجهاز اللوحي واضبطه على 2000 لوكس لقياس الإضاءة. يجب أن تتراوح شدة الإضاءة بين 100 و300 وحدة لوكس. أي قيمة أقل بكثير من ذلك ستكون معتمة جدًا بالنسبة إلى الاختبارات وقد تؤدي إلى فشلها.

    في هذا المثال، يتم استخدام مقياس الإضاءة YF-1065 من Contempo Views.

    YF-1065 by Contempo Views

    الشكل 26. YF-1065 by Contempo Views

    مقياس اللوكس

    الشكل 27. مقياس لوكس يقيس الضوء من الجانب باستخدام حامل الجهاز اللوحي

  9. اتّبِع الخطوة المناسبة استنادًا إلى قيمة اللوكس التي تم قياسها:

    • إذا كان مستوى الإضاءة مناسبًا، اربط اللوحتَين الأمامية والخلفية بالبراغي.
    • إذا كان مستوى الإضاءة غير صحيح، تأكَّد من صحة رقم جزء LED ومصدر الطاقة.
  10. ثبِّت حامل الهاتف على لوحة الفتحة وحامل الجهاز اللوحي على الجانب المقابل باستخدام البراغي والصواميل.

    حامل الجهاز اللوحي

    الشكل 28. لقطة مقرّبة لحامل الجهاز اللوحي

    مربّع WFoV المجمّع

    الشكل 29. صندوق مجال الرؤية الواسع بعد تجميعه: المنظر الخلفي (على اليمين) والمنظر الأمامي (على اليسار)

  11. أدخِل فتحة لوحة التمساح بحجم 10×10 سم لتناسب فتحة كاميرا الجهاز قيد الاختبار.

    فتحة لوحة Gator

    الشكل 30. ITS-in-a-box مع فتحة لوحة التمساح المثبَّتة

  12. ثبِّت الهاتف عن طريق محاذاة الكاميرا مع فتحة العدسة. تحقَّق من المحاذاة من خلال فتح الجهاز اللوحي.

    علبة تحتوي على هاتف واحد مثبَّت

    الشكل 31. نظام ITS-in-a-box مع تثبيت هاتف واحد

  13. قُص فتحات للكاميرات. يمكنك قطع فتحة واحدة (لاختبار هاتف واحد) أو فتحتين (لاختبار هاتفين). يتم عرض فتحات العدسة للكاميرات الأمامية والخلفية في هاتفَي Pixel وPixel XL في الشكل 32. تتميّز الكاميرا الأمامية بفتحة عدسة دائرية لأنّه لا يتوفّر فيها فلاش أو ليزر، بينما تتميّز الكاميرا الخلفية بفتحة عدسة مستطيلة تتيح تشغيل الفلاش والليزر بدون حجب.

    فتحات الكاميرا الأمامية والخلفية

    الشكل 32. أمثلة على فتحات العدسة للكاميرات الأمامية والخلفية

    الصورة

    الشكل 33. نظام ITS-in-a-box مع تثبيت هاتفَين

    بدلاً من ذلك، يمكنك أيضًا قص فتحات من الورق المقوّى ودهنها باللون الأسود باستخدام أقلام التحديد أو الطلاء بالرذاذ أو الأكريليك كما هو موضّح في الشكل 34.

    الصورة

    الشكل 34. عينات لفتحات الكاميرا الأمامية والخلفية المصنوعة من الورق المقوّى

أمور يجب الانتباه إليها

في ما يلي أمثلة على أخطاء التصنيع الشائعة التي يمكن أن تؤدي إلى عدم استقرار الاختبارات.

  • اللوحة الخلفية التي تم ثقبها لتركيب الجهاز اللوحي يؤدي ذلك إلى تعذُّر اجتياز اختبار find_circle بسبب الدوائر الإضافية التي تم إنشاؤها بواسطة فتحات البراغي.

    لوحة خلفية بها ثقوب

    الشكل 35. لوحة خلفية مثقوبة

  • المسامير الخشبية غير متوفّرة. ويؤدي ذلك إلى انزلاق حواجز الضوء أثناء الشحن.

    Missing dowel

    الشكل 36. مسمار وتد مفقود على حاجز الضوء

  • مزوّد طاقة غير مدرَج في قائمة UL يضمن استخدام مصدر طاقة مدرَج في قائمة UL استيفاء المواصفات المحدّدة. هذا الإجراء مهم لتشغيل الإضاءة بأمان.

    مصدر طاقة معتمد من UL

    الشكل 37. مثال على مصدر طاقة مُدرَج في قائمة UL

  • انزلاق البراغي على حامل الجهاز اللوحي أو الهاتف الذي لا يمكنه تحمّل وزن الجهاز اللوحي أو الهاتف ويحدث ذلك عادةً بسبب تلف الأسنان، ويشير إلى ضرورة إعادة ربط البرغي.

    ثقب ذو أسنان تالفة

    الشكل 38. ثقب ذو أسنان تالفة