الحصول على صندوق مجال الرؤية العادي (RFoV)

يتكوّن نظام ITS-in-a-box العادي لمجال الرؤية (RFoV) (الإصدار 1a) من صندوق بلاستيكي مقطوع بالليزر من رسومات التصميم بمساعدة الكمبيوتر (CAD) وجهاز لوحي للرسم البياني وجهاز قيد الاختبار (DUT). تم تصميم RFoV ITS-in-a-box لاختبار الأجهزة التي تقل زاوية مجال رؤيتها عن 90 درجة (RFoV). يمكنك شراء ITS-in-a-box أو إنشاء نظامك الخاص.

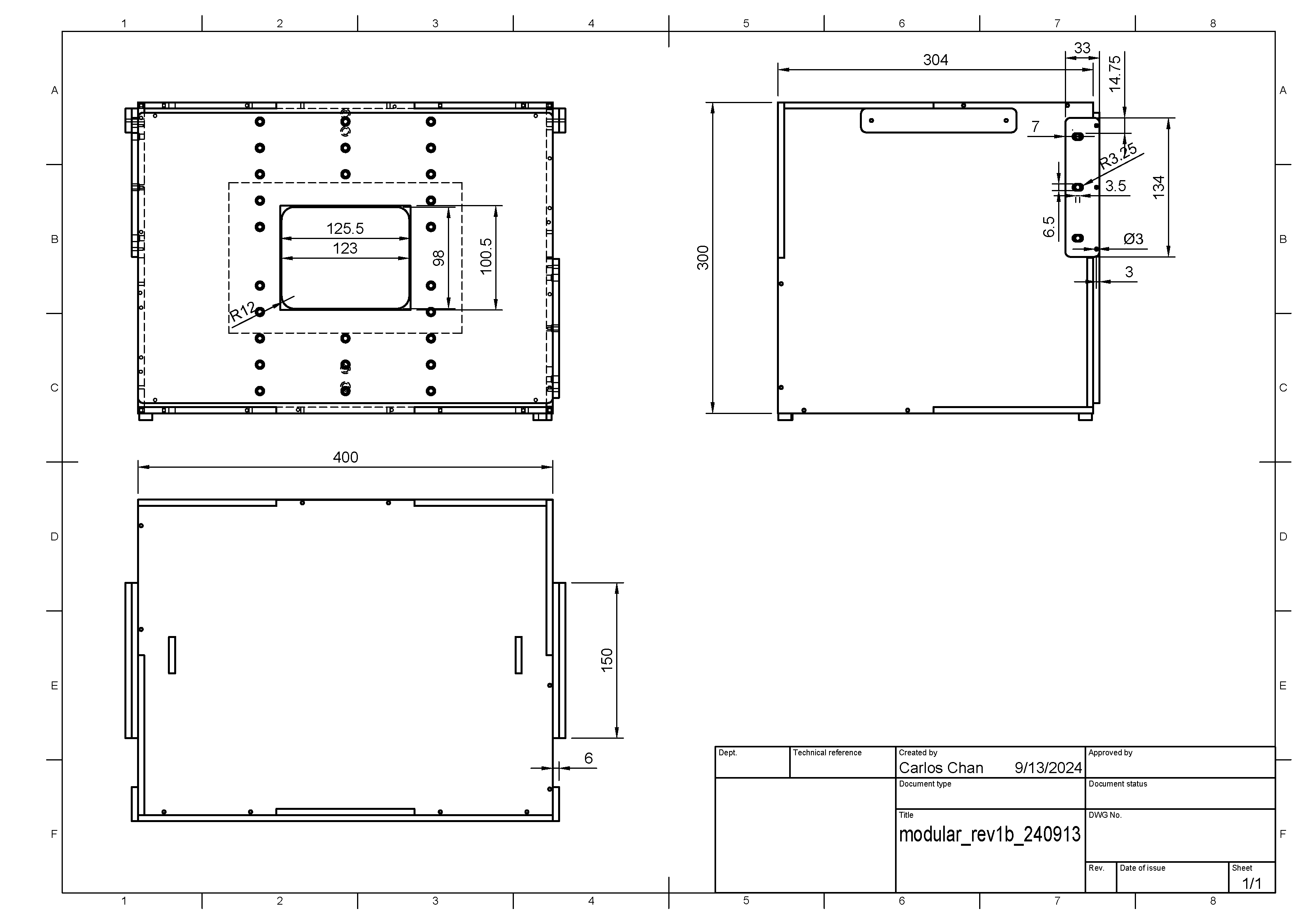
يتيح الإصدار rev1b من RFOV ITS-in-a-box استخدام مكوّنات نمطية ويتوافق مع حامل تمديد الكاميرا.

Rev1b

الشكل 1. Regular field-of-view (RFoV) ITS box Rev1b

سجلّ النُسخ السابقة

يوضّح الجدول التالي سجلّ مراجعة مربّع مجال الرؤية العادي ويتضمّن روابط تنزيل لكل إصدار من ملفات الإنتاج.

التاريخ المراجعة تنزيل ملف الإنتاج سجلّ التغيير
سبتمبر 2024 1b ملفات الإصدار 1b
  • تم اعتماد نظام معياري (يضيف آلية تركيب للإضافات المعيارية).
مايو 2019 1a ملفات الإنتاج من الإصدار 1a
  • تم تغيير المادة من Delrin إلى ABS.
  • تم تعديل تصميم حامل الإضاءة ليكون أكثر مرونة ويتوافق مع أحجام مختلفة من شرائط LED.
  • توحيد أساليب البناء
  • تم تبسيط تصميم حامل الجهاز اللوحي وجعله أكثر متانة.
  • تمت زيادة عمق حامل الهاتف لاستيعاب الهواتف الأكثر سمكًا.
  • تمت زيادة خيارات التثبيت على اللوحة الأمامية لتوفير حامل للهواتف القابلة للطي والهواتف المتينة.

شراء RFoV ITS-in-a-box

ننصحك بشراء RFoV ITS-in-a-box (الإصدار 1a) من أحد المورّدين المؤهّلين التاليين.

  • شركة Byte Bridge Inc.
    الولايات المتحدة: 1502 Crocker Ave, Hayward, CA 94544-7037
    الصين: 22F #06-08, Hongwell International Plaza Tower A, 1600 West Zhongshan Road, Xuhui, Shanghai, 200235
    www.bytebt.com
    androidpartner@bytebt.com
    الولايات المتحدة: +1-510-373-8899
    الصين: +86-400-8866-490

  • JFT CO LTD 捷富通科技有限公司 (المعروفة سابقًا باسم MYWAY DESIGN)
    No. 40, Lane 22, Heai Road, Wujing Town, Minhang District, Shanghai, China
    4F., No. 163, Fu-Ying Road, XinZhuang District, New Taipei City 242, Taiwan
    www.jftcoltd.com
    service@jfttec.com or its.sales@jfttec.com
    China:+86-021-64909136
    Taiwan: 886-2-29089060

فيديو تعليمي

هذا فيديو تعليمي حول كيفية إعداد RFoV ITS-in-a-box.

إنشاء RFoV ITS-in-a-box

بدلاً من شراء نظام ITS-in-a-box ذي مجال الرؤية المحدود (RFoV)، يمكنك إنشاء نظامك الخاص. يقدّم هذا القسم تعليمات مفصّلة حول عملية التجميع.

الرسومات الميكانيكية

يتألف نظام ITS-in-a-box من جهاز قيد الاختبار وجهاز لوحي يعرض مخططًا ونظام إضاءة داخلي وصندوق بلاستيكي تم قطعه بالليزر من رسومات التصميم بمساعدة الكمبيوتر (CAD) (كما هو موضّح في الشكل 1).

للبدء، نزِّل أحدث ملف إنتاج.

الرسم الميكانيكي لنظام النقل الذكي المتكامل

الشكل 2. رسم ميكانيكي لنظام النقل الذكي المتكامل

اشترِ الأجهزة من قائمة المواد (BOM). قُص قطع البلاستيك والفينيل.

الأدوات المطلوبة

توفُّر الأدوات التالية:

  • مفك براغي برأس Torx
  • مِثقاب كهربائي
  • غراء ABS
  • زرديات مدبّبة
  • سكين X-ACTO
  • قصّاصة أسلاك أو مقصّ (اختياري)

الخطوة 1: وضع الملصق المصنوع من الفينيل ولصق الأرجل

ضَعوا الفينيل الملوّن على الجانب الأملس من مادة أكريلونيتريل بوتادين ستايرين (ABS) واقطعوا الفتحات اللازمة كما هو موضّح في الشكلين 3 و4. ضَع ملصق الفينيل الأبيض الذي يحتوي على فتحة مستطيلة كبيرة على جانب العلبة المخصّص للجهاز اللوحي، وملصق الفينيل الأسود الذي يحتوي على فتحة دائرية على جانب العلبة المخصّص للجهاز الجوّال. ضَع طبقة من الفينيل الرمادي على الألواح الجانبية كما هو موضح في الشكل 4، ثم الصِق الأرجل في الزوايا الأربع للوحة السفلية كما هو موضح في الشكل 5. لمزيد من المعلومات، يُرجى الاطّلاع على wikiHow.

فينيل على اللوحتَين الأمامية والخلفية

الشكل 3. أسطوانة فونوغرافية سوداء على اللوحة الأمامية (يسار) وأسطوانة فونوغرافية بيضاء على اللوحة الخلفية (يمين)

اللوحات الجانبية

الشكل 4. فينيل رمادي على اللوحات الجانبية

اللوحة السفلية

الشكل 5. أرجل في الزوايا الأربع للوحة السفلية

الخطوة 2: الإضاءة

لتجميع مكوّن الإضاءة في نظام النقل الذكي المتكامل، اتّبِع الخطوات التالية:

  1. اجمع أجهزة الإضاءة كما هو موضّح في الشكل 6.

    قطع تجميع الإضاءة

    الشكل 6. قطع تجميع الإضاءة

    تتضمّن الأجهزة قضبان إضاءة LED، وحواجز إضاءة بلاستيكية، وقواعد إضاءة بلاستيكية، ومشابك إضاءة بلاستيكية أو معدنية مضمّنة في مجموعة إضاءة LED، وأربعة براغي 6-32 مع صواميل ذات رأس على شكل بلوط.

  2. ثبِّت مشابك الإضاءة على الحواجز البلاستيكية كما هو موضّح في الشكل 7. ثبِّت المشابك باستخدام صواميل البلوط على الجانب الآخر من الحواجز.

    حواجز الضوء

    الشكل 7. فواصل بلاستيكية مع مشابك إضاءة

  3. لتجميع المصابيح، ثبِّت الحواجز البلاستيكية في الجزء الخلفي من قضبان مصابيح LED باستخدام مشابك المصابيح.

    خطوط مضيئة

    الشكل 8. أشرطة إضاءة مع توجيه المصابيح إلى الأسفل وتثبيتها ببراغي عبر المشابك

عند تجميع جزء الإضاءة، يجب أن تكون قضبان مصابيح LED متجهة إلى الأسفل، وأن تغطي الحواجز البلاستيكية السطح اللامع العاكس على الجزء الخلفي من قضيب مصباح LED.

الخطوة 3: حوامل الهاتف

لتجميع حوامل الهاتف، اتّبِع الخطوات التالية:

  1. اجمع العناصر المطلوبة كما هو موضّح في الشكل 9.

    عناصر حامل الهاتف

    الشكل 9. عناصر حامل الهاتف

    تتضمّن الأجهزة قطعتَين معدنيتَين لتثبيت الهاتف، وقطعتَين من المطاط، وقطعتَين من البلاستيك، وأربعة براغي ذات رأس مسطّح 8-32، والصواميل المقابلة.

  2. اقطع أطراف المطاط بشكل قصير بما يكفي لئلا تعيق عمل المكبس (تقريبًا إلى النصف)، ثم ضع أطراف المطاط لتغطية أطراف المكابس.

    المكابس الغاطسة

    الشكل 10. أدوات تسليك المجاري ذات الرؤوس المطاطية

  3. ركِّب حوامل الهاتف باستخدام براغي ذات رأس مسطّح لتثبيت آليات المكبس في الحوامل المعدنية. تأكَّد من ربط البراغي بالصواميل المناسبة.

    مثبّتات الهواتف المجمّعة

    الشكل 11. مثبّتات الهواتف المجمّعة

الخطوة 4: لوحة الفتحة

لتجميع لوحة الفتحة الأمامية، اتّبِع الخطوات التالية:

  1. اجمع أجزاء لوحة فتحة العدسة الأمامية الموضّحة في الشكل 12.

    أجزاء لوحة الفتحة الأمامية

    الشكل 12: أجزاء مجموعة لوحة الفتحة الأمامية

    تتضمّن الأجهزة حاملات الهاتف المجمّعة ولوحة حامل الهاتف وأربعة براغي نايلون قصيرة وأربع صواميل نايلون (مطلوبة لمنع البراغي من البروز من خلال الجزء الخلفي من اللوحة البلاستيكية).

  2. باستخدام البراغي والصواميل، ثبِّت حوامل الهواتف المجمَّعة على لوحة حامل الهاتف. تأكَّد من أنّ حوامل الهاتف في الوضع الصحيح كما هو موضّح في الشكل 13.

    لوحة الفتحة الأمامية المجمّعة

    الشكل 13. لوحة الفتحة الأمامية المجمّعة

الخطوة 5: حامل الجهاز اللوحي

لتجميع حامل الطاولة، اتّبِع الخطوات التالية:

  1. اجمع أدوات تجميع حامل الجهاز اللوحي الموضّحة في الشكل 14.

    قطع غيار حامل الأجهزة اللوحية

    الشكل 14. قطع غيار لتجميع حامل الأجهزة اللوحية

    تتضمّن الأجهزة اللوحة الخلفية وحامل الجهاز اللوحي ومكبسًا واحدًا وطرفًا مطاطيًا واحدًا ومسمارين برأس مسطّح 8-32 ومسمارين قصيرين من النايلون والصواميل المقابلة.

  2. ركِّب حامل الجهاز اللوحي باستخدام براغي ذات رأس مسطّح لتثبيت آليات المكبس بالحامل المعدني. تأكَّد من ربط البراغي بالصواميل المناسبة.

  3. باستخدام البراغي والصواميل، ثبِّت حامل الجهاز اللوحي المجمَّع على اللوحة الخلفية. تأكَّد من أنّ حوامل الهاتف في الوضع الصحيح كما هو موضّح في الشكل 15.

    حامل الجهاز اللوحي المُجمَّع

    الشكل 15. حامل الجهاز اللوحي المُجمَّع

الخطوة 6: تثبيت المصابيح

لتثبيت المصابيح، اتّبِع الخطوات التالية:

  1. ثبِّت حواجز الضوء على اللوحتَين العلوية والسفلية كما هو موضّح في الشكل 16.

    تم تركيب حواجز الضوء

    الشكل 16. حواجز إضاءة مثبّتة على اللوحتَين العلوية والسفلية

  2. ثبِّت حواجز الضوء عن طريق الضغط على الدبوس في الفتحة الصغيرة الموجودة على اللسان المستطيل الذي يمتد عبر الفتحة في اللوحة العلوية والسفلية كما هو موضح في الشكل 17.

    دبوس تم إدراجه

    الشكل 17. صورة مقرّبة للدبوس المُدخَل في علامة تثبيت مصباح LED على الجهة الخارجية من العلبة

    لتثبيت الدبابيس، اضغط عليها برفق إلى أن تشعر ببعض الضغط على البلاستيك عند تثبيتها في مكانها.

    الزرديات

    الشكل 18. الزرّادات المستخدَمة لتثبيت الدبوس

  3. ركِّب اللوحتَين الأمامية والجانبية في الاتجاه الصحيح كما هو موضّح في الشكل 19، ثم اربطهما معًا من الخارج.

    اتجاه موضع الإضاءة

    الشكل 19. اتجاه موضع الإضاءة

  4. وصِّل سلك الطاقة بقضيب ضوء الطاقة كما هو موضّح في الشكل 20.

    سلك الطاقة الخاص بالإضاءة

    الشكل 20. سلك الطاقة الخاص بالإضاءة

    أدخِل سلك الطاقة عبر الفتحة الموجودة في اللوحة اليسرى. يحتوي سلك الطاقة على موصلات مختلفة في كل طرف: يتم توصيل الموصل الأضيق بشريط إضاءة LED، ويتم توصيل الموصل الأكبر بمحوّل الطاقة.

    سلك الطاقة

    الشكل 21. سلك الطاقة يخرج من جهاز الاختبار من الجانب الأيسر

  5. وصِّل الأضواء العلوية بالأضواء السفلية وثبِّت الكابل على اللوحة اليسرى.

    سلك المصباح

    الشكل 22. سلك إضاءة مثبّت على اللوحة اليسرى

الخطوة 7: تجميع اللوحات الجانبية وحامل الجهاز اللوحي والمقابض

لتجميع اللوحات الجانبية وحامل الجهاز اللوحي والمقابض الخاصة بحزمة ITS-in-a-box باستخدام البراغي، اتّبِع الخطوات التالية:

  1. جمِّع جميع جوانب اللوحات وثبِّتها معًا باستخدام الشريط اللاصق كما هو موضّح في الشكل 23.

    صندوق مُحكَم الإغلاق للتجميع

    الشكل 23. ITS-in-a-box taped together for assembly

  2. استخدِم مثقابًا كهربائيًا لإنشاء ثقوب إرشادية استنادًا إلى الثقوب الحالية. تأكَّد من أنّ فتحات التثبيت التجريبية كبيرة بما يكفي لبرغي 4-40 حتى لا ينكسر بلاستيك ABS عند إدخال البراغي.

    حفر الثقوب

    الشكل 24. حفر ثقوب دليلية للبراغي 4-40

  3. اربط جميع اللوحات معًا باستخدام براغي ذاتية التثبيت مقاس 4-40.

    مِثقاب كهربائي

    الشكل 25. براغي 4-40 لتجميع اللوحات

  4. اجمع أجزاء المقبض الموضّحة في الشكل 26.

    أجزاء المقبض

    الشكل 26. أجزاء المقبض

    تتضمّن الأجهزة أربع قطع بلاستيكية مستطيلة الشكل وأربعة براغي 6-32.

  5. ركِّب المقابض كما هو موضّح في الشكل 27.

    مقبض مجمَّع

    الشكل 27. مقبض مجمَّع

الخطوة 8: التجميع النهائي والإعداد

لإجراء عملية التجميع النهائية لنظام النقل الذكي المتكامل، اتّبِع الخطوات التالية:

  1. ثبِّت حامل الجهاز اللوحي على اللوحة الخلفية واضبط الارتفاع وفقًا لحجم الجهاز اللوحي.

    حامل الجهاز اللوحي على الجهة الخلفية من العلبة

    الشكل 28. الكمبيوتر اللوحي في حامل الكمبيوتر اللوحي على الجزء الخلفي من العلبة

  2. ثبِّت لوحة فتحة العدسة المربّعة بدون حوامل الهاتف في مقدّمة الصندوق باستخدام براغي 4-40 كما هو موضّح في الشكل 29.

    اللوحة الأمامية المجمّعة

    الشكل 29. لوحة الهاتف الأمامية المجمّعة

  3. أدخِل فتحة لوحة "غيتور" بحجم 10×10 سم لتناسب فتحة كاميرا الجهاز قيد الاختبار.

    فتحة لوحة Gator

    الشكل 30. ITS-in-a-box مع فتحة لوحة Gator مثبتة

  4. ثبِّت الهاتف عن طريق محاذاة الكاميرا مع فتحة العدسة. تحقَّق من المحاذاة من خلال فتحة الجهاز اللوحي.

    علبة تحتوي على هاتف واحد

    الشكل 31. نظام ITS-in-a-box مع تثبيت هاتف واحد

  5. قُص فتحات للكاميرات. يمكنك قطع فتحة واحدة (لاختبار هاتف واحد) أو فتحتين (لاختبار هاتفين). يتم عرض فتحات العدسة للكاميرات الأمامية والخلفية في هاتفَي Pixel وPixel XL في الشكل 31. تتميّز الكاميرا الأمامية بفتحة عدسة دائرية لأنّه لا يتوفّر فيها فلاش أو ليزر، بينما تتميّز الكاميرا الخلفية بفتحة عدسة مستطيلة تتيح تشغيل الفلاش والليزر بدون حجب.

    فتحات العدسة النموذجية

    الشكل 32. أمثلة على فتحات العدسة لكل من الكاميرا الأمامية والخلفية

    علبة تحتوي على هاتفَين

    بدلاً من ذلك، يمكنك أيضًا قص فتحات من الورق المقوّى وطلائها باللون الأسود باستخدام أقلام التحديد أو الطلاء بالرذاذ أو الأكريليك كما هو موضّح في الشكل 33.

    الشكل 33. عينات لفتحات الكاميرا الأمامية والخلفية المصنوعة من الورق المقوّى

    مثال على فتحة في صندوق من الورق المقوّى

  6. باستخدام جهاز اختبار رقمي لقياس شدة الإضاءة، اختبِر شدة إضاءة مصابيح LED. في هذا المثال، يتم استخدام YF-1065 من Contempo View.

    YF-1065 by Contempo Views

    الشكل 34. YF-1065 by Contempo Views

  7. ضَع مقياس الإضاءة على جانب الجهاز اللوحي واضبطه على 2000 لوكس لقياس الإضاءة. يجب أن يكون مستوى اللوكس بين 100 و300 لوكس. وأي مستوى أقل بكثير من ذلك سيكون معتمًا جدًا بالنسبة إلى الاختبار وقد يؤدي إلى تعذُّر إجرائه.

    مقياس اللوكس

    الشكل 35. مقياس لوكس يقيس الضوء من الخلف مع حامل للكمبيوتر اللوحي

  8. اتّبِع الخطوة المناسبة استنادًا إلى قيمة اللوكس التي تم قياسها:

    • إذا كان مستوى الإضاءة مناسبًا، اربط اللوحتَين الأمامية والخلفية بالبراغي.
    • إذا كان مستوى الإضاءة غير صحيح، تأكَّد من صحة رقم جزء LED ومصدر الطاقة.

أمور يجب الانتباه إليها

في ما يلي أمثلة على أخطاء التصنيع الشائعة التي يمكن أن تؤدي إلى عدم استقرار الاختبارات.

  • اللوحة الخلفية التي تم ثقبها لتركيب الجهاز اللوحي يؤدي ذلك إلى تعذُّر اجتياز اختبار find_circle بسبب الدوائر الإضافية التي تم إنشاؤها بواسطة فتحات البراغي.

    لوحة خلفية بها ثقوب

    الشكل 36. لوحة خلفية مثقوبة

  • المسامير الخشبية غير متوفّرة. ويؤدي ذلك إلى انزلاق حواجز الضوء أثناء الشحن.

    Missing dowel

    الشكل 37. مسمار وتد مفقود على حاجز الضوء

  • مزوّد طاقة غير مدرَج في قائمة UL يضمن استخدام مصدر طاقة معتمد من UL عدم تعرّضه للتلف.

    مصدر طاقة معتمد من UL

    الشكل 38. مثال على مصدر طاقة معتمد من UL