קנייה והגדרה של מערכת ריג מודולרית

מערכת המתקן המודולרית תומכת באוטומציה של בדיקות ITS ומורכבת מקופסת פלסטיק שנחתכת באמצעות בקרת מספרים ממוחשבת (CNC) משרטוטים של עיצוב בעזרת מחשב (CAD), מטאבלט עם תרשים וממכשיר שנבדק (DUT). מערכת ה-rig המודולרית מורכבת מ-rig בסיסי ומ-rig אופציונלי להארכת הטלה. המתקן המודולרי כולל תרשים מרחק של 22 ס"מ ויכול לבדוק מצלמות של מכשירים ניידים עם שדה ראייה של 60 עד 120 מעלות. המתקן הבסיסי יכול לבצע בדיקות כשהמכשיר מסובב ב-90 מעלות כשהמכשיר הנבדק נמצא למעלה (כמו שמוצג באיור 2).

המתקן להארכת הטלה תומך בבדיקת מצלמות עם מרחק מינימלי ארוך למיקוד (מצלמות טלפוטו). המתקן לטלסקופ מחובר בברגים למתקן הבסיס, ואפשר להתאים את האורך שלו לדרישות הבדיקה של המצלמה כשרוכשים אותו דרך ספקים שעומדים בדרישות. מערכת Camera ITS תומכת במרחקי תרשים של עד 100 ס"מ. יש שני סוגים של מערכות טלסקופיות: מערכת טלסקופית גמישה ומערכת טלסקופית באורך קבוע. ה-flexi-tele rig מאפשר לבדוק מרחקים שונים מהתרשים, בעוד שה-fixed-length rig מאפשר לבדוק רק מרחק אחד מהתרשים. הציוד לשידור גמיש יהיה זמין החל ממרץ 2026.

Modular Base
Rev1.2

איור 1. מערכת בסיס מודולרית.

Modular rev1.2
90deg

איור 2. מודל בסיסי מודולרי מסובב ב-90 מעלות.

Flexi-Tele
rig

איור 3. מערכות Flexi-Tele להארכת המזלג משני הספקים המאושרים שלנו.

היסטוריית גרסאות

בטבלה הבאה מתוארת היסטוריית הגרסאות של מערכת ה-Rig המודולרית, ומופיעים בה קישורי הורדה לכל גרסה של קובצי הייצור.

תאריך Revision הורדת קובץ הפקה יומן השינויים
ספטמבר 2024 ‫1.2 Modular base rig rev1.2
  • (ספטמבר 2024) כולל תיקונים של שגיאה בקובץ ייצור
  • (יולי 2024) גרסה ראשונה

רכישה של מערכת ריג מודולרית

מומלץ לרכוש את מערכת התושבת המודולרית, את תושבת הטלה האופציונלית ואת האביזרים מאחד מהספקים המוסמכים הבאים.

  • Byte Bridge Inc.
    ארה"ב: 1502 Crocker Ave, Hayward, CA 94544-7037
    סין: 22F #06-08, Hongwell International Plaza Tower A, 1600 West Zhongshan Road, Xuhui, Shanghai, 200235
    www.bytebt.com
    androidpartner@bytebt.com
    ארה"ב: ‎+1-510-373-8899
    סין: ‎+86-400-8866-490

  • JFT CO LTD 捷富通科技有限公司 (previously known as MYWAY DESIGN)
    China: No. 40, Lane 22, Heai Road, Wujing Town, Minhang District, Shanghai, China
    Taiwan: 4F., ‪No. 163, Fu-Ying Road, XinZhuang District, New Taipei City 242, Taiwan
    www.jftcoltd.com
    service@jfttec.com or its.sales@jfttec.com
    China:+86-021-64909136
    Taiwan: 886-2-29089060

שרטוטים מכניים

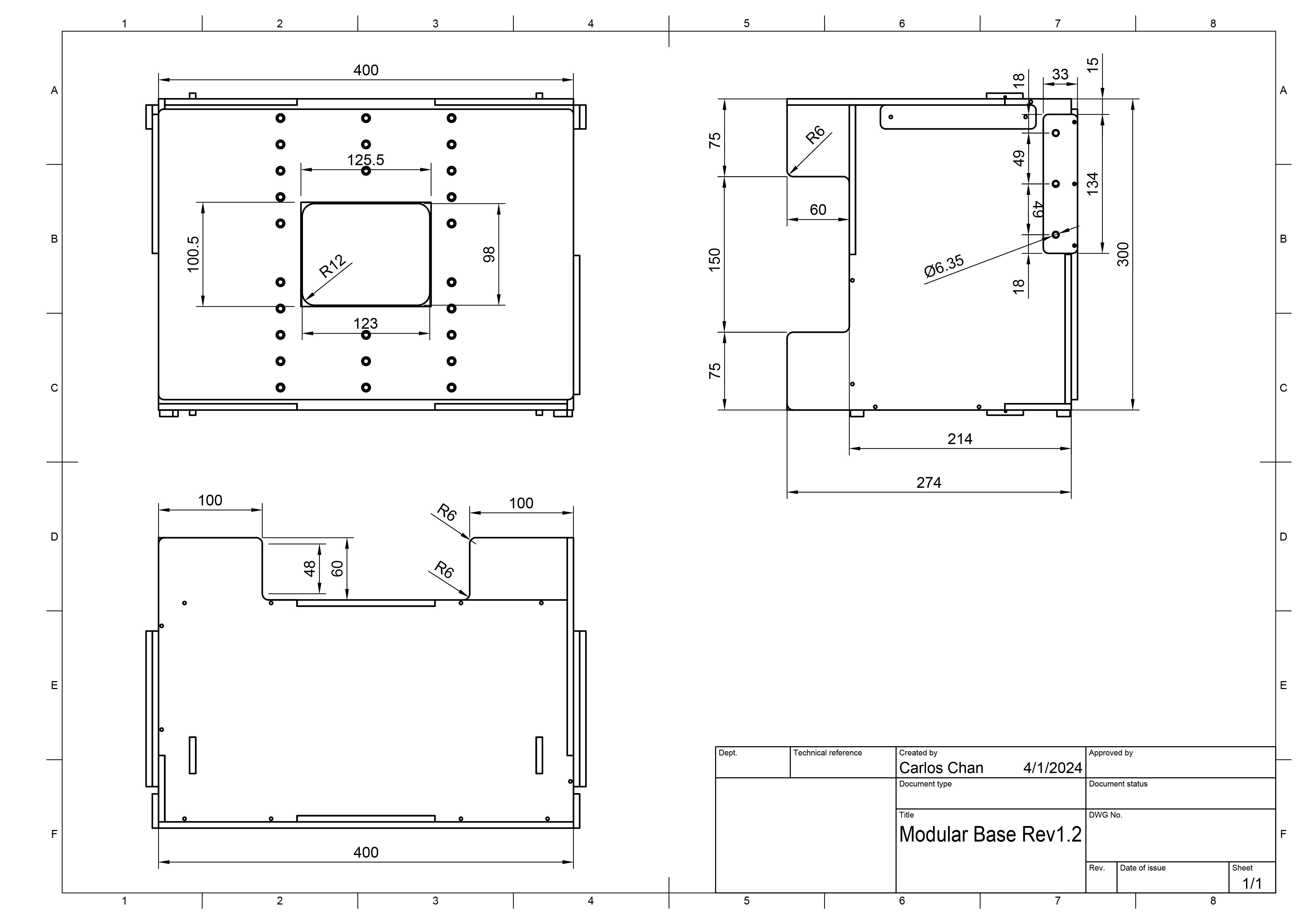
זוהי שרטוט מכני של בסיס מודולרי.

שרטוט CAD של Modular
Base

איור 4. שרטוט מכני של מתקן בסיסי מודולרי

הגדרת ריג בסיסי

כדי להגדיר מערכת מודולרית בסיסית:

  1. רוכשים מערכת ריג מודולרית מספק שעומד בדרישות.

  2. חשוב לוודא שיש לכם את כל הרכיבים שמופיעים בטבלה הבאה (הפריטים שמוצגים באיור 4).

    רכיב כמות
    מודול בסיס 1
    תושבת לטלפון 2
    תושבת לקיבוע טאבלט 1
    ספק כוח של 12V (רשום ב-UL, ‏ 1A מינימום) 1
    צמצם 1

    Modular Base Rev1.2
Items

    איור 5. רכיבים מודולריים של בסיס ה-rig.

  3. בהתאם להגדרה, מוודאים שיש לכם את האביזרים הנדרשים בטבלה הבאה (מוצגת באיור 5). אפשר לרכוש את האביזרים האלה מספק מוסמך.

    פריט כמות
    בקר תאורה (יכול לשלוט בעד 3 מערכות תאורה) 1
    ספק כוח של 5V לבקר התאורה 1
    כבל DC barrel שמחבר את התאורה למערכת בסיס מודולרית 1
    מתאם כבל DC (5.5 מ"מ x 2.1 מ"מ עד 3.5 מ"מ x 1.35 מ"מ) 1
    כבל USB A לכבל USB 1
    ערכת מכשיר מתקפל (אם ה-DUT הוא מכשיר מתקפל) 1

    פריטים אופציונליים מודולריים

    איור 6. פריטים אופציונליים לריג בסיסי מודולרי.

  4. כדי לוודא שאין דליפות אור, מבצעים אחת מהפעולות הבאות:

    1. מייצרים צמצם שמתאים למודול המצלמה של המכשיר הנבדק, ומוודאים שאין דליפות אור (כפי שמוצג באיור 6). אפשר לחתוך פתחים מלוחות הקצף שמסופקים או להגדיר אותם באמצעות ספק מוסמך. כדי להציג את הנתונים בצורה נכונה, מכשירי DUT עם מצלמה אחורית שפונה אל המתקן מסובבים ב-90° נגד כיוון השעון, ומכשירי DUT עם מצלמה קדמית שפונה אל המתקן מסובבים ב-90° עם כיוון השעון. מוודאים שהצמצמים מוגדרים בהתאם.

    מיקום של צמצם מודולרי
    חיתוך מודולרי של צמצם

    איור 7. ליצור פתחים כדי למנוע דליפת אור.

    1. כדאי להשתמש בווילון כהה כדי לכסות את המערכת ולמנוע דליפת אור. לא צריך צמצמים. (מוצג באיור 7).

    Modular Drapery

    איור 8. מניעת דליפת אור באמצעות וילון.

  5. מתקינים תושבת טלפון רגילה או תושבת טלפון מתקפלת על לוח ההרכבה הקדמי של הטלפון בגובה המתאים, באמצעות בורג ואום מניילון, כמו שמוצג באיור 8.

    מודולריות של הצמצם והתושבת
התקנה

    איור 9. התקנה של צמצם ותושבת לטלפון.

  6. מתקינים את תושבת הטאבלט על לוח ההרכבה של הטאבלט בגובה המתאים באמצעות בורג ואום מניילון.

  7. ממקמים את הטאבלט של המסך ומחברים את הטאבלט למארח כמו שמוצג באיור 9. מצמידים את הטאבלט באמצעות הוואקום.

    התקנה של טאבלט מודולרי

    איור 10. התקנה של טאבלט.

  8. כדי להקל על ההפעלה במסך, מגדירים את המכשיר הנבדק לפני שמחברים אותו למתקן.

  9. מרכיבים את ה-DUT ומתחברים למארח.

  10. מיישרים את ה-DUT כך שמרכז מודול המצלמה יהיה מיושר עם מרכז הטאבלט (או קרוב מאוד למרכז הטאבלט). כדי לשנות את הגובה, משחררים את הברגים של תושבת הטלפון ומחליקים את התושבת למעלה או למטה. אחרי שמיישרים את המכשיר, מקבעים אותו באמצעות בוכנת התושבת.

    התקנה של DUT מודולרי

    איור 11. התקנה של DUT.

  11. לגבי התאורה, מחברים את כבל התאורה מהבסיס לאחד מהחיבורים הבאים:

    1. ספק כוח של 12V

    חיבור מודולרי של 12V

    איור 12. הנורה מחוברת לאספקת חשמל של 12V.

    1. אמצעי בקרה של התאורה (יכול להיות שיידרש מתאם)

    חיבור של בקר מודולרי

    איור 13. מנורה שמחוברת לבקר תאורה.

אחרי שמסיימים את ההגדרה של מערכת הבסיס המודולרית, מגדירים את סביבת המארח והבדיקה (הגדרת CTS). לגבי הקובץ config.yml, משתמשים בהגדרה הבאה:

  • chart\_distance = 22
  • lighting\_ch = [connected controller channel], or leave as is if not using a lighting controller.

הגדרה של מערכת Flexi-Tele

אם רכשתם את בסיס המודול לפני מרץ 2026, יכול להיות שתצטרכו לבצע התאמה קלה כדי שהמערכת תפעל עם תוסף הטלסקופ הגמיש. השינוי הזה פותר את הבעיה של לוחית קדמית שחוסמת את שדה הראייה של מצלמת הטלסקופ של ה-DUT, ואפשר להשתמש בו גם עם מתקן הארכה טלסקופי באורך קבוע.

כדי להתאים את בסיס הציוד המודולרי:

  1. מסירים את ארבעת הברגים בחלק העליון של המתקן שמחזיקים את הלוח הקדמי, וגם את ארבעת הברגים בחלק התחתון.

    הסרת ברגים של Modular Retrofit

    איור 14. ברגים במתקן שמחזיק את הפלטה הקדמית.

  2. (אופציונלי) מבריגים או מדביקים את לוחית ההרכבה של הטלפון ללוחית הקדמית כך שהלוחיות יוסרו יחד.

    לוחות מודולריים לחיזוק ברגים

    איור 15. ברגים ללוחית לקיבוע הטלפון וללוחית הקדמית.

  3. (אופציונלי) אם למתקן יש כבל חשמל של התאורה שמחובר ללוח הקדמי מלמטה למעלה, מעבירים אותו לצד עם סרט בידוד או עם תושבות של אזיקונים.

    Modular Retrofit relocate
cable

    איור 16. כבל החשמל של האור מלמטה למעלה הועבר לצד.

  4. מחברים את מערכת התמיכה המודולרית למערכת התמיכה של זרוע הטלסקופ הגמישה.

סרטון הדגמה

סרטון הדגמה שמראה איך להגדיר את מערכת התוספים flexi-tele:

הגדרה של מערכת טלה באורך קבוע

כדי להגדיר את התוסף האופציונלי לשיחות טלפון, פועלים לפי השלבים הבאים.

  1. רוכשים את בסיס המודולרי ואת המערכת הטלסקופית עם ספק מוסמך. אפשר לבנות את ה-rig באמצעות קובצי הייצור, אבל לא מומלץ לעשות זאת כי צריך לדייק בחיתוך ובהרכבה כדי לוודא שאין בעיות בהתאמה של ה-rig של התוסף.

  2. מוודאים שיש לכם מערכת מודולרית בסיסית תקינה ומערכת טלסקופית להארכת הזרוע (כפי שמוצג באיור 13).

    Modular tele

    איור 17. מערכת מודולרית עם זרוע טלסקופית.

  3. מסירים את לוחית ההרכבה של הטלפון על ידי הסרת 6 ברגי ניילון ביד (3 בכל צד).

    הדגשה של בורג מודולרי
הסרת ברגים מודולרית לוחית קדמית מודולרית
מושבתת

    איור 18. הסרת 6 ברגי ניילון באזור המודגש ביד.

  4. מניחים את בסיס המכשיר ואת תוסף הטלה על המשטח שעליו מתבצעות הבדיקות. כדי למנוע עומס על נקודות ההרכבה, לא מומלץ להזיז את המערכת המורכבת.

  5. ממקמים את מתקן ההארכה כך ש-6 החריצים בלשונית של מתקן ההארכה יתאימו ל-6 החורים במתקן הבסיס.

    כרטיסייה של יישור מודולרי

    איור 19. יישור החריצים עם החורים.

  6. מחברים את התושבת המאריכה לתושבת הבסיס באמצעות 6 הברגים. במהלך התקנת הברגים, דוחפים בעדינות את שני המתקנים זה לזה כדי לוודא שאין רווחים שדרכם יכול לחדור אור (אפשר לבקש עזרה מעמית אם צריך). מהדקים את הברגים ביד.

    מודולריות של דחיפה
של שקפים

    איור 20. חיבור של מתקני בסיס ומתקני הארכה.

  7. מגדירים את הצמצם (או את הוילון), ומתקינים את מתקני הטלפון ואת המכשירים הנבדקים כמו שמתואר במאמר הגדרת מתקן בסיסי.

    כרטיסייה של יישור מודולרי

    איור 21. חיבור של תושבות לטלפון ושל DUT.

אחרי שמסיימים את ההגדרה של ערכת הכלים להרחבות, מגדירים את סביבת המארח והבדיקה (הגדרת CTS). לגבי הקובץ config.yml, משתמשים בהגדרה הבאה:

  • chart_distance = [המרחק הכולל מהמכשיר הנבדק לטאבלט]
  • lighting_ch = [connected control channel], או להשאיר את הערך כמו שהוא אם לא משתמשים בבקר תאורה.

הסרת התוסף rig

כדי להסיר את התוסף rig, פועלים לפי שלבי ההתקנה בסדר הפוך. כשמתקינים את לוח ההרכבה של הטאבלט, צריך לדחוף את הלוח אל בסיס המתקן כדי לוודא שאין רווחים שדרכם יכול לחדור אור (כמו שמוצג באיור 17). מהדקים את הברגים ביד.

מודולריות של דחיפה
של שקפים

איור 22. דחיפת לוחית הקיבוע של הטאבלט אל בסיס המכשיר.

שאלות נפוצות

למה הסצנה נחתכת בציוד טלסקופי?

מודולרי rig
crop

איור 23. סצנה שנחתכה על ידי לוח הטלפון בציוד הבסיסי.

זה קורה כששדה הראייה של עדשת הטלפוטו נחסם על ידי לוחית הטלפון בין בסיס המצלמה לבין תוסף הטלפוטו. לפני שממשיכים בבדיקה, חשוב להסיר את לוחית הטלפון באמצעות מברג.

לוחית טלפון מודולרית הוסרה

איור 24. הסרת לוח הטלפון מהמתקן הבסיסי.

למה התאורה נראית עמומה או למה מופיעה שגיאת אימות תאורה כשמפעילים את ITS?

השגיאה הזו מופעלת כשהתאורה במתקן הופכת עמומה יותר. זה יכול לקרות בגלל אספקת חשמל ופירוק של נוריות LED עקב גיל או שימוש, או בגלל אספקת חשמל פגומה. כדי לפתור את הבעיה, בצע את הצעדים הבאים:

  1. מוודאים שהתאורה פועלת כמו שצריך:

    • מחליפים את ספק הכוח (12 וולט, מינימום 2 אמפר, רשום ב-UL).
    • מחליפים את נורית ה-LED (אפשר לעיין ב-BOM או לפנות לספק לקבלת מידע נוסף).
  2. כדי לוודא שעוצמת האור של נורות ה-LED נמצאת ברמה המתאימה (100-300), צריך לבדוק את עוצמת האור באמצעות מד דיגיטלי. (בדוגמה הזו נעשה שימוש במד לוקס YF-1065 של Contempo Views). מניחים את מד האור בצד הטאבלט ומסובבים אותו ל-2,000 לוקס כדי למדוד את האור (כמו שמוצג באיור 21).

    YF-1065 by Contempo Views

    איור 25. YF-1065 by Contempo Views.

    מד לוקס

    איור 26. מד לוקס למדידת אור מהצד עם תושבת הטאבלט.

  3. בהתאם לערך הלוקס שנמדד, פועלים לפי השלב המתאים:

    • אם עוצמת האור נכונה, מבריגים את הלוחות הקדמי והאחורי למקומם.
    • אם עוצמת האור לא נכונה, צריך לבדוק שמספר החלק של ה-LED ושל ספק הכוח נכונים.

דברים שכדאי לשים לב אליהם

ריכזנו כאן כמה דוגמאות לשגיאות נפוצות בתהליך הייצור שעלולות לגרום לבדיקות להיות לא אמינות.

  • הפאנל האחורי עם חורים בטאבלט. כתוצאה מכך, הבדיקה find_circle נכשלת בגלל העיגולים הנוספים שנוצרו על ידי חורי הברגים.

    לוח אחורי עם חורים

    איור 27. לוח אחורי עם חורים.

  • חסרים פינים. כתוצאה מכך, מחיצות האור מחליקות החוצה במהלך המשלוח.

    חסר פין

    איור 28. חסר פין עץ במפזר האור.

  • ספק כוח שלא מופיע ברשימת UL. שימוש בספק כוח שמופיע ברשימת UL עומד במפרטים המסומנים. השלב הזה חשוב כדי להפעיל את התאורה בצורה בטוחה.

    ספק כוח בתקן UL

    איור 29. דוגמה לספק כוח שמופיע ברשימת UL.

  • הברגים מחליקים בתושבת של הטאבלט או הטלפון שלא יכולה לתמוך במשקל של הטאבלט או הטלפון. בדרך כלל זה קורה בגלל הברגות פגומות, וזה אומר שצריך להבריג מחדש את החור.

    חור עם הברגות פגומות

    איור 30. חור עם הברגות פגומות.