Le système de plate-forme modulaire prend en charge l'automatisation des tests ITS. Il se compose d'un boîtier en plastique découpé par commande numérique par ordinateur (CNC) à partir de dessins de conception assistée par ordinateur (CAO), d'une tablette graphique et d'un appareil testé (DUT). Le système de plate-forme modulaire se compose d'une plate-forme de base et d'une plate-forme de télé-extension facultative. La base modulaire a une distance de graphique de 22 cm et peut tester les caméras d'appareils mobiles avec un champ de vision de 60 à 120 degrés. Le banc de test de base peut effectuer des tests avec une rotation de 90 degrés et le DUT sur le dessus (comme illustré sur la figure 2).
Le support de téléobjectif permet de tester les caméras dont la distance focale minimale est longue (téléobjectifs). Le support de téléobjectif est boulonné sur le support de base. Sa longueur peut être personnalisée en fonction des exigences de test de votre caméra lorsque vous l'achetez auprès des fournisseurs qualifiés. Camera ITS accepte les distances de graphique jusqu'à 100 cm.
Figure 1 : Plate-forme de base modulaire.
Figure 2. Plate-forme de base modulaire pivotée de 90 degrés.
Historique des révisions
Le tableau suivant décrit l'historique des révisions du système de plate-forme modulaire et inclut des liens de téléchargement vers chaque version des fichiers de production.
| Date | Révision | Téléchargement des fichiers de production | Journal des modifications |
|---|---|---|---|
| Septembre 2024 | 1.2 | Plate-forme de base modulaire rev1.2 |
|
Acheter un système de plate-forme modulaire
Nous vous recommandons d'acheter le système de plate-forme modulaire, la plate-forme de télé-extension en option et les accessoires auprès de l'un des fournisseurs qualifiés suivants.
Byte Bridge Inc.
États-Unis : 1502 Crocker Ave, Hayward, CA 94544-7037
Chine : 22F #06-08, Hongwell International Plaza Tower A, 1600 West Zhongshan Road, Xuhui, Shanghai, 200235
www.bytebt.com
androidpartner@bytebt.com
États-Unis : +1-510-373-8899
Chine : +86-400-8866-490JFT CO LTD 捷富通科技有限公司 (anciennement MYWAY DESIGN)
Chine : No. 40, Lane 22, Heai Road, Wujing Town, Minhang District, Shanghai, Chine
Taïwan : 4F., N° 163, Fu-Ying Road, XinZhuang District, New Taipei City 242, Taïwan
www.jftcoltd.com
service@jfttec.com ou its.sales@jfttec.com
Chine : +86-021-64909136
Taïwan : 886-2-29089060
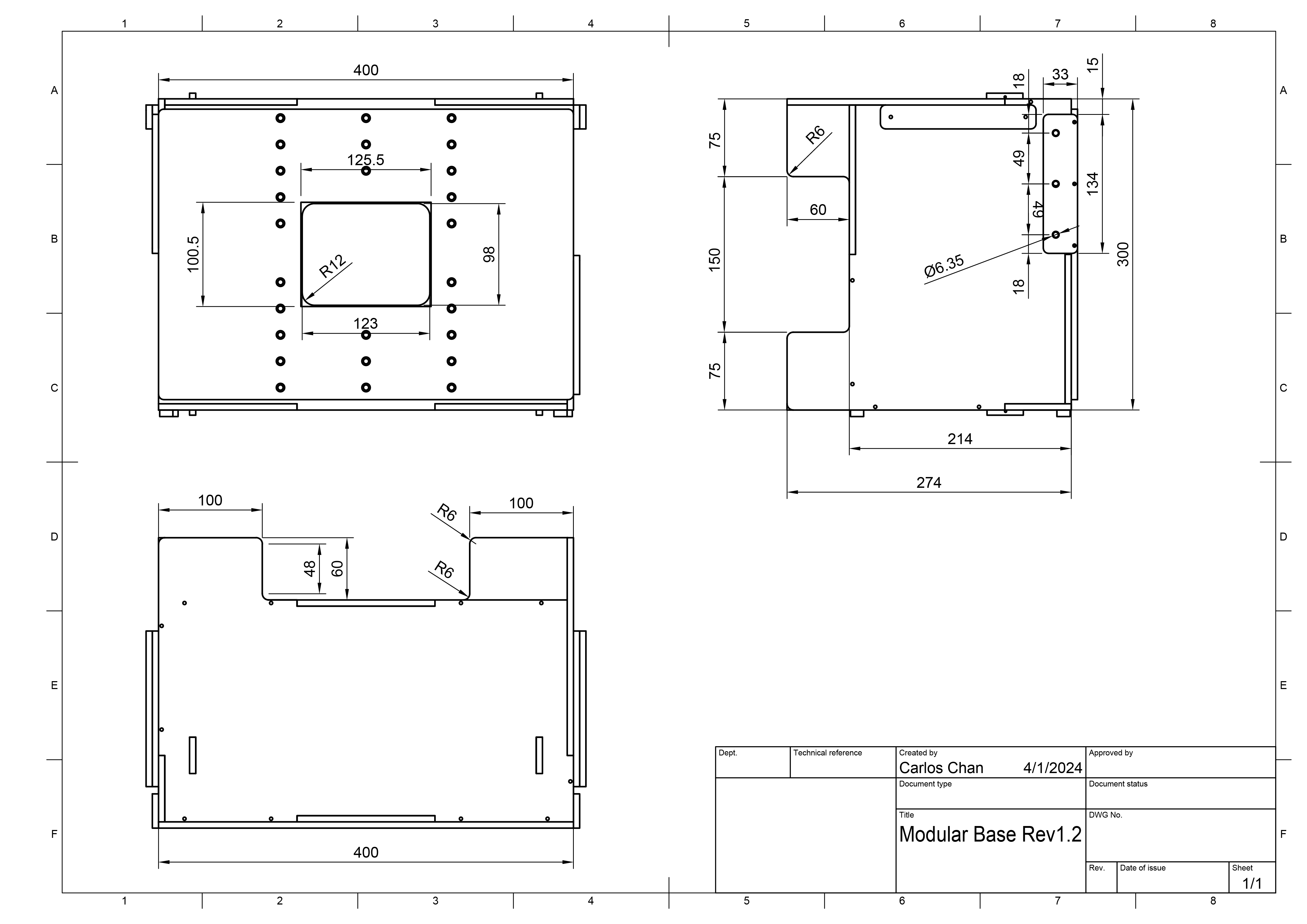
Dessins mécaniques
Voici un dessin mécanique du support modulaire.
Figure 3. Dessin technique d'un support modulaire
Configuration de base du système
Pour configurer un rig de base modulaire, procédez comme suit.
Achetez un système de plate-forme modulaire auprès d'un fournisseur qualifié.
Assurez-vous de disposer de tous les composants du tableau suivant (éléments illustrés à la figure 4).
Component Quantité Plate-forme de base modulaire 1 Support de téléphone 2 Support de montage pour tablette 1 Alimentation 12 V (certifiée UL, 1 A minimum) 1 Ouverture 1
Figure 4. Composants de base modulaires.
Selon votre configuration, assurez-vous de disposer des accessoires nécessaires dans le tableau suivant (illustré à la figure 5). Ces accessoires peuvent être achetés auprès d'un fournisseur agréé.
Élément Quantité Contrôleur d'éclairage (peut contrôler jusqu'à trois systèmes) 1 Alimentation 5 V pour le contrôleur d'éclairage 1 Câble coaxial CC reliant l'éclairage à la base modulaire 1 Adaptateur de câble cylindrique CC (5,5 mm x 2,1 mm vers 3,5 mm x 1,35 mm) 1 Câble USB-A vers câble USB 1 Kit pour appareil pliable (si l'appareil testé est un appareil pliable) 1
Figure 5. Éléments facultatifs pour le rig de base modulaire.
Assurez-vous qu'il n'y a pas de fuite de lumière en procédant de l'une des manières suivantes :
Fabriquez une ouverture adaptée au module de caméras de l'appareil à tester et assurez-vous qu'il n'y a pas de fuite de lumière (comme illustré sur la figure 6). Les ouvertures peuvent être découpées dans les panneaux de mousse fournis ou configurées par un fournisseur qualifié. Pour une orientation correcte des figures, les DUT dont la caméra arrière est orientée vers le banc de test sont pivotés de 90° dans le sens inverse des aiguilles d'une montre, et les DUT dont la caméra avant est orientée vers le banc de test sont pivotés de 90° dans le sens des aiguilles d'une montre. Assurez-vous que les ouvertures sont configurées en conséquence.
Figure 6. Fabriquez des ouvertures pour éviter les fuites de lumière.
Utilisez un drap sombre pour recouvrir le support afin d'éviter les fuites de lumière. Aucune ouverture n'est requise. (illustré à la Figure 7).
Figure 7. Empêcher la lumière de passer à l'aide d'un drap.
Installez un support de téléphone standard ou pliable sur le panneau de fixation avant du téléphone à une hauteur appropriée à l'aide d'un boulon et d'un écrou en nylon, comme illustré à la figure 8.
Figure 8. Installation de l'ouverture et du support du téléphone.
Installez le support de tablette sur le panneau de montage de la tablette à une hauteur appropriée à l'aide d'un boulon et d'un écrou en nylon.
Installez la tablette d'affichage et connectez-la à l'hôte, comme illustré à la figure 9. Fixez la tablette à l'aide d'un poussoir.
Figure 9. Installation de la tablette.
Pour faciliter l'utilisation à l'écran, configurez votre DUT avant de le monter.
Montez le DUT et connectez-vous à l'hôte.
Alignez le DUT de sorte que le centre du module de caméras soit aligné avec le centre de la tablette (ou très proche de celui-ci). Pour ajuster la hauteur, desserrez les boulons de fixation du téléphone et faites glisser le support vers le haut ou vers le bas. Une fois le DUT aligné, fixez-le avec le plongeur du support.
Figure 10. Installation du DUT.
Pour l'éclairage, branchez le câble d'éclairage du support de base à l'un des éléments suivants :
Alimentation 12 V
Figure 11 : Lumière connectée à une alimentation 12 V.
Contrôleur d'éclairage (un adaptateur peut être nécessaire)
Figure 12. Lumière connectée au contrôleur d'éclairage.
Une fois la configuration de la plate-forme de base modulaire terminée, configurez l'environnement hôte et de test (Configurer CTS).
Pour le fichier config.yml, utilisez la configuration suivante :
chart\_distance= 22lighting\_ch= [canal du contrôleur connecté], ou laissez tel quel si vous n'utilisez pas de contrôleur d'éclairage.
Configuration d'un système de téléobjectif
Suivez ces étapes pour configurer le support de téléobjectif en option.
Achetez le support de base modulaire et le support de téléobjectif auprès d'un fournisseur qualifié. Le support peut être construit à l'aide des fichiers de production, mais cela n'est pas recommandé, car la découpe et l'assemblage doivent être précis pour s'assurer que le support d'extension ne présente aucun problème d'ajustement.
Assurez-vous de disposer d'un rig de base modulaire fonctionnel et d'un rig de télé-extension (comme illustré à la figure 13).
Figure 13. Plate-forme de base modulaire avec extension télé.
Retirez le panneau de fixation du téléphone en retirant à la main les six boulons en nylon (trois de chaque côté).
Figure 14. Retirez à la main les six boulons en nylon situés dans la zone en surbrillance.
Placez le support de base et le support de l'extension du téléobjectif sur la surface où les tests sont effectués. Pour éviter de solliciter les points de fixation, nous vous déconseillons de déplacer le support une fois assemblé.
Placez le support d'extension de sorte que les six fentes de la languette du support d'extension soient alignées sur les six trous du support de base.
Figure 15. Alignez les fentes avec les trous.
Fixez le support d'extension au support de base en installant les six boulons. Lors de l'installation des vis, poussez délicatement les deux supports l'un contre l'autre pour vous assurer qu'il n'y a pas d'espace qui pourrait laisser passer la lumière (demandez l'aide d'un collègue si nécessaire). Serrez les boulons à la main.
Figure 16. Associer des plates-formes de base et d'extension.
Configurez l'ouverture (ou le rideau) et installez les supports de téléphone et les DUT comme décrit dans Configuration du banc d'essai de base.
Figure 17. Fixer les supports de téléphone et l'appareil à tester
Une fois la configuration de l'extension terminée, configurez l'environnement hôte et de test (Configurer CTS).
Pour le fichier config.yml, utilisez la configuration suivante :
chart_distance= [distance totale entre le DUT et la tablette]lighting_ch= [canal de contrôle connecté], ou laissez tel quel si vous n'utilisez pas de contrôleur d'éclairage.
Désinstaller le rig d'extension
Pour désinstaller le rig d'extension, suivez les étapes d'installation dans l'ordre inverse. Lorsque vous installez le panneau de fixation de la tablette, appuyez dessus contre le support de base pour vous assurer qu'il n'y a pas d'espace pour les fuites de lumière (comme indiqué sur la figure 17). Serrez les boulons à la main.
Figure 18. Pousser le panneau de fixation de la tablette contre le support de base.
Questions fréquentes
Pourquoi la scène est-elle recadrée dans un rig de télécinéma ?
Figure 19. Scène recadrée par la plaque du téléphone dans le support de base.
Cela se produit lorsque le champ de vision d'un téléobjectif est bloqué par la plaque du téléphone entre le support de base et l'extension du téléobjectif. Assurez-vous de retirer la plaque du téléphone à l'aide d'un tournevis avant de procéder aux tests.
Figure 20. Retirez la plaque du téléphone du support de base.
Pourquoi les lumières semblent-elles faibles ou pourquoi une erreur de validation de l'éclairage s'affiche-t-elle lors de l'exécution d'ITS ?
Cette erreur se déclenche lorsque l'éclairage du support devient plus faible. Cela peut être dû à une dégradation de l'alimentation et des LED en raison de l'âge ou de l'utilisation, ou à une alimentation défectueuse. Pour résoudre ce problème, procédez comme suit :
Assurez-vous que l'éclairage fonctionne correctement :
- Remplacez l'alimentation (12 volts, 2 ampères minimum, certifiée UL).
- Remplacez la LED (reportez-vous à la nomenclature ou contactez le fournisseur pour en savoir plus).
Pour vous assurer que le niveau de lux des voyants LED est approprié (100 à 300), testez-le à l'aide d'un luxmètre numérique. (L'exemple utilise le luxmètre YF-1065 de Contempo Views.) Placez le luxmètre sur le côté de la tablette et réglez-le sur 2 000 lux pour mesurer la luminosité (voir figure 21).
Figure 21. YF-1065 de Contempo Views.
Figure 22. Luxmètre mesurant la lumière de côté avec le support de la tablette.
En fonction de la valeur de lux mesurée, suivez l'étape appropriée :
- Si la lumière est au bon niveau, vissez les plaques avant et arrière dans le lacet.
- Si la luminosité n'est pas correcte, vérifiez que les références de la LED et de l'alimentation sont correctes.
Éléments à prendre en compte
Vous trouverez ci-dessous des exemples d'erreurs de fabrication courantes qui peuvent rendre les tests instables.
Panneau arrière avec des trous pour la tablette. Cela entraîne l'échec du test
find_circleen raison des cercles supplémentaires créés par les trous de vis.
Figure 23. Panneau arrière avec des trous.
Il manque des chevilles. Les déflecteurs de lumière peuvent alors glisser hors de leur emplacement pendant le transport.
Figure 24. Cheville manquante sur le déflecteur de lumière.
Alimentation ne figurant pas sur la liste UL. L'utilisation d'un adaptateur secteur homologué UL permet de respecter les spécifications indiquées. C'est important pour faire fonctionner l'éclairage en toute sécurité.
Figure 25. Exemple d'alimentation certifiée UL.
Les vis du support de la tablette ou du téléphone glissent et ne peuvent pas supporter le poids de la tablette ou du téléphone. Cela est généralement dû à des filetages endommagés et indique que le trou doit être refileté.
Figure 26. Trou avec filetage endommagé.