شراء نظام منصة تركيب متعددة الاستخدامات وتركيبها

يتوافق نظام المنصات المعيارية مع أداة اختبار ITS الآلية ويتألف من صندوق بلاستيكي تم قطعه باستخدام نظام التحكم الرقمي بالكمبيوتر (CNC) من رسومات التصميم بمساعدة الكمبيوتر (CAD)، وجهاز لوحي للرسومات البيانية، وجهاز قيد الاختبار (DUT). يتألف نظام المنصة المعيارية من منصة أساسية ومنصة اختيارية قابلة للتمديد. يبلغ الحد الأدنى لمسافة المخطط في منصة الاختبار المعيارية 22 سم، ويمكنها اختبار كاميرات الأجهزة الجوّالة التي تتراوح زاوية مجال رؤيتها بين 60 و120 درجة. يمكن أن تجري منصة الاختبار الأساسية اختبارًا بزاوية 90 درجة مع وضع الجهاز قيد الاختبار في الأعلى (كما هو موضّح في الشكل 2).

يتيح جهاز تمديد العدسة المقرّبة اختبار الكاميرات التي تتضمّن مسافة تركيز دنيا طويلة (كاميرات مقرّبة). يتم تثبيت حامل العدسة المقرّبة على الحامل الأساسي، ويمكن تخصيص طوله استنادًا إلى متطلبات اختبار الكاميرا عند الشراء من خلال البائعين المؤهّلين. تتيح أداة ITS للكاميرا مسافات المخطط التي تصل إلى 100 سم. هناك نوعان من منصات التصوير عن بُعد، وهما منصة التصوير عن بُعد المرنة ومنصة التصوير عن بُعد ذات الطول الثابت. يتيح لك جهاز الحفر المرن اختبار مسافات مختلفة بين الرسومات البيانية، بينما يتيح لك جهاز الحفر ذو الطول الثابت اختبار مسافة واحدة فقط بين الرسومات البيانية. سيتوفّر جهاز flexi-tele اعتبارًا من مارس 2026.

Modular Base
Rev1.2

الشكل 1: منصة حفر نموذجية

Modular rev1.2
90deg

الشكل 2: تم تدوير منصة القاعدة النموذجية بمقدار 90 درجة.

Flexi-Tele
rig

الشكل 3: حوامل Flexi-Tele من مورِّدَين معتمدَين

سجلّ النُسخ السابقة

يوضّح الجدول التالي سِجل النُسخ السابقة لنظام المنصّة المعيارية ويتضمّن روابط تنزيل لكل إصدار من ملفات الإنتاج.

التاريخ المراجعة تنزيل ملف الإنتاج سجلّ التغيير
سبتمبر 2024 1.2 Modular base rig rev1.2
  • (سبتمبر 2024) يتضمّن إصلاحات لخطأ في ملف إنتاج
  • (يوليو 2024) الإصدار الأوّلي

شراء نظام منصة تركيب متعددة الاستخدامات

ننصحك بشراء نظام الحامل المعياري وحامل التمديد الاختياري عن بُعد والملحقات من أحد المورّدين المؤهّلين التاليين.

  • شركة Byte Bridge Inc.
    الولايات المتحدة: 1502 Crocker Ave, Hayward, CA 94544-7037
    الصين: 22F #06-08, Hongwell International Plaza Tower A, 1600 West Zhongshan Road, Xuhui, Shanghai, 200235
    www.bytebt.com
    androidpartner@bytebt.com
    الولايات المتحدة: +1-510-373-8899
    الصين: +86-400-8866-490

  • JFT CO LTD 捷富通科技有限公司 (المعروفة سابقًا باسم MYWAY DESIGN)
    الصين: No. 40, Lane 22, Heai Road, Wujing Town, Minhang District, Shanghai, China
    تايوان: 4F., No. 163, Fu-Ying Road, XinZhuang District, New Taipei City 242, Taiwan
    www.jftcoltd.com
    service@jfttec.com or its.sales@jfttec.com
    China:+86-021-64909136
    Taiwan: 886-2-29089060

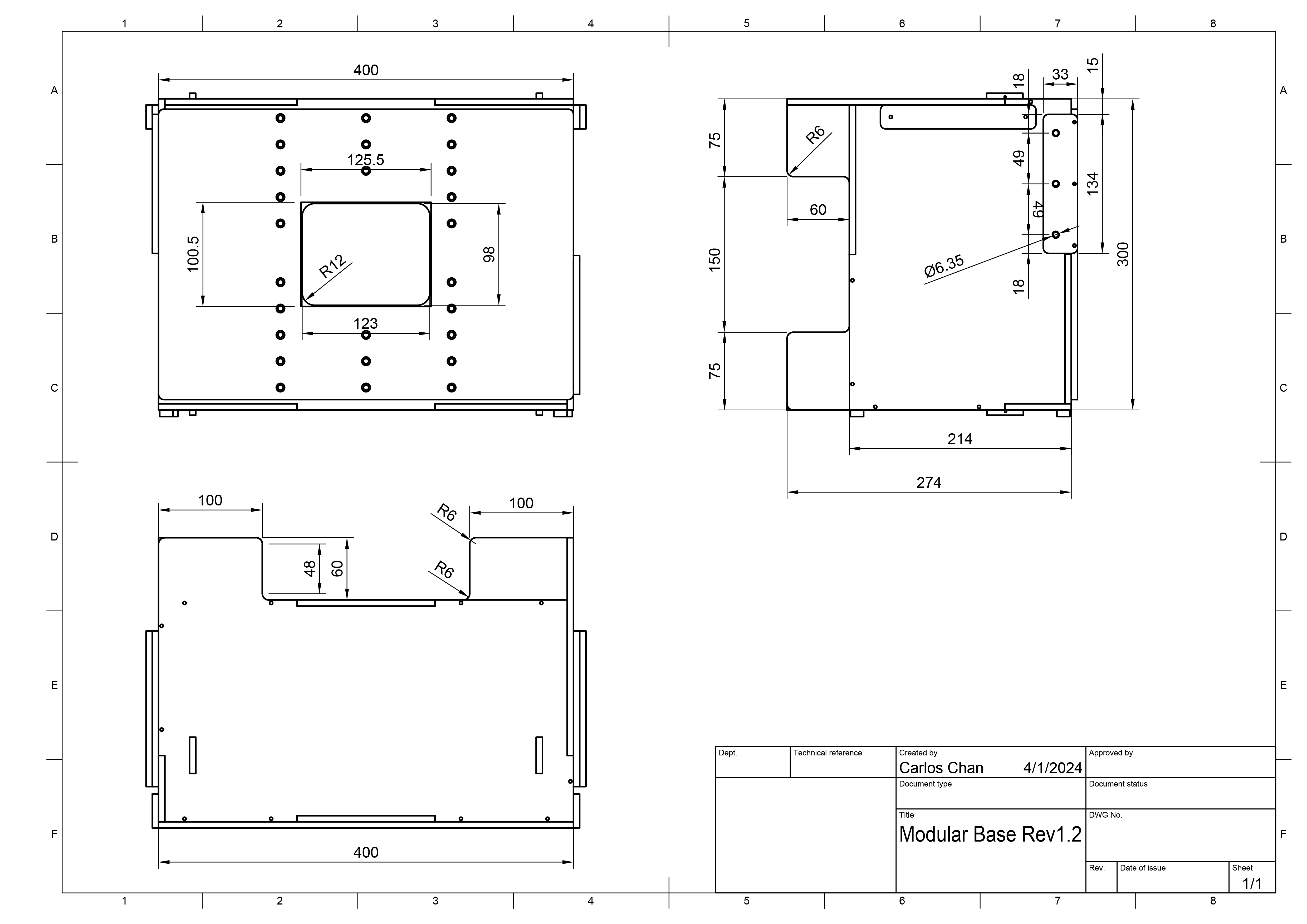
الرسومات الميكانيكية

في ما يلي رسم ميكانيكي لمنصة القاعدة المعيارية.

رسم CAD لقاعدة Modular

الشكل 4. رسم ميكانيكي لمنصة تركيب متعددة الاستخدامات

إعداد منصة الاختبار الأساسية

اتّبِع الخطوات التالية لإعداد منصة أساسية معيارية.

  1. اشترِ نظام منصة تركيب متعددة الاستخدامات من مورّد مؤهَّل.

  2. تأكَّد من توفّر جميع المكوّنات في الجدول التالي (العناصر المعروضة في الشكل 4).

    المكوّن الكمية
    Modular base rig 1
    قاعدة تثبيت الهاتف 2
    حامل الجهاز اللوحي 1
    مصدر طاقة بقدرة 12 فولت (معتمد من UL، الحد الأدنى 1 أمبير) 1
    فتحة العدسة 1

    Modular Base Rev1.2
Items

    الشكل 5. مكوّنات منصة أساسية نموذجية

  3. بناءً على الإعداد، تأكَّد من توفّر الملحقات اللازمة في الجدول التالي (الموضّح في الشكل 5). يمكن شراء هذه الملحقات من مورِّد مؤهَّل.

    اسم الكمية
    وحدة التحكّم في الإضاءة (يمكنها التحكّم في ما يصل إلى 3 منصات) 1
    مصدر طاقة 5 فولت لوحدة التحكّم بالإضاءة 1
    كابل أسطواني للتيار المباشر يربط الإضاءة بقاعدة التثبيت المعيارية 1
    محوّل كابل أسطواني للتيار المباشر (5.5 ملم × 2.1 ملم إلى 3.5 ملم × 1.35 ملم) 1
    كابل USB A إلى كابل USB 1
    مجموعة الأجهزة القابلة للطي (إذا كان الجهاز الخاضع للاختبار جهازًا قابلاً للطي) 1

    Modular Optional
Items

    الشكل 6. عناصر اختيارية لمنصة أساسية معيارية

  4. تأكَّد من عدم تسرّب الضوء من خلال اتّخاذ أحد الإجراءات التالية:

    1. صناعة فتحة لتناسب وحدة الكاميرا في الجهاز الخاضع للاختبار والتأكّد من عدم تسرّب الضوء (كما هو موضّح في الشكل 6) يمكن قطع الفتحات من ألواح الفوم المتوفرة أو ضبطها من قِبل مورّد مؤهَّل. للحصول على اتجاه مناسب للشكل، يتم تدوير الأجهزة التي تخضع للاختبار والتي تكون الكاميرا الخلفية فيها مواجهةً لجهاز الاختبار بزاوية 90 درجة عكس اتجاه عقارب الساعة، ويتم تدوير الأجهزة التي تخضع للاختبار والتي تكون الكاميرا الأمامية فيها مواجهةً لجهاز الاختبار بزاوية 90 درجة باتجاه عقارب الساعة. تأكَّد من ضبط فتحات العدسة بشكل مناسب.

    Modular Aperture
    Positioning قطع فتحة معيارية

    الشكل 7. صناعة فتحات لمنع تسرُّب الضوء

    1. استخدِم ستارة داكنة لتغطية الجهاز لمنع تسرُّب الضوء، ولا حاجة إلى فتحات. (كما هو موضّح في الشكل 7).

    Modular Drapery

    الشكل 8. منع تسرُّب الضوء باستخدام ستارة

  5. ثبِّت حامل هاتف عاديًا أو حامل هاتف قابلًا للطيّ على لوحة تثبيت الهاتف الأمامية على ارتفاع مناسب باستخدام مسمار وصمولة من النايلون كما هو موضّح في الشكل 8.

    تركيب فتحة العدسة والحامل المعياريين

    الشكل 9. تركيب فتحة العدسة وقاعدة تثبيت الهاتف

  6. ثبِّت حامل الجهاز اللوحي على لوحة تثبيت الجهاز اللوحي على ارتفاع مناسب باستخدام مسمار وصمولة من النايلون.

  7. ثبِّت الجهاز اللوحي المتصل بالشاشة ووصِّله بالجهاز المضيف كما هو موضّح في الشكل 9. ثبِّت الجهاز اللوحي باستخدام أداة تثبيت.

    تثبيت الكمبيوتر اللوحي المعياري

    الشكل 10. تثبيت التطبيق على الجهاز اللوحي

  8. لتسهيل التشغيل على الشاشة، اضبط إعدادات الجهاز الخاضع للاختبار قبل تركيبه.

  9. ثبِّت الجهاز قيد الاختبار واربطه بالجهاز المضيف.

  10. اضبط الجهاز الخاضع للاختبار بحيث يكون الجزء الأوسط من وحدة الكاميرا محاذيًا للجزء الأوسط من الجهاز اللوحي (أو قريبًا جدًا منه). لضبط الارتفاع، عليك فك براغي تثبيت الهاتف وتحريك الحامل للأعلى أو للأسفل. عند المحاذاة، ثبِّت الجهاز قيد الاختبار باستخدام مكبس حامل التثبيت.

    تثبيت جهاز اختبار معياري

    الشكل 11. تثبيت الجهاز قيد الاختبار (DUT)

  11. بالنسبة إلى الإضاءة، وصِّل كابل الإضاءة من قاعدة الحامل بأحد الخيارات التالية:

    1. مصدر طاقة بقدرة 12 فولت

    وصلة Modular 12V

    الشكل 12. مصباح متصل بمصدر طاقة 12 فولت

    1. وحدة التحكّم في الإضاءة (قد تحتاج إلى محوّل)

    اتصال وحدة التحكّم المعيارية

    الشكل 13 مصباح متصل بوحدة تحكّم في الإضاءة

بعد إكمال عملية إعداد منصة الاختبار الأساسية النموذجية، عليك إعداد بيئة المضيف والاختبار (إعداد CTS). بالنسبة إلى ملف config.yml، استخدِم الإعدادات التالية:

  • chart\_distance = 22
  • lighting\_ch = [connected controller channel]، أو اتركه كما هو إذا كنت لا تستخدم وحدة تحكّم في الإضاءة.

Flexi-Tele extension rig setup

إذا اشتريت قاعدة الحفارة المعيارية قبل آذار (مارس) 2026، قد تحتاج إلى إجراء تعديل بسيط لتتوافق مع وصلة flexi-tele. يحلّ هذا التعديل مشكلة حجب اللوحة الأمامية لمجال رؤية كاميرا التقريب في الجهاز الخاضع للاختبار، ويمكن استخدامه أيضًا مع جهاز تمديد كاميرا التقريب ذي الطول الثابت.

اتّبِع الخطوات التالية لتعديل منصة القاعدة المعيارية.

  1. أزِل البراغي الأربعة في أعلى الحامل التي تثبّت اللوحة الأمامية، بالإضافة إلى البراغي الأربعة في الأسفل.

    Modular Retrofit Remove
Screws

    الشكل 14. البراغي الموجودة على الحامل والتي تثبّت اللوحة الأمامية

  2. (اختياري) اربط أو الصق لوحة تثبيت الهاتف باللوحة الأمامية بشكل يتيح إزالة اللوحتين معًا.

    Modular Retrofit bolt
plates

    الشكل 15. مسامير لوحة تثبيت الهاتف واللوحة الأمامية

  3. (اختياري) إذا كان جهازك مزوّدًا بكابل طاقة للإضاءة من الأسفل إلى الأعلى وموصَّلاً باللوحة الأمامية، عليك نقله إلى الجانب باستخدام شريط لاصق كهربائي أو حوامل ربط.

    Modular Retrofit relocate
cable

    الشكل 16. تم نقل كابل الطاقة الخاص بالضوء من الأسفل إلى الأعلى إلى الجانب.

  4. وصِّل قاعدة الحامل المعياري بحامل التمديد المرن.

فيديو توضيحي

في ما يلي فيديو توضيحي حول كيفية إعداد جهاز تمديد flexi-tele:

إعداد منصة تلسكوبية ثابتة الطول

اتّبِع الخطوات التالية لإعداد حامل عدسة التقريب الاختياري.

  1. اشترِ منصة تركيب متعددة الاستخدامات ومنصة تركيب مزوّدة بذراع تلسكوبي من مورّد مؤهَّل. يمكن إنشاء جهاز التثبيت باستخدام ملفات الإنتاج، ولكن لا يُنصح بذلك لأنّ القطع والتجميع يجب أن يكونا دقيقَين لضمان عدم حدوث مشاكل في ملاءمة جهاز التثبيت.

  2. تأكَّد من توفُّر قاعدة تركيب معيارية ومجموعة أدوات تركيب عدسة مقربة (كما هو موضّح في الشكل 13).

    Modular tele

    الشكل 17 حامل ثلاثي القوائم معياري مزوّد بذراع تلسكوبي

  3. أزِل لوحة تثبيت الهاتف عن طريق إزالة 6 براغي من النايلون يدويًا (3 على كل جانب).

    Modular bolt
highlight إزالة البراغي
المتداخلة Modular front plate
off

    الشكل 18. إزالة 6 براغي من النايلون في المنطقة المميّزة يدويًا

  4. ضَع قاعدة الحامل وحامل عدسة التقريب على السطح الذي سيتم إجراء الاختبارات عليه. ولتجنُّب إجهاد نقاط التثبيت، لا ننصح بتحريك الجهاز المجمّع.

  5. ضَع جهاز التمديد في مكانه بحيث تتوافق الفتحات الست في لسان جهاز التمديد مع الثقوب الست في جهاز القاعدة.

    علامة التبويب "محاذاة الوحدات"

    الشكل 19. محاذاة الفتحات مع الثقوب

  6. ثبِّت جهاز التمديد بجهاز القاعدة من خلال تركيب البراغي الستة. أثناء تركيب البراغي، ادفع الحاملَين معًا برفق للتأكّد من عدم وجود فجوات لتسرّب الضوء (اطلب المساعدة من أحد الزملاء عند الضرورة). أحكِم ربط البراغي يدويًا.

    Modular push
together

    الشكل 20. تثبيت منصات القاعدة والامتداد

  7. اضبط فتحة العدسة (أو الستارة) وثبِّت حوامل الهواتف وأجهزة الاختبار وفقًا لما هو موضّح في إعداد منصة الاختبار الأساسية.

    علامة التبويب "محاذاة الوحدات"

    الشكل 21. تثبيت حوامل الهواتف والجهاز الخاضع للاختبار

بعد إكمال عملية إعداد منصة الاختبار الخارجية، عليك إعداد بيئة المضيف والاختبار (إعداد CTS). بالنسبة إلى ملف config.yml، استخدِم الإعدادات التالية:

  • chart_distance = [إجمالي المسافة من الجهاز الخاضع للاختبار إلى الجهاز اللوحي]
  • lighting_ch = [قناة التحكّم المتصلة]، أو اتركها كما هي إذا كنت لا تستخدم وحدة تحكّم في الإضاءة.

إلغاء تثبيت حزمة الإضافة

لإلغاء تثبيت الإضافة، اتّبِع خطوات التثبيت بترتيب عكسي. عند تركيب لوحة تثبيت الجهاز اللوحي، ادفع اللوحة على قاعدة الحامل للتأكّد من عدم وجود فجوات لتسرّب الضوء (كما هو موضّح في الشكل 17). أحكِم ربط البراغي يدويًا.

Modular push
together

الشكل 22. دفع لوحة تثبيت الجهاز اللوحي على قاعدة الحامل

الأسئلة الشائعة

لماذا يتم اقتصاص المشهد في منصة تصوير تلفزيوني؟

Modular rig
crop

الشكل 23. مشهد تم اقتصاصه بواسطة لوحة الهاتف في قاعدة الحامل

يحدث ذلك عندما يتم حظر مجال رؤية العدسة المقرّبة بواسطة لوحة الهاتف بين قاعدة الحامل ووصلة العدسة المقرّبة. تأكَّد من إزالة لوحة الهاتف باستخدام مفك براغي قبل المتابعة في الاختبار.

تمت إزالة لوحة الهاتف المعيارية

الشكل 24. إزالة لوحة الهاتف في الحامل الأساسي

لماذا تبدو الأضواء خافتة أو لماذا يظهر خطأ في التحقّق من الإضاءة عند تشغيل ITS؟

يظهر هذا الخطأ عندما يصبح الضوء في جهاز التصوير باهتًا، وقد يكون السبب في ذلك هو انخفاض مستوى الطاقة وتدهور جودة مصابيح LED بسبب العمر أو الاستخدام، أو بسبب عطل في مصدر الطاقة. لحل هذه المشكلة، يمكنك اتباع الخطوات التالية:

  1. تأكَّد من أنّ الإضاءة تعمل بشكل صحيح:

    • استبدِل مصدر الطاقة (12 فولت مدرَج في قائمة UL، 2 أمبير كحد أدنى).
    • استبدِل مصباح LED (راجِع قائمة المواد أو تواصَل مع المورّد للحصول على مزيد من المعلومات).
  2. للتأكّد من أنّ مستوى اللوكس لمصابيح LED مناسب (100 إلى 300)، اختبِر مستوى اللوكس باستخدام مقياس رقمي. (يتم استخدام مقياس الإضاءة YF-1065 من Contempo Views في هذا المثال). ضَع مقياس الإضاءة على جانب الجهاز اللوحي واضبطه على 2000 شمعة/م² لقياس الإضاءة (كما هو موضّح في الشكل 21).

    YF-1065 by Contempo Views

    الشكل 25 YF-1065 by Contempo Views.

    مقياس اللوكس

    الشكل 26. مقياس لوكس يقيس الإضاءة من الجانب مع قاعدة تثبيت الجهاز اللوحي.

  3. استنادًا إلى قيمة اللوكس التي تم قياسها، اتّبِع الخطوة المناسبة:

    • إذا كانت الإضاءة في المستوى الصحيح، اربط اللوحَين الأمامي والخلفي معًا.
    • إذا كان مستوى الإضاءة غير صحيح، تأكَّد من صحة رقمَي تعريف LED ومصدر الطاقة.

أمور يجب الانتباه إليها

في ما يلي أمثلة على أخطاء التصنيع الشائعة التي يمكن أن تؤدي إلى عدم استقرار الاختبارات.

  • اللوحة الخلفية التي تم ثقبها لتركيب الجهاز اللوحي يؤدي ذلك إلى تعذُّر اجتياز find_circleالاختبار بسبب الدوائر الإضافية التي تم إنشاؤها بواسطة فتحات البراغي.

    لوحة خلفية بها ثقوب

    الشكل 27. لوحة خلفية مثقوبة

  • المسامير الخشبية غير متوفّرة. يؤدي ذلك إلى انزلاق حواجز الضوء أثناء الشحن.

    مسمار التثبيت غير متوفّر

    الشكل 28. Missing dowel on light baffle.

  • مزوّد طاقة غير مدرَج في قائمة UL ويضمن استخدام مصدر طاقة مدرَج في قائمة UL استيفاء المواصفات الموضّحة على الملصق. هذا الإجراء مهم لتشغيل الإضاءة بأمان.

    مصدر طاقة معتمد من UL

    الشكل 29. مثال على مصدر طاقة مُدرَج في قائمة UL

  • براغي منزلقة في حامل الجهاز اللوحي أو الهاتف لا يمكنها تحمّل وزن الجهاز اللوحي أو الهاتف ويحدث ذلك عادةً بسبب تلف الأسنان، ما يشير إلى ضرورة إعادة تشكيلها.

    فتحة ذات أسنان تالفة

    الشكل 30. فتحة ذات أسنان لولبية تالفة