ซื้อและตั้งค่าระบบแท่นขุดเจาะแบบโมดูลาร์

ระบบแท่นทดสอบแบบแยกส่วนรองรับการทดสอบอัตโนมัติของ ITS และประกอบด้วยกล่องพลาสติกที่ตัดด้วยการควบคุมเชิงตัวเลขด้วยคอมพิวเตอร์ (CNC) จากภาพวาดการออกแบบด้วยคอมพิวเตอร์ (CAD) แท็บเล็ตชาร์ต และอุปกรณ์ภายใต้การทดสอบ (DUT) ระบบแท่นขุดแบบโมดูลาร์ประกอบด้วยแท่นขุดพื้นฐานและแท่นขุดแบบต่อขยาย เทเลที่ไม่บังคับ แท่นฐานแบบแยกส่วนมีระยะชาร์ต 22 ซม. และสามารถ ทดสอบกล้องของอุปกรณ์เคลื่อนที่ที่มี FoV 60-120 องศา แท่นทดสอบพื้นฐาน สามารถทำการทดสอบโดยหมุน 90 องศาโดยมี DUT อยู่ด้านบน (แสดงในรูปที่ 2)

แท่นต่อขยายเทเลรองรับการทดสอบกล้องที่มีระยะโฟกัสขั้นต่ำยาว (กล้องเทเลโฟโต้) โดยจะยึดแท่นต่อเลนส์เทเลเข้ากับแท่นฐาน และปรับแต่งความยาวได้ตามข้อกำหนดในการทดสอบกล้องเมื่อซื้อผ่านผู้ให้บริการที่ผ่านการรับรอง ITS ของกล้องรองรับระยะชาร์ตสูงสุด 100 ซม.

Modular Base Rev1.2

รูปที่ 1 แท่นฐานแบบแยกส่วน

Modular rev1.2 90deg

รูปที่ 2 แท่นฐานแบบแยกส่วนหมุน 90 องศา

ประวัติการแก้ไข

ตารางต่อไปนี้อธิบายประวัติการแก้ไขของระบบอุปกรณ์แบบแยกส่วน และมีลิงก์ดาวน์โหลดไฟล์เวอร์ชันต่างๆ ที่ใช้ในการผลิต

วัน การแก้ไข การดาวน์โหลดไฟล์เวอร์ชันที่ใช้งานจริง บันทึกการเปลี่ยนแปลง
กันยายน 2024 1.2 Modular base rig rev1.2
  • (กันยายน 2024) มีการแก้ไขข้อผิดพลาดของไฟล์เวอร์ชันที่ใช้งานจริง
  • (กรกฎาคม 2024) รุ่นแรก

ซื้อระบบแท่นขุดเจาะแบบแยกส่วน

เราขอแนะนำให้ซื้อระบบแท่นขุดแบบแยกส่วน แท่นขุดแบบต่อขยายเสริม และอุปกรณ์เสริมจากผู้ให้บริการที่มีคุณสมบัติตรงตามเกณฑ์รายใดรายหนึ่งต่อไปนี้

  • Byte Bridge Inc.
    USA: 1502 Crocker Ave, Hayward, CA 94544-7037
    China: 22F #06-08, Hongwell International Plaza Tower A, 1600 West Zhongshan Road, Xuhui, Shanghai, 200235
    www.bytebt.com
    androidpartner@bytebt.com
    USA: +1-510-373-8899
    China: +86-400-8866-490

  • JFT CO LTD 捷富通科技有限公司 (เดิมชื่อ MYWAY DESIGN)
    จีน: No. 40, Lane 22, Heai Road, Wujing Town, Minhang District, Shanghai, China
    ไต้หวัน: 4F., No. 163, Fu-Ying Road, XinZhuang District, New Taipei City 242, Taiwan
    www.jftcoltd.com
    service@jfttec.com หรือ its.sales@jfttec.com
    จีน:+86-021-64909136
    ไต้หวัน: 886-2-29089060

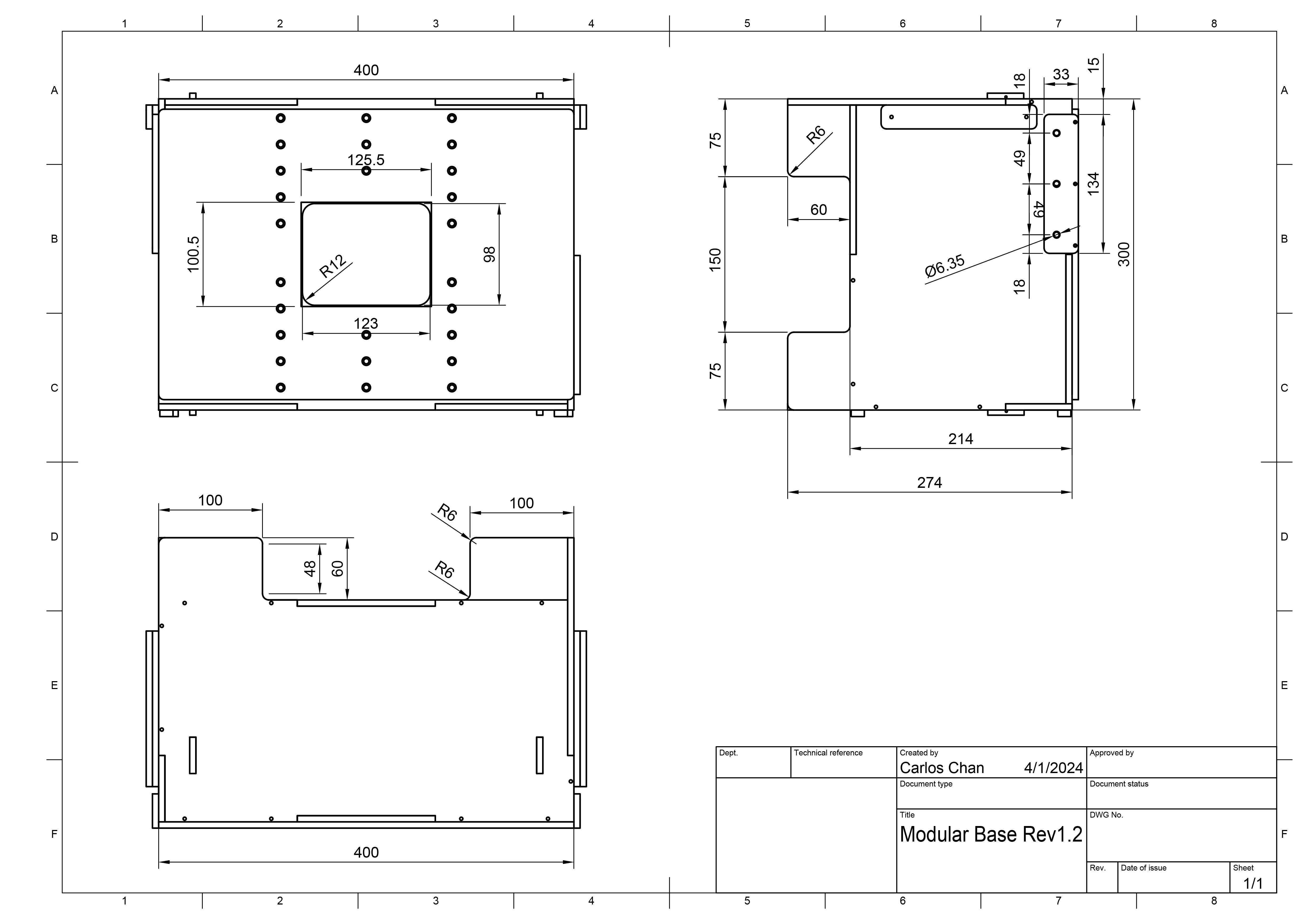
ภาพวาดทางกล

ภาพต่อไปนี้คือภาพวาดทางเทคนิคของแท่นฐานแบบโมดูลาร์

ภาพวาด CAD ของฐานแบบแยกส่วน

รูปที่ 3 ภาพวาดทางกลของแท่นฐานแบบโมดูลาร์

การตั้งค่าอุปกรณ์พื้นฐาน

ทำตามขั้นตอนต่อไปนี้เพื่อตั้งค่าฐานแบบแยกส่วน

  1. ซื้อระบบแท่นขุดแบบแยกส่วนจากผู้ให้บริการที่มีคุณสมบัติ

  2. ตรวจสอบว่าคุณมีคอมโพเนนต์ทั้งหมดในตารางต่อไปนี้ (รายการที่แสดงใน รูปที่ 4)

    ส่วนประกอบ จำนวน
    แท่นฐานแบบโมดูลาร์ 1
    ขายึดสำหรับติดตั้งโทรศัพท์ 2
    ขายึดสำหรับติดตั้งแท็บเล็ต 1
    แหล่งจ่ายไฟ 12V (ได้รับการรับรองจาก UL, ขั้นต่ำ 1A) 1
    รูรับแสง 1

    Modular Base Rev1.2 Items

    รูปที่ 4 คอมโพเนนต์ของฐานยึดแบบแยกส่วน

  3. ตรวจสอบว่าคุณมีอุปกรณ์เสริมที่จำเป็นในตารางต่อไปนี้ (แสดงในรูปที่ 5) ทั้งนี้ขึ้นอยู่กับการตั้งค่าของคุณ คุณซื้ออุปกรณ์เสริมเหล่านี้ได้ จากผู้ให้บริการที่มีคุณสมบัติ

    รายการ จำนวน
    เครื่องควบคุมแสง (ควบคุมได้สูงสุด 3 ชุด) 1
    แหล่งจ่ายไฟ 5 โวลต์สำหรับตัวควบคุมแสง 1
    สาย DC Barrel ที่เชื่อมต่อไฟกับแท่นฐานแบบโมดูลาร์ 1
    อะแดปเตอร์สาย DC Barrel (5.5 มม. x 2.1 มม. ถึง 3.5 มม. x 1.35 มม.) 1
    สาย USB-A กับสาย USB 1
    ชุดอุปกรณ์พับได้ (หาก DUT เป็นอุปกรณ์พับได้) 1

    รายการเสริมแบบแยกส่วน

    รูปที่ 5 รายการที่ไม่บังคับสำหรับอุปกรณ์ฐานแบบโมดูลาร์

  4. ตรวจสอบว่าไม่มีแสงรั่วโดยทำอย่างใดอย่างหนึ่งต่อไปนี้

    1. สร้างช่องรับแสงให้พอดีกับโมดูลกล้องของ DUT และตรวจสอบว่าไม่มีแสงรั่ว (ดังแสดงในรูปที่ 6) คุณสามารถตัดรูรับแสง จากโฟมบอร์ดที่ให้มาหรือกำหนดค่าจากผู้ให้บริการที่มีคุณสมบัติ หากต้องการวางแนวตัวเลขให้ถูกต้อง DUT ที่มีกล้องหลังหันไปทางแท่นวาง จะหมุนทวนเข็มนาฬิกา 90° และ DUT ที่มีกล้องหน้าหันไปทาง แท่นวางจะหมุนตามเข็มนาฬิกา 90° ตรวจสอบว่าได้กำหนดค่ารูรับแสง อย่างถูกต้อง

      การวางตำแหน่งรูรับแสงแบบโมดูลาร์ การตัดรูรับแสงแบบโมดูลาร์

      รูปที่ 6 สร้างช่องเปิดเพื่อป้องกันแสงรั่ว

    2. ใช้ผ้าคลุมสีเข้มเพื่อคลุมอุปกรณ์เพื่อป้องกันแสงรั่ว ไม่จำเป็นต้องใช้รูรับแสง (แสดงในรูปที่ 7)

      ผ้าม่านแบบโมดูลาร์

      รูปที่ 7 ป้องกันแสงรั่วโดยใช้ผ้าม่าน

  5. ติดตั้งที่ยึดโทรศัพท์มาตรฐานหรือที่ยึดโทรศัพท์แบบพับได้ที่แผงยึดโทรศัพท์ด้านหน้า ที่ความสูงที่เหมาะสมโดยใช้สลักเกลียวและน็อตไนลอน ตามที่แสดงในรูปที่ 8

    การติดตั้งรูรับแสงและเมาท์แบบแยกส่วน

    รูปที่ 8 การติดตั้งรูรับแสงและที่ยึดโทรศัพท์

  6. ติดตั้งตัวยึดแท็บเล็ตบนแผงยึดแท็บเล็ตที่ความสูงที่เหมาะสม โดยใช้สลักเกลียวและน็อตไนลอน

  7. ติดตั้งแท็บเล็ตจอแสดงผลและเชื่อมต่อแท็บเล็ตกับโฮสต์ตามที่แสดงใน รูปที่ 9 ยึดแท็บเล็ตด้วยที่ดูด

    การติดตั้งแท็บเล็ตแบบแยกส่วน

    รูปที่ 9 การติดตั้งแท็บเล็ต

  8. หากต้องการให้การดำเนินการบนหน้าจอเป็นไปได้ง่ายขึ้น ให้ ตั้งค่า DUT ก่อนติดตั้ง DUT

  9. ติดตั้ง DUT และเชื่อมต่อกับโฮสต์

  10. จัดแนว DUT เพื่อให้กึ่งกลางของโมดูลกล้องอยู่ในแนวเดียวกับ (หรือ ใกล้เคียงมาก) กึ่งกลางของแท็บเล็ต หากต้องการปรับความสูง ให้คลาย สลักเกลียวสำหรับติดตั้งโทรศัพท์ แล้วเลื่อนตัวยึดขึ้นหรือลง เมื่อจัดแนวแล้ว ให้ยึด DUT ด้วยลูกสูบของแท่นยึด

    การติดตั้ง DUT แบบแยกส่วน

    รูปที่ 10 การติดตั้ง DUT

  11. สำหรับการส่องสว่าง ให้ต่อสายไฟจากฐานยึดเข้ากับอุปกรณ์ต่อไปนี้

    1. แหล่งจ่ายไฟ 12V

      การเชื่อมต่อ 12V แบบโมดูลาร์

      รูปที่ 11 ไฟที่เชื่อมต่อกับแหล่งจ่ายไฟ 12 โวลต์

    2. ตัวควบคุมไฟ (อาจต้องใช้อะแดปเตอร์)

      การเชื่อมต่อตัวควบคุมแบบแยกส่วน

      รูปที่ 12 หลอดไฟที่เชื่อมต่อกับเครื่องควบคุมแสงสว่าง

เมื่อตั้งค่าแท่นฐานแบบโมดูลาร์เสร็จแล้ว ให้ตั้งค่าโฮสต์และ สภาพแวดล้อมการทดสอบ (ตั้งค่า CTS) สำหรับไฟล์ config.yml ให้ใช้การกำหนดค่าต่อไปนี้

  • chart\_distance = 22
  • lighting\_ch = [connected controller channel] หรือปล่อยไว้ตามเดิมหากไม่ได้ใช้ตัวควบคุมแสง

การตั้งค่าอุปกรณ์เสริมสำหรับเลนส์เทเล

ทำตามขั้นตอนต่อไปนี้เพื่อตั้งค่าอุปกรณ์เสริมสำหรับต่อเลนส์เทเล

  1. ซื้อแท่นฐานแบบแยกส่วนและแท่นต่อขยายแบบเทเลกับผู้ให้บริการที่ผ่านการรับรอง คุณสร้างริกได้โดยใช้ไฟล์การผลิต แต่เราไม่แนะนำให้ทำเช่นนี้เนื่องจากการตัดและการประกอบต้องแม่นยำเพื่อให้แน่ใจว่าริกส่วนขยายจะไม่มีปัญหาเรื่องความพอดี

  2. ตรวจสอบว่าคุณมีแท่นยึดฐานแบบแยกส่วนและแท่นยึดแบบต่อขยาย (ดังที่แสดงในรูปที่ 13)

    Modular tele

    รูปที่ 13 แท่นยึดแบบโมดูลาร์พร้อมส่วนขยายแบบเทเล

  3. ถอดแผงยึดโทรศัพท์โดยถอดสลักเกลียวไนลอน 6 ตัวด้วยมือ (3 ตัวในแต่ละด้าน)

    ไฮไลต์สายฟ้าแบบโมดูล การถอดสลักแบบแยกส่วน ปิดแผ่นด้านหน้าแบบโมดูล

    รูปที่ 14 ถอดสลักไนลอน 6 ตัวในบริเวณที่ไฮไลต์ด้วยมือ

  4. วางแท่นยึดฐานและแท่นยึดส่วนขยายของเลนส์เทเลโฟโต้บนพื้นผิวที่จะใช้ทดสอบ เราไม่แนะนำให้เคลื่อนย้ายอุปกรณ์ที่ประกอบแล้วเพื่อหลีกเลี่ยงไม่ให้จุดยึดรับน้ำหนักมากเกินไป

  5. วางแท่นต่อให้เข้าที่เพื่อให้ช่อง 6 ช่องในแท็บแท่นต่อ ตรงกับรู 6 รูในแท่นฐาน

    แท็บการจัดแนวแบบแยกส่วน

    รูปที่ 15 จัดแนวช่องให้ตรงกับรู

  6. ติดอุปกรณ์เสริมเข้ากับอุปกรณ์ฐานโดยขันน็อต 6 ตัว ขณะขันสกรู ให้ค่อยๆ ดันแท่นยึด 2 อันเข้าด้วยกันเพื่อให้แน่ใจว่าไม่มีช่องว่างที่แสงจะรั่วออกมา (ขอความช่วยเหลือจากเพื่อนร่วมงานหากจำเป็น) ขันโบลต์ด้วยมือ

    Modular push together

    รูปที่ 16 การติดริกฐานและริกส่วนขยาย

  7. กำหนดค่ารูรับแสง (หรือผ้าม่าน) และติดตั้งที่ยึดโทรศัพท์และ DUT ตามที่อธิบายไว้ในการตั้งค่าแท่นวางพื้นฐาน

    แท็บการจัดแนวแบบแยกส่วน

    รูปที่ 17 การติดที่ยึดโทรศัพท์และ DUT

เมื่อตั้งค่าอุปกรณ์เสริมเสร็จแล้ว ให้ตั้งค่าโฮสต์และ สภาพแวดล้อมการทดสอบ (ตั้งค่า CTS) สำหรับไฟล์ config.yml ให้ใช้การกำหนดค่าต่อไปนี้

  • chart_distance = [ระยะทางทั้งหมดจาก DUT ไปยังแท็บเล็ต]
  • lighting_ch = [connected control channel] หรือปล่อยไว้ตามเดิมหากไม่ได้ ใช้ตัวควบคุมแสง

ถอนการติดตั้งริกส่วนขยาย

หากต้องการถอนการติดตั้งอุปกรณ์เสริม ให้ทำตามขั้นตอนการติดตั้งย้อนกลับ เมื่อติดตั้งแผงยึดแท็บเล็ต ให้ดันแผงกับฐาน ริกเพื่อให้แน่ใจว่าไม่มีช่องว่างที่แสงจะลอดผ่านได้ (ดังแสดงในรูปที่ 17) ขันโบลต์ด้วยมือ

Modular push together

รูปที่ 18 ดันแผงยึดแท็บเล็ตกับแท่นฐาน

คำถามที่พบบ่อย

ทำไมฉากจึงถูกครอบในอุปกรณ์การถ่ายทอดสด

ครอบตัดภาพจากอุปกรณ์แบบโมดูล

รูปที่ 19 ฉากที่ครอบตัดโดยเพลตโทรศัพท์ในฐานรอง

ปัญหานี้เกิดขึ้นเมื่อเพลตโทรศัพท์บดบังฟิลด์ของเลนส์เทเล ระหว่างแท่นฐานและส่วนขยายเทเล โปรดถอดเพลตโทรศัพท์ออกด้วยไขควงก่อนดำเนินการทดสอบต่อ

ถอดเพลตโทรศัพท์แบบโมดูลาร์ออกแล้ว

รูปที่ 20 การถอดเพลตโทรศัพท์ในฐานยึด

ทำไมไฟจึงดูสลัวหรือทำไมข้อผิดพลาด "ตรวจสอบแสง" จึงปรากฏขึ้น เมื่อเรียกใช้ ITS

ข้อผิดพลาดนี้จะเกิดขึ้นเมื่อแสงสว่างในอุปกรณ์สว่างน้อยลง ซึ่งอาจเกิดจากแหล่งจ่ายไฟและ LED เสื่อมสภาพเนื่องจากอายุการใช้งานหรือการใช้งาน หรือแหล่งจ่ายไฟที่ชำรุด หากต้องการแก้ไขปัญหานี้ โปรดทำตามขั้นตอนต่อไปนี้

  1. ตรวจสอบว่าแสงสว่างทำงานอย่างถูกต้อง

    • เปลี่ยนแหล่งจ่ายไฟ (12 โวลต์ที่ได้รับการรับรองจาก UL, 2 แอมป์ขั้นต่ำ)
    • เปลี่ยน LED (ดู BOM หรือติดต่อผู้ให้บริการเพื่อขอข้อมูลเพิ่มเติม)
  2. ทดสอบลักซ์โดยใช้มิเตอร์ดิจิทัลเพื่อให้แน่ใจว่าลักซ์ของไฟ LED อยู่ในระดับที่เหมาะสม (100–300) (เครื่องวัดความสว่าง YF-1065 ของ Contempo Views ใช้ใน ตัวอย่างนี้) วางเครื่องวัดแสงไว้ที่ด้านแท็บเล็ตและหมุนไปที่ 2000 ลักซ์เพื่อวัดแสง (แสดงในรูปที่ 21)

    YF-1065 โดย Contempo Views

    รูปที่ 21 YF-1065 โดย Contempo Views

    เครื่องวัดความสว่าง

    รูปที่ 22 เครื่องวัดลักซ์ที่วัดแสงจากด้านข้างด้วยแท่นยึดแท็บเล็ต

  3. ทำตามขั้นตอนที่เหมาะสมโดยขึ้นอยู่กับค่าลักซ์ที่วัดได้ ดังนี้

    • หากแสงสว่างอยู่ในระดับที่เหมาะสม ให้ขันแผ่นด้านหน้าและด้านหลัง เข้ากับลูกไม้
    • หากไฟสว่างไม่ถูกต้อง ให้ตรวจสอบว่าหมายเลขชิ้นส่วนของ LED และแหล่งจ่ายไฟถูกต้อง

สิ่งที่ควรระวัง

ต่อไปนี้คือตัวอย่างข้อผิดพลาดในการผลิตที่พบบ่อยซึ่งอาจทำให้การทดสอบไม่เสถียร

  • แผงด้านหลังที่มีรูสำหรับแท็บเล็ต ซึ่งทำให้การทดสอบfind_circle ล้มเหลวเนื่องจากวงกลมเพิ่มเติมที่เกิดจาก รูสกรู

    แผงด้านหลังที่มีรู

    รูปที่ 23 แผงด้านหลังที่มีรู

  • เดือยหาย ซึ่งทำให้แผ่นกั้นแสงหลุดออกมาระหว่าง การจัดส่ง

    ไม่มีเดือย

    รูปที่ 24 ไม่มีเดือยบนแผ่นกั้นแสง

  • แหล่งจ่ายไฟที่ไม่ได้อยู่ในรายการ UL การใช้อุปกรณ์จ่ายไฟที่ได้รับการรับรองจาก UL เป็นไปตามข้อกำหนดที่ระบุ ซึ่งเป็นสิ่งสำคัญในการใช้งานไฟอย่างปลอดภัย

    แหล่งจ่ายไฟที่ได้รับการรับรองจาก UL

    รูปที่ 25 ตัวอย่างแหล่งจ่ายไฟที่ได้รับการรับรองจาก UL

  • สกรูที่ลื่นบนแท็บเล็ตหรือที่ยึดโทรศัพท์ซึ่งรับน้ำหนักของแท็บเล็ตหรือโทรศัพท์ไม่ได้ โดยปกติแล้วสาเหตุเกิดจากเกลียวชำรุดและ บ่งชี้ว่าต้องทำเกลียวรูใหม่

    รูที่มีเกลียวเสียหาย

    รูปที่ 26 รูที่มีเกลียวชำรุด