모듈식 장비 시스템

모듈식 장비 시스템은 ITS 테스트 자동화를 지원하며 컴퓨터 지원 설계(CAD) 도면을 통해 컴퓨터 수치 제어(CNC)로 절단한 플라스틱 상자와 차트 태블릿, 테스트 대상 기기(DUT)로 구성됩니다. 모듈식 장비 시스템은 기본 장비와 선택사항인 망원 확장 장비로 구성됩니다. 모듈식 기본 장비는 차트 거리가 22cm이고 FoV가 60~120도인 휴대기기 카메라를 테스트할 수 있습니다. 기본 장비는 90도 회전한 상태로 위에 DUT를 두고 테스트를 실행할 수 있습니다(그림 2 참고).

망원 확장 장비는 최소 초점 거리가 긴 카메라(망원 카메라) 테스트를 지원합니다. 망원 확장 장비는 기본 장비에 볼트로 고정되며 공인 공급업체를 통해 구매할 때 카메라 테스트 요구사항에 따라 길이는 맞춤설정할 수 있습니다. 카메라 ITS는 최대 100cm의 차트 거리를 지원합니다.

모듈식 기본 장비 Rev1.2

그림 1. 모듈식 기본 장비

90도 회전한 모듈식 기본 장비 rev1.2

그림 2. 90도 회전한 모듈식 기본 장비

업데이트 기록

다음 표에는 모듈식 장비 시스템의 업데이트 기록이 설명되어 있으며 프로덕션 파일의 각 버전에 대한 다운로드 링크가 포함되어 있습니다.

날짜 버전 프로덕션 파일 다운로드 변경 로그
2024년 9월 1.2 모듈식 기본 장비 rev1.2
  • (2024년 9월) 프로덕션 파일 오류의 수정사항 포함
  • (2024년 7월) 최초 버전

모듈식 장비 시스템 구매

모듈식 장비 시스템과 망원 확장 장비(선택사항), 액세서리는 다음 공인 공급업체에서 구매하는 것이 좋습니다.

  • Byte Bridge Inc.
    미국: 1502 Crocker Ave, Hayward, CA 94544-7037
    중국: 22F #06-08, Hongwell International Plaza Tower A, 1600 West Zhongshan Road, Xuhui, Shanghai, 200235
    www.bytebt.com
    androidpartner@bytebt.com
    미국: +1-510-373-8899
    중국: +86-400-8866-490

  • JFT CO LTD 捷富通科技有限公司(이전 명칭: MYWAY DESIGN)
    중국: No. 40, Lane 22, Heai Road, Wujing Town, Minhang District, Shanghai, China
    타이완: 4F., No. 163, Fu-Ying Road, XinZhuang District, New Taipei City 242, Taiwan
    www.jftcoltd.com
    service@jfttec.com or its.sales@jfttec.com
    중국: +86-021-64909136
    타이완: 886-2-29089060

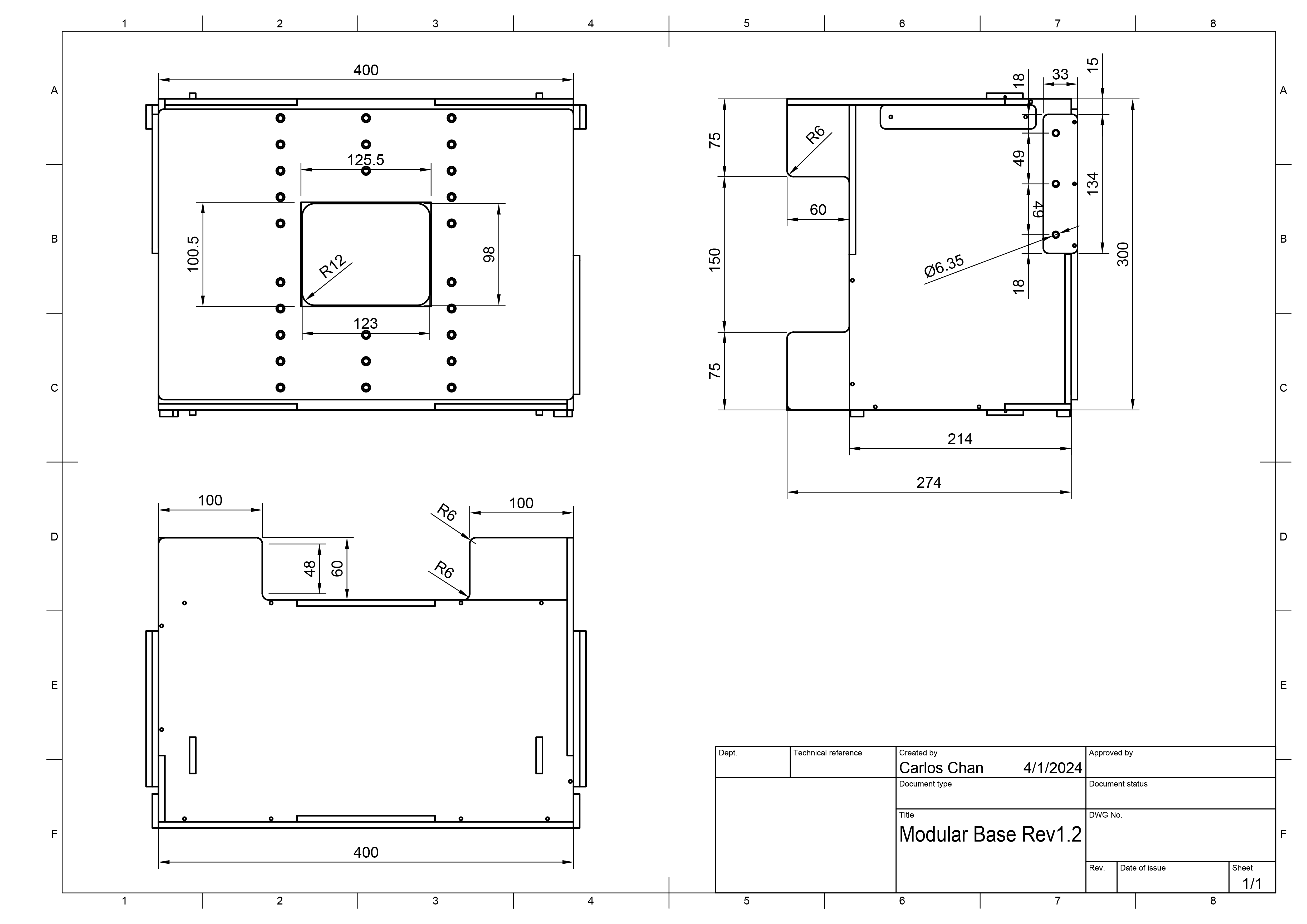
기계 도면

다음은 모듈식 기본 장비의 기계 도면입니다.

모듈식 기본 장비의 CAD 도면

그림 3. 모듈식 기본 장비의 기계 도면

기본 장비 설정

다음 단계를 따라 모듈식 기본 장비를 설정하세요.

  1. 공인 공급업체에서 모듈식 장비 시스템을 구매합니다.

  2. 다음 표에 나온 구성요소(그림 4의 항목)가 모두 있는지 확인합니다.

    구성요소 수량
    모듈식 기본 장비 1
    스마트폰 마운트 브래킷 2
    태블릿 마운트 브래킷 1
    12V 전원 공급 장치(UL 규격, 최소 1A) 1
    조리개 1

    모듈식 기본 장비 Rev1.2 항목

    그림 4. 모듈식 기본 장비 구성요소

  3. 설정에 따라 다음 표에 나온 필요한 액세서리가 있는지 확인합니다(그림 5 참고). 이러한 액세서리는 공인 공급업체에서 구매할 수 있습니다.

    항목 수량
    조명 컨트롤러(최대 3개의 장비를 제어할 수 있음) 1
    조명 컨트롤러용 5v 전원 공급 장치 1
    조명을 모듈식 기본 장비에 연결하는 DC 배럴 케이블 1
    DC 배럴 케이블 어댑터(5.5mmx2.1mm~3.5mmx1.35mm) 1
    USB A 케이블-USB 케이블 1
    폴더블 키트(DUT가 폴더블 기기인 경우) 1

    모듈식 기본 장비의 선택적 항목

    그림 5. 모듈식 기본 장비의 선택적 항목

  4. 다음 중 하나를 실행하여 빛샘이 없는지 확인합니다.

    1. DUT의 카메라 모듈에 맞도록 조리개를 제작하고 빛샘이 없는지 확인합니다(그림 6 참고). 조리개는 제공된 폼 보드에서 잘라내거나 공인 공급업체에서 구성할 수 있습니다. 적절한 그림 방향을 위해 후면 카메라가 장비를 향하는 DUT는 시계 반대 방향으로 90도 회전하고 전면 카메라가 장비를 향하는 DUT는 시계 방향으로 90도 회전합니다. 조리개가 적절하게 구성되어 있는지 확인합니다.

      모듈식 조리개 위치 지정 모듈식 조리개 절단

      그림 6. 빛이 새지 않도록 조리개 제작

    2. 어두운 커튼으로 장비를 덮어 빛이 새지 않도록 합니다. 조리개는 필요하지 않습니다. 그림 7을 참고하세요.

      모듈식 커튼

      그림 7. 커튼을 사용하여 빛샘 방지

  5. 나일론 볼트와 너트를 사용하여 전면 스마트폰 마운트 패널에 표준 스마트폰 마운트 또는 폴더블 스마트폰 마운트를 적절한 높이로 설치합니다(그림 8 참고).

    모듈식 조리개 및 마운트 설치

    그림 8. 조리개 및 스마트폰 마운트 설치

  6. 나일론 볼트와 너트를 사용하여 태블릿 마운트 패널에 태블릿 마운트를 적절한 높이로 설치합니다.

  7. 디스플레이 태블릿을 장착하고 태블릿을 호스트에 연결합니다(그림 9 참고). 플런저로 태블릿을 고정합니다.

    모듈식 태블릿 설치

    그림 9. 태블릿 설치

  8. 화면 작업을 더 쉽게 하려면 DUT를 설정한 후 장착합니다.

  9. DUT를 장착하고 호스트에 연결합니다.

  10. 카메라 모듈의 중심이 태블릿의 중심과 정렬되도록(또는 매우 가깝도록) DUT를 정렬합니다. 높이를 조정하려면 스마트폰 마운트 볼트를 느슨하게 하여 마운트를 위나 아래쪽으로 밉니다. 정렬되면 마운트 플런저로 DUT를 고정합니다.

    모듈식 DUT 설치

    그림 10. DUT 설치

  11. 조명의 경우 기본 장비의 조명 케이블을 다음 중 하나에 연결합니다.

    1. 12V 전원 공급 장치

      모듈식 12V 연결

      그림 11. 12V 전원 공급 장치에 연결된 조명

    2. 조명 컨트롤러(어댑터가 필요할 수 있음)

      모듈식 컨트롤러 연결

      그림 12. 조명 컨트롤러에 연결된 조명

모듈식 기본 장비 설정을 완료하면 호스트와 테스트 환경을 설정합니다(CTS 설정). config.yml 파일의 경우 다음 구성을 사용하세요.

  • chart\_distance = 22
  • lighting\_ch = [연결된 컨트롤러 채널], 또는 조명 컨트롤러를 사용하지 않는 경우 그대로 둡니다.

망원 확장 장비 설정

다음 단계를 따라 망원 확장 장비(선택사항)를 설정하세요.

  1. 공인 공급업체에서 모듈식 기본 장비와 망원 확장 장비를 구매합니다. 장비는 프로덕션 파일을 사용하여 빌드할 수 있지만 이는 권장되지 않습니다. 확장 장비에 맞춤 문제가 없도록 하려면 절단 및 조립이 정확해야 하기 때문입니다.

  2. 작동하는 모듈식 기본 장비와 망원 확장 장비가 있는지 확인합니다(그림 13 참고).

    망원 확장 장비가 있는 모듈식 기본 장비

    그림 13. 망원 확장 장비가 있는 모듈식 기본 장비

  3. 나일론 볼트 6개(양쪽에 3개)를 손으로 제거하여 스마트폰 마운트 패널을 분리합니다.

    모듈식 볼트 강조 표시 모듈식 볼트 제거 모듈식 전면 플레이트 제거

    그림 14. 강조 표시된 영역에서 나일론 볼트 6개를 손으로 제거

  4. 기본 장비와 망원 확장 장비를 테스트가 실행되는 표면에 놓습니다. 장착 지점에 가해지는 스트레스를 방지하려면 조립된 장비를 이동하지 않는 것이 좋습니다.

  5. 확장 장비 탭의 6개 슬롯이 기본 장비의 6개 구멍과 정렬되도록 확장 장비를 제자리에 놓습니다.

    모듈식 탭 정렬

    그림 15. 슬롯을 구멍에 맞춰 정렬

  6. 6개 볼트를 장치하여 확장 장비를 기본 장비에 연결합니다. 나사를 장치하는 동안 부드럽게 2개의 장비를 밀어 빛이 샐 틈이 없도록 합니다(필요하다면 동료에게 도움 요청). 손으로 볼트를 조입니다.

    모듈식 밀착

    그림 16. 기본 장비와 확장 장비 연결

  7. 조리개(또는 커튼)를 구성하고 스마트폰 마운트와 DUT를 설치합니다(기본 장비 설정 참고).

    모듈식 탭 정렬

    그림 17. 스마트폰 마운트와 DUT 연결

확장 장비 설정을 완료하면 호스트와 테스트 환경을 설정합니다(CTS 설정). config.yml 파일의 경우 다음 구성을 사용하세요.

  • chart_distance = [DUT에서 태블릿까지의 총거리]
  • lighting_ch = [연결된 컨트롤러 채널], 또는 조명 컨트롤러를 사용하지 않는 경우 그대로 둡니다.

확장 장비 제거

확장 장비를 제거하려면 설치 단계의 순서를 반대로 따르세요. 태블릿 마운트 패널을 설치할 때는 기본 장비에 대고 패널을 밀어 빛이 샐 틈이 없도록 합니다(그림 17 참고). 손으로 볼트를 조입니다.

모듈식 밀착

그림 18. 기본 장비에 태블릿 마운트 패널 밀착

자주 묻는 질문(FAQ)

ITS를 실행할 때 조명이 어두워 보이거나 조명 검증 오류가 표시되는 이유는 무엇인가요?

이 오류는 장비의 조명이 어두워질 때 발생하는데 이는 노후 또는 사용으로 인한 전원 공급 장치 및 LED의 성능 저하나 전원 공급 장치의 결함이 원인일 수 있습니다. 이 문제를 해결하려면 다음 단계를 따르세요.

  1. 조명이 제대로 작동하는지 확인합니다.

    • 전원 공급 장치를 교체합니다(UL 규격 12V, 최소 2A).
    • LED를 교체합니다(자세한 내용은 BOM을 참고하거나 공급업체에 문의).
  2. LED 조명의 럭스가 적절한 수준(100~130)인지 확인하려면 디지털 측정기를 사용하여 럭스를 테스트합니다. 이 예에서는 Contempo Views의 YF-1065 럭스 측정기를 사용합니다. 태블릿 측에 조도계를 놓고 2,000럭스로 돌려서 조도를 측정합니다(그림 20 참고).

    Contempo Views의 YF-1065

    그림 19. Contempo Views의 YF-1065

    럭스 측정기

    그림 20. 태블릿 마운트가 있는 쪽에서 조도를 측정하는 럭스 측정기

  3. 측정된 럭스 값에 따라 적절한 단계를 따릅니다.

    • 조도가 적절한 수준이면 전면 및 후면 플레이트를 나사로 제자리에 고정합니다.
    • 조도 수준이 적절하지 않으면 LED 및 전원 공급 장치 부품 번호가 올바른지 확인합니다.

주의사항

다음은 테스트 결함을 일으킬 수 있는 일반적인 제작 오류의 예입니다.

  • 태블릿이 있는 후면 패널에 구멍이 뚫려 있습니다. 이 구멍이 있어 나사 구멍에 의해 생성된 추가 원 때문에 find_circle 테스트가 실패합니다.

    구멍이 있는 후면 패널

    그림 21. 구멍이 뚫려 있는 후면 패널

  • 다월이 없습니다. 따라서 이동 중에 라이트 배플이 빠져나올 수 있습니다.

    다월 누락

    그림 22. 조명 배플에 다월이 없음

  • UL 규격이 아닌 전원 공급 장치를 사용했습니다. UL 규격의 전원 공급 장치를 사용해야 라벨 지정 사양이 충족됩니다. 규격 장치의 사용은 조명을 안전하게 작동하는 데 중요합니다.

    UL 규격 전원 공급 장치

    그림 23. UL 규격 전원 공급 장치의 예

  • 태블릿 또는 스마트폰 마운트의 나사가 살짝 끼워져 있어 태블릿 또는 스마트폰의 무게를 지탱할 수 없습니다. 이런 일은 일반적으로 손상된 나사산에 의해 일어날 수 있으며 조임이 헐거워졌다면 구멍을 다시 나사로 조여야 합니다.

    나사산이 손상된 구멍

    그림 24. 나사산이 손상된 구멍