ซื้อและตั้งค่าระบบแท่นขุดเจาะแบบโมดูลาร์

ระบบแท่นทดสอบแบบแยกส่วนรองรับการทดสอบอัตโนมัติของ ITS และประกอบด้วยกล่องพลาสติกที่ตัดด้วยการควบคุมเชิงตัวเลขด้วยคอมพิวเตอร์ (CNC) จากภาพวาดการออกแบบด้วยคอมพิวเตอร์ (CAD) แท็บเล็ตชาร์ต และอุปกรณ์ภายใต้การทดสอบ (DUT) ระบบแท่นขุดแบบแยกส่วน ประกอบด้วยแท่นขุดพื้นฐานและแท่นขุดแบบต่อขยายที่ไม่บังคับ แท่นวางแบบโมดูลาร์ มีระยะห่างของชาร์ตที่ 22 ซม. และสามารถทดสอบกล้องของอุปกรณ์เคลื่อนที่ที่มี FoV ตั้งแต่ 60 ถึง 120 องศา แท่นทดสอบพื้นฐานสามารถทำการทดสอบโดยหมุน 90 องศาโดยมี DUT อยู่ด้านบน (แสดงในรูปที่ 2)

แท่นต่อเลนส์เทเลโฟโต้รองรับการทดสอบกล้องที่มีระยะโฟกัสขั้นต่ำยาว (กล้องเทเลโฟโต้) โดยสามารถขันแท่นยึดส่วนขยายของเลนส์เทเลเข้ากับแท่นยึดฐาน และปรับแต่งความยาวตามข้อกำหนดในการทดสอบกล้องเมื่อ ซื้อผ่านผู้ให้บริการที่ผ่านการรับรอง ITS ของกล้องรองรับระยะชาร์ตสูงสุด 100 ซม. อุปกรณ์เสริมสำหรับ การถ่ายภาพระยะไกลมี 2 ประเภท ได้แก่ อุปกรณ์เสริมแบบยืดหยุ่นและอุปกรณ์เสริมแบบความยาวคงที่ Flexi-Tele rig ช่วยให้คุณทดสอบกับระยะทางของชาร์ตต่างๆ ได้ ส่วน Rig แบบความยาวคงที่จะ ให้คุณทดสอบกับระยะทางของชาร์ตเดียวเท่านั้น โดยอุปกรณ์ Flexi-Tele จะพร้อมให้บริการ ตั้งแต่เดือนมีนาคม 2026 เป็นต้นไป

ฐานแบบโมดูลาร์
Rev1.2

รูปที่ 1 แท่นฐานแบบโมดูลาร์

Modular rev1.2
90deg

รูปที่ 2 แท่นฐานแบบแยกส่วนหมุน 90 องศา

Flexi-Tele
rig

รูปที่ 3 อุปกรณ์ต่อขยาย Flexi-Tele จากผู้ให้บริการที่ได้รับอนุมัติ 2 ราย

ประวัติการแก้ไข

ตารางต่อไปนี้อธิบายประวัติการแก้ไขของระบบอุปกรณ์แบบแยกส่วนและ มีลิงก์ดาวน์โหลดไฟล์เวอร์ชันต่างๆ ที่ใช้ในการผลิต

วัน การแก้ไข การดาวน์โหลดไฟล์เวอร์ชันที่ใช้งานจริง บันทึกการเปลี่ยนแปลง
กันยายน 2024 1.2 Modular base rig rev1.2
  • (กันยายน 2024) มีการแก้ไขข้อผิดพลาดของไฟล์เวอร์ชันที่ใช้งานจริง
  • (กรกฎาคม 2024) รุ่นแรก

ซื้อระบบแท่นขุดเจาะแบบแยกส่วน

เราขอแนะนำให้ซื้อระบบแท่นขุดเจาะแบบแยกส่วน แท่นขุดเจาะแบบต่อขยายเสริม และ อุปกรณ์เสริมจากผู้ให้บริการที่มีคุณสมบัติตรงตามเกณฑ์รายใดรายหนึ่งต่อไปนี้

  • Byte Bridge Inc.
    USA: 1502 Crocker Ave, Hayward, CA 94544-7037
    China: 22F #06-08, Hongwell International Plaza Tower A, 1600 West Zhongshan Road, Xuhui, Shanghai, 200235
    www.bytebt.com
    androidpartner@bytebt.com
    USA: +1-510-373-8899
    China: +86-400-8866-490

  • JFT CO LTD 捷富通科技有限公司 (เดิมชื่อ MYWAY DESIGN)
    จีน: No. 40, Lane 22, Heai Road, Wujing Town, Minhang District, Shanghai, China
    ไต้หวัน: 4F., No. 163, Fu-Ying Road, XinZhuang District, New Taipei City 242, Taiwan
    www.jftcoltd.com
    service@jfttec.com หรือ its.sales@jfttec.com
    China:+86-021-64909136
    Taiwan: 886-2-29089060

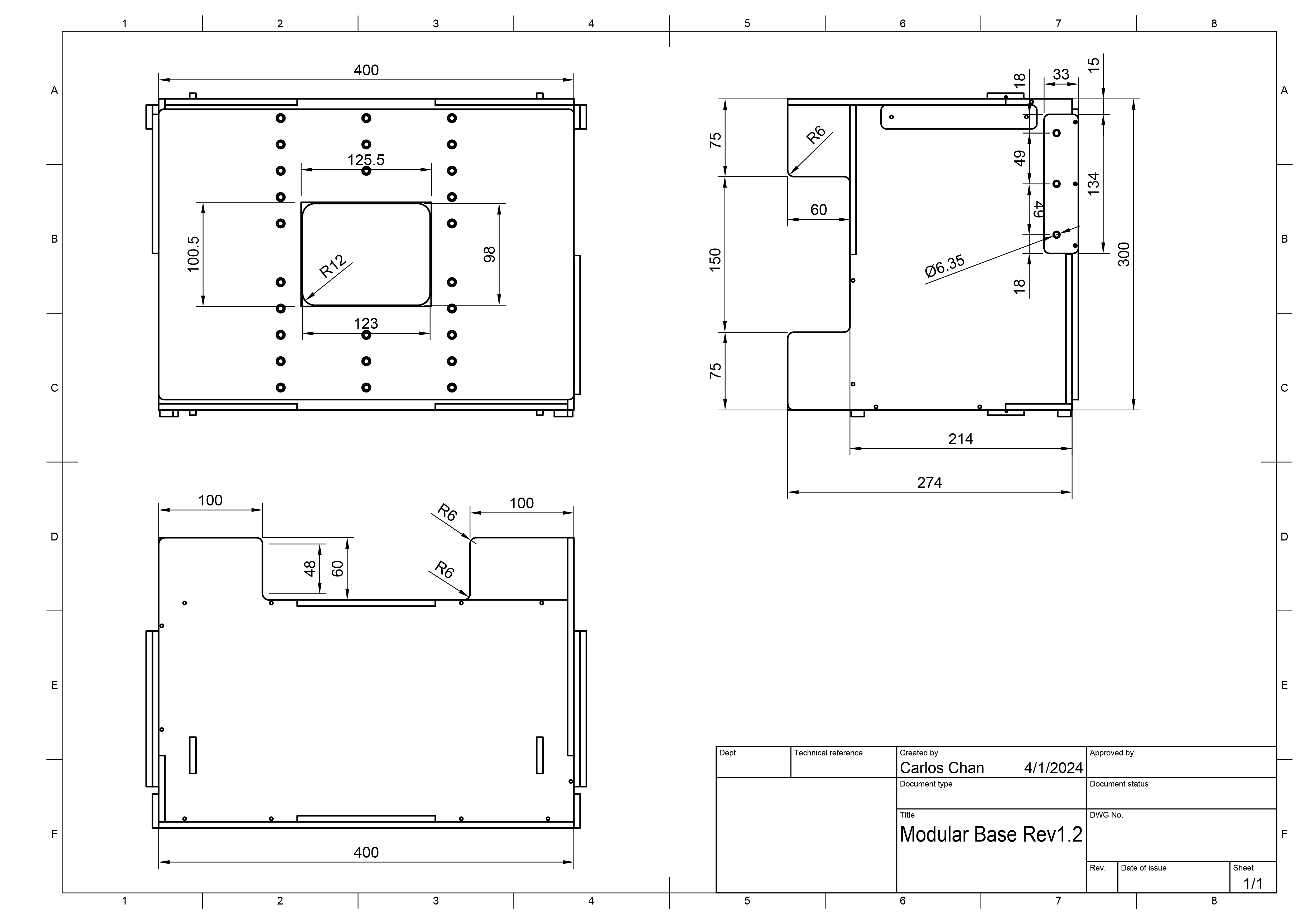
ภาพวาดทางกล

ต่อไปนี้คือภาพวาดทางเทคนิคของแท่นฐานแบบโมดูลาร์

ภาพวาด CAD ของฐานแบบโมดูล

รูปที่ 4 ภาพวาดทางกลของแท่นฐานแบบโมดูลาร์

การตั้งค่าริกพื้นฐาน

ทำตามขั้นตอนต่อไปนี้เพื่อตั้งค่าแท่นฐานแบบแยกส่วน

  1. ซื้อระบบแท่นขุดเจาะแบบแยกส่วนจากผู้ให้บริการที่มีคุณสมบัติ

  2. ตรวจสอบว่าคุณมีคอมโพเนนต์ทั้งหมดในตารางต่อไปนี้ (รายการที่แสดงใน รูปที่ 4)

    ส่วนประกอบ จำนวน
    แท่นฐานแบบโมดูลาร์ 1
    ขายึดสำหรับติดตั้งโทรศัพท์ 2
    ขายึดสำหรับติดตั้งแท็บเล็ต 1
    แหล่งจ่ายไฟ 12V (ได้รับการรับรองจาก UL, ขั้นต่ำ 1A) 1
    รูรับแสง 1

    Modular Base Rev1.2
Items

    รูปที่ 5 คอมโพเนนต์ฐานแบบแยกส่วน

  3. ตรวจสอบว่าคุณมีอุปกรณ์เสริมที่จำเป็นในตารางต่อไปนี้ (แสดงในรูปที่ 5) ทั้งนี้ขึ้นอยู่กับการตั้งค่าของคุณ คุณซื้ออุปกรณ์เสริมเหล่านี้ได้จาก ผู้ให้บริการที่มีคุณสมบัติ

    รายการ จำนวน
    ตัวควบคุมแสง (ควบคุมได้สูงสุด 3 ชุด) 1
    แหล่งจ่ายไฟ 5 โวลต์สำหรับตัวควบคุมแสง 1
    สาย DC Barrel ที่เชื่อมต่อไฟกับแท่นฐานแบบโมดูลาร์ 1
    อะแดปเตอร์สาย DC Barrel (5.5 มม. x 2.1 มม. ถึง 3.5 มม. x 1.35 มม.) 1
    สาย USB-A กับสาย USB 1
    ชุดอุปกรณ์พับได้ (หาก DUT เป็นอุปกรณ์พับได้) 1

    Modular Optional
Items

    รูปที่ 6 รายการที่ไม่บังคับสำหรับอุปกรณ์ฐานแบบโมดูลาร์

  4. ตรวจสอบว่าไม่มีแสงรั่วโดยทำอย่างใดอย่างหนึ่งต่อไปนี้

    1. สร้างช่องรับแสงให้พอดีกับโมดูลกล้องของ DUT และตรวจสอบว่าไม่มีแสงรั่ว (ดังแสดงในรูปที่ 6) คุณสามารถตัดรูรับแสง จากแผ่นโฟมที่ให้มาหรือกำหนดค่าจากผู้ให้บริการที่มีคุณสมบัติเหมาะสม สำหรับ การวางแนวตัวเลขที่เหมาะสม DUT ที่มีกล้องหลังหันไปทางแท่นทดสอบจะ หมุน 90° ทวนเข็มนาฬิกา และ DUT ที่มีกล้องหน้าหันไปทาง แท่นทดสอบจะหมุน 90° ตามเข็มนาฬิกา ตรวจสอบว่าได้กำหนดค่ารูรับแสง อย่างถูกต้อง

    รูรับแสงแบบโมดูลาร์
    การวางตำแหน่ง การตัด
    รูรับแสงแบบโมดูลาร์

    รูปที่ 7 สร้างรูรับแสงเพื่อป้องกันไม่ให้แสง รั่วไหล

    1. ใช้ผ้าคลุมสีเข้มเพื่อคลุมอุปกรณ์เพื่อป้องกันไม่ให้แสงรั่ว ไม่จำเป็นต้องมีรูรับแสง (แสดงในรูปที่ 7)

    Modular Drapery

    รูปที่ 8 ป้องกันแสงรั่วโดยใช้ผ้าม่าน

  5. ติดตั้งที่ยึดโทรศัพท์มาตรฐานหรือที่ยึดโทรศัพท์แบบพับได้บนแผงยึดโทรศัพท์ด้านหน้า ที่ความสูงที่เหมาะสมโดยใช้สลักเกลียวและน็อตไนลอนตามที่แสดงในรูปที่ 8

    รูรับแสงและเมาท์แบบโมดูล
ติดตั้ง

    รูปที่ 9 การติดตั้งรูรับแสงและที่ยึดโทรศัพท์

  6. ติดตั้งตัวยึดแท็บเล็ตบนแผงยึดแท็บเล็ตที่ความสูงที่เหมาะสม โดยใช้สลักเกลียวและน็อตไนลอน

  7. ติดตั้งแท็บเล็ตจอแสดงผลและเชื่อมต่อแท็บเล็ตกับโฮสต์ตามที่แสดงใน รูปที่ 9 ยึดแท็บเล็ตด้วยที่ดูด

    ติดตั้งแท็บเล็ตแบบโมดูล

    รูปที่ 10 การติดตั้งแท็บเล็ต

  8. ตั้งค่า DUT ก่อนติดตั้ง DUT เพื่อให้การดำเนินการบนหน้าจอเป็นไปได้ง่ายขึ้น

  9. ติดตั้ง DUT และเชื่อมต่อกับโฮสต์

  10. จัดแนว DUT เพื่อให้กึ่งกลางของโมดูลกล้องอยู่ในแนวเดียวกับ (หรือ ใกล้เคียงมาก) กึ่งกลางของแท็บเล็ต หากต้องการปรับความสูง ให้คลาย สลักเกลียวสำหรับติดตั้งโทรศัพท์ แล้วเลื่อนตัวยึดขึ้นหรือลง เมื่อจัดแนวแล้ว ให้ยึด DUT ด้วยลูกสูบของแท่นยึด

    DUT แบบโมดูลาร์
ติดตั้ง

    รูปที่ 11 การติดตั้ง DUT

  11. สำหรับการให้แสงสว่าง ให้ต่อสายไฟจากแท่นฐานไปยังอุปกรณ์ใดอุปกรณ์หนึ่งต่อไปนี้

    1. แหล่งจ่ายไฟ 12V

    การเชื่อมต่อ
    12V แบบโมดูลาร์

    รูปที่ 12 ไฟที่เชื่อมต่อกับแหล่งจ่ายไฟ 12 โวลต์

    1. ตัวควบคุมไฟ (อาจต้องใช้อะแดปเตอร์)

    การเชื่อมต่อ
    ตัวควบคุมแบบแยกส่วน

    รูปที่ 13 หลอดไฟที่เชื่อมต่อกับตัวควบคุมแสงสว่าง

เมื่อตั้งค่าแท่นฐานแบบโมดูลาร์เสร็จแล้ว ให้ตั้งค่าโฮสต์และ สภาพแวดล้อมการทดสอบ (ตั้งค่า CTS) สำหรับไฟล์ config.yml ให้ใช้การกำหนดค่าต่อไปนี้

  • chart\_distance = 22
  • lighting\_ch = [connected controller channel] หรือปล่อยไว้ตามเดิมหากไม่ได้ใช้ ตัวควบคุมแสง

การตั้งค่าอุปกรณ์เสริม Flexi-Tele

หากซื้อแท่นยึดฐานแบบโมดูลก่อนเดือนมีนาคม 2026 คุณอาจต้อง ดัดแปลงเล็กน้อยเพื่อให้ใช้งานร่วมกับส่วนขยาย Flexi-Tele ได้ การดัดแปลงนี้ช่วยแก้ปัญหาที่แผ่นด้านหน้าบดบังมุมมองของกล้องเทเลโฟโต้ของ DUT และยังใช้กับอุปกรณ์เสริมเทเลโฟโต้แบบความยาวคงที่ได้ด้วย

ทำตามขั้นตอนต่อไปนี้เพื่อติดตั้งอุปกรณ์เสริมฐานยึดแบบโมดูลาร์

  1. ถอดสกรู 4 ตัวที่ด้านบนของแท่นยึดที่ยึดเพลตด้านหน้า รวมถึงสกรู 4 ตัวที่ด้านล่าง

    Modular Retrofit Remove
Screws

    รูปที่ 14 สกรูบนแท่นยึดที่ยึดเพลตด้านหน้า

  2. (ไม่บังคับ) ยึดเพลตยึดโทรศัพท์กับเพลตด้านหน้าด้วยน็อตหรือกาว เพื่อให้เพลตหลุดออกมาพร้อมกัน

    แผ่นเพลตสลักเกลียวแบบประกอบรวมกันได้

    รูปที่ 15 สลักเกลียวสำหรับเพลตยึดโทรศัพท์และ เพลตด้านหน้า

  3. (ไม่บังคับ) หากอุปกรณ์มีสายไฟส่องสว่างจากล่างขึ้นบนติดอยู่กับ แผ่นด้านหน้า ให้ย้ายไปด้านข้างโดยใช้เทปพันสายไฟหรือตัวยึด แบบเคเบิลไทร์

    การดัดแปลงแบบโมดูลาร์
ย้ายสายเคเบิล

    รูปที่ 16 ย้ายสายไฟของไฟจากด้านล่างขึ้นด้านบน ไปไว้ด้านข้าง

  4. ต่อแท่นฐานแบบแยกส่วนเข้ากับแท่นต่อขยายแบบยืดหยุ่น

วิดีโอสาธิต

วิดีโอนี้แสดงวิธีตั้งค่าอุปกรณ์ต่อขยาย Flexi-Tele

การตั้งค่าอุปกรณ์เสริมสำหรับเลนส์เทเลโฟโต้แบบความยาวคงที่

ทำตามขั้นตอนต่อไปนี้เพื่อตั้งค่าอุปกรณ์เสริมสำหรับเลนส์เทเล

  1. ซื้อแท่นฐานแบบแยกส่วนและแท่นต่อขยายแบบเทเลกับผู้ให้บริการที่มีคุณสมบัติ คุณสร้างริกโดยใช้ไฟล์การผลิตได้ แต่เราไม่แนะนำให้ทำเช่นนี้เนื่องจากการตัดและการประกอบต้องแม่นยำเพื่อให้แน่ใจว่าริกส่วนขยายจะไม่มีปัญหาเรื่องความพอดี

  2. ตรวจสอบว่าคุณมีแท่นฐานแบบแยกส่วนที่ใช้งานได้และแท่นต่อขยายแบบเทเล (ดังที่แสดงในรูปที่ 13)

    Modular tele

    รูปที่ 17 แท่นยึดแบบโมดูลาร์พร้อมส่วนขยายแบบเทเล

  3. ถอดแผงยึดโทรศัพท์โดยถอดสลักเกลียวไนลอน 6 ตัวด้วยมือ (3 ตัวในแต่ละด้าน)

    สลักแบบโมดูล
ไฮไลต์ การถอดสลักแบบโมดูล
แผ่นด้านหน้าแบบโมดูล
ปิด

    รูปที่ 18 ถอดสลักเกลียวไนลอน 6 ตัวในพื้นที่ที่ไฮไลต์ ออกด้วยมือ

  4. วางแท่นยึดฐานและแท่นยึดส่วนขยายของเลนส์เทเลโฟโต้บนพื้นผิวที่จะใช้ทดสอบ เราไม่แนะนำให้เคลื่อนย้ายอุปกรณ์ที่ประกอบแล้วเพื่อหลีกเลี่ยงไม่ให้จุดยึดรับน้ำหนักมากเกินไป

  5. วางแท่นต่อให้ตรงตำแหน่งเพื่อให้ช่อง 6 ช่องในแท็บแท่นต่อ ตรงกับรู 6 รูบนแท่นฐาน

    การจัดแนวแบบโมดูล
แท็บ

    รูปที่ 19 จัดแนวช่องให้ตรงกับรู

  6. ติดแท่นขยายเข้ากับแท่นฐานโดยขันน็อต 6 ตัว ขณะขันสกรู ให้ค่อยๆ ดันแท่นยึด 2 อันเข้าด้วยกันเพื่อให้แน่ใจว่าไม่มีช่องว่างที่แสงจะรั่วออกมา (ขอความช่วยเหลือจากเพื่อนร่วมงานหากจำเป็น) ขันโบลต์ด้วยมือ

    การพุชแบบโมดูลาร์
ร่วมกัน

    รูปที่ 20 การติดริกฐานและริกส่วนขยาย

  7. กำหนดค่ารูรับแสง (หรือผ้าม่าน) และติดตั้งที่ยึดโทรศัพท์และ DUT ตามที่อธิบายไว้ในการตั้งค่าแท่นวางพื้นฐาน

    การจัดแนวแบบโมดูล
แท็บ

    รูปที่ 21 การติดที่ยึดโทรศัพท์และ DUT

เมื่อตั้งค่าอุปกรณ์เสริมเสร็จแล้ว ให้ตั้งค่าโฮสต์และ สภาพแวดล้อมการทดสอบ (ตั้งค่า CTS) สำหรับไฟล์ config.yml ให้ใช้การกำหนดค่าต่อไปนี้

  • chart_distance = [ระยะทางทั้งหมดจาก DUT ไปยังแท็บเล็ต]
  • lighting_ch = [connected control channel] หรือปล่อยไว้ตามเดิมหากไม่ได้ใช้ ตัวควบคุมแสง

ถอนการติดตั้งริกส่วนขยาย

หากต้องการถอนการติดตั้งริกส่วนขยาย ให้ทำตามขั้นตอนการติดตั้งย้อนกลับ เมื่อ ติดตั้งแผงยึดแท็บเล็ต ให้ดันแผงกับแท่นฐานเพื่อ ให้แน่ใจว่าไม่มีช่องว่างที่แสงจะลอดผ่านได้ (ดังที่แสดงในรูปที่ 17) ขันโบลต์ด้วยมือ

การพุชแบบโมดูล
ร่วมกัน

รูปที่ 22 ดันแผงยึดแท็บเล็ตกับฐาน แท่น

คำถามที่พบบ่อย

ทำไมฉากจึงถูกครอบในอุปกรณ์การถ่ายทอดสด

การครอบตัด
แบบโมดูล

รูปที่ 23 ฉากที่ครอบตัดโดยเพลตโทรศัพท์ในฐานรอง

กรณีนี้จะเกิดขึ้นเมื่อเพลตโทรศัพท์บดบังฟิลด์ของเลนส์เทเล ระหว่างริกฐานกับส่วนขยายเทเล โปรดถอดเพลตโทรศัพท์ออกด้วยไขควงก่อนดำเนินการทดสอบต่อ

ถอดแผ่นโทรศัพท์แบบโมดูลออก

รูปที่ 24 การถอดเพลตโทรศัพท์ในฐานยึด

ทำไมไฟจึงดูมัวหรือทำไมข้อผิดพลาดในการตรวจสอบแสงจึงปรากฏขึ้นเมื่อ เรียกใช้ ITS

ข้อผิดพลาดนี้จะเกิดขึ้นเมื่อแสงสว่างในอุปกรณ์สว่างน้อยลง ซึ่งอาจเกิดจากแหล่งจ่ายไฟและ LED เสื่อมสภาพเนื่องจากอายุการใช้งานหรือการใช้งาน หรือแหล่งจ่ายไฟที่ชำรุด หากต้องการแก้ไขปัญหานี้ โปรดทำตามขั้นตอนต่อไปนี้

  1. ตรวจสอบว่าแสงสว่างทำงานอย่างถูกต้อง

    • เปลี่ยนแหล่งจ่ายไฟ (12 โวลต์ที่ได้รับการรับรองจาก UL, 2 แอมป์ขั้นต่ำ)
    • เปลี่ยน LED (ดู BOM หรือติดต่อผู้ให้บริการเพื่อขอข้อมูลเพิ่มเติม)
  2. ทดสอบลักซ์โดยใช้มิเตอร์แบบดิจิทัลเพื่อให้แน่ใจว่าลักซ์ของไฟ LED อยู่ในระดับที่เหมาะสม (100–300) (เครื่องวัดความสว่าง YF-1065 ของ Contempo Views ใช้ใน ตัวอย่างนี้) วางเครื่องวัดแสงไว้ที่ด้านแท็บเล็ตและหมุนไปที่ 2000 ลักซ์เพื่อวัดแสง (แสดงในรูปที่ 21)

    YF-1065 โดย Contempo Views

    รูปที่ 25 YF-1065 โดย Contempo Views

    เครื่องวัดความสว่าง

    รูปที่ 26 เครื่องวัดลักซ์วัดแสงจากด้านข้าง พร้อมแท่นยึดแท็บเล็ต

  3. ทำตามขั้นตอนที่เหมาะสมโดยขึ้นอยู่กับค่าลักซ์ที่วัดได้ ดังนี้

    • หากไฟอยู่ในระดับที่ถูกต้อง ให้ขันแผ่นด้านหน้าและด้านหลัง เข้าที่
    • หากไฟสว่างไม่ถูกต้อง ให้ตรวจสอบว่าหมายเลขชิ้นส่วนของ LED และแหล่งจ่ายไฟถูกต้อง

สิ่งที่ควรระวัง

ต่อไปนี้คือตัวอย่างข้อผิดพลาดในการผลิตที่พบบ่อยซึ่งอาจทำให้การทดสอบไม่เสถียร

  • แผงด้านหลังที่มีรูสำหรับแท็บเล็ต ซึ่งทำให้find_circle การทดสอบล้มเหลวเนื่องจากวงกลมพิเศษที่เกิดจากรูสกรู

    แผงด้านหลังที่มีรู

    รูปที่ 27 แผงด้านหลังที่มีรู

  • ไม่มีเดือย ซึ่งทำให้แผ่นกั้นแสงหลุดออกระหว่างการจัดส่ง

    ไม่มีเดือย

    รูปที่ 28 ไม่มีเดือยบนแผ่นกั้นแสง

  • แหล่งจ่ายไฟที่ไม่ได้อยู่ในรายการ UL การใช้อุปกรณ์จ่ายไฟที่ได้รับการรับรองจาก UL เป็นไปตามข้อกำหนดที่ระบุ ซึ่งเป็นสิ่งสำคัญในการใช้งานไฟอย่างปลอดภัย

    แหล่งจ่ายไฟที่ได้รับการรับรองจาก UL

    รูปที่ 29 ตัวอย่างแหล่งจ่ายไฟที่ได้รับการรับรองจาก UL

  • สกรูที่ลื่นบนแท็บเล็ตหรือที่ยึดโทรศัพท์ซึ่งรับน้ำหนักของแท็บเล็ตหรือโทรศัพท์ไม่ได้ โดยปกติแล้วจะเกิดจากเกลียวที่ชำรุดและ บ่งชี้ว่าต้องทำเกลียวใหม่

    รูที่มีเกลียวเสียหาย

    รูปที่ 30 รูที่มีเกลียวชำรุด