Compra y configura un sistema de estructura modular

El sistema de soporte modular admite la automatización de pruebas de ITS y consta de una caja de plástico cortada con control numérico computarizado (CNC) a partir de dibujos de diseño asistido por computadora (CAD), una tableta de gráficos y un dispositivo en prueba (DUT). El sistema de soporte modular consta de un soporte base y un soporte de extensión telescópica opcional. La estructura de base modular tiene una distancia de gráfico de 22 cm y puede probar cámaras de dispositivos móviles con un ángulo de visión de 60 a 120 grados. La estructura base puede realizar pruebas con el dispositivo girado 90 grados y con el DUT en la parte superior (como se muestra en la Figura 2).

El soporte de extensión de teleobjetivo permite probar cámaras que tienen una distancia de enfoque mínima larga (cámaras de teleobjetivo). La estructura de soporte de la extensión de teleobjetivo se atornilla a la estructura de soporte base, y la longitud se puede personalizar según los requisitos de prueba de la cámara cuando se compra a través de los proveedores calificados. El ITS de la cámara admite distancias de gráficos de hasta 100 cm.

Base modular Rev1.2

Figura 1: Es una estructura base modular.

Modular rev1.2 90deg

Figura 2: La estructura de soporte modular básica se rotó 90 grados.

Historial de revisión

En la siguiente tabla, se describe el historial de revisión del sistema de estructura modular y se incluyen vínculos de descarga a cada versión de los archivos de producción.

Fecha Revisión Descarga de archivos de producción Registro de cambios
Septiembre de 2024 1.2 Modular base rig rev1.2
  • (Septiembre de 2024) Se incluyen correcciones para un error en el archivo de producción.
  • (Julio de 2024) Lanzamiento inicial

Compra un sistema de soporte modular

Te recomendamos que compres el sistema de soporte modular, el soporte de extensión para el teléfono opcional y los accesorios de uno de los siguientes proveedores calificados.

  • Byte Bridge Inc.
    EE.UU.: 1502 Crocker Ave, Hayward, CA 94544-7037
    China: 22F #06-08, Hongwell International Plaza Tower A, 1600 West Zhongshan Road, Xuhui, Shanghái, 200235
    www.bytebt.com
    androidpartner@bytebt.com
    EE.UU.: +1-510-373-8899
    China: +86-400-8866-490

  • JFT CO LTD 捷富通科技有限公司 (anteriormente conocida como MYWAY DESIGN)
    China: No. 40, Lane 22, Heai Road, Wujing Town, Minhang District, Shanghai, China
    Taiwán: 4F., Núm. 163, Fu-Ying Road, distrito de XinZhuang, ciudad de Nueva Taipéi 242, Taiwán
    www.jftcoltd.com
    service@jfttec.com o its.sales@jfttec.com
    China:+86-021-64909136
    Taiwán: 886-2-29089060

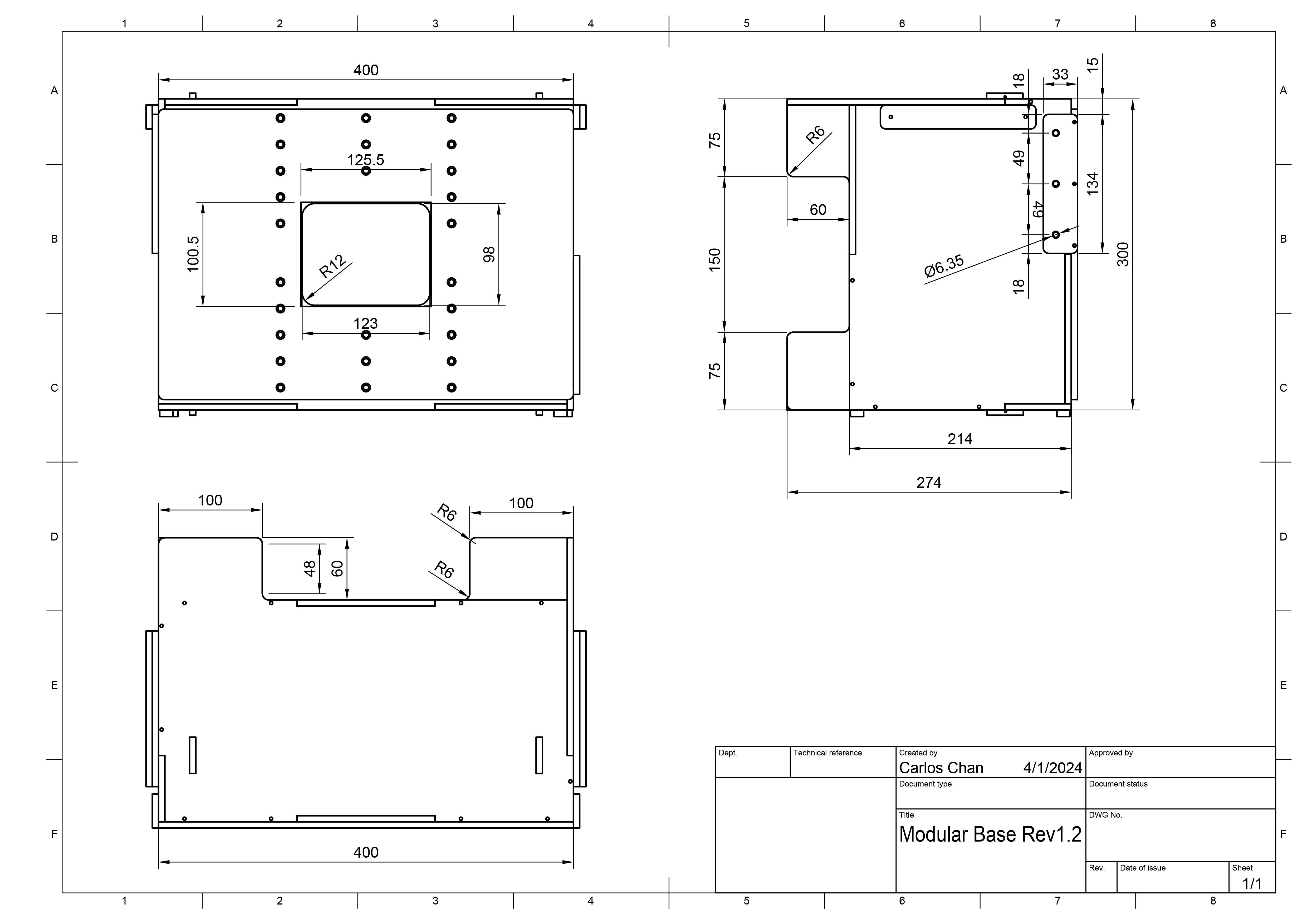
Planos mecánicos

A continuación, se muestra un dibujo mecánico de la estructura base modular.

Dibujo CAD de la base modular

Figura 3: Dibujo mecánico de la estructura de soporte modular

Configuración básica de la estructura

Sigue estos pasos para configurar una estructura base modular.

  1. Compra un sistema de estructura modular a un proveedor calificado.

  2. Asegúrate de tener todos los componentes que se muestran en la siguiente tabla (elementos que se muestran en la Figura 4).

    Componente Cantidad
    Estructura base modular 1
    Soporte para teléfono 2
    Soporte de montaje para tablet 1
    Fuente de alimentación de 12 V (con certificación UL, 1 A como mínimo) 1
    Apertura 1

    Elementos de la base modular Rev1.2

    Figura 4: Componentes de estructura base modulares.

  3. Según tu configuración, asegúrate de tener los accesorios necesarios que se indican en la siguiente tabla (que se muestra en la Figura 5). Estos accesorios se pueden comprar en un proveedor calificado.

    Artículo Cantidad
    Controlador de iluminación (puede controlar hasta 3 plataformas) 1
    Fuente de alimentación de 5 V para el controlador de iluminación 1
    Cable coaxial de CC que conecta la iluminación a la estructura modular de la base 1
    Adaptador de cable de barril de CC (5.5 mm x 2.1 mm a 3.5 mm x 1.35 mm) 1
    Cable USB A a cable USB 1
    Kit de plegado (si el DUT es un dispositivo plegable) 1

    Artículos opcionales modulares

    Figura 5: Son elementos opcionales para la estructura base modular.

  4. Para asegurarte de que no haya fugas de luz, haz una de las siguientes acciones:

    1. Fabrica una abertura que se ajuste al módulo de la cámara del DUT y asegúrate de que no haya fugas de luz (como se muestra en la Figura 6). Las aberturas se pueden cortar de los paneles de espuma proporcionados o configurarlas con un proveedor calificado. Para una correcta orientación de la figura, los DUTs con la cámara posterior orientada hacia el soporte se rotan 90° en sentido contrario a las agujas del reloj, y los DUTs con la cámara frontal orientada hacia el soporte se rotan 90° en el sentido de las agujas del reloj. Asegúrate de que los diafragmas estén configurados según corresponda.

      Posicionamiento de la apertura modular Corte de apertura modular

      Figura 6: Fabrica aberturas para evitar fugas de luz.

    2. Usa una tela oscura para cubrir la estructura y evitar fugas de luz. No se requieren aberturas. (se muestra en la figura 7).

      Cortinas modulares

      Figura 7: Evita la fuga de luz con una cortina.

  5. Instala un soporte para teléfono estándar o plegable en el panel de soporte frontal del teléfono a una altura adecuada con un tornillo y una tuerca de nailon, como se muestra en la Figura 8.

    Instalación de la apertura y el soporte modulares

    Figura 8: Instalación de la apertura y el soporte para el teléfono

  6. Instala el soporte para la tablet en el panel de montaje de la tablet a una altura adecuada con un tornillo y una tuerca de nailon.

  7. Monta la tablet de la pantalla y conéctala al host como se muestra en la figura 9. Asegura la tablet con un vástago.

    Instalación modular de la tablet

    Figura 9: Instalación de la tablet

  8. Para facilitar el funcionamiento en pantalla, configura el DUT antes de colocarlo en el soporte.

  9. Monta el DUT y conéctalo al host.

  10. Alinea el DUT de modo que el centro del módulo de la cámara quede alineado con el centro de la tablet (o muy cerca de él). Para ajustar la altura, afloja los tornillos de la base para el teléfono y desliza la base hacia arriba o hacia abajo. Cuando esté alineado, asegura el DUT con el vástago del soporte.

    Instalación modular del DUT

    Figura 10: Instalación del DUT

  11. Para la iluminación, conecta el cable de iluminación de la estructura base a uno de los siguientes elementos:

    1. Fuente de alimentación de 12 V

      Conexión modular de 12 V

      Figura 11: Luz conectada a una fuente de alimentación de 12 V.

    2. Controlador de iluminación (es posible que se necesite un adaptador)

      Conexión del controlador modular

      Figura 12: Luz conectada al controlador de iluminación.

Cuando hayas completado la configuración del soporte base modular, configura el host y el entorno de prueba (Set up CTS). Para el archivo config.yml, usa la siguiente configuración:

  • chart\_distance = 22
  • lighting\_ch = [canal del controlador conectado] o déjalo como está si no usas un controlador de iluminación.

Configuración del soporte de extensión de la cámara

Sigue estos pasos para configurar el soporte opcional para el teleobjetivo.

  1. Compra el soporte base modular y el soporte de extensión para el teléfono con un proveedor calificado. La estructura se puede construir con los archivos de producción, pero no se recomienda porque el corte y el ensamblaje deben ser precisos para garantizar que la estructura de extensión no tenga problemas de ajuste.

  2. Asegúrate de tener una estructura base modular que funcione y una estructura de extensión de tele (como se muestra en la Figura 13).

    Tele modular

    Figura 13: Base modular con extensión de tele.

  3. Quita el panel de soporte del teléfono quitando los 6 tornillos de nailon con la mano (3 de cada lado).

    Destacado de tornillo modular Cómo quitar el tornillo modular Placa frontal modular desactivada

    Figura 14: Quita los 6 tornillos de nailon del área destacada con la mano.

  4. Coloca la estructura base y la estructura de extensión del teléfono en la superficie donde se realizarán las pruebas. Para evitar ejercer presión sobre los puntos de montaje, no recomendamos mover la estructura ensamblada.

  5. Coloca el soporte de extensión de modo que las 6 ranuras de la lengüeta del soporte de extensión se alineen con los 6 orificios del soporte base.

    Pestaña de alineación modular

    Figura 15: Alinea las ranuras con los orificios.

  6. Instala los 6 tornillos para fijar la estructura de extensión a la estructura base. Mientras instalas los tornillos, empuja suavemente los 2 soportes para asegurarte de que no haya espacios por los que se filtre la luz (pídele ayuda a un compañero si es necesario). Ajusta los tornillos con la mano.

    Modular, se ensambla a presión

    Figura 16: Cómo conectar la base y los soportes de extensión

  7. Configura la apertura (o cortina) y, luego, instala los soportes para teléfonos y los DUT según se describe en Configuración de la estructura base.

    Pestaña de alineación modular

    Figura 17: Cómo colocar los soportes del teléfono y el DUT

Cuando hayas completado la configuración del soporte de extensión, configura el host y el entorno de prueba (Set up CTS). Para el archivo config.yml, usa la siguiente configuración:

  • chart_distance = [distancia total desde el DUT hasta la tablet]
  • lighting_ch = [canal de control conectado] o déjalo como está si no usas un controlador de iluminación.

Cómo desinstalar la estructura de la extensión

Para desinstalar la estructura de soporte de la extensión, sigue los pasos de instalación en orden inverso. Cuando instales el panel de soporte de la tablet, presiónalo contra la estructura base para asegurarte de que no haya espacios por los que se filtre la luz (como se muestra en la Figura 17). Ajusta los tornillos manualmente.

Modular, se ensambla a presión

Figura 18: Presiona el panel de soporte de la tablet contra la estructura base.

Preguntas frecuentes

¿Por qué se recorta la escena en un equipo de tele?

Recorte de estructura modular

Figura 19: La escena se recorta con la placa del teléfono en el soporte base.

Esto sucede cuando la placa del teléfono bloquea el campo de visión de un teleobjetivo entre la estructura base y la extensión del teleobjetivo. Asegúrate de quitar la placa del teléfono con un destornillador antes de continuar con la prueba.

Se quitó la placa modular del teléfono

Figura 20: Cómo quitar la placa del teléfono de la estructura base

¿Por qué las luces parecen tenues o por qué aparece un error de validación de iluminación cuando se ejecuta ITS?

Este error se activa cuando la iluminación de la estructura se atenúa, lo que puede deberse a la degradación de la fuente de alimentación y los LED por el paso del tiempo o el uso, o a una fuente de alimentación defectuosa. Para resolver este problema, sigue estos pasos:

  1. Asegúrate de que la iluminación funcione correctamente:

    • Reemplaza la fuente de alimentación (12 voltios con certificación UL, 2 A como mínimo).
    • Reemplaza el LED (consulta la lista de materiales o comunícate con el proveedor para obtener más información).
  2. Para asegurarte de que el lux de las luces LED esté en el nivel adecuado (100 a 300), prueba el lux con un medidor digital. (En este ejemplo, se usa el luxómetro YF-1065 de Contempo Views). Coloca el medidor de luz en el lado de la tablet y gíralo hasta 2,000 lux para medir la luz (como se muestra en la Figura 21).

    YF-1065 de Contempo Views

    Figura 21: YF-1065 de Contempo Views.

    Luxómetro

    Figura 22: Un luxómetro mide la luz desde un costado con el soporte para tablet.

  3. Según el valor de lux medido, sigue el paso correspondiente:

    • Si la luz está en el nivel correcto, atornilla las placas frontal y posterior en el cordón.
    • Si la luz no tiene el nivel correcto, verifica que el número de pieza de la fuente de alimentación y el LED sean correctos.

Aspectos que se deben tener en cuenta

A continuación, se muestran ejemplos de errores de fabricación comunes que pueden hacer que las pruebas sean poco confiables.

  • Panel posterior con orificios para la tablet. Esto hace que la prueba find_circle falle debido a los círculos adicionales creados por los orificios para tornillos.

    Panel posterior con orificios

    Figura 23: Panel posterior con orificios.

  • Faltan las clavijas. Esto hace que los deflectores de luz se salgan durante el envío.

    Falta la clavija

    Figura 24: Falta la clavija en el deflector de luz.

  • Fuente de alimentación que no está en la lista de UL. Usar una fuente de alimentación con certificación UL que cumpla con las especificaciones indicadas Esto es importante para operar la iluminación de forma segura.

    Fuente de alimentación con certificación UL

    Figura 25: Ejemplo de una fuente de alimentación con certificación de UL.

  • Tornillos que se deslizan en el soporte para tablet o teléfono y que no pueden soportar el peso de una tablet o un teléfono Por lo general, esto se debe a que las roscas están dañadas y significa que se debe volver a roscar el orificio.

    Orificio con roscas dañadas

    Figura 26: Orificio con roscas dañadas