Mua và thiết lập hệ thống giàn đỡ dạng mô-đun

Hệ thống giàn đỡ dạng mô-đun hỗ trợ hoạt động kiểm thử tự động của ITS và bao gồm một hộp nhựa được cắt bằng công nghệ Điều khiển số bằng máy tính (CNC) từ bản vẽ thiết kế có sự trợ giúp của máy tính (CAD), một bảng biểu và một thiết bị đang được kiểm thử (DUT). Hệ thống giàn giáo dạng mô-đun bao gồm một giàn giáo cơ bản và một giàn giáo mở rộng từ xa (không bắt buộc). Giá đỡ cơ sở dạng mô-đun có khoảng cách biểu đồ là 22 cm và có thể kiểm thử camera của thiết bị di động có FoV từ 60 độ đến 120 độ. Giàn thử nghiệm cơ bản có thể thực hiện kiểm thử xoay 90 độ với DUT ở trên cùng (như trong Hình 2).

Thiết bị mở rộng ống kính tele hỗ trợ kiểm thử các camera có khoảng cách lấy nét tối thiểu lớn (camera tele). Giá đỡ ống kính tele được bắt vít vào giá đỡ cơ bản và bạn có thể tuỳ chỉnh độ dài dựa trên yêu cầu kiểm thử camera khi mua thông qua nhà cung cấp đủ tiêu chuẩn. Camera ITS hỗ trợ khoảng cách biểu đồ lên đến 100 cm. Có hai loại giàn đỡ ống lồng, đó là giàn đỡ ống lồng linh hoạt và giàn đỡ ống lồng có chiều dài cố định. Thiết bị linh hoạt cho phép bạn kiểm thử với nhiều khoảng cách biểu đồ, trong khi thiết bị có độ dài cố định chỉ cho phép bạn kiểm thử với một khoảng cách biểu đồ duy nhất. Thiết bị flexi-tele sẽ có mặt từ tháng 3 năm 2026.

Đế mô-đun Rev1.2

Hình 1. Giàn khoan cơ sở dạng mô-đun.

Mô-đun rev1.2 90 độ

Hình 2. Giá đỡ cơ sở dạng mô-đun được xoay 90 độ.

Flexi-Tele
rig

Hình 3. Thiết bị Flexi-Tele của 2 nhà cung cấp được phê duyệt.

Nhật ký sửa đổi

Bảng sau đây mô tả nhật ký sửa đổi của hệ thống giàn mô-đun và bao gồm các đường liên kết tải xuống cho từng phiên bản của tệp sản xuất.

Ngày Bản sửa đổi Tải tệp sản xuất xuống Nhật ký thay đổi
Tháng 9/2024 1.2 Modular base rig rev1.2
  • (Tháng 9 năm 2024) Bao gồm các bản sửa lỗi cho lỗi tệp phát hành công khai
  • (Tháng 7 năm 2024) Phiên bản phát hành ban đầu

Mua hệ thống giàn đỡ dạng mô-đun

Bạn nên mua hệ thống giàn đỡ dạng mô-đun, giàn đỡ ống nối dài (không bắt buộc) và các phụ kiện của một trong những nhà cung cấp đủ tiêu chuẩn sau.

  • Byte Bridge Inc.
    Hoa Kỳ: 1502 Crocker Ave, Hayward, CA 94544-7037
    Trung Quốc: 22F #06-08, Hongwell International Plaza Tower A, 1600 West Zhongshan Road, Xuhui, Shanghai, 200235
    www.bytebt.com
    androidpartner@bytebt.com
    Hoa Kỳ: +1-510-373-8899
    Trung Quốc: +86-400-8866-490

  • JFT CO LTD 捷富通科技有限公司 (trước đây là MYWAY DESIGN)
    Trung Quốc: No. 40, Lane 22, Heai Road, Wujing Town, Minhang District, Shanghai, China
    Đài Loan: 4F., No. 163, Fu-Ying Road, XinZhuang District, New Taipei City 242, Taiwan
    www.jftcoltd.com
    service@jfttec.com hoặc its.sales@jfttec.com
    Trung Quốc:+86-021-64909136
    Đài Loan: 886-2-29089060

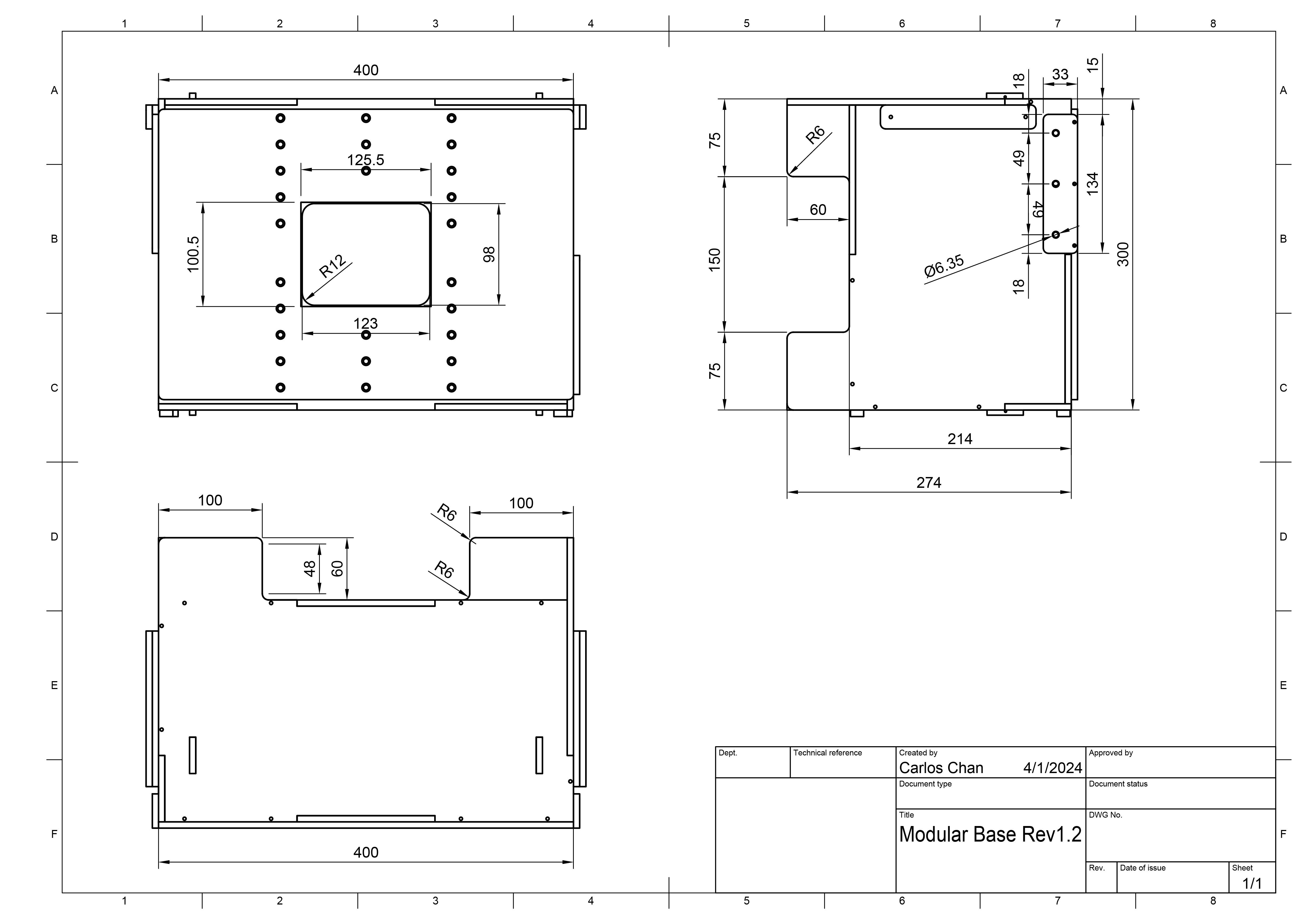
Bản vẽ cơ khí

Sau đây là bản vẽ cơ khí của giàn đế mô-đun.

Bản vẽ CAD của Đế mô-đun

Hình 4. Bản vẽ cơ khí của giàn khoan cơ sở dạng mô-đun

Thiết lập giàn khoan cơ sở

Làm theo các bước sau để thiết lập một giàn giáo cơ sở dạng mô-đun.

  1. Mua hệ thống giàn đỡ dạng mô-đun của một nhà cung cấp đủ tiêu chuẩn.

  2. Đảm bảo bạn có tất cả các thành phần trong bảng sau (các mục xuất hiện trong Hình 4).

    Thành phần Số lượng
    Giàn đỡ cơ bản dạng mô-đun 1
    Giá đỡ điện thoại 2
    Giá đỡ máy tính bảng 1
    Nguồn điện 12V (được UL chứng nhận, tối thiểu 1A) 1
    Khẩu độ 1

    Modular Base Rev1.2
Items

    Hình 5. Các thành phần cơ bản của giàn khoan dạng mô-đun.

  3. Tuỳ thuộc vào chế độ thiết lập, hãy đảm bảo bạn có các phụ kiện cần thiết trong bảng sau (như trong Hình 5). Bạn có thể mua những phụ kiện này từ một nhà cung cấp đủ tiêu chuẩn.

    Mục Số lượng
    Bộ điều khiển ánh sáng (có thể điều khiển tối đa 3 giàn đèn) 1
    Nguồn điện 5V cho bộ điều khiển chiếu sáng 1
    Cáp DC kết nối đèn với giàn đế dạng mô-đun 1
    Đầu nối cáp nguồn DC (5,5 mm x 2,1 mm sang 3,5 mm x 1,35 mm) 1
    Cáp USB A sang cáp USB 1
    Bộ thiết bị có thể gập lại (nếu DUT là thiết bị có thể gập lại) 1

    Các mục không bắt buộc theo mô-đun

    Hình 6. Các mục không bắt buộc đối với giàn giáo cơ bản dạng mô-đun.

  4. Đảm bảo không có hiện tượng rò rỉ ánh sáng bằng cách thực hiện một trong những cách sau:

    1. Chế tạo một khẩu độ phù hợp với mô-đun camera của DUT và đảm bảo không có hiện tượng rò rỉ ánh sáng (như trong Hình 6). Bạn có thể cắt khẩu độ từ các tấm xốp được cung cấp hoặc định cấu hình bởi một nhà cung cấp đủ tiêu chuẩn. Để có hướng hình ảnh phù hợp, các DUT có camera sau hướng về phía giàn đỡ sẽ được xoay 90° ngược chiều kim đồng hồ và các DUT có camera trước hướng về phía giàn đỡ sẽ được xoay 90° theo chiều kim đồng hồ. Đảm bảo bạn định cấu hình khẩu độ cho phù hợp.

    Định vị khẩu độ theo mô-đun Cắt lỗ mô-đun

    Hình 7. Chế tạo các lỗ mở để ngăn ánh sáng rò rỉ.

    1. Sử dụng một tấm vải tối màu để che giàn máy nhằm ngăn chặn rò rỉ ánh sáng, không cần khẩu độ. (như trong Hình 7).

    Modular Drapery

    Hình 8. Ngăn ánh sáng rò rỉ bằng cách sử dụng một tấm vải.

  5. Lắp giá đỡ điện thoại tiêu chuẩn hoặc giá đỡ điện thoại gập vào bảng điều khiển gắn điện thoại phía trước ở độ cao thích hợp bằng cách sử dụng bu lông và đai ốc bằng ni lông như minh hoạ trong Hình 8.

    Lắp đặt khẩu độ và giá đỡ theo mô-đun

    Hình 9. Lắp đặt giá đỡ điện thoại và khẩu độ.

  6. Lắp giá đỡ máy tính bảng vào bảng gắn máy tính bảng ở độ cao thích hợp bằng cách dùng bu lông và đai ốc bằng ni lông.

  7. Gắn máy tính bảng màn hình và kết nối máy tính bảng với máy chủ như trong Hình 9. Cố định máy tính bảng bằng một pít-tông.

    Cài đặt máy tính bảng dạng mô-đun

    Hình 10. Lắp đặt máy tính bảng.

  8. Để thao tác trên màn hình dễ dàng hơn, hãy thiết lập DUT trước khi gắn DUT.

  9. Gắn DUT và kết nối với máy chủ.

  10. Căn chỉnh DUT sao cho tâm của mô-đun camera được căn chỉnh với (hoặc rất gần với) tâm của máy tính bảng. Để điều chỉnh chiều cao, hãy nới lỏng các bu lông gắn điện thoại rồi trượt giá đỡ lên hoặc xuống. Khi đã căn chỉnh, hãy cố định DUT bằng pít-tông của giá đỡ.

    Cài đặt DUT theo mô-đun

    Hình 11. Cài đặt DUT.

  11. Đối với hệ thống chiếu sáng, hãy kết nối cáp chiếu sáng từ giàn đỡ cơ bản với một trong những thiết bị sau:

    1. Nguồn điện 12V

    Kết nối mô-đun 12V

    Hình 12. Đèn kết nối với nguồn điện 12V.

    1. Bộ điều khiển đèn (có thể cần đầu nối)

    Kết nối bộ điều khiển dạng mô-đun

    Hình 13. Đèn kết nối với bộ điều khiển đèn.

Khi bạn đã hoàn tất quá trình thiết lập cho giàn cơ sở theo mô-đun, hãy thiết lập môi trường máy chủ và môi trường thử nghiệm (Thiết lập CTS). Đối với tệp config.yml, hãy sử dụng cấu hình sau:

  • chart\_distance = 22
  • lighting\_ch = [connected controller channel] hoặc giữ nguyên nếu không dùng bộ điều khiển ánh sáng.

Thiết lập giàn đỡ camera Flexi-Tele

Nếu mua giàn đế dạng mô-đun trước tháng 3 năm 2026, bạn có thể cần phải điều chỉnh một chút để giàn đế này hoạt động với phần mở rộng flexi-tele. Sửa đổi này khắc phục vấn đề về tấm trước chặn trường nhìn của camera tele của DUT và cũng có thể được dùng với giàn cố định chiều dài của tiện ích tele.

Làm theo các bước sau để trang bị thêm giàn đế dạng mô-đun.

  1. Tháo 4 ốc vít ở phía trên cùng của giá đỡ giữ tấm trước, cũng như 4 ốc vít ở phía dưới cùng.

    Tháo các vít của bộ chuyển đổi mô-đun

    Hình 14. Các vít trên giàn đỡ giữ tấm trước.

  2. (Không bắt buộc) Bắt vít hoặc dán tấm gắn điện thoại vào tấm trước sao cho các tấm này tách rời nhau.

    Tấm bu lông lắp đặt thêm theo mô-đun

    Hình 15. Các bu lông cho tấm gắn điện thoại và tấm trước.

  3. (Không bắt buộc) Nếu giàn máy của bạn có cáp nguồn đèn từ dưới lên gắn vào tấm trước, hãy di chuyển cáp đó sang một bên bằng băng dính điện hoặc giá đỡ dây rút.

    Cáp di dời theo mô-đun

    Hình 16. Cáp nguồn đèn từ dưới lên trên được chuyển sang bên cạnh.

  4. Kết nối giàn đế mô-đun với giàn nối dài linh hoạt.

Video minh hoạ

Đây là video minh hoạ cách thiết lập giàn đỡ ống nối linh hoạt:

Thiết lập giàn đỡ ống kính tele có độ dài cố định

Làm theo các bước sau để thiết lập giàn đỡ ống kính tele (không bắt buộc).

  1. Mua giàn đế mô-đun và giàn mở rộng từ xa của một nhà cung cấp đủ tiêu chuẩn. Bạn có thể tạo giàn máy bằng các tệp phát hành công khai nhưng không nên làm như vậy vì việc cắt và lắp ráp phải chính xác để đảm bảo giàn máy mở rộng không gặp vấn đề về kích thước.

  2. Đảm bảo bạn có một giàn chân máy mô-đun hoạt động và một giàn chân máy có ống nối dài (như trong Hình 13).

    Ống kính tele mô-đun

    Hình 17. Giàn khoan cơ sở dạng mô-đun có phần mở rộng tele.

  3. Tháo tấm gắn điện thoại bằng cách tháo 6 bu lông nylon bằng tay (3 bu lông ở mỗi bên).

    Bu lông theo mô-đun
làm nổi bật Tháo bu lông mô-đun Tấm mặt trước dạng mô-đun

    Hình 18. Tháo 6 bu lông nylon ở khu vực được đánh dấu bằng tay.

  4. Đặt giá đỡ cơ bản và giá đỡ ống kính tele lên bề mặt nơi thực hiện các bài kiểm tra. Để tránh gây áp lực lên các điểm lắp, bạn không nên di chuyển giàn máy đã lắp ráp.

  5. Đặt giá đỡ mở rộng vào vị trí sao cho 6 khe trên thẻ giá đỡ mở rộng thẳng hàng với 6 lỗ trên giá đỡ cơ bản.

    Thẻ căn chỉnh theo mô-đun

    Hình 19. Căn chỉnh các khe với các lỗ.

  6. Gắn giàn mở rộng vào giàn cơ sở bằng cách lắp 6 bu lông. Trong khi lắp các vít, hãy nhẹ nhàng đẩy 2 giàn đỡ lại với nhau để đảm bảo không có khe hở nào gây rò rỉ ánh sáng (hãy nhờ đồng nghiệp trợ giúp nếu cần). Siết chặt các bu lông bằng tay.

    Đẩy mô-đun lại với nhau

    Hình 20. Đính kèm giàn cơ sở và giàn mở rộng.

  7. Định cấu hình khẩu độ (hoặc màn che) và lắp giá đỡ điện thoại cũng như DUT như mô tả trong phần Thiết lập giàn cơ sở.

    Thẻ căn chỉnh theo mô-đun

    Hình 21. Gắn giá đỡ điện thoại và DUT.

Khi bạn đã hoàn tất quá trình thiết lập giàn mở rộng, hãy thiết lập môi trường máy chủ lưu trữ và môi trường thử nghiệm (Thiết lập CTS). Đối với tệp config.yml, hãy sử dụng cấu hình sau:

  • chart_distance = [tổng khoảng cách từ DUT đến máy tính bảng]
  • lighting_ch = [connected control channel] hoặc giữ nguyên nếu không dùng bộ điều khiển ánh sáng.

Gỡ cài đặt giàn mở rộng

Để gỡ cài đặt giàn đỡ tiện ích, hãy làm theo các bước cài đặt theo thứ tự ngược lại. Khi lắp đặt bảng gắn máy tính bảng, hãy đẩy bảng vào giá đỡ cơ sở để đảm bảo không có khe hở nào gây rò rỉ ánh sáng (như trong Hình 17). Siết chặt các bu lông bằng tay.

Đẩy mô-đun lại với nhau

Hình 22. Đẩy bảng điều khiển gắn máy tính bảng vào giá đỡ cơ bản.

Câu hỏi thường gặp

Tại sao cảnh quay lại bị cắt trong thiết bị quay từ xa?

Thiết bị giàn giáo dạng mô-đun
cắt

Hình 23. Cảnh bị cắt bởi tấm điện thoại trong giá đỡ cơ bản.

Điều này xảy ra khi trường nhìn của ống kính tele bị tấm điện thoại chặn giữa giàn đế và phần mở rộng tele. Hãy nhớ tháo tấm điện thoại bằng tuốc nơ vít trước khi tiến hành kiểm tra.

Đã tháo tấm điện thoại dạng mô-đun

Hình 24. Tháo tấm điện thoại trong giá đỡ cơ bản.

Tại sao đèn có vẻ mờ hoặc tại sao lỗi xác thực ánh sáng xuất hiện khi chạy ITS?

Lỗi này xảy ra khi ánh sáng trong giàn đèn mờ đi. Nguyên nhân có thể là do nguồn điện và đèn LED bị suy giảm do tuổi tác hoặc mức độ sử dụng, hoặc do nguồn điện bị lỗi. Để giải quyết sự cố này, hãy làm theo các bước sau:

  1. Đảm bảo đèn hoạt động bình thường:

    • Thay thế nguồn điện (12 vôn, tối thiểu 2 ampe theo danh sách UL).
    • Thay thế đèn LED (tham khảo danh sách linh kiện hoặc liên hệ với nhà cung cấp để biết thêm thông tin).
  2. Để đảm bảo đèn LED có độ rọi ở mức thích hợp (100 – 300), hãy kiểm tra độ rọi bằng đồng hồ đo kỹ thuật số. Ví dụ này sử dụng máy đo độ rọi YF-1065 của Contempo Views. Đặt máy đo ánh sáng ở phía máy tính bảng và xoay đến 2000 lux để đo ánh sáng (như trong Hình 21).

    YF-1065 của Contempo Views

    Hình 25. YF-1065 của Contempo Views.

    Máy đo độ rọi

    Hình 26. Đồng hồ đo độ rọi đo ánh sáng từ bên cạnh bằng giá đỡ máy tính bảng.

  3. Tuỳ thuộc vào giá trị lux đo được, hãy làm theo bước thích hợp:

    • Nếu ánh sáng ở mức phù hợp, hãy vặn các tấm trước và sau vào ren.
    • Nếu đèn ở mức không chính xác, hãy kiểm tra để đảm bảo rằng số hiệu linh kiện của đèn LED và nguồn điện là chính xác.

Những điều cần lưu ý

Sau đây là ví dụ về các lỗi sản xuất thường gặp có thể khiến các bài kiểm thử không ổn định.

  • Mặt sau có các lỗ cắm máy tính bảng. Điều này khiến thử nghiệm find_circle không thành công do các vòng tròn thừa do các lỗ vít tạo ra.

    Tấm mặt sau có lỗ

    Hình 27. Mặt sau có các lỗ.

  • Thiếu chốt gỗ. Điều này khiến các vách ngăn ánh sáng bị trượt ra ngoài trong quá trình vận chuyển.

    Thiếu chốt

    Hình 28. Thiếu chốt trên vách ngăn ánh sáng.

  • Bộ nguồn không có chứng nhận UL. Việc sử dụng nguồn điện được UL chứng nhận đáp ứng các thông số kỹ thuật được gắn nhãn. Điều này rất quan trọng để vận hành đèn một cách an toàn.

    Nguồn điện được UL chứng nhận

    Hình 29. Ví dụ về nguồn điện được UL chứng nhận.

  • Vít bị trượt trên giá đỡ máy tính bảng hoặc điện thoại không chịu được trọng lượng của máy tính bảng hoặc điện thoại. Điều này thường là do các ren bị hỏng và cho biết rằng bạn cần phải tạo lại ren cho lỗ.

    Lỗ có ren bị hỏng

    Hình 30. Lỗ có ren bị hỏng.