Hệ thống giàn đỡ dạng mô-đun hỗ trợ tự động hoá kiểm thử ITS và bao gồm một hộp nhựa được cắt bằng phương pháp Điều khiển số bằng máy tính (CNC) từ bản vẽ thiết kế có sự trợ giúp của máy tính (CAD), một bảng biểu đồ và một thiết bị đang được kiểm thử (DUT). Hệ thống giàn đỡ dạng mô-đun bao gồm một giàn đỡ cơ bản và một giàn đỡ mở rộng từ xa (không bắt buộc). Giá đỡ cơ sở dạng mô-đun có khoảng cách biểu đồ là 22 cm và có thể kiểm thử camera của thiết bị di động có FoV từ 60 độ đến 120 độ. Giàn đế có thể thực hiện kiểm thử xoay 90 độ với DUT ở trên cùng (như trong Hình 2).
Giá đỡ ống kính tele hỗ trợ kiểm thử các camera có khoảng cách lấy tiêu điểm tối thiểu lớn (camera tele). Giá đỡ ống kính tele được bắt vít vào giá đỡ cơ sở và bạn có thể tuỳ chỉnh chiều dài dựa trên các yêu cầu kiểm thử camera khi mua thông qua nhà cung cấp đủ tiêu chuẩn. Camera ITS hỗ trợ khoảng cách biểu đồ lên đến 100 cm.
Hình 1. Giàn khoan cơ sở dạng mô-đun.
Hình 2. Giàn đỡ cơ sở dạng mô-đun được xoay 90 độ.
Nhật ký sửa đổi
Bảng sau đây mô tả nhật ký sửa đổi của hệ thống giàn khoan dạng mô-đun và bao gồm các đường liên kết tải xuống cho từng phiên bản của tệp sản xuất.
| Ngày | Bản sửa đổi | Tải tệp sản xuất xuống | Nhật ký thay đổi |
|---|---|---|---|
| Tháng 9/2024 | 1.2 | Modular base rig rev1.2 |
|
Mua hệ thống giàn đỡ dạng mô-đun
Bạn nên mua hệ thống giàn đỡ dạng mô-đun, giàn đỡ dạng ống lồng (không bắt buộc) và phụ kiện của một trong những nhà cung cấp đủ tiêu chuẩn sau.
Byte Bridge Inc.
Hoa Kỳ: 1502 Crocker Ave, Hayward, CA 94544-7037
Trung Quốc: 22F #06-08, Hongwell International Plaza Tower A, 1600 West Zhongshan Road, Xuhui, Shanghai, 200235
www.bytebt.com
androidpartner@bytebt.com
Hoa Kỳ: +1-510-373-8899
Trung Quốc: +86-400-8866-490JFT CO LTD 捷富通科技有限公司 (trước đây là MYWAY DESIGN)
Trung Quốc: No. 40, Lane 22, Heai Road, Wujing Town, Minhang District, Shanghai, China
Đài Loan: 4F., No. 163, Fu-Ying Road, XinZhuang District, New Taipei City 242, Taiwan
www.jftcoltd.com
service@jfttec.com hoặc its.sales@jfttec.com
Trung Quốc:+86-021-64909136
Đài Loan: 886-2-29089060
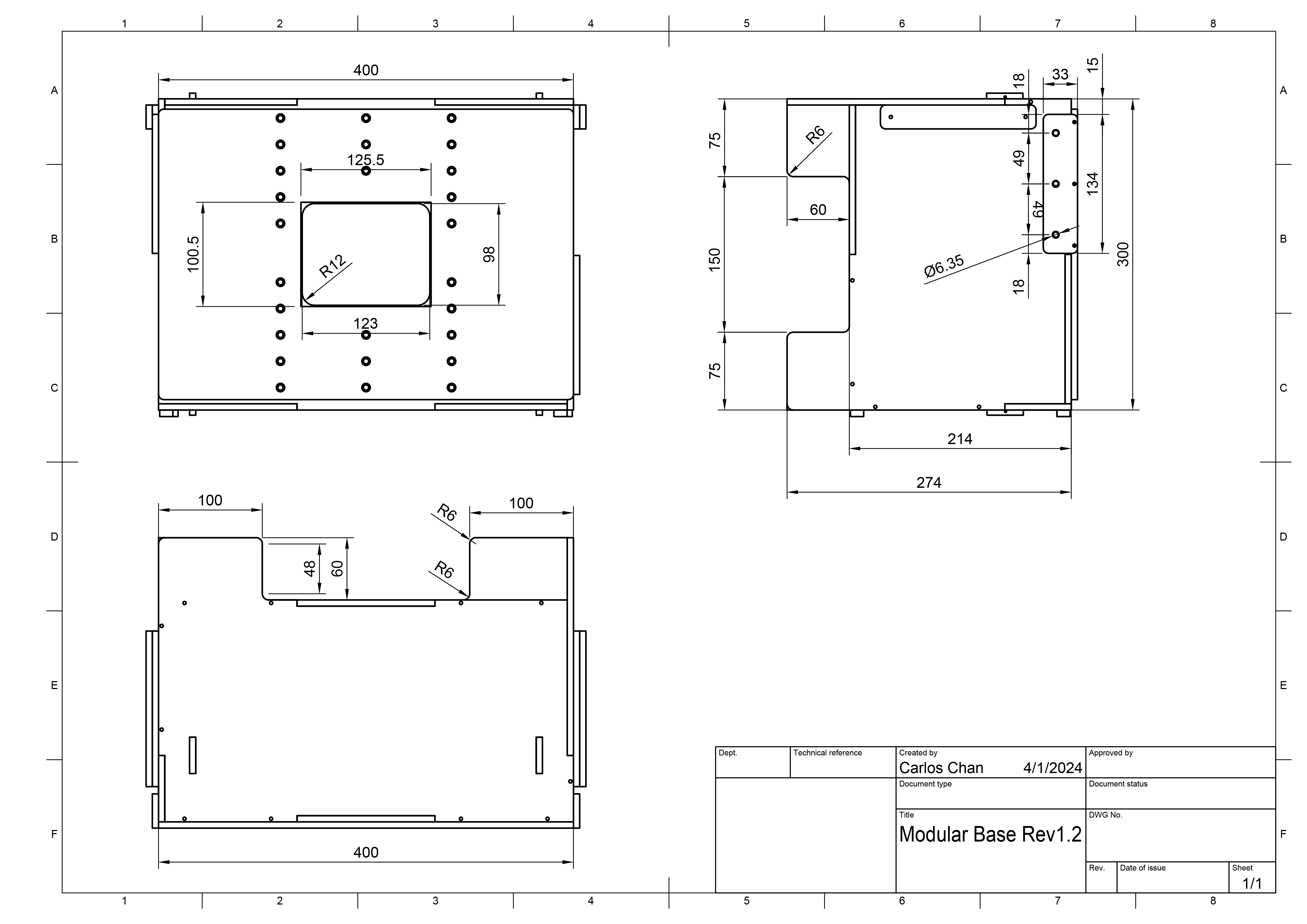
Bản vẽ cơ khí
Sau đây là bản vẽ cơ khí của giàn đế dạng mô-đun.
Hình 3. Bản vẽ cơ khí của giàn khoan cơ sở dạng mô-đun
Thiết lập giàn khoan cơ sở
Làm theo các bước sau để thiết lập một giàn giáo cơ sở dạng mô-đun.
Mua hệ thống giàn đỡ dạng mô-đun của một nhà cung cấp đủ tiêu chuẩn.
Đảm bảo bạn có tất cả các thành phần trong bảng sau (các mục xuất hiện trong Hình 4).
Thành phần Số lượng Giàn đế dạng mô-đun 1 Giá đỡ điện thoại 2 Giá đỡ máy tính bảng 1 Nguồn điện 12V (được UL chứng nhận, tối thiểu 1A) 1 Khẩu độ 1
Hình 4. Các thành phần cơ bản của giàn khoan dạng mô-đun.
Tuỳ thuộc vào chế độ thiết lập, hãy đảm bảo bạn có các phụ kiện cần thiết trong bảng sau (như trong Hình 5). Bạn có thể mua những phụ kiện này từ một nhà cung cấp đủ tiêu chuẩn.
Mục Số lượng Bộ điều khiển ánh sáng (có thể điều khiển tối đa 3 giàn đèn) 1 Nguồn điện 5V cho bộ điều khiển đèn 1 Cáp nguồn DC kết nối đèn chiếu sáng với giàn đế dạng mô-đun 1 Đầu nối cáp nguồn DC (5,5 mm x 2,1 mm sang 3,5 mm x 1,35 mm) 1 Cáp USB A sang cáp USB 1 Bộ thiết bị có thể gập lại (nếu DUT là thiết bị có thể gập lại) 1
Hình 5. Các mục không bắt buộc đối với giàn giáo cơ bản dạng mô-đun.
Đảm bảo không có hiện tượng rò rỉ ánh sáng bằng cách thực hiện một trong những cách sau:
Chế tạo một khẩu độ phù hợp với mô-đun camera của DUT và đảm bảo không có hiện tượng rò rỉ ánh sáng (như trong Hình 6). Bạn có thể cắt các lỗ mở từ tấm xốp được cung cấp hoặc định cấu hình từ một nhà cung cấp đủ tiêu chuẩn. Để có hướng hình phù hợp, các DUT có camera sau hướng về phía giàn sẽ được xoay 90° ngược chiều kim đồng hồ và các DUT có camera trước hướng về phía giàn sẽ được xoay 90° theo chiều kim đồng hồ. Đảm bảo bạn định cấu hình khẩu độ cho phù hợp.
Hình 6. Chế tạo các lỗ mở để ngăn ánh sáng rò rỉ.
Sử dụng một tấm vải tối màu để che giàn máy nhằm ngăn chặn tình trạng rò rỉ ánh sáng, không cần khẩu độ. (như trong Hình 7).
Hình 7. Ngăn chặn rò rỉ ánh sáng bằng cách sử dụng một tấm vải.
Lắp giá đỡ điện thoại tiêu chuẩn hoặc giá đỡ điện thoại có thể gập lại vào bảng gắn điện thoại phía trước ở độ cao thích hợp bằng cách sử dụng bu lông và đai ốc bằng nylon như minh hoạ trong Hình 8.
Hình 8. Lắp đặt giá đỡ điện thoại và khẩu độ.
Lắp giá đỡ máy tính bảng vào bảng gắn máy tính bảng ở độ cao thích hợp bằng cách dùng bu lông và đai ốc bằng ni lông.
Lắp máy tính bảng màn hình và kết nối máy tính bảng với máy chủ như trong Hình 9. Cố định máy tính bảng bằng một pít-tông.
Hình 9. Lắp đặt máy tính bảng.
Để thao tác trên màn hình dễ dàng hơn, hãy thiết lập DUT trước khi gắn DUT.
Gắn DUT và kết nối với máy chủ.
Căn chỉnh DUT sao cho tâm của mô-đun camera được căn chỉnh với (hoặc rất gần với) tâm của máy tính bảng. Để điều chỉnh chiều cao, hãy nới lỏng các bu lông gắn điện thoại rồi trượt giá đỡ lên hoặc xuống. Khi đã căn chỉnh, hãy cố định DUT bằng pít-tông giá đỡ.
Hình 10. Cài đặt DUT.
Đối với hệ thống chiếu sáng, hãy kết nối cáp chiếu sáng từ giàn đỡ cơ sở với một trong những thiết bị sau:
Nguồn điện 12V
Hình 11. Đèn kết nối với nguồn điện 12V.
Bộ điều khiển chiếu sáng (có thể cần đầu nối)
Hình 12. Đèn kết nối với bộ điều khiển đèn.
Khi bạn đã hoàn tất quá trình thiết lập cho giàn cơ sở theo mô-đun, hãy thiết lập môi trường máy chủ và kiểm thử (Thiết lập CTS).
Đối với tệp config.yml, hãy sử dụng cấu hình sau:
chart\_distance= 22lighting\_ch= [connected controller channel] hoặc giữ nguyên nếu không dùng bộ điều khiển ánh sáng.
Thiết lập giàn đỡ ống lồng
Làm theo các bước sau để thiết lập giàn đỡ ống kính tele (không bắt buộc).
Mua giàn đế dạng mô-đun và giàn mở rộng từ xa của một nhà cung cấp đủ tiêu chuẩn. Bạn có thể tạo giàn bằng các tệp sản xuất nhưng không nên làm như vậy vì việc cắt và lắp ráp phải chính xác để đảm bảo giàn mở rộng không gặp vấn đề về kích thước.
Đảm bảo bạn có một giàn máy cơ sở dạng mô-đun đang hoạt động và một giàn máy có phần mở rộng tele (như minh hoạ trong Hình 13).
Hình 13. Giàn đế dạng mô-đun có phần mở rộng tele.
Tháo tấm gắn điện thoại bằng cách tháo 6 bu lông nylon bằng tay (3 bu lông ở mỗi bên).
Hình 14. Tháo 6 bu lông nylon ở khu vực được đánh dấu bằng tay.
Đặt giá đỡ cơ bản và giá đỡ ống kính tele lên bề mặt nơi thực hiện các bài kiểm tra. Để tránh gây áp lực lên các điểm lắp, bạn không nên di chuyển giàn máy đã lắp ráp.
Đặt giá đỡ mở rộng vào vị trí sao cho 6 khe trên thẻ giá đỡ mở rộng thẳng hàng với 6 lỗ trên giá đỡ cơ sở.
Hình 15. Căn chỉnh các khe với các lỗ.
Gắn giàn mở rộng vào giàn cơ sở bằng cách lắp 6 bu lông. Trong khi lắp các vít, hãy nhẹ nhàng đẩy 2 giàn đỡ lại với nhau để đảm bảo không có khe hở nào gây rò rỉ ánh sáng (hãy nhờ đồng nghiệp trợ giúp nếu cần). Siết chặt các bu lông bằng tay.
Hình 16. Đính kèm giàn cơ sở và giàn mở rộng.
Định cấu hình khẩu độ (hoặc màn che) và lắp giá đỡ điện thoại cũng như DUT như mô tả trong phần Thiết lập giàn cơ bản.
Hình 17. Gắn giá đỡ điện thoại và DUT.
Khi bạn đã hoàn tất quá trình thiết lập thiết bị mở rộng, hãy thiết lập môi trường máy chủ lưu trữ và kiểm thử (Thiết lập CTS).
Đối với tệp config.yml, hãy sử dụng cấu hình sau:
chart_distance= [tổng khoảng cách từ DUT đến máy tính bảng]lighting_ch= [connected control channel] hoặc giữ nguyên nếu không sử dụng bộ điều khiển chiếu sáng.
Gỡ cài đặt giàn mở rộng
Để gỡ cài đặt giàn đỡ tiện ích, hãy làm theo các bước cài đặt theo thứ tự ngược lại. Khi lắp đặt bảng điều khiển giá treo máy tính bảng, hãy đẩy bảng điều khiển vào giá đỡ cơ sở để đảm bảo không có khe hở nào để ánh sáng lọt qua (như minh hoạ trong Hình 17). Siết chặt các bu lông bằng tay.
Hình 18. Đẩy bảng điều khiển gắn máy tính bảng vào giá đỡ cơ bản.
Câu hỏi thường gặp
Tại sao cảnh quay lại bị cắt trong thiết bị quay từ xa?
Hình 19. Cảnh bị cắt bởi tấm điện thoại trong giá đỡ cơ bản.
Điều này xảy ra khi trường nhìn của ống kính tele bị tấm điện thoại chặn giữa giàn đế và phần mở rộng tele. Hãy nhớ tháo tấm điện thoại bằng tuốc nơ vít trước khi tiến hành kiểm tra.
Hình 20. Tháo tấm điện thoại trong giá đỡ cơ bản.
Tại sao đèn có vẻ mờ hoặc tại sao lỗi xác thực ánh sáng xuất hiện khi chạy ITS?
Lỗi này xảy ra khi ánh sáng trong giàn đèn mờ đi. Nguyên nhân có thể là do nguồn điện và đèn LED bị suy giảm do tuổi tác hoặc mức độ sử dụng, hoặc do nguồn điện bị lỗi. Để giải quyết sự cố này, hãy làm theo các bước sau:
Đảm bảo đèn hoạt động bình thường:
- Thay thế nguồn điện (12 vôn, tối thiểu 2 ampe theo danh sách UL).
- Thay thế đèn LED (tham khảo danh sách linh kiện hoặc liên hệ với nhà cung cấp để biết thêm thông tin).
Để đảm bảo độ rọi của đèn LED ở mức thích hợp (100 – 300), hãy kiểm tra độ rọi bằng đồng hồ đo kỹ thuật số. (Ví dụ này sử dụng máy đo độ rọi YF-1065 của Contempo Views.) Đặt máy đo ánh sáng ở phía máy tính bảng và xoay đến 2000 lux để đo ánh sáng (như trong Hình 21).
Hình 21. YF-1065 của Contempo Views.
Hình 22. Đồng hồ đo độ rọi đo ánh sáng từ bên cạnh bằng giá đỡ máy tính bảng.
Tuỳ thuộc vào giá trị lux đo được, hãy làm theo bước thích hợp:
- Nếu đèn ở mức phù hợp, hãy vặn các tấm trước và sau vào ren.
- Nếu đèn ở mức không chính xác, hãy kiểm tra để đảm bảo rằng số hiệu linh kiện của đèn LED và nguồn điện là chính xác.
Những điều cần lưu ý
Sau đây là ví dụ về các lỗi sản xuất thường gặp có thể khiến các bài kiểm thử không ổn định.
Mặt sau có các lỗ cắm máy tính bảng. Điều này khiến thử nghiệm
find_circlethất bại do các vòng tròn thừa được tạo bởi các lỗ bắt vít.
Hình 23. Mặt sau có các lỗ xuyên qua.
Thiếu chốt gỗ. Điều này khiến các vách ngăn ánh sáng bị trượt ra trong quá trình vận chuyển.
Hình 24. Thiếu chốt trên vách ngăn đèn.
Bộ nguồn không có chứng nhận UL. Việc sử dụng nguồn điện được UL chứng nhận đáp ứng các thông số kỹ thuật được gắn nhãn. Điều này rất quan trọng để vận hành hệ thống chiếu sáng một cách an toàn.
Hình 25. Ví dụ về nguồn điện được UL chứng nhận.
Vít bị trượt trên giá đỡ máy tính bảng hoặc điện thoại không chịu được trọng lượng của máy tính bảng hoặc điện thoại. Điều này thường là do các ren bị hỏng và cho biết rằng bạn cần phải tạo lại ren cho lỗ.
Hình 26. Lỗ có ren bị hỏng.