يتوافق نظام المنصّة المعيارية مع أداة اختبار ITS الآلية ويتألف من صندوق بلاستيكي تم قطعه باستخدام نظام التحكم الرقمي بالكمبيوتر (CNC) من رسومات التصميم بمساعدة الكمبيوتر (CAD)، وجهاز لوحي للرسومات البيانية، وجهاز قيد الاختبار (DUT). يتألف نظام الحفارات المعيارية من حفارة أساسية وحفارة اختيارية ذات ذراع تلسكوبي. يبلغ الحد الأقصى لمسافة الرسم البياني في منصة الاختبار المعيارية 22 سم، ويمكنها اختبار كاميرات الأجهزة الجوّالة التي يتراوح مجال رؤيتها بين 60 و120 درجة. يمكن إجراء الاختبارات باستخدام منصة الاختبار الأساسية بزاوية 90 درجة مع وضع الجهاز قيد الاختبار في الأعلى (كما هو موضّح في الشكل 2).
يتيح جهاز تمديد العدسة المقرِّبة اختبار الكاميرات التي تتضمّن مسافة تركيز دنيا طويلة (كاميرات مقرِّبة). يتم تثبيت ذراع التمديد على الحامل الأساسي، ويمكن تخصيص طوله استنادًا إلى متطلبات اختبار الكاميرا عند الشراء من خلال المورّدين المؤهّلين. تتيح أداة ITS للكاميرا مسافات المخطط التي تصل إلى 100 سم.
الشكل 1. منصة حفر أساسية نموذجية
الشكل 2. تم تدوير منصة القاعدة المعيارية بمقدار 90 درجة.
سجلّ النُسخ السابقة
يوضّح الجدول التالي سجلّ المراجعات لنظام المنصّة المعيارية ويتضمّن روابط تنزيل لكل إصدار من ملفات الإنتاج.
| التاريخ | المراجعة | تنزيل ملف الإنتاج | سجلّ التغيير |
|---|---|---|---|
| سبتمبر 2024 | 1.2 | Modular base rig rev1.2 |
|
شراء نظام منصة تركيب متعددة الاستخدامات
ننصحك بشراء نظام الحامل المعياري وحامل التمديد الاختياري والملحقات من أحد المورّدين المؤهّلين التاليين.
شركة Byte Bridge Inc.
الولايات المتحدة: 1502 Crocker Ave, Hayward, CA 94544-7037
الصين: 22F #06-08, Hongwell International Plaza Tower A, 1600 West Zhongshan Road, Xuhui, Shanghai, 200235
www.bytebt.com
androidpartner@bytebt.com
الولايات المتحدة: +1-510-373-8899
الصين: +86-400-8866-490JFT CO LTD 捷富通科技有限公司 (المعروفة سابقًا باسم MYWAY DESIGN)
الصين: No. 40, Lane 22, Heai Road, Wujing Town, Minhang District, Shanghai, China
تايوان: 4F., No. 163, Fu-Ying Road, XinZhuang District, New Taipei City 242, Taiwan
www.jftcoltd.com
service@jfttec.com or its.sales@jfttec.com
China:+86-021-64909136
Taiwan: 886-2-29089060
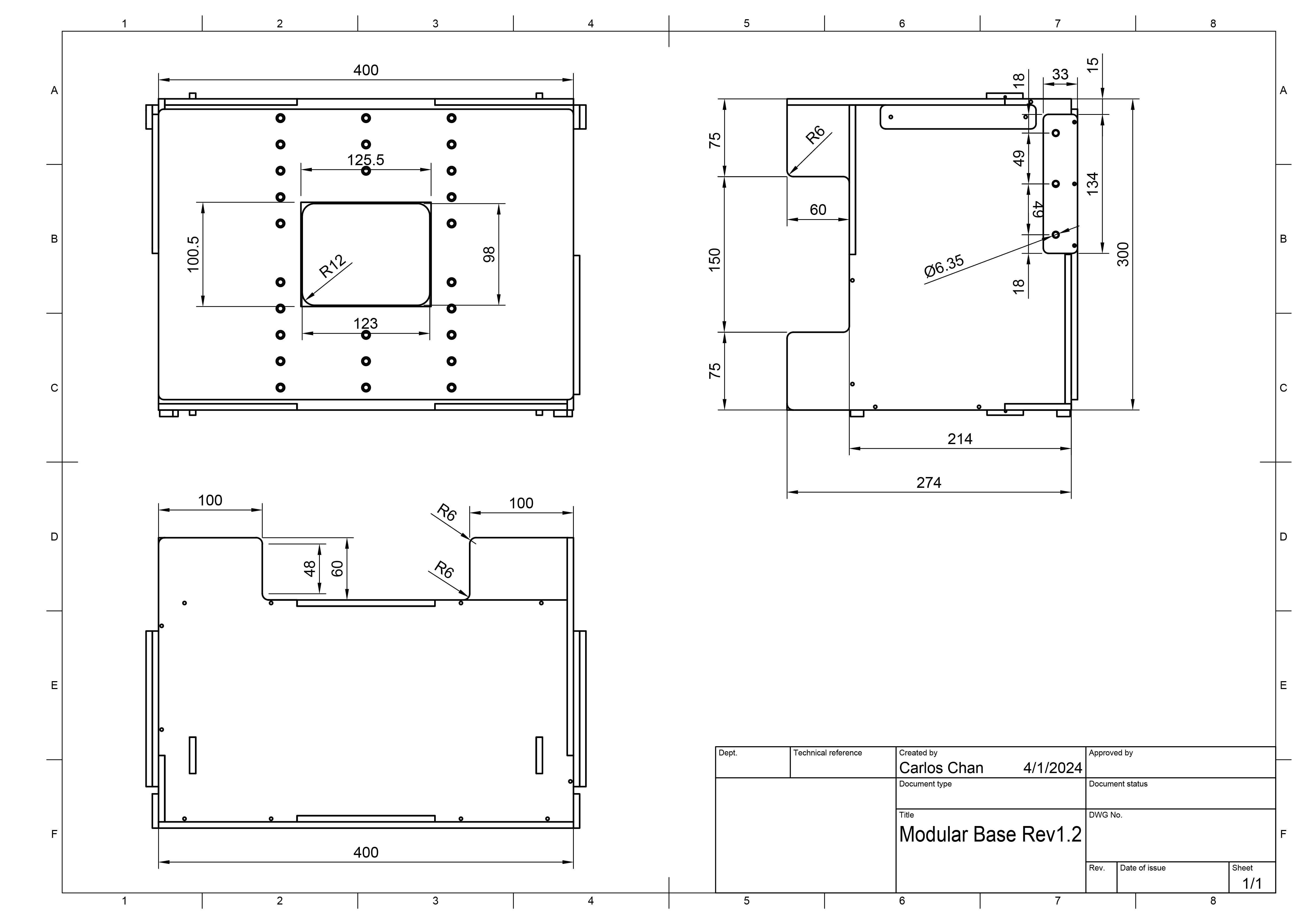
الرسومات الميكانيكية
في ما يلي رسم ميكانيكي لمنصة القاعدة المعيارية.
الشكل 3. رسم ميكانيكي لمنصة تركيب متعددة الاستخدامات
إعداد منصة الاختبار الأساسية
اتّبِع الخطوات التالية لإعداد منصة أساسية معيارية.
اشترِ نظام منصة تركيب متعددة الاستخدامات من بائع مؤهَّل.
تأكَّد من توفّر جميع المكوّنات في الجدول التالي (العناصر المعروضة في الشكل 4).
المكوّن الكمية Modular base rig 1 قاعدة تثبيت الهاتف 2 حامل الجهاز اللوحي 1 مصدر طاقة بقدرة 12 فولت (معتمد من UL، الحد الأدنى 1 أمبير) 1 فتحة العدسة 1
الشكل 4. مكوّنات منصة أساسية نموذجية
بناءً على الإعداد، تأكَّد من توفّر الملحقات اللازمة في الجدول التالي (الموضّح في الشكل 5). ويمكن شراء هذه الملحقات من بائع مؤهَّل.
اسم الكمية جهاز التحكّم في الإضاءة (يمكنه التحكّم في ما يصل إلى 3 منصات) 1 مصدر طاقة 5 فولت لوحدة التحكّم في الإضاءة 1 كابل أسطواني للتيار المباشر يربط الإضاءة بقاعدة التثبيت المعيارية 1 محوّل كابل أسطواني للتيار المباشر (5.5 ملم × 2.1 ملم إلى 3.5 ملم × 1.35 ملم) 1 كابل USB A إلى كابل USB 1 مجموعة الأجهزة القابلة للطي (إذا كان الجهاز الخاضع للاختبار جهازًا قابلاً للطي) 1
الشكل 5. عناصر اختيارية لمنصة أساسية معيارية
تأكَّد من عدم تسرّب الضوء من خلال اتّخاذ أحد الإجراءات التالية:
صناعة فتحة لتناسب وحدة الكاميرا في الجهاز الخاضع للاختبار والتأكّد من عدم تسرّب الضوء (كما هو موضّح في الشكل 6) يمكن قطع الفتحات من ألواح الفوم المتوفرة أو ضبطها من قِبل مورّد مؤهَّل. للحصول على اتجاه مناسب للشكل، يتم تدوير الأجهزة التي تواجه الكاميرا الخلفية فيها الحامل بمقدار 90 درجة عكس اتجاه عقارب الساعة، ويتم تدوير الأجهزة التي تواجه الكاميرا الأمامية فيها الحامل بمقدار 90 درجة باتجاه عقارب الساعة. تأكَّد من ضبط فتحات العدسة بشكل مناسب.
الشكل 6. صناعة فتحات لمنع تسرُّب الضوء
استخدِم ستارة داكنة لتغطية الجهاز لمنع تسرُّب الضوء، ولا حاجة إلى فتحات. (كما هو موضّح في الشكل 7).
الشكل 7. منع تسرُّب الضوء باستخدام ستارة
ثبِّت حامل هاتف عاديًا أو حامل هاتف قابلًا للطيّ على لوحة تثبيت الهاتف الأمامية على ارتفاع مناسب باستخدام مسمار وصمولة من النايلون كما هو موضّح في الشكل 8.
الشكل 8. تركيب فتحة العدسة وقاعدة تثبيت الهاتف
ثبِّت حامل الجهاز اللوحي على لوحة تثبيت الجهاز اللوحي على ارتفاع مناسب باستخدام مسمار وصمولة من النايلون.
ثبِّت الجهاز اللوحي المتصل بالشاشة ووصِّله بالجهاز المضيف كما هو موضّح في الشكل 9. ثبِّت الجهاز اللوحي باستخدام أداة تثبيت.
الشكل 9. تثبيت التطبيق على الجهاز اللوحي
لتسهيل التشغيل على الشاشة، اضبط إعدادات الجهاز الخاضع للاختبار قبل تركيبه.
ثبِّت الجهاز قيد الاختبار واربطه بالجهاز المضيف.
اضبط الجهاز الخاضع للاختبار بحيث يكون الجزء الأوسط من وحدة الكاميرا محاذيًا للجزء الأوسط من الجهاز اللوحي (أو قريبًا جدًا منه). لضبط الارتفاع، عليك فك براغي تثبيت الهاتف وتحريك الحامل للأعلى أو للأسفل. عند المحاذاة، ثبِّت الجهاز قيد الاختبار باستخدام مكبس حامل التثبيت.
الشكل 10. تثبيت الجهاز قيد الاختبار (DUT)
بالنسبة إلى الإضاءة، وصِّل كابل الإضاءة من قاعدة الحامل بأحد الأجهزة التالية:
مصدر طاقة بقدرة 12 فولت
الشكل 11. مصباح متصل بمصدر طاقة 12 فولت
جهاز التحكّم في الإضاءة (قد تحتاج إلى محوّل)
الشكل 12: مصباح متصل بجهاز التحكّم في الإضاءة
بعد إكمال عملية إعداد منصة الاختبار الأساسية المعيارية، عليك إعداد بيئة المضيف والاختبار (إعداد CTS).
بالنسبة إلى ملف config.yml، استخدِم الإعدادات التالية:
chart\_distance= 22- استبدِل
lighting\_chبـ [connected controller channel]، أو اتركه كما هو إذا كنت لا تستخدم وحدة تحكّم في الإضاءة.
إعداد منصة التصوير باستخدام عدسة مقربة
اتّبِع الخطوات التالية لإعداد حامل عدسة التقريب الاختياري.
اشترِ منصة تركيب متعددة الاستخدامات ومنصة تركيب مزوّدة بذراع تلسكوبي من مورّد مؤهَّل. يمكن إنشاء الحامل باستخدام ملفات الإنتاج، ولكن لا يُنصح بذلك لأنّ القطع والتجميع يجب أن يكونا دقيقَين لضمان عدم حدوث أي مشاكل في ملاءمة حامل التمديد.
تأكَّد من توفّر منصة أساسية معيارية عاملة ومنصة تمديد تلسكوبية (كما هو موضّح في الشكل 13).
الشكل 13. حامل ثلاثي القوائم معياري مزوّد بذراع تلسكوبي
أزِل لوحة تثبيت الهاتف عن طريق إزالة 6 براغي من النايلون يدويًا (3 على كل جانب).
الشكل 14. إزالة 6 براغي من النايلون في المنطقة المميّزة باليد
ضَع قاعدة جهاز الاختبار وجهاز اختبار التمديد عن بُعد على السطح الذي سيتم إجراء الاختبارات عليه. ولتجنُّب إجهاد نقاط التثبيت، لا ننصح بتحريك الجهاز المجمّع.
ضَع جهاز التمديد في مكانه بحيث تتوافق الفتحات الست في لسان جهاز التمديد مع الثقوب الست في جهاز القاعدة.
الشكل 15. محاذاة الفتحات مع الثقوب
ثبِّت جهاز التمديد بجهاز القاعدة من خلال تركيب البراغي الستة. أثناء تركيب البراغي، ادفع الحاملَين معًا برفق للتأكّد من عدم وجود فجوات لتسرّب الضوء (اطلب المساعدة من أحد الزملاء عند الضرورة). أحكِم ربط البراغي يدويًا.
الشكل 16. تثبيت منصات القاعدة والمنصات الإضافية
اضبط فتحة العدسة (أو الستارة) وثبِّت حوامل الهواتف وأجهزة الاختبار (DUT) كما هو موضّح في إعداد منصة الاختبار الأساسية.
الشكل 17. تثبيت حوامل الهواتف والجهاز الخاضع للاختبار
بعد إكمال عملية إعداد منصة الاختبار الخارجية، عليك إعداد الجهاز المضيف وبيئة الاختبار (إعداد CTS).
بالنسبة إلى ملف config.yml، استخدِم الإعدادات التالية:
-
chart_distance= [إجمالي المسافة من الجهاز الخاضع للاختبار إلى الجهاز اللوحي] lighting_ch= [connected control channel]، أو اتركه كما هو إذا لم تكن تستخدم وحدة تحكّم في الإضاءة.
إلغاء تثبيت حزمة الإضافة
لإلغاء تثبيت الإضافة، اتّبِع خطوات التثبيت بترتيب عكسي. عند تركيب لوحة تثبيت الجهاز اللوحي، ادفع اللوحة على قاعدة الحامل للتأكّد من عدم وجود فجوات لتسرّب الضوء (كما هو موضّح في الشكل 17). أحكِم ربط البراغي يدويًا.
الشكل 18. دفع لوحة تثبيت الجهاز اللوحي على قاعدة الحامل
الأسئلة الشائعة
لماذا يتم اقتصاص المشهد في منصة تصوير تلفزيوني؟
الشكل 19. مشهد تم اقتصاصه بواسطة لوحة الهاتف في قاعدة الحامل
يحدث ذلك عندما يتم حظر مجال رؤية العدسة المقرّبة بواسطة لوحة الهاتف بين قاعدة الحامل ووصلة العدسة المقرّبة. تأكَّد من إزالة لوحة الهاتف باستخدام مفك براغي قبل المتابعة في الاختبار.
الشكل 20. إزالة لوحة الهاتف في الحامل الأساسي
لماذا تبدو الأضواء خافتة أو لماذا يظهر خطأ في التحقّق من الإضاءة عند تشغيل ITS؟
يحدث هذا الخطأ عندما يصبح الضوء في جهاز الحفر باهتًا، وقد يكون السبب في ذلك هو انخفاض مستوى الطاقة وتدهور جودة مصابيح LED بسبب العمر أو الاستخدام، أو بسبب خلل في مصدر الطاقة. لحل هذه المشكلة، يمكنك اتباع الخطوات التالية:
تأكَّد من أنّ الإضاءة تعمل بشكل صحيح:
- استبدِل مصدر الطاقة (12 فولت مدرَج في قائمة UL، 2 أمبير كحد أدنى).
- استبدِل مصباح LED (راجِع قائمة المواد أو تواصَل مع المورّد للحصول على مزيد من المعلومات).
للتأكّد من أنّ مستوى اللوكس لأضواء LED مناسب (100 إلى 300)، اختبِر مستوى اللوكس باستخدام مقياس رقمي. (يتم استخدام مقياس الإضاءة YF-1065 من Contempo Views في هذا المثال). ضَع مقياس الإضاءة على جانب الجهاز اللوحي واضبطه على 2000 شمعة/م² لقياس الإضاءة (كما هو موضّح في الشكل 21).
الشكل 21. YF-1065 by Contempo Views.
الشكل 22. مقياس لوكس يقيس الضوء من الجانب باستخدام حامل الجهاز اللوحي
اتّبِع الخطوة المناسبة استنادًا إلى قيمة اللوكس التي تم قياسها:
- إذا كان المصباح في المستوى الصحيح، اربط اللوحتَين الأمامية والخلفية معًا.
- إذا كان مستوى الإضاءة غير صحيح، تأكَّد من صحة رقم جزء LED ومصدر الطاقة.
أمور يجب الانتباه إليها
في ما يلي أمثلة على أخطاء التصنيع الشائعة التي يمكن أن تؤدي إلى عدم استقرار الاختبارات.
اللوحة الخلفية التي تم ثقبها لتركيب الجهاز اللوحي يؤدي ذلك إلى تعذُّر اجتياز اختبار
find_circleبسبب الدوائر الإضافية التي تم إنشاؤها بواسطة فتحات البراغي.
الشكل 23. لوحة خلفية مثقوبة
المسامير الخشبية غير متوفّرة. ويؤدي ذلك إلى انزلاق حواجز الضوء أثناء الشحن.
الشكل 24. Missing dowel on light baffle.
مزوّد طاقة غير مدرَج في قائمة UL يضمن استخدام مصدر طاقة مدرَج في قائمة UL استيفاء المواصفات المحدّدة. هذا الإجراء مهم لتشغيل الإضاءة بأمان.
الشكل 25. مثال على مصدر طاقة مدرَج في قائمة UL
انزلاق البراغي على حامل الجهاز اللوحي أو الهاتف الذي لا يمكنه تحمّل وزن الجهاز اللوحي أو الهاتف ويحدث ذلك عادةً بسبب تلف الأسنان، ويشير إلى ضرورة إعادة ربط البرغي.
الشكل 26. ثقب ذو أسنان تالفة