קנייה והגדרה של מערכת ריג מודולרית

מערכת המתקן המודולרית תומכת באוטומציה של בדיקות ITS ומורכבת מקופסת פלסטיק שנחתכת באמצעות בקרת מספרים ממוחשבת (CNC) משרטוטים של עיצוב בעזרת מחשב (CAD), מטאבלט עם תרשים וממכשיר שנבדק (DUT). מערכת ה-rig המודולרית מורכבת מ-rig בסיסי ומ-rig אופציונלי של הרחבת טלה. המתקן המודולרי לבסיס כולל תרשים מרחק של 22 ס"מ ויכול לבדוק מצלמות של מכשירים ניידים עם שדה ראייה של 60 עד 120 מעלות. המתקן הבסיסי יכול לבצע בדיקות כשהוא מסובב ב-90 מעלות והמכשיר הנבדק ממוקם בחלק העליון (כפי שמוצג באיור 2).

המתקן להארכת הטלה תומך בבדיקת מצלמות עם מרחק מיקוד מינימלי ארוך (מצלמות טלפוטו). מתקן ההארכה של העדשה מחובר בברגים למתקן הבסיס, ואפשר להתאים אישית את האורך שלו בהתאם לדרישות שלכם לבדיקת המצלמה כשרוכשים דרך ספקים מוסמכים. מערכת Camera ITS תומכת במרחקי תרשים של עד 100 ס"מ.

Modular Base Rev1.2

איור 1. ריג בסיסי מודולרי.

Modular rev1.2 90deg

איור 2. מודול בסיס של מערכת תמיכה מסתובב ב-90 מעלות.

היסטוריית גרסאות

בטבלה הבאה מתואר היסטוריית הגרסאות של מערכת ה-rig המודולרית, והיא כוללת קישורי הורדה לכל גרסה של קובצי הייצור.

תאריך Revision הורדת קובץ הפקה יומן השינויים
ספטמבר 2024 ‫1.2 Modular base rig rev1.2
  • (ספטמבר 2024) כולל תיקונים של שגיאה בקובץ ייצור
  • (יולי 2024) גרסה ראשונה

רכישה של מערכת ריג מודולרית

מומלץ לרכוש את מערכת התושבת המודולרית, את תושבת הטלה האופציונלית ואת האביזרים מאחד מהספקים המוסמכים הבאים.

  • Byte Bridge Inc.‎
    ארה"ב: 1502 Crocker Ave, Hayward, CA 94544-7037
    סין: 22F #06-08, Hongwell International Plaza Tower A, 1600 West Zhongshan Road, Xuhui, Shanghai, 200235
    www.bytebt.com
    androidpartner@bytebt.com
    ארה"ב: ‎+1-510-373-8899
    סין: ‎+86-400-8866-490

  • JFT CO LTD 捷富通科技有限公司 (לשעבר MYWAY DESIGN)
    סין: No. 40, Lane 22, Heai Road, Wujing Town, Minhang District, Shanghai, China
    טייוואן: 4F., ‪No. 163, Fu-Ying Road, XinZhuang District, New Taipei City 242, Taiwan
    www.jftcoltd.com
    service@jfttec.com or its.sales@jfttec.com
    China:+86-021-64909136
    Taiwan: 886-2-29089060

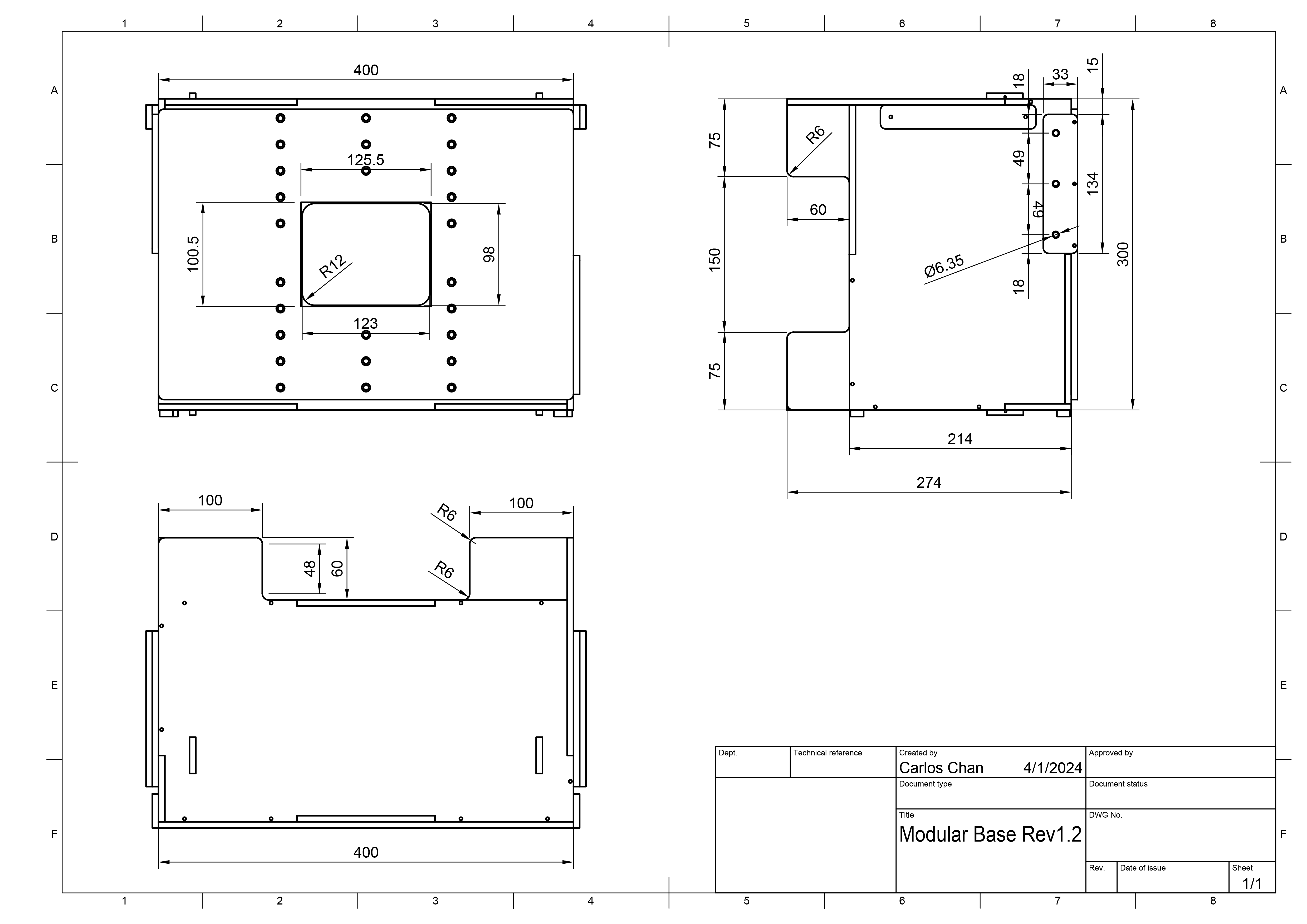
שרטוטים מכניים

זוהי שרטוט מכני של בסיס מודולרי.

שרטוט CAD של בסיס מודולרי

איור 3. שרטוט מכני של מערכת בסיס מודולרית

הגדרת ריג בסיסי

כדי להגדיר מערכת מודולרית בסיסית:

  1. רכישה של מערכת ריג מודולרית מספק שעומד בדרישות.

  2. חשוב לוודא שיש לכם את כל הרכיבים שמופיעים בטבלה הבאה (הפריטים שמוצגים באיור 4).

    רכיב כמות
    ריג בסיס מודולרי 1
    תושבת לטלפון 2
    תושבת לקיבוע טאבלט 1
    ספק כוח של 12V (רשום ב-UL, ‏ 1A מינימום) 1
    צמצם 1

    Modular Base Rev1.2 Items

    איור 4. רכיבים מודולריים של מערכת בסיסית.

  3. בהתאם להגדרה שלכם, מוודאים שיש לכם את האביזרים הנדרשים בטבלה הבאה (מוצגת באיור 5). אפשר לרכוש את האביזרים האלה מספק מוסמך.

    פריט כמות
    בקר תאורה (אפשר לשלוט בעד 3 מתקנים) 1
    ספק כוח של 5V לבקר התאורה 1
    כבל DC barrel שמחבר את התאורה למתקן בסיס מודולרי 1
    מתאם כבל DC (5.5 מ"מ x 2.1 מ"מ עד 3.5 מ"מ x 1.35 מ"מ) 1
    כבל USB A לכבל USB 1
    ערכת מכשירים מתקפלים (אם ה-DUT הוא מכשיר מתקפל) 1

    פריטים אופציונליים מודולריים

    איור 5. פריטים אופציונליים לריג בסיסי מודולרי.

  4. כדי לוודא שאין דליפות אור, מבצעים אחת מהפעולות הבאות:

    1. מייצרים צמצם שמתאים למודול המצלמה של המכשיר הנבדק, ומוודאים שאין דליפות אור (כפי שמוצג באיור 6). אפשר לחתוך פתחים מלוחות הקצף שמסופקים או להגדיר אותם באמצעות ספק מוסמך. כדי להציג את הנתונים בצורה נכונה, מכשירי DUT עם מצלמה אחורית שפונה אל המתקן מסובבים ב-90° נגד כיוון השעון, ומכשירי DUT עם מצלמה קדמית שפונה אל המתקן מסובבים ב-90° עם כיוון השעון. מוודאים שהצמצמים מוגדרים בהתאם.

      מיקום צמצם מודולרי חיתוך מודולרי של צמצם

      איור 6. ליצור פתחים כדי למנוע דליפת אור.

    2. משתמשים בבד כהה כדי לכסות את המערכת ולמנוע דליפת אור. לא צריך צמצמים. (מוצג באיור 7).

      Modular Drapery

      איור 7. מניעת דליפת אור באמצעות וילון.

  5. מתקינים תושבת טלפון רגילה או תושבת לטלפון מתקפל על לוח ההרכבה הקדמי של הטלפון בגובה המתאים באמצעות בורג ואום מניילון, כמו שמוצג באיור 8.

    התקנה של מפתח צמצם ומסגרת מודולריים

    איור 8. התקנה של צמצם ותושבת לטלפון.

  6. מתקינים את תושבת הטאבלט על לוח ההרכבה של הטאבלט בגובה המתאים באמצעות בורג ואום מניילון.

  7. ממקמים את הטאבלט של המסך ומחברים אותו למארח כמו שמוצג באיור 9. מצמידים את הטאבלט באמצעות הוואקום.

    התקנה של טאבלט מודולרי

    איור 9. התקנה של טאבלט.

  8. כדי להקל על ההפעלה במסך, מגדירים את המכשיר הנבדק לפני שמחברים אותו.

  9. מציבים את ה-DUT ומחברים אותו למארח.

  10. ממקמים את ה-DUT כך שמרכז מודול המצלמה יהיה מיושר עם מרכז הטאבלט (או קרוב מאוד למרכז הטאבלט). כדי לשנות את הגובה, משחררים את הברגים של תושבת הטלפון ומזיזים את התושבת למעלה או למטה. אחרי שמיישרים את המכשיר, מקבעים אותו באמצעות בוכנת התושבת.

    התקנה מודולרית של DUT

    איור 10. התקנה של DUT.

  11. לגבי התאורה, מחברים את כבל התאורה מהבסיס לאחד מהחיבורים הבאים:

    1. ספק כוח של 12V

      חיבור מודולרי של 12V

      איור 11. הנורה מחוברת לספק מתח של 12V.

    2. בקר תאורה (יכול להיות שיידרש מתאם)

      חיבור של בקר מודולרי

      איור 12. מנורה שמחוברת לבקר תאורה.

אחרי שמסיימים את ההגדרה של מערכת הבסיס המודולרית, מגדירים את סביבת המארח והבדיקה (הגדרת CTS). לקובץ config.yml, משתמשים בהגדרה הבאה:

  • chart\_distance = 22
  • lighting\_ch = [connected controller channel], או להשאיר כמו שזה אם לא משתמשים בבקר תאורה.

הגדרת ציוד לשימוש בתוסף Tele

כדי להגדיר את התוסף האופציונלי לשיחות טלפון, פועלים לפי השלבים הבאים.

  1. רוכשים את המערכת המודולרית ואת מערכת ההארכה הטלסקופית מספק מוסמך. אפשר לבנות את המתקן באמצעות קובצי הייצור, אבל לא מומלץ לעשות זאת כי צריך לחתוך ולהרכיב בצורה מדויקת כדי לוודא שאין בעיות בהתאמה של המתקן.

  2. מוודאים שיש לכם מערכת מודולרית תקינה ומערכת עם זרוע טלסקופית (כפי שמוצג באיור 13).

    Modular tele

    איור 13. מערכת מודולרית עם זרוע טלסקופית.

  3. מסירים את לוחית ההרכבה של הטלפון על ידי הסרת 6 ברגי ניילון ביד (3 בכל צד).

    הדגשת ברק מודולרית הסרת ברגים מודולריים הלוח הקדמי המודולרי מושבת

    איור 14. הסרת 6 ברגי ניילון באזור המודגש ביד.

  4. מניחים את בסיס המכשיר ואת תוסף הטלסקופ על המשטח שבו מתבצעות הבדיקות. כדי למנוע עומס על נקודות ההרכבה, לא מומלץ להזיז את המערכת המורכבת.

  5. ממקמים את מתקן ההארכה כך ש-6 החריצים בלשונית של מתקן ההארכה יתאימו ל-6 החורים במתקן הבסיס.

    כרטיסייה מודולרית ליישור

    איור 15. יישור החריצים עם החורים.

  6. מחברים את התוסף למתקן הבסיס באמצעות 6 הברגים. במהלך התקנת הברגים, דוחפים בעדינות את שני המתקנים זה לזה כדי לוודא שאין רווחים שדרכם האור יכול לחדור (אפשר לבקש עזרה מעמית). מהדקים את הברגים ביד.

    מודולריות עם אפשרות חיבור

    איור 16. חיבור של מתקני בסיס ומתקני הארכה.

  7. מגדירים את הצמצם (או את הוילון) ומתקינים את מתקני הטלפון ואת המכשירים שנבדקים (DUT) כמו שמתואר במאמר הגדרת מתקן בסיסי.

    כרטיסייה מודולרית ליישור

    איור 17. חיבור של תושבות לטלפון ושל DUT.

אחרי שמסיימים להגדיר את תוסף ה-rig, מגדירים את סביבת המארח והבדיקה (הגדרת CTS). לקובץ config.yml, משתמשים בהגדרה הבאה:

  • chart_distance = [המרחק הכולל מהמכשיר הנבדק לטאבלט]
  • lighting_ch = [connected control channel], או להשאיר כמו שזה אם לא משתמשים בבקר תאורה.

הסרת התוסף rig

כדי להסיר את התוסף rig, פועלים לפי שלבי ההתקנה בסדר הפוך. כשמתקינים את לוחית הקיבוע של הטאבלט, דוחפים את הלוחית אל בסיס הציוד כדי לוודא שאין רווחים שדרכם יכול לחדור אור (כמו שמוצג באיור 17). מהדקים את הברגים ביד.

מודולריות עם אפשרות חיבור

איור 18. דחיפה של לוחית הקיבוע של הטאבלט אל בסיס המצלמה.

שאלות נפוצות

למה הסצנה נחתכת במערכת טלסקופית?

חיתוך של מערכת מודולרית

איור 19. סצנה שנחתכה על ידי לוח הטלפון בציוד הבסיסי.

זה קורה כששדה הראייה של עדשת הטלה נחסם על ידי לוחית הטלפון בין בסיס המצלמה לבין תוסף הטלה. לפני שממשיכים בבדיקה, חשוב להסיר את לוחית הטלפון באמצעות מברג.

הוסרה לוחית טלפון מודולרית

איור 20. הסרת לוח הטלפון במתקן הבסיס.

למה האורות נראים עמומים או למה מופיעה שגיאה לגבי אימות התאורה כשמריצים את ITS?

השגיאה הזו מופעלת כשהתאורה במתקן הופכת עמומה יותר, וזה יכול לקרות בגלל ספק כוח ופגיעה בנוריות ה-LED עקב גיל או שימוש, או בגלל ספק כוח פגום. כדי לפתור את הבעיה, בצע את הצעדים הבאים:

  1. מוודאים שהתאורה פועלת כמו שצריך:

    • מחליפים את ספק הכוח (12 וולט, מינימום 2 אמפר, רשום ב-UL).
    • מחליפים את נורית ה-LED (אפשר לעיין ב-BOM או לפנות לספק לקבלת מידע נוסף).
  2. כדי לוודא שעוצמת האור של נורות ה-LED נמצאת ברמה המתאימה (100-300 לוקס), בודקים את עוצמת האור באמצעות מד דיגיטלי. (בדוגמה הזו נעשה שימוש במד לוקס YF-1065 של Contempo Views). מניחים את מד האור בצד הטאבלט ומסובבים אותו ל-2,000 לוקס כדי למדוד את האור (כמו שמוצג באיור 21).

    YF-1065 by Contempo Views

    איור 21. YF-1065 by Contempo Views.

    מד לוקס

    איור 22. מד אור שמודד את האור מהצד עם התושבת לטאבלט.

  3. בהתאם לערך הלוקס שנמדד, פועלים לפי השלב המתאים:

    • אם האור נמצא ברמה הנכונה, מבריגים את הלוחות הקדמי והאחורי למקומם.
    • אם עוצמת האור לא נכונה, צריך לבדוק שמספר החלק של ה-LED ושל ספק הכוח נכונים.

דברים שכדאי לשים לב אליהם

אלה דוגמאות לשגיאות נפוצות בתהליך הייצור שעלולות לגרום לכך שהבדיקות יהיו לא אמינות.

  • הפאנל האחורי עם חורים בטאבלט. כתוצאה מכך, הבדיקה find_circle נכשלת בגלל המעגלים הנוספים שנוצרו על ידי חורי הברגים.

    לוח אחורי עם חורים

    איור 23. לוח אחורי עם חורים.

  • חסרים פינים. כתוצאה מכך, מחיצות האור עלולות להחליק החוצה במהלך המשלוח.

    חסר פין

    איור 24. חסר פין עץ במפזר האור.

  • ספק כוח שלא מופיע ברשימת UL. שימוש בספק כוח שמופיע ברשימת UL עומד במפרטים המסומנים. השלב הזה חשוב כדי להפעיל את התאורה בצורה בטוחה.

    ספק כוח בתקן UL

    איור 25. דוגמה לספק כוח שמופיע ברשימת UL.

  • הברגים מחליקים בתושבת של הטאבלט או הטלפון, שלא יכולה לשאת את המשקל של הטאבלט או הטלפון. בדרך כלל זה קורה בגלל הברגות פגומות, וזה מצביע על כך שצריך להבריג מחדש את החור.

    חור עם הברגות פגומות

    איור 26. חור עם הברגות פגומות.