購買及設定模組化支架系統

模組化測試架系統支援 ITS 測試自動化,由塑膠盒 (以電腦輔助設計 (CAD) 圖面透過電腦數值控制 (CNC) 切割而成)、圖表平板電腦和受測裝置 (DUT) 組成。模組化支架系統由基本支架和選用的伸縮支架組成。模組化底座支架的圖表距離為 22 公分,可測試視野角度介於 60 度到 120 度的行動裝置攝影機。底座裝置可以旋轉 90 度,並在頂端放置 DUT 進行測試 (如圖 2 所示)。

望遠擴充裝置支援測試最小對焦距離較長的相機 (望遠相機)。購買時,可透過合格供應商,根據攝影機測試需求自訂長度。攝影機 ITS 最遠支援 100 公分的圖表距離。

模組化底座 Rev1.2

圖 1. 模組化基礎骨架。

Modular rev1.2 90deg

圖 2. 模組化底座支架旋轉 90 度。

修訂記錄

下表說明模組化骨架系統的修訂版本記錄,並提供各版本製作檔案的下載連結。

日期 修訂版本 下載正式版檔案 變更記錄
2024 年 9 月 1.2 模組化基礎裝備 rev1.2
  • (2024 年 9 月) 修正正式版檔案錯誤
  • (2024 年 7 月) 初始版本

購買模組化支架系統

建議您向下列合格供應商購買模組化支架系統、選用的遠距延伸支架和配件。

  • Byte Bridge Inc.
    美國:1502 Crocker Ave, Hayward, CA 94544-7037
    中國:上海市徐匯區中山西路 1600 號宏匯國際廣場 A 座 22 樓 06-08 室,200235
    www.bytebt.com
    androidpartner@bytebt.com
    美國:+1-510-373-8899
    中國:+86-400-8866-490

  • JFT CO LTD 捷富通科技有限公司 (前身為 MYWAY DESIGN)
    中國:中國上海市閔行區吳涇鎮和艾路 22 弄 40 號
    臺灣:4F., 臺灣新北市新莊區福營路 163 號 (郵遞區號:242)
    www.jftcoltd.com
    service@jfttec.com 或 its.sales@jfttec.com
    中國:+86-021-64909136
    臺灣:886-2-29089060

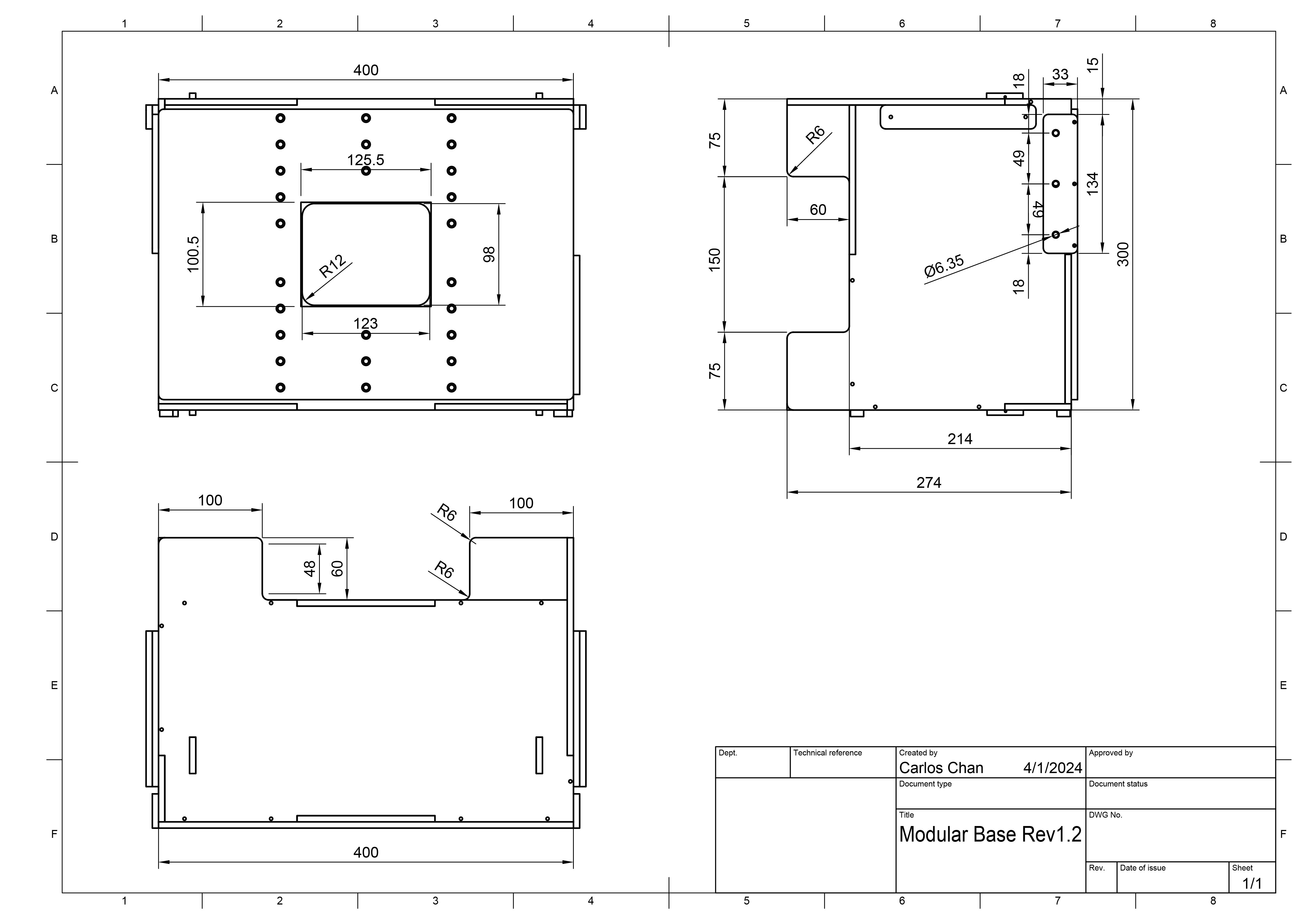
機械圖

以下是模組化底座的機械圖。

模組化底座的 CAD 繪圖

圖 3. 模組化底座的機械圖

設定基礎裝備

請按照下列步驟設定模組化基礎骨架。

  1. 向合格供應商購買模組化攝影機架系統。

  2. 請確認您已備妥下表中的所有元件 (如圖 4 所示)。

    元件 數量
    模組化基礎鑽機 1
    手機支架 2
    平板電腦支架 1
    12V 電源供應器 (通過 UL 認證,至少 1A) 1
    光圈 1

    模組化底座 Rev1.2 項目

    圖 4. 模組化基礎骨架元件。

  3. 視設定而定,請確認您擁有下表中的必要配件 (如圖 5 所示)。這些配件可向合格供應商購買。

    產品 數量
    燈光控制器 (最多可控制 3 個燈架) 1
    照明控制器專用的 5V 電源供應器 1
    將燈具連接至模組化底座的 DC 桶式電纜 1
    筒狀接頭直流電源線轉接頭 (5.5 公釐 x 2.1 公釐轉 3.5 公釐 x 1.35 公釐) 1
    USB A 傳輸線對 USB 傳輸線 1
    摺疊式套件 (如果 DUT 是摺疊式裝置) 1

    單元式選用項目

    圖 5. 模組化基礎骨架的選用項目。

  4. 請採取下列任一做法,確保沒有漏光:

    1. 製作適合 DUT 攝影機模組的光圈,並確保沒有漏光 (如圖 6 所示)。孔洞可從提供的泡棉板上切出,或由合格供應商設定。為確保圖形方向正確,後置鏡頭朝向裝置的 DUT 會逆時針旋轉 90°,前置鏡頭朝向裝置的 DUT 則會順時針旋轉 90°。請確認光圈設定正確無誤。

      模組化光圈定位 單元式光圈切割

      圖 6. 製作光圈,防止漏光。

    2. 使用深色布幕遮蓋裝置,防止漏光,不需要光圈。(如圖 7 所示)。

      模組化窗簾

      圖 7. 使用布簾防止漏光。

  5. 使用尼龍螺栓和螺帽,將標準手機支架或摺疊式手機支架安裝到前手機安裝面板上,並調整至適當高度,如圖 8 所示。

    安裝模組化光圈和支架

    圖 8. 安裝光圈和手機支架。

  6. 使用尼龍螺栓和螺帽,將平板電腦支架安裝在平板電腦安裝面板上適當的高度。

  7. 如圖 9 所示,安裝螢幕平板電腦並將平板電腦連線至主機。使用吸盤固定平板電腦。

    安裝模組化平板電腦

    圖 9.安裝平板電腦。

  8. 如要簡化螢幕上的操作,請先設定 DUT,再安裝 DUT。

  9. 掛接 DUT 並連線至主機。

  10. 對齊 DUT,讓攝影機模組中心對齊平板電腦中心 (或非常靠近平板電腦中心)。如要調整高度,請鬆開手機安裝螺栓,然後向上或向下滑動支架。對齊後,請用支架柱塞固定 DUT。

    安裝模組化 DUT

    圖 10. 安裝 DUT。

  11. 如要供電,請將燈光線從底座連接至下列其中一個裝置:

    1. 12V 電源供應器

      模組化 12V 連接

      圖 11. 燈具連接 12V 電源供應器。

    2. 燈光控制器 (可能需要轉接器)

      連接模組化控制器

      圖 12. 燈具已連線至照明控制器。

完成模組化底座設備的設定後,請設定主機和測試環境 (設定 CTS)。如為 config.yml 檔案,請使用下列設定:

  • chart\_distance = 22
  • lighting\_ch = [connected controller channel],如果未使用燈光控制器,則保留原樣。

設定 Tele 擴充裝置

請按照下列步驟設定選用的攝影機延伸支架。

  1. 向合格供應商購買模組化底座和延伸支架。你可以使用製作檔案建構支架,但我們不建議這麼做,因為裁剪和組裝必須準確,才能確保延伸支架沒有合身問題。

  2. 請確認您有可正常運作的模組化基礎裝備和遠距延伸裝備 (如圖 13 所示)。

    模組化望遠鏡頭

    圖 13. 模組化底座,附伸縮桿。

  3. 徒手拆下 6 個尼龍螺栓 (兩側各 3 個),取下手機固定面板。

    模組化螺栓重點 取下模組化螺栓 取下模組化前蓋

    圖 14. 用手移除醒目顯示區域中的 6 個尼龍螺栓。

  4. 將底座和遠距擴充底座放在測試執行的表面上。為避免安裝點承受壓力,我們不建議移動組裝好的攝影機。

  5. 將延長支架就位,使延長支架凸片上的 6 個凹槽與底座支架上的 6 個孔洞對齊。

    單元式對齊分頁

    圖 15. 將凹槽與孔洞對齊。

  6. 安裝 6 個螺栓,將延長支架固定到底座支架上。安裝螺絲時,請輕輕將 2 個支架推在一起,確保沒有縫隙,以免漏光 (如有需要,請同事協助)。用手旋緊螺栓。

    將模組化裝置推在一起

    圖 16. 附加基本和擴充支架。

  7. 基本裝置設定所述,設定光圈 (或窗簾),並安裝手機支架和 DUT。

    單元式對齊分頁

    圖 17. 安裝手機支架和 DUT。

完成擴充功能機台的設定後,請設定主機和測試環境 (設定 CTS)。如為 config.yml 檔案,請使用下列設定:

  • chart_distance = [DUT 到平板電腦的總距離]
  • lighting_ch = [已連線的控制通道],如果未使用燈光控制器,則維持原狀。

解除安裝擴充功能設備

如要解除安裝擴充功能架,請反向執行安裝步驟。 安裝平板電腦安裝面板時,請將面板推向底座,確保沒有縫隙,以免漏光 (如圖 17 所示)。用手旋緊螺栓。

將模組化裝置推在一起

圖 18. 將平板電腦固定面板推向底座。

常見問題 (FAQ)

為什麼在遠端攝影機設定中,場景會遭到裁剪?

模組化裝備裁剪

圖 19. 手機板在底座支架中裁剪場景。

如果手機板擋住基本支架和望遠延伸支架之間的望遠鏡頭視野,就會發生這種情況。請務必先用螺絲起子取下手機板,再繼續進行測試。

已移除模組化手機背蓋

圖 20. 從底座支架上取下手機板。

為什麼執行 ITS 時,燈光會變暗或出現驗證燈光錯誤?

如果燈具的照明變暗,就會觸發這項錯誤。照明變暗可能是因為電源供應器和 LED 燈因老化或使用而衰退,也可能是電源供應器故障。如要解決這個問題,請按照下列步驟操作:

  1. 確認燈具正常運作:

    • 更換電源供應器 (UL 列名 12 伏特,至少 2 安培)。
    • 更換 LED (請參閱物料清單或洽詢供應商以瞭解詳情)。
  2. 為確保 LED 燈的照度達到適當程度 (100 至 300),請使用數位電錶測試照度。(本例中使用 Contempo Views 的 YF-1065 照度計)。將照度計放在平板電腦側邊,並轉到 2000 lux 測量光線 (如圖 21 所示)。

    Contempo Views 的 YF-1065

    圖 21. Contempo Views 的 YF-1065。

    照度計

    圖 22. 使用平板電腦支架從側面測量光線的照度計。

  3. 請根據測得的照度值採取適當步驟:

    • 如果燈光亮度合適,請將前後板鎖入鞋帶。
    • 如果燈光亮度不正確,請確認 LED 和電源供應器零件編號是否正確。

注意事項

以下列舉常見的製造錯誤,這些錯誤可能會導致測試不穩定。

  • 背板,平板電腦孔洞已穿孔。這會導致 find_circle 測試失敗,因為螺絲孔會產生額外的圓圈。

    有孔的背板

    圖 23. 背面有洞。

  • 缺少木銷。這會導致光擋在運送過程中滑出。

    缺少木栓

    圖 24. 燈光擋板缺少定位銷。

  • 非 UL 列名的電源供應器。使用符合 UL 標準的電源插頭,可滿足標示的規格。這對安全操作燈具非常重要。

    通過 UL 認證的電源供應器

    圖 25. UL 認證電源供應器範例。

  • 平板電腦或手機支架上的螺絲鬆脫,無法支撐平板電腦或手機的重量。這通常是螺紋損壞所致,表示孔洞需要重新穿線。

    螺紋受損的孔洞

    圖 26. 螺紋損壞的孔洞。