模块化装置系统支持 ITS 测试自动化,由一个塑料盒、一台图表平板电脑和一部被测设备 (DUT) 组成。塑料盒是根据计算机辅助设计 (CAD) 图纸,通过计算机数控 (CNC) 技术切割制成的。模块化装置系统包括一个底座装置和一个可选的远摄扩展装置。模块化底座装置的图表距离为 22 厘米,可以测试 FoV(视野范围)为 60 度到 120 度的移动设备相机。底座装置可以将 DUT 置于顶部,并且可以 90 度旋转进行测试(如图 2 所示)。
远摄扩展装置支持测试最小焦距较长的摄像头(远距摄像头)。远摄扩展装置会用螺栓固定在底座装置上,若通过合格的供应商进行购买,您还可以根据相机测试要求自定义长度。 相机 ITS 支持的图表距离最大为 100 厘米。
图 1. 模块化底座装置。
图 2. 旋转 90 度后的模块化底座装置。
修订历史记录
下表列出了模块化装置系统的修订历史记录,并包含指向每个生产文件版本的下载链接。
| 日期 | 修订版本 | 下载生产文件 | 更新日志 |
|---|---|---|---|
| 2024 年 9 月 | 1.2 | 模块化底座装置修订版 1.2 |
|
购买模块化装置系统
我们建议您购买模块化装置系统、可选的远摄扩展装置、 来自以下合格供应商之一的设备和配件。
Byte Bridge Inc.
美国:1502 Crocker Ave, Hayward, CA 94544-7037
中国:上海市徐汇区中山西路 1600 号宏汇国际广场 A 座 22 层 06-08,邮编:200235
www.bytebt.com
androidpartner@bytebt.com
美国:+1-510-373-8899
中国:+86-400-8866-490JFT CO LTD 捷富通科技有限公司(之前称为 MYWAY DESIGN)
中国大陆:No. 40, Lane 22, Heai Road, Wujing Town, Minhang District, Shanghai, China
中国台湾:4F., No. 163, Fu-Ying Road, XinZhuang District, New Taipei City 242, Taiwan
www.jftcoltd.com
service@jfttec.com or its.sales@jfttec.com
中国大陆:+86-021-64909136
中国台湾:886-2-29089060
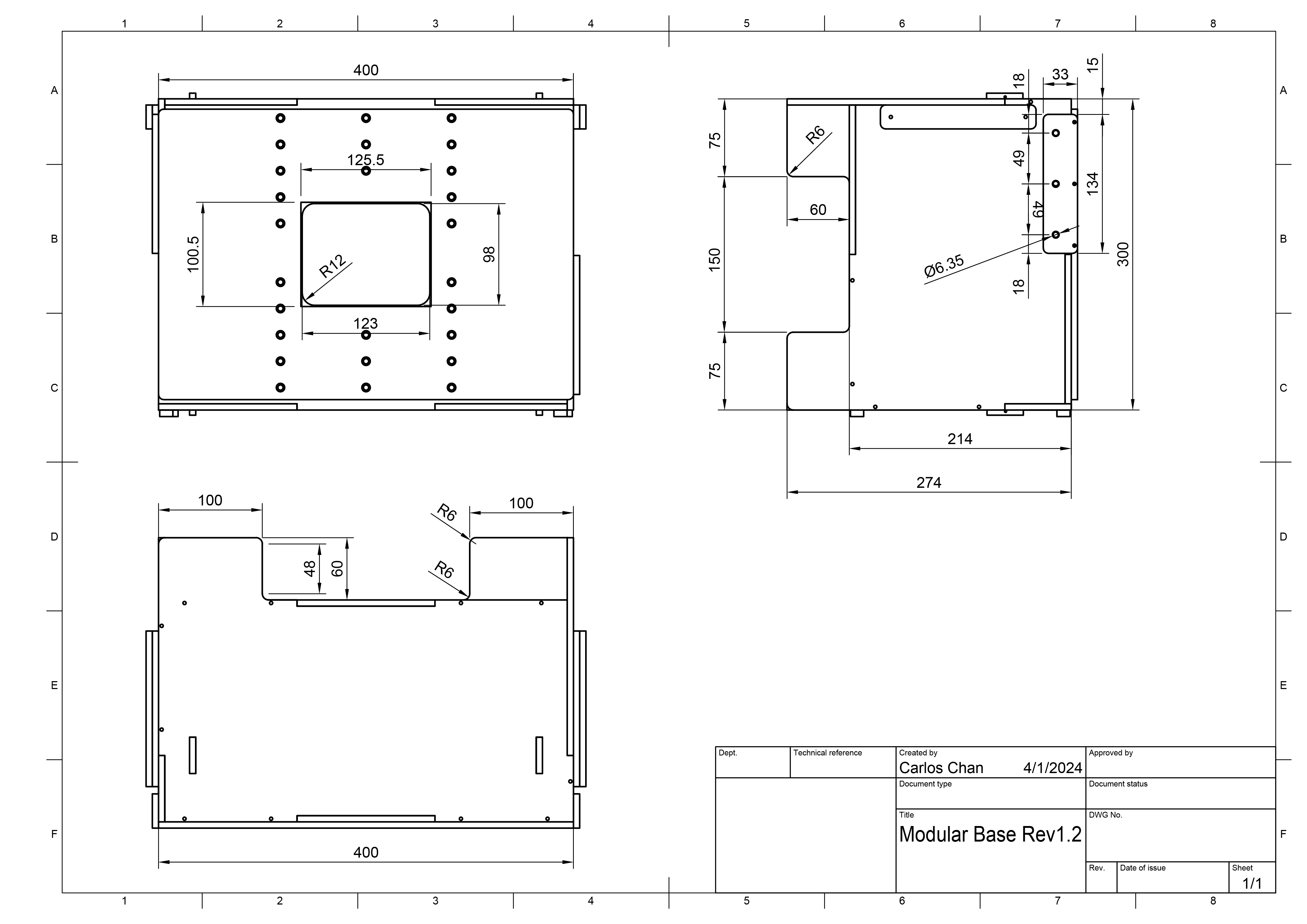
机械图纸
以下是模块化底座装置的机械图纸。
图 3. 模块化底座装置的机械图纸
底座装置安装
请按照以下步骤安装模块化底座装置。
从合格供应商处购买模块化装置系统。
确保您已准备好下表中的所有组件(如 图 4)。
组件 数量 模块化底座装置 1 手机安装支架 2 平板电脑安装支架 1 12V 电源(通过 UL 认证,最低 1A) 1 光圈 1
图 4. 模块化底座装置组件。
根据您的安装需求,确保已准备好下表中的必要配件(如图 5 所示)。这些配件可以从合格的供应商处购买。
项目 数量 照明控制器(最多可控制 3 个装置) 1 为照明控制器供电的 5V 电源 1 将灯具连接到模块化底座装置的直流圆柱线缆 1 直流圆柱线缆适配器(5.5 毫米 x 2.1 毫米插头转换为 3.5 毫米 x 1.35 毫米插头) 1 USB A 型线转换为 USB 线 1 可折叠设备套件(如果 DUT 是可折叠设备) 1
图 5. 模块化底座装置的可选组件。
请执行以下任一操作,确保不存在光泄露的情况:
组装光圈以适配 DUT 的摄像头模块,并确保完全不漏光(如图 6 所示)。光圈可以用提供的泡沫板切割制作,也可以从合格的供应商处定制。为了获得正确的图像方向,将后置摄像头朝向装置的 DUT 逆时针旋转 90°,将前置摄像头朝向装置的 DUT 顺时针旋转 90°。确保光圈已相应地进行装配。
图 6. 制作光圈以防止漏光。
使用深色帘布遮盖设备,以防漏光,不需要光圈。(如图 7 所示)
图 7. 使用帘布防止漏光。
使用尼龙螺栓和螺母将标准手机安装支架或可折叠手机安装支架安装到前置手机安装面板上,高度要适中,如图 8 所示。
图 8. 光圈和手机安装支架安装。
使用尼龙螺栓和螺母将平板电脑安装支架安装到平板电脑安装面板上的相应位置,高度要适中。
安装显示平板电脑并将平板电脑连接到主机,如下所示 图 9.使用柱塞固定平板电脑。
图 9. 平板电脑安装。
为了简化屏幕上的操作,请在安装 DUT 之前安装 DUT。
安装 DUT 并连接到主机。
对齐 DUT,使摄像头模块的中心与平板电脑的中心对齐(或非常接近)。如需调整高度,请旋松手机安装螺栓,然后向上或向下滑动安装支架。对齐后,使用安装柱塞固定 DUT。
图 10. DUT 安装。
对于照明装置,请将照明装置电缆从底座装置连接到以下其中一个设备:
12V 电源
图 11. 灯已连接到 12V 电源。
照明控制器(可能需要适配器)
图 12. 灯已连接到照明控制器。
模块化底座装置安装完毕后,安装主机和测试环境(安装 CTS)。
对于 config.yml 文件,请使用以下配置:
chart\_distance= 22lighting\_ch= [已连接的控制器通道],或者请保留原样(若不使用照明控制器)
远摄扩展装置安装
请按照以下步骤安装可选的远摄扩展装置。
从合格的供应商处购买模块化底座装置和远摄扩展装置。此装置可以根据生产文件组装,但不建议这样做,因为切割和组装必须准确无误,扩展装置不存在贴合问题。
确保您已准备好可正常使用的模块化底座装置和远摄扩展装置(如图 13 所示)。
图 13. 带远摄扩展装置的模块化底座。
用手拧下 6 根尼龙螺栓(每侧 3 根),取下手机安装面板。
图 14. 用手拧下突出显示区域中的 6 个尼龙螺栓。
将底座装置和远摄扩展装置放置在执行测试的表面上。为了避免给安装点带来压力,我们建议不要移动组装好的装置
将扩展装置固定到位,使扩展装置卡舌上的 6 个插槽与底座装置上的 6 个孔对齐。
图 15. 将插槽与孔对齐。
安装好 6 个螺栓,将扩展装置安装到底座装置上。安装螺丝时,请轻轻将 2 个装置推合一起,确保没有缝隙,以免漏光(必要时请同事帮忙)。用手拧紧螺栓。
图 16. 安装底座装置和扩展装置。
装配孔(或帷幕)并安装手机安装支架和 DUT ,如底座装置安装中所述。
图 17. 固定手机安装支架和 DUT。
扩展装置安装完毕后,安装主机和测试环境(安装 CTS)。对于 config.yml 文件,请使用以下配置:
chart_distance= [DUT 到平板电脑之间的总距离]lighting_ch= [已连接的控制通道],或者请保留原样(若不使用照明控制器)
拆卸扩展装置
如需拆卸扩展装置,请按照安装步骤反向操作。 安装平板电脑安装面板时,请将此面板推向底座装置,使其紧贴在一起,确保没有空隙,以免漏光(如图 17 所示)。用手拧紧螺栓。
图 18. 将平板电脑安装面板推向底座装置,使其紧贴在一起。
常见问题解答 (FAQ)
为什么在运行 ITS 时,灯光会显得昏暗或会出现照明验证错误?
当装置内的光线变暗时,就会触发此错误。原因可能是电源和 LED 因老化或使用导致衰减,或者电源出现故障。要解决此问题,请按以下步骤操作:
确保照明装置正常工作:
- 更换电源(通过 UL 认证,电压为 12 伏,电流最低为 2 安)。
- 更换 LED(如需更多信息,请参阅 BOM 或与供应商联系)。
为了确保 LED 灯的勒克斯值处于适当水平 (100-130),请使用数字照度计测试勒克斯值。(本示例中使用的是 Contempo Views 的 YF-1065 照度计。)将照度计放置在平板电脑一侧,然后将其调到 2000 勒克斯,以测量光照度(如图 20 所示)。
图 19. Contempo Views 的 YF-1065。
图 20. 用照度计测量安装平板电脑托架一侧的光照强度。
根据测得的勒克斯值,执行相应的步骤:
- 如果光照强度处于正确的水平,需要用螺钉将前板和后板固定到位。
- 如果光照强度处于不正确的水平,需要检查 LED 和电源配件号是否正确。
注意事项
下面列出了一些常见的组装错误,这些错误会导致测试易出故障。
安装平板电脑的后板上有刺穿孔。这会导致
find_circle测试失败,因为螺钉孔会产生额外的圆圈。
图 21. 有刺穿孔的后板。
缺少固定销。这会导致挡光板在运输过程中松脱。
图 22. 挡光板上缺少固定销。
非 UL 认证电源。使用 UL 认证电源符合标示的规范。这对于安全操作照明系统非常重要。
图 23. UL 认证电源示例。
平板电脑托架或手机托架上的螺钉松脱,导致无法承受平板电脑或手机的重量。这通常是由于螺纹损坏造成的,表明该孔需要重新钻孔。
图 24. 螺纹损坏的孔。