Модульная система стенда поддерживает автоматизацию испытаний ITS и состоит из пластикового корпуса, изготовленного с помощью ЧПУ по чертежам, созданным в системе автоматизированного проектирования (САПР), планшета для диаграмм и испытуемого устройства (ИУ). Модульная система стенда состоит из базовой установки и опционального телескопического удлинителя. Модульная базовая установка имеет расстояние между диаграммами 22 см и может тестировать камеры мобильных устройств с полем зрения от 60 до 120 градусов. Базовая установка может выполнять испытания, повернутыми на 90 градусов с ИУ сверху (см. рисунок 2).
Удлинитель телеобъектива позволяет тестировать камеры с большим минимальным фокусным расстоянием (телеобъективы). Удлинитель телеобъектива крепится болтами к базовой установке, а его длина может быть изменена в соответствии с вашими требованиями к тестированию камеры при покупке у сертифицированных поставщиков . Система ITS камеры поддерживает расстояние до 100 см.

Рисунок 1. Модульная базовая установка.

Рисунок 2. Модульная базовая установка, повернутая на 90 градусов.
История изменений
В следующей таблице описывается история изменений модульной системы буровой установки и содержатся ссылки для загрузки каждой версии производственных файлов.
| Дата | Пересмотр | Загрузка производственного файла | Журнал изменений |
|---|---|---|---|
| Сентябрь 2024 г. | 1.2 | Модульная базовая установка rev1.2 |
|
Приобретите модульную систему буровой установки
Мы рекомендуем приобретать модульную систему буровой установки, дополнительный телескопический удлинитель и аксессуары у одного из следующих квалифицированных поставщиков.
Байт Бридж Инк.
США: 1502 Crocker Ave, Hayward, CA 94544-7037
Китай: 22 этаж, № 06-08, Hongwell International Plaza Tower A, 1600 West Zhongshan Road, Сюйхуэй, Шанхай, 200235
www.bytebt.com
androidpartner@bytebt.com
США: +1-510-373-8899
Китай: +86-400-8866-490JFT CO LTD 捷富通科技有限公司 (ранее известная как MYWAY DESIGN)
Китай: № 40, переулок 22, Heai Road, город Уцзин, район Минхан, Шанхай, Китай.
Тайвань: 4F., № 163, Fu-Ying Road, район Синьчжуан, Нью-Тайбэй 242, Тайвань.
www.jftcoltd.com
service@jfttec.com или its.sales@jfttec.com
Китай:+86-021-64909136
Тайвань: 886-2-29089060
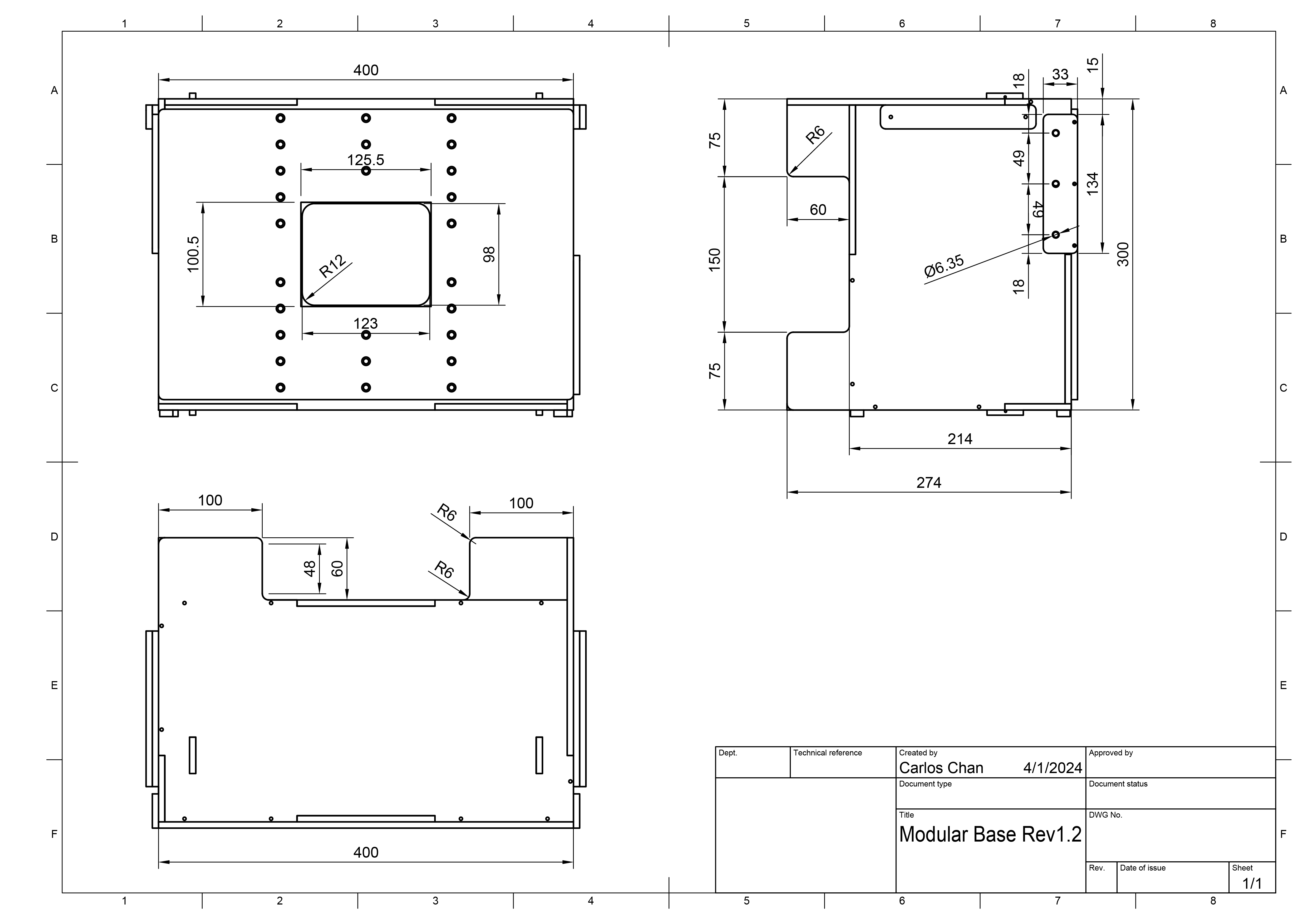
Механические чертежи
Ниже представлен механический чертеж модульной базовой установки.

Рисунок 3. Механический чертеж модульной базовой установки
Настройка базовой установки
Выполните следующие действия, чтобы собрать модульную базовую установку.
Приобретите модульную буровую систему у квалифицированного поставщика.
Убедитесь, что у вас есть все компоненты, указанные в следующей таблице (элементы показаны на рисунке 4).
Компонент Количество Модульная базовая установка 1 Кронштейн для крепления телефона 2 Кронштейн для крепления планшета 1 Источник питания 12 В (сертифицирован UL, минимум 1 А) 1 Диафрагма 1 
Рисунок 4. Компоненты модульной базовой установки.
В зависимости от вашей конфигурации убедитесь, что у вас есть необходимые аксессуары, перечисленные в следующей таблице (см. рисунок 5). Эти аксессуары можно приобрести у сертифицированного поставщика.
Элемент Количество Контроллер освещения (может управлять до 3 установок) 1 Блок питания 5 В для контроллера освещения 1 Цилиндрический кабель постоянного тока для подключения освещения к модульной базовой установке 1 Адаптер для кабеля постоянного тока (5,5 мм x 2,1 мм на 3,5 мм x 1,35 мм) 1 Кабель USB A - USB-кабель 1 Складной комплект (если ДУТ — складное устройство) 1 
Рисунок 5. Дополнительные элементы для модульной базовой установки.
Убедитесь в отсутствии утечек света, выполнив одно из следующих действий:
Изготовьте отверстие для модуля камеры тестируемого устройства и убедитесь в отсутствии утечки света (как показано на рисунке 6). Отверстия можно вырезать из предоставленных пенопластовых панелей или настроить с помощью квалифицированного поставщика. Для правильной ориентации рисунка тестируемые устройства с задней камерой, обращённой к стенду, поворачиваются на 90° против часовой стрелки, а тестируемые устройства с передней камерой, обращённой к стенду, поворачиваются на 90° по часовой стрелке. Убедитесь, что отверстия настроены соответствующим образом.


Рисунок 6. Сделайте отверстия, чтобы предотвратить утечку света.
Накройте установку темной драпировкой, чтобы предотвратить утечку света, отверстия не требуются (показано на рисунке 7).

Рисунок 7. Предотвращение утечки света с помощью шторы.
Установите стандартное крепление для телефона или складное крепление для телефона на переднюю монтажную панель телефона на подходящей высоте с помощью нейлонового болта и гайки, как показано на рисунке 8.

Рисунок 8. Установка диафрагмы и крепления телефона.
Установите крепление для планшета на монтажную панель планшета на подходящей высоте с помощью нейлонового болта и гайки.
Установите дисплейный планшет и подключите его к хосту, как показано на рисунке 9. Закрепите планшет с помощью фиксатора.

Рисунок 9. Установка планшета.
Чтобы упростить работу с экраном, настройте проверяемое устройство перед его монтажом.
Установите проверяемое устройство и подключите его к хосту.
Выровняйте проверяемое устройство так, чтобы центр модуля камеры совпадал с центром планшета (или находился очень близко к нему). Чтобы отрегулировать высоту, ослабьте болты крепления телефона и сдвиньте крепление вверх или вниз. После выравнивания зафиксируйте проверяемое устройство с помощью фиксатора крепления.

Рисунок 10. Установка проверяемого устройства.
Для освещения подключите кабель освещения от базовой установки к одному из следующих разъемов:
блок питания 12 В

Рисунок 11. Светильник подключен к источнику питания 12 В.
Контроллер освещения (может потребоваться адаптер)

Рисунок 12. Светильник подключен к контроллеру освещения.
После завершения настройки модульной базовой установки настройте хост и тестовую среду ( Настройка CTS ). Для файла config.yml используйте следующую конфигурацию:
-
chart\_distance= 22 -
lighting\_ch= [канал подключенного контроллера] или оставьте как есть, если контроллер освещения не используется.
Настройка телескопической удлинительной установки
Выполните следующие действия для настройки дополнительного телескопического удлинителя.
Приобретите модульную базовую установку и телескопическую удлинительную установку у квалифицированного поставщика. Установка может быть собрана с использованием производственных файлов, но это не рекомендуется, поскольку резка и сборка должны быть точными, чтобы гарантировать отсутствие проблем с подгонкой удлинительной установки.
Убедитесь, что у вас есть рабочая модульная базовая установка и телескопический удлинитель (как показано на рисунке 13).

Рисунок 13. Модульная базовая установка с телескопическим удлинителем.
Снимите панель крепления телефона, открутив вручную 6 нейлоновых болтов (по 3 с каждой стороны).



Рисунок 14. Удаление 6 нейлоновых болтов в выделенной области вручную.
Разместите базовую и телескопическую установки на поверхности, где будут проводиться испытания. Во избежание нагрузки на точки крепления не рекомендуется перемещать собранную установку.
Установите удлинительную оснастку на место так, чтобы 6 пазов на выступе удлинительной оснастки совпали с 6 отверстиями на базовой оснастке.

Рисунок 15. Совмещение пазов с отверстиями.
Прикрепите удлинительную стойку к базовой, установив 6 болтов. При установке винтов аккуратно прижимайте обе стойки друг к другу, чтобы не было зазоров, через которые может проникнуть свет (при необходимости обратитесь за помощью к коллеге). Затяните болты вручную.

Рисунок 16. Крепление основания и удлинителей.
Настройте проем (или драпировку) и установите крепления для телефонов и тестируемые устройства, как описано в разделе «Настройка базовой установки» .

Рисунок 17. Крепление держателей телефона и проверяемого устройства.
После завершения настройки расширения системы настройте хост и тестовую среду ( Настройка CTS ). Для файла config.yml используйте следующую конфигурацию:
-
chart_distance= [общее расстояние от DUT до планшета] -
lighting_ch= [подключенный канал управления], или оставьте как есть, если не используете контроллер освещения.
Удалить удлинительную установку
Чтобы снять удлинительную стойку, выполните шаги по установке в обратном порядке. При установке панели для крепления планшета прижмите её к основанию стойки, чтобы не было зазоров, через которые может проникнуть свет (как показано на рисунке 17). Затяните болты вручную.

Рисунок 18. Прижимаем монтажную панель планшета к основанию.
Часто задаваемые вопросы (FAQ)
Почему сцена обрезана на телекамере?

Рисунок 19. Сцена обрезана по номерному знаку телефона в базовой установке.
Это происходит, когда поле зрения телеобъектива перекрывается телефонной пластиной, расположенной между базовой стойкой и удлинителем. Перед началом тестирования обязательно снимите телефонную пластину с помощью отвёртки.

Рисунок 20. Снятие телефонной пластины с базовой установки.
Почему свет кажется тусклым или почему при запуске ITS появляется ошибка проверки освещения?
Эта ошибка возникает, когда освещение в установке становится тусклее. Это может быть вызвано ухудшением характеристик источника питания и светодиодов из-за износа или использования, а также неисправностью источника питания. Чтобы решить эту проблему, выполните следующие действия:
Убедитесь, что освещение работает правильно:
- Замените блок питания (согласно рекомендациям UL: 12 вольт, минимум 2 ампера).
- Замените светодиод (для получения дополнительной информации обратитесь к спецификации материалов или свяжитесь с поставщиком).
Чтобы убедиться, что уровень освещённости светодиодных ламп соответствует требуемому (100–300 люкс), проверьте освещённость с помощью цифрового измерителя. (В этом примере используется люксметр YF-1065 от Contempo Views .) Поместите люксметр на планшет и установите его на 2000 люкс для измерения освещённости (показано на рисунке 21).

Рисунок 21. YF-1065 от Contempo Views.

Рисунок 22. Люксметр, измеряющий освещенность сбоку с помощью крепления для планшета.
В зависимости от измеренного значения люкса выполните соответствующий шаг:
- Если свет находится на правильном уровне, прикрутите переднюю и заднюю пластины к шнурку.
- Если уровень света неправильный, проверьте правильность номера детали светодиода и блока питания.
На что следует обратить внимание
Ниже приведены примеры распространенных ошибок на производстве, которые могут сделать результаты испытаний ненадёжными.
Задняя панель с отверстиями для планшета. Это приводит к провалу теста
find_circleиз-за дополнительных кругов, создаваемых отверстиями для винтов.
Рисунок 23. Задняя панель с пробитыми отверстиями.
Отсутствуют штифты. Из-за этого защитные экраны выпадают во время транспортировки.

Рисунок 24. Отсутствует штифт на светоотражающей перегородке.
Источник питания, не сертифицированный UL. Использование источника питания, сертифицированного UL, соответствует заявленным характеристикам. Это важно для безопасной эксплуатации освещения.

Рисунок 25. Пример источника питания, сертифицированного UL.
Проскальзывание винтов на держателе планшета или телефона, которые не выдерживают вес планшета или телефона. Обычно это вызвано повреждением резьбы и указывает на необходимость перерезки резьбы в отверстии.

Рисунок 26. Отверстие с поврежденной резьбой.