Kupowanie i konfigurowanie modułowego systemu rig

Modułowy system testowy obsługuje automatyzację testów ITS i składa się z plastikowego pudełka wyciętego na maszynie CNC na podstawie rysunków CAD, tabletu z wykresem i testowanego urządzenia. Modułowy system statywów składa się ze statywu podstawowego i opcjonalnego statywu teleskopowego. Modułowy statyw ma odległość od wykresu wynoszącą 22 cm i umożliwia testowanie aparatów urządzeń mobilnych o polu widzenia od 60 do 120 stopni. Podstawowy zestaw testowy może przeprowadzać testy po obróceniu o 90 stopni z urządzeniem na górze (rysunek 2).

Urządzenie do testowania teleobiektywów umożliwia testowanie aparatów o dużej minimalnej odległości nastawiania ostrości (teleobiektywów). Wysięgnik teleobiektywu jest przykręcany do podstawy, a jego długość można dostosować do wymagań testowania kamery podczas zakupu u autoryzowanych sprzedawców. ITS aparatu obsługuje odległości wykresów do 100 cm.

Modular Base Rev1.2

Rysunek 1. Modułowa platforma podstawowa.

Modular rev1.2 90deg

Rysunek 2. Modułowa platforma bazowa obrócona o 90 stopni.

Historia wersji

W tabeli poniżej znajdziesz historię zmian modułowego systemu mocowań oraz linki do pobierania poszczególnych wersji plików produkcyjnych.

Data Wersja Pobieranie pliku produkcyjnego Historia zmian
Wrzesień 2024 r. 1.2 Modular base rig rev1.2
  • (Wrzesień 2024 r.) Zawiera poprawki błędu w pliku produkcyjnym
  • (Lipiec 2024 r.) Pierwsza wersja

Zakup modularnego systemu rig

Zalecamy zakup modularnego systemu mocowania, opcjonalnego wysuwanego systemu mocowania i akcesoriów u jednego z tych kwalifikowanych dostawców.

  • Byte Bridge Inc.
    USA: 1502 Crocker Ave, Hayward, CA 94544-7037
    Chiny: 22F #06-08, Hongwell International Plaza Tower A, 1600 West Zhongshan Road, Xuhui, Szanghaj, 200235
    www.bytebt.com
    androidpartner@bytebt.com
    USA: +1-510-373-8899
    Chiny: +86-400-8866-490

  • JFT CO LTD 捷富通科技有限公司 (wcześniej MYWAY DESIGN)
    Chiny: No. 40, Lane 22, Heai Road, Wujing Town, Minhang District, Szanghaj, Chiny
    Tajwan: 4F., No. 163, Fu-Ying Road, XinZhuang District, New Taipei City 242, Tajwan
    www.jftcoltd.com
    service@jfttec.com lub its.sales@jfttec.com
    Chiny:+86-021-64909136
    Tajwan: 886-2-29089060

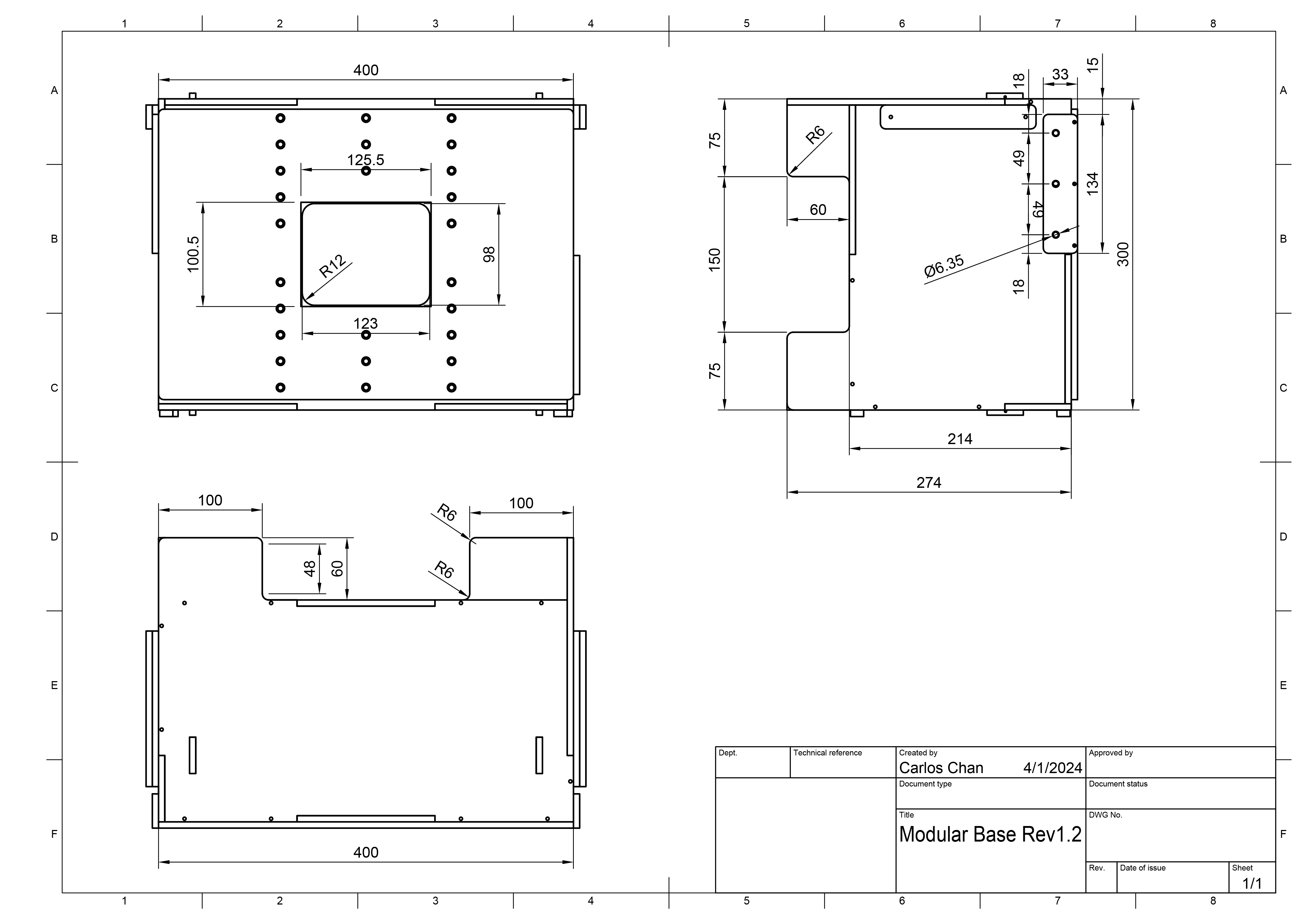
Rysunki mechaniczne

Poniżej znajduje się rysunek techniczny modułowego statywu podstawy.

Rysunek CAD podstawy modułowej

Rysunek 3. Rysunek techniczny modułowej platformy bazowej

Konfiguracja podstawowego zestawu

Aby skonfigurować modułową platformę bazową, wykonaj te czynności.

  1. Kup modułowy system rig od kwalifikującego się dostawcy.

  2. Sprawdź, czy masz wszystkie komponenty z tabeli poniżej (elementy pokazane na rysunku 4).

    Komponent Ilość
    Modułowy zestaw podstawowy 1
    Uchwyt na telefon 2
    Uchwyt montażowy do tabletu 1
    Zasilacz 12 V (z certyfikatem UL, co najmniej 1 A) 1
    Przysłona 1

    Produkty Modular Base Rev1.2

    Rysunek 4. Modułowe komponenty podstawowego zestawu.

  3. W zależności od konfiguracji upewnij się, że masz niezbędne akcesoria wymienione w tabeli poniżej (rysunek 5). Te akcesoria można kupić u autoryzowanego sprzedawcy.

    Produkt Ilość
    Kontroler oświetlenia (może sterować maksymalnie 3 urządzeniami) 1
    Zasilacz 5 V do kontrolera oświetlenia 1
    Kabel z wtyczką koncentryczną łączący oświetlenie z modułową podstawą 1
    Adapter kabla z wtyczką koncentryczną (5,5 mm x 2,1 mm na 3,5 mm x 1,35 mm) 1
    Kabel USB-A na kabel USB 1
    Zestaw składany (jeśli testowane urządzenie jest składane) 1

    Opcjonalne elementy modułowe

    Rysunek 5. Opcjonalne elementy modułowego zestawu podstawowego.

  4. Aby upewnić się, że nie ma wycieków światła, wykonaj jedną z tych czynności:

    1. Wykonaj przysłonę pasującą do modułu aparatu DUT i upewnij się, że nie ma wycieków światła (jak pokazano na rysunku 6). Otwory można wyciąć z dostarczonych płyt piankowych lub zlecić ich wykonanie wykwalifikowanemu dostawcy. Aby uzyskać prawidłową orientację rysunku, urządzenia DUT z tylnym aparatem skierowanym w stronę platformy są obracane o 90° w kierunku przeciwnym do ruchu wskazówek zegara, a urządzenia DUT z przednim aparatem skierowanym w stronę platformy są obracane o 90° w kierunku zgodnym z ruchem wskazówek zegara. Sprawdź, czy otwory są odpowiednio skonfigurowane.

      Modułowe pozycjonowanie przysłony Modułowe wycinanie otworów

      Rysunek 6. Wykonaj otwory, aby zapobiec wyciekaniu światła.

    2. Użyj ciemnej zasłony, aby zakryć platformę i zapobiec wyciekaniu światła. Nie są wymagane żadne otwory. (patrz rysunek 7).

      Modular Drapery

      Rysunek 7. Zapobieganie wyciekaniu światła za pomocą zasłony.

  5. Zainstaluj standardowy uchwyt na telefon lub uchwyt na telefon składany na przednim panelu montażowym telefonu na odpowiedniej wysokości za pomocą nylonowej śruby i nakrętki, jak pokazano na rysunku 8.

    Instalacja modułowego otworu i mocowania

    Rysunek 8. Montaż otworu i uchwytu na telefon.

  6. Zainstaluj uchwyt na tablet na panelu montażowym tabletu na odpowiedniej wysokości za pomocą nylonowej śruby i nakrętki.

  7. Zamontuj tablet wyświetlacza i podłącz go do hosta zgodnie z rysunkiem 9. Zabezpiecz tablet za pomocą przyssawki.

    Instalacja modułowego tabletu

    Rysunek 9. Instalacja tabletu.

  8. Aby ułatwić obsługę urządzenia na ekranie, skonfiguruj je przed zamontowaniem.

  9. Zamontuj urządzenie i połącz je z hostem.

  10. Ustaw urządzenie tak, aby środek modułu aparatu był wyrównany ze środkiem tabletu (lub znajdował się bardzo blisko niego). Aby dostosować wysokość, poluzuj śruby mocujące telefon i przesuń uchwyt w górę lub w dół. Po wyrównaniu zabezpiecz urządzenie za pomocą tłoka uchwytu.

    Instalacja modułowego urządzenia DUT

    Rysunek 10. Instalacja DUT.

  11. Aby podłączyć oświetlenie, połącz kabel oświetleniowy z podstawy z jednym z tych urządzeń:

    1. Zasilacz 12 V

      Modułowe złącze 12 V

      Rysunek 11. Światło podłączone do zasilacza 12 V.

    2. Sterownik oświetlenia (może być potrzebny adapter)

      Połączenie z kontrolerem modułowym

      Rysunek 12. Światło podłączone do kontrolera oświetlenia.

Po zakończeniu konfiguracji modułowego urządzenia bazowego skonfiguruj hosta i środowisko testowe (konfiguracja CTS). W przypadku pliku config.yml użyj tej konfiguracji:

  • chart\_distance = 22
  • lighting\_ch = [connected controller channel] lub pozostaw bez zmian, jeśli nie używasz kontrolera oświetlenia.

Konfiguracja wysięgnika teleskopowego

Aby skonfigurować opcjonalny zestaw teleobiektywu, wykonaj te czynności.

  1. Kup modułową platformę bazową i platformę z wysięgnikiem teleskopowym u wybranego dostawcy. Rigg można zbudować za pomocą plików produkcyjnych, ale nie jest to zalecane, ponieważ cięcie i montaż muszą być dokładne, aby zapewnić, że rig rozszerzający nie będzie miał problemów z dopasowaniem.

  2. Sprawdź, czy masz działający modułowy statyw podstawowy i statyw z wysuwanym ramieniem (jak pokazano na rysunku 13).

    Modular tele

    Rysunek 13. Modułowy statyw z wysuwanym ramieniem.

  3. Zdejmij panel montażowy telefonu, odkręcając ręcznie 6 śrub nylonowych (po 3 z każdej strony).

    Wyróżnienie modułowego zamka Usuwanie modułowych śrub Modułowy panel przedni wyłączony

    Rysunek 14. Ręczne usunięcie 6 nylonowych śrub w zaznaczonym obszarze.

  4. Umieść podstawę i wysięgnik teleskopowy na powierzchni, na której będą przeprowadzane testy. Aby uniknąć obciążenia punktów mocowania, nie zalecamy przenoszenia zmontowanego urządzenia.

  5. Umieść przedłużenie tak, aby 6 otworów na jego wypustce pokrywało się z 6 otworami na podstawie.

    Karta wyrównywania modułowego

    Rysunek 15. Wyrównaj otwory z otworami.

  6. Przymocuj przedłużenie do podstawy, wkręcając 6 śrub. Podczas wkręcania śrub delikatnie zsuń ze sobą 2 elementy, aby nie było między nimi szczelin, przez które mogłoby się wydostawać światło (w razie potrzeby poproś o pomoc współpracownika). Dokręć śruby ręcznie.

    Modułowe łączenie

    Rysunek 16. mocowanie podstawowych i dodatkowych platform;

  7. Skonfiguruj otwór (lub zasłonę) i zamontuj uchwyty na telefon oraz urządzenia testowe zgodnie z opisem w sekcji Konfiguracja podstawowego statywu.

    Karta wyrównywania modułowego

    Rysunek 17. Mocowanie uchwytów na telefon i urządzenia testowanego.

Po zakończeniu konfiguracji platformy rozszerzającej skonfiguruj hosta i środowisko testowe (konfiguracja CTS). W przypadku pliku config.yml użyj tej konfiguracji:

  • chart_distance = [całkowita odległość od urządzenia do tabletu]
  • lighting_ch = [connected control channel] lub pozostaw bez zmian, jeśli nie używasz kontrolera oświetlenia.

Odinstalowywanie platformy rozszerzenia

Aby odinstalować platformę rozszerzeń, wykonaj czynności instalacyjne w odwrotnej kolejności. Podczas instalowania panelu montażowego tabletu dociśnij go do podstawy, aby nie było szczelin, przez które mogłoby przedostawać się światło (jak pokazano na rysunku 17). Dokręć śruby ręcznie.

Modułowe łączenie

Rysunek 18. Dociskanie panelu montażowego tabletu do podstawy.

Najczęstsze pytania

Dlaczego scena jest przycięta w przypadku teleobiektywu?

Przycięcie modułowego zestawu

Rysunek 19. Scena przycięta przez płytkę telefonu w podstawowym zestawie.

Dzieje się tak, gdy pole widzenia teleobiektywu jest zasłonięte przez płytkę telefonu między podstawą a przedłużeniem teleobiektywu. Zanim przejdziesz do testowania, odkręć śrubokrętem płytkę telefonu.

Usunięcie modułowej płytki na telefon

Rysunek 20. Zdejmowanie płyty telefonu z podstawy.

Dlaczego podczas uruchamiania ITS światła wydają się przyciemnione lub pojawia się błąd weryfikacji oświetlenia?

Ten błąd jest wywoływany, gdy oświetlenie w urządzeniu staje się słabsze. Może to być spowodowane pogorszeniem jakości zasilacza i diod LED z powodu wieku lub użytkowania albo wadliwym zasilaczem. Aby rozwiązać ten problem, wykonaj te czynności:

  1. Sprawdź, czy oświetlenie działa prawidłowo:

    • Wymień zasilacz (zgodny z UL, 12 V, min. 2 A).
    • Wymień diodę LED (zapoznaj się z listą materiałów lub skontaktuj się z dostawcą, aby uzyskać więcej informacji).
  2. Aby mieć pewność, że natężenie oświetlenia LED jest na odpowiednim poziomie (100–300 luksów), sprawdź je za pomocą miernika cyfrowego. (W tym przykładzie używamy luksomierza YF-1065 firmy Contempo Views). Umieść luksomierz po stronie tabletu i ustaw go na 2000 luksów, aby zmierzyć światło (patrz rysunek 21).

    YF-1065 od Contempo Views

    Rysunek 21. YF-1065 od Contempo Views.

    Luksomierz

    Rysunek 22. Luksomierz mierzący światło z boku za pomocą uchwytu na tablet.

  3. W zależności od zmierzonej wartości luksów wykonaj odpowiedni krok:

    • Jeśli oświetlenie jest na odpowiednim poziomie, przykręć przednią i tylną płytkę do koronki.
    • Jeśli światło jest na nieprawidłowym poziomie, sprawdź, czy numer części diody LED i zasilacza jest prawidłowy.

Na co zwracać uwagę

Oto przykłady typowych błędów produkcyjnych, które mogą powodować niestabilność testów.

  • Tylny panel z otworami na tablet. Powoduje to niepowodzenie testu find_circle z powodu dodatkowych okręgów utworzonych przez otwory na śruby.

    Panel tylny z otworami

    Rysunek 23. Tylny panel z otworami.

  • Brak kołków. Może to spowodować wypadnięcie osłon świetlnych podczas transportu.

    Brak kołka

    Rysunek 24. Brak kołka na osłonie światła.

  • Zasilacz nieposiadający certyfikatu UL. Używanie zasilacza z certyfikatem UL spełnia podane w specyfikacji wymagania. Jest to ważne dla bezpiecznego korzystania z oświetlenia.

    Zasilacz z certyfikatem UL

    Rysunek 25. Przykład zasilacza z certyfikatem UL.

  • Ślizganie się śrub na uchwycie do tabletu lub telefonu, który nie jest w stanie utrzymać wagi tabletu lub telefonu. Zwykle jest to spowodowane uszkodzeniem gwintu i wskazuje, że otwór wymaga ponownego nagwintowania.

    Otwór z uszkodzonym gwintem

    Rysunek 26. Otwór z uszkodzonym gwintem.