Membeli dan menyiapkan sistem rig modular

Sistem perlengkapan modular mendukung otomatisasi pengujian ITS dan terdiri dari kotak plastik yang dipotong dengan Computerized Numerical Control (CNC) dari gambar desain berbantuan komputer (CAD), tablet grafik, dan perangkat yang sedang diuji (DUT). Sistem rig modular terdiri dari rig dasar dan rig ekstensi tele opsional. Rig dasar modular memiliki jarak bagan 22 cm dan dapat menguji kamera perangkat seluler dengan FoV 60 derajat hingga 120 derajat. Rig dasar dapat melakukan pengujian yang diputar 90 derajat dengan DUT di atas (ditunjukkan pada Gambar 2).

Rig ekstensi tele mendukung pengujian kamera yang memiliki jarak fokus minimum yang panjang (kamera telefoto). Rig ekstensi tele dipasang dengan baut ke rig dasar dan panjangnya dapat disesuaikan berdasarkan persyaratan pengujian kamera Anda saat membeli melalui vendor yang memenuhi syarat. ITS Kamera mendukung jarak bagan hingga 100 cm. Ada dua jenis rig tele ekstensi, yaitu rig tele fleksibel dan rig tele panjang tetap. Dengan rig tele fleksibel, Anda dapat menguji dengan berbagai jarak diagram, sedangkan rig panjang tetap hanya memungkinkan Anda menguji dengan satu jarak diagram. Rig tele fleksibel tersedia mulai Maret 2026.

Dasar Modular
Rev1.2

Gambar 1. Rig dasar modular.

Modular rev1.2
90 derajat

Gambar 2. Rig dasar modular diputar 90 derajat.

Flexi-Tele
rig

Gambar 3. Rig ekstensi Flexi-Tele dari dua vendor kami yang disetujui.

Histori revisi

Tabel berikut menjelaskan histori revisi sistem rig modular dan menyertakan link download ke setiap versi file produksi.

Tanggal Revisi Download file produksi Log perubahan
September 2024 1.2 Modular base rig rev1.2
  • (September 2024) Mencakup perbaikan untuk error file produksi
  • (Juli 2024) Rilis awal

Membeli sistem rig modular

Sebaiknya beli sistem rig modular, rig ekstensi tele opsional, dan aksesori dari salah satu vendor yang memenuhi syarat berikut.

  • Byte Bridge Inc.
    Amerika Serikat: 1502 Crocker Ave, Hayward, CA 94544-7037
    China: 22F #06-08, Hongwell International Plaza Tower A, 1600 West Zhongshan Road, Xuhui, Shanghai, 200235
    www.bytebt.com
    androidpartner@bytebt.com
    Amerika Serikat: +1-510-373-8899
    China: +86-400-8866-490

  • JFT CO LTD 捷富通科技有限公司 (sebelumnya dikenal sebagai MYWAY DESIGN)
    China: No. 40, Lane 22, Heai Road, Wujing Town, Minhang District, Shanghai, China
    Taiwan: 4F., No. 163, Fu-Ying Road, XinZhuang District, New Taipei City 242, Taiwan
    www.jftcoltd.com
    service@jfttec.com atau its.sales@jfttec.com
    China:+86-021-64909136
    Taiwan: 886-2-29089060

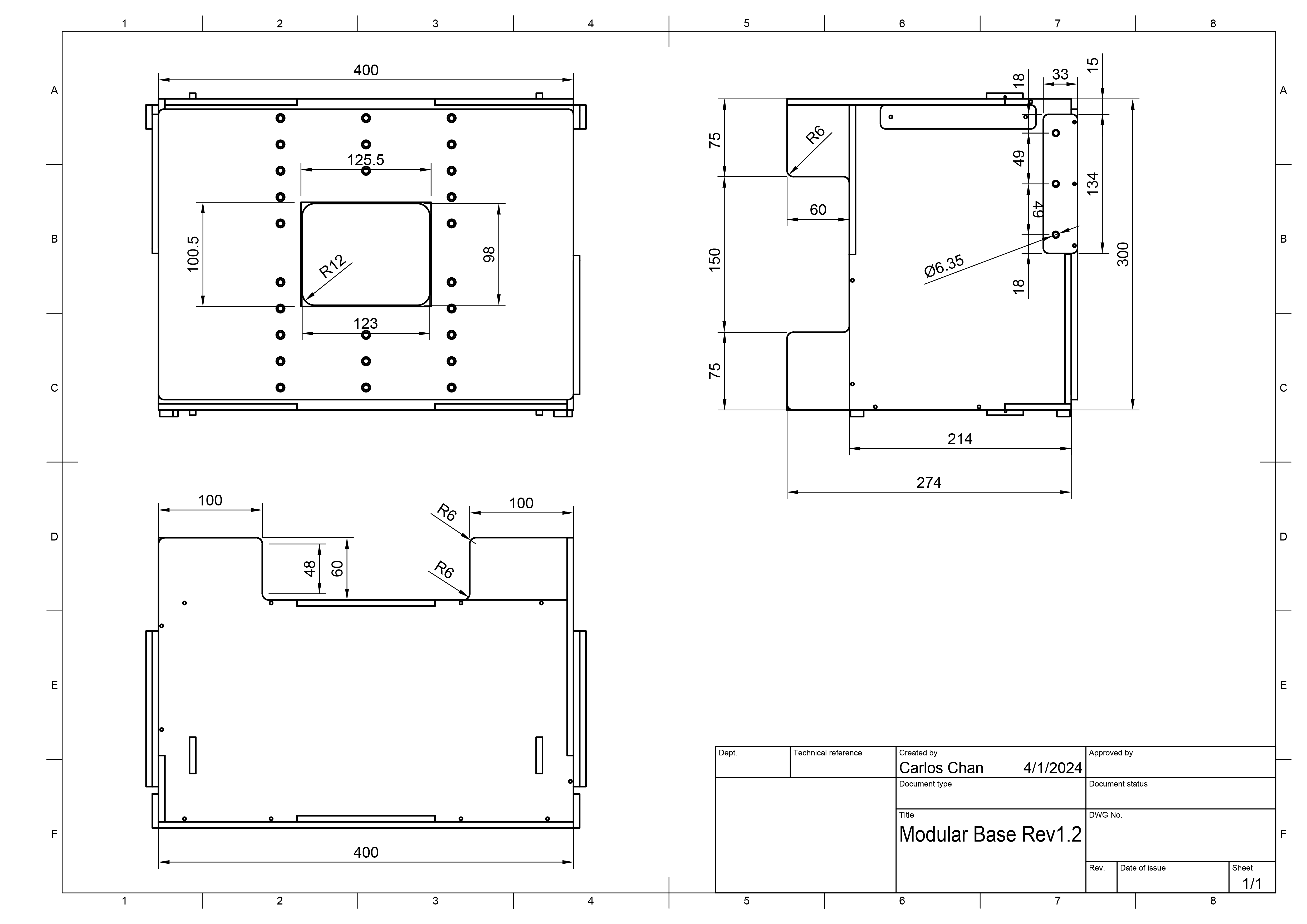
Gambar mekanis

Berikut adalah gambar mekanis rig dasar modular.

Gambar CAD Modular
Base

Gambar 4. Gambar mekanis rig dasar modular

Penyiapan rig dasar

Ikuti langkah-langkah berikut untuk menyiapkan rig dasar modular.

  1. Beli sistem rig modular dari vendor yang memenuhi syarat.

  2. Pastikan Anda memiliki semua komponen dalam tabel berikut (item yang ditampilkan dalam Gambar 4).

    Komponen Kuantitas
    Rig dasar modular 1
    Braket dudukan ponsel 2
    Braket dudukan tablet 1
    Catu daya 12 V (terdaftar di UL, minimum 1 A) 1
    Bukaan 1

    Item Modular Base Rev1.2

    Gambar 5. Komponen rig dasar modular.

  3. Bergantung pada penyiapan, pastikan Anda memiliki aksesori yang diperlukan dalam tabel berikut (ditampilkan dalam Gambar 5). Aksesori ini dapat dibeli dari vendor yang memenuhi syarat.

    Item Kuantitas
    Pengontrol pencahayaan (dapat mengontrol hingga 3 rig) 1
    Catu daya 5 V untuk pengontrol pencahayaan 1
    Kabel barrel DC yang menghubungkan pencahayaan ke rig dasar modular 1
    Adaptor kabel barrel DC (5,5 mm x 2,1 mm ke 3,5 mm x 1,35 mm) 1
    Kabel USB A ke kabel USB 1
    Kit perangkat foldable (jika DUT adalah perangkat foldable) 1

    Item Opsional Modular

    Gambar 6. Item opsional untuk rig dasar modular.

  4. Pastikan tidak ada kebocoran cahaya dengan melakukan salah satu hal berikut:

    1. Buat apertur agar sesuai dengan modul kamera DUT dan pastikan tidak ada kebocoran cahaya (seperti yang ditunjukkan pada Gambar 6). Apertur dapat dipotong dari papan busa yang disediakan atau dikonfigurasi oleh vendor yang memenuhi syarat. Untuk orientasi gambar yang tepat, DUT dengan kamera belakang menghadap rig akan diputar 90° berlawanan arah jarum jam dan DUT dengan kamera depan menghadap rig akan diputar 90° searah jarum jam. Pastikan apertur dikonfigurasi dengan tepat.

    Apertur Modular
    Pemosisian Apertur Modular
    Pemotongan

    Gambar 7. Buat bukaan untuk mencegah kebocoran cahaya.

    1. Gunakan kain gelap untuk menutupi rig guna mencegah kebocoran cahaya, tidak diperlukan aperture apa pun. (ditunjukkan dalam Gambar 7).

    Tirai Modular

    Gambar 8. Mencegah kebocoran cahaya menggunakan tirai.

  5. Pasang dudukan ponsel standar atau dudukan ponsel foldable ke panel dudukan ponsel depan pada ketinggian yang sesuai menggunakan baut dan mur nilon seperti yang ditunjukkan pada Gambar 8.

    Apertur dan Dudukan Modular
Pemasangan

    Gambar 9. Pemasangan apertur dan dudukan ponsel.

  6. Pasang dudukan tablet ke panel dudukan tablet pada ketinggian yang sesuai menggunakan baut dan mur nilon.

  7. Pasang tablet layar dan hubungkan tablet ke host seperti yang ditunjukkan pada Gambar 9. Amankan tablet dengan alat penghisap.

    Tablet Modular
Menginstal

    Gambar 10. Penginstalan tablet.

  8. Untuk mempermudah pengoperasian di layar, siapkan DUT Anda sebelum memasang DUT.

  9. Pasang DUT dan hubungkan ke host.

  10. Sejajarkan DUT sehingga bagian tengah modul kamera sejajar dengan (atau sangat dekat dengan) bagian tengah tablet. Untuk menyesuaikan ketinggian, kendurkan baut pemasangan ponsel dan geser dudukan ke atas atau ke bawah. Saat sejajar, amankan DUT dengan peluncur dudukan.

    Instalasi DUT Modular

    Gambar 11. Penginstalan DUT.

  11. Untuk pencahayaan, hubungkan kabel pencahayaan dari rig dasar ke salah satu berikut:

    1. Catu daya 12 V

    Koneksi 12 V modular

    Gambar 12. Lampu terhubung ke catu daya 12 V.

    1. Pengontrol lampu (adaptor mungkin diperlukan)

    Koneksi pengontrol modular

    Gambar 13. Lampu terhubung ke pengontrol pencahayaan.

Setelah Anda menyelesaikan penyiapan rig dasar modular, siapkan host dan lingkungan pengujian (Menyiapkan CTS). Untuk file config.yml, gunakan konfigurasi berikut:

  • chart\_distance = 22
  • lighting\_ch = [saluran pengontrol yang terhubung], atau biarkan seperti apa adanya jika tidak menggunakan pengontrol pencahayaan.

Penyiapan rig ekstensi Flexi-Tele

Jika Anda membeli rig dasar modular sebelum Maret 2026, Anda mungkin perlu melakukan pemasangan kecil agar dapat berfungsi dengan ekstensi flexi-tele. Modifikasi ini memperbaiki masalah pelat depan yang menghalangi ruang pandang kamera tele DUT dan juga dapat digunakan dengan rig ekstensi tele panjang tetap.

Ikuti langkah-langkah berikut untuk memasang kembali rig dasar modular.

  1. Lepaskan empat sekrup di bagian atas rig yang menahan pelat depan, serta empat sekrup di bagian bawah.

    Melepaskan Sekrup Retrofit Modular

    Gambar 14. Sekrup pada rig yang menahan pelat depan.

  2. (Opsional) Pasang pelat dudukan ponsel ke pelat depan dengan baut atau lem sehingga pelat dapat dilepas bersamaan.

    Pelat baut Retrofit Modular

    Gambar 15. Baut untuk pelat dudukan ponsel dan pelat depan.

  3. (Opsional) Jika rig Anda memiliki kabel daya lampu dari bawah ke atas yang terpasang ke pelat depan, pindahkan ke samping dengan selotip listrik atau braket pengikat kabel.

    Modular Retrofit memindahkan kabel

    Gambar 16. Kabel daya lampu dari bawah ke atas dipindahkan ke samping.

  4. Hubungkan rig dasar modular ke rig ekstensi flexi-tele.

Video demo

Berikut adalah demonstrasi video tentang cara menyiapkan rig ekstensi flexi-tele:

Penyiapan rig ekstensi tele dengan panjang tetap

Ikuti langkah-langkah berikut untuk menyiapkan rig ekstensi tele opsional.

  1. Beli rig dasar modular dan rig ekstensi tele dari vendor yang memenuhi syarat. Rig dapat dibuat menggunakan file produksi, tetapi hal ini tidak direkomendasikan karena pemotongan dan perakitan harus akurat untuk memastikan rig ekstensi tidak memiliki masalah kecocokan.

  2. Pastikan Anda memiliki rig dasar modular yang berfungsi dan rig ekstensi tele (seperti yang ditunjukkan pada Gambar 13).

    Tele modular

    Gambar 17. Rig dasar modular dengan ekstensi tele.

  3. Lepaskan panel dudukan ponsel dengan melepas 6 baut nilon dengan tangan (3 di setiap sisi).

    Baut modular
highlight Pelepasan baut modular Pelat depan modular
nonaktif

    Gambar 18. Lepaskan 6 baut nilon di area yang disorot dengan tangan.

  4. Letakkan rig dasar dan rig ekstensi tele di permukaan tempat pengujian dilakukan. Untuk menghindari tekanan pada titik pemasangan, sebaiknya jangan memindahkan rig yang sudah dirakit.

  5. Tempatkan rig ekstensi sehingga tab 6 slot pada rig ekstensi sejajar dengan 6 lubang pada rig dasar.

    Tab menyelaraskan modular

    Gambar 19. Menyejajarkan slot dengan lubang.

  6. Pasang rig ekstensi ke rig dasar dengan memasang 6 baut. Saat memasang sekrup, dorong kedua rig secara perlahan untuk memastikan tidak ada celah yang menyebabkan kebocoran cahaya (minta bantuan rekan kerja jika perlu). Kencangkan baut dengan tangan.

    Modular push
together

    Gambar 20. Memasang rig dasar dan ekstensi.

  7. Konfigurasi bukaan (atau tirai) dan pasang dudukan ponsel dan DUT seperti yang dijelaskan dalam Penyiapan rig dasar.

    Tab perataan modular

    Gambar 21. Memasang dudukan ponsel dan DUT.

Setelah Anda menyelesaikan penyiapan rig ekstensi, siapkan host dan lingkungan pengujian (Menyiapkan CTS). Untuk file config.yml, gunakan konfigurasi berikut:

  • chart_distance = [total jarak dari DUT ke tablet]
  • lighting_ch = [connected control channel], atau biarkan seperti apa adanya jika tidak menggunakan pengontrol pencahayaan.

Meng-uninstal rig ekstensi

Untuk meng-uninstal rig ekstensi, ikuti langkah-langkah penginstalan secara terbalik. Saat memasang panel dudukan tablet, dorong panel ke rig dasar untuk memastikan tidak ada celah untuk kebocoran cahaya (seperti yang ditunjukkan pada Gambar 17). Kencangkan baut dengan tangan.

Modular push
together

Gambar 22. Mendorong panel dudukan tablet ke rangka dasar.

Pertanyaan Umum (FAQ)

Mengapa adegan dipangkas dalam konfigurasi tele?

Rig modular
crop

Gambar 23. Adegan dipangkas oleh pelat ponsel di rig dasar.

Hal ini terjadi saat bidang pandang lensa tele terhalang oleh pelat ponsel di antara rig dasar dan ekstensi tele. Pastikan Anda melepas pelat ponsel dengan obeng sebelum melanjutkan pengujian.

Pelat telepon modular
dilepas

Gambar 24. Melepas pelat ponsel di rig dasar.

Mengapa lampu tampak redup atau mengapa error validasi pencahayaan muncul saat menjalankan ITS?

Error ini dipicu saat pencahayaan di rig menjadi lebih redup, yang dapat disebabkan oleh penurunan kualitas catu daya dan LED karena usia atau penggunaan, atau catu daya yang rusak. Untuk menyelesaikan masalah ini, ikuti langkah berikut:

  1. Pastikan pencahayaan berfungsi dengan baik:

    • Ganti catu daya (12 volt yang terdaftar di UL, min 2 amp).
    • Ganti LED (lihat BOM atau hubungi vendor untuk mengetahui informasi selengkapnya).
  2. Untuk memastikan lux lampu LED berada pada tingkat yang sesuai (100–300), uji lux menggunakan meteran digital. (Pengukur lux YF-1065 dari Contempo Views digunakan dalam contoh ini.) Letakkan pengukur cahaya di sisi tablet dan putar ke 2000 lux untuk mengukur cahaya (ditunjukkan pada Gambar 21).

    YF-1065 dari Contempo Views

    Gambar 25. YF-1065 dari Contempo Views.

    Pengukur lux

    Gambar 26. Pengukur lux mengukur cahaya dari samping dengan dudukan tablet.

  3. Bergantung pada nilai lux yang diukur, ikuti langkah yang sesuai:

    • Jika lampu berada pada tingkat yang benar, sekrup pelat depan dan belakang ke dalam renda.
    • Jika tingkat cahaya tidak benar, periksa apakah nomor komponen LED dan catu daya sudah benar.

Hal yang perlu diperhatikan

Berikut adalah contoh error manufaktur umum yang dapat membuat pengujian menjadi tidak stabil.

  • Panel belakang dengan lubang tablet yang ditusuk. Hal ini menyebabkan pengujian find_circle gagal karena adanya lingkaran tambahan yang dibuat oleh lubang sekrup.

    Panel belakang dengan lubang

    Gambar 27. Panel belakang dengan lubang yang ditusuk.

  • Dowel tidak ada. Hal ini menyebabkan baffle lampu terlepas selama pengiriman.

    Dowel tidak ada

    Gambar 28. Dowel tidak ada pada peredam cahaya.

  • Catu daya yang tidak terdaftar di UL. Menggunakan catu daya yang terdaftar di UL memenuhi spesifikasi yang tercantum. Hal ini penting untuk mengoperasikan pencahayaan dengan aman.

    Catu daya yang terdaftar di UL

    Gambar 29. Contoh catu daya yang terdaftar di UL.

  • Sekrup yang terlepas pada dudukan tablet atau ponsel yang tidak dapat menopang berat tablet atau ponsel. Hal ini biasanya disebabkan oleh ulir yang rusak dan menunjukkan bahwa lubang perlu dibuat ulir baru.

    Lubang dengan ulir yang rusak

    Gambar 30. Lubang dengan ulir yang rusak.