سیستم دکل مدولار از اتوماسیون تست ITS پشتیبانی میکند و شامل یک جعبه پلاستیکی است که با کنترل عددی کامپیوتری (CNC) از نقشههای طراحی به کمک کامپیوتر (CAD)، یک تبلت نمودار و یک دستگاه تحت آزمایش (DUT) برش داده شده است. سیستم دکل مدولار از یک دکل پایه و یک دکل تله اکستنشن اختیاری تشکیل شده است. دکل پایه مدولار دارای فاصله نمودار 22 سانتیمتر است و میتواند دوربینهای دستگاه تلفن همراه را با میدان دید 60 تا 120 درجه آزمایش کند. دکل پایه میتواند آزمایش را با چرخش 90 درجه و قرار گرفتن DUT در بالا انجام دهد (در شکل 2 نشان داده شده است).
دکل تله اکستنشن از دوربینهای آزمایشی که حداقل فاصله فوکوس طولانی دارند (دوربینهای تلهفوتو) پشتیبانی میکند. دکل تله اکستنشن به دکل پایه پیچ میشود و طول آن را میتوان بر اساس نیازهای تست دوربین شما هنگام خرید از طریق فروشندگان واجد شرایط ، سفارشی کرد. دوربین ITS از فواصل نمودار تا 100 سانتیمتر پشتیبانی میکند. دو نوع دکل تله اکستنشن وجود دارد، دکل تله فلکسی و دکل تله با طول ثابت. دکل تله فلکسی به شما امکان میدهد با فواصل نمودار مختلف آزمایش کنید در حالی که دکل با طول ثابت فقط به شما امکان آزمایش با یک فاصله نمودار را میدهد. دکل تله فلکسی از مارس 2026 در دسترس است.

شکل ۱. دکل پایه مدولار.

شکل ۲. دکل پایه مدولار ۹۰ درجه چرخیده است.

شکل ۳. دکلهای افزایش طول فلکسی-تل از دو فروشنده مورد تایید ما.
تاریخچه ویرایشها
جدول زیر تاریخچهی ویرایشهای سیستم دکل مدولار را شرح میدهد و شامل لینکهای دانلود هر نسخه از فایلهای تولید است.
| تاریخ | بازنگری | دانلود فایل تولیدی | گزارش تغییرات |
|---|---|---|---|
| سپتامبر ۲۰۲۴ | ۱.۲ | دکل پایه مدولار rev1.2 |
|
خرید یک سیستم دکل مدولار
توصیه میکنیم سیستم دکل مدولار، دکل تله اکستنشن اختیاری و لوازم جانبی را از یکی از فروشندگان واجد شرایط زیر خریداری کنید.
شرکت بایت بریج
ایالات متحده آمریکا: خیابان کراکر ۱۵۰۲، هیوارد، کالیفرنیا ۹۴۵۴۴-۷۰۳۷
چین: ۲۲F #۰۶-۰۸، برج A میدان بینالمللی هونگول، ۱۶۰۰ جاده غربی ژونگشان، شوهویی، شانگهای، کد پستی ۲۰۰۲۳۵
www.bytebt.com
androidpartner@bytebt.com
ایالات متحده آمریکا: +1-510-373-8899
چین: +86-400-8866-490JFT CO LTD 捷富通科技有限公司 (قبلاً با نام MYWAY DESIGN شناخته می شد)
چین: پلاک 40، لین 22، جاده هیی، شهر ووجینگ، منطقه مینهنگ، شانگهای، چین
تایوان: 4F.، شماره 163، جاده فو-یینگ، منطقه XinZhuang، شهر جدید تایپه 242، تایوان
www.jftcoltd.com
service@jfttec.com یا its.sales@jfttec.com
چین: +86-021-64909136
تایوان: 886-2-29089060
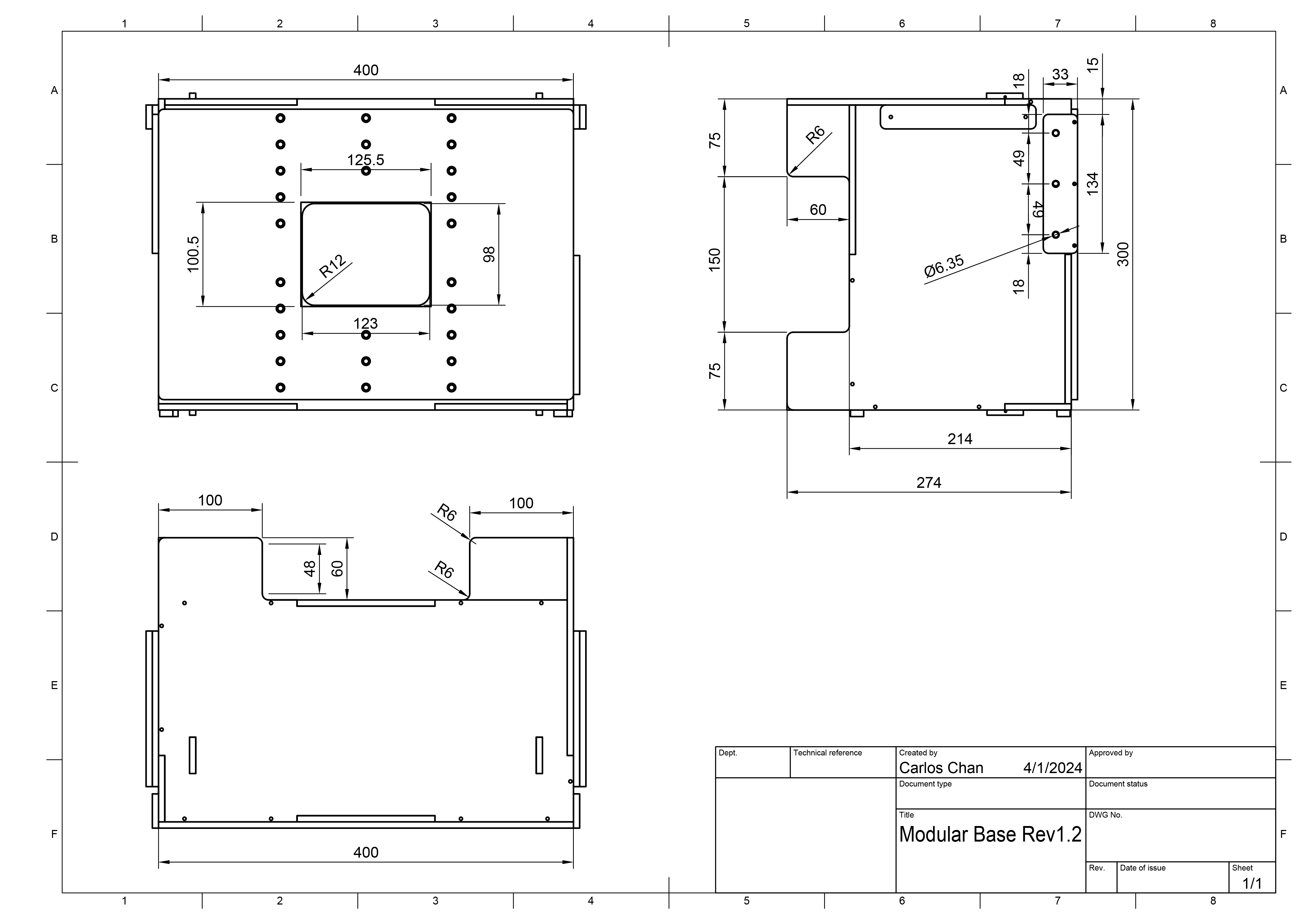
نقشههای مکانیکی
در ادامه نقشه مکانیکی دکل پایه مدولار آمده است.

شکل ۴. نقشه مکانیکی دکل پایه مدولار
راه اندازی دکل پایه
برای راهاندازی یک دکل پایه مدولار، این مراحل را دنبال کنید.
یک سیستم دکل مدولار را از یک فروشنده واجد شرایط خریداری کنید.
مطمئن شوید که تمام اجزای جدول زیر را دارید (موارد نشان داده شده در شکل ۴).
کامپوننت مقدار دکل پایه مدولار ۱ براکت نصب گوشی ۲ پایه نگهدارنده تبلت ۱ منبع تغذیه ۱۲ ولت (دارای تاییدیه UL، حداقل ۱ آمپر) ۱ دیافراگم ۱ 
شکل ۵. اجزای دکل پایه مدولار.
بسته به تنظیمات شما، مطمئن شوید که لوازم جانبی لازم را که در جدول زیر (شکل ۵) نشان داده شده است، دارید. این لوازم جانبی را میتوانید از یک فروشنده واجد شرایط خریداری کنید.
مورد مقدار کنترل کننده روشنایی (قابلیت کنترل تا ۳ دکل) ۱ منبع تغذیه 5 ولت برای کنترل روشنایی ۱ کابل بشکهای DC که روشنایی را به دکل پایه مدولار متصل میکند ۱ آداپتور کابل بشکهای DC (5.5 میلیمتر × 2.1 میلیمتر تا 3.5 میلیمتر × 1.35 میلیمتر) ۱ کابل USB نوع A به کابل USB ۱ کیت تاشو (اگر DUT یک دستگاه تاشو باشد) ۱ 
شکل ۶. اقلام اختیاری برای دکل پایه مدولار.
با انجام یکی از موارد زیر، مطمئن شوید که هیچ نشت نوری وجود ندارد:
- یک روزنه متناسب با ماژول دوربین دستگاه تست نفوذ (DUT) بسازید و مطمئن شوید که هیچ نشتی نوری وجود ندارد (همانطور که در شکل 6 نشان داده شده است). روزنهها را میتوان از تختههای فومی تهیه شده یا پیکربندی شده توسط یک فروشنده واجد شرایط برش داد. برای جهتگیری صحیح شکل، دستگاههای تست نفوذ با دوربین عقب رو به دکل، 90 درجه خلاف جهت عقربههای ساعت و دستگاههای تست نفوذ با دوربین جلو رو به دکل، 90 درجه در جهت عقربههای ساعت چرخانده میشوند. مطمئن شوید که روزنهها به طور مناسب پیکربندی شدهاند.


شکل ۷. برای جلوگیری از نشت نور، روزنههایی بسازید.
- برای جلوگیری از نشت نور، از یک پرده تیره برای پوشاندن دکل استفاده کنید، نیازی به روزنه نیست (در شکل 7 نشان داده شده است).

شکل ۸. جلوگیری از نشت نور با استفاده از پرده.
یک پایه استاندارد تلفن یا یک پایه تاشو تلفن را با استفاده از پیچ و مهره نایلونی، همانطور که در شکل 8 نشان داده شده است، روی پنل جلویی تلفن در ارتفاع مناسب نصب کنید.

شکل ۹. نصب دیافراگم و پایه گوشی.
پایه تبلت را با استفاده از پیچ و مهره نایلونی، در ارتفاع مناسب روی پنل نصب تبلت نصب کنید.
تبلت نمایشگر را نصب کنید و تبلت را همانطور که در شکل 9 نشان داده شده است به میزبان وصل کنید. تبلت را با یک پیستون محکم کنید.

شکل ۱۰. نصب تبلت.
برای آسانتر کردن عملیات روی صفحه، قبل از نصب DUT، آن را تنظیم کنید .
DUT را نصب کنید و به میزبان متصل شوید.
DUT را طوری تنظیم کنید که مرکز ماژول دوربین با مرکز تبلت (یا بسیار نزدیک به آن) همتراز باشد. برای تنظیم ارتفاع، پیچهای نصب گوشی را شل کنید و پایه را به سمت بالا یا پایین بلغزانید. وقتی همتراز شد، DUT را با پیستون پایه محکم کنید.

شکل ۱۱. نصب DUT.
برای روشنایی، کابل روشنایی را از دکل پایه به یکی از موارد زیر وصل کنید:
- منبع تغذیه ۱۲ ولت

شکل ۱۲. چراغ متصل به منبع تغذیه ۱۲ ولت.
- کنترل کننده روشنایی (ممکن است به آداپتور نیاز باشد)

شکل ۱۳. چراغ متصل به کنترلکننده روشنایی.
وقتی تنظیمات مربوط به دکل پایه ماژولار را تکمیل کردید، میزبان و محیط آزمایش را تنظیم کنید ( تنظیم CTS ). برای فایل config.yml ، از پیکربندی زیر استفاده کنید:
-
chart\_distance= 22 -
lighting\_ch= [کانال کنترلر متصل]، یا اگر از کنترلر نورپردازی استفاده نمیکنید، به همین صورت باقی بگذارید.
نصب دکل توسعه فلکسی-تله
اگر دکل پایه مدولار را قبل از مارس 2026 خریداری کردهاید، ممکن است برای کار با افزونهی تلهکابین انعطافپذیر، نیاز به یک بهروزرسانی کوچک داشته باشید. این اصلاح، مشکل مسدود شدن میدان دید دوربین تلهکابین توسط صفحه جلویی را برطرف میکند و همچنین میتواند با دکل افزونهی تلهکابین با طول ثابت نیز مورد استفاده قرار گیرد.
برای مقاومسازی دکل پایه مدولار، این مراحل را دنبال کنید.
چهار پیچ بالای دکل که صفحه جلویی را نگه میدارند، و همچنین چهار پیچ پایینی را باز کنید.

شکل ۱۴. پیچهای روی دکل که صفحه جلویی را نگه میدارند.
(اختیاری) صفحه نصب گوشی را به صفحه جلویی پیچ یا چسب بزنید تا صفحات از هم جدا شوند.

شکل ۱۵. پیچهای مربوط به صفحه نصب گوشی و صفحه جلویی.
(اختیاری) اگر دستگاه شما یک کابل برق از پایین به بالا دارد که به صفحه جلویی متصل است، آن را با نوار برق یا براکتهای زیپی به کنار منتقل کنید.

شکل ۱۶. کابل برق چراغ از پایین به بالا به کنار منتقل شده است.
دکل پایه مدولار را به دکل افزایش طول فلکسی-تله وصل کنید.
نسخه آزمایشی ویدیویی
این یک ویدیوی نمایشی از نحوه راهاندازی دکل گسترش فلکسی-تله است:
نصب دکل تله اکستنشن با طول ثابت
برای راهاندازی دکل تلهکام اختیاری، این مراحل را دنبال کنید.
دکل پایه مدولار و دکل افزایش طول تله را از یک فروشنده واجد شرایط خریداری کنید. دکل را میتوان با استفاده از فایلهای تولیدی ساخت، اما این کار توصیه نمیشود زیرا برش و مونتاژ باید دقیق باشد تا اطمینان حاصل شود که دکل افزایش طول هیچ مشکلی در تناسب ندارد.
مطمئن شوید که یک دکل پایه مدولار و یک دکل تله اکستنشن (مطابق شکل ۱۳) دارید.

شکل ۱۷. دکل پایه مدولار با قابلیت اتصال از راه دور.
پنل نصب گوشی را با باز کردن ۶ پیچ نایلونی با دست (۳ عدد در هر طرف) بردارید.



شکل ۱۸. برداشتن ۶ پیچ نایلونی در ناحیه مشخص شده با دست.
دکل پایه و دکل تله اکستنشن را روی سطحی که آزمایشها انجام میشود قرار دهید. برای جلوگیری از فشار به نقاط نصب، توصیه نمیکنیم دکل مونتاژ شده را جابجا کنید.
دکل الحاقی را طوری در جای خود قرار دهید که 6 شیار روی زبانه دکل الحاقی با 6 سوراخ روی دکل پایه همتراز باشند.

شکل ۱۹. تراز کردن شیارها با سوراخها.
با نصب 6 پیچ، دکل الحاقی را به دکل پایه وصل کنید. هنگام نصب پیچها، به آرامی 2 دکل را به هم فشار دهید تا مطمئن شوید هیچ شکافی برای نشت نور وجود ندارد (در صورت لزوم از همکار خود کمک بخواهید). پیچها را با دست محکم کنید.

شکل ۲۰. اتصال پایه و دکلهای الحاقی.
دیافراگم (یا پرده) را پیکربندی کنید و پایههای تلفن و DUTها را همانطور که در راهاندازی دکل پایه توضیح داده شده است، نصب کنید.

شکل ۲۱. اتصال پایههای تلفن و DUT.
وقتی تنظیمات مربوط به افزونه را تکمیل کردید، میزبان و محیط آزمایش ( تنظیم CTS ) را راهاندازی کنید. برای فایل config.yml ، از پیکربندی زیر استفاده کنید:
-
chart_distance= [فاصله کل از DUT تا تبلت] -
lighting_ch= [کانال کنترل متصل]، یا اگر از کنترلکننده روشنایی استفاده نمیکند، آن را به همین صورت رها کنید.
دکل افزونه را حذف نصب کنید
برای جدا کردن پایهی الحاقی، مراحل نصب را برعکس دنبال کنید. هنگام نصب پنل نصب تبلت، پنل را به پایه فشار دهید تا مطمئن شوید هیچ شکافی برای نشت نور وجود ندارد (همانطور که در شکل ۱۷ نشان داده شده است). پیچها را با دست محکم کنید.

شکل ۲۲. فشار دادن پنل نصب تبلت به سمت پایه دکل.
سوالات متداول (FAQ)
چرا صحنه با تلهریگ کراپ شده است؟

شکل ۲۳. صحنهای که با صفحه تلفن در پایه دوربین کراپ شده است.
این اتفاق زمانی میافتد که میدان دید لنز تله توسط صفحه تلفن بین پایه و دستگاه جانبی تله مسدود میشود. قبل از شروع آزمایش، حتماً صفحه تلفن را با پیچگوشتی جدا کنید.

شکل ۲۴. برداشتن صفحه تلفن در پایه دکل.
چرا هنگام اجرای ITS، چراغها کمنور به نظر میرسند یا خطای اعتبارسنجی روشنایی ظاهر میشود؟
این خطا زمانی رخ میدهد که روشنایی دستگاه کم میشود، که میتواند به دلیل منبع تغذیه و تخریب LED به دلیل قدمت یا استفاده، یا منبع تغذیه معیوب ایجاد شود. برای حل این مشکل، این مراحل را دنبال کنید:
مطمئن شوید که نورپردازی به درستی کار میکند:
- منبع تغذیه را تعویض کنید (UL 12 ولت، حداقل 2 آمپر را ذکر کرده است).
- LED را تعویض کنید (برای اطلاعات بیشتر به BOM مراجعه کنید یا با فروشنده تماس بگیرید).
برای اطمینان از اینکه لوکس چراغهای LED در سطح مناسبی (۱۰۰-۳۰۰) هستند، لوکس را با استفاده از یک متر دیجیتال آزمایش کنید. (در این مثال از متر لوکس YF-1065 ساخت Contempo Views استفاده شده است.) متر نور را روی تبلت قرار دهید و آن را روی ۲۰۰۰ لوکس تنظیم کنید تا نور اندازهگیری شود (در شکل ۲۱ نشان داده شده است).

شکل ۲۵. YF-1065 از Contempo Views.

شکل ۲۶. لوکسمتر در حال اندازهگیری نور از کنار با پایه تبلت.
بسته به مقدار لوکس اندازهگیری شده، مرحله مناسب را دنبال کنید:
- اگر نور در سطح صحیح است، صفحات جلو و عقب را به صورت توری پیچ کنید.
- اگر نور در سطح نادرستی است، بررسی کنید که شماره قطعه LED و منبع تغذیه صحیح باشند.
مواردی که باید به آنها توجه کرد
در ادامه نمونههایی از خطاهای رایج در تولید که میتوانند باعث شوند آزمایشها با شکست مواجه شوند، آورده شده است.
پنل پشتی با سوراخهای تبلت که از میان آنها بیرون زده است. این باعث میشود که تست
find_circleبه دلیل دایرههای اضافی ایجاد شده توسط سوراخهای پیچ، با شکست مواجه شود.
شکل ۲۷. پنل پشتی با سوراخهایی که از میان آن عبور کردهاند.
رولپلاکهای گمشده. این باعث میشود که حبابهای نور هنگام حملونقل از جای خود خارج شوند.

شکل ۲۸. میلهی رابط روی دیوارک چراغ گم شده است.
منبع تغذیهای که در فهرست UL نیست. استفاده از منبع تغذیهای که در فهرست UL قرار دارد، مشخصات برچسبگذاری شده را برآورده میکند. این امر برای کارکرد ایمن روشنایی مهم است.

شکل ۲۹. نمونهای از منبع تغذیه دارای مجوز UL.
پیچهای سر خوردنی روی پایه تبلت یا گوشی که نمیتوانند وزن تبلت یا گوشی را تحمل کنند. این معمولاً به دلیل آسیب دیدن رزوهها است و نشان میدهد که سوراخ باید دوباره رزوه شود.

شکل 30. سوراخ با رزوههای آسیبدیده.