Modulares Rigg-System kaufen und einrichten

Das modulare Rigs-System unterstützt die ITS-Testautomatisierung und besteht aus einer Kunststoffbox, die per CNC (Computerized Numerical Control) aus CAD-Zeichnungen (Computer-Aided Design) geschnitten wird, einem Chart-Tablet und einem zu testenden Gerät (Device Under Test, DUT). Das modulare Rigg-System besteht aus einem Basis-Rigg und einem optionalen Tele-Rigg. Das modulare Basis-Rig hat einen Diagrammabstand von 22 cm und kann Mobilgerätekameras mit einem Sichtfeld von 60 bis 120 Grad testen. Mit dem Basis-Rig kann das Gerät auch um 90 Grad gedreht getestet werden, wobei sich das zu testende Gerät oben befindet (siehe Abbildung 2).

Mit dem Tele-Verlängerungsaufbau können Kameras mit einer langen minimalen Brennweite (Telekameras) getestet werden. Die Teleskopverlängerung wird an der Basisvorrichtung angeschraubt. Die Länge kann beim Kauf über die qualifizierten Anbieter an Ihre Anforderungen für Kameratests angepasst werden. Camera ITS unterstützt Diagrammentfernungen von bis zu 100 cm.

Modular Base Rev1.2

Abbildung 1: Modulare Basisvorrichtung.

Modular rev1.2 90deg

Abbildung 2: Modulares Basis-Rig um 90 Grad gedreht.

Überarbeitungsverlauf

In der folgenden Tabelle wird der Überarbeitungsverlauf des modularen Rigs beschrieben. Außerdem sind Downloadlinks zu den Produktionsdateien der einzelnen Versionen enthalten.

Datum Revision Download von Produktionsdateien Änderungsprotokoll
September 2024 1.2 Modular base rig rev1.2
  • (September 2024) Behebt einen Fehler in einer Produktionsdatei
  • (Juli 2024) Erste Version

Modulares Rigg-System kaufen

Wir empfehlen, das modulare Rig-System, das optionale Tele-Extension-Rig und Zubehör bei einem der folgenden qualifizierten Anbieter zu kaufen.

  • Byte Bridge Inc.
    USA: 1502 Crocker Ave, Hayward, CA 94544-7037
    China: 22F #06-08, Hongwell International Plaza Tower A, 1600 West Zhongshan Road, Xuhui, Shanghai, 200235
    www.bytebt.com
    androidpartner@bytebt.com
    USA: +1-510-373-8899
    China: +86-400-8866-490

  • JFT CO LTD 捷富通科技有限公司 (previously known as MYWAY DESIGN)
    China: No. 40, Lane 22, Heai Road, Wujing Town, Minhang District, Shanghai, China
    Taiwan: 4F., No. 163, Fu-Ying Road, XinZhuang District, New Taipei City 242, Taiwan
    www.jftcoltd.com
    service@jfttec.com oder its.sales@jfttec.com
    China:+86-021-64909136
    Taiwan: 886-2-29089060

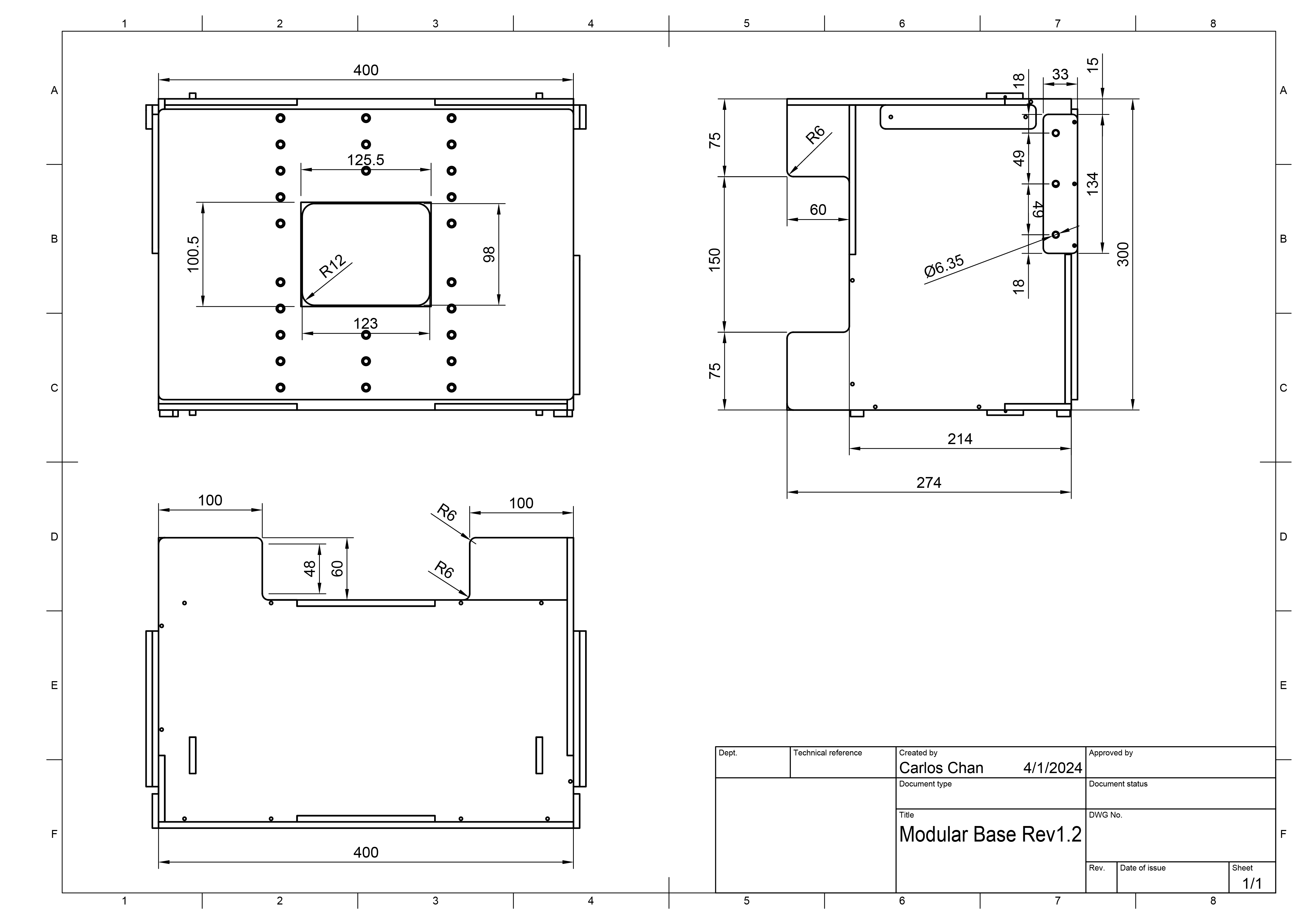
Technische Zeichnungen

Im Folgenden finden Sie eine technische Zeichnung des modularen Sockels.

CAD-Zeichnung der modularen Basis

Abbildung 3: Technische Zeichnung des modularen Basis-Rigs

Einrichtung des Basis-Rigs

So richten Sie ein modulares Basis-Rig ein:

  1. Kaufen Sie ein modulares Rigg-System bei einem qualifizierten Anbieter.

  2. Prüfen Sie, ob Sie alle Komponenten in der folgenden Tabelle haben (siehe Abbildung 4).

    Komponente Menge
    Modulares Basis-Rig 1
    Halterung für das Smartphone 2
    Tablethalterung 1
    12‑V-Netzteil (UL-gelistet, mindestens 1 A) 1
    Blende 1

    Modulare Basis Rev1.2-Artikel

    Abbildung 4: Modulare Komponenten für das Basis-Rig.

  3. Je nach Einrichtung müssen Sie die erforderlichen Zubehörteile aus der folgenden Tabelle (siehe Abbildung 5) haben. Dieses Zubehör kann bei einem autorisierten Händler gekauft werden.

    Artikel Menge
    Beleuchtungssteuerung (kann bis zu 3 Rigs steuern) 1
    5‑V-Netzteil für die Beleuchtungssteuerung 1
    Hohlsteckerkabel zum Verbinden der Beleuchtung mit dem modularen Sockel 1
    Adapter für DC-Hohlsteckerkabel (5,5 mm × 2,1 mm auf 3,5 mm × 1,35 mm) 1
    USB‑A-Kabel zu USB-Kabel 1
    Faltbares Kit (wenn das zu testende Gerät ein faltbares Gerät ist) 1

    Modulare optionale Artikel

    Abbildung 5: Optionale Elemente für das modulare Basis-Rig.

  4. Achten Sie darauf, dass kein Licht eindringt. Führen Sie dazu einen der folgenden Schritte aus:

    1. Fertigen Sie eine Blende an, die zum Kameramodul des Prüflings passt, und achten Sie darauf, dass kein Licht austritt (siehe Abbildung 6). Die Öffnungen können aus den mitgelieferten Schaumstoffplatten geschnitten oder von einem qualifizierten Anbieter konfiguriert werden. Für die richtige Ausrichtung der Abbildung werden Geräte mit der Rückkamera in Richtung des Rigs um 90° gegen den Uhrzeigersinn gedreht und Geräte mit der Frontkamera in Richtung des Rigs um 90° im Uhrzeigersinn gedreht. Achten Sie darauf, dass die Blenden entsprechend konfiguriert sind.

      Modulare Blendenpositionierung Modulares Schneiden von Öffnungen

      Abbildung 6 Blenden anbringen, um Lichtlecks zu vermeiden

    2. Verwenden Sie ein dunkles Tuch, um das Rig abzudecken und Lichtlecks zu vermeiden. Es sind keine Blenden erforderlich. (siehe Abbildung 7).

      Modulare Vorhänge

      Abbildung 7. Lichtlecks mit einem Tuch verhindern

  5. Bringen Sie eine Standard- oder eine klappbare Smartphone-Halterung mit einer Nylonschraube und ‑mutter in der richtigen Höhe an der vorderen Smartphone-Halterungsplatte an (siehe Abbildung 8).

    Modulare Blende und Halterung anbringen

    Abbildung 8. Installation der Blende und der Smartphone-Halterung.

  6. Bringen Sie die Tablet-Halterung mit einem Nylonbolzen und einer Mutter in einer geeigneten Höhe an der Tablet-Montageplatte an.

  7. Bringen Sie das Display-Tablet an und verbinden Sie es wie in Abbildung 9 gezeigt mit dem Host. Befestigen Sie das Tablet mit einem Saugnapf.

    Installation des modularen Tablets

    Abbildung 9. Installation des Tablets

  8. Um die Bedienung auf dem Bildschirm zu erleichtern, richten Sie das zu testende Gerät ein, bevor Sie es anbringen.

  9. Stellen Sie das DUT bereit und stellen Sie eine Verbindung zum Host her.

  10. Richten Sie das Prüfgerät so aus, dass die Mitte des Kameramoduls mit der Mitte des Tablets übereinstimmt oder sich sehr nah an der Mitte des Tablets befindet. Lösen Sie die Schrauben der Smartphone-Halterung und schieben Sie die Halterung nach oben oder unten, um die Höhe anzupassen. Richten Sie das Gerät aus und befestigen Sie es mit dem Halterungsstift.

    Modulare Installation des Prüflings

    Abbildung 10. Installation des Testgeräts

  11. Verbinden Sie das Beleuchtungskabel vom Basis-Rig mit einem der folgenden Geräte:

    1. 12‑V-Netzteil

      Modulare 12‑V-Verbindung

      Abbildung 11. Lampe, die an eine 12‑V-Stromversorgung angeschlossen ist.

    2. Lichtsteuerung (möglicherweise ist ein Adapter erforderlich)

      Modularen Controller verbinden

      Abbildung 12. Lampe, die mit dem Beleuchtungscontroller verbunden ist.

Wenn Sie die Einrichtung des modularen Basis-Rigs abgeschlossen haben, richten Sie die Host- und Testumgebung ein (CTS einrichten). Verwenden Sie für die Datei config.yml die folgende Konfiguration:

  • chart\_distance = 22
  • lighting\_ch = [connected controller channel] oder unverändert lassen, wenn kein Beleuchtungscontroller verwendet wird.

Einrichtung des Tele-Extender-Rigs

So richten Sie das optionale Tele-Verlängerungs-Rig ein:

  1. Kaufen Sie das modulare Basis-Rig und das Tele-Erweiterungs-Rig bei einem qualifizierten Anbieter. Das Rig kann mit den Produktionsdateien erstellt werden. Das wird jedoch nicht empfohlen, da die Teile präzise zugeschnitten und zusammengefügt werden müssen, damit das Verlängerungs-Rig keine Passungsprobleme hat.

  2. Sie benötigen ein funktionierendes modulares Basis-Rig und ein Tele-Verlängerungs-Rig (siehe Abbildung 13).

    Modular Tele

    Abbildung 13. Modulares Basis-Rig mit Tele-Verlängerung.

  3. Entfernen Sie die Smartphone-Halterung, indem Sie 6 Nylonschrauben (3 auf jeder Seite) mit der Hand lösen.

    Modulare Bolzen hervorheben Modulare Schraube entfernen Modulare Frontplatte abgenommen

    Abbildung 14. Entfernen Sie die 6 Nylonbolzen im markierten Bereich von Hand.

  4. Stellen Sie das Basis-Rig und das Tele-Erweiterungs-Rig auf die Oberfläche, auf der die Tests durchgeführt werden. Um die Befestigungspunkte nicht zu belasten, empfehlen wir, das montierte Rig nicht zu bewegen.

  5. Setzen Sie die Verlängerung so ein, dass die 6 Schlitze auf der Lasche der Verlängerung mit den 6 Löchern auf der Basis übereinstimmen.

    Tab für modulare Ausrichtung

    Abbildung 15. Schlitze mit Löchern ausrichten.

  6. Befestigen Sie die Verlängerung am Basis-Rig, indem Sie die 6 Schrauben anbringen. Drücken Sie die beiden Rigs beim Anbringen der Schrauben vorsichtig zusammen, um sicherzustellen, dass keine Lücken für Lichtlecks vorhanden sind. Bitten Sie bei Bedarf einen Kollegen um Hilfe. Ziehen Sie die Schrauben von Hand fest.

    Modulare Push-to-Connect-Verbindung

    Abbildung 16: Anbringen von Basis- und Erweiterungs-Rigs

  7. Konfigurieren Sie die Blende (oder den Vorhang) und installieren Sie die Smartphone-Halterungen und Prüflinge wie in Base Rig einrichten beschrieben.

    Tab für modulare Ausrichtung

    Abbildung 17. Anbringen von Smartphone-Halterungen und des zu testenden Geräts

Wenn Sie die Einrichtung des Erweiterungs-Rigs abgeschlossen haben, richten Sie die Host- und Testumgebung ein (CTS einrichten). Verwenden Sie für die Datei config.yml die folgende Konfiguration:

  • chart_distance = [Gesamtdistanz vom DUT zum Tablet]
  • lighting_ch = [connected control channel] oder unverändert lassen, wenn kein Beleuchtungscontroller verwendet wird.

Erweiterungs-Rig deinstallieren

Wenn Sie das Erweiterungs-Rig deinstallieren möchten, führen Sie die Installationsschritte in umgekehrter Reihenfolge aus. Drücken Sie beim Anbringen der Tablet-Montageplatte die Platte gegen die Basis, damit keine Lücken entstehen, durch die Licht austreten kann (siehe Abbildung 17). Ziehen Sie die Schrauben von Hand fest.

Modulare Push-to-Connect-Verbindung

Abbildung 18. Drücken Sie die Tablet-Halterung gegen die Basis.

Häufig gestellte Fragen

Warum wird die Szene bei einer Tele-Kamera zugeschnitten?

Modulares Rig-Zuschneiden

Abbildung 19. Szene, die durch die Smartphone-Halterung im Basis-Rig beschnitten wird

Das passiert, wenn das Sichtfeld eines Teleobjektivs durch die Smartphone-Platte zwischen dem Basis-Rig und der Tele-Verlängerung blockiert wird. Entfernen Sie die Telefonplatte mit einem Schraubenzieher, bevor Sie mit dem Test fortfahren.

Modulare Telefonplatte entfernt

Abbildung 20. Entfernen der Smartphone-Halterung aus dem Basis-Rig

Warum erscheinen die Lichter gedimmt oder warum wird bei der Ausführung von ITS ein Fehler bei der Beleuchtung angezeigt?

Dieser Fehler wird ausgelöst, wenn die Beleuchtung im Rig dunkler wird. Das kann an der Stromversorgung und dem Verschleiß der LEDs durch Alterung oder Nutzung oder an einer fehlerhaften Stromversorgung liegen. Führen Sie die folgenden Schritte aus, um das Problem zu beheben:

  1. Prüfen Sie, ob die Beleuchtung richtig funktioniert:

    • Ersetzen Sie das Netzteil (UL-gelistet, 12 Volt, mindestens 2 Ampere).
    • Tauschen Sie die LED aus (siehe Stückliste oder wenden Sie sich an den Anbieter, um weitere Informationen zu erhalten).
  2. Prüfen Sie mit einem digitalen Messgerät, ob die Lux-Werte der LED-Leuchten im richtigen Bereich (100–300) liegen. In diesem Beispiel wird das Luxmeter YF-1065 von Contempo Views verwendet. Legen Sie das Lichtmessgerät auf die Tablet-Seite und stellen Sie es auf 2.000 Lux ein, um das Licht zu messen (siehe Abbildung 21).

    YF-1065 von Contempo Views

    Abbildung 21. YF-1065 von Contempo Views.

    Lux meter

    Abbildung 22. Ein Luxmeter misst das Licht von der Seite mit der Tablet-Halterung.

  3. Führen Sie je nach gemessenem Luxwert den entsprechenden Schritt aus:

    • Wenn das Licht auf der richtigen Höhe ist, schraube die vordere und hintere Platte fest.
    • Wenn das Licht nicht die richtige Helligkeit hat, prüfen Sie, ob die Teilenummer der LED und des Netzteils korrekt ist.

Worauf Sie achten sollten

Im Folgenden finden Sie Beispiele für häufige Herstellungsfehler, die dazu führen können, dass Tests nicht zuverlässig ausgeführt werden.

  • Rückseite mit Löchern für das Tablet. Dadurch schlägt der find_circle-Test aufgrund der zusätzlichen Kreise fehl, die durch die Schraubenlöcher entstehen.

    Rückwand mit Löchern

    Abbildung 23. Rückseite mit Löchern.

  • Fehlende Dübel. Dadurch können die Lichtblenden während des Transports herausrutschen.

    Dübel fehlt

    Abbildung 24. Fehlender Dübel an der Lichtblende.

  • Nicht UL-gelistetes Netzteil. Die Verwendung eines UL-gelisteten Netzteils entspricht den angegebenen Spezifikationen. Das ist wichtig für den sicheren Betrieb der Beleuchtung.

    UL-gelistetes Netzteil

    Abbildung 25. Beispiel für ein UL-gelistetes Netzteil

  • Durchrutschende Schrauben an der Tablet- oder Smartphone-Halterung, die das Gewicht eines Tablets oder Smartphones nicht tragen können. Dies wird in der Regel durch beschädigte Gewinde verursacht und deutet darauf hin, dass das Loch neu geschnitten werden muss.

    Loch mit beschädigten Gewinden

    Abbildung 26. Loch mit beschädigtem Gewinde.