Modüler bir kamera sistemi satın alma ve kurma

Modüler test düzeneği sistemi, ITS test otomasyonunu destekler ve bilgisayar destekli tasarım (CAD) çizimlerinden bilgisayarlı sayısal kontrol (CNC) ile kesilmiş bir plastik kutu, bir grafik tablet ve test edilen bir cihazdan (DUT) oluşur. Modüler kamera sistemi, bir temel kamera sistemi ve isteğe bağlı bir tele uzatma kamera sisteminden oluşur. Modüler taban düzeneğinin grafik mesafesi 22 cm'dir ve 60 derece ile 120 derece arasında FoV'ye sahip mobil cihaz kameralarını test edebilir. Temel test düzeneği, test edilen cihaz üstte olacak şekilde 90 derece döndürülerek test yapabilir (Şekil 2'de gösterilmiştir).

Tele uzatma düzeneği, uzun minimum odak mesafesine (telefoto kameralar) sahip kameraların test edilmesini destekler. Tele uzatma düzeneği, taban düzeneğine vidalanır ve uygun satıcılardan satın alırken uzunluğu kamera testi gereksinimlerinize göre özelleştirilebilir. Kamera ITS, 100 cm'ye kadar olan grafik mesafelerini destekler. İki tür teleskopik uzatma kolu vardır: esnek teleskopik uzatma kolu ve sabit uzunluklu teleskopik uzatma kolu. Esnek telemetri sistemi, çeşitli grafik mesafeleriyle test yapmanıza olanak tanırken sabit uzunluklu sistem yalnızca tek bir grafik mesafesiyle test yapmanıza olanak tanır. Esnek tele rig, Mart 2026'dan itibaren kullanılabilir.

Modular Base
Rev1.2

Şekil 1. Modüler temel donanım.

Modular rev1.2
90deg

Şekil 2. Modüler taban donanımı 90 derece döndürülmüş.

Flexi-Tele
rig

Şekil 3. Onaylı iki tedarikçimizden Flexi-Tele uzatma aparatları.

Düzeltme geçmişi

Aşağıdaki tabloda, modüler rig sisteminin düzeltme geçmişi açıklanmakta ve üretim dosyalarının her sürümüne yönelik indirme bağlantıları yer almaktadır.

Tarih Düzeltme Üretim dosyası indirme Değişiklik günlüğü
Eylül 2024 1,2 Modular base rig rev1.2
  • (Eylül 2024) Üretim dosyası hatasıyla ilgili düzeltmeler içerir.
  • (Temmuz 2024) İlk sürüm

Modüler kamera sistemi satın alma

Modüler kamera sistemi, isteğe bağlı tele uzatma sistemi ve aksesuarları aşağıdaki nitelikli satıcılardan birinden satın almanızı öneririz.

  • Byte Bridge Inc.
    ABD: 1502 Crocker Ave, Hayward, CA 94544-7037
    Çin: 22F #06-08, Hongwell International Plaza Tower A, 1600 West Zhongshan Road, Xuhui, Şanghay, 200235
    www.bytebt.com
    androidpartner@bytebt.com
    ABD: +1-510-373-8899
    Çin: +86-400-8866-490

  • JFT CO LTD 捷富通科技有限公司 (eski adıyla MYWAY DESIGN)
    Çin: No. 40, Lane 22, Heai Road, Wujing Town, Minhang District, Şanghay, Çin
    Tayvan: 4F., No. 163, Fu-Ying Road, XinZhuang District, New Taipei City 242, Tayvan
    www.jftcoltd.com
    service@jfttec.com veya its.sales@jfttec.com
    Çin:+86-021-64909136
    Tayvan: 886-2-29089060

Mekanik çizimler

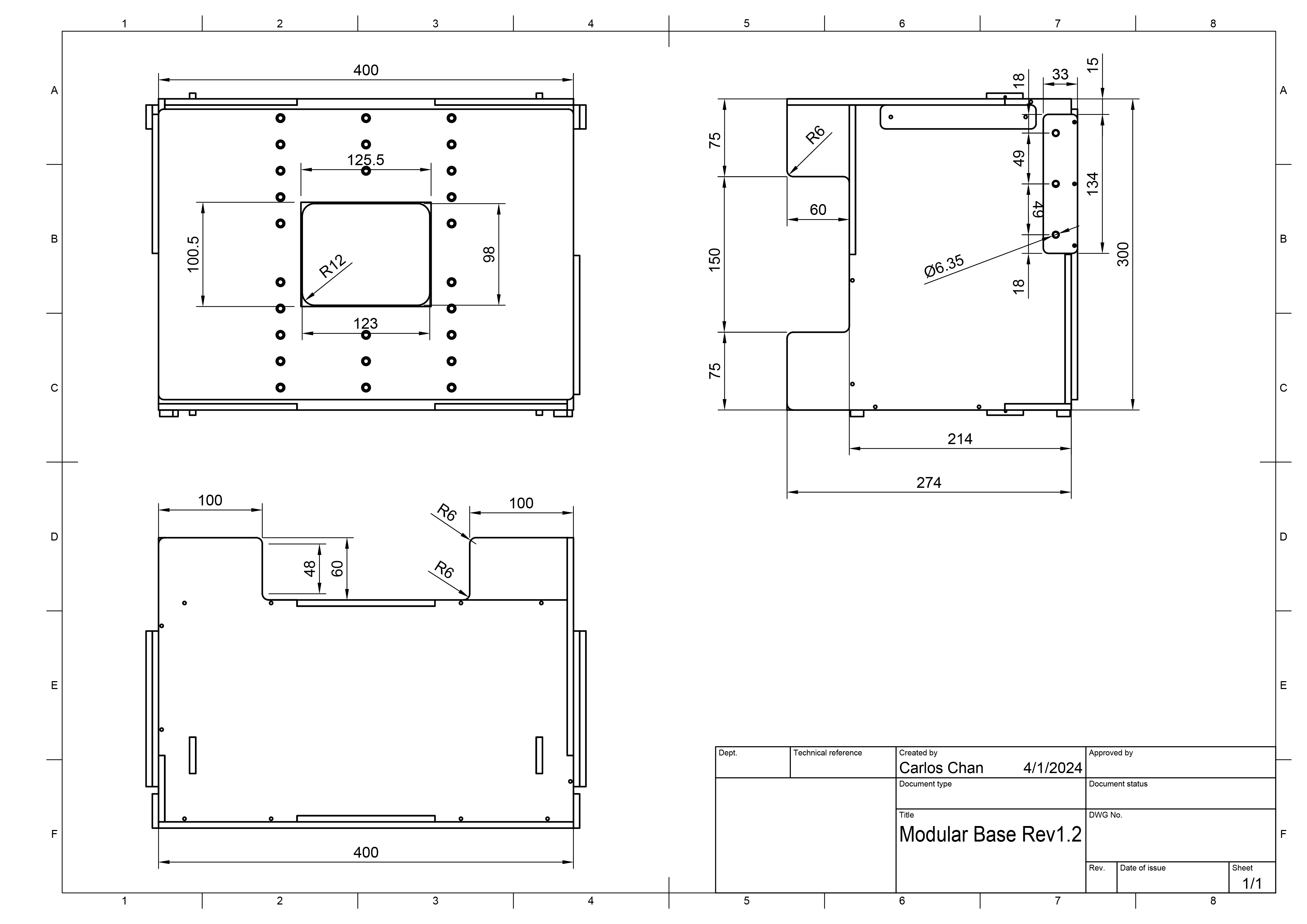
Aşağıda, modüler taban düzeneğinin mekanik çizimi verilmiştir.

Modüler tabanın CAD çizimi

Şekil 4. Modüler temel düzeneğin mekanik çizimi

Temel donanım kurulumu

Modüler bir temel donanım oluşturmak için aşağıdaki adımları uygulayın.

  1. Nitelikli bir satıcıdan modüler bir kamera sistemi satın alın.

  2. Aşağıdaki tabloda yer alan tüm bileşenlere sahip olduğunuzdan emin olun (Şekil 4'te gösterilen öğeler).

    Bileşen Miktar
    Modüler taban düzeneği 1
    Telefon montaj braketi 2
    Tablet montaj braketi 1
    12 V güç kaynağı (UL listeli, minimum 1 A) 1
    Diyafram 1

    Modular Base Rev1.2
Öğeler

    Şekil 5. Modüler temel donanım bileşenleri.

  3. Kurulumunuza bağlı olarak, aşağıdaki tabloda (Şekil 5'te gösterilmiştir) gerekli aksesuarlara sahip olduğunuzdan emin olun. Bu aksesuarlar, nitelikli bir satıcıdan satın alınabilir.

    Öğe Miktar
    Aydınlatma denetleyicisi (3 düzeneğe kadar kontrol edebilir) 1
    Aydınlatma denetleyicisi için 5 V güç kaynağı 1
    Işıklandırmayı modüler taban düzeneğine bağlayan DC silindir kablosu 1
    DC silindir kablo adaptörü (5,5 mm x 2,1 mm - 3,5 mm x 1,35 mm) 1
    USB A kablosu - USB kablosu 1
    Katlanabilir kit (DUT katlanabilir bir cihazsa) 1

    Modüler İsteğe Bağlı Öğeler

    Şekil 6. Modüler temel donanım için isteğe bağlı öğeler.

  4. Aşağıdaki işlemlerden birini yaparak ışık sızıntısı olmadığından emin olun:

    1. DUT'un kamera modülüne uyacak bir açıklık oluşturun ve ışık sızıntısı olmadığından emin olun (Şekil 6'da gösterildiği gibi). Açıklıklar, sağlanan köpük panolardan kesilebilir veya nitelikli bir satıcı tarafından yapılandırılabilir. Şeklin doğru yönü için arka kamerası düzeneğe bakan test edilen birimler 90° saat yönünün tersine, ön kamerası düzeneğe bakan test edilen birimler ise 90° saat yönünde döndürülür. Açıklıkların buna göre yapılandırıldığından emin olun.

    Modüler Açıklık
    Konumlandırma Modüler Diyafram
    Kesimi

    Şekil 7. Işık sızıntısını önlemek için açıklıklar oluşturun.

    1. Işık sızıntısını önlemek için donanımı koyu renkli bir örtüyle kapatın. Açıklık gerekmez. (Şekil 7'de gösterilmiştir).

    Modüler Perde

    Şekil 8. Drape kullanarak ışık sızıntısını önleme.

  5. Şekil 8'de gösterildiği gibi, naylon cıvata ve somun kullanarak ön telefon montaj paneline uygun bir yükseklikte standart bir telefon montajı veya katlanabilir bir telefon montajı takın.

    Modüler Diyafram ve Montaj Düzeneği
Kurulum

    Şekil 9. Aperture ve telefon montajı kurulumu.

  6. Naylon cıvata ve somun kullanarak tablet montaj düzeneğini, tablet montaj paneline uygun bir yükseklikte takın.

  7. Ekran tabletini monte edin ve tableti Şekil 9'da gösterildiği gibi ana makineye bağlayın. Tableti vantuzla sabitleyin.

    Modüler Tablet
Yükleme

    Şekil 10. Tablet kurulumu.

  8. Ekran üzerinde işlem yapmayı kolaylaştırmak için DUT'nizi monte etmeden önce ayarlayın.

  9. DUT'u monte edin ve ana makineye bağlayın.

  10. DUT'u, kamera modülünün merkezi tabletin merkeziyle hizalanacak (veya merkeze çok yakın olacak) şekilde yerleştirin. Yüksekliği ayarlamak için telefon montajı cıvatalarını gevşetin ve montajı yukarı veya aşağı kaydırın. Hizalandığında, DUT'u montaj pistonuyla sabitleyin.

    Modüler test cihazı
Yükleme

    Şekil 11. DUT kurulumu.

  11. Işıklandırma için, taban düzeneğindeki ışıklandırma kablosunu aşağıdakilerden birine bağlayın:

    1. 12 V güç kaynağı

    Modüler 12 V
    bağlantısı

    Şekil 12. 12 V güç kaynağına bağlı ışık.

    1. Aydınlatma denetleyicisi (adaptör gerekebilir)

    Modüler kumanda
    bağlantısı

    Şekil 13. Aydınlatma kontrol cihazına bağlı ışık.

Modüler taban düzeneğinin kurulumunu tamamladığınızda ana makineyi ve test ortamını ayarlayın (CTS'yi ayarlama). config.yml dosyası için aşağıdaki yapılandırmayı kullanın:

  • chart\_distance = 22
  • lighting\_ch = [bağlı denetleyici kanalı] veya aydınlatma denetleyicisi kullanmıyorsanız olduğu gibi bırakın.

Flexi-Tele uzatma aparatı kurulumu

Modüler taban düzeneğini Mart 2026'dan önce satın aldıysanız esnek tele uzantısıyla çalışmak için küçük bir uyarlama yapmanız gerekebilir. Bu değişiklik, ön plakanın DUT'un telefoto kamerasının görüş alanını engellemesi sorununu düzeltir ve sabit uzunluklu telefoto uzatma düzeneğiyle de kullanılabilir.

Modüler taban donanımını uyarlamak için aşağıdaki adımları uygulayın.

  1. Ön plakayı tutan dört vidayı ve alttaki dört vidayı sökün.

    Modüler Retrofit Sökme
Vidalar

    Şekil 14. Ön plakayı tutan rig üzerindeki vidalar.

  2. (İsteğe bağlı) Telefon montaj plakasını ön plakaya, plakalar birlikte çıkacak şekilde vidalayın veya yapıştırın.

    Modüler Retrofit cıvata
plakaları

    Şekil 15. Telefon montaj plakası ve ön plaka için vidalar.

  3. (İsteğe bağlı) Rig'inizde ön plakaya bağlı alttan üste ışık güç kablosu varsa elektrik bandı veya kablo bağı braketleriyle yan tarafa taşıyın.

    Modüler Retrofit kablosunu yeniden yerleştirme

    Şekil 16. Alttan üste ışık güç kablosu yana taşındı.

  4. Modüler taban düzeneğini, esnek tele uzatma düzeneğine bağlayın.

Video demosu

Bu videoda, esnek tele uzantısı düzeneğinin nasıl kurulacağı gösterilmektedir:

Sabit uzunlukta tele uzatma düzeneği kurulumu

İsteğe bağlı tele uzatma düzeneğini kurmak için aşağıdaki adımları uygulayın.

  1. Modüler taban donanımını ve tele uzatma donanımını nitelikli bir satıcıdan satın alın. Rig, üretim dosyaları kullanılarak oluşturulabilir ancak bu işlem, uzatma rig'inin uyum sorunları yaşamaması için kesme ve montaj işlemlerinin doğru yapılması gerektiğinden önerilmez.

  2. Çalışan bir modüler temel donanımınız ve bir tele uzatma donanımınız olduğundan emin olun (Şekil 13'te gösterildiği gibi).

    Modüler tele

    Şekil 17. Tele uzantılı modüler taban donanımı.

  3. 6 naylon cıvatayı elle sökerek (her iki tarafta 3 tane) telefon montaj panelini çıkarın.

    Modüler cıvata
vurgusu Modüler cıvata
sökme Modüler ön plaka
kapalı

    Şekil 18. İşaretli alandaki 6 naylon cıvatayı elle çıkarın.

  4. Temel donanımı ve tele uzatma donanımını testlerin yapılacağı yüzeye yerleştirin. Montaj noktalarına zarar vermemek için monte edilmiş düzeneğin taşınmasını önermiyoruz.

  5. Uzatma düzeneğini, uzatma düzeneğindeki 6 yuvanın taban düzeneğindeki 6 delikle aynı hizaya gelecek şekilde yerleştirin.

    Modüler hizalama
sekmesi

    Şekil 19. Yuvaları deliklerle hizalama

  6. 6 vidayı takarak uzatma düzeneğini taban düzeneğine bağlayın. Vidaları takarken ışık sızıntısı olmaması için 2 düzeneği nazikçe birbirine itin (gerekirse bir iş arkadaşınızdan yardım isteyin). Cıvataları elle sıkın.

    Modüler push
together

    Şekil 20. Temel ve uzantı donanımlarını bağlama

  7. Açıklığı (veya perdeyi) yapılandırın ve Temel donanım kurulumu bölümünde açıklandığı şekilde telefon montajlarını ve test edilen cihazları takın.

    Modüler hizalama
sekmesi

    Şekil 21. Telefon montajlarını ve DUT'u takma.

Uzatma düzeneğinin kurulumunu tamamladığınızda ana makineyi ve test ortamını kurun (CTS'yi kurma). config.yml dosyası için aşağıdaki yapılandırmayı kullanın:

  • chart_distance = [DUT'tan tablete kadar olan toplam mesafe]
  • lighting_ch = [bağlı kontrol kanalı] veya aydınlatma denetleyicisi kullanmıyorsanız olduğu gibi bırakın.

Uzantı donanımını kaldırma

Uzantı donanımını kaldırmak için yükleme adımlarını ters sırada uygulayın. Tablet montaj panelini takarken ışık sızıntısı olmaması için paneli taban düzeneğine doğru itin (Şekil 17'de gösterildiği gibi). Cıvataları elle sıkın.

Modüler push
together

Şekil 22. Tablet montaj panelini taban düzeneğine bastırma.

Sık sorulan sorular (SSS)

Neden tele rig'de sahne kırpılıyor?

Modüler kamera donanımı
kırpma

Şekil 23. Temel düzendeki telefon plakasıyla kırpılan sahne.

Bu durum, temel kamera düzeneği ile telefoto uzantısı arasındaki telefon plakası telefoto lensin görüş alanını engellediğinde meydana gelir. Teste devam etmeden önce tornavidayla telefon plakasını çıkardığınızdan emin olun.

Modüler telefon plakası
çıkarıldı

Şekil 24. Taban düzeneğindeki telefon plakasını çıkarma

ITS çalıştırılırken ışıklar neden soluk görünüyor veya neden ışıklandırmayı doğrulama hatası gösteriliyor?

Bu hata, ışık düzeneğindeki ışık karardığında tetiklenir. Bu durum, güç kaynağı ve LED'in yaş veya kullanım nedeniyle bozulmasından ya da hatalı bir güç kaynağından kaynaklanabilir. Bu sorunu çözmek için aşağıdaki adımları izleyin:

  1. Aydınlatmanın düzgün çalıştığından emin olun:

    • Güç kaynağını değiştirin (UL listesinde yer alan 12 volt, en az 2 amper).
    • LED'i değiştirin (daha fazla bilgi için malzeme listesine bakın veya satıcıyla iletişime geçin).
  2. LED ışıkların lüks değerinin uygun seviyede (100-300) olduğundan emin olmak için lüks değerini dijital ölçüm cihazıyla test edin. (Bu örnekte Contempo Views tarafından üretilen YF-1065 lüks ölçer kullanılmaktadır.) Işık ölçeri tablet tarafına yerleştirin ve ışığı ölçmek için 2.000 lükse çevirin (Şekil 21'de gösterilmiştir).

    YF-1065 by Contempo Views

    Şekil 25. Contempo Views'un YF-1065 modeli.

    Işık ölçer

    Şekil 26. Tablet montajı olan taraftan gelen ışığı ölçen lüksmetre.

  3. Ölçülen lüks değerine bağlı olarak uygun adımı uygulayın:

    • Işık doğru seviyedeyse ön ve arka plakaları vidalayın.
    • Işık yanlış seviyedeyse LED ve güç kaynağı parça numarasının doğru olup olmadığını kontrol edin.

Dikkat etmeniz gerekenler

Aşağıda, testlerin güvenilirliğini etkileyebilecek yaygın üretim hatalarına dair örnekler verilmiştir.

  • Tablet deliklerinin açıldığı arka panel. Bu durum, vida deliklerinin oluşturduğu ekstra daireler nedeniyle find_circle testinin başarısız olmasına neden olur.

    Delikli arka panel

    Şekil 27. Deliklerin açıldığı arka panel.

  • Eksik dübeller. Bu durum, nakliye sırasında ışık bölmelerinin kaymasına neden olur.

    Eksik dübel

    Şekil 28. Işık bölmesinde dübel eksik.

  • UL listesinde yer almayan güç kaynağı. UL listesinde yer alan bir güç kaynağı kullanıldığında etiketli spesifikasyonlar karşılanır. Bu, aydınlatmanın güvenli bir şekilde çalıştırılması için önemlidir.

    UL onaylı güç kaynağı

    Şekil 29. UL listesinde yer alan güç kaynağı örneği.

  • Tablet veya telefon ağırlığını destekleyemeyen tablet ya da telefon montaj aparatındaki vidaların kayması. Bu durum genellikle hasarlı dişlerden kaynaklanır ve deliğin yeniden dişlenmesi gerektiğini gösterir.

    Dişleri hasarlı delik

    Şekil 30. Dişleri hasar görmüş delik.