मॉड्यूलर रिग सिस्टम खरीदना और सेट अप करना

मॉड्यूलर रिग सिस्टम, आईटीएस टेस्ट ऑटोमेशन के साथ काम करता है. इसमें एक प्लास्टिक बॉक्स होता है. इसे कंप्यूटर एडेड डिज़ाइन (सीएडी) ड्रॉइंग से, कंप्यूटर से कंट्रोल होने वाली संख्यात्मक मशीन (सीएनसी) से काटा जाता है. इसमें एक चार्ट टैबलेट और टेस्ट किया जाने वाला डिवाइस (डीयूटी) भी होता है. मॉड्यूलर रिग सिस्टम में एक बेस रिग और एक वैकल्पिक टेली एक्सटेंशन रिग होता है. मॉड्यूलर बेस रिग में, चार्ट की दूरी 22 सेमी होती है. इससे 60 डिग्री से 120 डिग्री के फ़ील्ड ऑफ़ व्यू (कैमरे से दिखने वाला व्यू) वाले मोबाइल डिवाइस के कैमरों की जांच की जा सकती है. बेस रिग, DUT को ऊपर रखकर 90 डिग्री घुमाकर टेस्टिंग कर सकता है. इसे इमेज 2 में दिखाया गया है.

टेली एक्सटेंशन रिग की मदद से, उन कैमरों की टेस्टिंग की जा सकती है जिनका फ़ोकस कम से कम दूरी पर होता है (टेलीफ़ोटो कैमरे). टेली एक्सटेंशन रिग को बेस रिग पर बोल्ट किया जाता है. साथ ही, ज़रूरी शर्तें पूरी करने वाले वेंडर से खरीदते समय, कैमरे की टेस्टिंग की ज़रूरतों के हिसाब से इसकी लंबाई को पसंद के मुताबिक बनाया जा सकता है. Camera ITS, 100 सेंटीमीटर तक की दूरी वाले चार्ट के साथ काम करता है.

मॉड्यूलर बेस Rev1.2

पहली इमेज. मॉड्यूलर बेस रिग.

मॉड्यूलर rev1.2 90deg

दूसरी इमेज. मॉड्यूलर बेस रिग को 90 डिग्री घुमाया गया है.

बदलावों का इतिहास

यहां दी गई टेबल में, मॉड्यूलर रिग सिस्टम के वर्शन में हुए बदलावों के इतिहास के बारे में बताया गया है. साथ ही, इसमें प्रोडक्शन फ़ाइलों के हर वर्शन को डाउनलोड करने के लिंक भी शामिल हैं.

तारीख बदलाव प्रोडक्शन फ़ाइल डाउनलोड करना बदलाव लॉग
सितंबर 2024 1.2 Modular base rig rev1.2
  • (सितंबर 2024) इसमें प्रोडक्शन फ़ाइल से जुड़ी गड़बड़ी को ठीक किया गया है
  • (जुलाई 2024) शुरुआती रिलीज़

मॉड्यूलर रिग सिस्टम खरीदना

हमारा सुझाव है कि मॉड्यूलर रिग सिस्टम, वैकल्पिक टेली एक्सटेंशन रिग, और ऐक्सेसरीज़ को इन मान्यता प्राप्त वेंडर में से किसी एक से खरीदें.

  • Byte Bridge Inc.
    USA: 1502 Crocker Ave, Hayward, CA 94544-7037
    China: 22F #06-08, Hongwell International Plaza Tower A, 1600 West Zhongshan Road, Xuhui, Shanghai, 200235
    www.bytebt.com
    androidpartner@bytebt.com
    USA: +1-510-373-8899
    China: +86-400-8866-490

  • JFT CO LTD 捷富通科技有限公司 (पहले इसे MYWAY DESIGN के नाम से जाना जाता था)
    चीन: No. 40, Lane 22, Heai Road, Wujing Town, Minhang District, Shanghai, China
    ताइवान: 4F., No. 163, Fu-Ying Road, XinZhuang District, New Taipei City 242, Taiwan
    www.jftcoltd.com
    service@jfttec.com या its.sales@jfttec.com
    चीन:+86-021-64909136
    ताइवान: 886-2-29089060

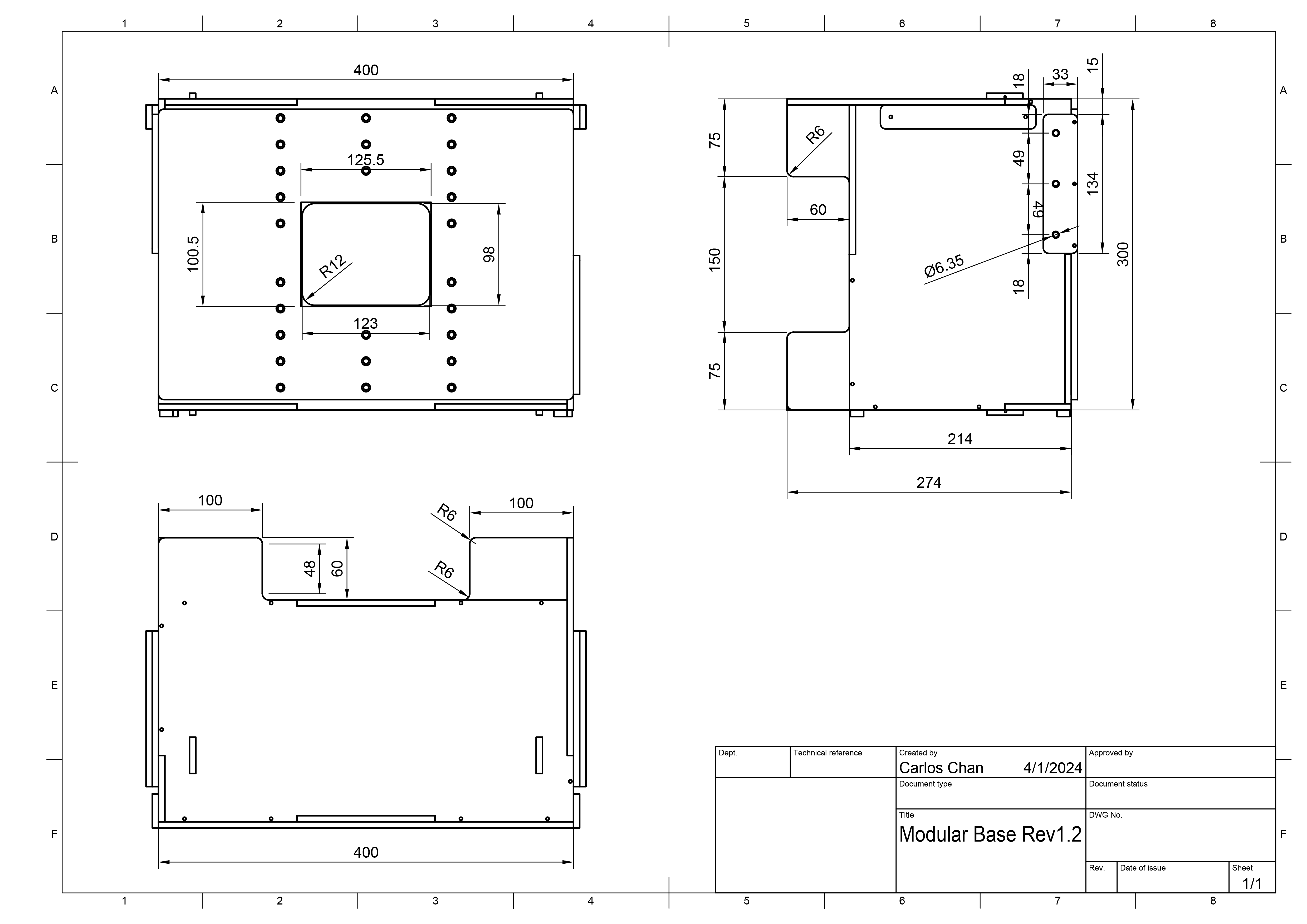
मकैनिकल ड्रॉइंग

मॉड्यूलर बेस रिग का मैकेनिकल ड्रॉइंग यहां दिया गया है.

मॉड्यूलर बेस की सीएडी ड्रॉइंग

तीसरी इमेज. मॉड्यूलर बेस रिग की मैकेनिकल ड्राइंग

बेस रिग सेटअप

मॉड्यूलर बेस रिग सेट अप करने के लिए, यह तरीका अपनाएं.

  1. ज़रूरी शर्तें पूरी करने वाले वेंडर से मॉड्यूलर रिग सिस्टम खरीदें.

  2. पक्का करें कि आपके पास इस टेबल में दिए गए सभी कॉम्पोनेंट हों (आइटम, इमेज 4 में दिखाए गए हैं).

    कॉम्पोनेंट संख्या
    मॉड्यूलर बेस रिग 1
    फ़ोन माउंट ब्रैकेट 2
    टैबलेट माउंट ब्रैकेट 1
    12V पावर सप्लाई (यूएल लिस्टेड, कम से कम 1A) 1
    एपर्चर 1

    मॉड्यूलर बेस Rev1.2 आइटम

    चौथी इमेज. मॉड्यूलर बेस रिग कॉम्पोनेंट.

  3. अपने सेटअप के हिसाब से, पक्का करें कि आपके पास यहां दी गई टेबल में मौजूद ज़रूरी ऐक्सेसरी हों. यह टेबल, इमेज 5 में दिखाई गई है. इन ऐक्सेसरी को ज़रूरी शर्तें पूरी करने वाले वेंडर से खरीदा जा सकता है.

    आइटम संख्या
    लाइटिंग कंट्रोलर (ज़्यादा से ज़्यादा तीन रिग कंट्रोल कर सकता है) 1
    लाइटिंग कंट्रोलर के लिए 5v पावर सप्लाई 1
    डीसी बैरल केबल, जो लाइटिंग को मॉड्यूलर बेस रिग से कनेक्ट करती है 1
    डीसी बैरल केबल अडैप्टर (5.5 मि॰मी॰ x 2.1 मि॰मी॰ से 3.5 मि॰मी॰ x 1.35 मि॰मी॰) 1
    यूएसबी ए केबल से यूएसबी केबल 1
    फ़ोल्ड किया जा सकने वाला किट (अगर DUT, फ़ोल्ड किया जा सकने वाला डिवाइस है) 1

    मॉड्यूलर वैकल्पिक आइटम

    पांचवीं इमेज. मॉड्यूलर बेस रिग के लिए वैकल्पिक आइटम.

  4. इनमें से कोई एक तरीका अपनाकर पक्का करें कि लाइट लीक न हो रही हो:

    1. DUT के कैमरा मॉड्यूल के हिसाब से एक अपर्चर बनाएं और पक्का करें कि उसमें से रोशनी न आ रही हो. जैसा कि इमेज 6 में दिखाया गया है. फ़ोम बोर्ड में छेद करने के लिए, आपको फ़ोम बोर्ड दिए जाएंगे. इसके अलावा, किसी भरोसेमंद वेंडर से भी छेद कराए जा सकते हैं. फ़िगर को सही ओरिएंटेशन में रखने के लिए, पीछे के कैमरे को रिग की ओर करके रखे गए DUT को 90° एंटीक्लॉकवाइज़ घुमाया जाता है. वहीं, सामने के कैमरे को रिग की ओर करके रखे गए DUT को 90° क्लॉकवाइज़ घुमाया जाता है. पक्का करें कि अपर्चर को उसी के हिसाब से कॉन्फ़िगर किया गया हो.

      मॉड्यूलर अपर्चर की पोज़िशनिंग मॉड्यूलर अपर्चर कटिंग

      छठी इमेज. लाइट लीक होने से रोकने के लिए, अपर्चर बनाएं.

    2. लाइट लीक होने से रोकने के लिए, रिग को गहरे रंग के कपड़े से ढक दें. इसके लिए, किसी भी तरह के छेद की ज़रूरत नहीं है. (इमेज 7 में दिखाया गया है).

      मॉड्यूलर ड्रेपरी

      सातवीं इमेज. ड्रेप का इस्तेमाल करके, रोशनी को बाहर निकलने से रोकना.

  5. फ़ोन को माउंट करने के लिए, स्टैंडर्ड फ़ोन माउंट या फ़ोल्ड किए जा सकने वाले फ़ोन माउंट को सामने की ओर मौजूद फ़ोन माउंटिंग पैनल पर सही ऊंचाई पर इंस्टॉल करें. इसके लिए, नायलॉन बोल्ट और नट का इस्तेमाल करें. जैसा कि इमेज 8 में दिखाया गया है.

    मॉड्यूलर अपर्चर और माउंट इंस्टॉल करना

    आठवीं इमेज. फ़ोन माउंट और अपर्चर इंस्टॉल करना.

  6. नायलॉन बोल्ट और नट का इस्तेमाल करके, टैबलेट माउंट को टैबलेट माउंटिंग पैनल पर सही ऊंचाई पर इंस्टॉल करें.

  7. डिसप्ले टैबलेट को माउंट करें और टैबलेट को होस्ट से कनेक्ट करें. इसके लिए, इमेज 9 में दिया गया तरीका अपनाएं. प्लंजर की मदद से टैबलेट को सुरक्षित करें.

    मॉड्यूलर टैबलेट इंस्टॉल

    नौवीं इमेज. टैबलेट पर इंस्टॉल करना.

  8. स्क्रीन पर ऑपरेशन को आसान बनाने के लिए, DUT को माउंट करने से पहले DUT को सेट अप करें.

  9. DUT को माउंट करें और होस्ट से कनेक्ट करें.

  10. DUT को इस तरह से अलाइन करें कि कैमरा मॉड्यूल का बीच वाला हिस्सा, टैबलेट के बीच वाले हिस्से के साथ अलाइन हो जाए या उसके बहुत करीब हो. ऊंचाई को अडजस्ट करने के लिए, फ़ोन माउंट करने वाले बोल्ट को ढीला करें और माउंट को ऊपर या नीचे की ओर स्लाइड करें. जब DUT को अलाइन कर लिया जाए, तब उसे माउंट प्लंजर से सुरक्षित करें.

    मॉड्यूलर DUT इंस्टॉल करना

    दसवीं इमेज. DUT इंस्टॉल करना.

  11. लाइटिंग के लिए, बेस रिग से लाइटिंग केबल को इनमें से किसी एक से कनेक्ट करें:

    1. 12V पावर सप्लाई

      मॉड्यूलर 12V कनेक्शन

      ग्यारहवीं इमेज. लाइट को 12V पावर सप्लाई से कनेक्ट किया गया है.

    2. लाइटिंग कंट्रोलर (अडैप्टर की ज़रूरत पड़ सकती है)

      मॉड्यूलर कंट्रोलर कनेक्शन

      बारहवीं इमेज. लाइटिंग कंट्रोलर से कनेक्ट की गई लाइट.

मॉड्यूलर बेस रिग का सेटअप पूरा करने के बाद, होस्ट और टेस्ट एनवायरमेंट सेट अप करें (CTS सेट अप करें). config.yml फ़ाइल के लिए, इस कॉन्फ़िगरेशन का इस्तेमाल करें:

  • chart\_distance = 22
  • lighting\_ch = [connected controller channel] या अगर लाइटिंग कंट्रोलर का इस्तेमाल नहीं किया जा रहा है, तो इसे ऐसे ही छोड़ दें.

टेली एक्सटेंशन रिग सेटअप

टेली एक्सटेंशन रिग को सेट अप करने के लिए, यह तरीका अपनाएं.

  1. ज़रूरी शर्तें पूरी करने वाले वेंडर से, मॉड्यूलर बेस रिग और टेली एक्सटेंशन रिग खरीदें. रिग को प्रोडक्शन फ़ाइलों का इस्तेमाल करके बनाया जा सकता है. हालांकि, ऐसा करने का सुझाव नहीं दिया जाता, क्योंकि एक्सटेंशन रिग में फ़िटिंग से जुड़ी कोई समस्या न हो, इसके लिए कटिंग और असेंबली सटीक होनी चाहिए.

  2. पक्का करें कि आपके पास काम करने वाला मॉड्यूलर बेस रिग और टेली एक्सटेंशन रिग हो (जैसा कि इमेज 13 में दिखाया गया है).

    मॉड्यूलर टेली

    तेरहवीं इमेज. टेली एक्सटेंशन वाला मॉड्यूलर बेस रिग.

  3. फ़ोन माउंट करने वाले पैनल को हटाने के लिए, हाथ से नायलॉन के छह बोल्ट (हर तरफ़ तीन) निकालें.

    मॉड्यूलर बोल्ट हाइलाइट मॉड्यूलर बोल्ट हटाना मॉड्यूलर फ़्रंट प्लेट बंद है

    चौदहवीं इमेज. हाइलाइट किए गए हिस्से में मौजूद छह नायलॉन बोल्ट को हाथ से हटाते हुए दिखाया गया है.

  4. बेस रिग और टेली एक्सटेंशन रिग को उस जगह पर रखें जहां टेस्ट किए जाते हैं. माउंटिंग पॉइंट पर दबाव न पड़े, इसके लिए हम असेंबल किए गए रिग को हिलाने का सुझाव नहीं देते.

  5. एक्सटेंशन रिग को इस तरह से लगाएं कि एक्सटेंशन रिग टैब पर मौजूद छह स्लॉट, बेस रिग पर मौजूद छह छेदों की सीध में हों.

    मॉड्यूलर अलाइनिंग टैब

    15वीं इमेज. स्लॉट को छेदों के साथ अलाइन करना.

  6. छह बोल्ट लगाकर, एक्सटेंशन रिग को बेस रिग से जोड़ें. स्क्रू लगाते समय, दोनों रिग को एक-दूसरे के साथ हल्के से दबाएं, ताकि यह पक्का किया जा सके कि रोशनी के रिसाव के लिए कोई जगह न हो. अगर ज़रूरत हो, तो अपने सहकर्मी से मदद लें. बोल्ट को हाथ से कसें.

    मॉड्यूलर पुश एक साथ

    16वीं इमेज. बेस और एक्सटेंशन रिग अटैच करना.

  7. बेस रिग सेटअप में बताए गए तरीके से, अपर्चर (या ड्रेपरी) को कॉन्फ़िगर करें. साथ ही, फ़ोन माउंट और DUT इंस्टॉल करें.

    मॉड्यूलर अलाइनिंग टैब

    17वीं इमेज. फ़ोन माउंट और DUT अटैच करना.

एक्सटेंशन रिग का सेटअप पूरा करने के बाद, होस्ट और टेस्ट एनवायरमेंट सेट अप करें (CTS सेट अप करें). config.yml फ़ाइल के लिए, इस कॉन्फ़िगरेशन का इस्तेमाल करें:

  • chart_distance = [DUT से टैबलेट के बीच की कुल दूरी]
  • lighting_ch = [connected control channel] या अगर लाइटिंग कंट्रोलर का इस्तेमाल नहीं किया जा रहा है, तो इसे ऐसे ही छोड़ दें.

एक्सटेंशन रिग को अनइंस्टॉल करना

एक्सटेंशन रिग को अनइंस्टॉल करने के लिए, इंस्टॉल करने के चरणों को उलट दें. टैबलेट को माउंट करने वाले पैनल को इंस्टॉल करते समय, पैनल को बेस रिग के साथ दबाएं. इससे यह पक्का किया जा सकेगा कि पैनल और बेस रिग के बीच कोई गैप न हो, ताकि रोशनी बाहर न निकले. जैसा कि इमेज 17 में दिखाया गया है. बोल्ट को हाथ से कसें.

मॉड्यूलर पुश एक साथ

18वीं इमेज. इस इमेज में, टैबलेट को लगाने वाले पैनल को बेस रिग के साथ दबाते हुए दिखाया गया है.

अक्सर पूछे जाने वाले सवाल

टेली रिग में सीन को क्यों काटा जाता है?

मॉड्यूलर रिग क्रॉप

19वीं इमेज. बेस रिग में फ़ोन प्लेट की वजह से सीन क्रॉप हो गया है.

ऐसा तब होता है, जब टेलीफ़ोटो लेंस के फ़ील्ड ऑफ़ व्यू को फ़ोन प्लेट ब्लॉक कर देती है. यह प्लेट, बेस रिग और टेलीफ़ोटो एक्सटेंशन के बीच में होती है. जांच शुरू करने से पहले, पक्का करें कि आपने स्क्रूड्राइवर से फ़ोन प्लेट हटा दी हो.

मॉड्यूलर फ़ोन की प्लेट हटा दी गई है

20वीं इमेज. बेस रिग में मौजूद फ़ोन प्लेट को हटाना.

आईटीएस चलाते समय, लाइटें कम रोशनी वाली क्यों दिखती हैं या 'रोशनी की पुष्टि करें' वाली गड़बड़ी क्यों दिखती है?

रिग में रोशनी कम होने पर यह गड़बड़ी दिखती है. ऐसा पावर सप्लाई और एलईडी की उम्र या इस्तेमाल की वजह से हो सकता है. इसके अलावा, पावर सप्लाई में गड़बड़ी की वजह से भी ऐसा हो सकता है. इस समस्या का समाधान करने के लिए, इन चरणों का अनुसरण करें:

  1. पक्का करें कि लाइट ठीक से काम कर रही हो:

    • पावर सप्लाई बदलें. यह UL लिस्ट में शामिल 12 वोल्ट और कम से कम 2 ऐंपियर की होनी चाहिए.
    • एलईडी बदलें. इसके लिए, बीओएम देखें या ज़्यादा जानकारी के लिए वेंडर से संपर्क करें.
  2. यह पक्का करने के लिए कि एलईडी लाइट का लक्स सही लेवल (100–300) पर है, डिजिटल मीटर का इस्तेमाल करके लक्स की जांच करें. (इस उदाहरण में, Contempo Views के YF-1065 लक्स मीटर का इस्तेमाल किया गया है.) लाइट मीटर को टैबलेट की तरफ़ रखें और रोशनी को मेज़र करने के लिए, उसे 2000 लक्स पर सेट करें. यह जानकारी, इमेज 21 में दिखाई गई है.

    Contempo Views का YF-1065

    21वीं इमेज. Contempo Views का YF-1065.

    लक्स मीटर

    22वीं इमेज. इस इमेज में, टैबलेट माउंट के साथ साइड से रोशनी मापने वाला लक्स मीटर दिखाया गया है.

  3. मेज़र की गई लक्स वैल्यू के आधार पर, यह तरीका अपनाएं:

    • अगर लाइट सही लेवल पर है, तो आगे और पीछे की प्लेटों को लेस में स्क्रू करें.
    • अगर लाइट सही लेवल पर नहीं है, तो जांच करें कि एलईडी और पावर सप्लाई के पार्ट नंबर सही हों.

ध्यान रखने लायक बातें

यहां मैन्युफ़ैक्चरिंग से जुड़ी कुछ सामान्य गड़बड़ियों के उदाहरण दिए गए हैं. इनकी वजह से, टेस्ट फ़्लेकी हो सकते हैं.

  • टैबलेट का पिछला पैनल, जिसमें छेद किए गए हैं. स्क्रू के छेद की वजह से बने अतिरिक्त सर्कल की वजह से, find_circle टेस्ट फ़ेल हो जाता है.

    छेद वाला बैक पैनल

    23वीं इमेज. बैक पैनल में छेद किए गए हैं.

  • डौल मौजूद नहीं हैं. इस वजह से, शिपिंग के दौरान लाइट बैफ़ल निकल जाते हैं.

    डौल मौजूद नहीं है

    24वीं इमेज. लाइट बैफ़ल पर डावल मौजूद नहीं है.

  • पावर सप्लाई, UL की सूची में शामिल नहीं है. यूएल लिस्टेड पावर सप्लाई का इस्तेमाल करने से, लेबल की गई खास बातों को पूरा किया जा सकता है. रोशनी को सुरक्षित तरीके से चालू करने के लिए यह ज़रूरी है.

    UL-लिस्टेड पावर सप्लाई

    25वीं इमेज. यूएल लिस्टेड पावर सप्लाई का उदाहरण.

  • टैबलेट या फ़ोन माउंट पर लगे स्क्रू ढीले हो गए हैं. इस वजह से, वे टैबलेट या फ़ोन का वज़न नहीं संभाल पा रहे हैं. आम तौर पर, ऐसा थ्रेड के खराब होने की वजह से होता है. इससे पता चलता है कि छेद को फिर से थ्रेड करने की ज़रूरत है.

    थ्रेड खराब होने की वजह से छेद

    26वीं इमेज. थ्रेड खराब होने की वजह से छेद.