El sistema de soporte modular admite la automatización de pruebas de ITS y consta de una caja de plástico cortada con control numérico computarizado (CNC) a partir de dibujos de diseño asistido por computadora (CAD), una tablet de gráficos y un dispositivo en prueba (DUT). El sistema de soporte modular consta de un soporte base y un soporte de extensión para teleopción opcional. La estructura base modular tiene una distancia de gráfico de 22 cm y puede probar cámaras de dispositivos móviles con un ángulo de visión de 60 a 120 grados. La estructura base puede realizar pruebas rotadas 90 grados con el DUT en la parte superior (se muestra en la Figura 2).
El soporte de extensión teleobjetivo permite probar cámaras que tienen una distancia de enfoque mínima larga (cámaras teleobjetivo). El soporte de extensión de teleobjetivo se atornilla al soporte base, y la longitud se puede personalizar según los requisitos de prueba de la cámara cuando se compra a través de los proveedores calificados. El ITS de la cámara admite distancias de gráficos de hasta 100 cm. Existen dos tipos de soportes de extensión telescópica: el soporte flexible y el soporte de longitud fija. El soporte flexible te permite realizar pruebas con varias distancias de gráfico, mientras que el soporte de longitud fija solo te permite realizar pruebas con una sola distancia de gráfico. El equipo de teleobjetivo flexible estará disponible a partir de marzo de 2026.
Figura 1: Es una estructura base modular.
Figura 2: La estructura base modular se rotó 90 grados.
Figura 3: Soportes de extensión Flexi-Tele de nuestros dos proveedores aprobados
Historial de revisión
En la siguiente tabla, se describe el historial de revisiones del sistema de estructura modular y se incluyen vínculos de descarga a cada versión de los archivos de producción.
| Fecha | Revisión | Descarga de archivos de producción | Registro de cambios |
|---|---|---|---|
| Septiembre de 2024 | 1.2 | Modular base rig rev1.2 |
|
Compra un sistema de soporte modular
Te recomendamos que compres el sistema de soporte modular, el soporte de extensión para el teléfono opcional y los accesorios de uno de los siguientes proveedores calificados.
Byte Bridge Inc.
EE.UU.: 1502 Crocker Ave, Hayward, CA 94544-7037
China: 22F #06-08, Hongwell International Plaza Tower A, 1600 West Zhongshan Road, Xuhui, Shanghái, 200235
www.bytebt.com
androidpartner@bytebt.com
EE.UU.: +1-510-373-8899
China: +86-400-8866-490JFT CO LTD 捷富通科技有限公司 (anteriormente conocida como MYWAY DESIGN)
China: No. 40, Lane 22, Heai Road, Wujing Town, Minhang District, Shanghái, China
Taiwán: Piso 4, Núm. 163, Fu-Ying Road, distrito de XinZhuang, ciudad de Nuevo Taipéi 242, Taiwán
www.jftcoltd.com
service@jfttec.com o its.sales@jfttec.com
China:+86-021-64909136
Taiwán: 886-2-29089060
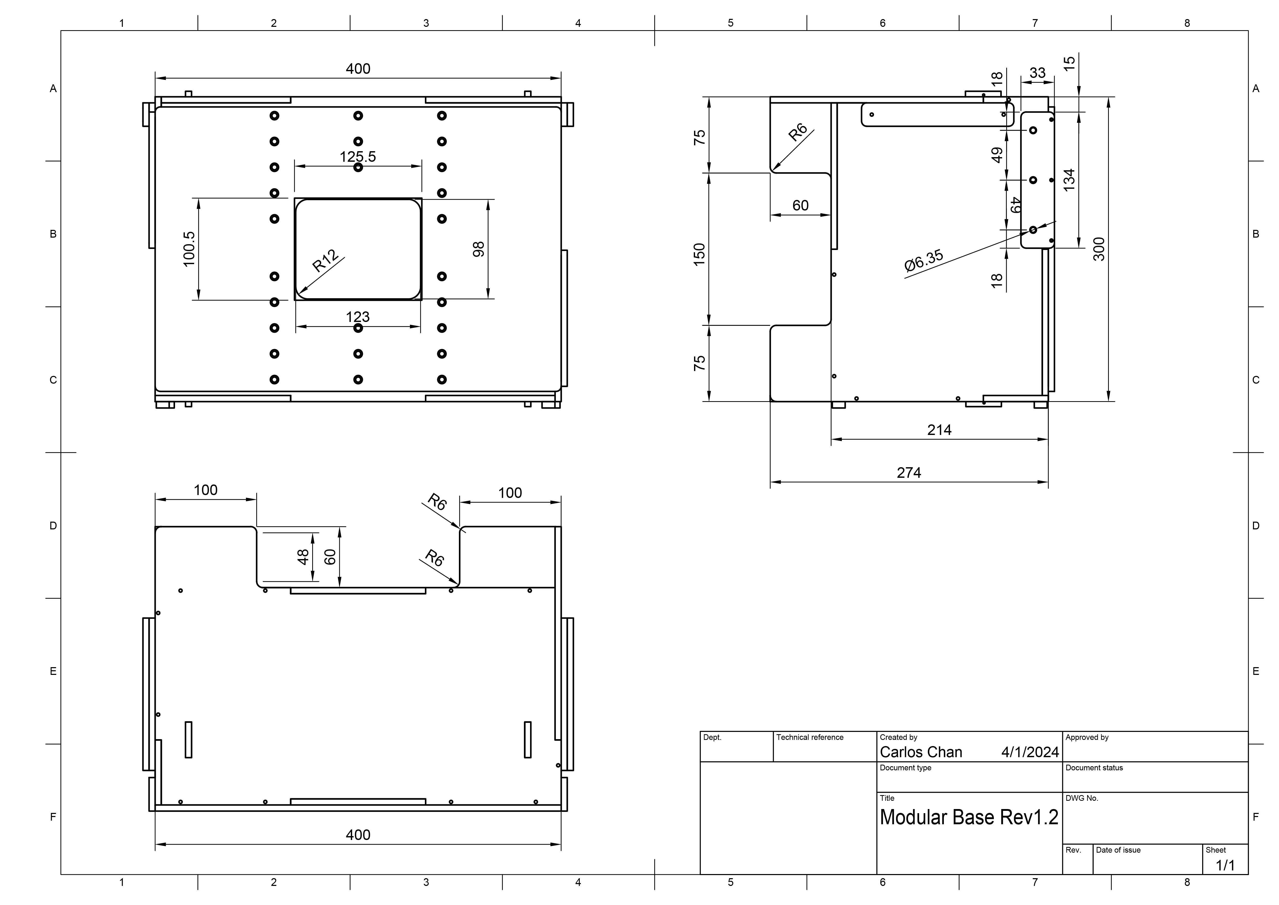
Planos mecánicos
A continuación, se muestra un dibujo mecánico de la estructura base modular.
Figura 4: Dibujo mecánico de la estructura de soporte modular
Configuración básica de la estructura
Sigue estos pasos para configurar una estructura base modular.
Compra un sistema de estructura modular a un proveedor calificado.
Asegúrate de tener todos los componentes que se muestran en la siguiente tabla (elementos que se muestran en la figura 4).
Componente Cantidad Estructura base modular 1 Soporte para teléfono 2 Soporte de montaje para tablet 1 Fuente de alimentación de 12 V (con certificación UL, 1 A como mínimo) 1 Apertura 1
Figura 5: Componentes de estructura base modulares.
Según tu configuración, asegúrate de tener los accesorios necesarios que se indican en la siguiente tabla (que se muestra en la Figura 5). Estos accesorios se pueden comprar en un proveedor calificado.
Artículo Cantidad Controlador de iluminación (puede controlar hasta 3 plataformas) 1 Fuente de alimentación de 5 V para el controlador de iluminación 1 Cable coaxial de CC que conecta la iluminación a la estructura modular de la base 1 Adaptador de cable de barril de CC (5.5 mm x 2.1 mm a 3.5 mm x 1.35 mm) 1 Cable USB A a cable USB 1 Kit de plegado (si el DUT es un dispositivo plegable) 1
Figura 6: Elementos opcionales para la estructura base modular.
Para asegurarte de que no haya fugas de luz, haz una de las siguientes acciones:
- Fabrica una abertura para que se ajuste al módulo de la cámara del DUT y asegúrate de que no haya fugas de luz (como se muestra en la Figura 6). Las aberturas se pueden cortar de los paneles de espuma proporcionados o configurarlas con un proveedor calificado. Para lograr una orientación adecuada de la figura, los DUTs con la cámara posterior orientada hacia la estructura se rotan 90° en sentido contrario a las agujas del reloj, y los DUTs con la cámara frontal orientada hacia la estructura se rotan 90° en el sentido de las agujas del reloj. Asegúrate de que los diafragmas estén configurados según corresponda.
Figura 7: Fabrica aberturas para evitar fugas de luz.
- Usa una tela oscura para cubrir la estructura y evitar fugas de luz. No se requieren aberturas. (se muestra en la figura 7).
Figura 8: Evita la fuga de luz con una cortina.
Instala un soporte para teléfono estándar o un soporte para teléfono plegable en el panel de soporte del teléfono delantero a una altura adecuada con un tornillo y una tuerca de nailon, como se muestra en la Figura 8.
Figura 9: Instalación de la apertura y el soporte para el teléfono
Instala el soporte para la tablet en el panel de montaje de la tablet a una altura adecuada con un tornillo y una tuerca de nailon.
Monta la tablet de la pantalla y conéctala al host como se muestra en la figura 9. Asegura la tablet con un vástago.
Figura 10: Instalación de la tablet
Para facilitar el funcionamiento en pantalla, configura el DUT antes de colocarlo en el soporte.
Monta el DUT y conéctalo al host.
Alinea el DUT de modo que el centro del módulo de la cámara quede alineado con el centro de la tablet (o muy cerca de él). Para ajustar la altura, afloja los tornillos de la base para el teléfono y desliza la base hacia arriba o hacia abajo. Cuando esté alineado, asegúralo con el vástago del soporte.
Figura 11: Instalación del DUT
Para la iluminación, conecta el cable de iluminación de la estructura base a uno de los siguientes elementos:
- Fuente de alimentación de 12 V
Figura 12: Luz conectada a una fuente de alimentación de 12 V.
- Controlador de iluminación (es posible que se necesite un adaptador)
Figura 13: Luz conectada al controlador de iluminación.
Cuando hayas completado la configuración del soporte base modular, configura el host y el entorno de prueba (Set up CTS). Para el archivo config.yml, usa la siguiente configuración:
chart\_distance= 22lighting\_ch= [canal del controlador conectado] o déjalo como está si no usas un controlador de iluminación.
Configuración del soporte de extensión Flexi-Tele
Si compraste la estructura base modular antes de marzo de 2026, es posible que debas realizar una pequeña adaptación para que funcione con la extensión flexi-tele. Esta modificación soluciona el problema de la placa frontal que bloquea el campo visual de la cámara de teleobjetivo del DUT y también se puede usar con el soporte de extensión de teleobjetivo de longitud fija.
Sigue estos pasos para adaptar el soporte base modular.
Quita los cuatro tornillos de la parte superior de la estructura que sujetan la placa frontal, así como los cuatro tornillos de la parte inferior.
Figura 14: Tornillos en el soporte que sostienen la placa frontal.
(Opcional) Atornilla o pega la placa de soporte del teléfono a la placa frontal de modo que las placas se salgan juntas.
Figura 15: Tornillos para la placa de soporte del teléfono y la placa frontal
(Opcional) Si tu estructura tiene un cable de alimentación de luz de abajo hacia arriba conectado a la placa frontal, reubícalo hacia el costado con cinta aislante o abrazaderas.
Figura 16: El cable de alimentación de la luz de arriba hacia abajo se reubicó en el lateral.
Conecta la estructura de soporte modular a la estructura de soporte de extensión flexible.
Video de demostración
Este es un video en el que se muestra cómo configurar el soporte de extensión flexi-tele:
Configuración de soporte de extensión telescópica de longitud fija
Sigue estos pasos para configurar el soporte opcional para el teleobjetivo.
Compra el soporte base modular y el soporte de extensión para el teléfono con un proveedor calificado. La estructura se puede construir con los archivos de producción, pero no se recomienda porque el corte y el ensamblaje deben ser precisos para garantizar que la estructura de extensión no tenga problemas de ajuste.
Asegúrate de tener una estructura base modular que funcione y una estructura de extensión de tele (como se muestra en la figura 13).
Figura 17: Base modular con extensión de tele.
Quita el panel de soporte del teléfono quitando los 6 tornillos de nailon con la mano (3 de cada lado).
Figura 18: Quita los 6 tornillos de nailon del área destacada con la mano.
Coloca la estructura base y la estructura de extensión del teléfono en la superficie donde se realizarán las pruebas. Para evitar que se ejerza presión sobre los puntos de montaje, no recomendamos mover la estructura ensamblada.
Coloca el soporte de extensión de modo que las 6 ranuras de la lengüeta del soporte de extensión se alineen con los 6 orificios del soporte base.
Figura 19: Alinea las ranuras con los orificios.
Instala los 6 tornillos para fijar la estructura de extensión a la estructura base. Mientras instalas los tornillos, empuja suavemente los 2 soportes para asegurarte de que no haya espacios por los que se filtre la luz (pídele ayuda a un compañero si es necesario). Ajusta los tornillos con la mano.
Figura 20: Cómo conectar la base y los soportes de extensión
Configura la apertura (o cortina) y coloca los soportes para teléfonos y los DUT como se describe en Configuración de la estructura base.
Figura 21: Cómo colocar los soportes del teléfono y el DUT
Cuando hayas completado la configuración del soporte de extensión, configura el host y el entorno de prueba (Set up CTS). Para el archivo config.yml, usa la siguiente configuración:
chart_distance= [distancia total desde el DUT hasta la tablet]lighting_ch= [canal de control conectado] o déjalo como está si no usas un controlador de iluminación.
Cómo desinstalar la estructura de la extensión
Para desinstalar la estructura de soporte de la extensión, sigue los pasos de instalación en orden inverso. Cuando instales el panel de soporte de la tablet, presiónalo contra la estructura base para asegurarte de que no haya espacios por los que se filtre la luz (como se muestra en la Figura 17). Ajusta los tornillos con la mano.
Figura 22: Presiona el panel de soporte de la tablet contra la estructura de soporte.
Preguntas frecuentes
¿Por qué se recorta la escena en un equipo de tele?
Figura 23: La escena se recorta con la placa del teléfono en el soporte base.
Esto sucede cuando la placa del teléfono bloquea el campo de visión de un teleobjetivo entre la estructura base y la extensión del teleobjetivo. Asegúrate de quitar la placa del teléfono con un destornillador antes de continuar con la prueba.
Figura 24: Cómo quitar la placa del teléfono de la estructura base
¿Por qué las luces se ven tenues o por qué aparece un error de validación de iluminación cuando se ejecuta ITS?
Este error se activa cuando la iluminación del equipo se atenúa, lo que puede deberse a la degradación de la fuente de alimentación y los LED por el uso o el paso del tiempo, o a una fuente de alimentación defectuosa. Para resolver este problema, sigue estos pasos:
Asegúrate de que la iluminación funcione correctamente:
- Reemplaza la fuente de alimentación (12 voltios con certificación UL, 2 A como mínimo).
- Reemplaza el LED (consulta la lista de materiales o comunícate con el proveedor para obtener más información).
Para asegurarte de que el lux de las luces LED esté en el nivel adecuado (100 a 300), prueba el lux con un medidor digital. (En este ejemplo, se usa el luxómetro YF-1065 de Contempo Views). Coloca el medidor de luz en el lado de la tablet y gíralo hasta 2,000 lux para medir la luz (como se muestra en la Figura 21).
Figura 25: YF-1065 de Contempo Views.
Figura 26: Luxómetro que mide la luz desde un costado con el soporte para tablet.
Según el valor de lux medido, sigue el paso correspondiente:
- Si la luz está en el nivel correcto, atornilla las placas delantera y trasera en el cordón.
- Si la luz no tiene el nivel correcto, verifica que el número de pieza de la fuente de alimentación y el LED sean correctos.
Aspectos que se deben tener en cuenta
A continuación, se muestran ejemplos de errores de fabricación comunes que pueden hacer que las pruebas sean poco confiables.
Panel posterior con orificios para la tablet. Esto hace que la prueba
find_circlefalle debido a los círculos adicionales creados por los orificios de los tornillos.
Figura 27: Panel posterior con orificios.
Faltan las clavijas. Esto hace que los deflectores de luz se salgan durante el envío.
Figura 28: Falta una clavija en el deflector de luz.
Fuente de alimentación que no está en la lista de UL. Usar una fuente de alimentación con certificación UL que cumpla con las especificaciones indicadas Esto es importante para operar la iluminación de forma segura.
Figura 29: Ejemplo de una fuente de alimentación con certificación de UL.
Tornillos que se deslizan en el soporte para tablet o teléfono y que no pueden soportar el peso de una tablet o un teléfono Por lo general, esto se debe a que las roscas están dañadas y significa que se debe volver a roscar el orificio.
Figura 30: Orificio con roscas dañadas