Acquistare e configurare un sistema di rig modulare

Il sistema di rig modulare supporta l'automazione dei test ITS ed è costituito da una scatola di plastica tagliata con controllo numerico computerizzato (CNC) da disegni di progettazione assistita da computer (CAD), un tablet grafico e un dispositivo in fase di test (DUT). Il sistema di rig modulare è composto da un rig di base e da un rig di estensione tele facoltativo. Il rig di base modulare ha una distanza del grafico di 22 cm e può testare le fotocamere dei dispositivi mobili con un campo visivo da 60 a 120 gradi. Il rig di base può eseguire test ruotati di 90 gradi con il DUT in alto (mostrato nella Figura 2).

Il rig di estensione tele supporta le videocamere di prova con una lunga distanza minima di messa a fuoco (telecamere). Il rig di estensione del teleobiettivo è avvitato al rig di base e la lunghezza può essere personalizzata in base ai requisiti di test della videocamera al momento dell'acquisto tramite i fornitori qualificati. La fotocamera ITS supporta distanze del grafico fino a 100 cm.

Base modulare Rev1.2

Figura 1. Rig modulare di base.

Modulare rev1.2 90deg

Figura 2. La base modulare è stata ruotata di 90 gradi.

Cronologia revisioni

La tabella seguente descrive la cronologia delle revisioni del sistema di rig modulare e include i link di download a ogni versione dei file di produzione.

Data Revisione Download del file di produzione Log delle modifiche
Settembre 2024 1,2 Modular base rig rev1.2
  • (Settembre 2024) Include correzioni per un errore del file di produzione
  • (Luglio 2024) Release iniziale

Acquistare un sistema di rig modulare

Ti consigliamo di acquistare il sistema di rig modulare, il rig di estensione telescopica opzionale e gli accessori da uno dei seguenti fornitori qualificati.

  • Byte Bridge Inc.
    USA: 1502 Crocker Ave, Hayward, CA 94544-7037
    Cina: 22F #06-08, Hongwell International Plaza Tower A, 1600 West Zhongshan Road, Xuhui, Shanghai, 200235
    www.bytebt.com
    androidpartner@bytebt.com
    USA: +1-510-373-8899
    Cina: +86-400-8866-490

  • JFT CO LTD 捷富通科技有限公司 (precedentemente nota come MYWAY DESIGN)
    Cina: No. 40, Lane 22, Heai Road, Wujing Town, Minhang District, Shanghai, Cina
    Taiwan: 4F., N. 163, Fu-Ying Road, XinZhuang District, New Taipei City 242, Taiwan
    www.jftcoltd.com
    service@jfttec.com o its.sales@jfttec.com
    Cina:+86-021-64909136
    Taiwan: 886-2-29089060

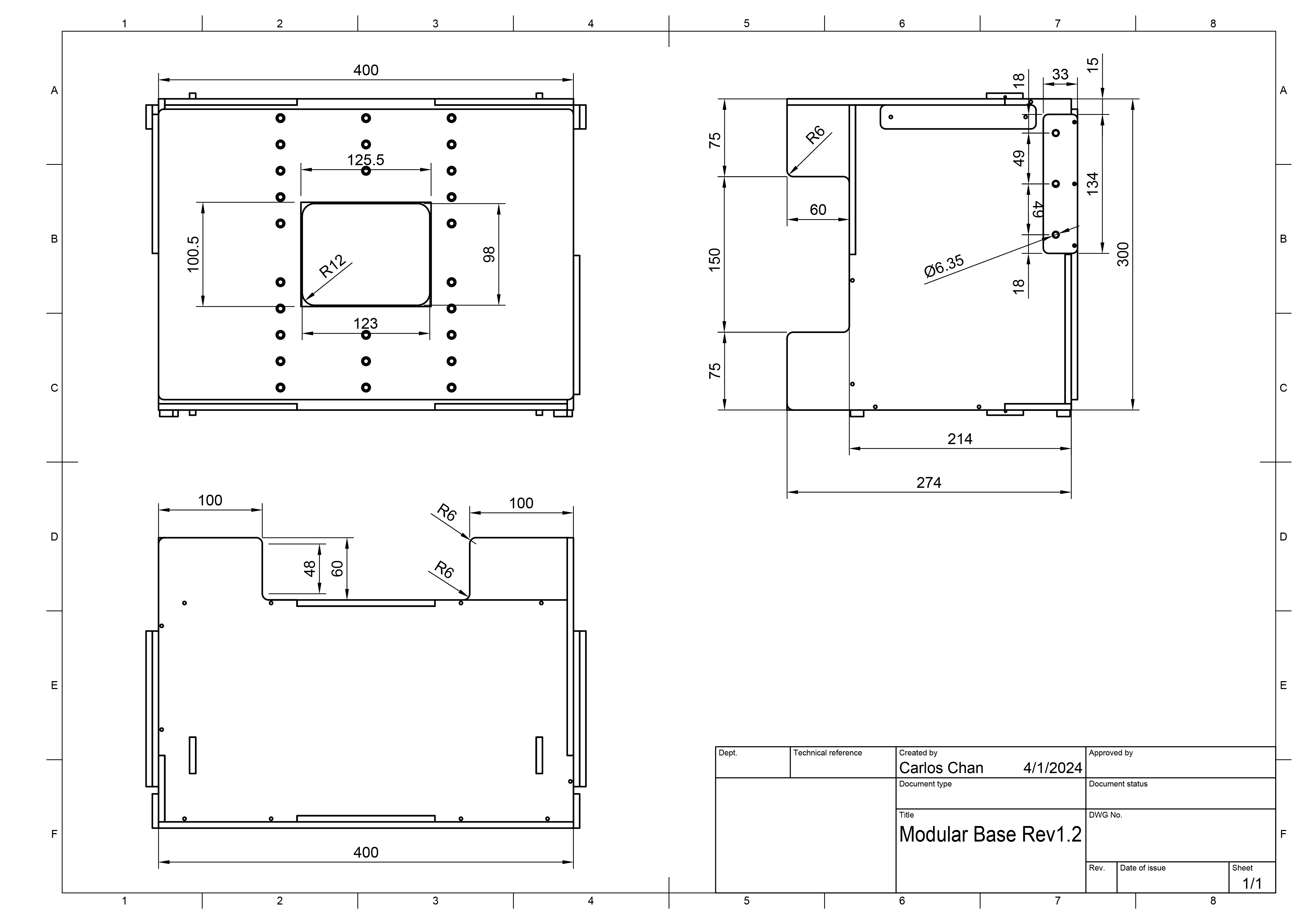
Disegni meccanici

Di seguito è riportato un disegno meccanico del rig di base modulare.

Disegno CAD della base modulare

Figura 3. Disegno meccanico del rig modulare di base

Configurazione della base di appoggio

Segui questi passaggi per configurare un rig modulare di base.

  1. Acquista un sistema di rig modulare da un fornitore qualificato.

  2. Assicurati di avere tutti i componenti nella tabella seguente (elementi mostrati nella Figura 4).

    Componente Quantità
    Supporto modulare di base 1
    Staffa di montaggio per smartphone 2
    Staffa di montaggio del tablet 1
    Alimentatore 12 V (elencato da UL, 1 A minimo) 1
    Apertura 1

    Articoli della base modulare Rev1.2

    Figura 4. Componenti modulari della base di montaggio.

  3. A seconda della configurazione, assicurati di avere gli accessori necessari nella tabella seguente (mostrata nella Figura 5). Questi accessori possono essere acquistati da un fornitore qualificato.

    Articolo Quantità
    Controller di illuminazione (può controllare fino a 3 impianti) 1
    Alimentatore da 5 V per il controller dell'illuminazione 1
    Cavo coassiale CC che collega l'illuminazione al rig modulare di base 1
    Adattatore per cavo cilindrico CC (da 5,5 mm x 2,1 mm a 3,5 mm x 1,35 mm) 1
    Cavo da USB-A a USB 1
    Kit pieghevole (se il DUT è un dispositivo pieghevole) 1

    Elementi opzionali modulari

    Figura 5. Elementi opzionali per il rig modulare di base.

  4. Assicurati che non ci siano perdite di luce eseguendo una delle seguenti operazioni:

    1. Crea un'apertura adatta al modulo della videocamera del DUT e assicurati che non ci siano perdite di luce (come mostrato nella Figura 6). Le aperture possono essere tagliate dai pannelli di schiuma forniti o configurate da un fornitore qualificato. Per un corretto orientamento della figura, i DUT con la fotocamera posteriore rivolta verso il rig vengono ruotati di 90° in senso antiorario e i DUT con la fotocamera anteriore rivolta verso il rig vengono ruotati di 90° in senso orario. Assicurati che le aperture siano configurate di conseguenza.

      Posizionamento dell'apertura modulare Taglio modulare dell'apertura

      Figura 6. Crea aperture per evitare la fuoriuscita di luce.

    2. Utilizza un drappo scuro per coprire il rig per evitare perdite di luce, non sono necessari aperture. (mostrato nella Figura 7).

      Modular Drapery

      Figura 7. Evitare la fuoriuscita di luce utilizzando un drappo.

  5. Installa un supporto per smartphone standard o pieghevole sul pannello di montaggio anteriore dello smartphone a un'altezza adeguata utilizzando un bullone e un dado in nylon come mostrato nella Figura 8.

    Installazione di apertura e supporto modulari

    Figura 8. Installazione dell'apertura e del supporto per lo smartphone.

  6. Installa il supporto per il tablet sul pannello di montaggio del tablet a un'altezza appropriata utilizzando un bullone e un dado in nylon.

  7. Monta il tablet del display e collegalo all'host come mostrato nella Figura 9. Fissa il tablet con un ventosa.

    Installazione del tablet modulare

    Figura 9. Installazione del tablet.

  8. Per semplificare l'utilizzo sullo schermo, configura il DUT prima di montarlo.

  9. Monta il DUT e connettilo all'host.

  10. Allinea il DUT in modo che il centro del modulo della videocamera sia allineato (o molto vicino) al centro del tablet. Per regolare l'altezza, allenta i bulloni di montaggio dello smartphone e fai scorrere il supporto verso l'alto o verso il basso. Una volta allineato, fissa il dispositivo in test con il perno di montaggio.

    Installazione DUT modulare

    Figura 10. Installazione del DUT.

  11. Per l'illuminazione, collega il cavo di illuminazione del rig di base a uno dei seguenti elementi:

    1. Alimentatore da 12 V

      Connessione modulare a 12 V

      Figura 11. Luce collegata all'alimentatore da 12 V.

    2. Controller luci (potrebbe essere necessario un adattatore)

      Collegamento del controller modulare

      Figura 12. Luce collegata al controller dell'illuminazione.

Dopo aver completato la configurazione del rig di base modulare, configura l'host e l'ambiente di test (Configura CTS). Per il file config.yml, utilizza la seguente configurazione:

  • chart\_distance = 22
  • lighting\_ch = [canale del controller connesso] o lascia invariato se non utilizzi un controller di illuminazione.

Configurazione del rig di estensione del telescopio

Segui questi passaggi per configurare il rig di estensione tele opzionale.

  1. Acquista il rig di base modulare e il rig di estensione tele da un fornitore qualificato. Il rig può essere costruito utilizzando i file di produzione, ma questa operazione non è consigliata perché il taglio e l'assemblaggio devono essere precisi per garantire che il rig di estensione non abbia problemi di adattamento.

  2. Assicurati di avere un rig modulare funzionante e un rig di estensione tele (come mostrato nella figura 13).

    Modular tele

    Figura 13. Supporto modulare con estensione telescopica.

  3. Rimuovi il pannello di montaggio dello smartphone rimuovendo a mano 6 bulloni in nylon (3 su ogni lato).

    Evidenziazione del bullone modulare Rimozione del bullone modulare Modular front plate off

    Figura 14. Rimozione manuale di 6 bulloni in nylon nell'area evidenziata.

  4. Posiziona il rig di base e il rig di estensione tele sulla superficie su cui vengono eseguiti i test. Per evitare sollecitazioni ai punti di montaggio, non consigliamo di spostare il rig assemblato.

  5. Posiziona il supporto di estensione in modo che le 6 fessure della linguetta del supporto di estensione siano allineate ai 6 fori del supporto di base.

    Scheda di allineamento modulare

    Figura 15. Allineamento delle fessure con i fori.

  6. Collega il supporto di estensione al supporto di base installando i 6 bulloni. Durante l'installazione delle viti, spingi delicatamente i due supporti l'uno contro l'altro per assicurarti che non ci siano spazi per le infiltrazioni di luce (chiedi aiuto a un collega se necessario). Stringi i bulloni a mano.

    Modular push together

    Figura 16. Collegamento di rig di base ed estensioni.

  7. Configura l'apertura (o il drappeggio) e installa i supporti per smartphone e i DUT come descritto in Configurazione del rig di base.

    Scheda di allineamento modulare

    Figura 17. Collegamento dei supporti per smartphone e del DUT.

Dopo aver completato la configurazione del rig di estensione, configura l'host e l'ambiente di test (Configura CTS). Per il file config.yml, utilizza la seguente configurazione:

  • chart_distance = [total distance from DUT to tablet]
  • lighting_ch = [connected control channel], or leave as is if not not using a lighting controller.

Disinstallare il rig dell'estensione

Per disinstallare il rig di estensione, segui i passaggi di installazione al contrario. Quando installi il pannello di montaggio del tablet, spingilo contro la base per assicurarti che non ci siano spazi per le dispersioni di luce (come mostrato nella Figura 17). Stringi i bulloni a mano.

Modular push together

Figura 18. Spingere il pannello di montaggio del tablet contro il supporto di base.

Domande frequenti

Perché la scena viene ritagliata in un teleobiettivo?

Ritagliare il rig modulare

Figura 19. Scena ritagliata dalla piastra dello smartphone nel rig di base.

Ciò si verifica quando il campo visivo di un teleobiettivo è bloccato dalla piastra dello smartphone tra il rig di base e l'estensione del teleobiettivo. Prima di procedere con il test, assicurati di rimuovere la piastra dello smartphone con un cacciavite.

Piastra modulare del telefono rimossa

Figura 20. Rimozione della piastra per lo smartphone nel supporto di base.

Perché le luci appaiono fioche o perché viene visualizzato un errore di convalida dell'illuminazione quando viene eseguito ITS?

Questo errore si verifica quando l'illuminazione del rig si attenua, il che può essere causato dall'alimentazione e dal degrado dei LED dovuto all'età o all'utilizzo oppure da un alimentatore difettoso. Per risolvere il problema, procedi nel seguente modo:

  1. Assicurati che l'illuminazione funzioni correttamente:

    • Sostituisci l'alimentatore (12 volt con certificazione UL, min. 2 amp).
    • Sostituisci il LED (fai riferimento alla distinta materiali o contatta il fornitore per maggiori informazioni).
  2. Per assicurarti che il lux delle luci LED sia al livello appropriato (100-300), testa il lux utilizzando un misuratore digitale. (In questo esempio viene utilizzato il luxmetro YF-1065 di Contempo Views.) Posiziona il luxmetro sul lato del tablet e impostalo su 2000 lux per misurare la luce (mostrato nella Figura 21).

    YF-1065 di Contempo Views

    Figura 21. YF-1065 di Contempo Views.

    Luxmetro

    Figura 22. Luxmetro che misura la luce lateralmente con il supporto per il tablet.

  3. A seconda del valore di lux misurato, segui il passaggio appropriato:

    • Se la luce è al livello corretto, avvita le piastre anteriore e posteriore nel laccio.
    • Se la luce non è al livello corretto, verifica che il numero di parte dell'alimentatore e del LED sia corretto.

Aspetti a cui prestare attenzione

Di seguito sono riportati alcuni esempi di errori di produzione comuni che possono rendere i test instabili.

  • Pannello posteriore con fori per il tablet. In questo modo, il test find_circle non riesce a causa dei cerchi aggiuntivi creati dai fori per le viti.

    Pannello posteriore con fori

    Figura 23. Pannello posteriore con fori.

  • Tasselli mancanti. In questo modo, i deflettori della luce scivolano fuori durante la spedizione.

    Spina mancante

    Figura 24. Spina mancante sul deflettore della luce.

  • Alimentatore non certificato UL. L'utilizzo di un alimentatore conforme allo standard UL soddisfa le specifiche indicate. Questo è importante per il funzionamento sicuro dell'illuminazione.

    Alimentatore elencato da UL

    Figura 25. Esempio di alimentatore elencato da UL.

  • Viti allentate sul supporto per tablet o smartphone che non riescono a sostenere il peso di un tablet o uno smartphone. Di solito questo problema è causato da filettature danneggiate e indica che il foro deve essere rifilettato.

    Foro con filettatura danneggiata

    Figura 26. Foro con filettatura danneggiata.