モジュラーリグ システムは ITS テストの自動化をサポートしており、CAD(コンピュータ支援設計)の図面からコンピュータ数値制御(CNC)装置で切り出されたプラスチック製の箱、チャート用タブレット、テスト対象デバイス(DUT)で構成されています。モジュラーリグ システムには、ベースリグとオプションの望遠拡張リグがあります。モジュラー ベースリグのチャート距離は 22 cm で、FoV が 60 度から 120 度のモバイル デバイスのカメラをテストできます。ベースリグは、DUT を上に載せて 90 度回転させた状態でテストできます(図 2 を参照)。
望遠拡張リグは、最小焦点距離が長いカメラ(望遠カメラ)のテストに対応します。望遠拡張リグは、ベースリグにボルトで固定され、認定ベンダーから購入した場合、カメラのテストの基づいて長さをカスタマイズできます。カメラ ITS のチャート距離は最大 100cm です。
図 1. モジュラー ベースリグ。
図 2. 90 度回転させた状態のモジュラー ベースリグ。
変更履歴
次の表に、モジュラーリグ システムの改訂履歴と各バージョンのプロダクション ファイルをダウンロードできるリンクを示します。
| 日付 | リビジョン | プロダクション ファイルのダウンロード | 変更ログ |
|---|---|---|---|
| 2024 年 9 月 | 1.2 | モジュラー ベースリグ rev1.2 |
|
モジュラーリグ システムを購入する
モジュラーリグ システム、オプションの望遠拡張リグ、および付属品は、次のいずれかの認定ベンダーから購入することをおすすめします。
Byte Bridge Inc.
USA: 1502 Crocker Ave, Hayward, CA 94544-7037
China: 22F #06-08, Hongwell International Plaza Tower A, 1600 West Zhongshan Road, Xuhui, Shanghai, 200235
www.bytebt.com
androidpartner@bytebt.com
USA: +1-510-373-8899
China: +86-400-8866-490JFT CO LTD 捷富通科技有限公司(旧社名: MYWAY DESIGN)
China: No. 40, Lane 22, Heai Road, Wujing Town, Minhang District, Shanghai, China
Taiwan: 4F., No. 163, Fu-Ying Road, XinZhuang District, New Taipei City 242, Taiwan
www.jftcoltd.com
service@jfttec.com or its.sales@jfttec.com
China: +86-021-64909136
Taiwan: 886-2-29089060
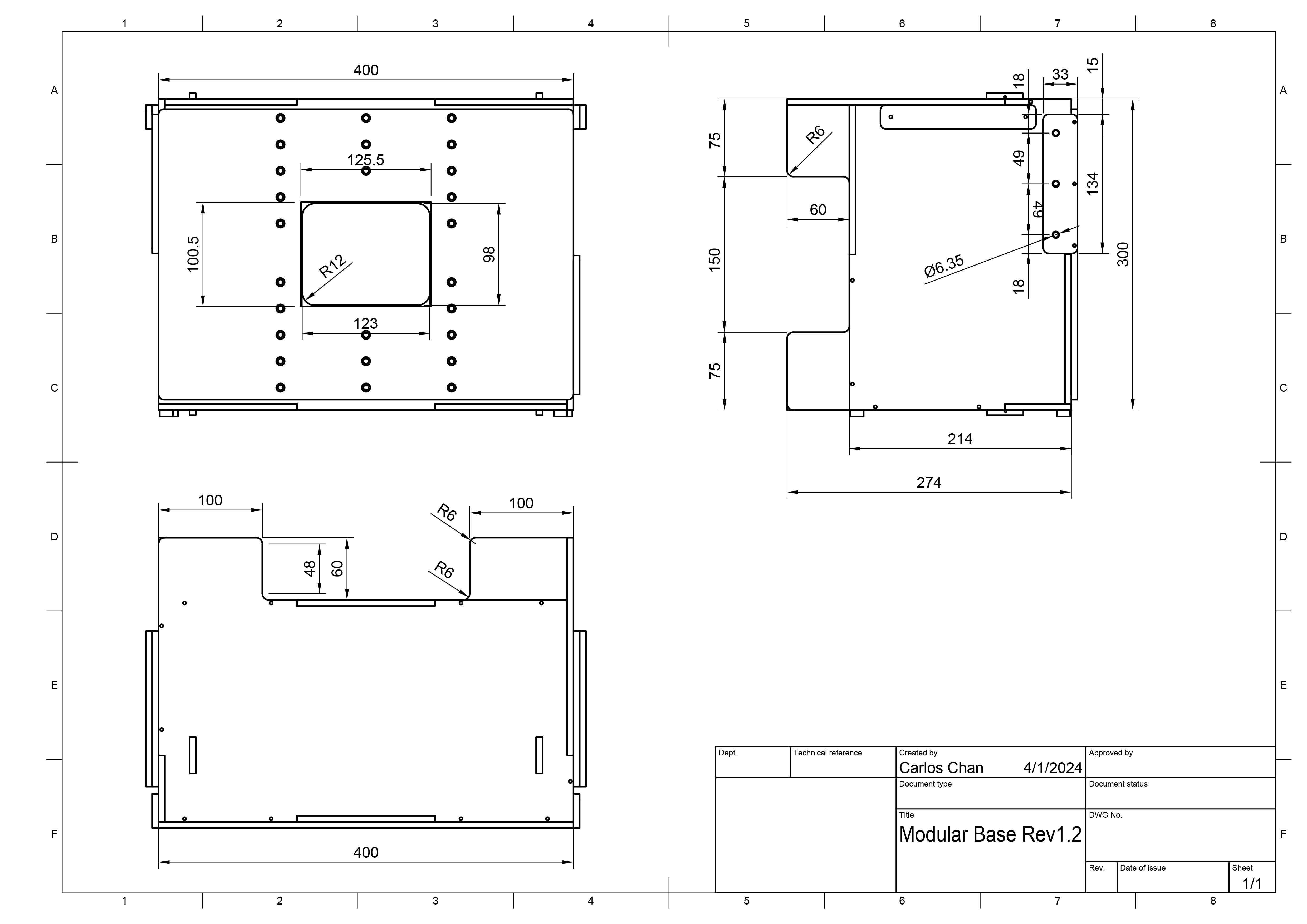
機械製図
以下はモジュラー ベースリグの機械製図です。
図 3. モジュラー ベースリグの機械製図
ベースリグのセットアップ
モジュラー ベースリグをセットアップする手順は次のとおりです。
認定ベンダーからモジュラーリグ システムを購入します。
次の表に記載されているすべてのコンポーネント(図 4 を参照)が揃っていることを確認します。
コンポーネント 数量 モジュラー ベースリグ 1 スマートフォン装着ブラケット 2 タブレット装着ブラケット 1 12V 電源(UL リステッド、最小 1A) 1 絞り 1
図 4. モジュラー ベースリグのコンポーネント。
セットアップに応じて、次の表に記載されている必要な付属品(図 5 を参照)が揃っていることを確認します。これらの付属品は、認定ベンダーから購入できます。
アイテム 数量 照明コントローラ(最大 3 台のリグを制御可能) 1 照明コントローラ用 5V 電源 1 照明をモジュラー ベースリグに接続する DC バレルケーブル 1 DC バレルケーブル アダプター(5.5mm x 2.1mm - 3.5mm x 1.35mm) 1 USB A - USB ケーブル 1 折りたたみ式用キット(DUT が折りたたみ式デバイスの場合) 1
図 5. モジュラー ベースリグのオプション アイテム。
次のいずれかを実行して、光が漏れないようにします。
DUT のカメラ モジュールに合わせて開口部を作り、光が漏れないようにします(図 6 を参照)。認定ベンダーによって提供または構成された発泡スチロールのボードをカットして開口部を作ることができます。適切な向きにするため、DUT の背面カメラがリグに向いている場合は反時計回りに 90 度回転させ、DUT の前面カメラがリグに向いている場合は時計回りに 90 度回転させます。開口部が適切に設定されていることを確認してください。
図 6. 光漏れを防ぐための開口部を作ります。
光漏れを防ぐためにリグを暗幕で覆う場合は、開口部は必要ありません(図 7 を参照)。
図 7. 暗幕を使って光が漏れないようにします。
図 8 のとおり、ナイロン樹脂製のボルトとナットを使用して、標準のスマートフォン装着ブラケットまたは折りたたみ式のスマートフォン装着ブラケットをスマートフォン装着パネル前面の適切な高さに取り付けます。
図 8. モジュラー開口部とスマートフォン装着ブラケットの取り付け。
ナイロン樹脂製のボルトとナットを使用して、タブレット装着ブラケットをタブレット装着パネルの適切な高さに取り付けます。
図 9 のとおり、ディスプレイ タブレットを取り付け、タブレットをホストに接続します。プランジャーでタブレットを固定します。
図 9. タブレットの取り付け。
DUT の画面を操作しやすいように、DUT を取り付ける前にセットアップします。
DUT を取り付け、ホストに接続します。
カメラ モジュールの中心がタブレットの中心と揃うように(または非常に近くなるように)DUT を配置します。高さを調整するには、スマートフォン装着ボルトを緩め、装着ブラケットを上か下にスライドします。位置を合わせたら、装着プランジャーで DUT を固定します。
図 10. DUT の取り付け。
照明用に、ベースリグの照明ケーブルを次のいずれかに接続します。
12V 電源
図 11. 12V 電源に接続されている照明。
照明コントローラ(アダプターが必要となる場合があります)
図 12. 照明コントローラに接続された照明。
モジュラー ベースリグのセットアップが完了したら、ホストとテスト環境をセットアップします(CTS をセットアップします)。config.yml ファイルの場合は、次のように設定します。
chart\_distance= 22lighting\_ch= [接続されたコントローラ チャネル]。照明コントローラを使用しない場合はそのままにします。
望遠拡張リグのセットアップ
オプションの望遠拡張リグをセットアップする手順は次のとおりです。
モジュラー ベースリグと望遠拡張リグは、認定ベンダーから購入してください。リグはプロダクション ファイルを使用して構築できますが、切断と組み立てを正確に行わないと拡張リグが適切に合わないため、おすすめできません。
正常に機能するモジュラー ベースリグと望遠拡張リグがあることを確認します(図 13 を参照)。
図 13. 望遠拡張リグを付けたモジュラー ベースリグ。
ナイロン樹脂製のボルト 6 本(両側に 3 本ずつ)を手で取り外し、スマートフォン装着パネルを外します。
図 14. ハイライト表示されている部分の 6 本のナイロン樹脂製ボルトを手で取り外します。
テストを実施する場所の表面にベースリグと望遠拡張リグを配置します。装着ポイントに負荷がかかるため、組み立てたリグを動かすことはおすすめしません。
拡張リグのタブにある 6 つのスロットがベースリグの 6 つの穴と合うように、拡張リグを配置します。
図 15. スロットを穴に合わせます。
6 本のボルトを付けて、拡張リグをベースリグに取り付けます。ねじを取り付ける際は、2 つのリグをゆっくり押して合わせ、光が漏れる隙間がないことを確認します(必要に応じて同僚にサポートしてもらってください)。ボルトを手で締めます。
図 16. ベースリグと拡張リグを接続します。
ベースリグのセットアップに記載されているように、開口部(または暗幕)を用意し、スマートフォン装着ブラケットと DUT を取り付けます。
図 17. スマートフォン装着ブラケットと DUT を取り付けます。
拡張リグのセットアップが完了したら、ホストとテスト環境をセットアップします(CTS をセットアップします)。config.yml ファイルの場合は、次のように設定します。
chart_distance= [DUT からタブレットまでの合計距離]lighting_ch= [接続されたコントローラ チャネル]。照明コントローラを使用しない場合はそのままにします。
拡張リグを取り外す
拡張リグを取り外すには、取り付け手順を逆の順に実行します。タブレット装着パネルを取り付ける際は、パネルをベースリグに押し当てて、光が漏れる隙間がないようにします(図 17 を参照)。ボルトを手で締めます。
図 18. タブレット装着パネルをベースリグに押し当てます。
よくある質問(FAQ)
ITS の実行時に照明が薄暗く見えたり、照明の検証エラーが表示されたりするのはなぜですか?
このエラーは、リグにある照明が暗くなったときに発生します。これは、使用年数による電源や LED の劣化、または電源不良が原因の可能性があります。この問題を解決する方法は次のとおりです。
照明が正しく機能していることを確認します。
- 電源を交換します(UL リステッド 12 ボルト、最小 2 A)。
- LED を交換します(詳細については、BOM を参照するか、ベンダーにお問い合わせください)。
LED ライトの照度が適切なレベル(100~130)にあることを確認するには、デジタル計器を使用してテストします(この例では、Contempo Views の YF-1065 照度計を使用しています)。照度計をタブレット側に置き、測定する照度を 2,000 ルクスに設定します(図 20 を参照)。
図 19. YF-1065(Contempo Views)。
図 20. タブレットが装着された側面から光を測定する照度計
計測された照度値に応じて次の手順を実行します。
- 照度が正しいレベルの場合は、前面プレートと背面プレートをねじで固定します。
- 照度が正しいレベルでない場合は、LED と電源装置の部品番号が正しいことを確認します。
注意点
テストを不安定にする一般的な製造不良の例を次に示します。
背面パネルのタブレット穴が貫通している。ねじ穴によって余計な円ができるため、
find_circleテストで失敗します。
図 21. 穴があいている背面パネル
ダボがない。配送中にライトバッフルが滑り落ちます。
図 22. ライトバッフルにダボがない。
UL リステッド電源でない。UL リステッド電源の使用により、表示の仕様が満たされます。照明を安全に使用するために重要です。
図 23. UL リステッド電源の例。
タブレット装着ブラケットやスマートフォン装着ブラケットを固定しているねじが緩く、タブレットやスマートフォンの重さを支えられない。通常、ねじ山の破損が原因で、ねじ穴のねじ山を作り直す必要があります。
図 24. ねじ山が破損したねじ穴。