일반 시야(RFoV) ITS-in-a-box(버전 1a)는 컴퓨터 지원 설계(CAD) 도면을 통해 레이저 절단한 플라스틱 상자, 차트 태블릿 및 테스트 대상 기기(DUT)로 구성됩니다. RFoV ITS-in-a-box는 FoV가 90도 미만(RFoV)인 기기를 테스트하도록 설계되었습니다. ITS-in-a-box는 구매하거나 직접 제작할 수 있습니다.
RFOV ITS-in-a-box rev1b 버전은 모듈식 구성요소를 지원하고 망원 확장 장비와 호환됩니다.
그림 1. 일반 시야(RFoV) ITS 상자 Rev1b
업데이트 기록
다음 표에는 일반 시야 상자의 업데이트 기록이 설명되어 있으며 프로덕션 파일의 각 버전에 대한 다운로드 링크가 포함되어 있습니다.
| 날짜 | 버전 | 프로덕션 파일 다운로드 | 변경 로그 |
|---|---|---|---|
| 2024년 9월 | 1b | 버전 1b 프로덕션 파일 |
|
| 2019년 5월 | 1a | 버전 1a 프로덕션 파일 |
|
RFoV ITS-in-a-box 구매하기
RFoV ITS-in-a-box(버전 1a)는 다음 공인 공급업체에서 구매하는 것이 좋습니다.
Byte Bridge Inc.
미국: 1502 Crocker Ave, Hayward, CA 94544-7037
중국: 22F #06-08, Hongwell International Plaza Tower A, 1600 West Zhongshan Road, Xuhui, Shanghai, 200235
www.bytebt.com
androidpartner@bytebt.com
미국: +1-510-373-8899
중국: +86-400-8866-490JFT CO LTD 捷富通科技有限公司 (이전 명칭 MYWAY DESIGN)
No. 40, Lane 22, Heai Road, Wujing Town, Minhang District, Shanghai, China
4F., No. 163, Fu-Ying Road, XinZhuang District, New Taipei City 242, Taiwan
www.jftcoltd.com
service@jfttec.com or its.sales@jfttec.com
중국: +86-021-64909136
타이완: 886-2-29089060
동영상 튜토리얼
다음은 RFoV ITS-in-a-box를 설정하는 방법에 관한 동영상 튜토리얼입니다.
RFoV ITS-in-a-box 제작하기
RFoV ITS-in-a-box를 구매하는 대신 직접 제작할 수 있습니다. 이 섹션에서는 조립에 관한 자세한 안내를 제공합니다.
기계 도면
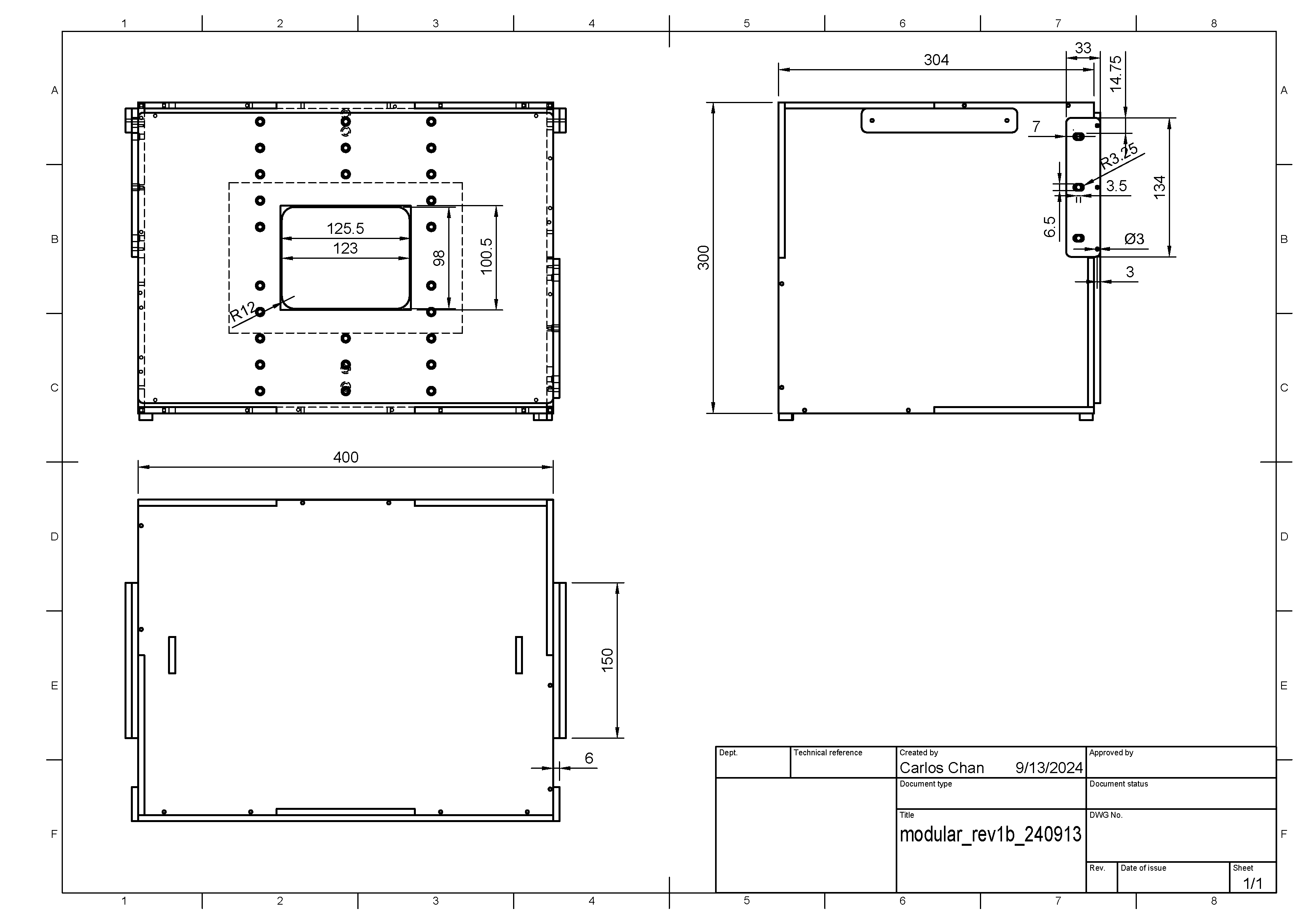
ITS-in-a-box는 DUT, 차트 태블릿, 내부 조명 시스템, CAD 도면을 통해 레이저 절단한 플라스틱 상자로 구성됩니다(그림 1 참고).
시작하려면 최신 프로덕션 파일을 다운로드하세요.
그림 2. ITS-in-a-box 기계 도면
자재 명세서(BOM)의 하드웨어를 구매합니다. 플라스틱 및 비닐 조각을 자릅니다.
필수 도구
다음 도구를 준비합니다.
- Torx 헤드 스크루드라이버
- 전동 드릴
- ABS 접착제
- 니들 노즈 플라이어
- X-ACTO 칼
- 와이어 절단기 또는 가위(선택사항)
1단계: 비닐 부착 및 받침대 접착
ABS(아크릴로니트릴 부타디엔 스티렌) 재질의 매끄러운 면에 컬러 비닐을 부착하고 그림 3, 4와 같이 필요한 개구부를 잘라냅니다. 상자의 태블릿 쪽에 큰 직사각형 개구부가 있는 흰색 비닐을 부착하고 상자의 휴대기기 쪽에 원형 개구부가 있는 검은색 비닐을 부착합니다. 그림 4와 같이 측면 패널에 회색 비닐을 부착하고 그림 5와 같이 하단 패널의 네 모서리에 받침대를 접착제로 붙입니다. 자세한 내용은 wikiHow를 참고하세요.
그림 3. 전면 패널의 검은색 비닐(왼쪽) 및 후면 패널의 흰색 비닐(오른쪽)
그림 4. 측면 패널의 회색 비닐
그림 5. 하단 패널 네 모서리의 받침대
2단계: 조명
ITS-in-a-box 조명 구성요소를 조립하려면 다음 단계를 따르세요.
그림 6과 같이 조명 하드웨어를 준비합니다.
그림 6. 조명 조립 부품
하드웨어에는 LED 조명 키트에 포함된 LED 조명 바, 플라스틱 조명 배플, 플라스틱 조명 마운트, 플라스틱 또는 금속 조명 클립 및 도토리 헤드 너트가 있는 4개의 6-32 나사가 포함됩니다.
그림 7과 같이 플라스틱 배플에 조명 클립을 볼트로 고정합니다. 배플의 반대편에 도토리 너트를 사용하여 클립을 고정합니다.
그림 7. 조명 클립을 부착한 플라스틱 배플
조명을 조립하려면 라이트 클립을 사용하여 LED 라이트 바의 뒷면에 플라스틱 배플을 연결합니다.
그림 8. 조명이 아래로 향하며 나사가 클립을 통해 끼워져 있는 조명 바
조명 구성요소를 조립할 때 LED 라이트 바가 아래로 향해야 하며 플라스틱 배플이 LED 라이트 바 뒷면의 반짝이는 반사면을 가려야 합니다.
3단계: 스마트폰 마운트
스마트폰 마운트를 조립하려면 다음 단계를 따르세요.
그림 9와 같이 필요한 부품을 준비합니다.
그림 9. 스마트폰 마운트 부품
하드웨어에는 금속 스마트폰 마운트 2개, 플런저 2개, 고무 팁 2개, 8-32 팬 헤드 나사 4개 및 나사를 끼울 너트 4개가 포함됩니다.
플런저 작동을 방해하지 않을 정도로 고무 팁을 짧게(대략 절반 정도) 자른 후 플런저의 끝을 고무 팁으로 씌우고 밀어 넣습니다.
그림 10. 고무 팁을 씌운 플런저
팬 헤드 나사를 사용해 플런저 메커니즘을 금속 마운트에 연결하여 스마트폰 마운트를 조립합니다. 이때 나사를 너트로 단단히 조여야 합니다.
그림 11. 조립한 스마트폰 마운트
4단계: 조리개 플레이트
전면 조리개 플레이트를 조립하려면 다음 단계를 따르세요.
그림 12와 같이 전면 조리개 플레이트의 하드웨어를 준비합니다.
그림 12. 전면 조리개 플레이트 조립 부품
하드웨어에는 조립한 스마트폰 마운트, 스마트폰 마운트 패널, 짧은 나일론 나사 4개 및 나일론 너트 4개가 포함됩니다(플라스틱 플레이트의 뒷면을 통해 나사가 튀어나오지 않도록 해야 함).
나사와 너트를 사용하여 스마트폰 마운트 패널에 조립한 스마트폰 마운트를 고정합니다. 그림 13과 같이 스마트폰 마운트 장착 방향이 올바른지 확인합니다.
그림 13. 조립한 전면 조리개 플레이트
5단계: 태블릿 마운트
태블릿 마운트를 조립하려면 다음 단계를 따르세요.
그림 14와 같이 태블릿 마운트 조립 하드웨어를 준비합니다.
그림 14. 태블릿 마운트 공간 조립 부품
하드웨어에는 후면 패널, 태블릿 마운트, 플런저 1개, 고무 팁 1개, 8-32 팬 헤드 나사 2개, 짧은 나일론 나사 2개 및 나사를 끼울 너트가 포함됩니다.
팬 헤드 나사를 사용해 플런저 메커니즘을 금속 마운트에 연결하여 태블릿 마운트를 조립합니다. 이때 나사를 너트로 단단히 조여야 합니다.
나사와 너트를 사용하여 후면 패널에 조립한 태블릿 마운트를 고정합니다. 그림 15와 같이 태블릿 마운트 장착 방향이 올바른지 확인합니다.
그림 15. 조립한 태블릿 마운트
6단계: 조명 설치
조명을 설치하려면 다음 단계를 따르세요.
그림 16과 같이 상단 및 하단 패널에 조명 배플을 설치합니다.
그림 16. 상단 및 하단 패널에 설치한 조명 배플
그림 17과 같이 상단 및 하단 패널의 슬롯을 통해 연장되는 직사각형 탭의 작은 구멍에 핀을 끼워 넣어 조명 배플을 고정합니다.
그림 17. 상자 외부의 LED 마운트 탭에 끼워 넣은 핀 클로즈업
핀을 고정하려면 핀이 제자리에 고정될 때 플라스틱에 약간의 압력이 가해지는 게 느껴질 때까지 조심스럽게 핀을 꽉 쥐고 끼워 넣습니다.
그림 18. 플라이어를 사용하여 핀 설치
그림 19와 같이 전면 및 측면 패널을 올바른 방향으로 조립하고 외부에서 테이프로 붙입니다.
그림 19. 조명 배플 및 패널 배치 방향
그림 20과 같이 전원 조명 바에 전원 코드를 연결합니다.
그림 20. 조명 전원 코드
왼쪽 패널의 구멍을 통해 전원 코드를 끼웁니다. 전원 코드의 양 끝에는 서로 다른 커넥터가 있습니다. 좁은 커넥터는 LED 라이트 바에 연결되고 큰 커넥터는 전원 어댑터에 연결됩니다.
그림 21. 테스트 장비의 왼쪽으로 나가는 전원 코드
전원 코드로 상단 조명을 하단 조명에 연결하고 왼쪽 패널에 케이블을 고정합니다.
그림 22. 왼쪽 패널에 고정된 조명 전원 코드
7단계: 측면 패널, 태블릿 마운트 및 핸들 조립
ITS-in-a-box 측면 패널, 태블릿 마운트, 핸들을 나사로 조립하려면 다음 단계를 따르세요.
패널의 모든 면을 조립하고 그림 23과 같이 테이프로 붙입니다.
그림 23. 조립 후 테이프로 붙인 ITS-in-a-box
전동 드릴을 사용하여 기존 구멍을 기반으로 파일럿 구멍을 만듭니다. 나사를 끼울 때 ABS 플라스틱이 갈라지지 않도록 파일럿 구멍이 4-40 나사를 사용하기에 충분한 크기인지 확인합니다.
그림 24. 드릴로 4-40 나사용 파일럿 구멍 뚫기
4-40 자체 태핑 나사를 사용하여 모든 패널을 나사로 고정합니다.
그림 25. 패널 조립용 4-40 나사
그림 26과 같이 핸들 부품을 준비합니다.
그림 26. 핸들 부품
하드웨어에는 직사각형 플라스틱 부품 4개 및 6-32 나사 4개가 포함됩니다.
그림 27과 같이 핸들을 조립합니다.
그림 27. 조립한 핸들
8단계: 최종 조립 및 설정
ITS-in-a-box를 최종적으로 조립하려면 다음 단계를 따르세요.
태블릿 마운트를 후면 패널에 연결하고 태블릿 크기에 따라 높이를 조정합니다.
그림 28. 상자 뒷면의 태블릿 마운트에 장착한 태블릿
그림 29와 같이 4-40 나사를 사용하여 스마트폰 마운트가 없는 정사각형 조리개 패널을 상자 전면에 부착합니다.
그림 29. 조립한 전면 스마트폰 패널
DUT의 카메라 조리개에 맞게 10x10cm 게이터 보드 조리개를 삽입합니다.
그림 30. 게이터 보드 조리개를 설치한 ITS-in-a-box
스마트폰을 설치합니다. 이때 조리개 구멍에 맞춰 카메라를 정렬합니다. 태블릿 개구부를 통해 정렬을 확인합니다.
그림 31. 스마트폰 1대를 설치한 ITS-in-a-box
카메라용 조리개 구멍을 자릅니다. 조리개 구멍을 1개(단일 스마트폰 테스트용) 또는 2개(2대의 스마트폰 테스트용) 절단할 수 있습니다. 그림 31에 Pixel 및 Pixel XL의 전면 및 후면 카메라용 조리개 구멍이 나와 있습니다. 전면 카메라에는 플래시 또는 레이저가 없기 때문에 원형 조리개 구멍이 있지만, 후면 카메라에는 플래시와 레이저가 차단되지 않고 작동할 수 있도록 직사각형 조리개 구멍이 있습니다.
그림 32. 전면 및 후면 카메라용 조리개 구멍 샘플
또는, 그림 33과 같이 판지를 잘라 조리개 구멍을 만들고 마커, 스프레이 페인트 또는 아크릴 물감을 사용하여 검은색으로 칠합니다.
그림 33. 판지로 제작한 전면 및 후면 카메라용 조리개 구멍 샘플
디지털 럭스 테스터를 사용하여 LED 조명의 럭스를 테스트합니다. 이 예에서는 Contempo Views의 YF-1065를 사용합니다.
그림 34. Contempo Views의 YF-1065
태블릿 측에 조도계를 놓고 2,000럭스로 돌려서 조도를 측정합니다. 럭스 수준은 대략 100~300럭스 정도여야 합니다. 이보다 상당히 낮다면 테스트하기에 너무 어두침침하므로 테스트가 실패할 수 있습니다.
그림 35. 태블릿 마운트가 있는 후면에서 조도를 측정하는 럭스 측정기
측정된 럭스 값에 따라 다음 중 적절한 단계를 따르세요.
- 조도가 적절한 수준이면 전면 및 후면 플레이트를 나사로 제자리에 고정합니다.
- 조도 수준이 적절하지 않으면 LED 및 전원 공급 장치 부품 번호가 올바른지 확인합니다.
주의사항
다음은 테스트 결함을 일으킬 수 있는 일반적인 제작 오류의 예입니다.
태블릿이 있는 후면 패널에 구멍이 뚫려 있습니다. 이 구멍이 있어 나사 구멍에 의해 생성된 추가 원 때문에
find_circle테스트가 실패합니다.
그림 36. 구멍이 뚫려 있는 후면 패널
다월이 없습니다. 따라서 이동 중에 라이트 배플이 빠져나올 수 있습니다.
그림 37. 조명 배플에 다월이 없음
UL 인증을 받지 않은 전원 공급 장치를 사용했습니다. UL 규격의 전원 공급 장치를 사용해야 전원 공급 장치가 고장 나지 않습니다.
그림 38. UL 규격 전원 공급 장치의 예