میدان دید معمولی (RFoV) ITS-in-a-box (نسخه 1a) شامل یک جعبه پلاستیکی است که برش لیزری از نقشه های طراحی به کمک رایانه (CAD)، یک تبلت نمودار و یک دستگاه در حال آزمایش (DUT) است. RFoV ITS-in-a-box برای آزمایش دستگاه هایی با FoV کمتر از 90 درجه (RFoV) طراحی شده است. می توانید یک ITS-in-a-box بخرید یا خودتان بسازید.
نسخه rev1b RFOV ITS-in-a-box پشتیبانی از اجزای ماژولار را اضافه می کند و با دکل داخلی تله سازگار است.

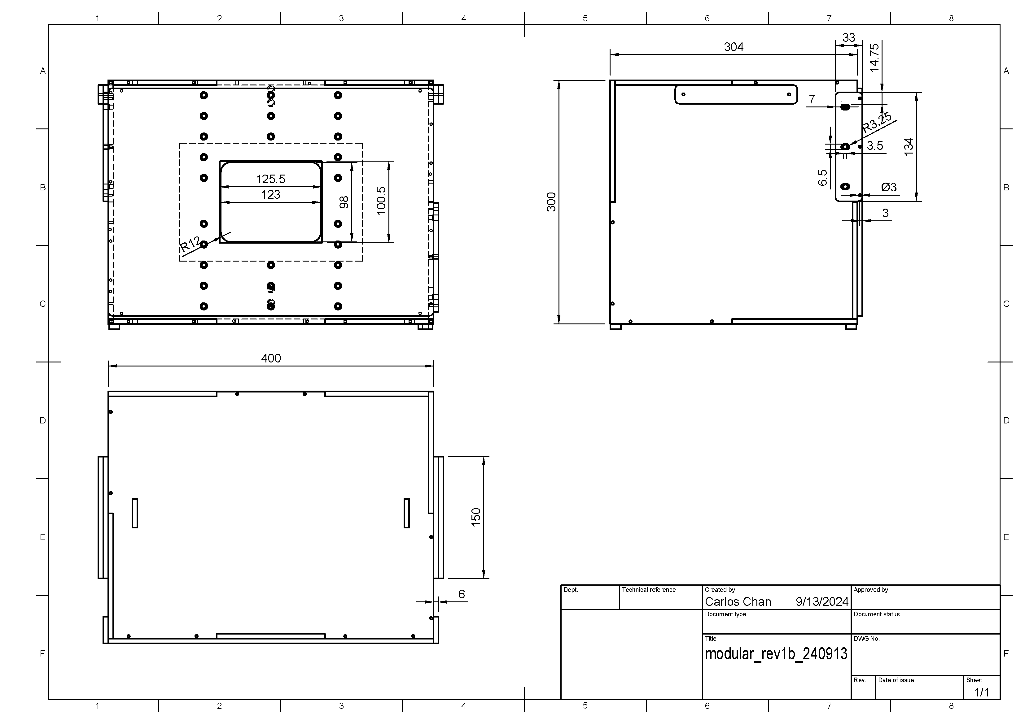
شکل 1. جعبه دید منظم (RFoV) ITS Rev1b
تاریخچه تجدید نظر
جدول زیر تاریخچه ویرایش جعبه میدان دید معمولی را شرح می دهد و شامل لینک های دانلود هر نسخه از فایل های تولیدی است.
| تاریخ | تجدید نظر | دانلود فایل تولیدی | تغییر گزارش |
|---|---|---|---|
| سپتامبر 2024 | 1b | فایل های تولید Rev. 1b |
|
| می 2019 | 1a | فایل های تولیدی Rev. 1a |
|
یک RFoV ITS-in-a-box بخرید
توصیه می کنیم یک RFoV ITS-in-a-box (نسخه 1a) را از یکی از فروشندگان واجد شرایط زیر خریداری کنید.
Byte Bridge Inc.
ایالات متحده آمریکا: 1502 Crocker Ave, Hayward, CA 94544-7037
چین: 22F #06-08، Hongwell International Plaza Tower A, 1600 West Zhongshan Road, Xuhui, Shanghai, 200235
www.bytebt.com
androidpartner@bytebt.com
ایالات متحده آمریکا: +1-510-373-8899
چین: +86-400-8866-490JFT CO LTD 捷富通科技有限公司 (قبلاً با نام MYWAY DESIGN شناخته می شد)
پلاک 40، لین 22، جاده هیی، شهر ووجینگ، منطقه مینهنگ، شانگهای، چین
4F.، شماره 163، جاده فو-یینگ، منطقه XinZhuang، شهر جدید تایپه 242، تایوان
www.jftcoltd.com
service@jfttec.com یا its.sales@jfttec.com
چین: +86-021-64909136
تایوان: 886-2-29089060
آموزش تصویری
این یک آموزش ویدیویی در مورد نحوه راه اندازی RFoV ITS-in-a-box است.
یک RFoV ITS-in-a-box بسازید
به جای خرید یک RFoV ITS-in-a-box، ممکن است خودتان آن را بسازید. در این بخش دستورالعمل های دقیق برای مونتاژ ارائه می شود.
نقشه های مکانیکی
ITS-in-a-box شامل یک DUT، یک تبلت نمودار، یک سیستم روشنایی داخلی، و یک جعبه پلاستیکی است که برش لیزری از نقشه های CAD (نشان داده شده در شکل 1) است.
برای شروع، آخرین فایل تولیدی را دانلود کنید.

شکل 2. ترسیم مکانیکی ITS-in-a-box
سخت افزار را از صورتحساب مواد (BOM) خریداری کنید. قطعات پلاستیکی و وینیل را برش دهید.
ابزار مورد نیاز
ابزارهای زیر را در دسترس داشته باشید:
- پیچ گوشتی سر تورکس
- مته برقی
- چسب ABS
- انبر بینی سوزنی
- چاقوی X-ACTO
- سیم برش یا قیچی (اختیاری)
مرحله 1: پاهای وینیل و چسب بزنید
وینیل رنگی را روی طرف صاف اکریلونیتریل بوتادین استایرن (ABS) بمالید و مطابق شکل 3 و 4 منافذ لازم را برش دهید. وینیل سفید را با دهانه مستطیلی بزرگ در سمت قرص جعبه و وینیل سیاه را با دهانه دایره ای در سمت دستگاه تلفن همراه جعبه اعمال کنید. همانطور که در شکل 4 نشان داده شده است، وینیل خاکستری را روی پانل های جانبی بمالید و پاها را مانند شکل 5 روی چهار گوشه پانل پایین بچسبانید. برای اطلاعات بیشتر، به wikiHow مراجعه کنید.

شکل 3. وینیل سیاه در پانل جلویی (سمت چپ) و وینیل سفید در پانل پشتی (راست)

شکل 4. وینیل خاکستری روی پانل های جانبی

شکل 5. پاها در چهار گوشه پانل پایینی
مرحله 2: نورپردازی
برای مونتاژ جزء روشنایی ITS-in-a-box:
همانطور که در شکل 6 نشان داده شده است، سخت افزار روشنایی را جمع آوری کنید.

شکل 6. قطعات مونتاژ سبک
سختافزار شامل میلههای نور LED، حفاظهای پلاستیکی نور، پایههای نور پلاستیکی، گیرههای نور پلاستیکی یا فلزی موجود در کیت نورپردازی LED، و چهار پیچ 6-32 با مهرههای سر بلوط است.
گیره های نور را همانطور که در شکل 7 نشان داده شده است به بافل های پلاستیکی بچسبانید. گیره ها را با استفاده از مهره های بلوط در طرف دیگر بافل ها محکم کنید.

شکل 7. بافل های پلاستیکی با گیره های نور متصل شده است
برای مونتاژ چراغ ها، بافل های پلاستیکی را با استفاده از گیره های نور به پشت میله های نور LED وصل کنید.

شکل 8. میله های نور با چراغ ها رو به پایین و پیچ هایی که از طریق گیره ها رزوه می شوند.
هنگامی که جزء روشنایی مونتاژ می شود، میله های نور LED باید به سمت پایین باشند و بافل های پلاستیکی باید سطح براق و بازتابنده پشت میله نور LED را بپوشانند.
مرحله 3: نصب تلفن
برای مونتاژ پایه های گوشی:
موارد مورد نیاز را مطابق شکل 9 جمع آوری کنید.

شکل 9. موارد نصب تلفن
این سخت افزار شامل دو پایه فلزی تلفن، دو پیستون، دو سر لاستیکی، چهار پیچ سر تابه 8-32 و مهره های مربوطه است.
نوک های لاستیکی را به اندازه کافی کوتاه کنید تا در عملکرد پیستون تداخل نداشته باشد (تقریباً به نصف)، سپس نوک های لاستیکی را برای پوشاندن نوک پیستون ها اعمال کنید.

شکل 10. پیستون با نوک لاستیکی
پایههای تلفن را با استفاده از پیچهای تابهای جمع کنید تا مکانیسمهای پیستون را به پایههای فلزی متصل کنید. مطمئن شوید که پیچ ها با مهره های مربوطه سفت شده اند.

شکل 11. پایه های تلفن مونتاژ شده
مرحله 4: صفحه دیافراگم
برای مونتاژ صفحه دیافراگم جلو:
سخت افزار صفحه دیافراگم جلو نشان داده شده در شکل 12 را جمع آوری کنید.

شکل 12. قطعات مونتاژ صفحه دیافراگم جلو
سخت افزار شامل پایه های تلفن مونتاژ شده، پانل پایه تلفن، چهار پیچ نایلونی کوتاه و چهار مهره نایلونی (برای جلوگیری از بیرون زدن پیچ ها از پشت صفحه پلاستیکی لازم است).
با استفاده از پیچ ها و مهره ها، پایه های تلفن مونتاژ شده را روی پانل پایه گوشی محکم کنید. همانطور که در شکل 13 نشان داده شده است، اطمینان حاصل کنید که پایه های تلفن در جهت صحیح قرار دارند.

شکل 13. صفحه دیافراگم جلویی مونتاژ شده
مرحله 5: نصب تبلت
برای مونتاژ پایه میز:
سخت افزار مونتاژ پایه تبلت نشان داده شده در شکل 14 را جمع آوری کنید.

شکل 14. قطعات مونتاژ فضای نصب تبلت
سخت افزار شامل پانل پشتی، پایه تبلت، یک پیستون، یک نوک لاستیکی، دو پیچ سر تابه 8 تا 32، دو پیچ نایلونی کوتاه و مهره های مربوطه است.
پایه تبلت را با استفاده از پیچ های تابه ای برای اتصال مکانیسم های پیستون به پایه فلزی مونتاژ کنید. مطمئن شوید که پیچ ها با مهره های مربوطه سفت شده اند.
با استفاده از پیچ و مهره، پایه تبلت مونتاژ شده را روی پانل پشتی محکم کنید. اطمینان حاصل کنید که پایههای تلفن در جهت درستی که در شکل 15 نشان داده شده است قرار دارند.

شکل 15. پایه تبلت مونتاژ شده
مرحله 6: چراغ ها را نصب کنید
برای نصب چراغ ها:
همانطور که در شکل 16 نشان داده شده است، بافل های نور را روی پانل های بالا و پایین نصب کنید.

شکل 16. بافل های نوری نصب شده در پانل های بالا و پایین
بافیل های نور را با فشردن پین به سوراخ کوچک روی زبانه مستطیلی که از طریق شکاف در پانل بالا و پایین امتداد دارد، مانند شکل 17 محکم کنید.

شکل 17. نزدیک کردن پین درج شده در زبانه نصب LED در خارج از جعبه
برای محکم کردن پین ها، پین ها را به آرامی فشار دهید تا زمانی که پین ها در جای خود محکم شده اند، فشاری روی پلاستیک احساس کنید.

شکل 18. انبردست برای نصب پین
پانل های جلویی و جانبی را همانطور که در شکل 19 نشان داده شده است در جهت درستی جمع کنید و از بیرون به هم بچسبانید.

شکل 19. جهت قرارگیری نور
سیم برق را همانطور که در شکل 20 نشان داده شده است به نوار چراغ برق وصل کنید.

شکل 20. سیم برق روشنایی
سیم برق را از سوراخ پانل سمت چپ عبور دهید. سیم برق در هر انتها کانکتورهای مختلفی دارد: کانکتور باریکتر به نوار نور LED و کانکتور بزرگتر به آداپتور برق متصل می شود.

شکل 21. خروج سیم برق از دستگاه تست در سمت چپ آن
چراغ های بالایی را به چراغ های پایین سیم کشی کنید و کابل را روی پانل سمت چپ محکم کنید.

شکل 22. طناب نور لنگر بر روی پانل سمت چپ
مرحله 7: پانل های جانبی، پایه تبلت و دسته ها را جمع آوری کنید
برای مونتاژ پانل های جانبی ITS-in-a-box، پایه تبلت و دسته ها با پیچ:
همانطور که در شکل 23 نشان داده شده است، تمام طرف های پانل ها را جمع کنید و آنها را به هم بچسبانید.

شکل 23. ITS-in-a-box برای مونتاژ به هم چسبانده شده است
از یک مته برقی برای ایجاد سوراخ های پایلوت بر اساس سوراخ های موجود استفاده کنید. اطمینان حاصل کنید که سوراخ های پیلوت به اندازه کافی برای 4-40 پیچ بزرگ هستند تا پلاستیک ABS هنگام قرار دادن پیچ ها ترک نخورد.

شکل 24. سوراخ کردن پیلوت برای 4-40 پیچ
تمام پانل ها را با استفاده از 4-40 پیچ خودکار به هم بچسبانید.

شکل 25. 4-40 پیچ برای مونتاژ پانل ها
قطعات دسته نشان داده شده در شکل 26 را جمع آوری کنید.

شکل 26. قطعات دسته
سخت افزار شامل چهار قطعه پلاستیکی مستطیلی و چهار پیچ 6-32 می باشد.
دسته ها را مطابق شکل 27 جمع کنید.

شکل 27. دسته مونتاژ شده
مرحله 8: مونتاژ و راه اندازی نهایی
برای انجام مونتاژ نهایی ITS-in-a-box:
پایه تبلت را به پنل پشتی وصل کنید و ارتفاع را با توجه به اندازه تبلت تنظیم کنید.

شکل 28. تبلت در پایه تبلت در پشت جعبه
همانطور که در شکل 29 نشان داده شده است، پانل دیافراگم مربعی بدون پایه گوشی را با 4-40 پیچ به جلوی جعبه وصل کنید.

شکل 29. پانل تلفن جلویی مونتاژ شده
دریچه دیافراگم برد gator 10x10 سانتی متر را متناسب با دیافراگم دوربین DUT قرار دهید.

شکل 30. ITS-in-a-box با دیافراگم برد gator نصب شده است
گوشی را با تراز کردن دوربین با دهانه دیافراگم نصب کنید. تراز را از طریق دهانه تبلت بررسی کنید.

شکل 31. ITS-in-a-box با یک تلفن نصب شده است
برش دیافراگم برای دوربین ها می توانید یک دیافراگم (برای تست یک گوشی) یا دو دیافراگم (برای تست دو گوشی) را برش دهید. دیافراگم دوربین های جلو و عقب Pixel و Pixel XL در شکل 31 نشان داده شده است. دوربین جلو دارای دیافراگم دایره ای است زیرا فلاش یا لیزر وجود ندارد، در حالی که دوربین عقب دارای دیافراگم مستطیلی است که به فلاش و لیزر اجازه می دهد بدون مسدود شدن کار کنند.

شکل 32. نمونه دیافراگم برای دوربین های جلو و عقب

همچنین میتوانید دیافراگمها را از مقوا جدا کرده و با استفاده از نشانگرها، اسپری رنگ یا اکریلیک، همانطور که در شکل 33 نشان داده شده است، آن را سیاه کنید.
شکل 33. نمونه دیافراگم های مقوایی برای دوربین های جلو و عقب

با استفاده از تستر دیجیتال لوکس، لوکس چراغ های LED را تست کنید. در این مثال از YF-1065 توسط Contempo View استفاده شده است.

شکل 34. YF-1065 توسط Contempo Views
نورسنج را روی تبلت قرار دهید و برای اندازه گیری نور آن را روی 2000 لوکس قرار دهید. سطح لوکس باید حدود 100 تا 300 لوکس باشد. هر چیزی که به میزان قابل توجهی پایینتر باشد برای تست خیلی کم نور است و میتواند منجر به شکست تست شود.

شکل 35. نور اندازه گیری لوکس متر از پشت با پایه تبلت
بسته به مقدار لوکس اندازه گیری شده، مرحله مناسب را دنبال کنید:
- اگر نور در سطح مناسبی است، صفحات جلو و عقب را در جای خود پیچ کنید.
- اگر نور در سطح نادرست است، بررسی کنید که LED و شماره قطعه منبع تغذیه صحیح باشند.
چیزهایی که باید به آنها توجه کرد
موارد زیر نمونههایی از خطاهای رایج تولیدی هستند که میتوانند آزمایشها را پوسته پوسته کنند.
پانل پشتی با سوراخ های تبلت. این باعث می شود که تست
find_circleبه دلیل دایره های اضافی ایجاد شده توسط سوراخ های پیچ با شکست مواجه شود.
شکل 36. پانل پشتی با سوراخ های سوراخ شده
رولپلاک از دست رفته است. این امر باعث می شود که حفره های نور در حین حمل و نقل خارج شوند.

شکل 37. رولپلاک از بین رفته روی بافل نور
منبع تغذیه غیر فهرست UL. استفاده از منبع تغذیه در لیست UL تضمین می کند که منبع تغذیه قطع نمی شود.

شکل 38. مثالی از منبع تغذیه فهرست شده در UL