常规视野 (RFoV) 盒装 ITS(修订版 1a)由一个根据计算机辅助设计 (CAD) 图纸激光切割而成的塑料盒、一部图表平板电脑和一部被测设备 (DUT) 组成,用于测试视野 (FoV) 小于 90 度 (RFoV) 的设备。您可以购买盒装 ITS,也可以自行组装。
宽视野盒装 ITS 的 rev1b 版本增加了对模块化组件的支持,并且与远摄扩展装置兼容。
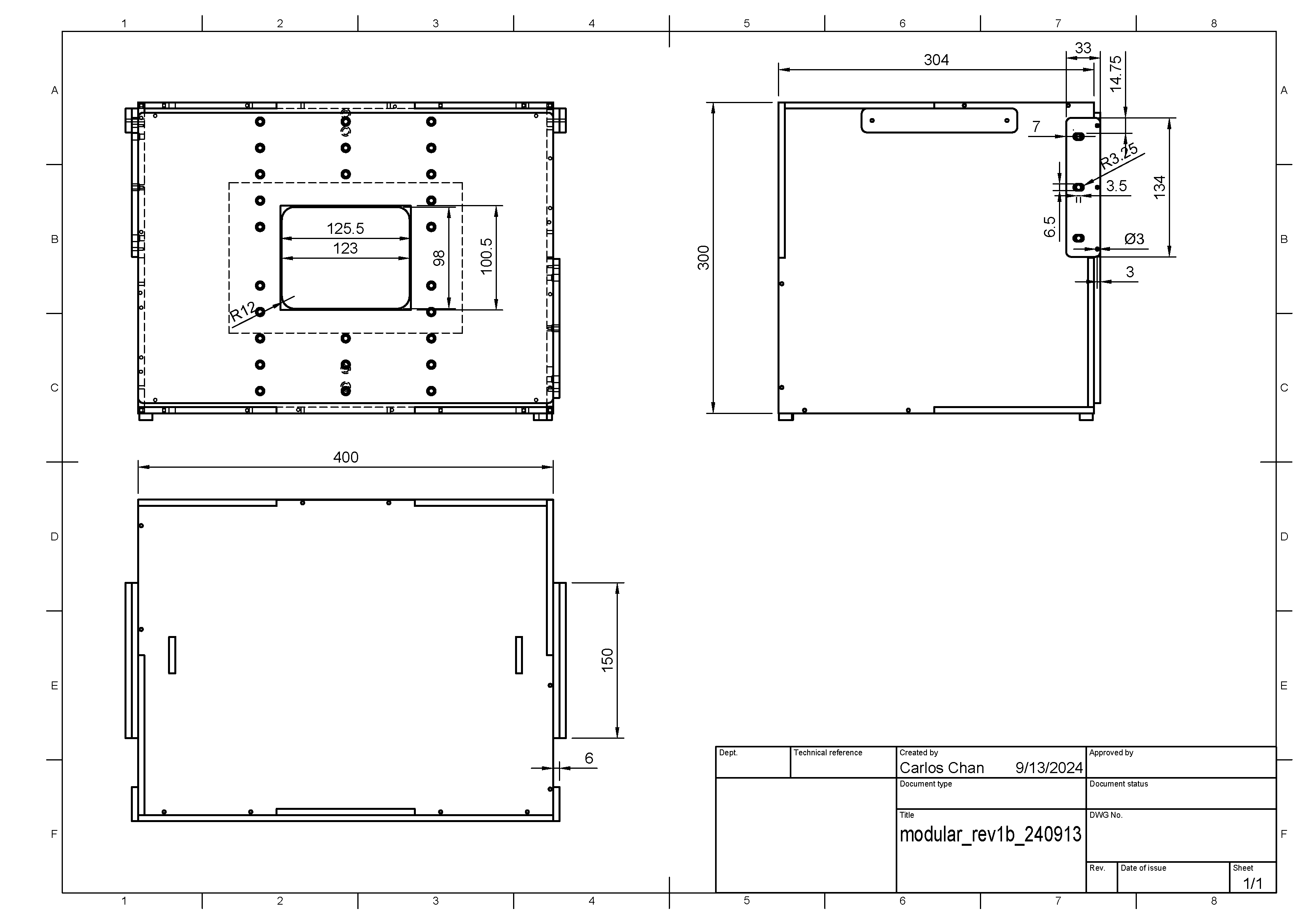
图 1. 常规视野 (RFoV) 盒装 ITS Rev1b
修订历史记录
下表介绍了常规视野盒装 ITS 的修订历史记录,并包含指向每一版生产文件的下载链接。
日期 | 修订版本 | 下载生产文件 | 更新日志 |
---|---|---|---|
2024 年 9 月 | 1b | Rev. 1b 生产文件 |
|
2019 年 5 月 | 1a | Rev. 1a 生产文件 |
|
购买 RFoV 盒装 ITS
建议您通过以下任一合格供应商购买 RFoV 盒装 ITS(修订版 1a)。
Byte Bridge Inc.
美国:1502 Crocker Ave, Hayward, CA 94544-7037
中国:上海市徐汇区中山西路 1600 号宏汇国际广场 A 座 22 层 06-08,邮编:200235
www.bytebt.com
androidpartner@bytebt.com
美国:+1-510-373-8899
中国:+86-400-8866-490JFT CO LTD 捷富通科技有限公司(之前称为 MYWAY DESIGN)
No. 40, Lane 22, Heai Road, Wujing Town, Minhang District, Shanghai, China
4F., No. 163, Fu-Ying Road, XinZhuang District, New Taipei City 242, Taiwan
www.jftcoltd.com
service@jfttec.com or its.sales@jfttec.com
中国大陆:+86-021-64909136
中国台湾:886-2-29089060
视频教程
此视频教程介绍了如何安装 RFoV 盒装 ITS。
组装 RFoV 盒装 ITS
除了购买,您也可以自行组装 RFoV 盒装 ITS。本节将详细介绍相关的组装步骤。
机械图纸
盒装 ITS 包含一部 DUT、一台图表平板电脑、一个内部照明系统和一个根据计算机辅助设计 (CAD) 图纸激光切割而成的塑料盒(如图 1 所示)。
首先,请下载最新的生产文件。
图 2. 盒装 ITS 的机械图纸
购买物料清单 (BOM) 中列出的材料。切割塑料和乙烯基元件。
所需工具
准备好以下工具:
- 梅花头螺丝刀
- 电钻
- ABS 胶水
- 尖嘴钳
- 美工刀
- 钢丝钳或剪刀(非必备)
第 1 步:贴乙烯基膜并粘贴支脚
将有色乙烯基膜贴在丙烯腈-丁二烯-苯乙烯树脂 (ABS) 的光滑面上,并剪出必要的开口(如图 3 和图 4 所示)。在盒子安装平板电脑的一面贴上带有大矩形开口的白色乙烯基膜,在盒子安装移动设备的一面贴上带有圆形开口的黑色乙烯基膜。在侧板上贴上灰色乙烯基膜(如图 4 所示),并在底板的四个角上粘贴支脚(如图 5 所示)。 如需了解详情,请参阅 wikiHow。
图 3. 在前板上贴上了黑色乙烯基膜(左),在后板上贴上了白色乙烯基膜(右)
图 4. 在侧板上贴上了灰色乙烯基膜
图 5. 在底板的四个角上粘贴了支脚
第 2 步:照明
组装盒装 ITS 的照明组件:
收集齐照明组件的材料并放在一起,如图 6 所示。
图 6. 灯配件
组装配件包括:LED 灯条、塑料挡光板、塑料灯座、LED 照明套件中包含的塑料或金属灯夹,以及四个 6-32 螺钉和盖形螺母。
用螺栓将灯夹固定在塑料挡光板上,如图 7 所示。 在挡光板的另一面,使用盖形螺母固定灯夹。
图 7. 安装了灯夹的塑料挡光板
如需组装灯,请使用灯夹将塑料挡光板连接到 LED 灯条的背面。
图 8. 灯条(灯朝下,螺钉拧进灯夹)
组装照明组件时,应使 LED 灯条朝下,并使塑料挡光板覆盖 LED 灯条背面闪亮的反光表面。
第 3 步:手机托架
组装手机托架:
收集齐所需的配件并放在一起,如图 9 所示。
图 9. 手机托架配件
两个金属手机托架、两个柱塞、两个橡皮帽、四个 8-32 平头螺钉以及相应的螺母。
将橡皮帽剪得足够短,使其不会妨碍柱塞工作(大致剪短一半),然后将其套在柱塞的末端。
图 10. 套上橡皮帽的柱塞
使用平头螺钉组装手机托架,从而将柱塞装置固定在金属托架上。确保使用相应的螺母拧紧螺钉。
图 11. 组装好的手机托架
第 4 步:孔板
组装前孔板:
收集齐前孔板配件并放在一起,如图 12 所示。
图 12. 前孔板配件
组装配件包括:组装好的手机托架、手机托架板、四个较短的尼龙螺钉和四个尼龙螺母(螺母的作用是防止螺钉从塑料板的背面伸出)。
使用螺钉和螺母将组装好的手机托架固定到手机托架板上。确保手机托架的方向正确,如图 13 所示。
图 13. 组装好的前孔板
第 5 步:平板电脑托架
要组装平板电脑托架,请执行以下操作:
收集齐平板电脑托架的组装配件并放在一起,如图 14 所示。
图 14. 平板电脑托架配件
组装配件包括:后板、平板电脑托架、一个柱塞、一个像皮帽、两个 8-32 平头螺钉、两个较短的尼龙螺钉以及相应的螺母。
使用平头螺钉组装平板电脑托架,从而将柱塞装置固定在金属托架上。确保使用相应的螺母拧紧螺钉。
使用螺钉和螺母将组装好的平板电脑托架固定到后板上。确保手机托架的方向正确,如图 15 所示。
图 15. 组装好的平板电脑托架
第 6 步:安装灯
如需安装灯,请执行以下操作:
在顶板和底板上安装挡光板,如图 16 所示。
图 16. 安装在顶板和底板上的挡光板
将销钉插入从顶板和底板插槽处伸出的矩形卡舌上的小孔来固定挡光板,如图 17 所示。
图 17. 插入盒子外侧的 LED 灯安装卡舌中的销钉特写
如需固定销钉,请轻轻按压销钉,直到销钉插入到位,您感觉到塑料片上有一点压力为止。
图 18. 用于安装销钉的钳子
按照图 19 所示的正确方向组装前板和侧板,然后从外部用胶带将它们粘在一起。
图 19. 灯的放置方向
将电源线连接到灯条电源,如图 20 所示。
图 20. 照明电源线
将电源线穿过左侧板上的孔。电源线两端有两个不同的连接器:较窄的连接器连接到 LED 灯条,较大的连接器连接到电源适配器。
图 21. 电源线从测试装置的左侧穿出
用电缆将顶部的灯和底部的灯连接起来,并将电缆固定到左侧板上。
图 22. 固定在左侧板上的灯线
第 7 步:组装侧板、平板电脑托架和手柄
如需使用螺钉组装盒装 ITS 的侧板、平板电脑托架和手柄,请执行以下操作:
把各侧面板组装起来,然后用胶带将它们粘在一起,如图 23 所示。
图 23. 用胶带粘在一起进行组装的盒装 ITS
用电钻根据现有的孔钻定位孔。确保定位孔足够穿过 4-40 螺钉,从而确保在插入螺钉时不会使 ABS 塑料破裂。
图 24. 钻出能够插入 4-40 螺钉的定位孔
使用 4-40 自攻螺钉将所有面板组装在一起。
图 25. 用于组装面板的 4-40 螺钉
收集齐手柄配件,如图 26 所示。
图 26. 手柄配件
组装配件包括:4 个矩形塑料件和 4 个 6-32 螺钉。
组装手柄,如图 27 所示。
图 27.组装好的手柄
第 8 步:最后的组装和设置
进行盒装 ITS 的最终组装:
将平板电脑托架安装到后板上,然后根据平板电脑尺寸调整高度。
图 28.放在盒子后板上的平板电脑托架中的平板电脑
使用 4-40 螺钉将不带手机托架的方形孔板安装到盒子的前板上,如图 29 所示。
图 29.组装好的手机前板
插入 10x10 厘米的鳄鱼孔板以适配 DUT 的摄像头开孔。
图 30. 安装了鳄鱼孔板的盒装 ITS
安装手机,使摄像头与开孔对准。通过平板电脑开口检查对准情况。
图 31. 安装了一部手机的盒装 ITS
为摄像头开孔。您可以开一个孔(用于测试一部手机)或两个孔(用于测试两部手机)。Pixel 和 Pixel XL 前置摄像头和后置摄像头的开孔如图 31 所示:由于没有闪光灯或激光器,前置摄像头的开孔是圆形孔;而为了不挡住闪光灯和激光器,后置摄像头的开孔为矩形孔。
图 32. 前置摄像头和后置摄像头的开孔示例
此外,您还可以在纸板上开孔,然后使用记号笔、喷漆或颜料将其涂黑,如图 33 所示。
图 33. 前置摄像头和后置摄像头的纸板开孔示例
使用数字照度计测试 LED 灯的照度。本例中使用的是 Contempo Views 的 YF-1065。
图 34. Contempo Views 的 YF-1065
将照度计放置在平板电脑一侧,然后将其调到 2000 勒克斯,以测量光照度。照度应在 100 到 300 勒克斯之间。对于该测试而言,如果照度值明显低于此范围,就说明太暗了,可能会导致测试失败。
图 35. 用照度计测量安装了平板电脑托架的后板上的光照强度
根据测得的照度值,执行相应的步骤:
- 如果光照强度处于正确的水平,需要用螺钉将前板和后板固定到位。
- 如果光照强度处于不正确的水平,需要检查 LED 和电源配件号是否正确。
注意事项
下面列出了一些常见的组装错误,这些错误会导致测试易出故障。
安装平板电脑的后板上有刺穿孔。这会导致
find_circle
测试失败,因为螺钉孔会产生额外的圆圈。图 36.有刺穿孔的后板
缺少固定销。这会导致挡光板在运输过程中松脱。
图 37. 挡光板上缺少固定销
非 UL 认证电源。使用 UL 认证电源可确保电源不会断电。
图 38. UL 认证电源示例