Normal görüş alanı (RFoV) kutusu edinme

Normal görüş alanı (RFoV) kutu içinde ITS (düzeltme 1a), bilgisayar destekli tasarım (CAD) çizimlerinden lazerle kesilmiş bir plastik kutu, bir grafik tableti ve test edilen cihazdan (DUT) oluşur. RFoV ITS-in-a-box, 90 dereceden az FoV'ye (RFoV) sahip cihazları test etmek için tasarlanmıştır. Hazır bir BT çözümü satın alabilir veya kendi çözümünüzü oluşturabilirsiniz.

RFOV ITS-in-a-box'ın rev1b sürümünde modüler bileşenler için destek eklendi ve uzaktan uzatma aparatı ile uyumlu hale getirildi.

Rev1b

Şekil 1. Normal görüş alanı (RFoV) ITS kutusu Rev1b

Düzeltme geçmişi

Aşağıdaki tabloda, normal görüş alanı kutusunun düzeltme geçmişi açıklanmakta ve üretim dosyalarının her bir sürümünün indirme bağlantıları yer almaktadır.

Tarih Düzeltme Üretim dosyası indirme Değişiklik günlüğü
Eylül 2024 1b 1b sürümü üretim dosyaları
  • Modüler sistem benimsendi (modüler uzantılar için montaj mekanizması eklendi).
Mayıs 2019 1a 1a sürümü üretim dosyaları
  • Delrin olan malzeme ABS olarak değiştirildi.
  • Işık tutucu tasarımı, daha esnek ve farklı LED çubuğu boyutlarına uygun olacak şekilde değiştirildi.
  • İnşaat yöntemlerini birleştirdi.
  • Tablet montaj tasarımını basitleştirdik ve daha sağlam hale getirdik.
  • Daha kalın telefonları desteklemek için telefon montajının derinliği artırıldı.
  • Katlanabilir cihazlar ve sağlam telefon profilleri için bir montaj yeri sağlamak amacıyla ön paneldeki montaj seçenekleri artırıldı.

RFoV ITS-in-a-box satın alma

Aşağıdaki uygun tedarikçilerden birinden RFoV ITS-in-a-box (1a düzeltmesi) satın almanızı öneririz.

  • Byte Bridge Inc.
    ABD: 1502 Crocker Ave, Hayward, CA 94544-7037
    Çin: 22F #06-08, Hongwell International Plaza Tower A, 1600 West Zhongshan Road, Xuhui, Shanghai, 200235
    www.bytebt.com
    androidpartner@bytebt.com
    ABD: +1-510-373-8899
    Çin: +86-400-8866-490

  • JFT CO LTD 捷富通科技有限公司 (eski adıyla MYWAY DESIGN)
    No. 40, Lane 22, Heai Road, Wujing Town, Minhang District, Shanghai, China
    4F., No. 163, Fu-Ying Road, XinZhuang District, New Taipei City 242, Taiwan
    www.jftcoltd.com
    service@jfttec.com or its.sales@jfttec.com
    Çin:+86-021-64909136
    Tayvan: 886-2-29089060

Eğitim videosu

Bu, RFoV ITS-in-a-box'ı nasıl kuracağınızla ilgili bir eğitim videosudur.

RFoV ITS-in-a-box oluşturma

RFoV ITS-in-a-box satın almak yerine kendi sisteminizi oluşturabilirsiniz. Bu bölümde, montajla ilgili ayrıntılı talimatlar verilmiştir.

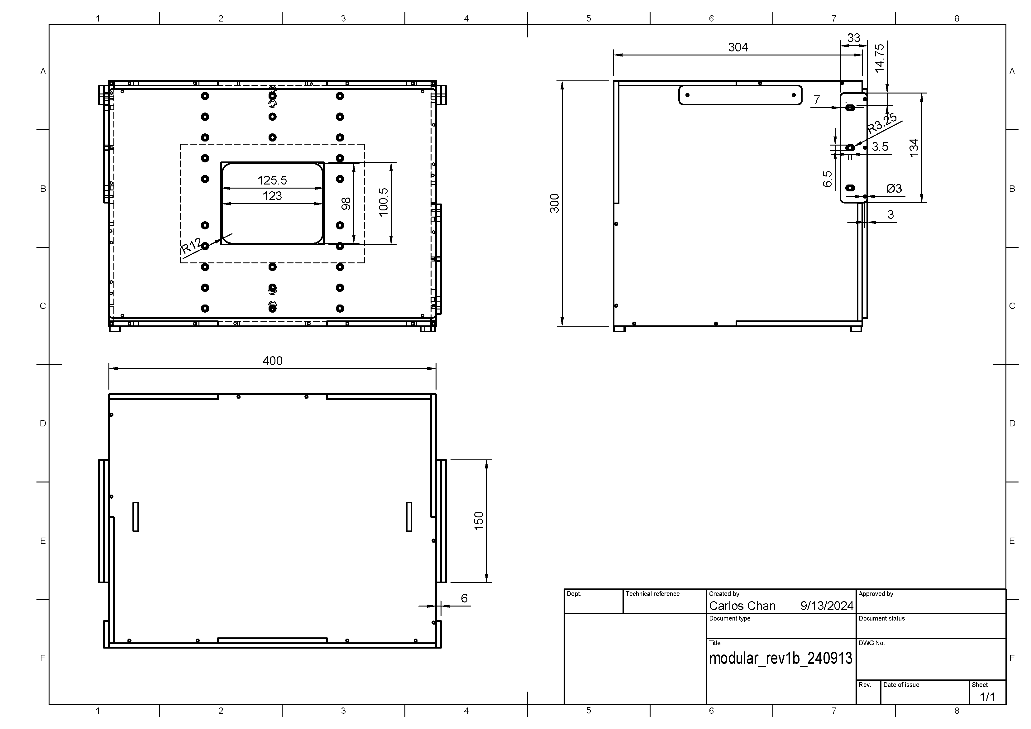
Mekanik çizimler

Kutudaki ITS, bir DUT, bir grafik tableti, dahili aydınlatma sistemi ve CAD çizimlerinden lazerle kesilmiş plastik bir kutudan oluşur (Şekil 1'de gösterilmiştir).

Başlamak için en son üretim dosyasını indirin.

Kutu içinde ITS mekanik çizimi

Şekil 2. Kutu içinde ITS'nin mekanik çizimi

Donanımı, malzeme listesi (BOM) üzerinden satın alın. Plastik ve vinil parçaları kesin.

Gerekli araçlar

Aşağıdaki araçlara sahip olmanız gerekir:

  • Torx uçlu tornavida
  • Elektrikli matkap
  • ABS tutkalı
  • Kargaburnu pense
  • X-ACTO bıçağı
  • Tel kesici veya makas (isteğe bağlı)

1. adım: Vinil uygulayın ve ayakları yapıştırın

Akrilonitril butadien stirenin (ABS) pürüzsüz tarafına renkli vinil uygulayın ve Şekil 3 ve 4'te gösterildiği gibi gerekli açıklıkları kesin. Kutunun tablet tarafına büyük dikdörtgen açıklığı olan beyaz vinili, mobil cihaz tarafına ise dairesel açıklığı olan siyah vinili uygulayın. Şekil 4'te gösterildiği gibi yan panellere gri vinil uygulayın ve ayakları Şekil 5'te gösterildiği gibi alt panelin dört köşesine yapıştırın. Daha fazla bilgi için wikiHow'a bakın.

Ön ve arka panellerde vinil

Şekil 3. Ön panelde siyah (solda) ve arka panelde beyaz (sağda) vinil

Yan paneller

Şekil 4. Yan panellerde gri vinil

Alt panel

Şekil 5. Alt panelin dört köşesindeki ayaklar

2. adım: Aydınlatma

Kutudaki ITS aydınlatma bileşenini monte etmek için:

  1. Şekil 6'da gösterildiği gibi aydınlatma donanımlarını toplayın.

    Işık montajı parçaları

    Şekil 6. Işık montajı parçaları

    Donanım; LED ışık çubukları, plastik ışık difüzörleri, plastik ışık montajları, LED aydınlatma setine dahil olan plastik veya metal ışık klipsleri ve acorn başlı somunlu dört adet 6-32 vidayı içerir.

  2. Şekil 7'de gösterildiği gibi ışık klipslerini plastik bölmelere sabitleyin. Klipler, bölmelerin diğer tarafındaki somunlarla sabitlenir.

    Işık perdeleri

    Şekil 7. Işık klipsi takılı plastik bölme panelleri

  3. Işıkları monte etmek için plastik bölmelerini, ışık kliplerini kullanarak LED ışık çubuklarının arkasına takın.

    Paralel ışınlar

    Şekil 8. Işıkları aşağı bakan ve vidaların klipslere geçirildiği ışık çubukları

Aydınlatma bileşeni monte edildiğinde LED ışık çubukları aşağı bakmalı, plastik bölme panelleri ise LED ışık çubuğunun arkasındaki parlak, yansıtıcı yüzeyi kapatmalıdır.

3. Adım: Telefon tutucular

Telefon montajlarını monte etmek için:

  1. Şekil 9'da gösterildiği gibi gerekli öğeleri toplayın.

    Telefon askı aparatı öğeleri

    Şekil 9. Telefon askı aparatı öğeleri

    Donanıma iki metal telefon montajı, iki piston, iki lastik uç, dört adet 8-32 düz başlı vida ve ilgili somunlar dahildir.

  2. Lastik uçları, pistonun çalışmasını engellemeyecek kadar kısa olacak şekilde kesin (yaklaşık olarak ikiye bölün). Ardından, lastik uçları pistonların uçlarını kapatacak şekilde uygulayın.

    Dalıcı pistonlar

    Şekil 10. Lastik uçlu çekme aparatları

  3. Piston mekanizmalarını metal montajlara takmak için telefon montajlarını yuvarlak başlı vidalarla birleştirin. Vidaların ilgili somunlarla sıkıldığından emin olun.

    Monte edilmiş telefon yuvaları

    Şekil 11. Monte edilmiş telefon yuvaları

4. Adım: Diyafram plakası

Ön diyafram plakasını monte etmek için:

  1. Şekil 12'de gösterilen ön diyafram plakası donanımlarını toplayın.

    Ön diyafram plakası parçaları

    Şekil 12. Ön diyafram plakası montaj parçaları

    Donanım; monte edilmiş telefon montajları, telefon montaj paneli, dört kısa naylon vida ve dört naylon somun (vidaların plastik plakanın arkasından çıkmasını önlemek için gereklidir) içerir.

  2. Vida ve somunları kullanarak, monte edilmiş telefon montajlarını telefon montaj paneline sabitleyin. Telefon montajlarının Şekil 13'te gösterildiği gibi doğru yönde olduğundan emin olun.

    Birleştirilmiş ön diyafram plakası

    Şekil 13. Birleştirilmiş ön diyafram plakası

5. adım: Tablet montajı

Masa montajını monte etmek için:

  1. Şekil 14'te gösterilen tablet montaj düzeneği donanımlarını toplayın.

    Tablet montaj parçaları

    Şekil 14. Tablet montaj alanı montaj parçaları

    Donanım; arka panel, tablet montajı, bir piston, bir lastik uç, iki adet 8-32 yuvarlak başlı vida, iki kısa naylon vida ve ilgili somunları içerir.

  2. Piston mekanizmalarını metal montaja takmak için yuvarlak başlı vidalar kullanarak tablet montajını birleştirin. Vidaların ilgili somunlarla sıkıldığından emin olun.

  3. Vidaları ve somunları kullanarak monte edilmiş tablet montajını arka panele sabitleyin. Telefon montajlarının Şekil 15'te gösterildiği gibi doğru yönde olduğundan emin olun.

    Monte edilmiş tablet tutucu

    Şekil 15. Monte edilmiş tablet tutucu

6. adım: Işıkları takın

Işıkları kurmak için:

  1. Işık perdelerini Şekil 16'da gösterildiği gibi üst ve alt panellere takın.

    Işık perdeleri takılmış

    Şekil 16. Üst ve alt panellere takılan ışık perdeleri

  2. Şekil 17'de gösterildiği gibi, iğneyi üst ve alt paneldeki yuvada uzanan dikdörtgen sekmedeki küçük deliğe sıkıştırarak ışık perdelerini sabitleyin.

    Yerleştirilen raptiye

    Şekil 17. Kutunun dışındaki LED montaj sekmesine yerleştirilmiş pimi yakından gösteren resim

    Raptiyeleri sabitlemek için plastikte bir miktar baskı hissedene kadar raptiyeleri hafifçe sıkın.

    Penseler

    Şekil 18. Pimi takmak için kullanılan pense

  3. Ön ve yan panelleri Şekil 19'da gösterildiği gibi doğru yönde birleştirin ve dıştan bantla birbirine yapıştırın.

    Işık yerleşimi yönü

    Şekil 19. Işık yerleşimi yönü

  4. Güç kablosunu Şekil 20'de gösterildiği gibi güç ışığı çubuğuna takın.

    Aydınlatma güç kablosu

    Şekil 20. Aydınlatma güç kablosu

    Güç kablosunu sol paneldeki delikten geçirin. Güç kablosunun her iki ucunda da farklı konnektörler bulunur: Daha dar konnektör LED ışık çubuğuna, daha geniş konnektör ise güç adaptörüne takılır.

    Güç kablosu

    Şekil 21. Test aparatının sol tarafından çıkan güç kablosu

  5. Üst ışıkları alt ışıklara bağlayın ve kabloyu sol panele sabitleyin.

    Işık kablosu

    Şekil 22. Sol panele sabitlenmiş ışık kablosu

7. adım: Yan panelleri, tablet yuvasını ve kolları birleştirin

Kutudaki ITS yan panellerini, tablet montajını ve kolları vidalarla monte etmek için:

  1. Panellerin tüm kenarlarını birleştirin ve Şekil 23'te gösterildiği gibi bantla birbirine yapıştırın.

    Montaj için bantlanmış kutu

    Şekil 23. Kurulum için bantla birbirine yapıştırılmış kutulu ITS

  2. Mevcut deliklere göre pilot delikler oluşturmak için elektrikli matkap kullanın. Vidalar takılırken ABS plastiğin çatlamaması için pilot deliklerin 4-40 vidalar için yeterince büyük olduğundan emin olun.

    Delik açma

    Şekil 24. 4-40 vidalar için kılavuz delik açma

  3. 4-40 kendinden kılavuzlu vida kullanarak tüm panelleri birbirine vidalayın.

    Elektrikli matkap

    Şekil 25. Panelleri birleştirmek için 4-40 vida

  4. Şekil 26'da gösterilen kol parçalarını toplayın.

    Herkese açık kullanıcı adı parçaları

    Şekil 26. Herkese açık kullanıcı adı parçaları

    Donanım dört dikdörtgen plastik parça ve dört adet 6-32 vida içerir.

  5. Kolları Şekil 27'de gösterildiği gibi birleştirin.

    Birleştirilmiş kol

    27. şekil. Birleştirilmiş kol

8. Adım: Son montaj ve kurulum

Kutudaki ITS'nin son montajını yapmak için:

  1. Tablet yuvasını arka panele takın ve yüksekliği tablet boyutuna göre ayarlayın.

    Kutunun arkasındaki tablet montajı

    Şekil 28. Kutunun arkasındaki tablet yuvasındaki tablet

  2. Telefon montajları olmadan kare açıklık panelini, Şekil 29'da gösterildiği gibi 4-40 vidalarla kutunun ön tarafına takın.

    Birleştirilmiş ön panel

    Şekil 29. Birleştirilmiş ön telefon paneli

  3. 10x10 cm gator tahtası açıklığını, DUT'un kamera açıklığına sığacak şekilde yerleştirin.

    Gator panosu diyafram

    Şekil 30. Gator kartı açıklığı takılı ITS-in-a-box

  4. Kamerayı diyafram açıklığına hizalayarak telefonu takın. Tabletin açıklığından hizalamayı kontrol edin.

    Bir telefonun bulunduğu kutu

    31. şekil. Bir telefon yüklü kutulu ITS

  5. Kameralar için açıklıklar kesin. Tek bir diyafram (tek bir telefonu test etmek için) veya iki diyafram (iki telefonu test etmek için) kesebilirsiniz. Pixel ve Pixel XL ön ve arka kameralarının diyaframları Şekil 31'de gösterilmektedir. Ön kamerada flaş veya lazer olmadığı için dairesel bir diyafram bulunur. Arka kamerada ise flaş ve lazerin engellenmeden çalışmasına olanak tanıyan dikdörtgen bir diyafram bulunur.

    Örnek diyaframlar

    Şekil 32. Hem ön hem de arka kameralar için örnek diyaframlar

    İki telefon içeren kutu

    Alternatif olarak, Şekil 33'te gösterildiği gibi kartondan delikler kesip bunları kalem, sprey boya veya akrilik boya kullanarak siyah boyayabilirsiniz.

    33.Şekil Hem ön hem de arka kameralar için örnek karton diyaframlar

    Örnek karton diyafram

  6. Dijital bir lüks test cihazı kullanarak LED ışıkların lüks değerini test edin. Bu örnekte Contempo View'un YF-1065 modeli kullanılmıştır.

    Contempo Views tarafından YF-1065

    Şekil 34. Contempo Views tarafından YF-1065

  7. Işığı ölçmek için ışık ölçeri tabletin yanına yerleştirin ve 2.000 lüks değerine ayarlayın. Lümen seviyesi yaklaşık 100-300 lümen olmalıdır. Bu değerden çok daha düşük değerler test için çok loştur ve testin başarısız olmasına neden olabilir.

    Lüksmetre

    35. şekil. Tablet montajıyla arkadan gelen ışığı ölçen lüks metre

  8. Ölçülen lüks değerine bağlı olarak uygun adımı uygulayın:

    • Işık doğru seviyedeyse ön ve arka plakaları vidayla yerine takın.
    • Işık yanlış seviyedeyse LED ve güç kaynağının parça numarasının doğru olup olmadığını kontrol edin.

Dikkat etmeniz gerekenler

Aşağıda, testlerin kararsız hale gelmesine neden olabilecek yaygın üretim hatalarına dair örnekler verilmiştir.

  • Tablet deliklerinin açıldığı arka panel. Bu durum, vida delikleri tarafından oluşturulan ek daireler nedeniyle find_circle testinin başarısız olmasına neden olur.

    Delik bulunan arka panel

    Şekil 36. Delik açılmış arka panel

  • Dübeller eksik. Bu durum, ışık perdelerinin gönderim sırasında kaymasına neden olur.

    Çubuk eksik

    37. şekil. Işık perdesinde dübel eksik

  • UL listesinde bulunmayan güç kaynağı. UL listesinde yer alan bir güç kaynağı kullanmak, güç kaynağının bozulmasını önler.

    UL onaylı güç kaynağı

    38. şekil. UL listesinde yer alan güç kaynağı örneği