传感器融合盒详细信息

本页介绍了如何购买或组装传感器融合盒。在 CameraITS sensor_fusion 测试和 multi-camera 同步测试中会使用传感器融合盒。它能够提供一致的测试环境,以便衡量 Android 设备上传感器(尤其是相机图像传感器和陀螺仪)的时间戳准确度。传感器融合盒包含多个根据计算机辅助设计 (CAD) 图纸激光切割而成的塑料盒组件,以及一个伺服器控制箱。

您可以购买传感器融合盒,也可以自行制作。

购买传感器融合盒

如需购买传感器融合盒,您最好是选择以下合格的供应商。

  • Byte Bridge Inc.
    美国:1502 Crocker Ave, Hayward, CA 94544-7037
    中国:上海市徐汇区中山西路 1600 号宏汇国际广场 A 座 22 层 06-08,邮编:200235
    www.bytebt.com
    androidpartner@bytebt.com
    美国:+1-510-373-8899
    中国:+86-400-8866-490

  • JFT CO LTD 捷富通科技有限公司(之前称为 MYWAY DESIGN)
    中国大陆:No. 40, Lane 22, Heai Road, Wujing Town, Minhang District, Shanghai, China
    中国台湾:4F., No. 163, Fu-Ying Road, XinZhuang District, New Taipei City 242, Taiwan
    www.jftcoltd.com
    service@jfttec.com or its.sales@jfttec.com
    中国大陆:+86-021-64909136
    中国台湾:886-2-29089060

制作传感器融合盒

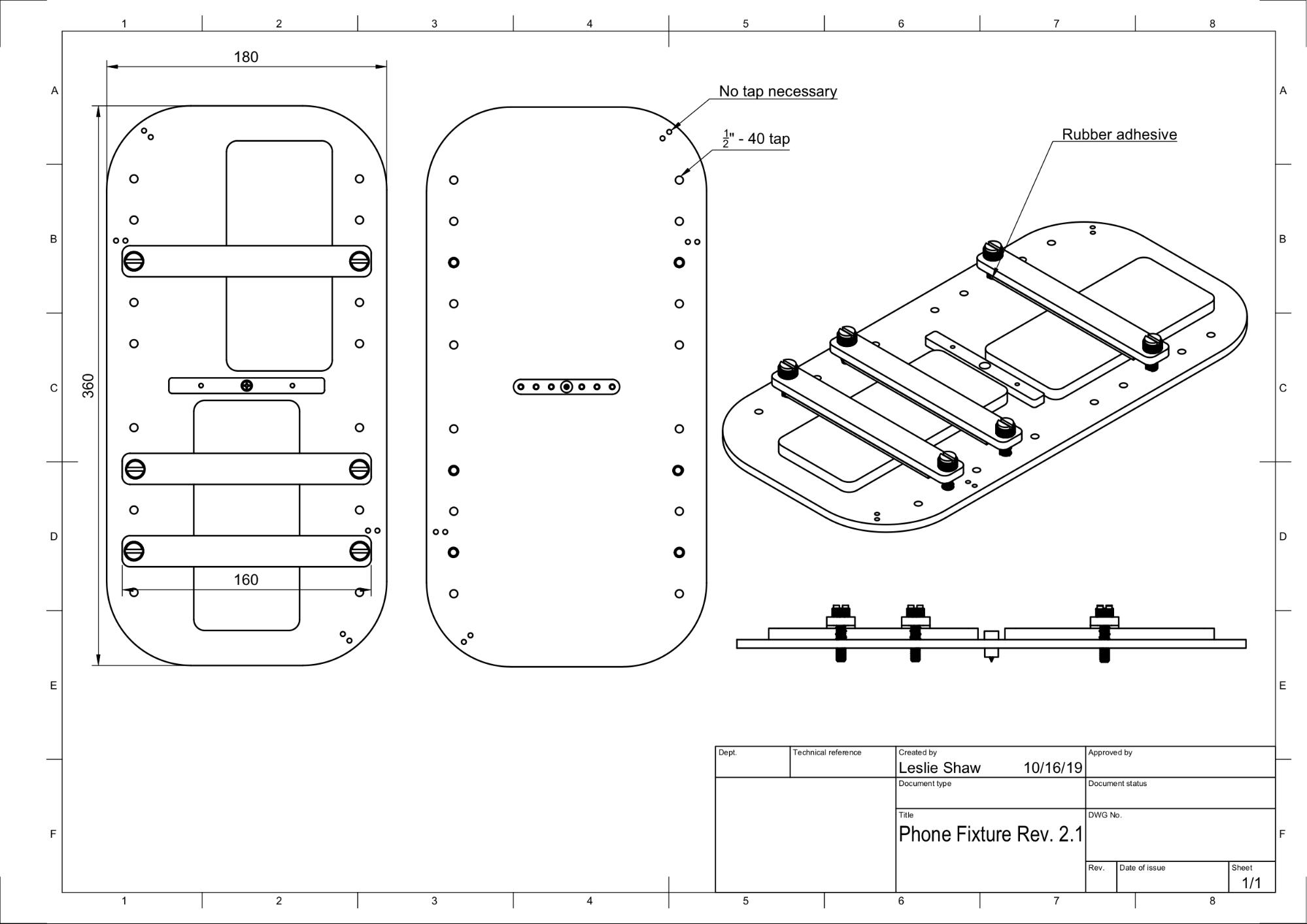
这一部分逐步介绍了如何使用激光切割的丙烯腈·丁二烯·苯乙烯 (ABS) 组件组装传感器融合盒(如图 1 所示):

传感器融合盒组件的 CAD 图纸
图 1.传感器融合盒组件的机械图纸

所需工具

开始之前,请先确保您已下载传感器融合盒的技术图纸(包含在 Sensor Fusion Box ZIP 文件中),并准备好以下工具:

  • 十字头螺丝刀
  • JIS 头螺丝刀
  • 六角扳手
  • 电钻套装
  • 美工刀
  • 胶带

第 1 步:贴乙烯基贴纸

使用激光切割机制作好 ABS 组件后,在塑料盒上贴上乙烯基贴纸,以便在测试盒内部实现适当的颜色控制:

  1. 将乙烯基贴纸贴在 ABS 组件的光滑面上(如图 2 所示)。如需关于如何贴乙烯基贴纸的实用提示,请参阅 wikiHow

  2. 使用美工刀在乙烯基贴纸上裁出必要的孔。

    ABS 组件
    图 2. 在光滑面(盒子内部)贴上了乙烯基膜的 ABS 组件

  3. 用丙烯酸胶粘剂将圆形 ABS 组件粘到底板四角。

    底板
    图 3. 四个角粘上了圆形 ABS 组件的底板。

第 2 步:准备手机托架并固定伺服器底座

如要准备手机托架以固定到伺服器上,请执行以下操作:

  1. 用一个 1/4"-20 钻头在手机夹上开 20 个孔。

    手机夹上的孔
    图 4. 开好孔的手机夹

  2. 准备好 ABS 开孔、尼龙手拧螺钉、尼龙螺母(用来根据需要调整螺钉高度)、C1 齿条 actobotics 双伺服器臂、4-40 螺钉和压缩弹簧。

    手机托架部件
    图 5. 手机托架部件

  3. 用 4-40 螺钉将伺服器臂固定(1.2 牛顿*米或 8.9 英寸*磅力)到手机托架背面。用 4-40 螺钉和螺母将手机隔板 ABS 开孔固定在手机托架正面。

    伺服器轴
    图 6. 手机夹背面的轴(已用从正面拧入的螺钉紧固)

    螺钉和螺母
    图 7. 4-40,3/4" 长螺钉和和 4-40 螺母

    手机托架伺服器臂
    图 8. 手机托架背面(左侧)和正面(右侧)

第 3 步:固定手机夹

执行以下操作即可固定手机夹:

  1. 根据 ABS 开口夹的形状,裁剪氯丁橡胶薄膜,注意两端都要短出一英寸(如图 9 所示)。裁剪好氯丁橡胶板后,把组件装到 ABS 开口夹上(如图 8 所示)。

    带有氯丁橡胶板的夹具
    图 9. 装了氯丁橡胶板的 ABS 夹具

  2. 将尼龙手拧螺钉和弹簧钢丝接到夹具。根据需要旋入尼龙螺母,从而缩小螺钉长度。

    带有螺钉、氯丁橡胶板和螺母的夹具
    图 10. 带有氯丁橡胶板、手拧螺钉、尼龙螺母和弹簧钢丝的夹具

  3. 将手机夹钳上的手拧螺钉拧入到手机夹的螺纹孔中(如图 11 所示)。您可以根据手机尺寸调整手机托架的位置。

    手机夹的 CAD 图纸
    图 11. 手机夹的机械图纸

    组装好的手机夹
    图 12. 组装好的手机夹

第 4 步:组装滑动门导轨

  1. 在盒子顶部和底部安装滑动板导轨(朝向前方)。图 13 显示的是将 6-32 螺钉固定在预攻螺纹孔中的效果。或者,您也可以使用自攻螺钉。

    安装好的导轨
    图 13. 安装在盒子顶部和底部的滑动板导轨

第 5 步:固定灯具

要固定灯架和漫射膜,请执行以下操作:

  1. 将两个手柄件叠放在一起,然后使用 6-32 螺钉(或自攻螺钉)将其组装起来。

    手柄件和组装
    图 14. 传感器融合盒手柄件及组装

  2. 准备 4 组 4-40 螺钉、螺母和盖形螺母,将灯具套件上的安装架固定在盒壁上。

    内壁上的螺钉和支架
    图 15. 盒内壁上的 4-40 螺钉和灯架

    装有螺栓的外部
    图 16. 从盒外部拧入螺孔的螺栓和盖形螺栓

  3. 将灯光漫射膜裁成合适的尺寸,以便将灯棍包裹起来(如果灯上有扩散器则不需要)。

    灯棍和灯光漫射膜
    图 17. 灯棍和灯光漫射膜

  4. 将灯光漫射膜裹在灯棍上,然后在背面用胶带粘好。

    从背面用胶带粘好的灯棍和漫射膜
    图 18. 从背面用胶带粘好的灯棍和灯光漫射膜

  5. 将灯具卡入支架(可能会有点紧)。

    内壁上的灯具
    图 19. 安装在支架中的灯具

第 6 步:将手机夹固定在伺服器板上

执行以下操作即可将手机夹固定在伺服器板上:

  1. 准备 4 个 6-32 螺钉和一个伺服器板,以便将伺服器安装到盒壁上。将伺服器固定在内壁上,然后从内测将螺钉插入位于外壁上的伺服器板中。

    伺服器和伺服器板
    图 20. 使用 6-32 螺钉固定的伺服器和伺服器板

  2. 使用尼龙锁紧螺母将手机夹固定到伺服器上(将轴的中心推入到伺服器的旋转中心)。

    伺服器上的手机夹

    图 21. 伺服装置

  3. 用伺服器随附的伺服器螺钉,通过伺服器臂将手机夹固定(1.2 牛顿*米或 8.9 英寸*磅力)到伺服器上。

    伺服器上的手机夹(带有螺钉)

    图 22. 伺服器臂

第 7 步:最终组装

执行以下操作即可完成传感器融合盒的组装:

  1. 从 Android 13 开始,传感器融合测试装置配有 Android 13 Arduino 照明控制器。(在 Android 12 或更低版本中,传感器融合装置配备的是 6 通道 Arduino 控制器或 Canakit 控制器。搭载 Android 11 到 Android 12 的设备兼容 Android 13 控制器、6 通道 Arduino 控制器或 Canakit 控制器。)将伺服器延长线连接到伺服控制器的任意通道,其中 GND 对应黑线,VCC 对应红线,SIG 对应黄线。

    Arduino 照明控制器修订版 3
    图 23. Arduino 照明控制器修订版 3

    Arduino 照明控制器修订版 3 已连接
    图 24. Arduino 照明控制器修订版 3 连接示例

  2. 用胶带将盒子粘在一起,然后用螺钉将各部件固定到一起(您可能需要在某些部件上预先钻孔)。

    用胶带粘好的盒子

    图 25. 用胶带粘好的传感器融合测试装置

  3. 对于 Android 15 或更高版本,请与当地的打印店合作,在 18 x 18 英寸的纸上打印 checkerboard.pdf 文件(包含在代码库的 test/sensor_fusion 目录中),确保棋盘格图案的宽度与纸张的宽度一致,并且将图表用胶带粘到手机夹对面的盒壁上。

    对于视野范围较小的相机(例如长焦相机),请与当地的打印店合作,制作按比例缩放的棋盘格版本。(例如,缩放比例为 50% 的图表将在 9 x 9 英寸的纸张上打印。)

    棋盘式

    图 26. 适用于 Android 15 或更高版本的棋盘格图表。

    将手机放置在手机夹上时,请确保棋盘格中心的红点正对着相机(如图 27 所示)。

    固定在手机夹对面盒壁上的棋盘格

    图 27.打印出来并用胶带粘到手机夹对面盒壁上的棋盘格。