Bu sayfada, Sensor Fusion Box'ı satın alma veya birleştirme hakkında bilgi verilmektedir. Sensör Füzyon Kutusu, CameraITS sensor_fusion testi ve multi-camera senkronizasyon testinde kullanılır. Android cihazlardaki sensörlerin, özellikle kamera görüntü sensörleri ve jiroskopların zaman damgası doğruluğunu ölçmek için tutarlı bir test ortamı sağlar. Bilgisayar destekli tasarım (CAD) çizimlerinden lazerle kesilmiş plastik kutu bileşenleri ve bir Servo Kontrol Kutusundan oluşur.
Bir sensör füzyon kutusu satın alabilir veya kendiniz oluşturabilirsiniz.
Sensör Füzyon Kutusu satın alma
Aşağıdaki nitelikli satıcılardan birinden Sensor Fusion Box satın almanızı öneririz.
Byte Bridge Inc.
ABD: 1502 Crocker Ave, Hayward, CA 94544-7037
Çin: 22F #06-08, Hongwell International Plaza Tower A, 1600 West Zhongshan Road, Xuhui, Şanghay, 200235
www.bytebt.com
androidpartner@bytebt.com
ABD: +1-510-373-8899
Çin: +86-400-8866-490JFT CO LTD 捷富通科技有限公司 (eski adıyla MYWAY DESIGN)
Çin: No. 40, Lane 22, Heai Road, Wujing Town, Minhang District, Şanghay, Çin
Tayvan: 4F., No. 163, Fu-Ying Road, XinZhuang District, New Taipei City 242, Tayvan
www.jftcoltd.com
service@jfttec.com veya its.sales@jfttec.com
Çin:+86-021-64909136
Tayvan: 886-2-29089060
Sensör Füzyon Kutusu oluşturma
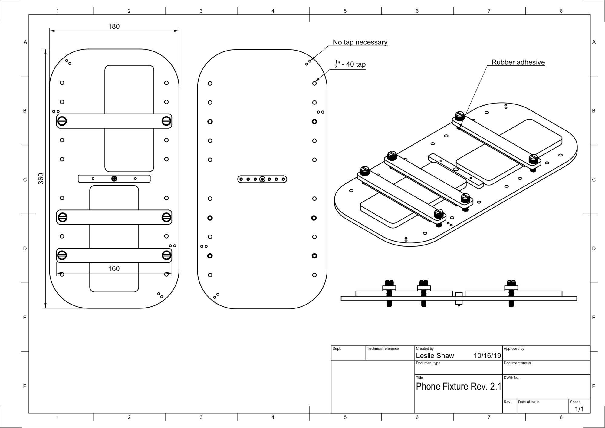
Bu bölümde, lazerle kesilmiş akrilonitril bütadien stiren (ABS) bileşenlerinden (Şekil 1'de gösterilmiştir) bir Sensör Füzyon Kutusu'nu monte etme ile ilgili adım adım talimatlar yer almaktadır.

1.Şekil Sensör Füzyon Kutusu bileşenlerinin mekanik çizimi
Gerekli araçlar
Başlamadan önce, Sensor Fusion Box'ın teknik çizimlerini indirdiğinizden ( Sensor Fusion Box zip dosyasında bulunur) ve aşağıdaki araçlara sahip olduğunuzdan emin olun:
- Yıldız başlı tornavida
- JIS başlı tornavida
- Alyan anahtarları
- Elektrikli matkap seti
- X-ACTO bıçağı
- Bant
1. adım: Vinil çıkartmaları uygulayın
ABS bileşenlerini lazer kesiciyle oluşturduktan sonra test kutusunun iç kısmında uygun renk kontrolünü elde etmek için plastik kutuya vinil çıkartmalar uygulayın:
Şekil 2'de gösterildiği gibi, ABS'nin pürüzsüz tarafına vinil uygulayın. Vinil uygulama konusunda faydalı ipuçları için wikiHow'a bakın.
Maket bıçağıyla vinilde gerekli delikleri açın.

Şekil 2. Pürüzsüz tarafına (kutunun iç kısmı) vinil uygulanmış ABS parçalarYuvarlak ABS parçalarını akrilik yapıştırıcı kullanarak alt panelin dört köşesine yapıştırın.

3.Şekil Dört köşeye yapıştırılmış yuvarlak ABS parçaları olan alt panel.
2. adım: Telefon aparatını hazırlayın ve servo aparatını takın
Telefon aparatını servoya takmaya hazırlamak için:
Telefon aparatında 1/4"-20 matkap ucuyla 20 deliğe dokunun.

Şekil 4. Dişli delikleri olan telefon fikstürüABS kesiklerinin, naylon başparmak vidalarının, naylon somunların (gerekirse vida yüksekliğini ayarlamak için), C1 spline actobotics çift servo kolunun, 4-40 vidalarının ve baskı yaylarının olduğundan emin olun.

5.şekil Telefon yuvası parçaları4-40 vidaları takın ve servo kolunu telefon montaj aparatının arkasına sıkın (1,2 N*m veya 8,9 in*lbf). Aynı vidaları ve 4-40 kapaklı somunları kullanarak telefon bölücü ABS kesiğini telefon montajının ön tarafına sıkın.

6.Şekil Armatürün arkasındaki, önden uygulanan vidalarla sıkıştırılmış mil
7.Şekil 4-40, 3/4" uzunluğunda vidalar ve 4-40 kapaklı somunlar
Şekil 8. Telefon aparatının arka (sol) ve ön (sağ) tarafı
3. adım: Telefon kelepçelerini takın
Telefon kelepçelerini takmak için:
Neopren levhayı ABS kesme kelepçelerinin şekline göre kesin ancak Şekil 9'da gösterildiği gibi her iki uçtan bir inç daha kısa bırakın. Neopren levhayı uygun şekilde kestikten sonra parçaları ABS kesme kelepçelerine Şekil 8'deki gibi uygulayın.

Şekil 9. Neopren levha uygulanmış ABS kelepçeNaylon kelebek vidaları ve yay telini kelepçeye takın. Gerekirse vida uzunluğunu azaltmak için naylon somunlar ekleyin.

10. şekil. Neopren levhalı kelepçe, kelebek vidalar, naylon somunlar ve yay teliŞekil 11'de gösterildiği gibi telefon kelepçelerinin kelebek vidalarını telefon aparatının dişli deliklerine vidalayın. Telefon tutacaklarının yerini telefonların boyutuna göre ayarlayabilirsiniz.

11.Şekil Telefon aparatının mekanik çizimi
12. şekil. Monte edilmiş telefon armatürü
4. adım: Sürgülü kapı rayını monte edin
Kutunun üst ve alt kısmındaki sürgülü panel raylarını ön tarafa doğru sabitleyin. Şekil 13'te, önceden açılmış deliklerde 6-32 vidalar gösterilmektedir. Alternatif olarak, kendinden kılavuzlu vidalar da kullanabilirsiniz.

Şekil 13. Kutunun üst ve alt kısmında sabit kayar panel rayı
5. adım: Aydınlatmayı takın
Işık braketlerini ve difüzörü takmak için:
İki tutma yerini üst üste koyun ve 6-32 vidalarla (veya kendinden kılavuzlu vidalarla) monte edin.

Şekil 14. Sensör Füzyon Kutusu kol parçaları ve montajıMontaj braketini aydınlatma kitinden kutunun duvarına sabitlemek için dört adet 4-40 vida, somun ve kapaklı somun hazırlayın.

15. Şekil. Kutunun iç duvarında 4-40 vidalar ve ışık braketi
16. şekil. Kutunun dışından vidalara uygulanan cıvatalar ve yuvarlak başlı cıvatalarIşık şeritlerini sarmak için ışık dağıtıcıyı uygun boyutta kesin (ışıklar dağıtıcıyla birlikte geliyorsa bu işlem gerekli değildir).

17. Şekil. Işık şeritleri ve ışık difüzörleriIşık dağıtıcıyı şeridin etrafına sarıp arkadan bantlayın.

18. Şekil. Arkadan bantlanmış ışık şeritleri ve ışık difüzörleriIşıkları braketlere oturtun (sıkı oturabilir).

19. Şekil. Aydınlatma armatürleri
6. adım: Telefon aparatını servo plakasına takın
Telefon aparatını servo plakasına takmak için:
Servoyu duvara sabitlemek için dört adet 6-32 vida ve bir servo plakası hazırlayın. Servoyu iç duvara sabitleyin ve vidaları iç kısımdan dış duvardaki servo plakasına takın.

20. Şekil. Servo ve servo plakası 6-32 vidalarla yerinde tutuluyorTelefon aparatını, nylock'larla servoya sabitleyin (şaftın merkezini servonun dönüş merkezine doğru itin).

Şekil 21. Servo dişlisi
Servoyla birlikte gelen servo vidasını kullanarak telefon aparatını servo kolu üzerinden servo dişlisine vidalayın (1,2 N*m veya 8,9 in*lbf).

22. şekil. Servo kolu
7. adım: Son montaj
Sensör Füzyon Kutusu'nun montajını tamamlamak için:
Android 13'ten itibaren sensör füzyon test düzeneği, Android 13 Arduino ışık denetleyicisi ile birlikte gelir. (Android 12 veya önceki sürümlerde, sensör füzyon düzeneği 6 kanallı bir Arduino denetleyici ya da Canakit denetleyici ile birlikte gönderilir. Android 11 ile Android 12 sürümlerini çalıştıran cihazlar, Android 13 kumandası, 6 kanallı Arduino kumandası veya Canakit kumandasıyla uyumludur.) Servo uzantısını servo denetleyicinin herhangi bir kanalına bağlayın. Burada GND siyah kabloya, VCC kırmızı kabloya ve SIG sarı kabloya karşılık gelir.

23. şekil. Arduino Lighting Controller Rev3
Şekil 24. Arduino aydınlatma kumandası Rev3 bağlantı örneğiKutuyu bantlayın, ardından parçaları birbirine vidalayın (bazı parçalarda önceden delik açmanız gerekebilir).

25. şekil. Bantlanmış sensör füzyonu test düzeneği
Android 15 veya sonraki sürümlerde, yerel baskı merkezinizle birlikte çalışarak dama.pdf dosyasını (kod tabanının
test/sensor_fusiondizininde bulunur) 18 x 18 inçlik kağıda, kağıdın genişliği kadar dama deseniyle yazdırın ve grafiği telefon aparatının karşısındaki duvara bantlayın.Telefoto kameralar gibi daha küçük görüş alanlarına sahip kameralar için dama tahtasının orantılı olarak ölçeklendirilmiş versiyonlarını oluşturmak üzere yerel baskı merkezinizle çalışın. (Örneğin, %50 ölçekli bir grafik 9 x 9 inçlik kağıda yazdırılır.)

26.şekil Android 15 veya daha yeni sürümler için dama grafiği.
Şekil 27'de gösterildiği gibi, dama tahtasının ortasındaki kırmızı noktanın fikstüre yerleştirildiğinde doğrudan kameraya baktığından emin olun.

27. şekil. Damalı desen, telefon aparatının karşı duvarına basılıp bantlanmış.