این صفحه اطلاعاتی در مورد نحوه خرید یا مونتاژ سنسور فیوژن باکس ارائه می دهد. Sensor Fusion Box در تست CameraITS sensor_fusion و تست همگام سازی multi-camera استفاده می شود. این یک محیط آزمایشی ثابت برای اندازهگیری دقت مهر زمانی سنسورها برای دستگاههای Android، بهویژه سنسورهای تصویر دوربین و ژیروسکوپها را فراهم میکند. این شامل اجزای جعبه پلاستیکی است که با لیزر از نقشه های طراحی به کمک کامپیوتر (CAD) برش داده شده اند و یک جعبه کنترل سروو.
شما می توانید یک جعبه سنسور فیوژن بخرید یا خودتان بسازید.
یک جعبه فیوژن سنسور بخرید
ما توصیه می کنیم جعبه سنسور فیوژن را از یکی از فروشندگان واجد شرایط زیر خریداری کنید.
Byte Bridge Inc.
ایالات متحده آمریکا: 1502 Crocker Ave, Hayward, CA 94544-7037
چین: 22F #06-08، Hongwell International Plaza Tower A, 1600 West Zhongshan Road, Xuhui, Shanghai, 200235
www.bytebt.com
androidpartner@bytebt.com
ایالات متحده آمریکا: +1-510-373-8899
چین: +86-400-8866-490JFT CO LTD 捷富通科技有限公司 (قبلاً با نام MYWAY DESIGN شناخته می شد)
چین: پلاک 40، لین 22، جاده هیی، شهر ووجینگ، منطقه مینهنگ، شانگهای، چین
تایوان: 4F.، شماره 163، جاده فو-یینگ، منطقه XinZhuang، شهر جدید تایپه 242، تایوان
www.jftcoltd.com
service@jfttec.com یا its.sales@jfttec.com
چین: +86-021-64909136
تایوان: 886-2-29089060
یک جعبه فیوژن سنسور بسازید
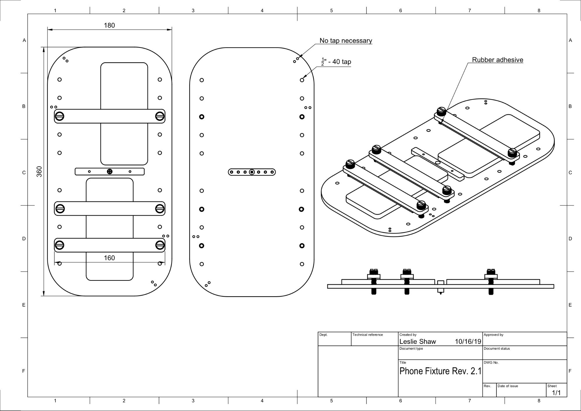
این بخش شامل دستورالعمل های گام به گام برای مونتاژ جعبه فیوژن سنسور از اجزای اکریلونیتریل بوتادین استایرن (ABS) برش لیزری است (نشان داده شده در شکل 1).

شکل 1. ترسیم مکانیکی اجزای جعبه فیوژن سنسور
ابزار مورد نیاز
قبل از شروع، مطمئن شوید که نقشه های فنی جعبه فیوژن سنسور (که در فایل فشرده Sensor Fusion Box موجود است) را دانلود کرده اید و ابزارهای زیر را در دسترس دارید:
- پیچ گوشتی سر فیلیپس
- پیچ گوشتی سر JIS
- کلیدهای شش گوش
- مجموعه مته برقی
- چاقوی X-ACTO
- نوار
مرحله 1: استیکرهای وینیل را اعمال کنید
پس از ایجاد اجزای ABS با کاتر لیزری، برچسب های وینیل را روی جعبه پلاستیکی بمالید تا کنترل رنگ مناسب را در داخل جعبه آزمایش به دست آورید:
همانطور که در شکل 2 نشان داده شده است، وینیل را در سمت صاف ABS اعمال کنید. برای راهنمایی های مفید در مورد استفاده از وینیل، به wikiHow مراجعه کنید.
سوراخ های لازم را روی وینیل با چاقوی اگزاکتو برش دهید.

شکل 2. قطعات ABS با وینیل اعمال شده در سمت صاف (داخلی جعبه)با استفاده از چسب اکریلیک، قطعات گرد ABS را روی چهار گوشه پانل زیرین بچسبانید.

شکل 3. پانل پایین با قطعات گرد ABS که به چهار گوشه چسبانده شده است.
مرحله 2: پایه تلفن را آماده کرده و پایه سروو را وصل کنید
برای آماده کردن پایه تلفن برای اتصال به سروو:
با یک مته 1/4 اینچ تا 20 روی 20 سوراخ روی دستگاه تلفن ضربه بزنید.

شکل 4. دستگاه تلفن با سوراخ های ضربه خوردهمطمئن شوید که برشهای ABS، پیچهای نایلونی انگشتی، مهرههای نایلونی (برای تنظیم ارتفاع پیچ در صورت لزوم)، بازوی سروو دوگانه Actobotics C1 spline، پیچهای 4-40 و فنرهای فشاری را دارید.

شکل 5. قطعات پایه تلفنپیچ های 4-40 را ببندید و (1.2 N*m یا 8.9 اینچ*lbf) بازوی سروو را در پشت پایه تلفن محکم کنید. با استفاده از همان پیچها و مهرههای 4-40 کلاهکی، جداکننده ABS گوشی را که در قسمت جلوی پایه گوشی قرار دارد، محکم کنید.

شکل 6. شفت در پشت فیکسچر، با پیچ هایی که از جلو اعمال می شود سفت می شود
شکل 7. پیچ های بلند 4-40، 3/4 اینچی و مهره های درپوش 4-40
شکل 8. پشت (چپ) و جلو (راست) پایه تلفن
مرحله 3: گیره های تلفن را وصل کنید
برای اتصال گیره های گوشی:
ورق نئوپرن را مطابق شکل گیره های برش ABS برش دهید، اما همانطور که در شکل 9 نشان داده شده است، یک اینچ از دو انتها کوتاهتر بگذارید.

شکل 9. گیره ABS با ورق نئوپرن اعمال شدهپیچ های نایلونی و سیم فنر را به گیره وصل کنید. در صورت نیاز، مهره های نایلونی را برای کاهش طول پیچ اضافه کنید.

شکل 10. گیره با ورق نئوپرن، پیچ های انگشتی، مهره های نایلونی و سیم فنرهمانطور که در شکل 11 نشان داده شده است، پیچ های شست گیره های تلفن را در سوراخ های ضربه خورده دستگاه تلفن پیچ کنید. می توانید مکان پایه های تلفن را بسته به اندازه تلفن ها تنظیم کنید.

شکل 11. ترسیم مکانیکی فیکسچر تلفن
شکل 12. دستگاه تلفن مونتاژ شده
مرحله 4: ریل درب کشویی را مونتاژ کنید
ریل های پانل کشویی را در بالا و پایین جعبه به سمت جلو ثابت کنید. شکل 13 6-32 پیچ را روی سوراخ های از پیش ضربه خورده نشان می دهد. از طرف دیگر، می توانید از پیچ های خودکار استفاده کنید.

شکل 13. ریل پانل کشویی ثابت در بالا و پایین جعبه
مرحله 5: نور را وصل کنید
برای اتصال براکت های نور و دیفیوزر:
دو قطعه دسته را روی هم قرار دهید و آنها را با استفاده از 6-32 پیچ (یا از پیچ های خودکار) مونتاژ کنید.

شکل 14. قطعات دسته و مجموعه جعبه فیوژن سنسورچهار پیچ، مهره و مهره بلوط 4-40 را برای ثابت کردن براکت نصب از کیت روشنایی به دیوار جعبه آماده کنید.

شکل 15. 4-40 پیچ و براکت نور روی دیوار داخلی جعبه
شکل 16. پیچ و مهره های بلوط روی پیچ ها از قسمت بیرونی جعبه اعمال می شود.پخش کننده نور را به اندازه مناسب برش دهید تا نوارهای نور را بپیچید (اگر چراغ ها همراه با پخش کننده هستند لازم نیست).

شکل 17. نوارهای نور و پخش کننده های نورپخش کننده نور را دور نوار بپیچید و آن را در پشت بچسبانید.

شکل 18. نوارهای نور و پخش کننده های نور از پشت چسبانده شده اندچراغ ها را در براکت ها بچسبانید (می تواند محکم باشد).

شکل 19. چراغ های نصب شده در براکت ها
مرحله 6: دستگاه تلفن را به صفحه سروو وصل کنید
برای اتصال فیکسچر تلفن به صفحه سروو:
چهار پیچ 6-32 و یک صفحه سروو برای ثابت کردن سروو روی دیوار آماده کنید. سروو را روی دیوار داخلی ثابت کنید و پیچ ها را از داخل داخل صفحه سرو روی دیوار بیرونی قرار دهید.

شکل 20. صفحه سروو و سروو با 6-32 پیچ در جای خود نگه داشته می شوندفیکسچر تلفن را با نایلاک روی سروو محکم کنید (مرکز شفت را به مرکز چرخش سروو فشار دهید).

شکل 21. دنده سروو
با استفاده از پیچ سروو که به همراه سروو ارائه شده است، فیکسچر تلفن (1.2 N*m یا 8.9 اینچ*lbf) را از طریق بازوی سروو روی چرخ دنده سروو بپیچید.

شکل 22. بازوی سرو
مرحله 7: مونتاژ نهایی
برای کامل مونتاژ جعبه فیوژن سنسور:
از اندروید 13، دستگاه تست فیوژن سنسور با کنترلر روشنایی آردوینو اندروید 13 عرضه می شود. (در اندروید 12 یا پایینتر، دستگاه فیوژن سنسور با یک کنترلکننده آردوینو 6 کانالی یا یک کنترلکننده Canakit ارسال میشود. دستگاههای دارای Android 11 تا Android 12 با کنترلکننده Android 13، کنترلکننده Arduino 6 کانال یا کنترلکننده Canakit سازگار هستند.) سروو را به هر کانالی که با سیم مشکی ND مربوط به کنترلر سروو VCC مربوط میشود، وصل کنید. سیم، و SIG مربوط به سیم زرد است.

شکل 23. Arduino Lighting Controller Rev3
شکل 24. نمونه اتصال کنترلر روشنایی آردوینو Rev3جعبه را به هم بچسبانید، سپس قطعات را به هم بچسبانید (ممکن است لازم باشد در برخی از قسمت ها از قبل سوراخ کنید).

شکل 25. دکل تست همجوشی سنسور نواری
برای Android 15 یا بالاتر، با چاپخانه محلی خود کار کنید تا فایل checkerboard.pdf (که در فهرست
test/sensor_fusionپایگاه کد موجود است) را روی کاغذ 18 × 18 اینچی با الگوی شطرنجی به عرض کاغذ چاپ کنید و نمودار را روی دیوار روبروی دستگاه تلفن بچسبانید.برای دوربینهایی با میدان دید کوچکتر، مانند دوربینهای تلهفوتو، با چاپخانه محلیتان کار کنید تا نسخههایی از صفحه شطرنجی با مقیاس متناسب ایجاد کنید. (به عنوان مثال، یک نمودار با مقیاس 50٪ روی کاغذ 9 در 9 اینچ چاپ می شود.)

شکل 26. نمودار شطرنجی برای اندروید 15 یا بالاتر.
همانطور که در شکل 27 نشان داده شده است، اطمینان حاصل کنید که نقطه قرمز در مرکز شطرنجی هنگامی که روی فیکسچر قرار می گیرد، مستقیماً رو به دوربین باشد.

شکل 27. تخته شطرنجی چاپ شده و به دیوار مقابل دستگاه تلفن چسبانده شده است.