取得廣角視野攝影機

Android 包含 ITS-in-a-box 修訂版 2,這是相機影像測試套件 (ITS) 中,適用於廣角視野 (WFoV) 和一般視野 (RFoV) 攝影機系統的自動化測試系統。修訂版 1 的設計目的是測試視角小於 90 度的行動裝置攝影機 (RFoV)。

廣角視野測試盒 (修訂版 2) 的設計也適用於視野大於 90 度的相機 (廣角視野),因此您可以使用一個 ITS 測試盒系統,測試視野不同的相機,前提是相機可以聚焦在約 20 公分處。

ITS-in-a-box 系統包含:以電腦輔助設計 (CAD) 圖繪雷射切割的塑膠盒、內部照明系統、圖表平板電腦,以及受測裝置 (DUT)。您可以購買 ITS-in-a-box,也可以自行建構。

購買 WFoV ITS-in-a-box

建議您向下列合格供應商購買 WFoV ITS-in-a-box。

  • Byte Bridge Inc.
    美國:1502 Crocker Ave, Hayward, CA 94544-7037
    中國:上海市徐匯區中山西路 1600 號宏匯國際廣場 A 座 22 樓 06-08 室,200235
    www.bytebt.com
    androidpartner@bytebt.com
    美國:+1-510-373-8899
    中國:+86-400-8866-490

  • JFT CO LTD 捷富通科技有限公司 (前身為 MYWAY DESIGN)
    中國:中國上海市閔行區吳涇鎮和艾路 22 弄 40 號
    臺灣:4F., 臺灣新北市新莊區福營路 163 號 (郵遞區號:242)
    www.jftcoltd.com
    service@jfttec.com 或 its.sales@jfttec.com
    中國:+86-021-64909136
    臺灣:886-2-29089060

教學影片

這部影片教學課程說明如何設定 WFoV ITS-in-a-a-box。

建構 WFoV ITS-in-a-box

您可以自行建構 WFoV ITS-in-a-box (修訂版 2),不必購買。本節提供逐步說明,教您如何組裝 WFoV ITS-in-a-box (修訂版 2),以便測試廣角攝影機 (大於 90 度)。

修訂記錄

下表說明 Camera ITS WFoV 裝置的修訂記錄,並提供各個版本生產檔案的下載連結。

日期 修訂版本 下載正式版檔案 變更記錄
2022 年 12 月 2.9 次 WFoV Rev 2.9
  • 新增支援平板電腦測試的安裝機制。
  • 將手機支架改為不對稱設計。
  • 將孔徑設計從空白泡棉板改為一般設計。
2019 年 10 月 2.8 次 無法使用
  • 在製作文件新增光圈設計。
  • 在測試裝置底部新增支腳,提供更完善的支撐。
  • 修訂 C 型夾設計,提升銷釘的貼合度。
  • 修改前光圈板,擴大手機支架的活動範圍。
2018 年 10 月 2.7 次 無法使用
  • 將 BOM (#16) 中的燈具換成 UL 列出的 LED 燈帶,以提高製造一致性。
  • 將 BOM 中的電源供應器切換至與 #16 相同的來源。
  • 將平板電腦支架加寬 35 公釐,以配合平板電腦開口 (機械圖第 4 頁)
  • 修訂前夾孔間距 (距離),與夾鉗槽長度一致 (機械圖第 5 頁)
  • 將前光圈圓直徑縮小 20 公釐,以符合 RFoV ITS-in-a-box。
2018 年 8 月 2.6 次 無法使用
  • 內部發布,修正機械圖。
2018 年 8 月 土耳其里拉 無法使用
  • 簡化平板電腦支架,使其與手機支架類似。
  • 採用噴砂處理,而非陽極處理,以降低成本。
  • 物料清單中 LED 燈的修正規格
2018 年 6 月 2.4 無法使用
  • 從壓克力改用 ABS 材質,減少運送過程中的損壞。
  • 移除 3D 列印元素,改用雷射切割 ABS,以降低成本。
  • 將方塊控點改為使用 ABS,而非在 BOM 上購買的個別項目。

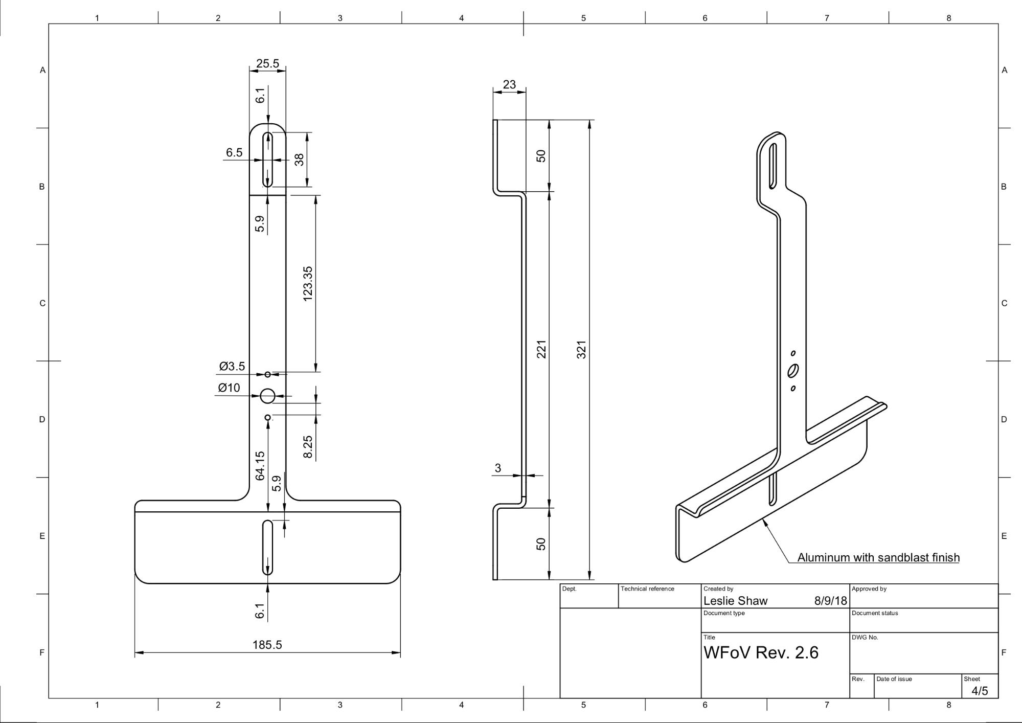
機械圖

下圖為 WFoV ITS-in-a-box 的機械圖,顯示組裝所需的材料。 如要開始使用,請下載 WFoV ITS-in-a-box 的最新正式版檔案。

WFOV ITS-in-a-box 的 CAD 圖

圖 1. WFoV ITS-in-a-box 的機械圖

從物料清單 (BOM) 購買硬體。剪下塑膠和乙烯基片。

必要工具

備妥下列工具:

  • 十字型螺絲起子
  • 尖嘴鉗
  • 剪線鉗
  • 剪刀
  • 噴水瓶
  • 美工刀

步驟 1:貼上彩色貼紙

如何套用彩色黑膠唱片:

  1. 將彩色乙烯基貼紙貼在丙烯腈丁二烯苯乙烯 (ABS) 的平滑面,並如圖 2 所示剪出必要的開口。請務必將白色乙烯基貼紙貼在平板電腦側,並將黑色乙烯基貼紙貼在手機側。

    如圖 2 所示,將灰色乙烯基貼紙貼在側邊面板上,然後如圖 3 所示,將腳架黏在底部面板的四個角落。

    詳情請參閱 wikiHow

    ABS 片,平滑面貼上乙烯基

    圖 2. ABS 片,平滑面貼上乙烯基 (盒子內部)

  2. 如圖 3 所示,將腳墊貼在底板的四個角落。

    底部面板腳架

    圖 3. 底板四個角落的腳架

步驟 2:組裝並安裝燈軌

如要組裝並安裝含 LED 燈條的燈架結構,請按照下列步驟操作:

  1. 查看燈架結構的機械圖。

    以 LED 燈條打造的輕型框架結構

    圖 4. 以 LED 燈條打造的輕型框架結構

  2. 準備塑膠擋光板、燈架、LED 燈條和束帶。

    擋光板、燈架、LED 燈條和束帶

    圖 5. 擋光板和燈架

  3. 如圖 6 所示,將塑膠擋光板扣在燈架上。 這時應該會緊密貼合。

    安裝在燈座中的塑膠擋光板

    圖 6. 安裝在燈座中的塑膠擋光板

  4. 如圖 7 所示,將燈架扣在側邊面板上。完成後,光線會照向盒子的前側角落。

    將擋光板和支架扣在側邊面板上

    圖 7. 將擋光板和支架扣在側邊面板上

  5. 組裝側邊面板。(選用:打磨擋板邊緣,讓擋板更貼合。)

    組裝並鎖上側邊面板

    圖 8. 組裝並鎖上側邊面板

  6. 如圖 9 所示,將插銷擠入矩形凸片的小孔,固定擋光板。矩形凸片會穿過側邊面板的插槽。

    在 LED 支架分頁中插入 PIN 碼

    圖 9.插入 LED 支架凸片的插針特寫

  7. 將燈條在朝下的擋板上纏繞兩圈。使用束帶固定燈條,並將兩端扣在一起。 (選用:除了束帶,還可使用 LED 燈條背面的膠帶,方便纏繞。)

    LED 燈條纏繞在擋板上

    圖 10. 用束帶將 LED 燈條纏繞在擋板上

    用束帶固定 LED 燈條

    圖 11. 用束帶固定 LED 燈條

  8. 如圖 12 和 13 所示,剪斷束帶兩端。

    擋板周圍的 LED 燈熄滅

    圖 12. LED 燈繞過擋板兩次,然後從側邊出口離開

    束線帶朝上

    圖 13. 朝上的側邊顯示束帶 (LED 燈條位於另一側)

步驟 3:組裝平板電腦和手機支架

如要組裝平板電腦和手機支架,請按照下列步驟操作:

  1. 查看平板電腦支架的機械圖。

    平板電腦支架的機械圖

    圖 14. 平板電腦支架的機械圖

  2. 如圖 15 所示,收集零件。

    平板電腦和手機支架零件

    圖 15. 平板電腦和手機支架,附螺絲、柱塞、乙烯基蓋和螺帽

  3. 將橡膠尖端剪短,以免妨礙活塞運作 (大約剪一半),然後將橡膠尖端推入活塞末端。縮短乙烯基蓋長度可確保活塞機制能夠縮回並鎖定。

    調整過按壓式蓋子的活塞

    圖 16. 調整過按壓式蓋子的活塞

  4. 將柱塞鎖在支架上。

    附有吸盤的平板電腦和手機架

    圖 17. 附有吸盤的平板電腦和手機架

步驟 4:最後組裝

如何組裝 WFoV ITS 盒:

  1. 收集前光圈板,並使用 4-40 螺絲將較小的板子鎖在較大的板子上,如圖 18 所示。

    從光圈板和手機固定板

    圖 18. 前光圈板和手機固定板

    組裝完成的前光圈板

    圖 19. 前孔板和手機支架板以 4-40 螺絲鎖在一起

  2. 將前後面板黏貼到包裝盒上。

    WFoV 盒裝,兩側以螺絲固定

    圖 20. WFoV 盒裝,側邊以螺絲固定,前後面板以膠帶黏貼

  3. 使用電鑽,根據現有孔洞鑽出導孔。請確保導引孔夠大,可容納 4-40 螺絲,以免插入螺絲時 ABS 塑膠破裂。

    導孔

    圖 21. 為 4-40 螺絲鑽出導孔

  4. 使用 4-40 自攻螺絲將所有面板鎖在一起。

    組裝用 4-40 螺絲

    圖 22. 組裝用 4-40 螺絲

  5. 如圖 23 所示,收集把手零件。

    把手零件

    圖 23. 把手零件

  6. 如圖 24 所示組裝把手。

    組裝好的把手

    圖 24. 組裝好的把手

  7. 確認電源變壓器為 12V、5A,且具有 UL 列名認證。低於 12V 的電壓無法運作。如果低於 5A,可能會影響燈具亮度。

    12V、5A 電源變壓器

    圖 25. 通過 UL 認證的 12V、5A 電源變壓器

  8. 使用數位照度計測試 LED 燈的照度,確保照度達到適當程度。

    將照度計放在平板電腦側邊,並轉到 2000 勒克斯,即可測量光線。照度應介於 100 至 300 之間。如果亮度明顯偏低,測試就會太暗而導致失敗。

    本範例使用 Contempo Views 的 YF-1065 照度計。

    Contempo Views 的 YF-1065

    圖 26. Contempo Views 的 YF-1065

    照度計

    圖 27. 使用平板電腦支架從側面測量光線的照度計

  9. 根據測得的照度值,按照適當步驟操作:

    • 確認燈光亮度適中後,將前後板鎖入定位。
    • 如果燈光亮度不正確,請確認 LED 和電源供應器零件編號是否正確。
  10. 使用螺絲和螺帽,將手機支架安裝在孔板上,平板電腦支架則安裝在孔板的另一側。

    平板電腦支架

    圖 28. 平板電腦支架特寫

    組裝完成的 WFoV 盒

    圖 29. 組裝完成的 WFoV 盒裝:背面 (左) 和正面 (右)

  11. 插入 10x10 公分鱷魚板孔徑,配合 DUT 的相機孔徑。

    鱷魚板開口

    圖 30. 已安裝 Gator 板孔徑的 ITS-in-a-box

  12. 將手機的鏡頭對準孔洞,然後安裝手機。 透過平板電腦開口檢查對齊情形。

    已安裝一部手機的盒子

    圖 31. 安裝一部手機的 ITS-in-a-box

  13. 為攝影機開孔。你可以剪出一個孔洞 (測試單一手機) 或兩個孔洞 (測試兩部手機)。圖 32 顯示 Pixel 和 Pixel XL 前置和後置鏡頭的光圈。前置鏡頭沒有閃光燈或雷射,因此採用圓形光圈;後置鏡頭則採用矩形光圈,讓閃光燈和雷射能正常運作,不會受到阻擋。

    前置和後置鏡頭的光圈

    圖 32. 前置和後置鏡頭的範例光圈

    圖片

    圖 33. 安裝兩部手機的 ITS-in-a-box

    或者,您也可以用紙板剪出光圈,然後用麥克筆、噴漆或壓克力顏料塗黑,如圖 34 所示。

    圖片

    圖 34. 前置和後置鏡頭的紙板光圈範例

注意事項

以下列舉常見的製造錯誤,這些錯誤可能會導致測試不穩定。

  • 背板,平板電腦孔洞已穿孔。這會導致 find_circle 測試失敗,因為螺絲孔會產生額外的圓圈。

    有孔的背板

    圖 35. 背面面板,有孔洞

  • 缺少木銷。這會導致光擋在運送過程中滑出。

    缺少木栓

    圖 36. 光擋板缺少木栓

  • 非 UL 列名的電源供應器。使用符合 UL 標準的電源插頭,可滿足標示的規格。這對安全操作燈具非常重要。

    通過 UL 認證的電源供應器

    圖 37. UL 認證電源供應器範例

  • 平板電腦或手機支架上的螺絲鬆脫,無法支撐平板電腦或手機的重量。這通常是螺紋損壞所致,表示孔洞需要重新穿線。

    螺紋受損的孔洞

    圖 38. 螺紋受損的孔洞