넓은 시야(WFoV) 상자

Android에는 카메라 이미지 테스트 모음(ITS)의 넓은 시야(WFoV) 카메라 시스템과 일반 시야(RFoV) 카메라 시스템 모두를 위한 자동 테스트 시스템인 ITS-in-a-box 버전 2가 포함되어 있습니다. 버전 1은 시야(FoV)가 90도 미만(RFoV)인 휴대기기 카메라를 테스트하도록 설계되었습니다.

넓은 시야 상자(버전 2)는 FoV가 90도를 초과(WFoV)하는 카메라도 테스트하도록 설계되었으며, 이를 통해 카메라가 약 20cm에 초점을 맞출 수 있는 경우 하나의 ITS-in-a-box 시스템을 사용하여 다양한 FoV가 있는 여러 카메라를 테스트할 수 있습니다.

ITS-in-a-box 시스템은 컴퓨터 지원 설계(CAD) 도면을 통해 레이저 절단한 플라스틱 상자, 내부 조명 시스템, 차트 태블릿 및 테스트 대상 기기(DUT)로 구성됩니다. ITS-in-a-box는 구매하거나 직접 제작할 수 있습니다.

WFoV ITS-in-a-box 구매하기

WFoV ITS-in-a-box는 다음 공인 공급업체에서 구매하는 것이 좋습니다.

  • Byte Bridge Inc.
    미국: 1502 Crocker Ave, Hayward, CA 94544-7037
    중국: 22F #06-08, Hongwell International Plaza Tower A, 1600 West Zhongshan Road, Xuhui, Shanghai, 200235
    www.bytebt.com
    androidpartner@bytebt.com
    미국: +1-510-373-8899
    중국: +86-400-8866-490

  • JFT CO LTD 捷富通科技有限公司(이전 명칭: MYWAY DESIGN)
    중국: No. 40, Lane 22, Heai Road, Wujing Town, Minhang District, Shanghai, China
    타이완: 4F., No. 163, Fu-Ying Road, XinZhuang District, New Taipei City 242, Taiwan
    www.jftcoltd.com
    service@jfttec.com or its.sales@jfttec.com
    중국: +86-021-64909136
    타이완: 886-2-29089060

동영상 튜토리얼

다음은 WFoV ITS-in-a-box를 제작하는 방법에 관한 동영상 튜토리얼입니다.

WFoV ITS-in-a-box 제작하기

WFoV ITS-in-a-box(버전 2)를 구매하는 대신 직접 제작할 수 있습니다. 이 섹션에는 넓은 시야(90도 초과)의 카메라를 테스트할 수 있는 WFoV ITS-in-a-box(버전 2)를 조립하는 단계별 안내가 나와 있습니다.

업데이트 기록

다음 표에는 카메라 ITS WFoV 장비의 업데이트 기록이 설명되어 있으며 프로덕션 파일의 각 버전에 대한 다운로드 링크가 포함되어 있습니다.

날짜 버전 프로덕션 파일 다운로드 변경 로그
2022년 12월 2.9 WFoV 버전 2.9
  • 태블릿 테스트를 지원하는 마운트 메커니즘을 추가했습니다.
  • 스마트폰 마운트를 비대칭으로 수정했습니다.
  • 조리개 설계를 빈 폼 보드에서 일반 디자인으로 수정했습니다.
2019년 10월 2.8 사용할 수 없음
  • 프로덕션 문서에 조리개 설계를 추가했습니다.
  • 지지력을 향상하기 위해 테스트 장비 바닥에 받침대를 추가했습니다.
  • C-클램프 설계를 수정하여 다월 맞춤을 개선했습니다.
  • 전면 조리개 플레이트를 수정하여 스마트폰 마운트에 더 넓은 범위의 움직임을 제공합니다.
2018년 10월 2.7 사용할 수 없음
  • BOM(#16)의 조명을 UL 규격 LED 테이프로 바꿔서 제작 일관성을 높였습니다.
  • BOM의 전원 공급 장치를 #16과 동일한 소스로 바꿨습니다.
  • 태블릿 개구부에 맞게 태블릿 마운트를 35mm 더 넓게 수정했습니다(기계 도면 4페이지).
  • 클램프 슬롯 길이와 일치하도록 전면 클램프 구멍 간격(거리)을 수정했습니다(기계 도면 5페이지).
  • RFoV ITS-in-a-box에 맞게 전면 조리개 원 직경을 20mm 줄였습니다.
2018년 8월 2.6 사용할 수 없음
  • 기계 도면 수정을 위해 내부적으로 출시되었습니다.
2018년 8월 2.5 사용할 수 없음
  • 태블릿 마운트를 스마트폰 마운트와 유사하게 단순화했습니다.
  • 양극 산화 처리 마감 대신 샌드블라스트 마감을 사용하여 비용을 줄였습니다.
  • BOM의 LED 조명 사양을 수정했습니다.
2018년 6월 2.4 사용할 수 없음
  • 이동 중 손상을 줄이기 위해 아크릴에서 ABS 재질로 바꿨습니다.
  • 3D 프린팅 요소를 없애고 레이저 절단 ABS로 교체하여 비용을 줄였습니다.
  • BOM의 별도 구매 품목이 아닌 ABS를 사용하도록 상자 핸들을 변경했습니다.

기계 도면

다음의 WFoV ITS-in-a-box 기계 도면은 조립에 필요한 자재를 보여줍니다. 시작하려면 최신 WFoV ITS-in-a-box용 프로덕션 파일을 다운로드하세요.

WFOV ITS-in-a-box의 CAD 도면

그림 1. WFoV ITS-in-a-box의 기계 도면

재료명세서(BOM)의 하드웨어를 구매합니다. 플라스틱 및 비닐 조각을 자릅니다.

필수 도구

다음 도구를 준비합니다.

  • 십자드라이버
  • 니들 노즈 플라이어
  • 와이어 절단기
  • 가위
  • 물 분무기
  • X-ACTO 칼

1단계: 컬러 비닐 부착

컬러 비닐을 부착하는 방법은 다음과 같습니다.

  1. ABS(아크릴로나이트릴 부타디엔 스타이렌) 재질의 매끄러운 면에 컬러 비닐을 부착하고 그림 2와 같이 필요한 개구부를 잘라냅니다. 태블릿 쪽에 큰 직사각형 개구부가 있는 흰색 비닐을 부착하고 상자의 휴대기기 쪽에 원형 개구부가 있는 검은색 비닐을 부착해야 합니다.

    그림 2와 같이 측면 패널에 회색 비닐을 부착하고 그림 3과 같이 하단 패널의 네 모서리에 받침대를 접착제로 붙입니다.

    자세한 내용은 wikiHow를 참고하세요.

    매끄러운 면에 비닐이 부착된 ABS 부품

    그림 2. 매끄러운 면에 비닐이 부착된 ABS 부품(상자 내부)

  2. 그림 3과 같이 하단 패널의 네 모서리에 받침대를 부착합니다.

    하단 패널 받침대

    그림 3. 하단 패널 네 모서리의 받침대

2단계: 라이트 레일 조립 및 설치

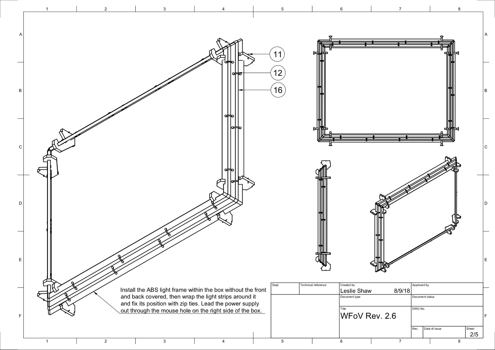
LED 조명 스트립이 있는 라이트 프레임 구조를 조립하고 설치하려면 다음 단계를 따르세요.

  1. 라이트 프레임 구조의 기계 도면을 검토합니다.

    LED 조명 스트립이 있는 라이트 프레임 구조

    그림 4. LED 조명 스트립이 있는 라이트 프레임 구조

  2. 플라스틱 라이트 배플, 라이트 마운트, LED 조명 스트립 및 케이블 타이를 준비합니다.

    라이트 배플, 라이트 마운트, LED 조명 스트립 및 케이블 타이

    그림 5. 라이트 배플 및 라이트 마운트

  3. 그림 6과 같이 라이트 마운트에 플라스틱 라이트 배플을 끼웁니다. 딱 맞아서 단단하게 고정되어야 합니다.

    라이트 마운트에 단단히 끼운 플라스틱 라이트 배플

    그림 6. 라이트 마운트에 단단히 끼운 플라스틱 라이트 배플

  4. 그림 7과 같이 측면 패널에 라이트 마운트를 끼웁니다. 완료되면 빛이 상자 내부의 전면 모서리를 향해 빛납니다.

    측면 패널에 끼워 고정한 라이트 배플 및 마운트

    그림 7. 측면 패널에 끼워 고정한 라이트 배플 및 마운트

  5. 측면 패널을 조립합니다. (선택사항: 더 잘 들어맞도록 배플의 가장자리를 연마합니다.)

    조립하여 나사로 고정한 측면 패널

    그림 8. 조립하여 나사로 고정한 측면 패널

  6. 그림 9와 같이 측면 패널의 슬롯을 통해 연장되는 직사각형 탭의 작은 구멍에 핀을 끼워 넣어 라이트 배플을 고정합니다.

    LED 마운트 탭에 끼워 넣은 핀

    그림 9. 상자 외부의 LED 마운트 탭에 끼워 넣은 핀 클로즈업

  7. 조명 스트립으로 측면이 아래로 향한 배플을 빙 둘러서 두 번 감습니다. 케이블 타이를 사용하여 스트립을 묶고 끝을 서로 결속합니다. (선택사항: 케이블 타이 외에도 LED 조명 스트립 뒷면의 테이프를 사용하면 더 쉽게 감을 수 있습니다.)

    배플을 빙 둘러서 감은 LED 조명 스트립

    그림 10. 케이블 타이가 있는 배플을 빙 둘러서 감은 LED 조명 스트립

    LED 조명 스트립을 고정하는 케이블 타이

    그림 11. LED 조명 스트립을 제자리에 고정하는 케이블 타이

  8. 그림 12 및 13과 같이 케이블 타이의 끝을 자릅니다

    배플을 빙 두르고 외부로 나가는 LED 조명

    그림 12. 배플을 빙 둘러서 두 번 감고 측면 출구를 통해 나가는 LED 조명

    위로 향한 케이블 타이

    그림 13. 위로 향한 측면의 케이블 타이 모습(LED 스트립은 반대편에 있음)

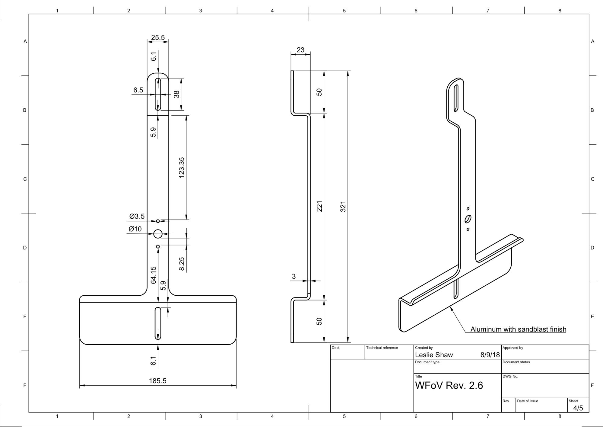
3단계: 태블릿 및 스마트폰 마운트 조립

태블릿 및 스마트폰 마운트를 조립하려면 다음 단계를 따르세요.

  1. 태블릿 마운트의 기계 도면을 검토합니다.

    태블릿 마운트의 기계 도면

    그림 14. 태블릿 마운트의 기계 도면

  2. 그림 15와 같이 부품을 준비합니다.

    태블릿 및 스마트폰 마운트 부품

    그림 15. 태블릿 및 스마트폰 마운트와 나사, 플런저, 비닐 캡 및 너트

  3. 플런저 작동을 방해하지 않을 정도로 고무 팁을 짧게(대략 절반 정도) 자르고 플런저의 끝으로 밀어 넣습니다. 비닐 캡 길이가 더 짧으면 플런저 메커니즘을 저해하고 잠글 수 있습니다.

    푸시-온 캡을 조정한 플런저

    그림 16. 푸시-온 캡을 조정한 플런저

  4. 플런저를 마운트에 나사로 고정합니다.

    플런저가 장착된 태블릿 및 스마트폰 마운트

    그림 17. 플런저가 장착된 태블릿 및 스마트폰 마운트

4단계: 최종 조립

WFoV ITS 상자를 조립하려면 다음 단계를 따르세요.

  1. 그림 18과 같이 전면 조리개 플레이트를 모아 준비한 후 4-40 나사를 사용하여 큰 플레이트 위에 정사각형이 있는 작은 플레이트를 고정합니다.

    전면 조리개 플레이트 및 스마트폰 마운트 플레이트

    그림 18. 전면 조리개 플레이트 및 스마트폰 마운트 플레이트

    조립한 전면 조리개 플레이트

    그림 19. 4-40 나사로 조여 고정한 전면 조리개 플레이트 및 스마트폰 마운트 플레이트

  2. 전면 및 후면 패널을 테이프로 상자에 부착합니다.

    측면이 나사로 조여 고정된 WFoV 상자

    그림 20. 측면이 나사로 조여 고정되고 전면 및 후면 패널이 테이프로 부착된 WFoV 상자

  3. 전동 드릴을 사용하여 기존 구멍을 기반으로 파일럿 구멍을 만듭니다. 나사를 끼울 때 ABS 플라스틱이 갈라지지 않도록 파일럿 구멍이 4-40 나사를 사용하기에 충분한 크기인지 확인합니다.

    파일럿 구멍

    그림 21. 드릴로 4-40 나사용 파일럿 구멍 뚫기

  4. 4-40 자체 태핑 나사를 사용하여 모든 패널을 나사로 고정합니다.

    4-40 나사를 사용하여 조립

    그림 22. 4-40 나사를 사용하여 조립

  5. 그림 23과 같이 핸들 부품을 준비합니다.

    핸들 부품

    그림 23. 핸들 부품

  6. 그림 24와 같이 핸들을 조립합니다.

    조립한 핸들

    그림 24. 조립한 핸들

  7. 전원 어댑터가 12V, 5A이고 UL 인증을 받았는지 확인합니다. 전원 어댑터가 12V 미만이면 작동하지 않습니다. 5A 미만이면 조명의 밝기 수준에 영향을 줄 수 있습니다.

    12V, 5A 전원 어댑터

    그림 25. UL 인증을 받은 12V, 5A 전원 어댑터

  8. 디지털 럭스 측정기를 사용해 LED 조명의 럭스를 테스트하여 럭스가 적절한 수준인지 확인합니다.

    태블릿 측에 조도계를 놓고 2,000럭스로 돌려서 조도를 측정합니다. 럭스는 대략 100~130 정도여야 합니다. 이보다 상당히 낮다면 테스트하기에 너무 어두침침하므로 테스트가 실패할 수 있습니다.

    이 예에서는 Contempo Views의 YF-1065 럭스 측정기를 사용합니다.

    Contempo Views의 YF-1065

    그림 26. Contempo Views의 YF-1065

    럭스 측정기

    그림 27. 태블릿 마운트가 있는 쪽에서 조도를 측정하는 럭스 측정기

  9. 측정된 럭스 값에 따라 다음 중 적절한 단계를 따르세요.

    • 조도가 적절한 수준이면 전면 및 후면 플레이트를 나사로 제자리에 고정합니다.
    • 조도 수준이 적절하지 않으면 LED 및 전원 공급 장치 부품 번호가 올바른지 확인합니다.
  10. 나사 및 너트를 사용하여 조리개 플레이트에 스마트폰 마운트를, 반대쪽에 태블릿 마운트를 장착합니다.

    태블릿 마운트

    그림 28. 태블릿 마운트의 클로즈업

    조립한 WFoV 상자

    그림 29. 조립한 WFoV 상자: 후면 보기(왼쪽) 및 전면 보기(오른쪽)

  11. DUT의 카메라 조리개에 맞게 10x10cm 게이터 보드 조리개를 삽입합니다.

    게이터 보드 조리개

    그림 30. 게이터 보드 조리개를 설치한 ITS-in-a-box

  12. 스마트폰을 설치합니다. 이때 조리개 구멍에 맞춰 카메라를 정렬합니다. 태블릿 개구부를 통해 정렬을 확인합니다.

    스마트폰 1대를 설치한 상자

    그림 31. 스마트폰 1대를 설치한 ITS-in-a-box

  13. 카메라용 조리개 구멍을 자릅니다. 조리개 구멍은 1개(단일 스마트폰 테스트용) 또는 2개(2대의 스마트폰 테스트용)로 절단하면 됩니다. 그림 32에 Pixel 및 Pixel XL의 전면 및 후면 카메라용 조리개 구멍이 나와 있습니다. 전면 카메라에는 플래시 또는 레이저가 없기 때문에 원형 조리개 구멍이 있지만, 후면 카메라에는 플래시와 레이저가 차단되지 않고 작동할 수 있도록 직사각형 조리개 구멍이 있습니다.

    전면 및 후면 카메라용 조리개 구멍

    그림 32. 전면 및 후면 카메라용 조리개 구멍 샘플

    이미지

    그림 33. 스마트폰 2대를 설치한 ITS-in-a-box

    또는, 또는, 그림 34와 같이 판지를 잘라 조리개 구멍을 만들고 마커, 스프레이 페인트 또는 아크릴 물감을 사용하여 검은색으로 칠합니다.

    이미지

    그림 34. 판지로 제작한 전면 및 후면 카메라용 조리개 구멍 샘플

주의사항

다음은 테스트 결함을 일으킬 수 있는 일반적인 제작 오류의 예입니다.

  • 태블릿이 있는 후면 패널에 구멍이 뚫려 있습니다. 이 구멍이 있어 나사 구멍에 의해 생성된 추가 원 때문에 find_circle 테스트가 실패합니다.

    구멍이 있는 후면 패널

    그림 35. 구멍이 뚫려 있는 후면 패널

  • 다월이 없습니다. 따라서 이동 중에 라이트 배플이 빠져나올 수 있습니다.

    다월 누락

    그림 36. 라이트 배플에 다월이 없음

  • UL 인증을 받지 않은 전원 공급 장치를 사용했습니다. UL 규격의 전원 공급 장치를 사용해야 라벨 지정 사양이 충족됩니다. 규격 장치의 사용은 조명을 안전하게 작동하는 데 중요합니다.

    UL 규격 전원 공급 장치

    그림 37. UL 규격 전원 공급 장치의 예

  • 태블릿 또는 스마트폰 마운트의 나사가 살짝 끼워져 있어 태블릿 또는 스마트폰의 무게를 지탱할 수 없습니다. 이런 일은 일반적으로 손상된 나사산에 의해 일어날 수 있으며 조임이 헐거워졌다면 구멍을 다시 나사로 조여야 합니다.

    나사산이 손상된 구멍

    그림 38. 나사산이 손상된 구멍