Android 推出了盒装 ITS 修订版 2,这是相机图像测试套件 (ITS) 中的一种自动测试系统,适用于宽视野 (WFoV) 和常规视野 (RFoV) 相机系统。修订版 1 旨在测试视野小于 90 度 (RFoV) 的移动设备相机。
宽视野盒装 ITS(修订版 2)还可用于测试视野大于 90 度 (WFoV) 的相机,这样您就可以使用一个盒装 ITS 系统来测试具有不同视野的不同相机,但前提是相机可以在大约 20 厘米处聚焦。
ITS-in-a-box 系统由一个根据计算机辅助设计 (CAD) 图纸激光切割而成的塑料盒、一个内部照明系统、一台图表平板电脑和一部被测设备 (DUT) 组成。您可以购买盒装 ITS,也可以自行组装。
购买 WFoV 盒装 ITS
建议您通过以下任一合格的供应商购买 WFoV 盒装 ITS。
Byte Bridge Inc.
美国:1502 Crocker Ave, Hayward, CA 94544-7037
中国:上海市徐汇区中山西路 1600 号宏汇国际广场 A 座 22 层 06-08,邮编:200235
www.bytebt.com
androidpartner@bytebt.com
美国:+1-510-373-8899
中国:+86-400-8866-490JFT CO LTD 捷富通科技有限公司(之前称为 MYWAY DESIGN)
中国大陆:No. 40, Lane 22, Heai Road, Wujing Town, Minhang District, Shanghai, China
中国台湾:4F., No. 163, Fu-Ying Road, XinZhuang District, New Taipei City 242, Taiwan
www.jftcoltd.com
service@jfttec.com or its.sales@jfttec.com
中国大陆:+86-021-64909136
中国台湾:886-2-29089060
视频教程
此视频教程介绍了如何安装 WFoV 盒装 ITS。
组装 WFoV 盒装 ITS
除了购买,您也可以自行组装 WFoV 盒装 ITS(修订版 2)。本部分将分步说明如何组装 WFoV 盒装 ITS(修订版 2),它可测试宽视野范围(大于 90 度)相机。
修订历史记录
下表介绍了相机 ITS WFoV 装置的修订历史记录,并添加了指向每个生产文件版本的下载链接。
| 日期 | 修订版本 | 下载生产文件 | 更新日志 |
|---|---|---|---|
| 2022 年 12 月 | 2.9 | WFoV 修订版 2.9 |
|
| 2019 年 10 月 | 2.8 | 不可用 |
|
| 2018 年 10 月 | 2.7 | 不可用 |
|
| 2018 年 8 月 | 2.6 | 不可用 |
|
| 2018 年 8 月 | 2.5 | 不可用 |
|
| 2018 年 6 月 | 2.4 | 不可用 |
|
机械图纸
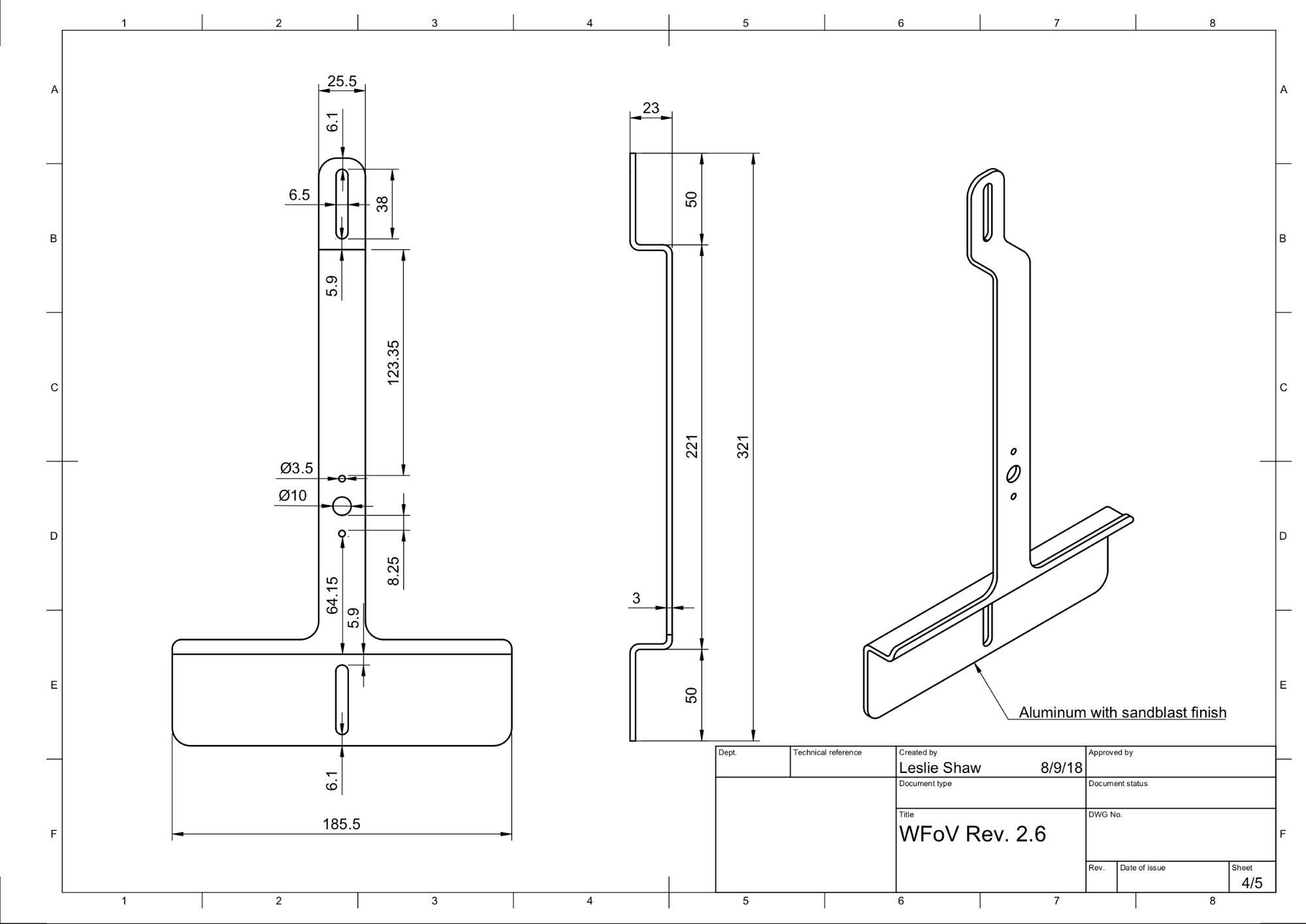
以下 WFoV 盒装 ITS 机械图纸展示了组装所需的材料。首先,请下载最新的 WFoV 盒装 ITS 的生产文件。
图 1. WFoV 盒装 ITS 的机械图纸
购买物料清单 (BOM) 中列出的硬件。切割塑料和乙烯基元件。
所需工具
准备好以下工具:
- 十字头螺丝刀
- 尖嘴钳
- 钢丝钳
- 剪刀
- 喷壶
- 美工刀
第 1 步:贴有色乙烯基膜
要贴有色乙烯基膜,请执行以下操作:
将有色乙烯基膜贴在丙烯腈-丁二烯-苯乙烯树脂 (ABS) 的光滑面上,并剪出必要的开口(如图 2 所示)。确保在盒子安装平板电脑的一面贴上带有大矩形开口的白色乙烯基膜,在盒子安装移动设备的一面贴上带有圆形开口的黑色乙烯基膜。
在侧板上贴上灰色乙烯基膜(如图 2 所示),并在底板的四个角上粘贴支脚(如图 3 所示)。
如需了解详情,请参阅 wikiHow。
图 2. 在光滑面(盒子内部)贴上了乙烯基膜的 ABS 组件
在底板的四个角上粘贴支脚,如图 3 所示。
图 3.在底板的四个角上粘贴了支脚
第 2 步:组装和安装灯轨
要组装和安装带 LED 灯条的照明框架,请执行以下操作:
查看照明框架结构的机械图纸。
图 4. 带 LED 灯条的照明框架结构
收集齐塑料挡光板、灯座、LED 灯条和束线带并放在一起。
图 5. 挡光板和灯座
将塑料挡光板卡入灯座(如图 6 所示),并使其紧密贴合。
图 6. 安装在灯座上的塑料挡光板
将灯座卡入侧板,如图 7 所示。完成后,灯光将射向盒子内部正面的几个角。
图 7. 卡入侧板的挡光板和灯座
组装侧板。(可选:打磨挡光板边缘,以更好地贴合。)
图 8. 组装好并用螺钉固定到一起的侧板
将销钉插入从侧板插槽处伸出的矩形卡舌上的小孔来固定挡光板,如图 9 所示。
图 9. 插入盒子外侧的 LED 灯安装卡舌中的销钉特写
在朝下的一面,用灯条绕挡光板两圈。用束线带固定住灯条,然后将两端扣在一起。(可选:除使用束线带之外,还可在 LED 灯条背面贴上胶带,以便更轻松地进行缠绕。)
图 10. 使用束线带缠绕在挡光板周围的 LED 灯条
图 11. 固定 LED 灯条的束线带
剪断束线带的末端,如图 12 和 13 所示。
图 12. 绕挡光板两圈并从侧面出口伸出的 LED 灯条
图 13. 在朝上的一面看到的束线带(LED 灯条位于另一面)
第 3 步:组装平板电脑和手机托架
要组装平板电脑托架和手机托架,请执行以下操作:
查看平板电脑托架的机械图纸。
图 14. 平板电脑托架的机械图纸
收集齐图 15 所示的部件。
图 15. 平板电脑托架、手机托架以及所需的螺钉、柱塞、乙烯基帽和螺母
将橡皮帽剪得足够短,使其不会妨碍柱塞工作(大致剪短一半),然后将其套在柱塞的末端。较短的乙烯基帽可确保柱塞装置能够缩回并锁定。
图 16. 套上了剪短的橡皮帽的柱塞
用螺钉将柱塞固定在托架上。
图 17. 已安装柱塞的平板电脑托架和手机托架
第 4 步:最终组装
请按以下步骤组装 WFoV ITS 盒:
收集齐前孔板,然后用 4-40 螺钉将带有方形开口的较小板固定到较大板的上方,如图 18 所示。
图 18. 前孔板和手机托架板
图 19. 使用 4-40 螺钉固定在一起的前孔板和手机托架板
用胶带将前板和后板与盒子粘合。
图 20. 侧板用螺钉固定在一起且前板和后板用胶带粘合的 WFoV 盒
用电钻根据现有的孔洞钻出定位孔。确保定位孔足够穿过 4-40 螺钉,从而确保在插入螺钉时不会使 ABS 塑料破裂。
图 21. 钻出能够插入 4-40 螺钉的定位孔
使用 4-40 自攻螺钉将所有面板组装在一起。
图 22. 用于组装面板的 4-40 螺钉
收集齐手柄配件,如图 23 所示。
图 23. 手柄配件
组装手柄,如图 24 所示。
图 24. 组装好的手柄
检查电源适配器是否为 12V、5A,并且具有 UL 认证证书。如果电压低于 12V,将无法正常运行。如果电流低于 5A,则可能会影响灯的亮度。
图 25. 具有 UL 认证证书的电源适配器(12V,5A)
使用数字照度计测试 LED 灯的照度,以确保它们处于适当水平。
将照度计放置在平板电脑一侧,然后将其调到 2000 勒克斯,以测量光照度。照度应在 100 到 130 勒克斯之间。对于这些测试而言,如果照度值明显低于此范围,就说明太暗了,可能会导致测试失败。
本示例中使用的是 Contempo Views 的 YF-1065 照度计。
图 26. Contempo Views 的 YF-1065
图 27.用照度计测量安装平板电脑托架一侧的光照强度
根据测得的照度值,执行相应的步骤:
- 如果光照强度处于正确的水平,需要用螺钉将前板和后板固定到位。
- 如果光照强度处于不正确的水平,需要检查 LED 和电源配件号是否正确。
用螺钉和螺母将手机托架安装到孔板上,将平板电脑托架安装到另一侧。
图 28.平板电脑托架的特写
图 29.组装好的 WFoV 盒:后视图(左)和前视图(右)
在10x10 厘米的硬质泡沫板上开孔以适配 DUT 的摄像头开孔。
图 30. 有硬质泡沫板开孔的盒装 ITS
安装手机,使摄像头与开孔对准。通过平板电脑开口检查对准情况。
图 31. 安装了一部手机的盒装 ITS
为摄像头开孔。您可以开一个孔(用于测试一部手机)或两个孔(用于测试两部手机)。Pixel 和 Pixel XL 前置摄像头和后置摄像头的开孔如图 32 所示。由于没有闪光灯或激光器,前置摄像头的开孔是圆形孔;而为了不挡住闪光灯和激光器,后置摄像头的开孔为矩形孔。
图 32. 前置摄像头和后置摄像头的开孔示例
图 33. 安装了两部手机的盒装 ITS
此外,您还可以在纸板上开孔,然后使用记号笔、喷漆或颜料将其涂黑,如图 34 所示。
图 34. 前置摄像头和后置摄像头的纸板开孔示例
注意事项
下面列出了一些常见的组装错误,这些错误会导致测试易出故障。
安装平板电脑的后板上有刺穿孔。这会导致
find_circle测试失败,因为螺钉孔会产生额外的圆圈。
图 35. 有刺穿孔的后板
缺少固定销。这会导致挡光板在运输过程中松脱。
图 36.挡光板上缺少固定销
非 UL 认证电源。使用 UL 认证电源符合标示的规范。这对于安全操作照明系统非常重要。
图 37. UL 认证电源示例
平板电脑托架或手机托架上的螺钉松脱,导致无法承受平板电脑或手机的重量。这通常是由于螺纹损坏造成的,表明该孔需要重新钻孔。
图 38. 螺纹损坏的孔