Android 包含 ITS-in-a-box 修訂版 2,這是相機影像測試套件 (ITS) 中,適用於廣角視野 (WFoV) 和一般視野 (RFoV) 攝影機系統的自動化測試系統。修訂版 1 的設計目的是測試視角小於 90 度的行動裝置攝影機 (RFoV)。
廣角視野測試盒 (修訂版 2) 的設計也適用於視野大於 90 度的相機 (廣角視野),因此您可以使用一個 ITS 測試盒系統,測試視野不同的相機,前提是相機可以聚焦在約 20 公分處。
ITS-in-a-box 系統包含:以電腦輔助設計 (CAD) 圖繪雷射切割的塑膠盒、內部照明系統、圖表平板電腦,以及受測裝置 (DUT)。您可以購買 ITS-in-a-box,也可以自行建構。
購買 WFoV ITS-in-a-box
建議您向下列合格供應商購買 WFoV ITS-in-a-box。
Byte Bridge Inc.
美國:1502 Crocker Ave, Hayward, CA 94544-7037
中國:上海市徐匯區中山西路 1600 號宏匯國際廣場 A 座 22 樓 06-08 室,200235
www.bytebt.com
androidpartner@bytebt.com
美國:+1-510-373-8899
中國:+86-400-8866-490JFT CO LTD 捷富通科技有限公司 (前身為 MYWAY DESIGN)
中國:中國上海市閔行區吳涇鎮和艾路 22 弄 40 號
臺灣:4F., 臺灣新北市新莊區福營路 163 號 (郵遞區號:242)
www.jftcoltd.com
service@jfttec.com 或 its.sales@jfttec.com
中國:+86-021-64909136
臺灣:886-2-29089060
教學影片
這部影片教學課程說明如何設定 WFoV ITS-in-a-a-box。
建構 WFoV ITS-in-a-box
您可以自行建構 WFoV ITS-in-a-box (修訂版 2),不必購買。本節提供逐步說明,教您如何組裝 WFoV ITS-in-a-box (修訂版 2),以便測試廣角攝影機 (大於 90 度)。
修訂記錄
下表說明 Camera ITS WFoV 裝置的修訂記錄,並提供各個版本生產檔案的下載連結。
| 日期 | 修訂版本 | 下載正式版檔案 | 變更記錄 |
|---|---|---|---|
| 2022 年 12 月 | 2.9 次 | WFoV Rev 2.9 |
|
| 2019 年 10 月 | 2.8 次 | 無法使用 |
|
| 2018 年 10 月 | 2.7 次 | 無法使用 |
|
| 2018 年 8 月 | 2.6 次 | 無法使用 |
|
| 2018 年 8 月 | 土耳其里拉 | 無法使用 |
|
| 2018 年 6 月 | 2.4 | 無法使用 |
|
機械圖
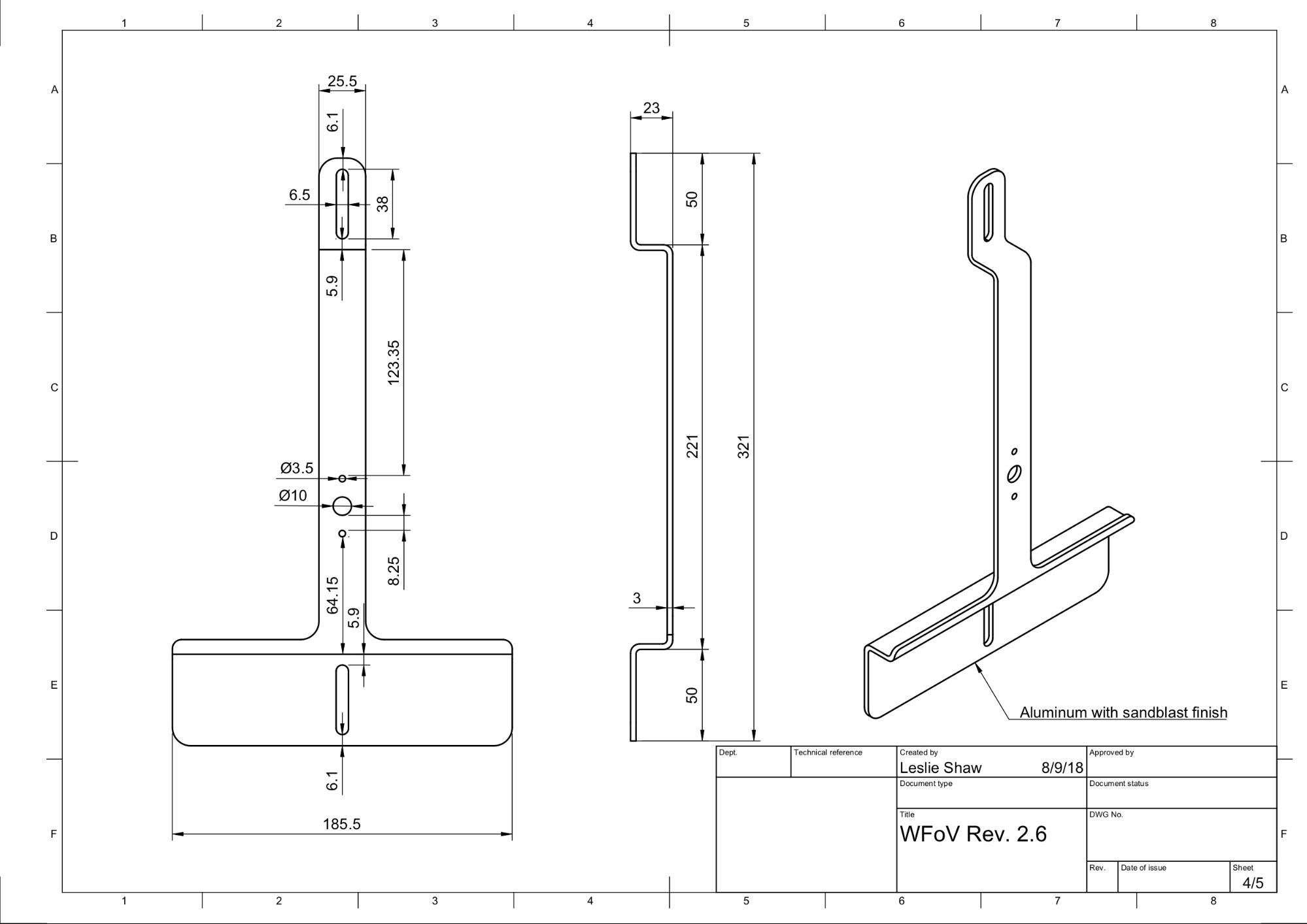
下圖為 WFoV ITS-in-a-box 的機械圖,顯示組裝所需的材料。 如要開始使用,請下載 WFoV ITS-in-a-box 的最新正式版檔案。
圖 1. WFoV ITS-in-a-box 的機械圖
從物料清單 (BOM) 購買硬體。剪下塑膠和乙烯基片。
必要工具
備妥下列工具:
- 十字型螺絲起子
- 尖嘴鉗
- 剪線鉗
- 剪刀
- 噴水瓶
- 美工刀
步驟 1:貼上彩色貼紙
如何套用彩色黑膠唱片:
將彩色乙烯基貼紙貼在丙烯腈丁二烯苯乙烯 (ABS) 的平滑面,並如圖 2 所示剪出必要的開口。請務必將白色乙烯基貼紙貼在平板電腦側,並將黑色乙烯基貼紙貼在手機側。
如圖 2 所示,將灰色乙烯基貼紙貼在側邊面板上,然後如圖 3 所示,將腳架黏在底部面板的四個角落。
詳情請參閱 wikiHow。
圖 2. ABS 片,平滑面貼上乙烯基 (盒子內部)
如圖 3 所示,將腳墊貼在底板的四個角落。
圖 3. 底板四個角落的腳架
步驟 2:組裝並安裝燈軌
如要組裝並安裝含 LED 燈條的燈架結構,請按照下列步驟操作:
查看燈架結構的機械圖。
圖 4. 以 LED 燈條打造的輕型框架結構
準備塑膠擋光板、燈架、LED 燈條和束帶。
圖 5. 擋光板和燈架
如圖 6 所示,將塑膠擋光板扣在燈架上。 這時應該會緊密貼合。
圖 6. 安裝在燈座中的塑膠擋光板
如圖 7 所示,將燈架扣在側邊面板上。完成後,光線會照向盒子的前側角落。
圖 7. 將擋光板和支架扣在側邊面板上
組裝側邊面板。(選用:打磨擋板邊緣,讓擋板更貼合。)
圖 8. 組裝並鎖上側邊面板
如圖 9 所示,將插銷擠入矩形凸片的小孔,固定擋光板。矩形凸片會穿過側邊面板的插槽。
圖 9.插入 LED 支架凸片的插針特寫
將燈條在朝下的擋板上纏繞兩圈。使用束帶固定燈條,並將兩端扣在一起。 (選用:除了束帶,還可使用 LED 燈條背面的膠帶,方便纏繞。)
圖 10. 用束帶將 LED 燈條纏繞在擋板上
圖 11. 用束帶固定 LED 燈條
如圖 12 和 13 所示,剪斷束帶兩端。
圖 12. LED 燈繞過擋板兩次,然後從側邊出口離開
圖 13. 朝上的側邊顯示束帶 (LED 燈條位於另一側)
步驟 3:組裝平板電腦和手機支架
如要組裝平板電腦和手機支架,請按照下列步驟操作:
查看平板電腦支架的機械圖。
圖 14. 平板電腦支架的機械圖
如圖 15 所示,收集零件。
圖 15. 平板電腦和手機支架,附螺絲、柱塞、乙烯基蓋和螺帽
將橡膠尖端剪短,以免妨礙活塞運作 (大約剪一半),然後將橡膠尖端推入活塞末端。縮短乙烯基蓋長度可確保活塞機制能夠縮回並鎖定。
圖 16. 調整過按壓式蓋子的活塞
將柱塞鎖在支架上。
圖 17. 附有吸盤的平板電腦和手機架
步驟 4:最後組裝
如何組裝 WFoV ITS 盒:
收集前光圈板,並使用 4-40 螺絲將較小的板子鎖在較大的板子上,如圖 18 所示。
圖 18. 前光圈板和手機固定板
圖 19. 前孔板和手機支架板以 4-40 螺絲鎖在一起
將前後面板黏貼到包裝盒上。
圖 20. WFoV 盒裝,側邊以螺絲固定,前後面板以膠帶黏貼
使用電鑽,根據現有孔洞鑽出導孔。請確保導引孔夠大,可容納 4-40 螺絲,以免插入螺絲時 ABS 塑膠破裂。
圖 21. 為 4-40 螺絲鑽出導孔
使用 4-40 自攻螺絲將所有面板鎖在一起。
圖 22. 組裝用 4-40 螺絲
如圖 23 所示,收集把手零件。
圖 23. 把手零件
如圖 24 所示組裝把手。
圖 24. 組裝好的把手
確認電源變壓器為 12V、5A,且具有 UL 列名認證。低於 12V 的電壓無法運作。如果低於 5A,可能會影響燈具亮度。
圖 25. 通過 UL 認證的 12V、5A 電源變壓器
使用數位照度計測試 LED 燈的照度,確保照度達到適當程度。
將照度計放在平板電腦側邊,並轉到 2000 勒克斯,即可測量光線。照度應介於 100 至 300 之間。如果亮度明顯偏低,測試就會太暗而導致失敗。
本範例使用 Contempo Views 的 YF-1065 照度計。
圖 26. Contempo Views 的 YF-1065
圖 27. 使用平板電腦支架從側面測量光線的照度計
根據測得的照度值,按照適當步驟操作:
- 確認燈光亮度適中後,將前後板鎖入定位。
- 如果燈光亮度不正確,請確認 LED 和電源供應器零件編號是否正確。
使用螺絲和螺帽,將手機支架安裝在孔板上,平板電腦支架則安裝在孔板的另一側。
圖 28. 平板電腦支架特寫
圖 29. 組裝完成的 WFoV 盒裝:背面 (左) 和正面 (右)
插入 10x10 公分鱷魚板孔徑,配合 DUT 的相機孔徑。
圖 30. 已安裝 Gator 板孔徑的 ITS-in-a-box
將手機的鏡頭對準孔洞,然後安裝手機。 透過平板電腦開口檢查對齊情形。
圖 31. 安裝一部手機的 ITS-in-a-box
為攝影機開孔。你可以剪出一個孔洞 (測試單一手機) 或兩個孔洞 (測試兩部手機)。圖 32 顯示 Pixel 和 Pixel XL 前置和後置鏡頭的光圈。前置鏡頭沒有閃光燈或雷射,因此採用圓形光圈;後置鏡頭則採用矩形光圈,讓閃光燈和雷射能正常運作,不會受到阻擋。
圖 32. 前置和後置鏡頭的範例光圈
圖 33. 安裝兩部手機的 ITS-in-a-box
或者,您也可以用紙板剪出光圈,然後用麥克筆、噴漆或壓克力顏料塗黑,如圖 34 所示。
圖 34. 前置和後置鏡頭的紙板光圈範例
注意事項
以下列舉常見的製造錯誤,這些錯誤可能會導致測試不穩定。
背板,平板電腦孔洞已穿孔。這會導致
find_circle測試失敗,因為螺絲孔會產生額外的圓圈。
圖 35. 背面面板,有孔洞
缺少木銷。這會導致光擋在運送過程中滑出。
圖 36. 光擋板缺少木栓
非 UL 列名的電源供應器。使用符合 UL 標準的電源插頭,可滿足標示的規格。這對安全操作燈具非常重要。
圖 37. UL 認證電源供應器範例
平板電腦或手機支架上的螺絲鬆脫,無法支撐平板電腦或手機的重量。這通常是螺紋損壞所致,表示孔洞需要重新穿線。
圖 38. 螺紋受損的孔洞