Geniş görüş alanına sahip bir kutu edinme

Android, Kamera Görüntüsü Test Paketi'nde (ITS) hem geniş görüş alanı (WFoV) hem de normal görüş alanı (RFoV) kamera sistemleri için otomatik bir test sistemi olan ITS-in-a-box revizyon 2'yi içerir. 1. revizyon, 90 dereceden (RFoV) daha az FoV'ye sahip mobil cihaz kameralarını test etmek için tasarlanmıştır.

Geniş görüş alanı kutusu (revizyon 2), 90 dereceden büyük görüş alanına (WFoV) sahip kameraları da test etmek için tasarlanmıştır. Bu sayede, kameraların yaklaşık 20 cm'de odaklanabilmesi koşuluyla, farklı görüş alanlarına sahip kameraları test etmek için tek bir ITS-in-a-box sistemi kullanabilirsiniz.

ITS-in-a-box sistemi; bilgisayar destekli tasarım (CAD) çizimlerinden lazerle kesilmiş bir plastik kutu, dahili aydınlatma sistemi, grafik tablet ve test edilen cihazdan (DUT) oluşur. ITS-in-a-box satın alabilir veya kendi ITS-in-a-box'ınızı oluşturabilirsiniz.

WFoV ITS-in-a-box satın alma

Aşağıdaki nitelikli satıcılardan birinden WFoV ITS-in-a-box satın almanızı öneririz.

  • Byte Bridge Inc.
    ABD: 1502 Crocker Ave, Hayward, CA 94544-7037
    Çin: 22F #06-08, Hongwell International Plaza Tower A, 1600 West Zhongshan Road, Xuhui, Şanghay, 200235
    www.bytebt.com
    androidpartner@bytebt.com
    ABD: +1-510-373-8899
    Çin: +86-400-8866-490

  • JFT CO LTD 捷富通科技有限公司 (eski adıyla MYWAY DESIGN)
    Çin: No. 40, Lane 22, Heai Road, Wujing Town, Minhang District, Şanghay, Çin
    Tayvan: 4F., No. 163, Fu-Ying Road, XinZhuang District, New Taipei City 242, Tayvan
    www.jftcoltd.com
    service@jfttec.com veya its.sales@jfttec.com
    Çin:+86-021-64909136
    Tayvan: 886-2-29089060

Eğitim videosu

Bu, WFoV ITS-in-a-box'ı kurma hakkında bir video eğitimidir.

WFoV ITS-in-a-box oluşturma

WFoV ITS-in-a-box (revizyon 2) satın almak yerine kendi sisteminizi oluşturabilirsiniz. Bu bölümde, geniş görüş alanına (90 dereceden fazla) sahip kameraları test edebilen bir WFoV ITS-in-a-box (revizyon 2) montajıyla ilgili adım adım talimatlar yer almaktadır.

Düzeltme geçmişi

Aşağıdaki tabloda, Camera ITS WFoV düzeneğinin revizyon geçmişi açıklanmakta ve üretim dosyalarının her sürümüne yönelik indirme bağlantıları yer almaktadır.

Tarih Düzeltme Üretim dosyası indirme Değişiklik günlüğü
Aralık 2022 2.9 WFoV Rev 2.9
  • Tablet testini destekleyen montaj mekanizması eklendi.
  • Telefon montaj parçaları asimetrik olacak şekilde revize edildi.
  • Boş köpük panolardan genel tasarımlara revize edilmiş diyafram tasarımı.
Ekim 2019 2.8 Yok
  • Üretim dokümanlarına diyafram tasarımı eklendi.
  • Daha iyi destek için test düzeneğinin altına ayaklar eklendi.
  • C-kelepçe tasarımı, pimlerin oturma şeklini iyileştirmek için yeniden düzenlendi.
  • Telefon montaj parçaları için daha geniş bir hareket aralığı sağlamak üzere ön açıklık plakası revize edildi.
Ekim 2018 2.7 Yok
  • Daha iyi üretim tutarlılığı için BOM'daki (#16) ışık, UL listesinde yer alan LED bantla değiştirildi.
  • BOM'daki anahtarlı güç kaynağı, 16 numaralı öğeyle aynı kaynakla değiştirildi.
  • Tablet yuvası, tablet açıklığıyla eşleşecek şekilde 35 mm daha geniş olacak şekilde revize edildi (mekanik çizimde sayfa 4).
  • Ön kelepçe deliği aralığı (mesafe), kelepçe yuvası uzunluğuyla (mekanik çizimde sayfa 5) aynı hizaya gelecek şekilde revize edildi.
  • RFoV ITS-in-a-box ile eşleşmesi için ön açıklık çemberinin çapı 20 mm azaltıldı.
Ağustos 2018 2.6 Yok
  • Mekanik çizimi düzeltmek için şirket içinde yayınlandı.
Ağustos 2018 TL Yok
  • Tablet montajı, telefon montajına benzer şekilde basitleştirildi.
  • Maliyetleri düşürmek için eloksal kaplama yerine kumlanmış kaplama kullanıldı.
  • BOM'daki LED ışıklar için düzeltilmiş spesifikasyonlar
Haziran 2018 2.4 Yok
  • Kargo hasarını azaltmak için akrilik malzemeden ABS malzemeye geçildi.
  • Maliyetleri düşürmek için 3D baskı öğeleri kaldırıldı ve lazerle kesilmiş ABS ile değiştirildi.
  • Kutu kulpları, BOM'da satın alınacak ayrı bir öğe olmak yerine ABS kullanacak şekilde değiştirildi.

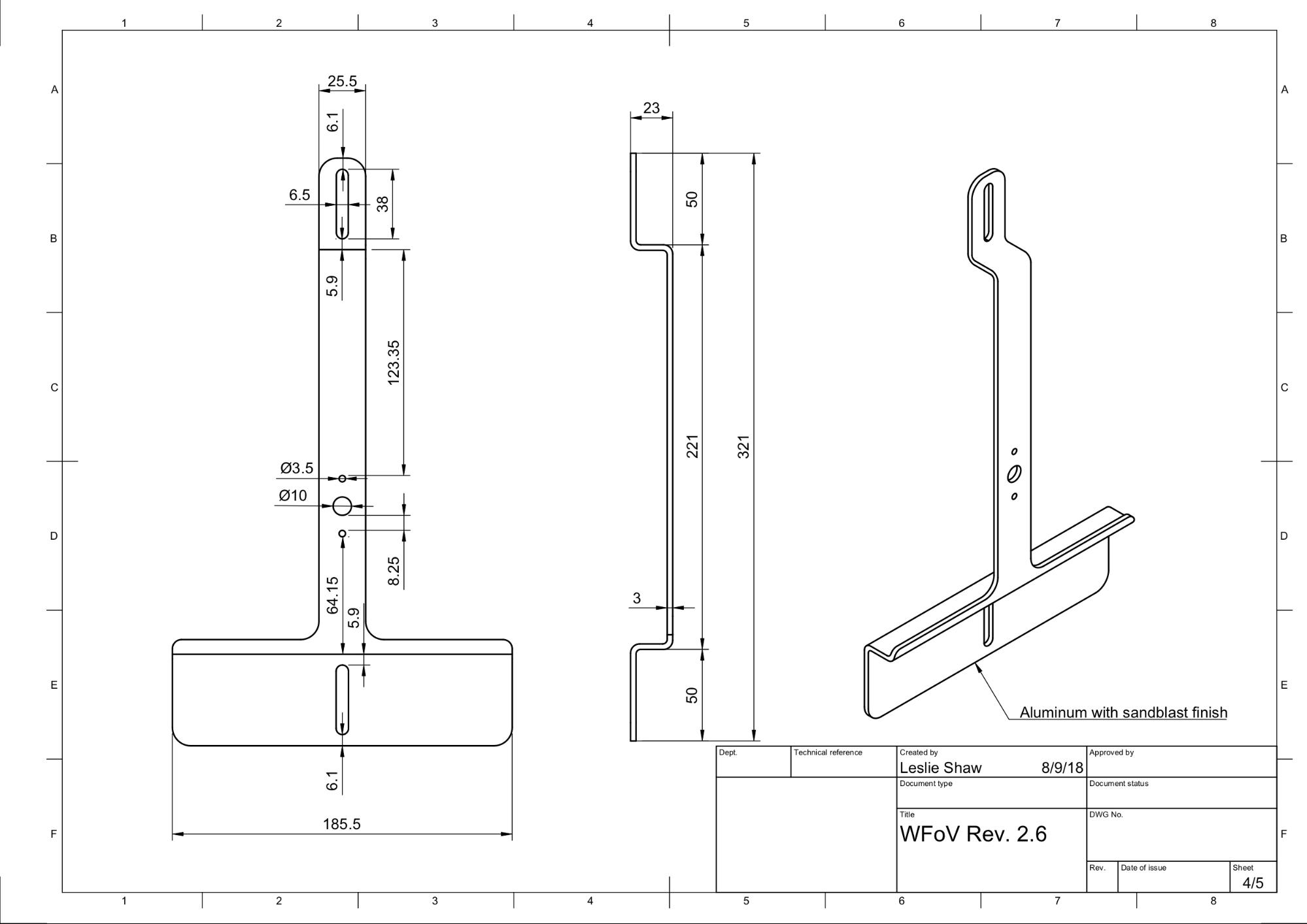
Mekanik çizimler

WFoV ITS-in-a-box'ın aşağıdaki mekanik çiziminde montaj için gerekli malzemeler gösterilmektedir. Başlamak için WFoV ITS-in-a-box'ın en son üretim dosyalarını indirin.

WFOV ITS-in-a-box'ın CAD çizimi

1. şekil. WFoV ITS-in-a-box'ın mekanik çizimi

Donanımı malzeme listesinden (BOM) satın alın. Plastik ve vinil parçaları kesin.

Gerekli araçlar

Aşağıdaki araçlara sahip olmanız gerekir:

  • Yıldız başlı tornavida
  • Kargaburnu pense
  • Kablo kesiciler
  • Makas
  • Su sprey şişesi
  • X-ACTO bıçağı

1. adım: Renkli vinil uygulayın

Renkli vinil uygulamak için:

  1. Renkli vinili akrilonitril bütadien stirenin (ABS) pürüzsüz tarafına uygulayın ve Şekil 2'de gösterildiği gibi gerekli açıklıkları kesin. Beyaz vinili kutunun tablet tarafına, siyah vinili ise kutunun mobil cihaz tarafına uyguladığınızdan emin olun.

    Şekil 2'de gösterildiği gibi yan panellere gri vinili uygulayın ve Şekil 3'te gösterildiği gibi ayakları alt panelin dört köşesine yapıştırın.

    Daha fazla bilgi için wikiHow'a bakın.

    Düz tarafına vinil uygulanmış ABS parçalar

    Şekil 2. Pürüzsüz tarafına (kutunun iç kısmı) vinil uygulanmış ABS parçalar

  2. Şekil 3'te gösterildiği gibi ayakları alt panelin dört köşesine takın.

    Alt panel ayakları

    3.Şekil Alt panelin dört köşesindeki ayaklar

2. adım: Işık rayını monte edin ve takın

LED ışık şeritleriyle ışık çerçevesi yapısını monte etmek ve kurmak için:

  1. Işık çerçevesi yapısının mekanik çizimini inceleyin.

    LED ışık şeritli hafif çerçeve yapısı

    Şekil 4. LED ışık şeritli hafif çerçeve yapısı

  2. Plastik ışık bölmelerini, ışık montajlarını, LED ışık şeritlerini ve kablo bağlarını toplayın.

    Işık bölmeleri, ışık montajları, LED ışık şeritleri ve kablo bağları

    5.şekil Işık bölmeleri ve ışık montajları

  3. Plastik ışık bölmelerini, Şekil 6'da gösterildiği gibi ışık montajlarına oturtun. Bu, sıkı bir uyum olmalıdır.

    Işık montajlarına takılan plastik ışık bölmeleri

    6.şekil Işık montajlarına takılan plastik ışık bölmeleri

  4. Işık montajlarını Şekil 7'de gösterildiği gibi yan panellere takın. Tamamlandığında ışık, kutunun içindeki ön köşelere doğru parlar.

    Yan panellere takılan ışık bölmeleri ve montaj parçaları

    Şekil 7. Yan panellere takılan ışık bölmeleri ve montaj parçaları

  5. Yan panelleri birleştirin. (İsteğe bağlı: Daha iyi oturması için bölmelerin kenarlarını zımparalayın.)

    Yan paneller monte edilip vidalanmış

    Şekil 8. Yan paneller monte edilmiş ve birbirine vidalanmış

  6. Pimi, yan panellerdeki yuvadan geçen dikdörtgen tırnaktaki küçük deliğe sıkarak ışık bölmelerini sabitleyin (Şekil 9'da gösterildiği gibi).

    LED montaj sekmesine PIN yerleştirildi

    Şekil 9. Kutunun dışındaki LED montaj tırnağına takılan pimin yakın çekim görüntüsü

  7. Işık şeritlerini, aşağıya bakan tarafta iki kez bölmelerin etrafına sarın. Şeridi sabitlemek için kablo bağları kullanın ve uçları birbirine tutturun. (İsteğe bağlı: Daha kolay sarma için LED ışık şeridinin arkasındaki bantı kelepçelere ek olarak kullanın.)

    Baffle'ların etrafına sarılmış LED ışık şeridi

    10.şekil Kablo bağlarıyla bölmelere sarılmış LED ışık şeridi

    LED ışık şeritlerini tutan kablo bağları

    11.Şekil LED ışık şeritlerini yerinde tutan kablo bağları

  8. Kelepçelerin uçlarını Şekil 12 ve 13'te gösterildiği gibi kesin.

    Çıkış yapan bölmelerin etrafındaki LED ışıklar

    Şekil 12. LED ışıklar, bölmelerin etrafına iki kez sarılıp yan çıkıştan dışarı çıkıyor.

    Yukarı bakan kablo bağları

    Şekil 13. Yukarı bakan tarafta görünen kablo bağları (LED şeritler diğer taraftadır)

3. adım: Tablet ve telefon montaj parçalarını birleştirin

Tablet ve telefon tutacaklarını monte etmek için:

  1. Tablet montajının mekanik çizimini inceleyin.

    Tablet montajının mekanik çizimi

    Şekil 14. Tablet montajının mekanik çizimi

  2. Parçaları Şekil 15'te gösterildiği gibi bir araya getirin.

    Tablet ve telefon montaj parçaları

    15.şekil Vidalar, vantuzlar, vinil kapaklar ve somunlar içeren tablet ve telefon tutacakları

  3. Kauçuk uçları, pistonun çalışmasını engellemeyecek kadar kısa kesin (yaklaşık yarıya kadar) ve pistonların uçlarına itin. Kısa vinil kapak uzunluğu, piston mekanizmasının geri çekilip kilitlenmesini sağlar.

    Ayarlanmış bastırmalı kapaklı pistonlar

    16. şekil. Ayarlanmış bastırmalı kapaklara sahip pistonlar

  4. Pistonları montaj parçalarına vidalayın.

    Vantuzlu tablet ve telefon tutacakları

    17. şekil. Vantuzlu tablet ve telefon tutacakları

4. adım: Son montaj

WFoV ITS kutusunu monte etmek için:

  1. Ön açıklık plakalarını toplayın ve 4-40 vidaları kullanarak Şekil 18'de gösterildiği gibi kareli küçük plakayı büyük plakanın üzerine vidalayın.

    Apertür plakası ve telefon montaj plakası

    18.şekil Ön açıklık plakası ve telefon montaj plakası

    Monte edilmiş ön açıklık plakası

    Şekil 19. Ön açıklık plakası ve telefon montaj plakası, 4-40 vidalarla birbirine vidalanmış

  2. Ön ve arka panelleri kutuya bantlayın.

    Yanları birbirine vidalanmış WFoV kutusu

    Şekil 20. Yanları vidalanmış ve ön ile arka panelleri bantlanmış WFoV kutusu

  3. Mevcut deliklere göre kılavuz delikler oluşturmak için matkap kullanın. ABS plastiğin vidaları takarken çatlamaması için kılavuz deliklerin 4-40 vidalar için yeterince büyük olduğundan emin olun.

    Kılavuz delikler

    Şekil 21. 4-40 vidalar için kılavuz delik açma

  4. 4-40 kendinden kılavuzlu vidalar kullanarak tüm panelleri birbirine vidalayın.

    Montaj için 4-40 vidalar

    22. şekil. Montaj için 4-40 vidalar

  5. Şekil 23'te gösterilen kol parçalarını toplayın.

    Kullanım parçaları

    23.şekil Kullanım parçaları

  6. Tutacakları Şekil 24'te gösterildiği gibi monte edin.

    Birleştirilmiş tutma yeri

    Şekil 24. Birleştirilmiş tutma yeri

  7. Güç adaptörünün 12 V, 5 A olduğundan ve UL listesinde yer aldığından emin olun. 12 V'un altındaki değerler çalışmaz. 5A'nın altındaki değerler ışıkların parlaklık düzeyini etkileyebilir.

    12 V, 5 A güç adaptörü

    25. şekil. UL listeli sertifikaya sahip 12 V, 5 A güç adaptörü

  8. LED ışıkların lüks değerini dijital lüksmetre kullanarak test edin ve uygun seviyede olduğundan emin olun.

    Işığı ölçmek için ışık ölçeri tablet tarafına yerleştirin ve 2.000 lükse getirin. Lüks değeri 100-300 civarında olmalıdır. Bundan önemli ölçüde düşük bir değer, testler için çok karanlıktır ve testlerin başarısız olmasına neden olabilir.

    Bu örnekte Contempo Views tarafından üretilen YF-1065 lüksmetre kullanılmaktadır.

    YF-1065 by Contempo Views

    26.şekil YF-1065 by Contempo Views

    Işık ölçer

    27. şekil. Tablet montajı ile yandan gelen ışığı ölçen lüks ışık ölçer

  9. Ölçülen lüks değerine bağlı olarak uygun adımı uygulayın:

    • Işık doğru seviyedeyse ön ve arka plakaları yerine vidalayın.
    • Işık yanlış seviyedeyse LED ve güç kaynağı parça numarasının doğru olup olmadığını kontrol edin.
  10. Telefon aparatını açıklık plakasına, tablet aparatını ise vidalar ve somunlarla karşı tarafa monte edin.

    Tablet tutucu

    Şekil 28. Tablet montajının yakından görünümü

    Montajı yapılmış WFoV kutusu

    Şekil 29. Montajı yapılmış WFoV kutusu: arkadan görünüm (sol) ve önden görünüm (sağ)

  11. DUT'un kamera açıklığına uyacak şekilde 10x10 cm'lik gator board açıklığını yerleştirin.

    Gator board açıklığı

    30. şekil. Gator karton açıklığı takılı ITS-in-a-box

  12. Kamerayı diyafram açıklığıyla hizalayarak telefonu takın. Hizalamayı tablet açıklığından kontrol edin.

    Bir telefonun yüklü olduğu kutu

    Şekil 31. Bir telefonun yüklü olduğu ITS-in-a-box

  13. Kameralar için açıklıklar kesin. Tek bir açıklık (tek bir telefonu test etmek için) veya iki açıklık (iki telefonu test etmek için) kesebilirsiniz. Pixel ve Pixel XL ön ve arka kameralarının diyafram açıklıkları Şekil 32'de gösterilmektedir. Ön kamerada flaş veya lazer olmadığı için dairesel bir diyafram açıklığı bulunur. Arka kamerada ise flaş ve lazerin engellenmeden çalışmasına olanak tanıyan dikdörtgen bir diyafram açıklığı vardır.

    Ön ve arka kameraların diyafram açıklıkları

    32. şekil. Ön ve arka kameralar için örnek diyafram açıklıkları

    resim

    Şekil 33. İki telefonun yüklü olduğu ITS-in-a-box

    Alternatif olarak, Şekil 34'te gösterildiği gibi kartondan açıklıklar kesip bunları işaretleyiciler, sprey boya veya akrilik ile siyaha boyayabilirsiniz.

    resim

    Şekil 34. Hem ön hem de arka kamera için örnek karton açıklıklar

Dikkat etmeniz gerekenler

Aşağıda, testlerin güvenilirliğini etkileyebilecek yaygın üretim hatalarına dair örnekler verilmiştir.

  • Tablet deliklerinin açıldığı arka panel. Bu durum, vida deliklerinin oluşturduğu ekstra daireler nedeniyle find_circle testinin başarısız olmasına neden olur.

    Delikli arka panel

    35.şekil Deliklerin açıldığı arka panel

  • Eksik dübeller. Bu durum, nakliye sırasında ışık bölmelerinin kaymasına neden olur.

    Eksik dübel

    Şekil 36. Işık bölmesinde dübel eksik

  • UL listesinde yer almayan güç kaynağı. UL listesinde yer alan bir güç kaynağı kullanıldığında, etiketli özellikler karşılanır. Bu, aydınlatmanın güvenli bir şekilde çalıştırılması için önemlidir.

    UL onaylı güç kaynağı

    Şekil 37. UL listesinde yer alan güç kaynağı örneği

  • Tablet veya telefon ağırlığını destekleyemeyen tablet ya da telefon montaj aparatındaki vidaların kayması. Bu durum genellikle hasarlı dişlerden kaynaklanır ve deliğin yeniden dişlenmesi gerektiğini gösterir.

    Hasarlı dişlere sahip delik

    38. şekil. Hasarlı dişlere sahip delik