รับกล่องที่มีมุมมองกว้าง

Android มี ITS-in-a-box ฉบับแก้ไขที่ 2 ซึ่งเป็นระบบทดสอบอัตโนมัติสำหรับทั้งระบบกล้องที่มี มุมมองภาพกว้าง (WFoV) และมุมมองภาพปกติ (RFoV) ในชุดทดสอบรูปภาพของกล้อง (ITS) การแก้ไขครั้งที่ 1 ออกแบบมาเพื่อทดสอบกล้องของอุปกรณ์เคลื่อนที่ที่มี FoV น้อยกว่า 90 องศา (RFoV)

กล่องที่มีขอบเขตการมองเห็นกว้าง (ฉบับแก้ไข 2) ออกแบบมาเพื่อทดสอบกล้องที่มี FoV มากกว่า 90 องศา (WFoV) ด้วย ซึ่งจะช่วยให้คุณใช้ระบบ ITS-in-a-box ระบบเดียวเพื่อทดสอบกล้องต่างๆ ที่มี FoV แตกต่างกันได้ ตราบใดที่กล้องสามารถโฟกัสที่ประมาณ 20 ซม.

ระบบ ITS-in-a-box ประกอบด้วยกล่องพลาสติกที่ตัดด้วยเลเซอร์จากภาพวาดการออกแบบโดยใช้คอมพิวเตอร์ช่วย (CAD) ระบบไฟส่องสว่างภายใน แท็บเล็ตชาร์ต และอุปกรณ์ภายใต้การทดสอบ (DUT) คุณจะซื้อ ITS-in-a-box หรือจะสร้างเองก็ได้

ซื้อ ITS-in-a-box ที่มี WFoV

เราขอแนะนำให้ซื้อ ITS-in-a-box ที่มี WFoV จากผู้ให้บริการที่มีคุณสมบัติตามเกณฑ์ต่อไปนี้

  • Byte Bridge Inc.
    USA: 1502 Crocker Ave, Hayward, CA 94544-7037
    China: 22F #06-08, Hongwell International Plaza Tower A, 1600 West Zhongshan Road, Xuhui, Shanghai, 200235
    www.bytebt.com
    androidpartner@bytebt.com
    USA: +1-510-373-8899
    China: +86-400-8866-490

  • JFT CO LTD 捷富通科技有限公司 (เดิมชื่อ MYWAY DESIGN)
    จีน: No. 40, Lane 22, Heai Road, Wujing Town, Minhang District, Shanghai, China
    ไต้หวัน: 4F., No. 163, Fu-Ying Road, XinZhuang District, New Taipei City 242, Taiwan
    www.jftcoltd.com
    service@jfttec.com หรือ its.sales@jfttec.com
    จีน:+86-021-64909136
    ไต้หวัน: 886-2-29089060

วิดีโอแนะนำ

นี่คือวิดีโอสอนวิธีตั้งค่า WFoV ITS-in-a-box

สร้าง ITS-in-a-box ที่มี WFoV

คุณอาจสร้าง ITS-in-a-box ของคุณเองแทนที่จะซื้อ WFoV ITS-in-a-box (ฉบับแก้ไข 2) ส่วนนี้มีวิธีการประกอบ ITS-in-a-box (ฉบับแก้ไข 2) แบบทีละขั้นตอน ซึ่งใช้ทดสอบกล้องที่มีมุมมองกว้าง (มากกว่า 90 องศา) ได้

ประวัติการแก้ไข

ตารางต่อไปนี้อธิบายประวัติการแก้ไขของแท่นยึดกล้อง ITS WFoV และมีลิงก์ดาวน์โหลดไฟล์เวอร์ชันต่างๆ ของไฟล์การผลิต

วัน การแก้ไข การดาวน์โหลดไฟล์เวอร์ชันที่ใช้งานจริง บันทึกการเปลี่ยนแปลง
ธันวาคม 2022 2.9 WFoV Rev 2.9
  • เพิ่มกลไกการติดตั้งที่รองรับการทดสอบแท็บเล็ต
  • ปรับปรุงที่ยึดโทรศัพท์ให้ไม่สมมาตร
  • การออกแบบรูรับแสงที่ปรับปรุงใหม่จากโฟมบอร์ดเปล่าไปจนถึงการออกแบบทั่วไป
ตุลาคม 2019 2.8 ไม่พร้อมใช้งาน
  • เพิ่มการออกแบบรูรับแสงลงในเอกสารประกอบการผลิต
  • เพิ่มฐานที่ด้านล่างของแท่นทดสอบเพื่อการรองรับที่ดีขึ้น
  • ปรับปรุงการออกแบบแคลมป์ตัว C เพื่อให้เดือยพอดี
  • ปรับปรุงเพลตช่องรับแสงด้านหน้าเพื่อให้ที่ยึดโทรศัพท์เคลื่อนไหวได้มากขึ้น
ตุลาคม 2018 2.7 ไม่พร้อมใช้งาน
  • เปลี่ยนหลอดไฟใน BOM (#16) เป็นเทป LED ที่ได้รับการรับรองจาก UL เพื่อให้การผลิตมีความสอดคล้องกันมากขึ้น
  • เปลี่ยนแหล่งจ่ายไฟที่สวิตช์ใน BOM เป็นแหล่งเดียวกันกับ #16
  • ปรับปรุงแท่นยึดแท็บเล็ตให้กว้างขึ้น 35 มม. เพื่อให้ตรงกับช่องเปิดของแท็บเล็ต (หน้า 4 ในภาพวาดทางกล)
  • ปรับระยะห่างของรูยึดด้านหน้า (ระยะทาง) ให้สอดคล้องกับความยาวของช่องยึด (หน้า 5 ในภาพวาดทางกล)
  • ลดเส้นผ่านศูนย์กลางวงกลมรูรับแสงด้านหน้าลง 20 มม. เพื่อให้ตรงกับ RFoV ITS-in-a-box
สิงหาคม 2018 2.6 ไม่พร้อมใช้งาน
  • เผยแพร่ภายในเพื่อแก้ไขภาพวาดเชิงกล
สิงหาคม 2018 2.5 ไม่พร้อมใช้งาน
  • ปรับปรุงที่ยึดแท็บเล็ตให้คล้ายกับที่ยึดโทรศัพท์
  • ใช้พื้นผิวแบบพ่นทรายแทนพื้นผิวแบบอโนไดซ์เพื่อลดต้นทุน
  • ข้อกำหนดที่แก้ไขแล้วสำหรับไฟ LED ใน BOM
มิถุนายน 2018 2.4 ไม่พร้อมใช้งาน
  • เปลี่ยนจากอะคริลิกเป็นวัสดุ ABS เพื่อลดความเสียหายจากการจัดส่ง
  • นำชิ้นส่วนที่พิมพ์ด้วย 3 มิติออกและแทนที่ด้วย ABS ที่ตัดด้วยเลเซอร์เพื่อลดต้นทุน
  • เปลี่ยนที่จับกล่องให้ใช้ ABS แทนที่จะเป็นรายการแยกต่างหากที่ต้องซื้อใน BOM

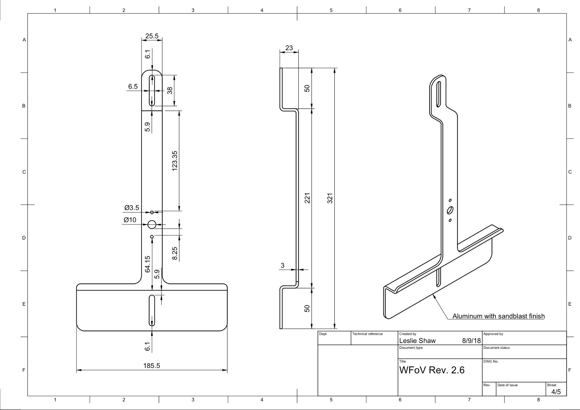
ภาพวาดทางกล

ภาพวาดทางกลของ ITS-in-a-box ที่มี WFoV ต่อไปนี้แสดงวัสดุที่จำเป็นสำหรับการประกอบ หากต้องการเริ่มต้นใช้งาน ให้ดาวน์โหลด ไฟล์เวอร์ชันที่ใช้งานจริงล่าสุดสำหรับ ITS-in-a-box ของ WFoV

ภาพวาด CAD ของ ITS-in-a-box แบบ WFOV

รูปที่ 1 ภาพวาดทางกลของ ITS-in-a-box ที่มี WFoV

ซื้อฮาร์ดแวร์จากรายการวัสดุ (BOM) ตัดชิ้นส่วนพลาสติกและ ไวนิล

เครื่องมือที่จำเป็น

เตรียมเครื่องมือต่อไปนี้ให้พร้อม

  • ไขควงปากแฉก
  • คีมปากแหลม
  • คีมตัดลวด
  • กรรไกร
  • ขวดสเปรย์น้ำ
  • มีด X-ACTO

ขั้นตอนที่ 1: ติดไวนิลสี

วิธีติดไวนิลสี

  1. ติดไวนิลสีที่ด้านเรียบของอะคริโลไนไตรล์ บิวทาไดอีน สไตรีน (ABS) และตัดช่องเปิดที่จำเป็นตามที่แสดงในรูปที่ 2 อย่าลืมติดสติกเกอร์ไวนิลสีขาวที่มีช่องสี่เหลี่ยมผืนผ้าขนาดใหญ่ที่ด้านแท็บเล็ต และติดสติกเกอร์ไวนิลสีดำที่มีช่องกลมที่ด้านอุปกรณ์เคลื่อนที่ของกล่อง

    ติดไวนิลสีเทาที่แผงด้านข้างตามที่แสดงในรูปที่ 2 และติดกาวที่ ฐานที่มุมทั้ง 4 ของแผงด้านล่างตามที่แสดงในรูปที่ 3

    ดูข้อมูลเพิ่มเติมได้ที่ wikiHow

    ชิ้นส่วน ABS ที่ติดไวนิลบนด้านเรียบ

    รูปที่ 2 ชิ้นส่วน ABS ที่มีไวนิลติดอยู่ด้านเรียบ (ด้านในของกล่อง)

  2. ติดตีนยางที่มุมทั้ง 4 ของแผงด้านล่างตามที่แสดงในรูปที่ 3

    ฐานแผงด้านล่าง

    รูปที่ 3 ตีนยางที่มุมทั้ง 4 ของแผงด้านล่าง

ขั้นตอนที่ 2: ประกอบและติดตั้งรางไฟ

วิธีประกอบและติดตั้งโครงกรอบไฟพร้อมแถบไฟ LED

  1. ตรวจสอบภาพวาดทางกลของโครงสร้างกรอบไฟ

    โครงสร้างกรอบไฟพร้อมแถบไฟ LED

    รูปที่ 4 โครงสร้างกรอบไฟพร้อมแถบไฟ LED

  2. เตรียมแผ่นกั้นแสงพลาสติก ตัวยึดไฟ เส้นไฟ LED และเคเบิลไท

    แผ่นกั้นแสง ที่ยึดไฟ แถบไฟ LED และเคเบิลไทร์

    รูปที่ 5 แผ่นกั้นแสงและตัวยึดไฟ

  3. ติดแผ่นกั้นแสงพลาสติกเข้ากับตัวยึดไฟตามที่แสดงในรูปที่ 6 โดยควรมีขนาดพอดี

    แผ่นกั้นแสงพลาสติกที่ติดตั้งในที่ยึดไฟ

    รูปที่ 6 แผ่นกั้นแสงพลาสติกที่ติดตั้งในที่ยึดไฟ

  4. ติดตัวยึดไฟเข้ากับแผงด้านข้างตามที่แสดงในรูปที่ 7 เมื่อ เสร็จสมบูรณ์แล้ว ไฟจะส่องไปยังมุมด้านหน้าของ ด้านในกล่อง

    แผ่นกั้นแสงและตัวยึดที่ติดกับแผงด้านข้าง

    รูปที่ 7 แผ่นกั้นแสงและตัวยึดที่ติดกับแผงด้านข้าง

  5. ประกอบแผงด้านข้าง (ไม่บังคับ: ขัดขอบของแผ่นกั้นเพื่อให้ พอดีมากขึ้น)

    ประกอบและขันสกรูแผงด้านข้าง

    รูปที่ 8 ประกอบแผงด้านข้างและขันสกรูเข้าด้วยกัน

  6. ยึดแผ่นกั้นแสงโดยบีบหมุดเข้าไปในรูเล็กๆ บน แถบสี่เหลี่ยมผืนผ้าที่ยื่นผ่านช่องในแผงด้านข้างตามที่แสดงในรูปที่ 9

    ใส่ PIN ในแท็บยึด LED

    รูปที่ 9 ภาพระยะใกล้ของหมุดที่เสียบในแท็บยึด LED ที่ด้านนอกของกล่อง

  7. พันแถบไฟรอบแผ่นกั้น 2 ครั้งที่ด้านที่หันลง ใช้เคเบิลไทร์เพื่อรัดแถบไฟและต่อปลายทั้ง 2 ข้างเข้าด้วยกัน (ไม่บังคับ: ใช้เทปที่ด้านหลังของแถบไฟ LED นอกเหนือจาก เคเบิลไทร์เพื่อให้พันได้ง่ายขึ้น)

    แถบไฟ LED พันรอบแผ่นกั้น

    รูปที่ 10 แถบไฟ LED พันรอบแผ่นกั้นด้วยเคเบิลไทร์

    เคเบิลไทร์ที่ยึดแถบไฟ LED

    รูปที่ 11 เคเบิลไทร์ที่ยึดแถบไฟ LED ไว้กับที่

  8. ตัดปลายเคเบิลไทร์ตามที่แสดงในรูปที่ 12 และ 13

    ไฟ LED รอบแผ่นกั้นที่ทางออก

    รูปที่ 12 ไฟ LED พันรอบแผ่นกั้น 2 ครั้งและออก ทางช่องออกด้านข้าง

    เคเบิลไทหันขึ้น

    รูปที่ 13 เคเบิลไทร์ที่แสดงด้านข้างหงายขึ้น (แถบไฟ LED อยู่ที่อีกด้านหนึ่ง)

ขั้นตอนที่ 3: ประกอบที่ยึดแท็บเล็ตและโทรศัพท์

วิธีประกอบที่ยึดแท็บเล็ตและโทรศัพท์

  1. ดูภาพวาดทางกลของตัวยึดแท็บเล็ต

    ภาพวาดทางกลของแท่นยึดแท็บเล็ต

    รูปที่ 14 ภาพวาดทางกลของแท่นยึดแท็บเล็ต

  2. รวบรวมชิ้นส่วนตามที่แสดงในรูปที่ 15

    ชิ้นส่วนที่ยึดแท็บเล็ตและโทรศัพท์

    รูปที่ 15 ที่ยึดแท็บเล็ตและโทรศัพท์ที่มีสกรู ลูกสูบ ฝาปิดไวนิล และน็อต

  3. ตัดปลายยางให้สั้นพอที่จะไม่ขัดขวางการทำงานของลูกสูบ (ประมาณครึ่งหนึ่ง) แล้วดันปลายยางเข้ากับ ปลายลูกสูบ ความยาวของฝาไวนิลที่สั้นลงช่วยให้สามารถหดและล็อกกลไก ลูกสูบได้

    ลูกสูบที่มีฝาแบบกดที่ปรับแล้ว

    รูปที่ 16 ลูกสูบพร้อมฝาแบบกดที่ปรับแล้ว

  4. ขันสกรูตัวกดเข้ากับตัวยึด

    ที่ยึดแท็บเล็ตและโทรศัพท์ที่มีที่ดูดติดอยู่

    รูปที่ 17 ที่ยึดแท็บเล็ตและโทรศัพท์ที่มีที่ดูดติดอยู่

ขั้นตอนที่ 4: การประกอบขั้นสุดท้าย

วิธีประกอบกล่อง ITS ของ WFoV

  1. รวบรวมเพลตช่องรับแสงด้านหน้าและใช้สกรู 4-40 เพื่อขันเพลตขนาดเล็ก ที่มีสี่เหลี่ยมจัตุรัสอยู่ด้านบนของเพลตขนาดใหญ่ตามที่แสดงในรูปที่ 18

    จากเพลตช่องรับแสงและเพลตยึดโทรศัพท์

    รูปที่ 18 เพลตช่องรับแสงด้านหน้าและเพลตยึดโทรศัพท์

    แผ่นรูรับแสงด้านหน้าที่ประกอบแล้ว

    รูปที่ 19 แผ่นรูรับแสงด้านหน้าและแผ่นยึดโทรศัพท์ที่ขันสกรูเข้าด้วยกัน ด้วยสกรู 4-40

  2. ติดเทปแผงด้านหน้าและด้านหลังกับกล่อง

    กล่อง WFoV ที่ขันสกรูด้านข้างเข้าด้วยกัน

    รูปที่ 20 กล่อง WFoV ที่มีด้านข้างยึดด้วยสกรูและแผงด้านหน้าและด้านหลัง ติดเทป

  3. ใช้สว่านไฟฟ้าเพื่อเจาะรูนำตามรูที่มีอยู่ ตรวจสอบว่ารูนำมีขนาดใหญ่พอสำหรับสกรู 4-40 เพื่อไม่ให้พลาสติก ABS แตกเมื่อใส่สกรู

    รูนำ

    รูปที่ 21 การเจาะรูนำร่องสำหรับสกรู 4-40

  4. ขันสกรูแผงทั้งหมดเข้าด้วยกันโดยใช้สกรูเกลียวปล่อยขนาด 4-40

    สกรู 4-40 สำหรับประกอบ

    รูปที่ 22 สกรู 4-40 สำหรับประกอบ

  5. รวบรวมชิ้นส่วนของแฮนเดิลที่แสดงในรูปที่ 23

    แฮนเดิล

    รูปที่ 23 แฮนเดิล

  6. ประกอบด้ามจับตามที่แสดงในรูปที่ 24

    แฮนเดิลที่ประกอบแล้ว

    รูปที่ 24 แฮนเดิลที่ประกอบแล้ว

  7. ตรวจสอบว่าอะแดปเตอร์จ่ายไฟมีแรงดันไฟฟ้า 12V, 5A และมีใบรับรองที่ระบุใน UL โดยแบตเตอรี่ที่มีแรงดันไฟฟ้าต่ำกว่า 12 โวลต์จะใช้งานไม่ได้ หากต่ำกว่า 5A อาจส่งผลต่อ ระดับความสว่างของไฟ

    อะแดปเตอร์ 12V, 5A

    รูปที่ 25 อะแดปเตอร์ 12V, 5A ที่มีใบรับรองที่ระบุใน UL

  8. ใช้เครื่องวัดลักซ์แบบดิจิทัลเพื่อทดสอบลักซ์ของหลอดไฟ LED เพื่อให้แน่ใจว่า หลอดไฟอยู่ในระดับที่เหมาะสม

    วางเครื่องวัดแสงไว้ที่ด้านแท็บเล็ตและหมุนไปที่ 2000 ลักซ์เพื่อ วัดแสง ความสว่างควรอยู่ที่ประมาณ 100-300 ลักซ์ หากต่ำกว่านี้มาก จะสว่างไม่พอสำหรับการทดสอบและอาจทำให้การทดสอบล้มเหลว

    ในตัวอย่างนี้ เราใช้เครื่องวัดความสว่าง YF-1065 ของ Contempo Views

    YF-1065 โดย Contempo Views

    รูปที่ 26 YF-1065 โดย Contempo Views

    เครื่องวัดความสว่าง

    รูปที่ 27 เครื่องวัดลักซ์วัดแสงจากด้านข้างด้วยแท่นยึดแท็บเล็ต

  9. ทำตามขั้นตอนที่เหมาะสมโดยขึ้นอยู่กับค่าลักซ์ที่วัดได้

    • หากแสงสว่างอยู่ในระดับที่ถูกต้อง ให้ขันเพลตด้านหน้าและด้านหลังเข้าที่
    • หากไฟสว่างไม่ถูกต้อง ให้ตรวจสอบว่าหมายเลขชิ้นส่วนของ LED และแหล่งจ่ายไฟถูกต้อง
  10. ยึดที่ยึดโทรศัพท์บนเพลตช่องรับแสงและยึดที่ยึดแท็บเล็ตบน อีกด้านด้วยสกรูและน็อต

    ที่ยึดแท็บเล็ต

    รูปที่ 28 ภาพระยะใกล้ของที่ยึดแท็บเล็ต

    กล่อง WFoV ที่ประกอบแล้ว

    รูปที่ 29 กล่อง WFoV ที่ประกอบแล้ว: มุมมองด้านหลัง (ซ้าย) และมุมมองด้านหน้า (ขวา)

  11. ใส่รูรับแสงของบอร์ดเกเตอร์ขนาด 10x10 ซม. ให้พอดีกับ รูรับแสงของกล้อง DUT

    รูรับแสงของแผ่นโฟม

    รูปที่ 30 ITS-in-a-box ที่ติดตั้งรูรับแสงของแผ่นโฟม

  12. ติดตั้งโทรศัพท์โดยจัดกล้องให้ตรงกับช่องรับแสง ตรวจสอบการจัดแนวผ่านช่องเปิดของแท็บเล็ต

    กล่องที่มีโทรศัพท์ติดตั้งอยู่ 1 เครื่อง

    รูปที่ 31 ITS-in-a-box ที่ติดตั้งโทรศัพท์ 1 เครื่อง

  13. ตัดช่องรับแสงสำหรับกล้อง คุณสามารถตัดช่องรับแสง 1 ช่อง (สำหรับทดสอบโทรศัพท์ 1 เครื่อง) หรือ 2 ช่อง (สำหรับทดสอบโทรศัพท์ 2 เครื่อง) รูรับแสงของกล้องหน้าและกล้องหลังของ Pixel และ Pixel XL แสดงอยู่ใน รูปที่ 32 กล้องหน้ามีรูรับแสงเป็นวงกลมเนื่องจากไม่มีแฟลชหรือเลเซอร์ ส่วนกล้องหลังมีรูรับแสงเป็นสี่เหลี่ยมผืนผ้าที่ช่วยให้แฟลชและเลเซอร์ทำงานได้โดยไม่ถูกบดบัง

    รูรับแสงสำหรับกล้องหน้าและกล้องหลัง

    รูปที่ 32 ตัวอย่างรูรับแสงสำหรับกล้องหน้าและกล้องหลัง

    ภาพ

    รูปที่ 33 ITS-in-a-box ที่ติดตั้งโทรศัพท์ 2 เครื่อง

    หรือจะตัดรูรับแสงออกจากกระดาษแข็งและทาสีดำด้วยปากกา สเปรย์ หรืออะคริลิกก็ได้ ดังแสดงในรูปที่ 34

    ภาพ

    รูปที่ 34 ตัวอย่างรูรับแสงจากกระดาษแข็งสำหรับกล้องหน้าและกล้องหลัง

สิ่งที่ควรระวัง

ต่อไปนี้คือตัวอย่างข้อผิดพลาดในการผลิตที่พบบ่อยซึ่งอาจทำให้การทดสอบไม่เสถียร

  • แผงด้านหลังที่มีรูสำหรับแท็บเล็ต ซึ่งทำให้การทดสอบfind_circle ล้มเหลวเนื่องจากวงกลมเพิ่มเติมที่เกิดจาก รูสกรู

    แผงด้านหลังที่มีรู

    รูปที่ 35 แผงด้านหลังที่มีรู

  • เดือยหาย ซึ่งทำให้แผ่นกั้นแสงหลุดออกมาระหว่าง การจัดส่ง

    ไม่มีเดือย

    รูปที่ 36 ไม่มีเดือยบนแผ่นกั้นแสง

  • แหล่งจ่ายไฟที่ไม่ได้อยู่ในรายการ UL การใช้อุปกรณ์จ่ายไฟที่ได้รับการรับรองจาก UL เป็นไปตามข้อกำหนดที่ระบุ ซึ่งเป็นสิ่งสำคัญในการใช้งานไฟอย่างปลอดภัย

    แหล่งจ่ายไฟที่ได้รับการรับรองจาก UL

    รูปที่ 37 ตัวอย่างแหล่งจ่ายไฟที่ได้รับการรับรองจาก UL

  • สกรูที่ลื่นบนแท็บเล็ตหรือที่ยึดโทรศัพท์ซึ่งรับน้ำหนักของแท็บเล็ตหรือโทรศัพท์ไม่ได้ โดยปกติแล้วสาเหตุเกิดจากเกลียวชำรุดและ บ่งชี้ว่าต้องทำเกลียวรูใหม่

    รูที่มีเกลียวเสียหาย

    รูปที่ 38 รูที่มีเกลียวเสียหาย