Receber uma caixa de campo de visão amplo

O Android inclui a revisão 2 do ITS-in-a-box, um sistema de teste automatizado para sistemas de câmera de campo de visão amplo (WFoV) e normal (RFoV) no pacote de testes de imagem da câmera (ITS). A revisão 1 foi projetada para testar câmeras de dispositivos móveis com um campo de visão menor que 90 graus (RFoV).

A caixa de campo de visão amplo (revisão 2) também foi projetada para testar câmeras com um FoV maior que 90 graus (WFoV). Assim, é possível usar um sistema ITS-in-a-box para testar diferentes câmeras com FoVs variados, desde que elas consigam focar a aproximadamente 20 cm.

O sistema ITS-in-a-box consiste em uma caixa de plástico cortada a laser de desenhos de design assistido por computador (CAD), um sistema de iluminação interna, um tablet gráfico e um dispositivo em teste (DUT). Você pode comprar um ITS-in-a-box ou criar o seu próprio.

Comprar um ITS-in-a-box de campo de visão amplo

Recomendamos comprar um ITS-in-a-box WFoV de um dos seguintes fornecedores qualificados.

  • Byte Bridge Inc.
    EUA: 1502 Crocker Ave, Hayward, CA 94544-7037
    China: 22F #06-08, Hongwell International Plaza Tower A, 1600 West Zhongshan Road, Xuhui, Xangai, 200235
    www.bytebt.com
    androidpartner@bytebt.com
    EUA: +1-510-373-8899
    China: +86-400-8866-490

  • JFT CO LTD 捷富通科技有限公司 (antes conhecida como MYWAY DESIGN)
    China: No. 40, Lane 22, Heai Road, Wujing Town, Minhang District, Xangai, China
    Taiwan: 4F., Nº 163, Rua Fu-Ying, Distrito de XinZhuang, New Taipei City 242, Taiwan
    www.jftcoltd.com
    service@jfttec.com ou its.sales@jfttec.com
    China:+86-021-64909136
    Taiwan: 886-2-29089060

Tutorial em vídeo

Este é um tutorial em vídeo sobre como configurar o ITS-in-a-box WFoV.

Criar um ITS-in-a-Box de campo de visão amplo

Em vez de comprar um ITS-in-a-box WFoV (revisão 2), você pode criar o seu próprio. Esta seção inclui instruções detalhadas para montar um ITS-in-a-box WFoV (revisão 2) que pode testar câmeras com um campo de visão amplo (maior que 90 graus).

Histórico de revisões

A tabela a seguir descreve o histórico de revisões do suporte WFoV do ITS da câmera e inclui links para download de cada versão dos arquivos de produção.

Data Revisão Download de arquivos de produção Registro de alterações
Dezembro de 2022 2.9 WFoV Rev 2.9
  • Adição de um mecanismo de montagem compatível com testes de tablets.
  • Revisamos os suportes para smartphone para que sejam assimétricos.
  • Design de abertura revisado, de placas de espuma em branco para designs genéricos.
Outubro de 2019 2.8 Indisponível
  • Adicionamos o design de abertura à documentação de produção.
  • Adição de pés à parte de baixo do equipamento de teste para melhor suporte.
  • Revisamos o design do fecho em C para melhorar o encaixe dos pinos.
  • Revisamos a placa de abertura frontal para oferecer uma maior amplitude de movimento para os suportes do smartphone.
Outubro de 2018 2.7 Indisponível
  • Substituímos a luz na lista de materiais (#16) por uma fita de LED listada pela UL para melhorar a consistência da fabricação.
  • Troquei a fonte de alimentação na lista de materiais pela mesma fonte do item 16.
  • Revisamos o suporte do tablet para que ele fique 35 mm mais largo e se encaixe na abertura do tablet (página 4 do desenho mecânico).
  • Revisamos o espaçamento (distância) dos furos do fecho frontal para alinhar com o comprimento do slot do fecho (página 5 do desenho mecânico).
  • Reduzimos o diâmetro do círculo de abertura frontal em 20 mm para corresponder ao RFoV ITS-in-a-box.
Agosto de 2018 2.6 Indisponível
  • Lançamento interno para corrigir o desenho mecânico.
Agosto de 2018 2.5 Indisponível
  • Simplificamos o suporte para tablet para que ele seja semelhante ao suporte para smartphone.
  • Usamos um acabamento jateado em vez de anodizado para reduzir custos.
  • Especificações corrigidas para luzes de LED na lista de materiais
Junho de 2018 2.4 Indisponível
  • Mudamos do acrílico para o material ABS para reduzir danos no transporte.
  • Removidos elementos de impressão 3D e substituídos por ABS cortado a laser para reduzir custos.
  • As alças da caixa agora são feitas de ABS em vez de serem um item separado para compra na lista de materiais.

Desenhos mecânicos

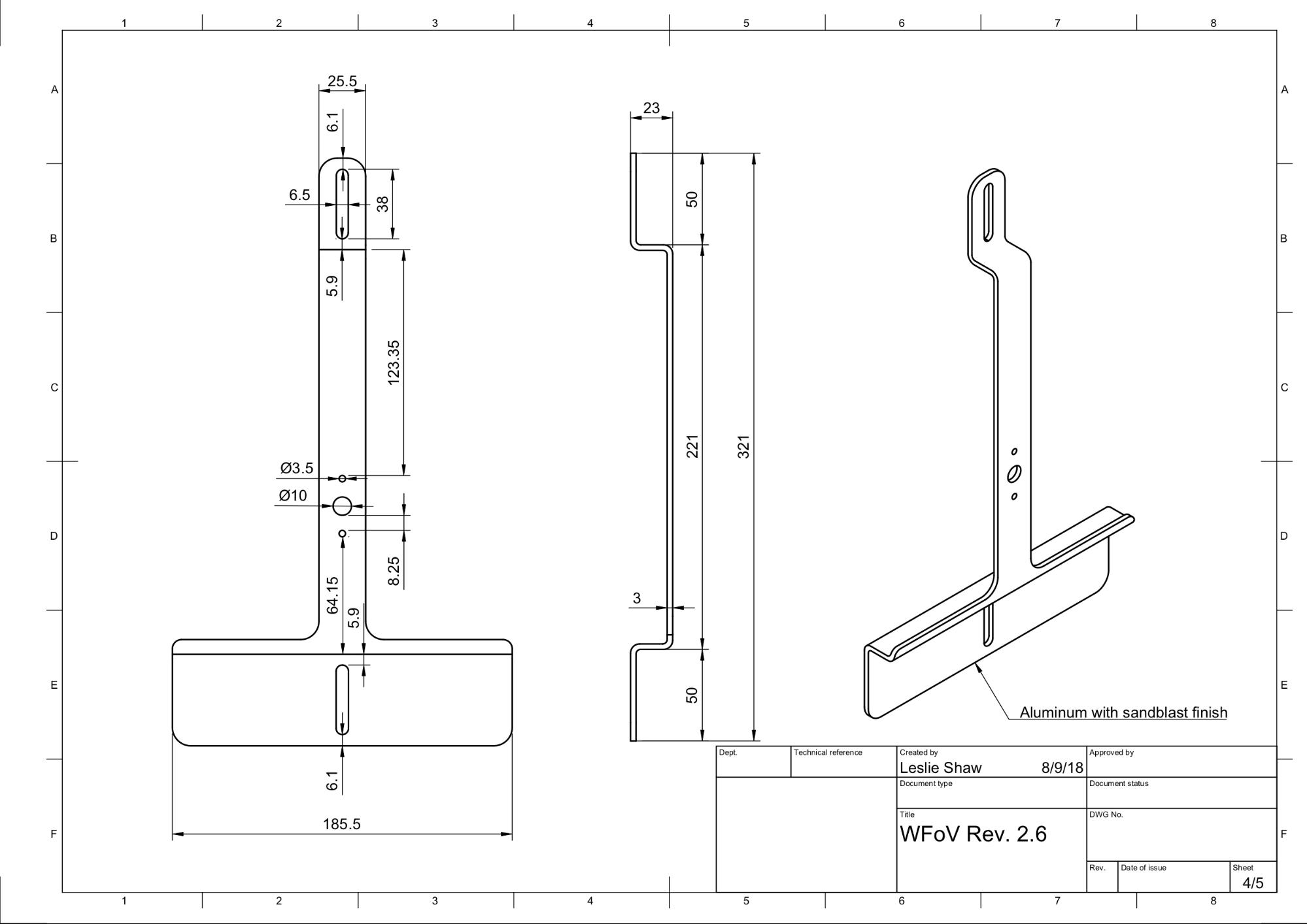
O desenho mecânico a seguir do ITS-in-a-box WFoV mostra os materiais necessários para a montagem. Para começar, baixe os arquivos de produção mais recentes do ITS-in-a-box WFoV.

Desenho CAD do ITS-in-a-Box WFOV

Figura 1. Desenho mecânico do ITS-in-a-box de campo de visão amplo

Compre o hardware na lista de materiais (BOM). Corte os pedaços de plástico e vinil.

Ferramentas necessárias

Tenha as seguintes ferramentas disponíveis:

  • Chave de fenda Phillips
  • Alicate de ponta fina
  • Alicates de corte
  • Tesoura
  • Garrafa de água com spray
  • Estilete X-ACTO

Etapa 1: aplique o vinil colorido

Para aplicar vinil colorido:

  1. Aplique o vinil colorido no lado liso do acrilonitrilo butadieno estireno (ABS) e corte as aberturas necessárias, conforme mostrado na Figura 2. Aplique o vinil branco com a grande abertura retangular no lado do tablet e o vinil preto com a abertura circular no lado do dispositivo móvel da caixa.

    Aplique o vinil cinza nos painéis laterais, como mostrado na Figura 2, e cole os pés nos quatro cantos do painel inferior, como mostrado na Figura 3.

    Para mais informações, consulte wikiHow.

    Peças de ABS com vinil aplicado no lado liso

    Figura 2. Peças de ABS com vinil aplicado no lado liso (interior da caixa)

  2. Coloque os pés nos quatro cantos do painel inferior, como mostrado na Figura 3.

    Pés do painel inferior

    Figura 3. Pés nos quatro cantos do painel inferior

Etapa 2: montar e instalar o trilho de iluminação

Para montar e instalar a estrutura do quadro de luz com fitas de luz LED:

  1. Revise o desenho mecânico da estrutura do suporte de iluminação.

    Estrutura de armação leve com fitas de luz LED

    Figura 4. Estrutura de armação leve com fitas de luz LED

  2. Reúna os defletores de luz de plástico, os suportes de luz, as fitas de luz LED e as abraçadeiras.

    Defletores de luz, suportes de luz, fitas de luz LED e abraçadeiras

    Figura 5. Defletores e suportes de iluminação

  3. Encaixe os defletores de luz de plástico nos suportes de luz, conforme mostrado na Figura 6. Ela precisa ficar bem justa.

    Defletores de luz de plástico instalados em suportes de iluminação

    Figura 6. Defletores de luz de plástico instalados em suportes de iluminação

  4. Encaixe os suportes de luz nos painéis laterais, conforme mostrado na Figura 7. Quando estiver concluída, a luz vai brilhar em direção aos cantos frontais do interior da caixa.

    Encaixe os defletores e suportes de luz nos painéis laterais

    Figura 7. Encaixe os defletores e suportes de luz nos painéis laterais

  5. Encaixe os painéis laterais. (Opcional: lixe as bordas dos defletores para um melhor encaixe.)

    Painéis laterais montados e parafusados

    Figura 8. Painéis laterais montados e parafusados

  6. Para fixar os defletores de luz, aperte o pino no pequeno orifício da aba retangular que se estende pelo slot nos painéis laterais, conforme mostrado na Figura 9.

    PIN inserido na guia do suporte de LED

    Figura 9. Imagem ampliada do pino inserido na aba do suporte de LED na parte externa da caixa

  7. Enrole as tiras de luz ao redor dos defletores duas vezes no lado voltado para baixo. Use abraçadeiras de plástico para prender a tira e encaixe as extremidades. (Opcional: use a fita adesiva na parte de trás da faixa de luz LED além dos fechos de plástico para facilitar o envolvimento.)

    Fita de luz de LED enrolada em torno de defletores

    Figura 10. Fita de luz LED enrolada nos defletores com abraçadeiras

    Prendedores segurando fitas de luz de LED

    Figura 11. Prendedores de plástico para fixar as fitas de luz LED

  8. Corte as extremidades dos fechos de plástico, conforme mostrado nas figuras 12 e 13.

    Luzes de LED ao redor dos defletores saindo

    Figura 12. Luzes de LED enroladas duas vezes nos defletores e saindo pela saída lateral

    Abraçadeiras Zip Ties voltadas para cima

    Figura 13. Abraçadeiras de plástico aparecendo no lado voltado para cima (as fitas de LED estão do outro lado)

Etapa 3: montar os suportes para tablet e smartphone

Para montar os suportes de tablet e smartphone:

  1. Revise o desenho mecânico do suporte para tablet.

    Desenho mecânico do suporte para tablet

    Figura 14. Desenho mecânico do suporte para tablet

  2. Reúna as peças conforme mostrado na Figura 15.

    Peças de suporte para tablets e smartphones

    Figura 15. Suportes para tablet e smartphone com parafusos, ventosas, tampas de vinil e porcas

  3. Corte as pontas de borracha para que não interfiram no funcionamento do êmbolo (aproximadamente na metade) e encaixe-as nas extremidades dos êmbolos. O comprimento menor da tampa de vinil garante que o mecanismo do êmbolo possa ser retraído e travado.

    Desentupidores com tampa de encaixe ajustada

    Figura 16. Êmbolos com tampas de pressão ajustadas

  4. Parafuse os êmbolos nos suportes.

    Suportes para tablets e smartphones com ventosas

    Figura 17. Suportes para tablets e smartphones com ventosas

Etapa 4: montagem final

Para montar a caixa do ITS WFoV:

  1. Reúna as placas de abertura frontal e use parafusos 4-40 para parafusar a placa menor com o quadrado em cima da placa maior, conforme mostrado na Figura 18.

    Do disco de abertura e do suporte para smartphone

    Figura 18. Placa de abertura frontal e placa de suporte do smartphone

    Placa de abertura frontal montada

    Figura 19. Placa de abertura frontal e placa de suporte do smartphone parafusadas com parafusos 4-40

  2. Prenda os painéis da frente e de trás à caixa com fita adesiva.

    Caixa WFoV com laterais parafusadas

    Figura 20. Caixa WFoV com laterais parafusadas e painéis frontal e traseiro colados

  3. Use uma furadeira elétrica para criar furos piloto com base nos furos existentes. Verifique se os furos piloto são grandes o suficiente para parafusos 4-40 para que o plástico ABS não rache ao inserir os parafusos.

    Furos de sondagem

    Figura 21. Fazer pré-furos para parafusos 4-40

  4. Parafuse todos os painéis usando parafusos autorroscantes 4-40.

    Parafusos 4-40 para montagem

    Figura 22. Parafusos 4-40 para montagem

  5. Reúna as partes da alça mostradas na Figura 23.

    Peças de alça

    Figura 23. Peças de alça

  6. Monte as alças conforme mostrado na Figura 24.

    Alça montada

    Figura 24. Alça montada

  7. Verifique se o adaptador de energia é de 12 V, 5 A e tem um certificado listado pela UL. Qualquer valor abaixo de 12 V não funciona. Qualquer coisa abaixo de 5A pode afetar o nível de brilho das luzes.

    Adaptador de energia de 12 V e 5 A

    Figura 25. Adaptador de energia de 12 V e 5 A com um certificado listado pela UL

  8. Usando um luxímetro digital, teste o lux das luzes de LED para garantir que elas estejam no nível adequado.

    Coloque o medidor de luz na lateral do tablet e gire para 2.000 lux para medir a luz. O lux deve estar entre 100 e 300. Qualquer valor significativamente menor é muito fraco para os testes e pode causar falhas.

    Neste exemplo, usamos o luxímetro YF-1065 da Contempo Views.

    YF-1065 da Contempo Views

    Figura 26. YF-1065 da Contempo Views

    Luxímetro

    Figura 27. Luxímetro medindo a luz lateralmente com o suporte para tablet

  9. Siga a etapa adequada dependendo do valor de lux medido:

    • Se a luz estiver no nível correto, aparafuse as placas frontal e traseira no lugar.
    • Se a luz estiver no nível incorreto, verifique se o LED e o número da peça da fonte de alimentação estão corretos.
  10. Fixe o suporte para smartphone na placa de abertura e o suporte para tablet no lado oposto com parafusos e porcas.

    Suporte para tablet

    Figura 28. Close de um suporte para tablet

    Caixa WFoV montada

    Figura 29. Caixa WFoV montada: vista traseira (esquerda) e frontal (direita)

  11. Insira a abertura de placa de jacaré de 10 x 10 cm para que ela se ajuste à abertura da câmera do DUT.

    Abertura do quadro de Gator

    Figura 30. ITS-in-a-box com a abertura da placa gator instalada

  12. Para instalar o smartphone, alinhe a câmera com a abertura. Verifique o alinhamento pela abertura do tablet.

    Caixa com um smartphone instalado

    Figura 31. ITS-in-a-box com um smartphone instalado

  13. Corte as aberturas para as câmeras. Você pode cortar uma única abertura (para testar um smartphone) ou duas aberturas (para testar dois smartphones). As aberturas das câmeras frontal e traseira do Pixel e do Pixel XL são mostradas na Figura 32. A câmera frontal tem uma abertura circular porque não há flash nem laser, enquanto a câmera traseira tem uma abertura retangular que permite que o flash e o laser funcionem sem serem bloqueados.

    Aberturas para câmeras frontal e traseira

    Figura 32. Exemplos de aberturas para câmeras frontal e traseira

    imagem

    Figura 33. ITS-in-a-box com dois smartphones instalados

    Outra opção é cortar aberturas em papelão e pintar de preto com marcadores, tinta spray ou acrílico, conforme mostrado na Figura 34.

    imagem

    Figura 34. Exemplos de aberturas de papelão para as câmeras frontal e traseira

O que procurar

Confira a seguir exemplos de erros comuns de fabricação que podem tornar os testes instáveis.

  • Painel traseiro com furos para tablet. Isso faz com que o teste find_circle falhe devido aos círculos extras criados pelos furos dos parafusos.

    Painel traseiro com furos

    Figura 35. Painel traseiro com furos

  • Faltam pinos. Isso faz com que os defletores de luz escorreguem durante o transporte.

    Pino ausente

    Figura 36. Pino ausente no defletor de luz

  • Fonte de alimentação não listada pela UL. O uso de uma fonte de alimentação certificada pela UL atende às especificações indicadas. Isso é importante para operar a iluminação com segurança.

    Fonte de alimentação listada pela UL

    Figura 37. Exemplo de uma fonte de alimentação listada pela UL

  • Parafusos soltos no suporte para tablet ou smartphone que não aguentam o peso de um tablet ou smartphone. Isso geralmente é causado por roscas danificadas e indica que o furo precisa ser refeito.

    Furo com roscas danificadas

    Figura 38. Furo com roscas danificadas