Android には、カメラ画像テストスイート(ITS)で広視野(WFoV)カメラシステムと標準視野(RFoV)カメラシステムの両方を自動テストするシステムである、ITS-in-a-box リビジョン 2 があります。リビジョン 1 は、FoV が 90 度未満(RFoV)のモバイル デバイスのカメラをテストするために設計されています。
広視野ボックス(リビジョン 2)は、FoV が 90 度を超える(WFoV)カメラをテストするために設計されており、ITS-in-a-box システムを使用して、さまざまな FoV のカメラをテストできます(カメラが約 20 cm 先に焦点を合わせられる場合)。
ITS-in-a-box システムは、CAD 図面からレーザーカットされたプラスチック製の箱、内部照明システム、チャート用タブレット、テスト対象デバイス(DUT)で構成されています。ITS-in-a-box は、購入することも、自分で製作することもできます。
WFoV ITS-in-a-box の購入
次の認定ベンダーから WFoV ITS-in-a-box を購入することをおすすめします。
Byte Bridge Inc.
USA: 1502 Crocker Ave, Hayward, CA 94544-7037
China: 22F #06-08, Hongwell International Plaza Tower A, 1600 West Zhongshan Road, Xuhui, Shanghai, 200235
www.bytebt.com
androidpartner@bytebt.com
USA: +1-510-373-8899
China: +86-400-8866-490JFT CO LTD 捷富通科技有限公司(旧社名: MYWAY DESIGN)
China: No. 40, Lane 22, Heai Road, Wujing Town, Minhang District, Shanghai, China
Taiwan: 4F., No. 163, Fu-Ying Road, XinZhuang District, New Taipei City 242, Taiwan
www.jftcoltd.com
service@jfttec.com or its.sales@jfttec.com
China: +86-021-64909136
Taiwan: 886-2-29089060
動画チュートリアル
これは、WFoV ITS-in-a-box のセットアップ方法を説明する動画チュートリアルです。
WFoV ITS-in-a-box の製作
WFoV ITS-in-a-box(リビジョン 2)を購入する代わりに、自分で製作することもできます。 このセクションでは、画角の広い(90 度を超える角度)のカメラをテストできる WFoV ITS-in-a-box(リビジョン 2)の組み立て手順を説明します。
変更履歴
次の表に、カメラ ITS WFoV 機器の変更履歴と、プロダクション ファイルの各バージョンへのダウンロード リンクを示します。
| 日付 | リビジョン | プロダクション ファイルのダウンロード | 変更ログ |
|---|---|---|---|
| 2022 年 12 月 | 2.9 | WFoV Rev 2.9 |
|
| 2019 年 10 月 | 2.8 | 利用不可 |
|
| 2018 年 10 月 | 2.7 | 利用不可 |
|
| 2018 年 8 月 | 2.6 | 利用不可 |
|
| 2018 年 8 月 | 2.5 | 利用不可 |
|
| 2018 年 6 月 | 2.4 | 利用不可 |
|
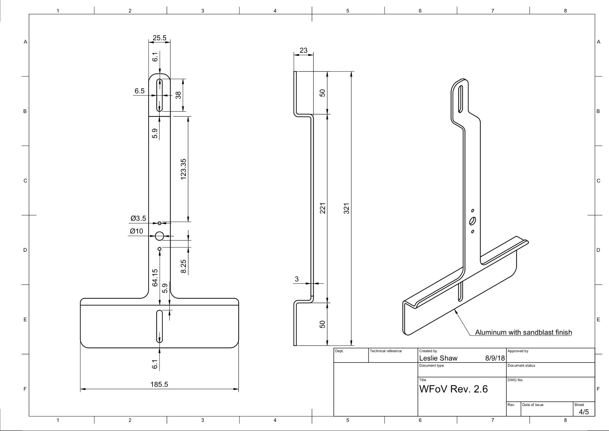
機械製図
WFoV ITS-in-a-box の次の機械製図に、組み立てに必要な素材を示します。最初に、WFoV ITS-in-a-box のプロダクション ファイルの最新版をダウンロードしてください。
図 1. WFoV ITS-in-a-box の機械製図
部品表(BOM)から部品を購入します。プラスチックとビニールの部品を切断します。
必要な工具
次の工具を用意します。
- プラス ドライバ
- ラジオペンチ
- ワイヤー カッター
- はさみ
- 霧吹き
- カッターナイフ
ステップ 1: 色付きのビニールを貼り付ける
次のようにして、色付きのビニールを貼り付けます。
アクリロニトリル ブタジエン スチレン(ABS)の滑らかな面に色付きのビニールを貼り付け、図 2 のように必要な開口部を切り取ります。タブレット側にある大きい長方形の開口部に白いビニールを貼り付け、箱のモバイル デバイス側にある円形の開口部に黒いビニールを貼り付けます。
図 2 に示すようにサイドパネルに灰色のビニールを貼り付け、図 3 に示すように底部パネルの四隅に足を接着します。
詳細については、wikiHow をご覧ください。
図 2. 滑らかな面(箱の内側)にビニールを貼り付けた ABS 部品
図 3 に示すように底部パネルの四隅に足を接着します。
図 3. 底部パネルの四隅の足
ステップ 2: ライトレールを組み立て、取り付ける
次のように、LED ライト ストリップに使用してライトフレーム構造を組み立て、取り付けます。
ライトフレーム構造の機械製図を確認します。
図 4. ライトフレーム構造と LED ライト ストリップ
プラスチック製ライトバッフル、ライトマウント、LED ライト ストリップ、結束バンドを用意します。
図 5. ライトバッフルとライトマウント
図 6 のように、プラスチック製ライトバッフルをライトマウントにはめます。 ぴったりはまるはずです。
図 6. ライトマウントに取り付けたプラスチック製ライトバッフル
図 7 のように、ライトマウントをサイドパネルにはめます。完了すると、ライトは箱の内側の前面隅の方を照らすようになります。
図 7. サイドパネルにはめられたライトバッフルとライトマウント
サイドパネルを組み立てます。(任意: バッフルの縁に紙やすりをかけると、よりフィットします。)
図 8. 組み立ててねじ留めされたサイドパネル
図 9 のように、サイドパネルのスロットを通る長方形のタブの小さな穴にピンを押し込んで、ライトバッフルを固定します。
図 9. 箱の外側の LED マウントタブにピンを挿入した状態の接写画像
バッフルの側面にライト ストリップを下向きにして 2 回巻き付けます。結束バンドを使用してストリップを固定し、縁同士をかみ合わせます。 (任意: 結束バンドに加えて、LED ライト ストリップの裏面にテープを使うと、巻き付けが容易になります。)
図 10. 結束バンドでバッフルに巻き付けられた LED ライト ストリップ
図 11. LED ライト ストリップを所定の位置に固定している結束バンド
図 12、図 13 に示すように、結束バンドの端を切断します。
図 12. LED ライトがバッフルに 2 回巻き付けられ、側面出口から出ている
図 13. 上向きの面に露出している結束バンド(LED ストリップは反対側)
ステップ 3: タブレット マウントとスマートフォン マウントを組み立てる
次のようにして、タブレット マウントとスマートフォン マウントを組み立てます。
タブレット マウントの機械製図を確認します。
図 14. タブレット マウントの機械製図
図 15 の部品を用意します。
図 15. タブレット マウント、スマートフォン マウント、ねじ、プランジャー、ビニール キャップ、ナット
プランジャーの動き(約半分)を妨げないようにゴム製キャップを切断し、プランジャーの先端に押し付けます。ビニール キャップを短くすると、プランジャー機構が沈み込んで確実にロックできます。
図 16. プランジャーと長さを調節したプッシュオン キャップ
プランジャーをマウントにねじ込みます。
図 17. プランジャーを取り付けたタブレット マウントとスマートフォン マウント
ステップ 4: 最終組み立て
次のようにして、WFoV ITS ボックスを組み立てます。
図 18 に示すように、4-40 ねじを使用して、四角い穴のある小さい方の前面絞りプレートを、大きい方の前面絞りプレートの上面にねじ留めします。
図 18. 前面絞りプレートとスマートフォン マウント プレート
図 19. 4-40 ねじでねじ留めされた前面絞りプレートとスマートフォン マウント プレート
前面パネルと背面パネルを箱にテープで固定します。
図 20. 側面がねじ留めされた WFoV ボックスと、テープで固定された前面パネルと背面パネル
電動ドリルで、既存の穴に基づいて下穴を作ります。 ねじを差し込むときに ABS 樹脂に亀裂が入らないように、4-40 ねじに十分な大きさの下穴を作ってください。
図 21. 4-40 ねじ用の下穴をあける
すべてのパネルを 4-40 のタッピングねじでねじ留めします。
図 22. 組み立て用 4-40 ねじ
図 23 のハンドル部品を用意します。
図 23. ハンドル部品
図 24 のように、ハンドルを組み立てます。
図 24. 組み立て済みのハンドル
電源アダプターが 12 V、5 A で、UL リステッドの認証があるか確認します。12 V 未満では動作しません。5 A 未満の場合、ライトの明るさに影響します。
図 25. UL リステッド認証のある 12 V、5 A の電源アダプター
デジタル照度計を使用して LED ライトの照度をテストし、適切なレベルにあることを確認します。
照度計をタブレット側に置き、測定する照度を 2,000 ルクスに設定します。照度は 100~130 ルクス程度にしてください。あまり低いと暗すぎてテストに失敗する可能性があります。
この例では、Contempo View の YF-1065 照度計を使用しています。
図 26. YF-1065(Contempo Views)
図 27. 側面からの光を測定する照度計とタブレット マウント
計測されたルクス値に応じて次の手順を実行します。
- 照度が正しいレベルの場合は、前面プレートと背面プレートをねじで固定します。
- 照度が正しいレベルでない場合は、LED と電源装置の部品番号が正しいことを確認します。
スマートフォン マウントを絞りプレートに取り付け、反対側にタブレット マウントをねじとナットで取り付けます。
図 28. タブレット マウントの接写画像
図 29. 組み立て済みの WFoV ボックス(左から背面、右が前面)
DUT のカメラの絞りに合わせて、10×10 cm のゲーターボードの絞りを挿入します。
図 30. ゲーターボードの絞りを装着した ITS-in-a-box
カメラを絞りの開口部に合わせて、スマートフォンを取り付けます。 タブレットの開口部を通して位置合わせを確認します。
図 31. 1 台のスマートフォンを装着した ITS-in-a-box
カメラ用に絞りの穴をあけます。1 台のスマートフォンをテストする場合は 1 つの絞りを切りあけ、2 台のスマートフォンをテストする場合は 2 つの絞りを切りあけます。Pixel と Pixel XL の前面カメラと背面カメラ用の絞りを図 31 に示します。前面カメラにはフラッシュやレーザーがないため円形の絞りがあり、背面カメラにはフラッシュやレーザーを遮らないように長方形の絞りがあります。
図 32. 前面カメラと背面カメラの絞りのサンプル
図 33. 2 台のスマートフォンを装着した ITS-in-a-box
または、図 34 に示すように、ボール紙に絞り用の穴を開け、マーカー、スプレー、またはアクリル塗料で黒く塗りつぶすこともできます。
図 34. ボール紙で作った前面カメラ・背面カメラ両方の絞りのサンプル
注意点
テストを不安定にする一般的な製造不良の例を次に示します。
背面パネルのタブレット穴が貫通している。ねじ穴によって余計な円ができるため、
find_circleテストで失敗します。
図 35. 穴が貫通している背面パネル
ダボがない。配送中にライトバッフルが滑り落ちます。
図 36. ライトバッフルにダボがない
UL リステッド電源でない。UL リステッド電源の使用により、表示の仕様が満たされます。照明を安全に使用するために重要です。
図 37. UL リステッド電源の例
タブレット マウントやスマートフォン マウントを固定しているねじが緩く、タブレットやスマートフォンの重さを支えられない。通常、ねじ山の破損が原因で、ねじ穴のねじ山を作り直す必要があります。
図 38. ねじ山が破損したねじ穴