Mendapatkan kotak dengan ruang pandang lebar

Android menyertakan ITS-in-a-box revisi 2, sistem pengujian otomatis untuk sistem kamera dengan ruang pandang lebar (WFoV) dan sudut pandang reguler (RFoV) dalam Camera Image Test Suite (ITS). Revisi 1 dirancang untuk menguji kamera perangkat seluler dengan FoV kurang dari 90 derajat (RFoV).

Kotak ruang pandang lebar (revisi 2) juga dirancang untuk menguji kamera yang memiliki FoV lebih dari 90 derajat (WFoV), sehingga Anda dapat menggunakan satu sistem ITS-in-a-box untuk menguji berbagai kamera dengan FoV yang bervariasi asalkan kamera dapat fokus pada jarak sekitar 20 cm.

Sistem ITS-in-a-box terdiri dari kotak plastik yang dipotong laser dari gambar desain berbantuan komputer (CAD), sistem pencahayaan internal, tablet bagan, dan perangkat yang sedang diuji (DUT). Anda dapat membeli ITS-in-a-box atau membuatnya sendiri.

Membeli WFoV ITS-in-a-box

Sebaiknya beli WFoV ITS-in-a-box dari salah satu vendor yang memenuhi syarat berikut.

  • Byte Bridge Inc.
    Amerika Serikat: 1502 Crocker Ave, Hayward, CA 94544-7037
    China: 22F #06-08, Hongwell International Plaza Tower A, 1600 West Zhongshan Road, Xuhui, Shanghai, 200235
    www.bytebt.com
    androidpartner@bytebt.com
    Amerika Serikat: +1-510-373-8899
    China: +86-400-8866-490

  • JFT CO LTD 捷富通科技有限公司 (sebelumnya dikenal sebagai MYWAY DESIGN)
    China: No. 40, Lane 22, Heai Road, Wujing Town, Minhang District, Shanghai, China
    Taiwan: 4F., No. 163, Fu-Ying Road, XinZhuang District, New Taipei City 242, Taiwan
    www.jftcoltd.com
    service@jfttec.com atau its.sales@jfttec.com
    China:+86-021-64909136
    Taiwan: 886-2-29089060

Video tutorial

Ini adalah tutorial video tentang cara menyiapkan WFoV ITS-in-a-box.

Membangun ITS-in-a-box WFoV

Daripada membeli ITS-in-a-box WFoV (revisi 2), Anda dapat membuatnya sendiri. Bagian ini mencakup petunjuk langkah demi langkah untuk merakit ITS-in-a-box WFoV (revisi 2) yang dapat menguji kamera dengan ruang pandang lebar (lebih dari 90 derajat).

Histori revisi

Tabel berikut menjelaskan histori revisi rig WFoV ITS Kamera dan menyertakan link download ke setiap versi file produksi.

Tanggal Revisi Download file produksi Log perubahan
Desember 2022 2.9 WFoV Rev 2.9
  • Menambahkan mekanisme pemasangan yang mendukung pengujian tablet.
  • Merevisi dudukan ponsel agar asimetris.
  • Desain apertur yang direvisi dari papan busa kosong ke desain umum.
Oktober 2019 2.8 Tidak tersedia
  • Menambahkan desain bukaan ke dokumentasi produksi.
  • Menambahkan kaki di bagian bawah rig pengujian untuk dukungan yang lebih baik.
  • Merevisi desain penjepit C untuk meningkatkan kecocokan batang dowel.
  • Merevisi pelat apertur depan untuk memberikan rentang gerakan yang lebih besar bagi dudukan ponsel.
Oktober 2018 2.7 Tidak tersedia
  • Mengganti lampu di BOM (#16) dengan lampu LED bersertifikasi UL untuk konsistensi manufaktur yang lebih baik.
  • Mengganti catu daya yang dialihkan dalam BOM ke sumber yang sama dengan #16.
  • Merevisi dudukan tablet agar lebih lebar 35 mm agar sesuai dengan bukaan tablet (halaman 4 pada gambar mekanis)
  • Merevisi jarak lubang penjepit depan (jarak) agar sejajar dengan panjang slot penjepit (halaman 5 pada gambar mekanis)
  • Mengurangi diameter lingkaran apertur depan sebesar 20 mm agar sesuai dengan RFoV ITS-in-a-box.
Agustus 2018 2.6 Tidak tersedia
  • Dirilis secara internal untuk memperbaiki gambar mekanis.
Agustus 2018 2,5 Tidak tersedia
  • Menyederhanakan dudukan tablet agar serupa dengan dudukan ponsel.
  • Menggunakan hasil akhir sandblast, bukan hasil akhir anodisasi untuk mengurangi biaya.
  • Spesifikasi yang benar untuk lampu LED pada BOM
Juni 2018 2.4 Tidak tersedia
  • Beralih dari bahan akrilik ke bahan ABS untuk mengurangi kerusakan saat pengiriman.
  • Menghilangkan elemen cetak 3D dan menggantinya dengan ABS yang dipotong laser untuk mengurangi biaya.
  • Mengubah tuas kotak agar menggunakan ABS, bukan item terpisah yang dapat dibeli di BOM.

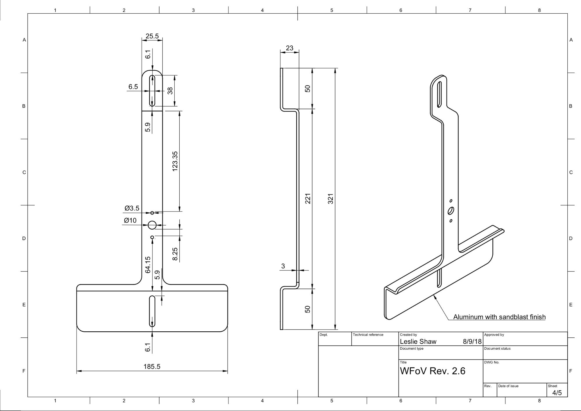
Gambar mekanis

Gambar teknik WFoV ITS-in-a-box berikut menunjukkan bahan yang diperlukan untuk perakitan. Untuk memulai, download file produksi terbaru untuk WFoV ITS-in-a-box.

Gambar CAD WFoV ITS-in-a-box

Gambar 1. Gambar mekanis WFoV ITS-in-a-box

Beli hardware dari bill of materials (BOM). Potong potongan plastik dan vinil.

Alat yang diperlukan

Siapkan alat berikut:

  • Obeng head Phillips
  • Tang lancip
  • Pemotong kawat
  • Gunting
  • Botol semprot air
  • Pisau X-ACTO

Langkah 1: Tempelkan vinil berwarna

Untuk menempelkan vinyl berwarna:

  1. Tempelkan vinil berwarna di sisi halus akrilonitril butadiena stirena (ABS) dan potong bukaan yang diperlukan seperti yang ditunjukkan pada Gambar 2. Pastikan untuk memasang stiker vinil putih dengan bukaan persegi panjang besar di sisi tablet dan stiker vinil hitam dengan bukaan melingkar di sisi perangkat seluler pada kotak.

    Tempelkan vinil abu-abu pada panel samping seperti yang ditunjukkan pada Gambar 2 dan rekatkan kaki di empat sudut panel bawah seperti yang ditunjukkan pada Gambar 3.

    Untuk mengetahui informasi selengkapnya, lihat wikiHow.

    Potongan ABS dengan vinil yang ditempelkan di sisi halus

    Gambar 2. Potongan ABS dengan vinil yang ditempelkan di sisi halus (bagian dalam kotak)

  2. Tempelkan kaki di empat sudut panel bawah seperti yang ditunjukkan pada Gambar 3.

    Kaki panel bawah

    Gambar 3. Kaki di empat sudut panel bawah

Langkah 2: Rakit dan pasang rel lampu

Untuk merakit dan memasang struktur bingkai lampu dengan strip lampu LED:

  1. Tinjau gambar mekanis struktur rangka lampu.

    Struktur rangka ringan dengan strip lampu LED

    Gambar 4. Struktur rangka ringan dengan strip lampu LED

  2. Kumpulkan baffle lampu plastik, dudukan lampu, strip lampu LED, dan pengikat kabel.

    Penghalang cahaya, dudukan lampu, strip lampu LED, dan tali pengikat

    Gambar 5. Peredam cahaya dan dudukan lampu

  3. Pasang baffle lampu plastik ke dudukan lampu seperti yang ditunjukkan pada Gambar 6. Ini harus pas.

    Peredam cahaya plastik yang dipasang di dudukan lampu

    Gambar 6. Peredam cahaya plastik yang dipasang di dudukan lampu

  4. Pasang dudukan lampu ke panel samping seperti yang ditunjukkan pada Gambar 7. Setelah selesai, cahaya akan bersinar ke arah sudut depan bagian dalam kotak.

    Peredam cahaya dan dudukan yang dipasang pada panel samping

    Gambar 7. Peredam cahaya dan dudukan yang dipasang pada panel samping

  5. Pasang panel samping. (Opsional: Amplas tepi baffle agar pas.)

    Panel samping dirakit dan disekrup

    Gambar 8. Panel samping dirakit dan disekrup bersama

  6. Kencangkan peredam cahaya dengan menekan pin ke dalam lubang kecil pada tab persegi panjang yang memanjang melalui slot di panel samping seperti yang ditunjukkan pada Gambar 9.

    PIN dimasukkan di tab dudukan LED

    Gambar 9. Tampilan dari dekat pin yang dimasukkan ke dalam tab dudukan LED di bagian luar kotak

  7. Lilitkan strip lampu di sekitar baffle dua kali di sisi yang menghadap ke bawah. Gunakan tali pengikat untuk mengikat strip, dan satukan ujungnya. (Opsional: Gunakan selotip di bagian belakang strip lampu LED selain tali pengikat untuk mempermudah pembungkusan.)

    Strip lampu LED yang dililitkan di sekitar baffle

    Gambar 10. Strip lampu LED yang dililitkan di sekitar baffle dengan tali pengikat

    Pengikat kabel yang menahan strip lampu LED

    Gambar 11. Pengikat kabel yang menahan strip lampu LED di tempatnya

  8. Potong ujung tali pengikat seperti yang ditunjukkan pada Gambar 12 dan 13.

    Lampu LED di sekitar baffle keluar

    Gambar 12. Lampu LED dililitkan dua kali di sekeliling baffle dan keluar melalui pintu keluar samping

    Pengikat kabel menghadap ke atas

    Gambar 13. Pengikat kabel yang terlihat di sisi yang menghadap ke atas (strip LED berada di sisi lain)

Langkah 3: Rakit dudukan tablet dan ponsel

Untuk merakit dudukan tablet dan ponsel:

  1. Tinjau gambar mekanis dudukan tablet.

    Gambar mekanis dudukan tablet

    Gambar 14. Gambar mekanis dudukan tablet

  2. Kumpulkan komponen seperti yang ditunjukkan pada Gambar 15.

    Komponen dudukan tablet dan ponsel

    Gambar 15. Dudukan tablet dan ponsel dengan sekrup, penekan, tutup vinil, dan mur

  3. Potong ujung karet cukup pendek agar tidak mengganggu pengoperasian plunger (kira-kira menjadi dua), lalu dorong ke ujung plunger. Panjang tutup vinil yang lebih pendek memastikan mekanisme pendorong dapat ditarik dan dikunci.

    Pendorong dengan tutup tekan yang disesuaikan

    Gambar 16. Plunger dengan tutup tekan yang disesuaikan

  4. Pasang pendorong ke dudukan menggunakan sekrup.

    Dudukan tablet dan ponsel dengan pengisap terpasang

    Gambar 17. Dudukan tablet dan ponsel dengan pengisap terpasang

Langkah 4: Perakitan akhir

Untuk merakit kotak ITS WFoV:

  1. Kumpulkan pelat apertur depan dan gunakan sekrup 4-40 untuk menyekrup pelat yang lebih kecil dengan kotak di atas pelat yang lebih besar seperti yang ditunjukkan pada Gambar 18.

    Dari pelat apertur dan pelat dudukan ponsel

    Gambar 18. Pelat apertur depan dan pelat dudukan ponsel

    Pelat apertur depan yang sudah dirakit

    Gambar 19. Pelat apertur depan dan pelat dudukan ponsel disekrup bersama dengan sekrup 4-40

  2. Tempelkan panel depan dan belakang ke kotak.

    Kotak WFoV dengan sisi yang disekrup

    Gambar 20. Kotak WFoV dengan sisi yang disekrup bersama dan panel depan dan belakang yang direkatkan

  3. Gunakan bor listrik untuk membuat lubang pemandu berdasarkan lubang yang ada. Pastikan lubang pemandu cukup besar untuk sekrup 4-40 agar plastik ABS tidak retak saat memasukkan sekrup.

    Lubang pemandu

    Gambar 21. Mengebor lubang bor awal untuk sekrup 4-40

  4. Sekrup semua panel menggunakan sekrup self-tapping 4-40.

    Sekrup 4-40 untuk perakitan

    Gambar 22. Sekrup 4-40 untuk perakitan

  5. Kumpulkan bagian gagang yang ditunjukkan pada Gambar 23.

    Bagian gagang

    Gambar 23. Bagian gagang

  6. Pasang gagang seperti yang ditunjukkan pada Gambar 24.

    Tuas yang dirakit

    Gambar 24. Tuas yang dirakit

  7. Pastikan adaptor daya bertegangan 12 V, 5 A, dan memiliki sertifikat yang terdaftar di UL. Apa pun yang di bawah 12 V tidak berfungsi. Apa pun di bawah 5 A dapat memengaruhi tingkat kecerahan lampu.

    Adaptor daya 12 V, 5 A

    Gambar 25. Adaptor daya 12 V, 5 A dengan sertifikat yang terdaftar di UL

  8. Dengan menggunakan lux meter digital, uji lux lampu LED untuk memastikan bahwa lampu tersebut berada pada tingkat yang sesuai.

    Letakkan pengukur cahaya di sisi tablet dan putar ke 2000 lux untuk mengukur cahaya. Lux harus sekitar 100–300. Apa pun yang jauh lebih rendah terlalu redup untuk pengujian dan dapat menyebabkan kegagalan pengujian.

    Pengukur lux YF-1065 dari Contempo Views digunakan dalam contoh ini.

    YF-1065 oleh Contempo Views

    Gambar 26. YF-1065 oleh Contempo Views

    Pengukur lux

    Gambar 27. Pengukur lux yang mengukur cahaya dari samping dengan dudukan tablet

  9. Ikuti langkah yang sesuai bergantung pada nilai lux yang diukur:

    • Jika lampu berada pada tingkat yang tepat, pasang pelat depan dan belakang ke tempatnya.
    • Jika tingkat cahaya salah, periksa apakah nomor komponen LED dan catu daya sudah benar.
  10. Pasang dudukan ponsel pada pelat apertur dan dudukan tablet di sisi berlawanan dengan sekrup dan mur.

    Dudukan tablet

    Gambar 28. Tampilan close-up dudukan tablet

    Kotak WFoV yang sudah dirakit

    Gambar 29. Kotak WFoV yang sudah dirakit: tampilan belakang (kiri) dan tampilan depan (kanan)

  11. Masukkan apertur papan gator 10x10 cm agar sesuai dengan apertur kamera DUT.

    Apertur papan Gator

    Gambar 30. ITS-in-a-box dengan apertur papan gator yang terpasang

  12. Pasang ponsel dengan menyelaraskan kamera dengan apertur lensa. Periksa kesejajaran melalui bukaan tablet.

    Box dengan satu ponsel yang terpasang

    Gambar 31. ITS-in-a-box dengan satu ponsel yang terpasang

  13. Buat apertur untuk kamera. Anda dapat memotong satu apertur (untuk menguji satu ponsel) atau dua apertur (untuk menguji dua ponsel). Apertur untuk kamera depan dan belakang Pixel dan Pixel XL ditampilkan pada Gambar 32. Kamera depan memiliki apertur melingkar karena tidak ada flash atau laser, sedangkan kamera belakang memiliki apertur persegi panjang yang memungkinkan flash dan laser beroperasi tanpa terhalang.

    Apertur untuk kamera depan dan belakang

    Gambar 32. Contoh apertur untuk kamera depan dan belakang

    gambar

    Gambar 33. ITS-in-a-box dengan dua ponsel yang terpasang

    Atau, Anda juga dapat memotong apertur dari kardus dan mengecatnya dengan spidol, cat semprot, atau akrilik seperti yang ditunjukkan pada Gambar 34.

    gambar

    Gambar 34. Contoh apertur kardus untuk kamera depan dan belakang

Hal yang perlu diperhatikan

Berikut adalah contoh error manufaktur umum yang dapat membuat pengujian menjadi tidak stabil.

  • Panel belakang dengan lubang tablet yang ditusuk. Hal ini menyebabkan pengujian find_circle gagal karena lingkaran tambahan yang dibuat oleh lubang sekrup.

    Panel belakang dengan lubang

    Gambar 35. Panel belakang dengan lubang yang ditusuk

  • Dowel tidak ada. Hal ini menyebabkan baffle lampu terlepas selama pengiriman.

    Dowel tidak ada

    Gambar 36. Dowel tidak ada pada peredam cahaya

  • Catu daya yang tidak terdaftar di UL. Menggunakan catu daya yang terdaftar di UL memenuhi spesifikasi yang tercantum. Hal ini penting untuk mengoperasikan pencahayaan dengan aman.

    Catu daya yang terdaftar di UL

    Gambar 37. Contoh catu daya yang terdaftar di UL

  • Sekrup yang terlepas pada dudukan tablet atau ponsel yang tidak dapat menopang berat tablet atau ponsel. Hal ini biasanya disebabkan oleh ulir yang rusak dan menunjukkan bahwa lubang perlu dibuat ulir baru.

    Lubang dengan ulir yang rusak

    Gambar 38. Lubang dengan ulir yang rusak