קבלת תיבת שדה ראייה רחב

‫Android כולל את ITS-in-a-box גרסה 2, מערכת בדיקה אוטומטית למערכות מצלמה עם שדה ראייה רחב (WFoV) ושדה ראייה רגיל (RFoV) ב-Camera Image Test Suite (ITS). גרסה 1 נועדה לבדיקת מצלמות של מכשירים ניידים עם שדה ראייה (FoV) של פחות מ-90 מעלות (RFoV).

הקופסה עם שדה הראייה הרחב (גרסה 2) מיועדת גם לבדיקת מצלמות עם שדה ראייה גדול מ-90 מעלות (WFoV), כך שאפשר להשתמש במערכת ITS-in-a-box אחת כדי לבדוק מצלמות שונות עם שדות ראייה שונים, בתנאי שהמצלמות יכולות להתמקד במרחק של כ-20 ס"מ.

מערכת ITS-in-a-box מורכבת מקופסת פלסטיק שנחתכה בלייזר משרטוטים של תוכנת CAD, מערכת תאורה פנימית, לוח תרשימים ומכשיר שנבדק (DUT). אפשר לרכוש ITS-in-a-box או ליצור מערכת משלכם.

רכישת WFoV ITS-in-a-box

מומלץ לרכוש WFoV ITS-in-a-box מאחד מהספקים המוסמכים הבאים.

  • Byte Bridge Inc.‎
    ארה"ב: 1502 Crocker Ave, Hayward, CA 94544-7037
    סין: 22F #06-08, Hongwell International Plaza Tower A, 1600 West Zhongshan Road, Xuhui, Shanghai, 200235
    www.bytebt.com
    androidpartner@bytebt.com
    ארה"ב: ‎+1-510-373-8899
    סין: ‎+86-400-8866-490

  • JFT CO LTD 捷富通科技有限公司 (לשעבר MYWAY DESIGN)
    סין: No. 40, Lane 22, Heai Road, Wujing Town, Minhang District, Shanghai, China
    טייוואן: 4F., ‪No. 163, Fu-Ying Road, XinZhuang District, New Taipei City 242, Taiwan
    www.jftcoltd.com
    service@jfttec.com or its.sales@jfttec.com
    China:+86-021-64909136
    Taiwan: 886-2-29089060

סרטון הדרכה

זהו סרטון הדרכה שמסביר איך להגדיר את מערכת ה-ITS-in-a-box של WFoV.

איך בונים WFoV ITS-in-a-box

במקום לרכוש מערכת WFoV ITS-in-a-box (גרסה 2), אפשר לבנות מערכת משלכם. הקטע הזה כולל הוראות מפורטות להרכבת WFoV ITS-in-a-box (גרסה 2) שיכול לבדוק מצלמות עם שדה ראייה רחב (מעל 90 מעלות).

היסטוריית גרסאות

בטבלה הבאה מתוארת היסטוריית הגרסאות של מתקן ה-WFoV של Camera ITS, והיא כוללת קישורי הורדה לכל גרסה של קובצי הייצור.

תאריך Revision הורדת קובץ הפקה יומן השינויים
דצמבר 2022 ‫2.9 WFoV Rev 2.9
  • נוסף מנגנון הרכבה שתומך בבדיקות של טאבלטים.
  • שינינו את תושבות הטלפון כך שהן לא סימטריות.
  • עיצוב צמצם מתוקן מלוחות קצף ריקים לעיצובים גנריים.
אוקטובר 2019 2.8 לא זמין
  • נוסף עיצוב צמצם לתיעוד הייצור.
  • הוספנו רגליות לחלק התחתון של מתקן הבדיקה כדי לשפר את התמיכה.
  • שינינו את העיצוב של מהדק C כדי לשפר את ההתאמה של הפינים.
  • שינינו את לוחית הצמצם הקדמית כדי לספק טווח תנועה גדול יותר לתושבות הטלפון.
אוקטובר 2018 2.7 לא זמין
  • החלפנו את הנורה ברשימת החומרים (BOM) (#16) בנורת LED מאושרת UL כדי לשפר את העקביות בתהליך הייצור.
  • החלפתי את ספק הכוח ב-BOM לאותו מקור כמו #16.
  • הגדלנו את רוחב התושבת לטאבלט ב-35 מ"מ כדי להתאים לפתח של הטאבלט (עמוד 4 בשרטוט המכני)
  • שונה המרווח (המרחק) בין החורים של מהדק הקדמי כדי שיתאים לאורך החריץ של המהדק (עמוד 5 בשרטוט המכני)
  • הקטנו את קוטר העיגול של הצמצם הקדמי ב-20 מ"מ כדי להתאים ל-RFoV ITS-in-a-box.
אוגוסט 2018 2.6 לא זמין
  • הגרסה הופצה באופן פנימי כדי לתקן שרטוט מכני.
אוגוסט 2018 2.5 לא זמין
  • הפכנו את התושבת לטאבלט לפשוטה יותר, כך שהיא דומה לתושבת לטלפון.
  • השתמשו בגימור של התזת חול במקום בגימור אנודייז כדי לצמצם את העלויות.
  • מפרטים מתוקנים של נורות LED ברשימת החומרים
יוני 2018 2.4 לא זמין
  • עברנו מחומר אקרילי לחומר ABS כדי לצמצם את הנזק שנגרם במהלך המשלוח.
  • הסרנו רכיבים של הדפסה תלת-ממדית והחלפנו אותם ב-ABS בחיתוך לייזר כדי לצמצם עלויות.
  • ידיות התיבה השתנו ל-ABS במקום להיות פריט נפרד לרכישה ב-BOM.

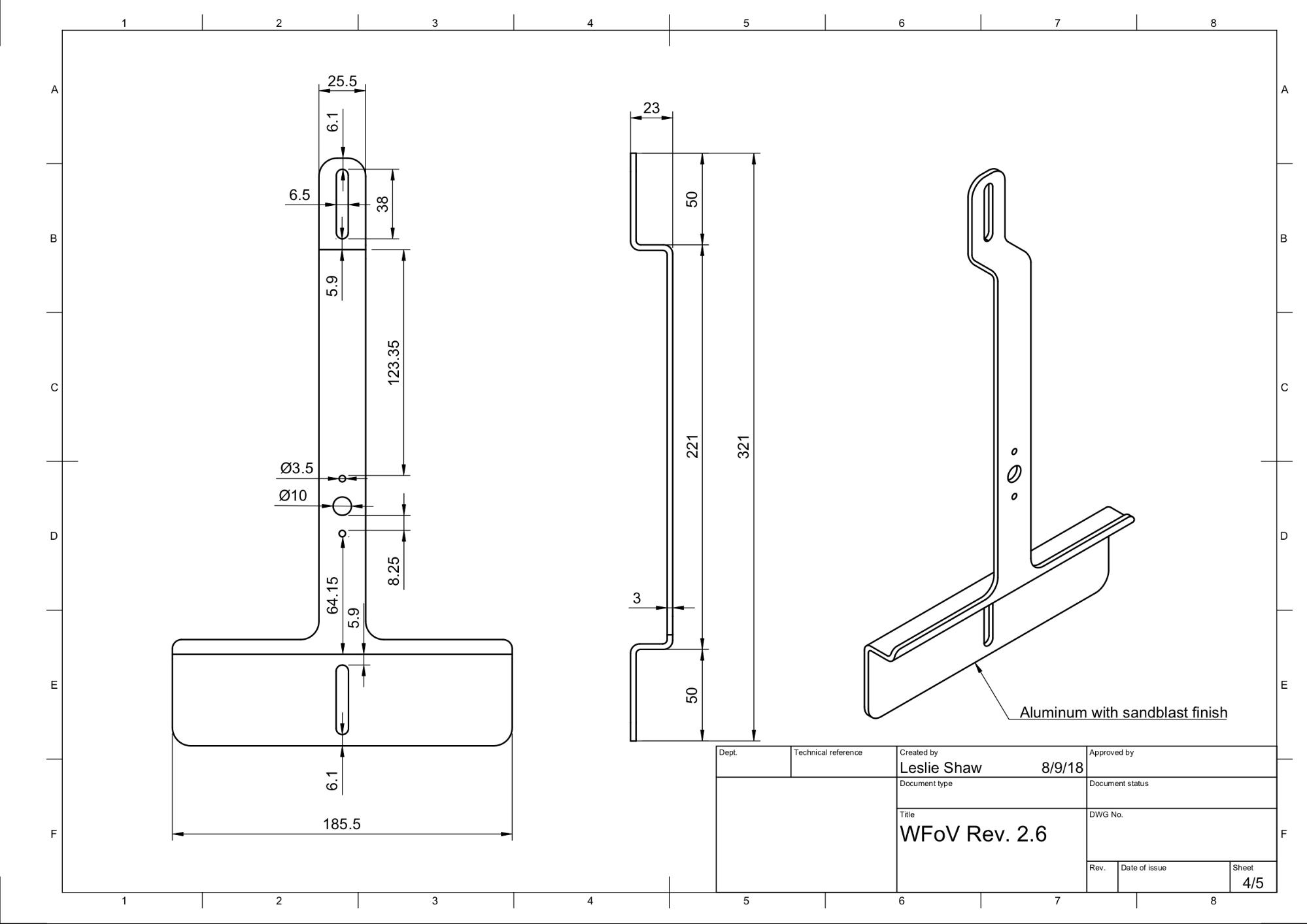
שרטוטים מכניים

בשרטוט המכני הבא של WFoV ITS-in-a-box מוצגים החומרים הנדרשים להרכבה. כדי להתחיל, מורידים את קבצי הייצור האחרונים של WFoV ITS-in-a-box.

שרטוט CAD של WFOV ITS-in-a-box

איור 1. ציור מכני של WFoV ITS-in-a-box

רוכשים את הציוד מרשימת החומרים (BOM). גוזרים את חתיכות הפלסטיק והויניל.

כלים נדרשים

הכלים הבאים זמינים:

  • מברג פיליפס
  • שפיץ פלייר
  • מגזרי תיל
  • מספריים
  • בקבוק ריסוס עם מים
  • סכין X-ACTO

שלב 1: מניחים ויניל צבעוני

כדי להשתמש בוויניל צבעוני:

  1. מדביקים את הוויניל הצבעוני על הצד החלק של האקרילוניטריל בוטאדיאן סטירן (ABS) וחותכים את הפתחים הדרושים כמו שמוצג באיור 2. חשוב להקפיד להדביק את הוויניל הלבן עם הפתח המלבני הגדול בצד של הטאבלט, ואת הוויניל השחור עם הפתח העגול בצד של המכשיר הנייד.

    מדביקים את הוויניל האפור על הפאנלים הצדדיים כמו שמוצג באיור 2, ומדביקים את הרגליים בארבע הפינות של הפאנל התחתון כמו שמוצג באיור 3.

    מידע נוסף זמין ב-wikiHow.

    חלקי ABS עם ויניל בצד החלק

    איור 2. חלקי ABS עם ויניל בצד החלק (הפנימי של הקופסה)

  2. מצמידים את הרגליים לארבע הפינות של הפאנל התחתון, כמו שמוצג באיור 3.

    רגליות בחלק התחתון של המסך

    איור 3. רגליות בארבע הפינות של הפאנל התחתון

שלב 2: הרכבה והתקנה של הרכבת הקלה

כדי להרכיב ולהתקין את מבנה מסגרת התאורה עם פסי תאורת LED:

  1. בודקים את השרטוט המכני של מבנה מסגרת התאורה.

    מבנה עם מסגרת קלה ופסי תאורת LED

    איור 4. מבנה עם מסגרת קלה ופסי תאורת LED

  2. מכינים את מסיטי האור מפלסטיק, את תושבות התאורה, את פסי התאורה מסוג LED ואת אזיקוני הכבלים.

    מחיצות אור, מתקני תאורה, פסי תאורה מסוג LED ואזיקונים

    איור 5. מגני אור ותושבות לגופי תאורה

  3. מחברים את מסיטי האור מפלסטיק לתושבות של האור, כמו שמוצג באיור 6. המידות צריכות להיות מדויקות.

    מגני אור מפלסטיק שמותקנים בתושבות של גופי תאורה

    איור 6. מגני אור מפלסטיק שמותקנים בתושבות של גופי תאורה

  4. מצמידים את תושבות התאורה ללוחות הצדדיים כמו שמוצג באיור 7. בסיום, האור יאיר לכיוון הפינות הקדמיות של פנים הקופסה.

    מגני אור ותושבות שמוצמדים לחלוניות הצדדיות

    איור 7. מגני אור ותושבות שמוצמדים לחלוניות הצדדיות

  5. מרכיבים את לוחות הצד. (אופציונלי: משייפים את הקצוות של המחיצות כדי שיתאימו טוב יותר).

    הרכבה של חלוניות הצד והברגה שלהן

    איור 8. חלוניות צדדיות מורכבות ומוברגות זו לזו

  6. מהדקים את מסיטי האור על ידי לחיצה על הפין לתוך החור הקטן בלשונית המלבנית שיוצאת דרך החריץ בלוחות הצד, כמו שמוצג באיור 9.

    הוספת קוד אימות בכרטיסייה LED mount

    איור 9. תקריב של פין מוחדר בכרטיסיית תושבת LED בחלק החיצוני של הקופסה

  7. מלפפים את פסי התאורה סביב המסיטים פעמיים בצד שפונה כלפי מטה. משתמשים באזיקונים כדי לקשור את הרצועה, ומצמידים את הקצוות שלה. (אופציונלי: אפשר להשתמש בסרט הדביק שבגב פס נורות ה-LED בנוסף לאזיקונים, כדי לעטוף את הפס בקלות רבה יותר).

    פס לדים עוטף את המסיטים

    איור 10. פס לדים עטוף סביב המסיטים עם אזיקונים

    אזיקונים שמחזיקים פסי LED

    איור 11. אזיקונים שמחזיקים את פסי הלדים במקום

  8. גוזרים את הקצוות של אזיקונים כמו שמוצג באיור 12 ובאיור 13.

    נוריות LED מסביב למסירי רעשים יוצאות

    איור 12. נוריות LED מלופפות סביב המסיטים פעמיים ויוצאות דרך היציאה הצדדית

    אזיקונים פונים כלפי מעלה

    איור 13. אזיקונים שמוצגים בצד שפונה כלפי מעלה (פסים של נוריות LED נמצאים בצד השני)

שלב 3: מרכיבים את המתקנים לטאבלט ולטלפון

כדי להרכיב את התושבות לטאבלט ולטלפון:

  1. בודקים את השרטוט המכני של מתקן הטאבלט.

    שרטוט מכני של תושבת לטאבלט

    איור 14. שרטוט מכני של תושבת לטאבלט

  2. מרכיבים את החלקים כמו שמוצג באיור 15.

    חלקים של תושבות לטאבלטים ולטלפונים

    איור 15. תושבות לטאבלטים ולטלפונים עם ברגים, בוכנות, מכסי ויניל ואומים

  3. גוזרים את קצוות הגומי כך שלא יפריעו לפעולת הבוכנה (בערך באמצע), ודוחפים אותם לקצוות הבוכנות. האורך הקצר יותר של מכסה הוויניל מבטיח שמנגנון הבוכנה יוכל להיסגר ולהינעל.

    בוכנות עם מכסה לחיצה מותאם

    איור 16. בוכנות עם מכסים מותאמים ללחיצה

  4. מבריגים את הבוכנות לתושבות.

    תושבות לטאבלטים ולטלפונים עם פקקי ואקום מחוברים

    איור 17. תושבות לטאבלטים ולטלפונים עם פקקי ואקום מחוברים

שלב 4: הרכבה סופית

כדי להרכיב את קופסת ה-ITS של WFoV:

  1. אוספים את לוחות הצמצם הקדמיים ומשתמשים בברגים 4-40 כדי להבריג את הלוח הקטן עם הריבוע מעל הלוח הגדול יותר, כמו שמוצג באיור 18.

    מלוחית הצמצם ומלוחית התושבת לטלפון

    איור 18. לוחית הצמצם הקדמית ולוחית התושבת לטלפון

    לוחית צמצם קדמית מורכבת

    איור 19. לוחית הצמצם הקדמית ולוחית התושבת לטלפון מוברגות זו לזו באמצעות ברגי 4-40

  2. מדביקים את הפאנלים הקדמי והאחורי לקופסה.

    קופסת WFoV עם צדדים שמוברגים יחד

    איור 20. קופסת WFoV עם הצדדים שמוברגים יחד והלוחות הקדמי והאחורי מודבקים

  3. משתמשים במקדחה חשמלית כדי ליצור חורי סימון על סמך החורים הקיימים. חשוב לוודא שהחורים המקדימים גדולים מספיק לברגי 4-40, כדי שהפלסטיק מסוג ABS לא ייסדק כשמכניסים את הברגים.

    חורי סימון

    איור 21. קדיחת חורי סימון לברגי 4-40

  4. מבריגים את כל הפאנלים יחד באמצעות ברגי הקשה עצמית 4-40.

    ברגי 4-40 להרכבה

    איור 22. ברגי 4-40 להרכבה

  5. אוספים את החלקים של הידית שמוצגים באיור 23.

    חלקי ידית

    איור 23. חלקי ידית

  6. מרכיבים את הידיות כמו שמוצג באיור 24.

    כינוי מורכב

    איור 24. כינוי מורכב

  7. בודקים שהמתאם הוא 12V, ‏ 5A ושיש לו אישור UL. מתח נמוך מ-12V לא יפעל. אם הזרם נמוך מ-5A, יכול להיות שתהיה לכך השפעה על רמת הבהירות של התאורה.

    מתאם מתח 12V, ‏ 5A

    איור 25. מתאם מתח 12V, ‏ 5A עם אישור UL

  8. בעזרת מד לוקס דיגיטלי, בודקים את רמת הלוקס של נורות ה-LED כדי לוודא שהיא ברמה המתאימה.

    מניחים את מד האור בצד הטאבלט ומסובבים אותו ל-2,000 לוקס כדי למדוד את האור. הערך של הלוקס צריך להיות בערך 100-300. כל ערך נמוך משמעותית מ-100% יהיה עמום מדי לבדיקות, ועלול לגרום לכך שהבדיקות ייכשלו.

    בדוגמה הזו נעשה שימוש במד לוקס YF-1065 של Contempo Views.

    YF-1065 by Contempo Views

    איור 26. YF-1065 by Contempo Views

    מד לוקס

    איור 27. מד אור שמודד אור מהצד עם מתקן לטאבלט

  9. פועלים לפי השלב המתאים בהתאם לערך הלוקס שנמדד:

    • אם התאורה ברמה הנכונה, מבריגים את הלוחות הקדמי והאחורי למקומם.
    • אם עוצמת האור לא נכונה, צריך לבדוק שמספר החלק של ה-LED ושל ספק הכוח נכונים.
  10. מרכיבים את מתקן הטלפון על לוח הצמצם ואת מתקן הטאבלט בצד הנגדי באמצעות ברגים ואומים.

    תושבת לטאבלט

    איור 28. תקריב של מתקן לטאבלט

    תיבת WFoV מורכבת

    איור 29. קופסת WFoV מורכבת: מבט אחורי (משמאל) ומבט קדמי (מימין)

  11. מכניסים את הצמצם של לוח ה-gator בגודל 10x10 ס"מ כך שיתאים לצמצם המצלמה של המכשיר הנבדק.

    מִפְתח צמצם של לוח Gator

    איור 30. מערכת ITS-in-a-box עם צמצם לוח Gator מותקן

  12. מיישרים את המצלמה עם פתח הצמצם ומכניסים את הטלפון. בודקים את ההתאמה דרך הפתח של הטאבלט.

    קופסה עם טלפון אחד מותקן

    איור 31. מערכת ITS-in-a-box עם טלפון אחד מותקן

  13. חותכים פתחים למצלמות. אפשר לחתוך פתח אחד (לצורך בדיקה של טלפון אחד) או שני פתחים (לצורך בדיקה של שני טלפונים). באיור 32 מוצגים צמצמי המצלמות הקדמיות והאחוריות של Pixel ו-Pixel XL. למצלמה הקדמית יש צמצם עגול כי אין פלאש או לייזר, ולמצלמה האחורית יש צמצם מלבני שמאפשר לפלאש וללייזר לפעול בלי להיחסם.

    צמצמים של המצלמה הקדמית והמצלמה האחורית

    איור 32. דוגמאות לצמצמים של מצלמות קדמיות ואחוריות

    תמונה

    איור 33. מערכת ITS-in-a-box עם שני טלפונים מותקנים

    אפשרות נוספת היא לחתוך צמצמים מקרטון ולצבוע אותם בשחור באמצעות טושים, צבע ספריי או צבע אקרילי, כמו שמוצג באיור 34.

    תמונה

    איור 34. דוגמה לפתחי קרטון למצלמה הקדמית ולמצלמה האחורית

דברים שכדאי לשים לב אליהם

אלה דוגמאות לשגיאות נפוצות בתהליך הייצור שעלולות לגרום לכך שהבדיקות יהיו לא אמינות.

  • הפאנל האחורי עם חורים בטאבלט. כתוצאה מכך, הבדיקה find_circle נכשלת בגלל המעגלים הנוספים שנוצרו על ידי חורי הברגים.

    לוח אחורי עם חורים

    איור 35. לוח אחורי עם חורים

  • חסרים פינים. כתוצאה מכך, מחיצות האור עלולות להחליק החוצה במהלך המשלוח.

    חסר פין

    איור 36. חסר פין בלוח להפחתת אור

  • ספק כוח שלא מופיע ברשימת UL. שימוש בספק כוח שמופיע ברשימת UL עומד במפרטים המסומנים. השלב הזה חשוב כדי להפעיל את התאורה בצורה בטוחה.

    ספק כוח בתקן UL

    איור 37. דוגמה לספק כוח שמופיע ברשימת UL

  • הברגים מחליקים בתושבת של הטאבלט או הטלפון, שלא יכולה לשאת את המשקל של הטאבלט או הטלפון. בדרך כלל זה קורה בגלל הברגות פגומות, וזה מצביע על כך שצריך להבריג מחדש את החור.

    חור עם הברגות פגומות

    איור 38. חור עם הברגות פגומות