Obtenir un boîtier grand-angle

Android inclut ITS-in-a-box révision 2, un système de test automatisé pour les systèmes de caméras à grand angle (WFoV) et à champ de vision normal (RFoV) dans la suite de tests d'image de caméra (ITS). La révision 1 a été conçue pour tester les caméras d'appareils mobiles dont le champ de vision est inférieur à 90 degrés (champ de vision arrière).

La boîte à large champ de vision (révision 2) est également conçue pour tester les caméras dont le champ de vision est supérieur à 90 degrés (WFoV). Vous pouvez ainsi utiliser un système ITS-in-a-box pour tester différentes caméras avec des champs de vision différents, à condition qu'elles puissent faire la mise au point à environ 20 cm.

Le système ITS-in-a-box se compose d'un boîtier en plastique découpé au laser à partir de dessins de conception assistée par ordinateur (CAO), d'un système d'éclairage interne, d'une tablette graphique et d'un appareil testé (DUT, device under test). Vous pouvez acheter un ITS-in-a-box ou créer le vôtre.

Acheter un ITS-in-a-box WFoV

Nous vous recommandons d'acheter un ITS-in-a-box WFoV auprès de l'un des fournisseurs qualifiés suivants.

  • Byte Bridge Inc.
    États-Unis : 1502 Crocker Ave, Hayward, CA 94544-7037
    Chine : 22F #06-08, Hongwell International Plaza Tower A, 1600 West Zhongshan Road, Xuhui, Shanghai, 200235
    www.bytebt.com
    androidpartner@bytebt.com
    États-Unis : +1-510-373-8899
    Chine : +86-400-8866-490

  • JFT CO LTD 捷富通科技有限公司 (anciennement MYWAY DESIGN)
    Chine : No. 40, Lane 22, Heai Road, Wujing Town, Minhang District, Shanghai, Chine
    Taïwan : 4F., N° 163, Fu-Ying Road, XinZhuang District, New Taipei City 242, Taïwan
    www.jftcoltd.com
    service@jfttec.com ou its.sales@jfttec.com
    Chine : +86-021-64909136
    Taïwan : 886-2-29089060

Tutoriel vidéo

Ce tutoriel vidéo explique comment configurer le système ITS-in-a-box WFoV.

Créer un ITS-in-a-box avec un FoV large

Au lieu d'acheter un ITS-in-a-box (révision 2) à grand champ de vision, vous pouvez créer le vôtre. Cette section inclut des instructions détaillées pour assembler un ITS-in-a-box (révision 2) à champ de vision large, qui permet de tester les caméras avec un champ de vision large (supérieur à 90 degrés).

Historique des révisions

Le tableau suivant décrit l'historique des révisions du support ITS WFoV de la caméra et inclut des liens de téléchargement vers chaque version des fichiers de production.

Date Révision Téléchargement des fichiers de production Journal des modifications
Décembre 2022 2.9 WFoV 2.9
  • Ajout d'un mécanisme de montage permettant de tester les tablettes.
  • Les supports de téléphone ont été modifiés pour être asymétriques.
  • Conception de l'ouverture révisée, passant de panneaux de mousse vierges à des conceptions génériques.
Octobre 2019 2.8 Non disponible
  • Ajout de la conception de l'ouverture à la documentation de production.
  • Ajout de pieds à la base du banc d'essai pour un meilleur support.
  • Nous avons modifié la conception du collier de serrage pour améliorer l'ajustement des tourillons.
  • Nous avons modifié la plaque d'ouverture avant pour offrir une plus grande amplitude de mouvement aux supports de téléphone.
Octobre 2018 2.7 Non disponible
  • L'éclairage à interrupteur de la nomenclature (n° 16) a été remplacé par une bande LED certifiée UL pour une meilleure cohérence de fabrication.
  • Remplacement de l'alimentation à découpage dans la nomenclature par la même source que la référence 16.
  • La fixation de la tablette a été élargie de 35 mm pour correspondre à l'ouverture de la tablette (page 4 du plan mécanique).
  • Modification de l'espacement (distance) des trous du collier de serrage avant pour l'aligner sur la longueur de la fente du collier de serrage (page 5 du plan mécanique)
  • Le diamètre du cercle d'ouverture avant a été réduit de 20 mm pour correspondre à celui de la solution ITS-in-a-box RFoV.
Août 2018 2.6 Non disponible
  • Publication interne pour corriger le plan mécanique.
Août 2018 2,5 TRY Non disponible
  • Simplification du support de tablette pour qu'il ressemble à celui du téléphone.
  • Nous avons utilisé une finition sablée au lieu d'une finition anodisée pour réduire les coûts.
  • Spécifications corrigées pour les voyants LED sur la nomenclature
Juin 2018 2.4 Non disponible
  • Nous sommes passés de l'acrylique à l'ABS pour réduire les dommages lors de l'expédition.
  • Les éléments imprimés en 3D ont été supprimés et remplacés par des éléments en ABS découpés au laser pour réduire les coûts.
  • Les poignées de la boîte sont désormais en ABS au lieu d'être un élément distinct à acheter sur la nomenclature.

Dessins mécaniques

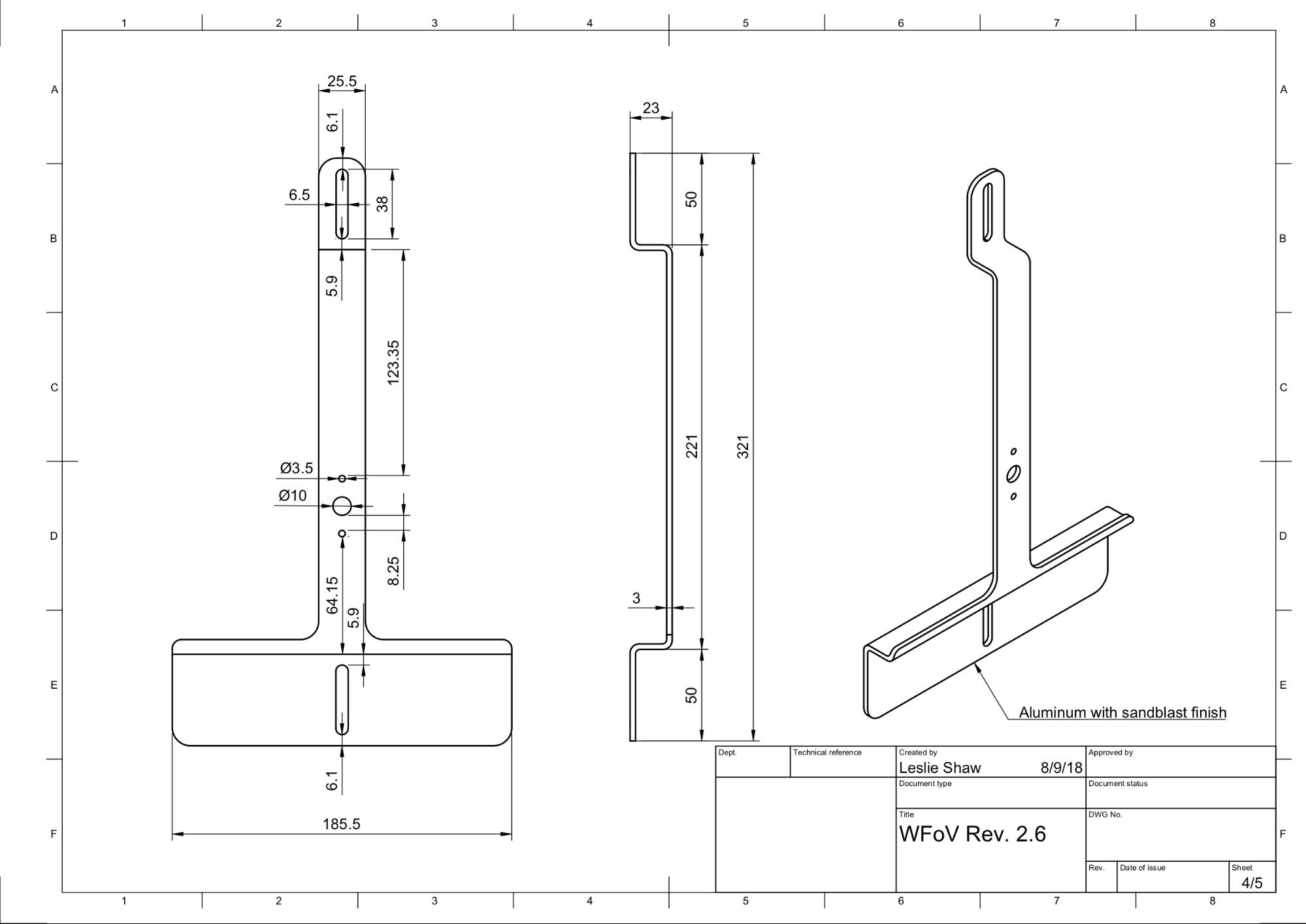
Le schéma mécanique suivant du WFoV ITS-in-a-box montre les matériaux nécessaires à l'assemblage. Pour commencer, téléchargez les derniers fichiers de production pour le WFoV ITS-in-a-box.

Dessin CAO d'un ITS-in-a-box à grand angle

Figure 1 : Dessin mécanique de l'ITS-in-a-box WFoV

Achetez le matériel à partir de la nomenclature. Découpez les pièces en plastique et en vinyle.

Outils requis

Disposez des outils suivants :

  • Tournevis cruciforme
  • Pince à bec long
  • Pinces coupantes
  • Ciseaux
  • Vaporisateur d'eau
  • Cutter X-ACTO

Étape 1 : Appliquez le vinyle coloré

Pour appliquer un vinyle coloré :

  1. Appliquez le vinyle coloré sur le côté lisse de l'acrylonitrile butadiène styrène (ABS) et découpez les ouvertures nécessaires, comme indiqué sur la figure 2. Veillez à appliquer le vinyle blanc avec la grande ouverture rectangulaire sur le côté tablette et le vinyle noir avec l'ouverture circulaire sur le côté appareil mobile de la boîte.

    Appliquez le vinyle gris sur les panneaux latéraux, comme illustré sur la figure 2, puis collez les pieds sur les quatre coins du panneau inférieur, comme illustré sur la figure 3.

    Pour en savoir plus, consultez wikiHow.

    Pièces en ABS avec vinyle appliqué sur le côté lisse

    Figure 2. Pièces en ABS avec vinyle appliqué sur la face lisse (intérieur de la boîte)

  2. Appliquez les pieds aux quatre coins du panneau inférieur, comme indiqué sur la figure 3.

    Pieds du panneau inférieur

    Figure 3. Pieds situés aux quatre coins du panneau inférieur

Étape 2 : Assemblez et installez le rail lumineux

Pour assembler et installer la structure du cadre lumineux avec des bandes lumineuses à LED :

  1. Examinez le plan mécanique de la structure du cadre lumineux.

    Structure légère avec bandes lumineuses à LED

    Figure 4. Structure légère avec bandes lumineuses à LED

  2. Rassemblez les déflecteurs de lumière en plastique, les supports de lumière, les bandes lumineuses à LED et les colliers de serrage.

    Déflecteurs de lumière, supports de fixation, bandes lumineuses à LED et colliers de serrage

    Figure 5. Déflecteurs et supports lumineux

  3. Fixez les déflecteurs de lumière en plastique aux supports de lumière, comme indiqué sur la figure 6. L'ajustement doit être précis.

    Déflecteurs de lumière en plastique montés sur les supports de lumière

    Figure 6. Déflecteurs de lumière en plastique montés sur les supports de lumière

  4. Fixez les supports de lampe aux panneaux latéraux, comme illustré sur la figure 7. Une fois le processus terminé, la lumière est dirigée vers les coins avant de l'intérieur de la boîte.

    Supports et déflecteurs de lumière fixés sur les panneaux latéraux

    Figure 7. Supports et déflecteurs de lumière fixés sur les panneaux latéraux

  5. Assemblez les panneaux latéraux. (Facultatif : Poncez les bords des déflecteurs pour un meilleur ajustement.)

    Panneaux latéraux assemblés et vissés

    Figure 8. Panneaux latéraux assemblés et vissés ensemble

  6. Fixez les déflecteurs de lumière en insérant la goupille dans le petit trou de la languette rectangulaire qui dépasse de la fente des panneaux latéraux, comme illustré sur la figure 9.

    Code inséré dans la languette du support LED

    Figure 9. Gros plan sur la tige insérée dans la languette du support de LED à l'extérieur de la boîte

  7. Enroulez les bandes lumineuses deux fois autour des déflecteurs, sur le côté orienté vers le bas. Utilisez des colliers de serrage pour fixer la bande et emboîtez les extrémités. (Facultatif : Utilisez l'adhésif à l'arrière de la bande lumineuse LED en plus des colliers de serrage pour faciliter l'enroulement.)

    Bande lumineuse à LED enroulée autour des déflecteurs

    Figure 10. Bande LED enroulée autour des déflecteurs et fixée avec des colliers de serrage

    Serre-câbles maintenant des bandes lumineuses à LED

    Figure 11 : Colliers de serrage maintenant les bandes lumineuses LED en place

  8. Coupez les extrémités des colliers de serrage, comme indiqué sur les figures 12 et 13.

    Voyants LED autour des déflecteurs éteints

    Figure 12. Voyants LED enroulés deux fois autour des déflecteurs et sortant par la sortie latérale

    Serre-câbles orientés vers le haut

    Figure 13. Colliers de serrage visibles sur le côté orienté vers le haut (les bandes LED se trouvent de l'autre côté)

Étape 3 : Assemblez les supports pour tablette et téléphone

Pour assembler les supports de tablette et de téléphone :

  1. Examinez le plan mécanique du support de la tablette.

    Dessin mécanique du support de tablette

    Figure 14. Dessin mécanique du support de tablette

  2. Rassemblez les pièces comme indiqué sur la figure 15.

    Pièces de supports pour tablettes et téléphones

    Figure 15. Supports pour tablettes et téléphones avec vis, ventouses, bouchons en vinyle et écrous

  3. Coupez les embouts en caoutchouc suffisamment court pour ne pas gêner le fonctionnement du piston (environ de moitié), puis enfoncez-les sur les extrémités des pistons. La longueur plus courte du capuchon en vinyle permet de rétracter et de verrouiller le mécanisme du piston.

    Poussoirs avec capuchon à pression ajusté

    Figure 16. Poussoirs avec capuchons ajustés

  4. Vissez les plongeurs sur les supports.

    Supports pour tablettes et téléphones avec ventouses

    Figure 17. Supports pour tablettes et téléphones avec ventouses

Étape 4 : Assemblage final

Pour assembler le boîtier ITS à grand champ de vision :

  1. Rassemblez les plaques d'ouverture avant et utilisez des vis 4-40 pour visser la plus petite plaque avec le carré sur le dessus de la plus grande plaque, comme illustré à la figure 18.

    Depuis la plaque d'ouverture et la plaque de fixation du téléphone

    Figure 18. Plaque d'ouverture avant et plaque de fixation du téléphone

    Plaque d'ouverture avant assemblée

    Figure 19. Plaque d'ouverture avant et plaque de fixation du téléphone vissées ensemble avec des vis 4-40

  2. Collez les panneaux avant et arrière sur la boîte.

    Boîtier WFoV avec les côtés vissés ensemble

    Figure 20. Boîtier WFoV avec les côtés vissés et les panneaux avant et arrière scotchés

  3. Utilisez une perceuse électrique pour créer des avant-trous en fonction des trous existants. Assurez-vous que les avant-trous sont suffisamment grands pour les vis 4-40 afin que le plastique ABS ne se fissure pas lors de l'insertion des vis.

    Avant-trous

    Figure 21. Percer des avant-trous pour les vis 4-40

  4. Vissez tous les panneaux ensemble à l'aide de vis autotaraudeuses 4-40.

    Vis 4-40 pour l'assemblage

    Figure 22. Vis 4-40 pour l'assemblage

  5. Rassemblez les pièces de la poignée illustrées à la figure 23.

    Poignées

    Figure 23. Poignées

  6. Assemblez les poignées comme indiqué sur la figure 24.

    Poignée assemblée

    Figure 24. Poignée assemblée

  7. Vérifiez que l'adaptateur secteur est de 12 V, 5 A et qu'il est certifié UL. Tout ce qui est inférieur à 12 V ne fonctionne pas. Tout ce qui est inférieur à 5 A peut affecter la luminosité des lumières.

    Adaptateur secteur 12 V, 5 A

    Figure 25. Adaptateur secteur 12 V, 5 A avec certification UL

  8. À l'aide d'un luxmètre numérique, testez le niveau de luminosité des voyants LED pour vous assurer qu'il est approprié.

    Placez le luxmètre sur le côté de la tablette et réglez-le sur 2 000 lux pour mesurer la luminosité. La luminosité doit être comprise entre 100 et 300 lux. Toute valeur nettement inférieure est trop faible pour les tests et peut entraîner des échecs.

    Le luxmètre YF-1065 de Contempo Views est utilisé dans cet exemple.

    YF-1065 de Contempo Views

    Figure 26. YF-1065 de Contempo Views

    Posemètre

    Figure 27. Luxmètre mesurant la lumière sur le côté avec le support de tablette

  9. Suivez l'étape appropriée en fonction de la valeur de luminosité mesurée :

    • Si la lumière est au bon niveau, vissez les plaques avant et arrière.
    • Si la luminosité n'est pas correcte, vérifiez que les références de la LED et de l'alimentation sont correctes.
  10. Fixez le support du téléphone sur la plaque d'ouverture et le support de la tablette sur le côté opposé à l'aide de vis et d'écrous.

    Support de tablette

    Figure 28. Gros plan sur un support de tablette

    Boîtier WFoV assemblé

    Figure 29. Boîtier WFoV assemblé : vue arrière (à gauche) et vue avant (à droite)

  11. Insérez l'ouverture de la plaque de mousse de 10 x 10 cm pour l'adapter à l'ouverture de la caméra du DUT.

    Ouverture du panneau Gator

    Figure 30. ITS-in-a-box avec l'ouverture de la plaque Gator installée

  12. Installez le téléphone en alignant l'appareil photo sur l'ouverture. Vérifiez l'alignement à travers l'ouverture de la tablette.

    Boîte avec un téléphone installé

    Figure 31. ITS-in-a-box avec un téléphone installé

  13. Découpez les ouvertures pour les caméras. Vous pouvez découper une seule ouverture (pour tester un seul téléphone) ou deux ouvertures (pour tester deux téléphones). Les ouvertures des caméras avant et arrière du Pixel et du Pixel XL sont indiquées dans la figure 32. La caméra avant est dotée d'une ouverture circulaire, car elle ne comporte pas de flash ni de laser. La caméra arrière, quant à elle, est dotée d'une ouverture rectangulaire qui permet au flash et au laser de fonctionner sans être bloqués.

    Ouvertures des caméras avant et arrière

    Figure 32. Exemples d'ouvertures pour les caméras avant et arrière

    image

    Figure 33. ITS-in-a-box avec deux téléphones installés

    Vous pouvez également découper des ouvertures dans du carton et les peindre en noir avec des marqueurs, de la peinture en bombe ou de la peinture acrylique, comme illustré à la figure 34.

    image

    Figure 34 : Exemples d'ouvertures en carton pour les caméras avant et arrière

Éléments à prendre en compte

Vous trouverez ci-dessous des exemples d'erreurs de fabrication courantes qui peuvent rendre les tests instables.

  • Panneau arrière avec des trous pour la tablette. Cela entraîne l'échec du test find_circle en raison des cercles supplémentaires créés par les trous de vis.

    Panneau arrière avec trous

    Figure 35. Panneau arrière avec des trous

  • Il manque des chevilles. Les déflecteurs de lumière peuvent alors glisser hors de leur emplacement pendant le transport.

    Cheville manquante

    Figure 36. Cheville manquante sur le déflecteur de lumière

  • Alimentation ne figurant pas sur la liste UL. L'utilisation d'un adaptateur secteur homologué UL permet de respecter les spécifications indiquées. C'est important pour faire fonctionner l'éclairage en toute sécurité.

    Alimentation certifiée UL

    Figure 37. Exemple d'alimentation certifiée UL

  • Les vis du support de la tablette ou du téléphone glissent et ne peuvent pas supporter le poids de la tablette ou du téléphone. Cela est généralement dû à des filetages endommagés et indique que le trou doit être refileté.

    Trou avec filetage endommagé

    Figure 38. Trou avec filetage endommagé